Скачать Инструкция по технической эксплуатации крупнопанельных жилых домовДата актуализации: 01.01.2021 |
| Статус: | действует |
| Название рус.: | Инструкция по технической эксплуатации крупнопанельных жилых домов |
| Дата добавления в базу: | 01.09.2013 |
| Дата актуализации: | 01.01.2021 |
| Область применения: | Инструкция содержит указания по приемке, заселению, эксплуатации и гарантийному ремонту жилых зданий и рассчитана на инженерно-технических работников, занятых эксплуатацией жилищного фонда. |
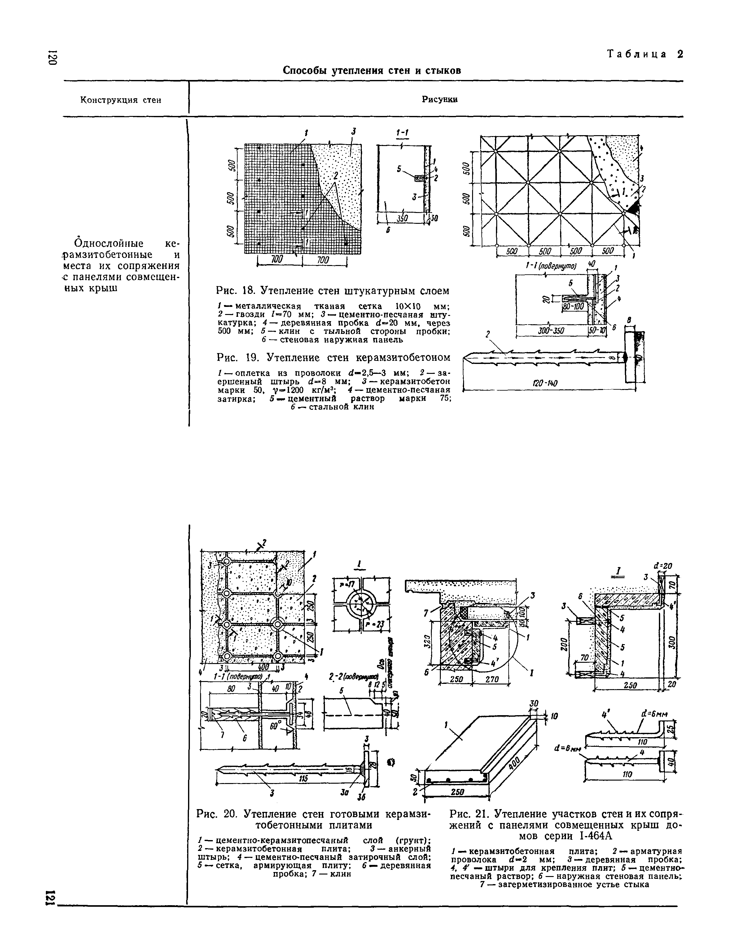
| Оглавление: | Введение Раздел I. Основные положения 1. Общие указания 2. Контроль за состоянием конструкций и оборудования крупнопанельных домов 3. Конструктивные схемы крупнопанельных жилых домов Раздел II. Содержание отдельных частей здания 1. Фундаменты и технические подполья 2. Стены 3. Междуэтажные перекрытия и полы 4. Перегородки 5. Крыши 6. Прочие части зданий и устройства Раздел III. Содержание оборудования в жилом доме 1. Водоснабжение и канализация 2. Система водяного отопления 3. Системы горячего водоснабжения 4. Газоснабжение 5. Вентиляция 6. Противопожарные мероприятия 7. Электроснабжение Приложение 1. Конструктивные мероприятия по улучшению эксплуатационных свойств частей зданий Приложение 2. Оснащение и оборудование, необходимые для контрольно-измерительных работ Приложение 3. Акт поэтажной приемки смонтированных конструкций Приложение 4. Указания по герметизации и гидрофобизации стыков наружных стен крупнопанельных жилых домов Приложение 5. Особенности эксплуатации полиэтиленовых канализационных труб Приложение 6. Основные характеристики утепляющих материалов Приложение 7. Таблица для определения толщин наружных стеновых панелей жилых домов при строительстве в обычных условиях Список нормативных и инструктивных документов, использованных в Инструкции |
| Разработан: | АКХ им. К. Д. Памфилова ЛНИИ |
| Утверждён: | 09.11.1972 Министерство жилищно-коммунального хозяйства РСФСР |
| Издан: | Стройиздат (1975 г. ) |
| Нормативные ссылки: |
|




































































































































































