Скачать Типовой проект 905-40 Альбом I. Пояснительная записка. Технологическая часть. КИП и автоматика. Защита от коррозииДата актуализации: 01.01.2021
|
| Обозначение: | Типовой проект 905-40 |
| Обозначение англ: | 905-40 |
| Статус: | действует |
| Название рус.: | Альбом I. Пояснительная записка. Технологическая часть. КИП и автоматика. Защита от коррозии |
| Дата добавления в базу: | 01.09.2013 |
| Дата актуализации: | 01.01.2021 |
| Дата введения: | 30.11.1975 |
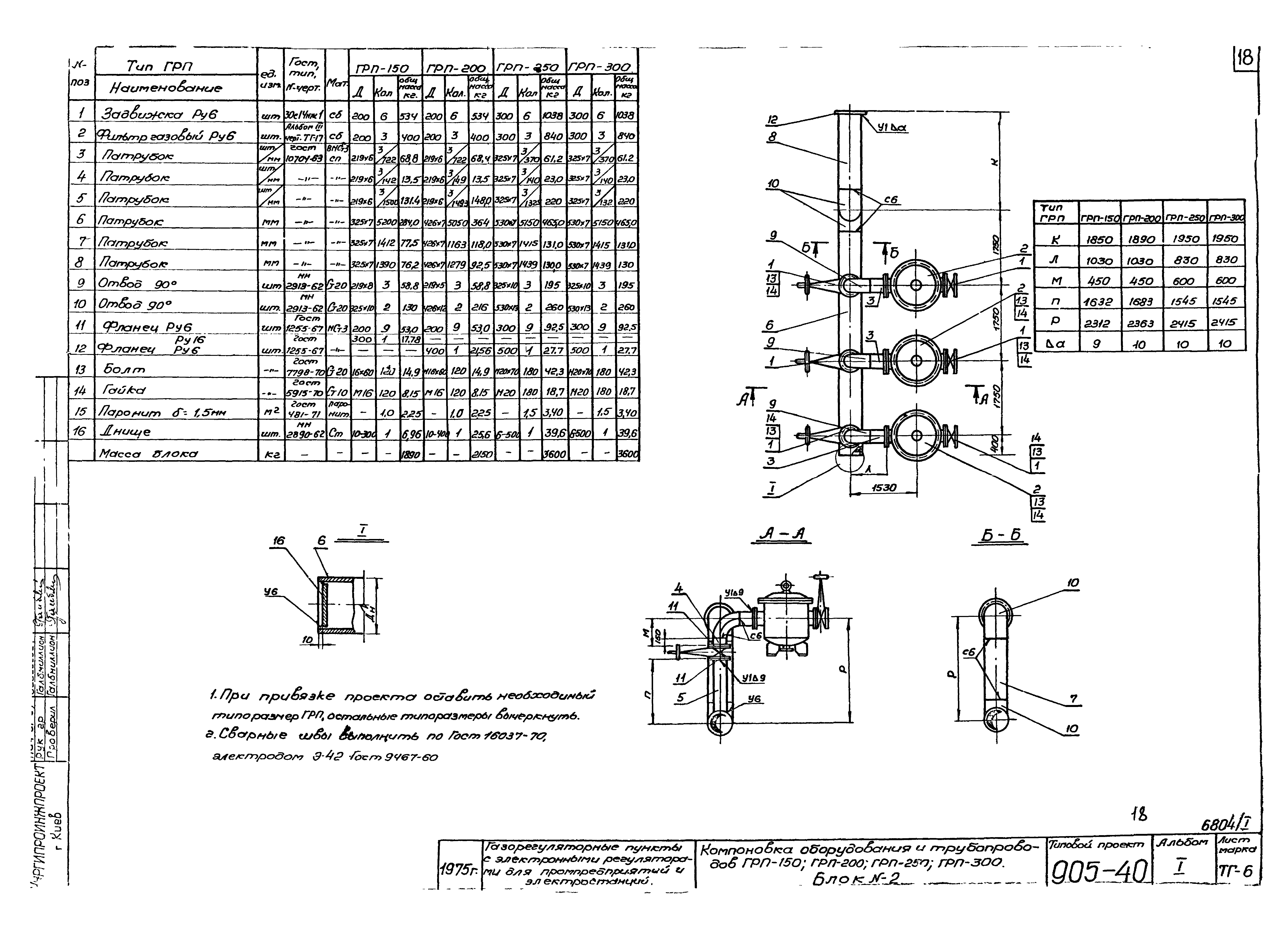
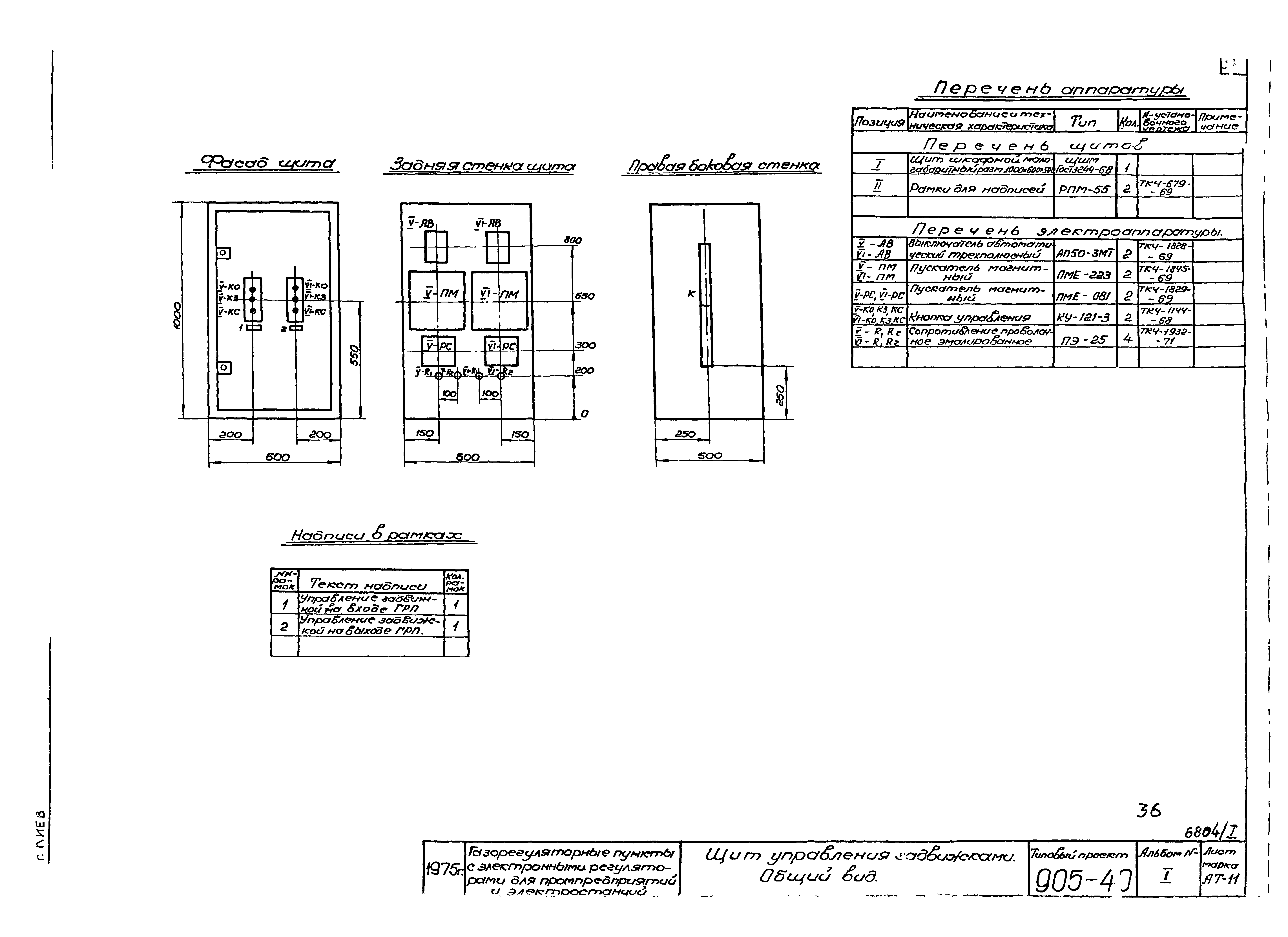
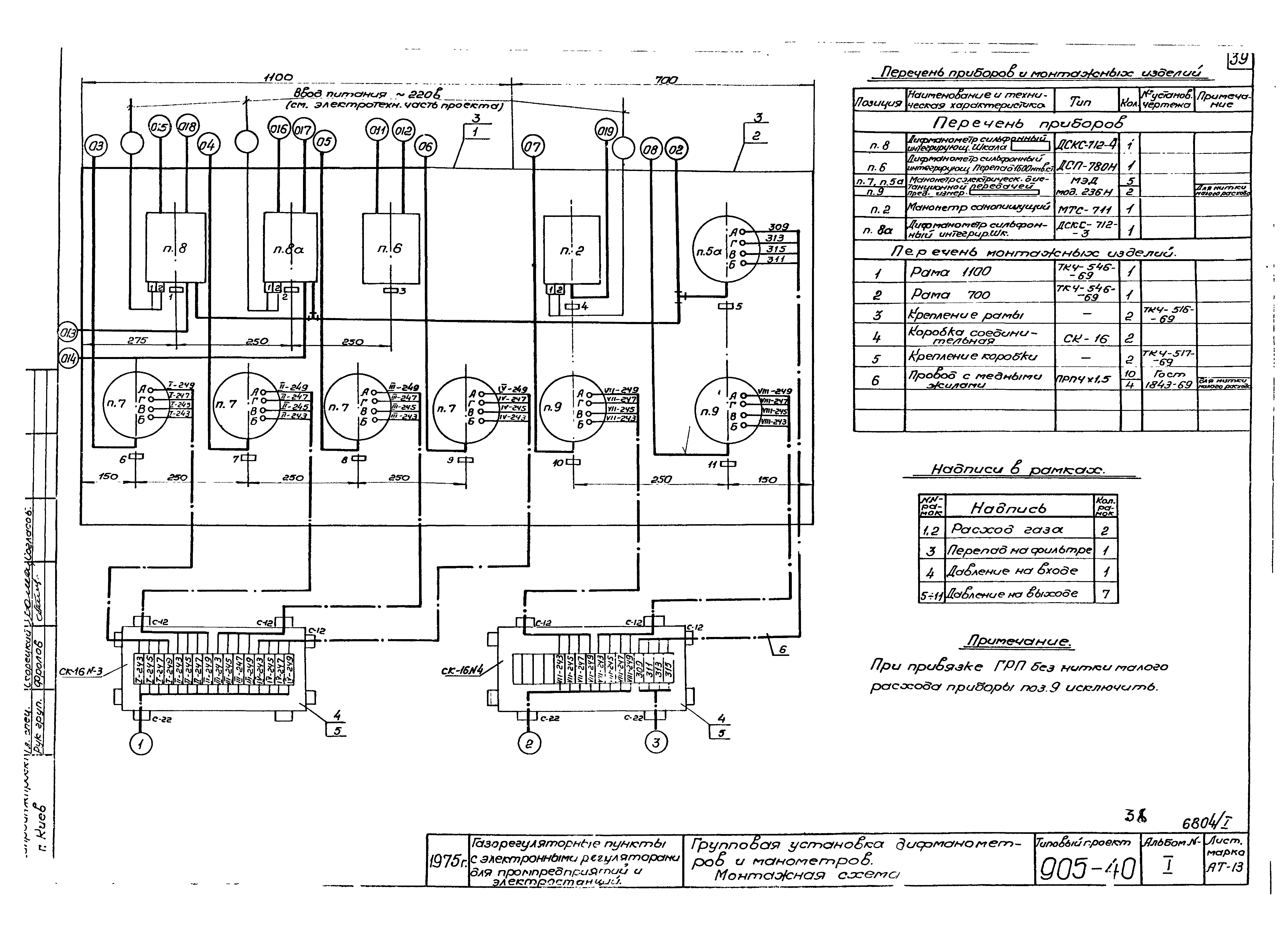
| Оглавление: | Технологическая часть Заглавный лист Пояснительная записка Принципиальные технологические схемы ГРП Компоновка оборудования и трубопроводов ГРП-250, ГРП-300. План Компоновка оборудования и трубопроводов ГРП-250, ГРП-300. Разрезы А-А, Б-Б, В-В Компоновка оборудования и трубопроводов ГРП-250, ГРП-300. Разрез Г-Г, экспликации Компоновка оборудования и трубопроводов ГРП-150, ГРП-200. План Компоновка оборудования и трубопроводов ГРП-150, ГРП-200. Разрезы А-А, Б-Б, В-В Компоновка оборудования и трубопроводов ГРП-150, ГРП-200. Разрез Г-Г, экспликации Компоновка оборудования и трубопроводов ГРП-250, ГРП-300. Блок №1 Компоновка оборудования и трубопроводов ГРП-150, ГРП-200. Блок №1 Компоновка оборудования и трубопроводов ГРП-150, ГРП-200, ГРП-250, ГРП-300. Блок №2 Компоновка оборудования и трубопроводов ГРП-150, ГРП-200, ГРП-250, ГРП-300. Блок №3 Компоновка оборудования и трубопроводов ГРП-150, ГРП-200, ГРП-250, ГРП-300. Блок №4 Компоновка оборудования и трубопроводов ГРП-150, ГРП-200, ГРП-250, ГРП-300. Блок №5 Компоновка оборудования и трубопроводов ГРП-150, ГРП-200, ГРП-250, ГРП-300. Блок №6 Компоновка оборудования и трубопроводов ГРП-150, ГРП-200, ГРП-250, ГРП-300. Блок №7 Коллектор отборных устройств. Вентиляционный коллектор. Шумоглушение Оголовок опоры. Стойка под газопроводы Соединение фланцевое, изолирующее КИП и автоматика Принципиальная схема автоматики и КИП ГРП Элементная электрическая схема питания щита управления ГРП Элементная электрическая схема регулятора давления газа Элементная электрическая схема управления электроприводом задвижки Щит управления ГРП. Общий вид Щит управления ГРП. Мнемосхема Щит управления ГРП. Монтажно-коммутационная схема Щит управления задвижками. Общий вид Щит управления задвижками. Монтажно-коммутационная схема Групповая установка дифманометров и манометров. Монтажная схема Схема внешних электрических и трубных проводок План трасс электрических и трубных проводок |
| Разработан: | Укргипроинжпроект МКХ УССР |
| Утверждён: | 28.11.1975 Укргипроинжпроект (168) |













































