Скачать Типовой проект 905-40 Альбом II. Архитектурно-строительная, сантехническая, электрическая частьДата актуализации: 01.01.2021
|
| Обозначение: | Типовой проект 905-40 |
| Обозначение англ: | 905-40 |
| Статус: | действует |
| Название рус.: | Альбом II. Архитектурно-строительная, сантехническая, электрическая часть |
| Дата добавления в базу: | 01.09.2013 |
| Дата актуализации: | 01.01.2021 |
| Дата введения: | 30.11.1975 |
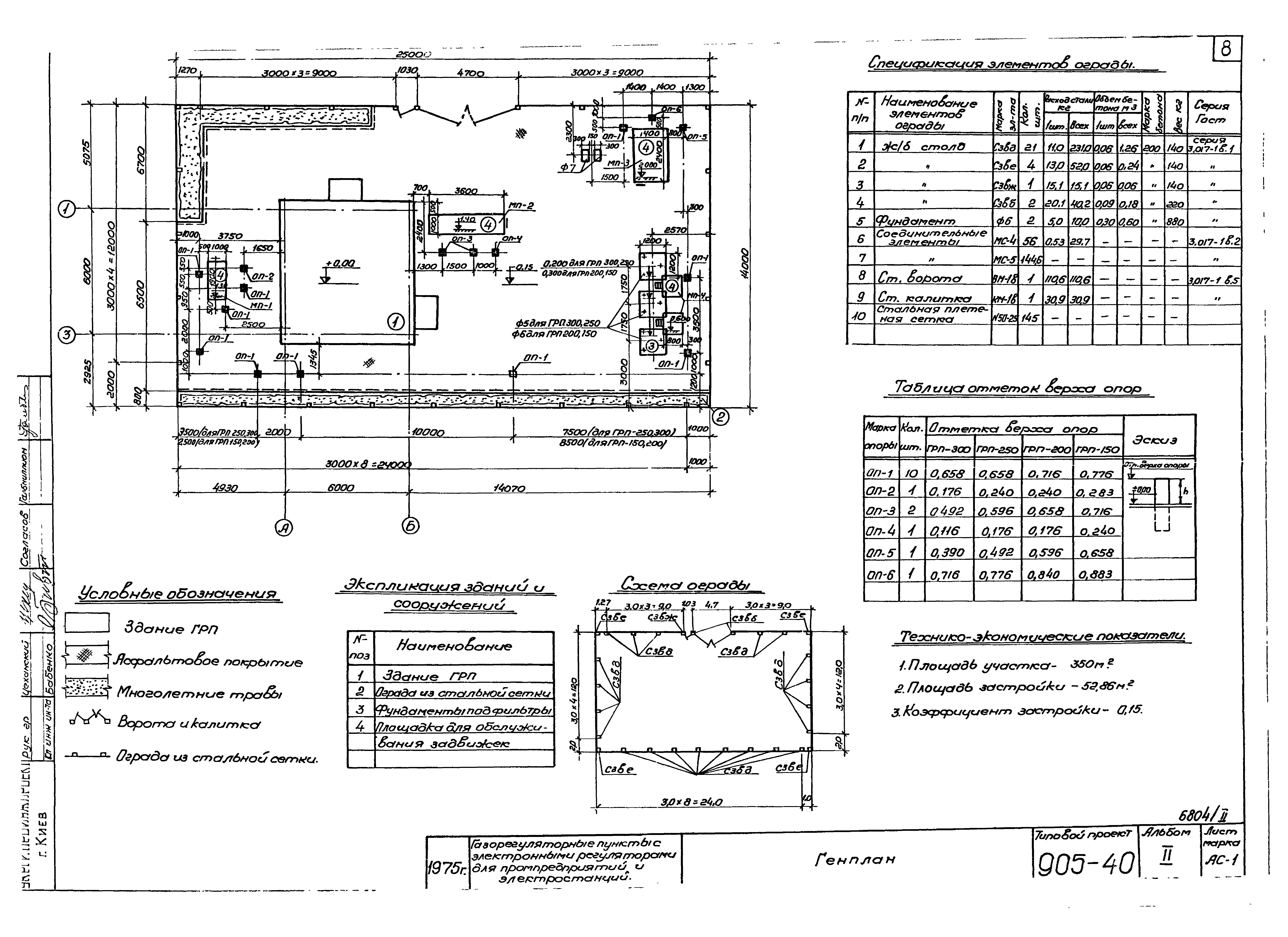
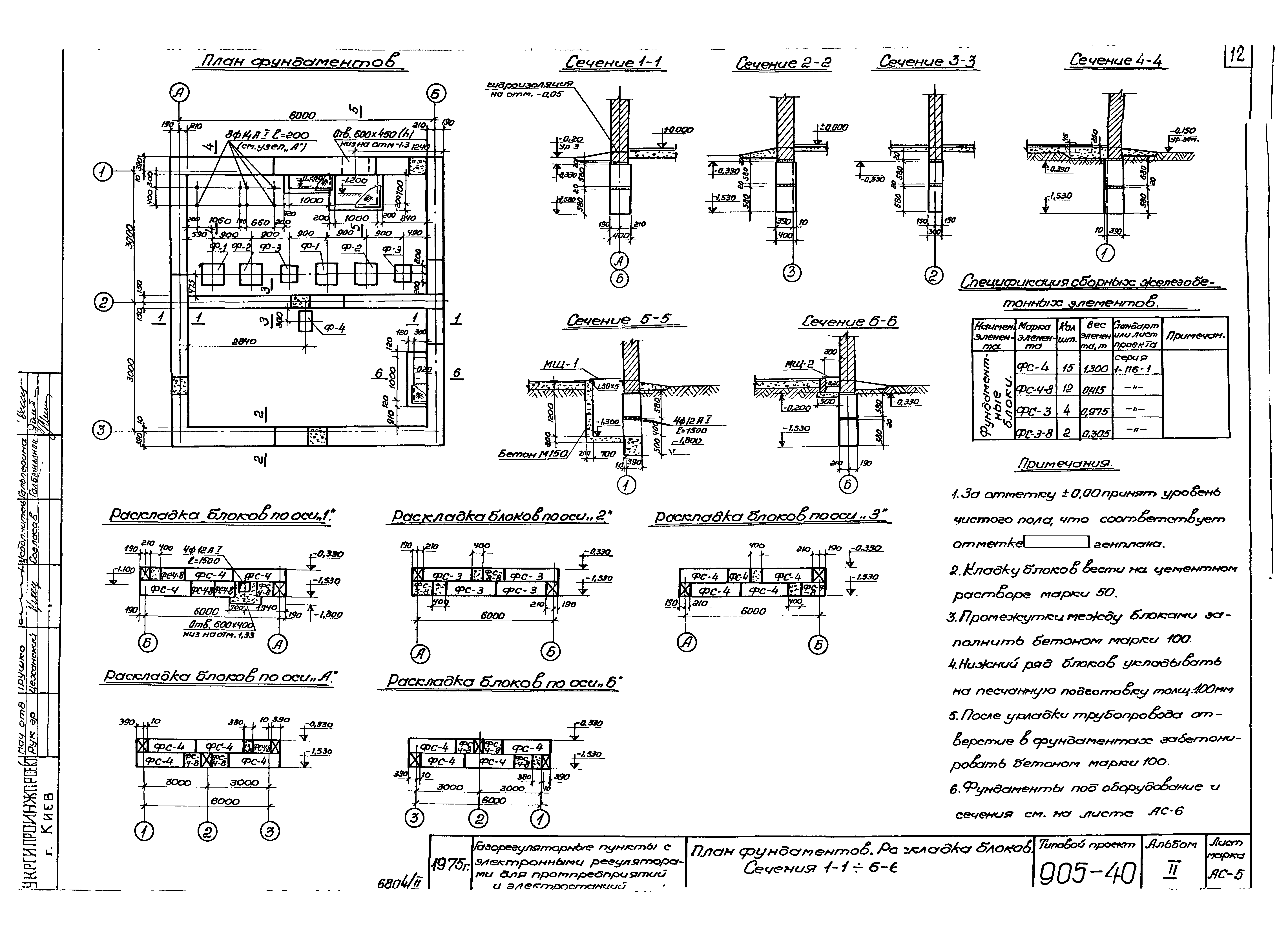
| Оглавление: | Заглавный лист Пояснительная записка Архитектурно-строительная часть Генплан План, фасады А-Б, 3-1, Б-А Разрезы 1-1, 2-2. Монтажная схема перемычек. План плит покрытия. Спецификации Архитектурные детали. Схема разбивки отверстий в стенах. Таблица привязочных размеров для отверстий План фундаментов. Раскладка блоков. Сечения 1-1 - 6-6 Фундаменты под оборудование Ф1 - Ф6. Конструкция опоры под газопроводы Оконные решетки. Металлические щиты МЩ-1, МЩ-2. Закладные детали ЗД-1 - ЗД-3. Анкера А1, А2 Площадки для обслуживания арматуры газопровода МП-1, МП-2, МП-3 и МП-4 Сантехническая часть Спецификация и условные обозначения Водяное отопление и вентиляция газорегуляторного пункта Паровое отопление и вентиляция газорегуляторного пункта Электрическая часть Внутриплощадочные сети. Электроснабжение и телефонизация Внутренние электрические сети и телефонизация Молниезащита |
| Разработан: | Укргипроинжпроект МКХ УССР |
| Утверждён: | 28.11.1975 Укргипроинжпроект (168) |




















