Скачать Типовые проектные решения 820-9-013с.89 Альбом 1. Общая пояснительная записка. Конструкции железобетонныеДата актуализации: 01.01.2021
|
| Обозначение: | Типовые проектные решения 820-9-013с.89 |
| Обозначение англ: | 820-9-013с.89 |
| Статус: | справочные материалы, мп, тпр |
| Название рус.: | Альбом 1. Общая пояснительная записка. Конструкции железобетонные |
| Дата добавления в базу: | 01.09.2013 |
| Дата актуализации: | 01.01.2021 |
| Дата введения: | 15.03.1989 |
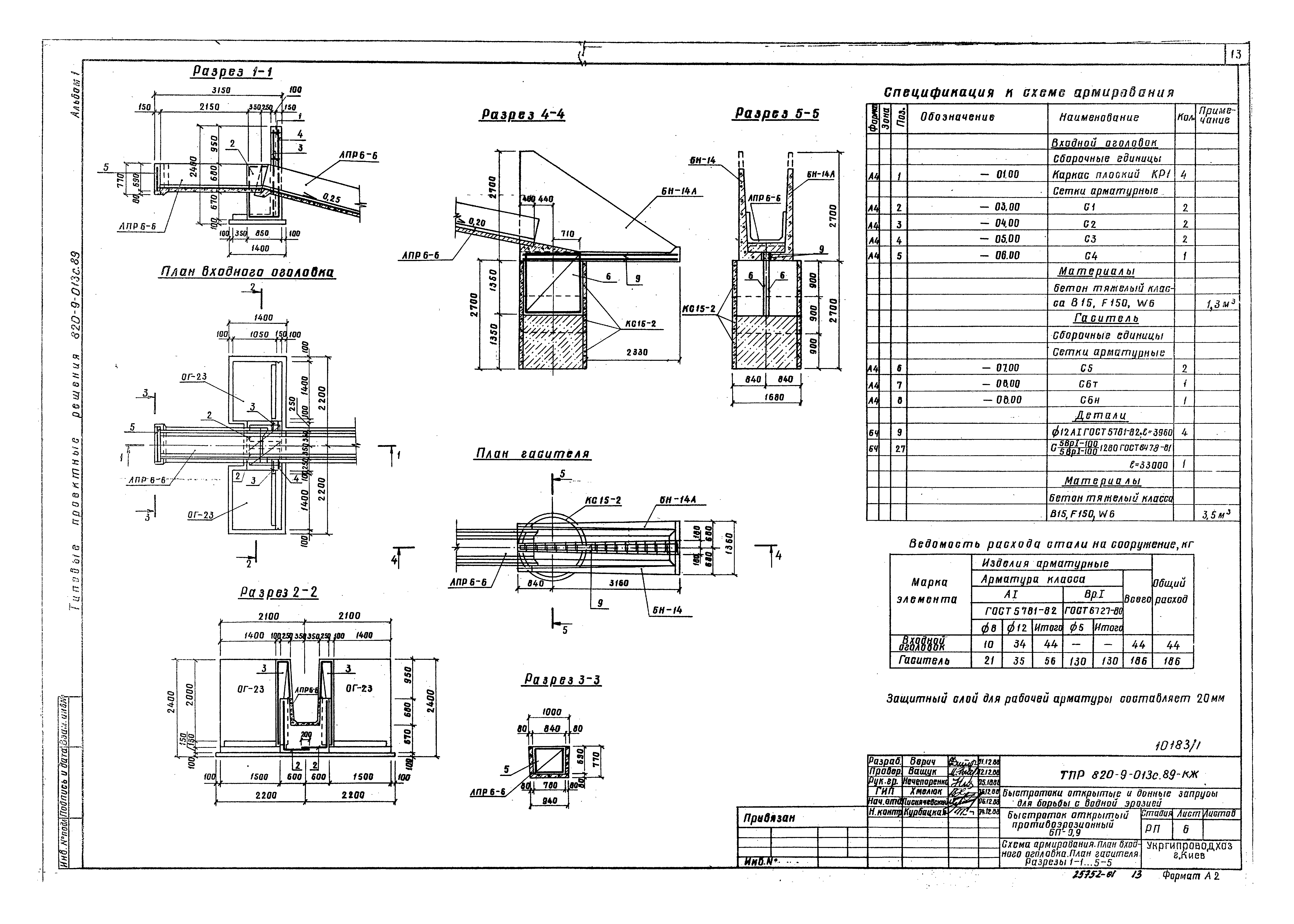
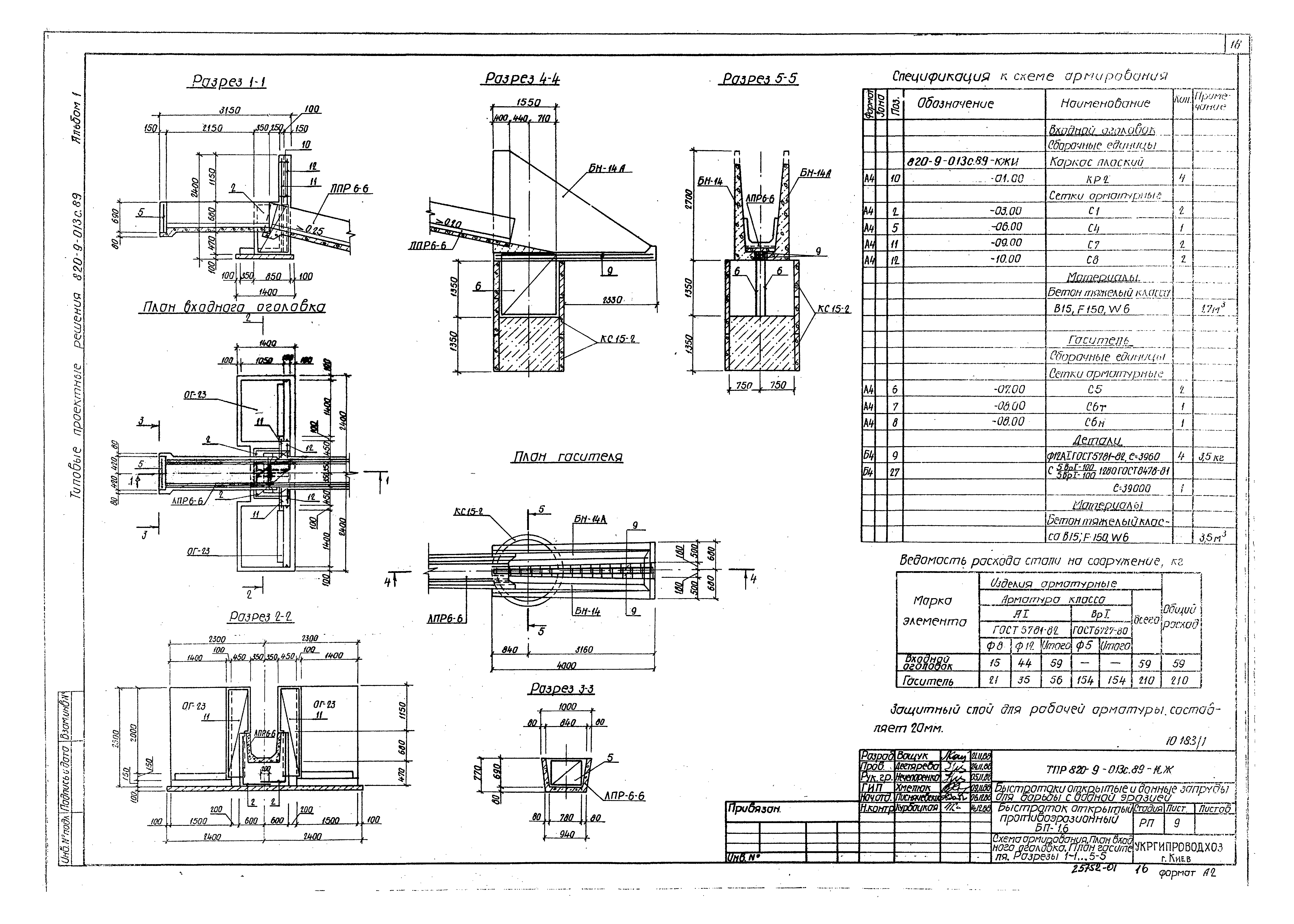
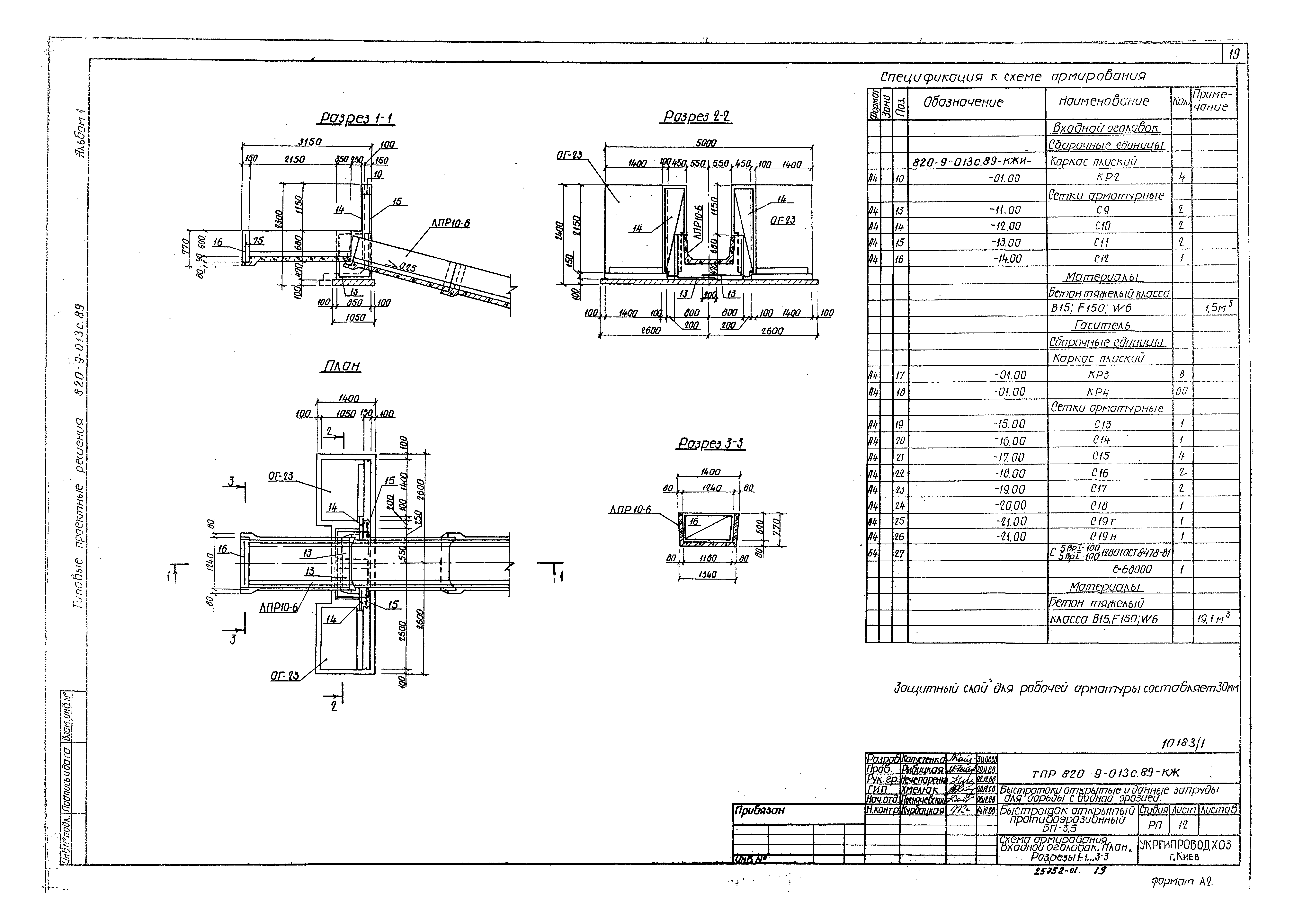
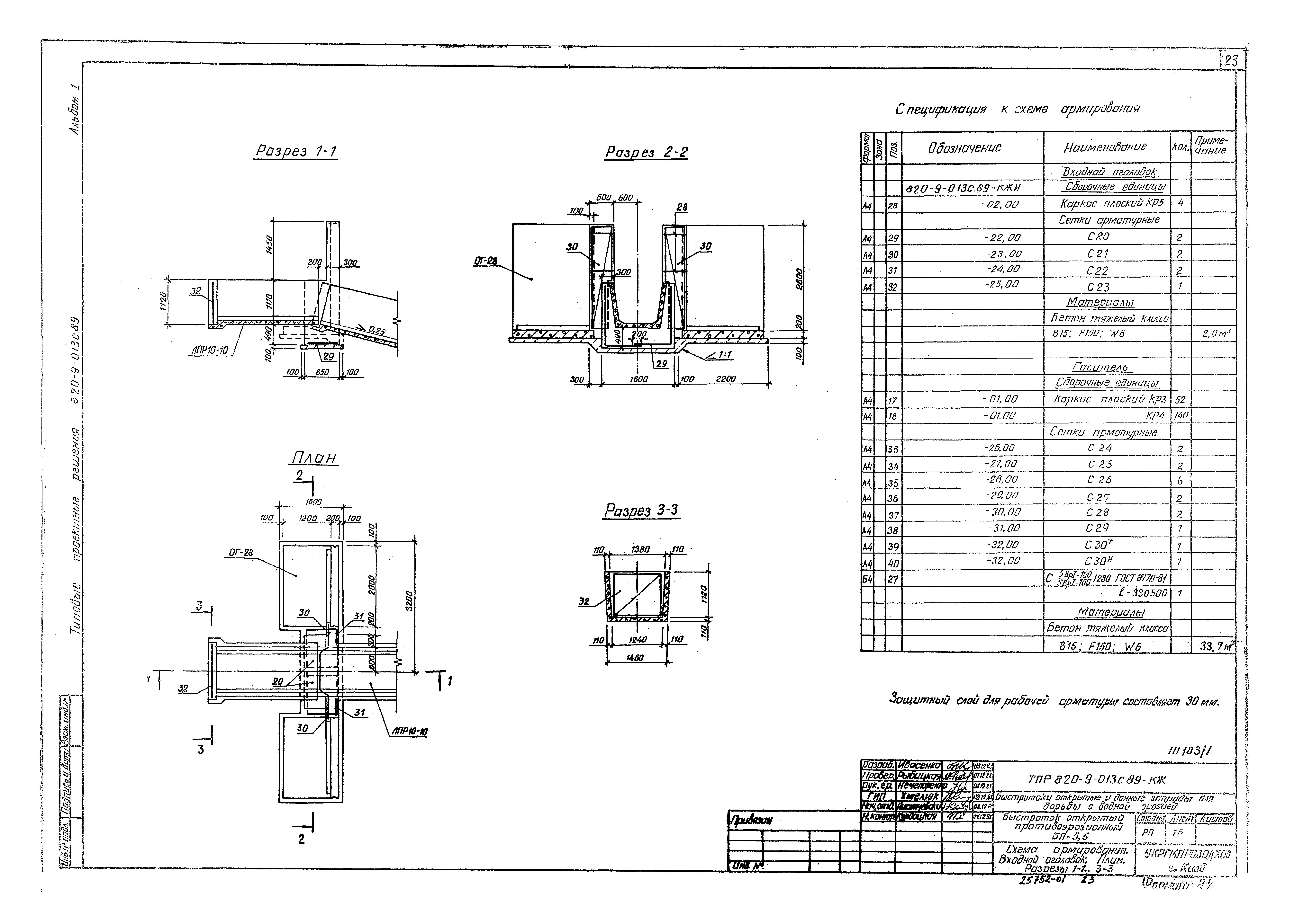
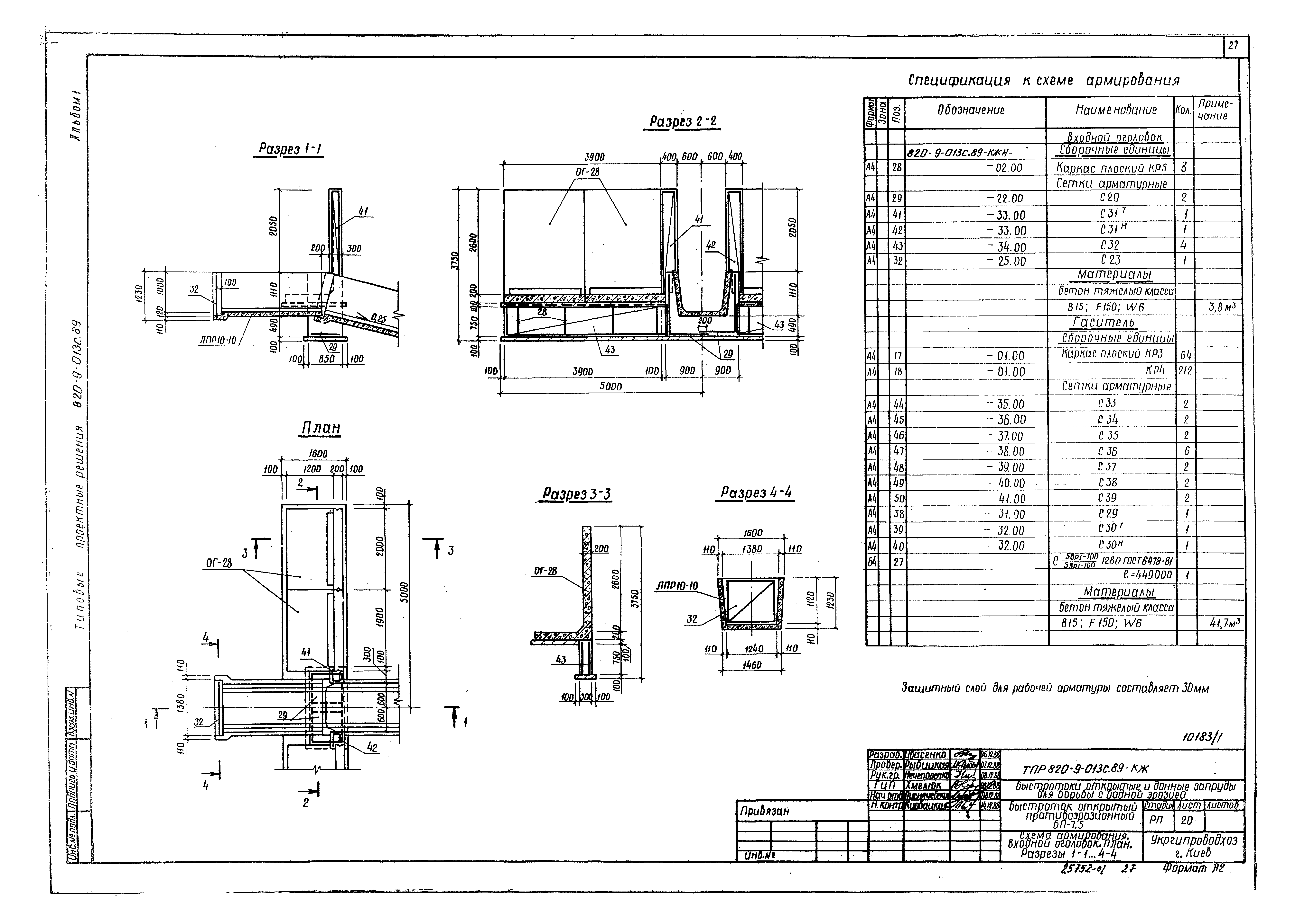
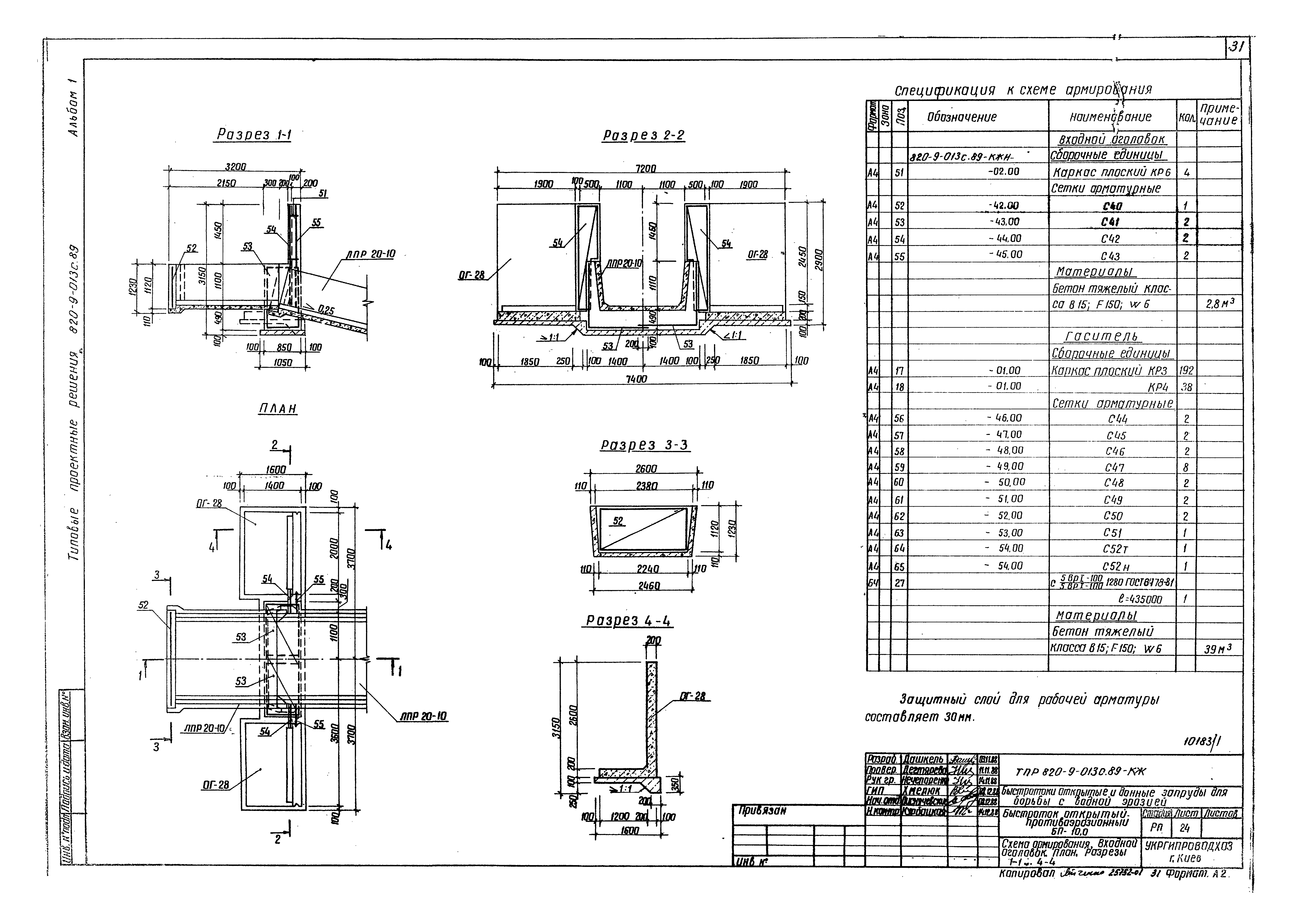
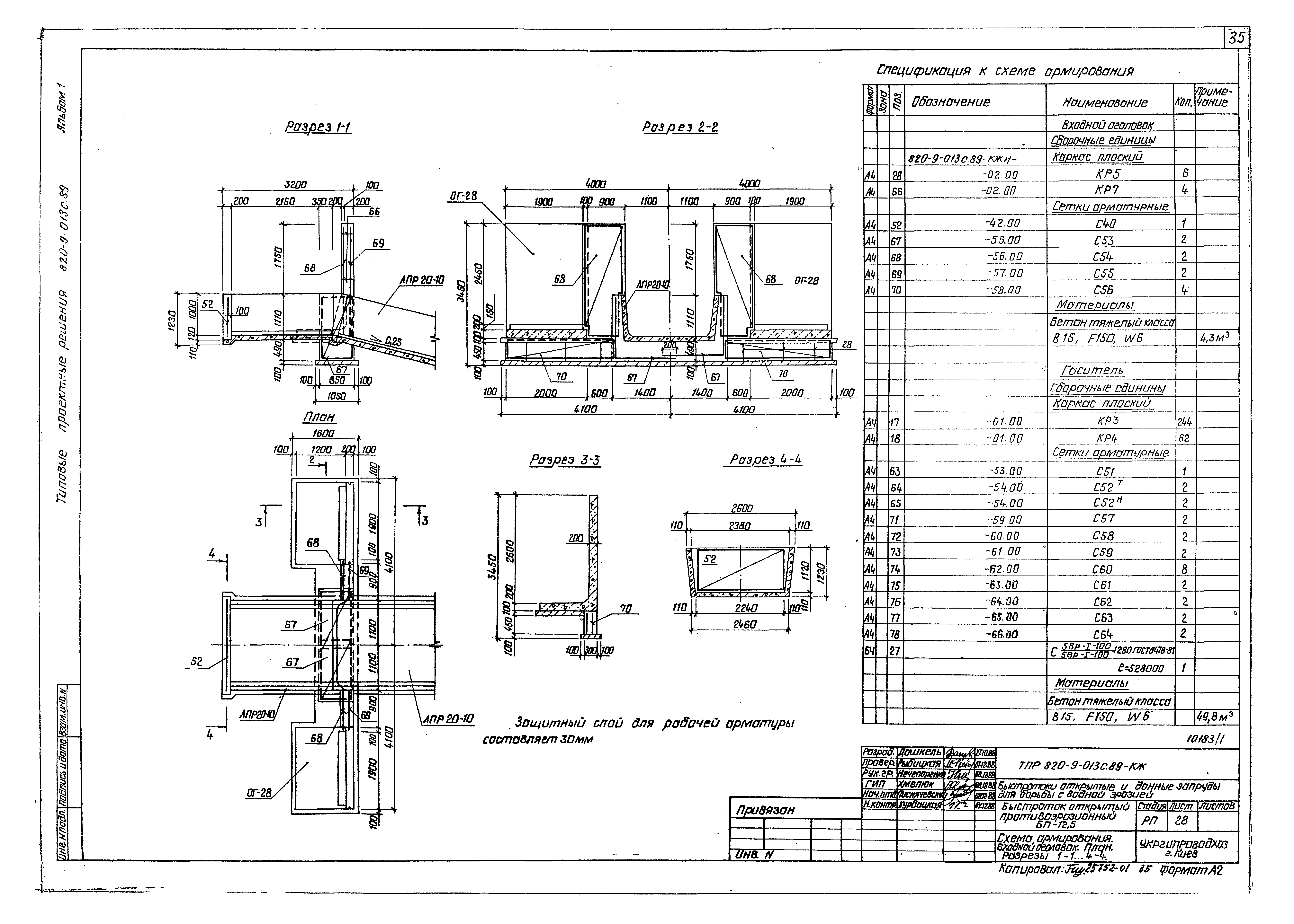
| Оглавление: | Содержание альбома Пояснительная записка Общие данные Быстроток открытый противоэрозионный БП-0,9 План. Разрез 1-1 Разрезы 2-2…4-4 Схема армирования. План входного оголовка. План гасителя. Разрезы 1-1…5-5 Быстроток открытый противоэрозионный БП-1,6 План. Разрез 1-1 Разрезы 2-2…4-4 Схема армирования. План входного оголовка. План гасителя. Разрезы 1-1…5-5 Быстроток открытый противоэрозионный БП-3,5 План. Разрез 1-1 Разрезы 2-2…6-6 Схема армирования. Входной оголовок. План. Разрезы 1-1…3-3 Схема армирования. Гаситель. План. Разрезы 1-1…3-3 Быстроток открытый противоэрозионный БП-5,5 План. Разрез 1-1 Разрезы 2-2…6-6 Схема армирования. Входной оголовок. План. Разрезы 1-1…3-3 Схема армирования. Гаситель. План. Разрезы 1-1…3-3 Быстроток открытый противоэрозионный БП-7,5 План. Разрез 1-1 Разрезы 2-2…6-6 Схема армирования. Входной оголовок. План. Разрезы 1-1…4-4 Схема армирования. Гаситель. План. Разрезы 1-1…3-3 Быстроток открытый противоэрозионный БП-10,0 План. Разрез 1-1 Разрезы 2-2…6-6 Схема армирования. Входной оголовок. План. Разрезы 1-1…4-4 Схема армирования. Гаситель. План. Разрезы 1-1…3-3 Быстроток открытый противоэрозионный БП-12,5 План. Разрез 1-1 Разрезы 2-2…6-6 Схема армирования. Входной оголовок. План. Разрезы 1-1…4-4 Схема армирования. Гаситель. План. Разрезы 1-1…3-3 Быстроток открытый противоэрозионный БП-15,0 План. Разрез 1-1 Разрезы 2-2…6-6 Схема армирования. Входной оголовок. План. Разрезы 1-1…4-4 Схема армирования. Гаситель. План. Разрезы 1-1…3-3 Узлы 1-1…3-3. План узла. Разрез 1 Быстротоки открытые типа БП-0,9; БП-1,6 Котлован сооружения. План. Разрез 1-1 БП-0,9…1,6. Схемы производства работ по гасителю Схемы производства земляных работ по лотку Монтажная схема. Размеры котлована Запруда донная противоэрозионная Общие данные ЗП-2,6-3,0-0,6. План. Разрезы 1-1…3-3 ЗП-3,5-4,0-0,6. План. Разрезы 1-1…3-3 ЗП-3,5-3,0-1,2. План. Разрезы 1-1…3-3 ЗП-7,0-6,0-1,2. План. Разрезы 1-1…3-3 ЗП-11,0-9,0-1,2. План. Разрезы 1-1…3-3 ЗП-15,0-12,0-1,2. План. Разрезы 1-1…3-3 Котлованы сооружений. Планы. Разрезы Монтажная схема |
| Разработан: | Укргипроводхоз Минводхоза СССР |
| Утверждён: | 15.03.1989 Минводхоз СССР (USSR Minvodkhoz 792) |
| Заменяет собой: |
|






















































