Скачать Типовой проект 409-15-114.89 Альбом 1. Пояснительная записка. Технология производстваДата актуализации: 01.01.2021
|
| Обозначение: | Типовой проект 409-15-114.89 |
| Обозначение англ: | 409-15-114.89 |
| Статус: | действует |
| Название рус.: | Альбом 1. Пояснительная записка. Технология производства |
| Дата добавления в базу: | 01.09.2013 |
| Дата актуализации: | 01.01.2021 |
| Дата введения: | 19.10.1988 |
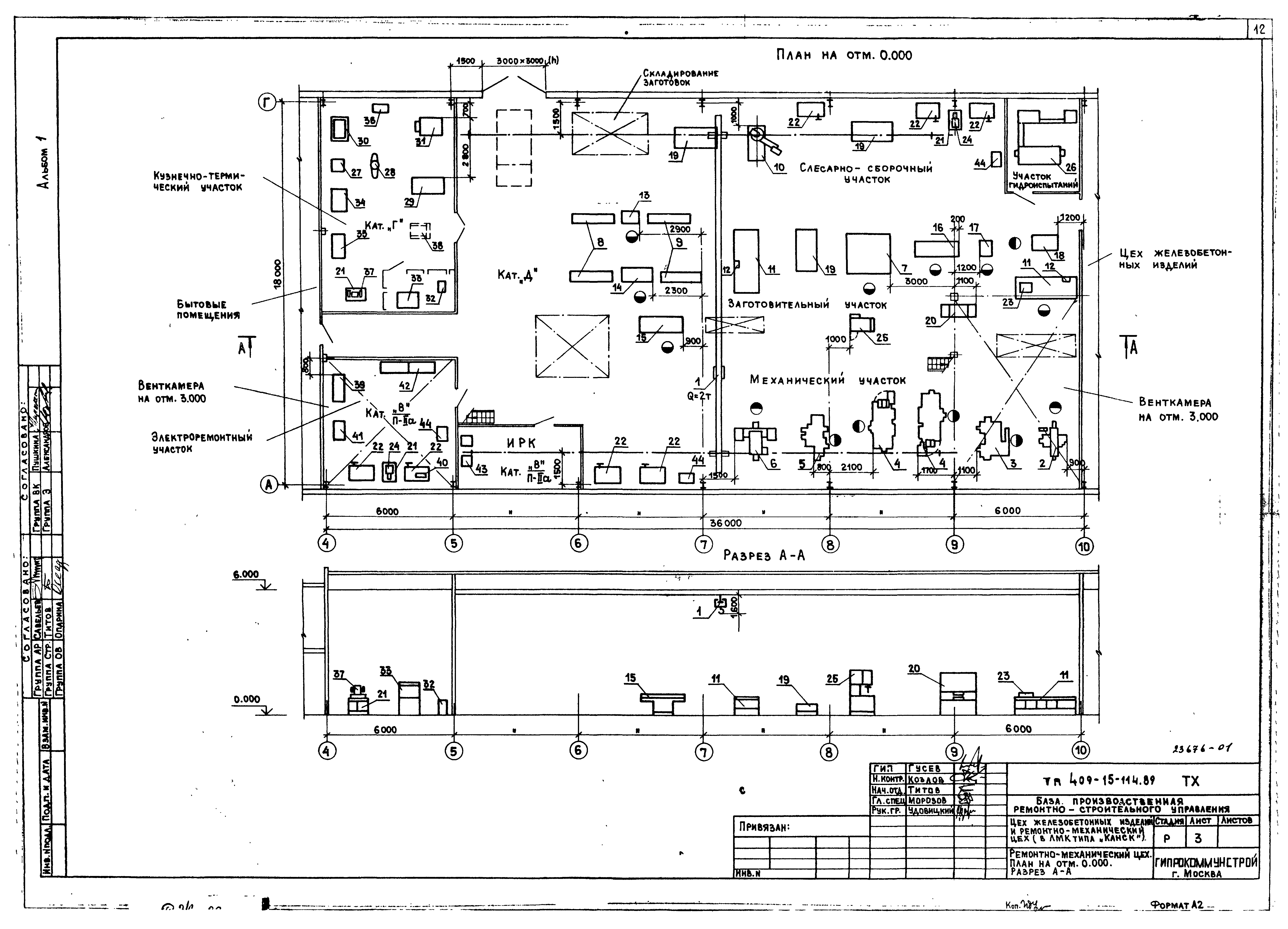
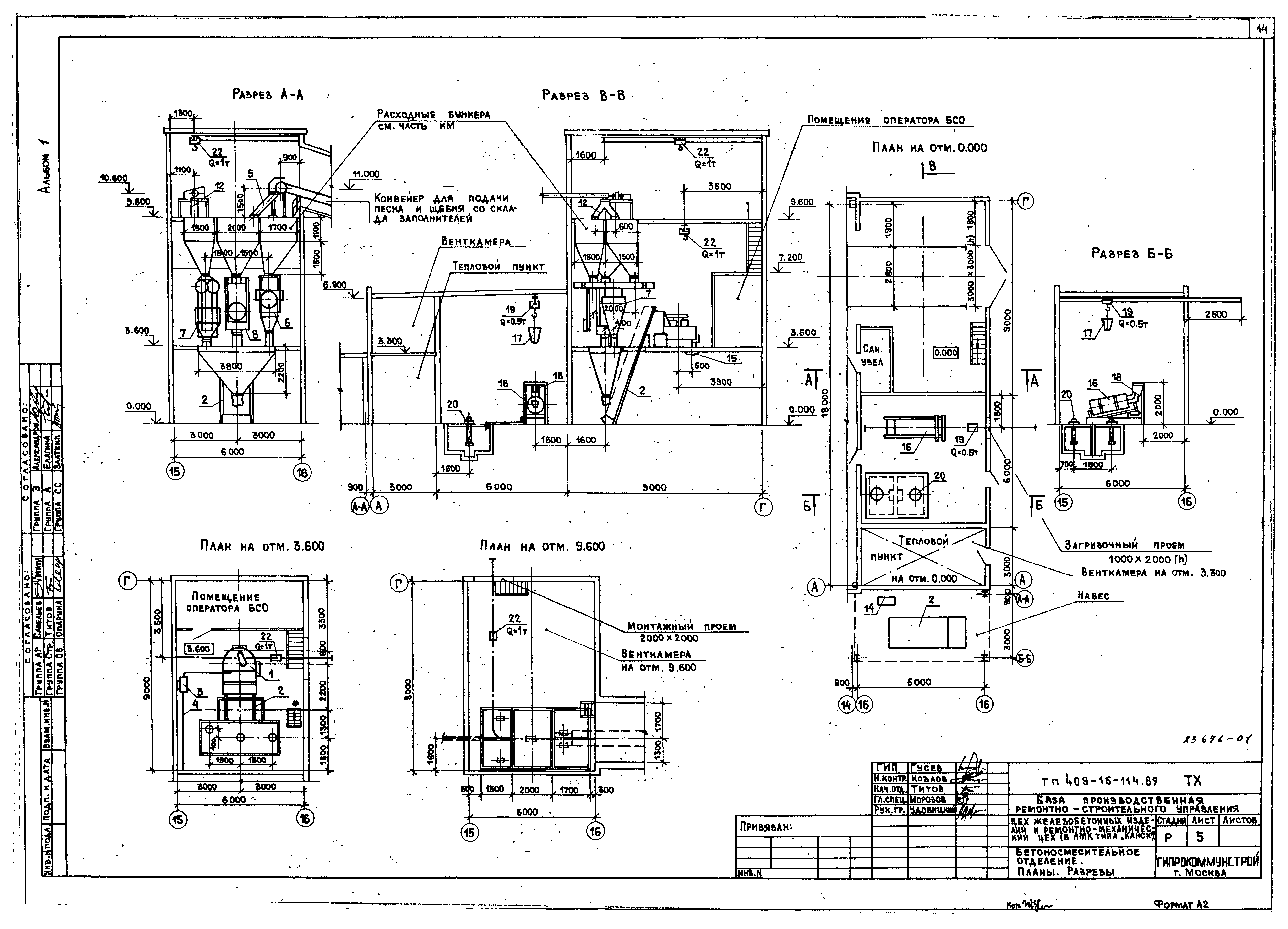
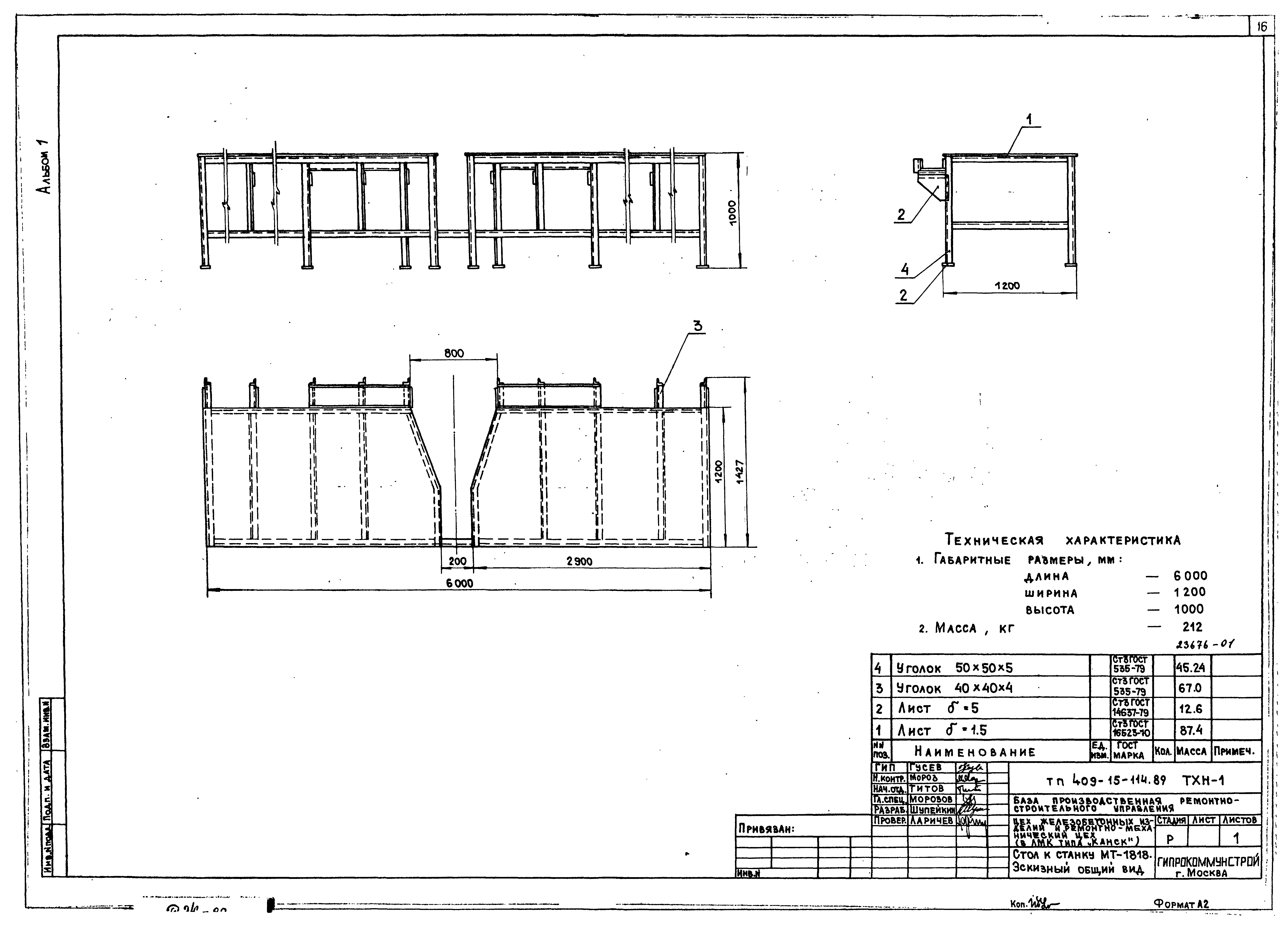
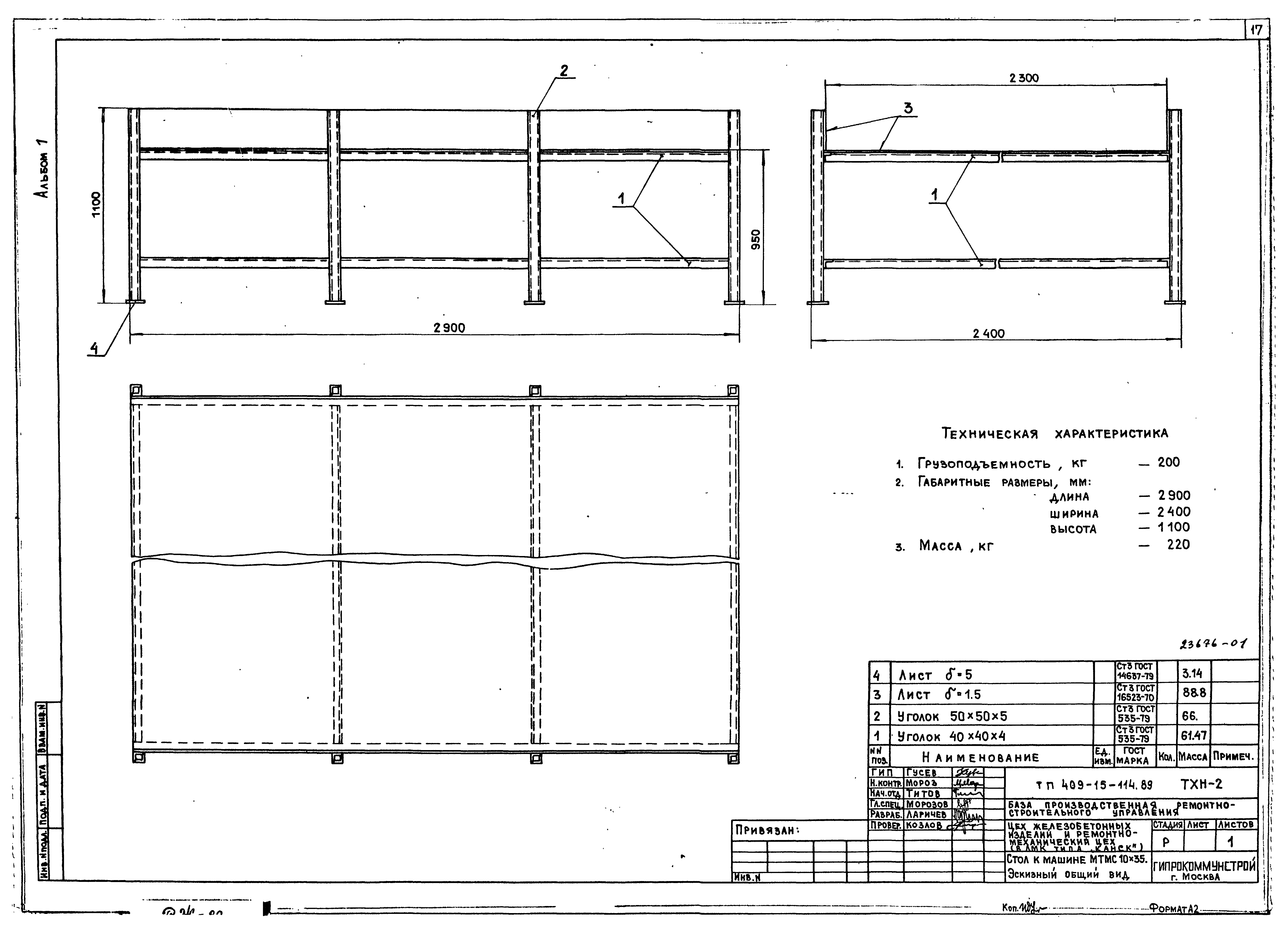
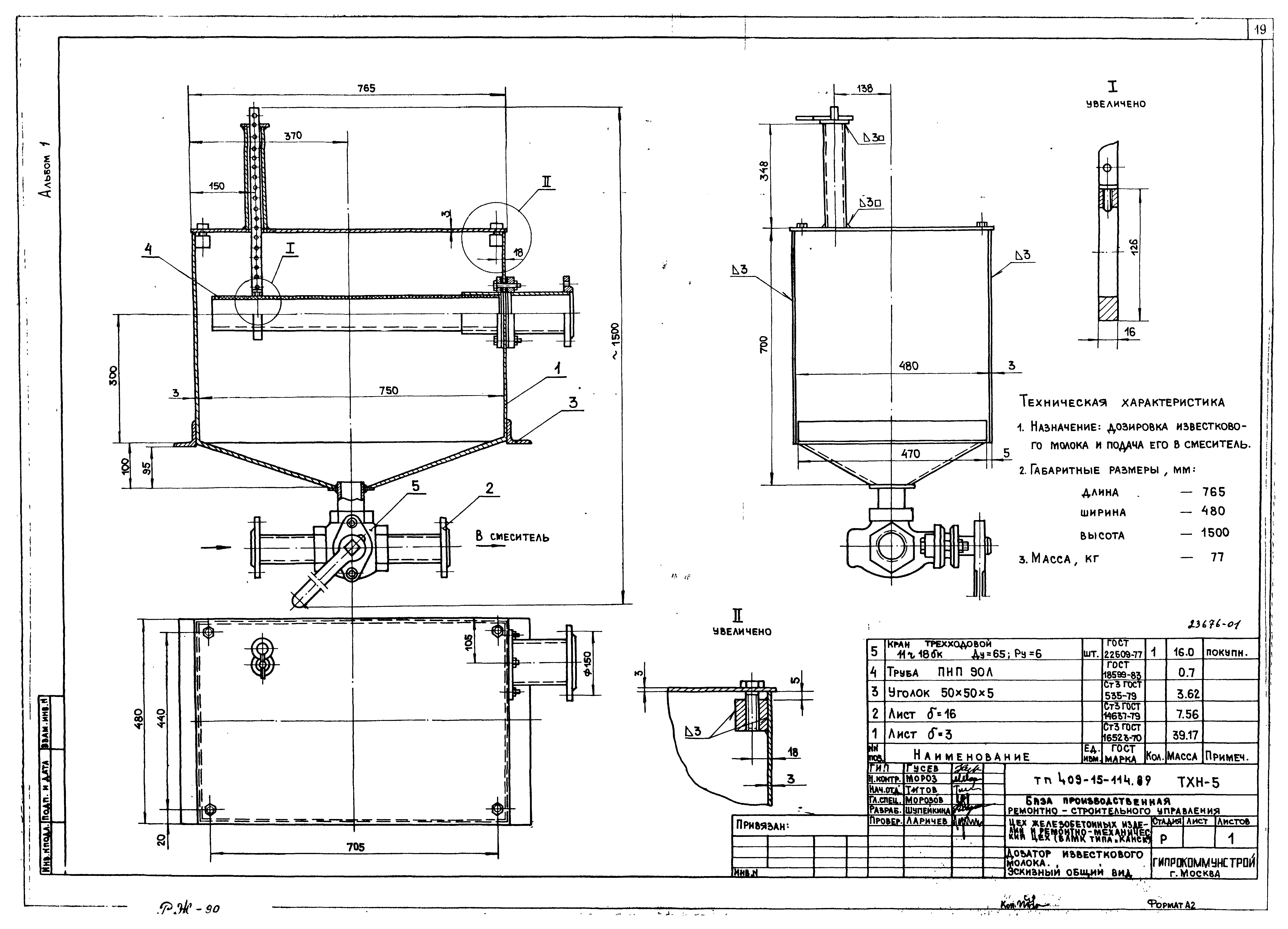
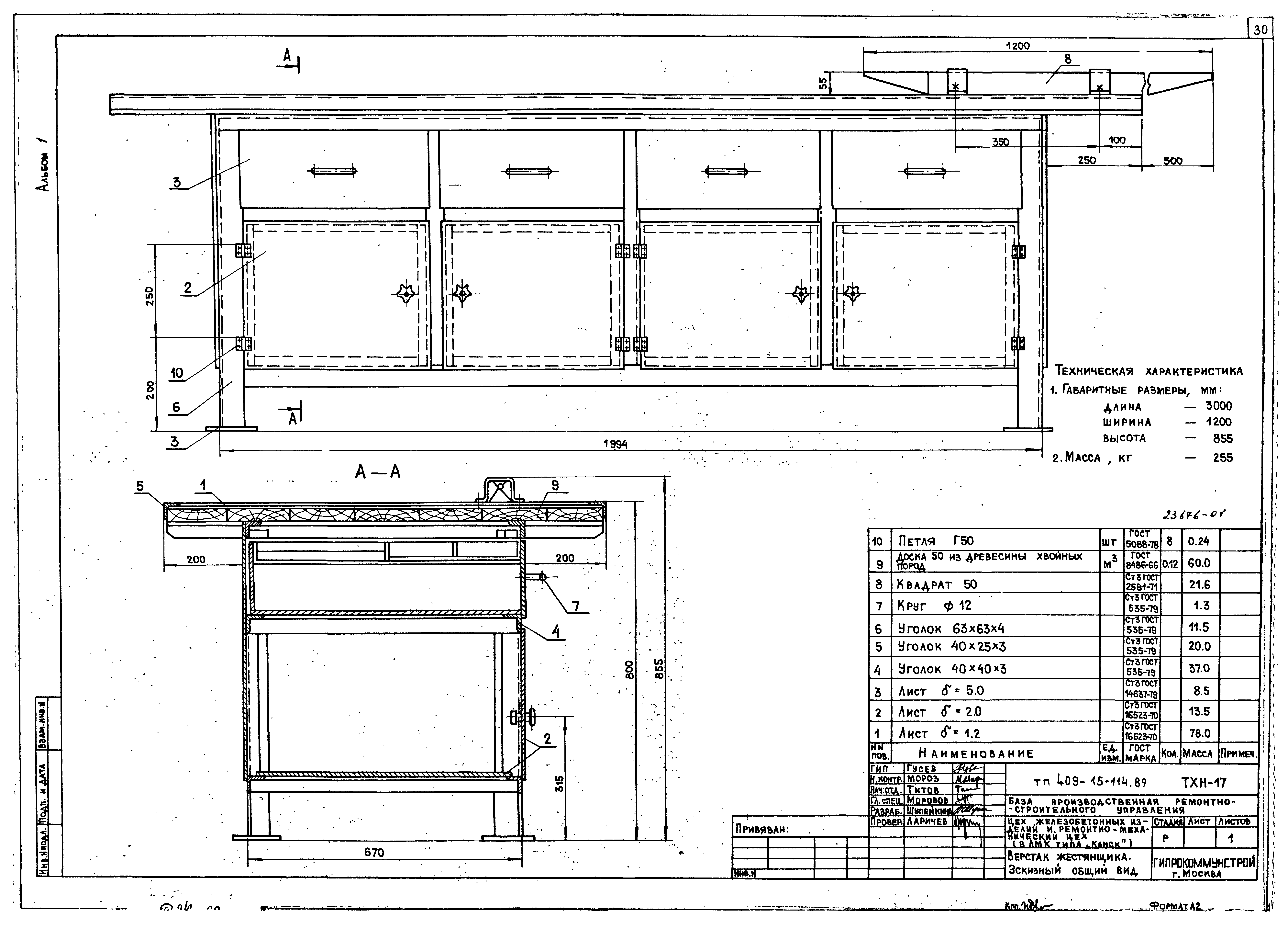
| Оглавление: | Титульный лист Содержание альбома Пояснительная записка Технология производства Общие данные Технологическая схема генплана Ремонтно-механический цех. План на отм. 0.000. Разрез А-А Цех железобетонных изделий. План. Разрез А-А Бетоносмесительное отделение. Планы. Разрезы Известегасительный участок. План на отм. 0.000. Разрез Прилагаемые документы Стол к станку МТ-1818. Эскизный общий вид Стол к машине МТМС10х35. Эскизный общий вид Бак для эмульсии. Эскизный общий вид Направляющие скипового подъемника. Эскизный общий вид Дозатор известкового молока. Эскизный общий вид Воронка поворотная с электроприводом. Эскизный общий вид Стабилизатор, истечение цемента. Эскизный общий вид Обрушитель сквозов песка. Эскизный общий вид Течка двухрукавная с перекидным клапаном. Эскизный общий вид Установка верхнего указателя уровня. Эскизный общий вид Установка нижнего указателя уровня. Эскизный общий вид Течка разгрузочная. Эскизный общий вид Бадья с открывающимся днищем. Эскизный общий вид Воронка загрузочная. Эскизный общий вид Стол приемный. Эскизный общий вид Стол загрузочный. Эскизный общий вид Верстак жестянщика. Эскизный общий вид Подставка под оборудование. Эскизный общий вид Верстак слесарный. Эскизный общий вид Стенд для гидравлического испытания трубопроводной арматуры. Эскизный общий вид Ванна для охлаждения инструмента. Эскизный общий вид Ларь для угля. Эскизный общий вид Ящик для песка. Эскизный общий вид Ларь для кузнечного инструмента. Эскизный общий вид Стеллаж для деталей. Эскизный общий вид Шкаф инструментальный. Эскизный общий вид |
| Разработан: | Гипрокоммунстрой |
| Утверждён: | 19.10.1988 Минжилкомхоз РСФСР (Russian Federation Minzhilkomkhoz 271) |
| Издан: | ЦИТП Госстроя СССР (CITP, Gosstroy (USSR) 1990 г. ) |





































