Скачать Типовой проект 409-15-114.89 Альбом 4. Электрооборудование силовое. Электроосвещение. Связь и сигнализация. Автоматизация технологических процессов и санитарно-технических системДата актуализации: 01.01.2021
|
| Обозначение: | Типовой проект 409-15-114.89 |
| Обозначение англ: | 409-15-114.89 |
| Статус: | действует |
| Название рус.: | Альбом 4. Электрооборудование силовое. Электроосвещение. Связь и сигнализация. Автоматизация технологических процессов и санитарно-технических систем |
| Дата добавления в базу: | 01.09.2013 |
| Дата актуализации: | 01.01.2021 |
| Дата введения: | 19.10.1988 |
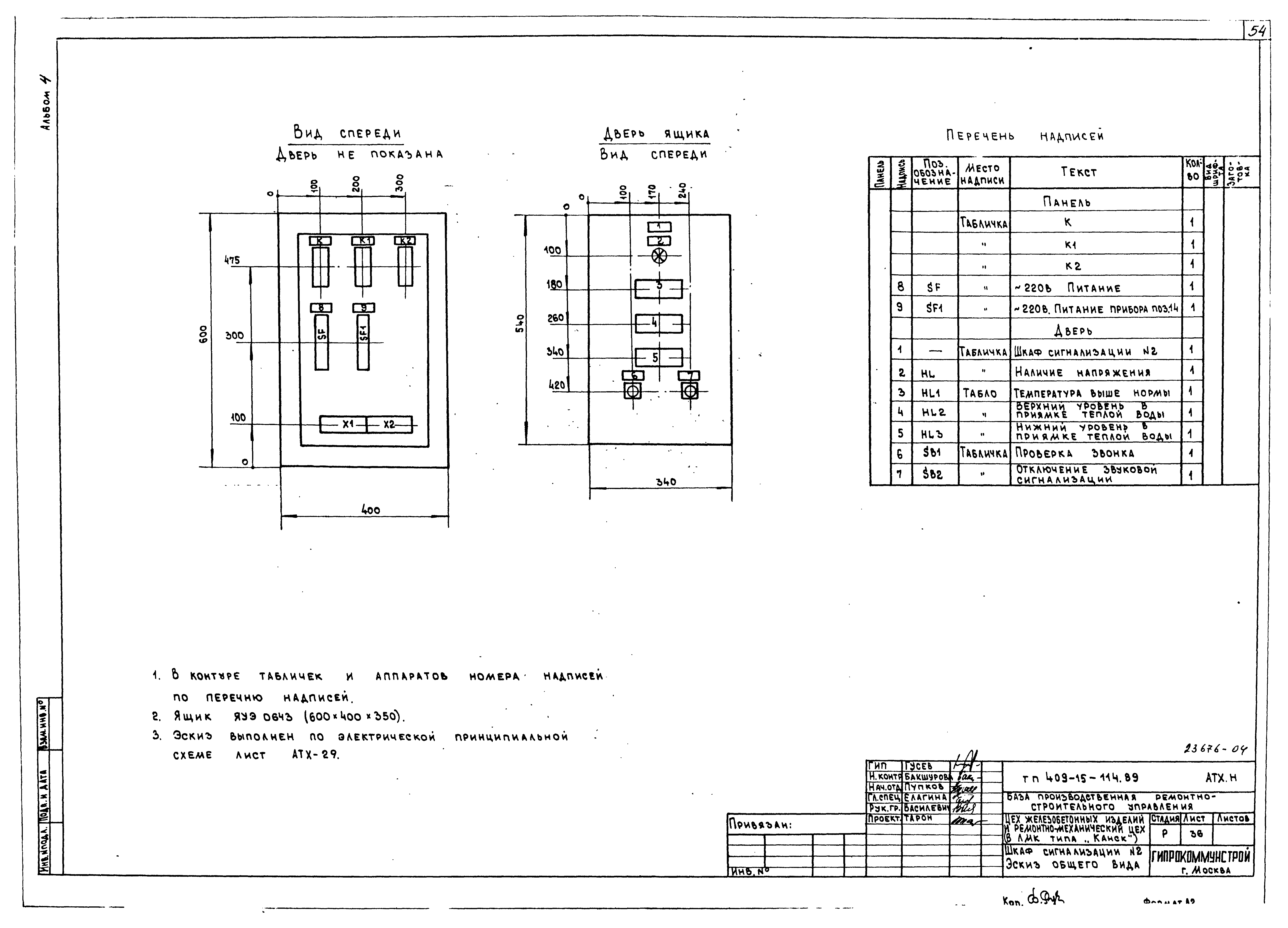
| Оглавление: | Обложка Титульный лист Содержание альбома Электрооборудование Общие данные План в осях "1 - 3". Схема питания задвижки водопровода План в осях "4 - 10" План в осях "10 - 16" Однолинейная расчетная схема распределительной силовой сети ШР-1, 2 Однолинейная расчетная схема распределительной силовой сети ШР-3, 4 Однолинейная расчетная схема распределительной силовой сети ШР-5, 6 Однолинейная расчетная схема распределительной силовой сети ШР-7, МЩ-1 Задание МЭЗ Электроосвещение Общие данные Планы на отм. 0.000; 3.000 и 9.600 в осях "4 - 16"; "А - Г" Планы на отм. 0.000; 3.000 в осях "1 - 3"; "А - Г" Задание МЭЗ Связь и сигнализация План расположения сетей связи и сигнализации на отм. 0.000; 3.000 в осях "1 - 3" План расположения сетей пожарной сигнализации на отм. 0.000; 3.000 в осях 1 - 6 План расположения сетей связи и сигнализации на отм. 0.000 и 3.600 в осях 3 - 16 Автоматизация технологических процессов Общие данные Схема технологическая Надбункерное отделение. Схема электрическая принципиальная управления Дозаторное отделение. Схема электрическая принципиальная Надбункерное отделение. Схема соединений внешних проводок Дозаторное отделение. Схема соединений внешних проводок План расположения Приточная система П-1 (П-2 - П-4). Схема автоматизации Приточная система П-1 (П-2 - П-4). Схема электрическая принципиальная управления Приточная система П-1 (П-2 - П-4). Схема соединений внешних проводок Отопительный агрегат А1 (А2 - А5). Схема автоматизации. Схема электрическая принципиальная. Схема соединений внешних проводок Вытяжная система Р1. Схема электрическая принципиальная. Схема соединений внешних проводок Вытяжная система Р2 (Р3). Схема электрическая принципиальная управления. Схема соединений внешних проводок Приточные системы П-1; П-2. План расположения Приточные системы П-3; П-4. План расположения Отопительные агрегаты А1 - А-5, А. Вытяжные системы Р1, Р2, Р3. План расположения Отключение вентсистем при пожаре. Схема электрическая принципиальная. Схема соединений внешних проводок Система оборотного водоснабжения. Схема автоматизации электрическая принципиальная Система оборотного водоснабжения. Схема соединений внешних проводок. План расположения Схема электрическая принципиальная управления задвижкой Схема соединений внешних проводок Шкаф управления. Эскиз общего вида Шкаф сигнализации №1. Эскиз общего вида Пульт управления. Эскиз общего вида Шкаф сигнализации №2. Эскиз общего вида Отключение вентсистем при пожаре. Щит сигнализации. Эскиз общего вида |
| Разработан: | Гипрокоммунстрой |
| Утверждён: | 19.10.1988 Минжилкомхоз РСФСР (Russian Federation Minzhilkomkhoz 271) |
| Издан: | ЦИТП Госстроя СССР (CITP, Gosstroy (USSR) 1990 г. ) |
























































