Скачать Типовой проект 902-1-3 Альбом 1. Архитектурно-строительная часть при глубине заложения подводящего коллектора 3,0 мДата актуализации: 01.01.2021
|
| Обозначение: | Типовой проект 902-1-3 |
| Обозначение англ: | 902-1-3 |
| Статус: | не действует |
| Название рус.: | Альбом 1. Архитектурно-строительная часть при глубине заложения подводящего коллектора 3,0 м |
| Дата добавления в базу: | 01.09.2013 |
| Дата актуализации: | 01.01.2021 |
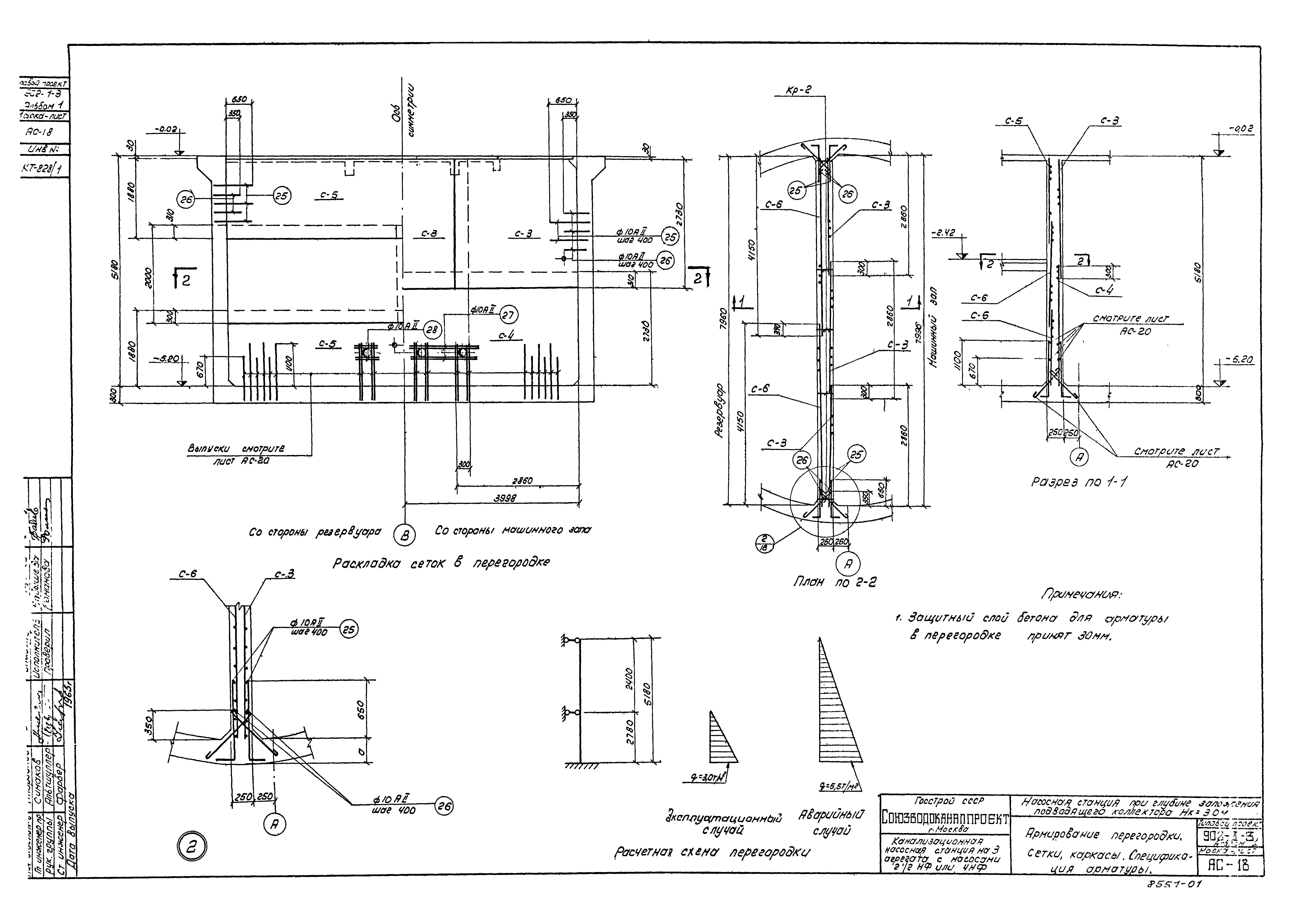
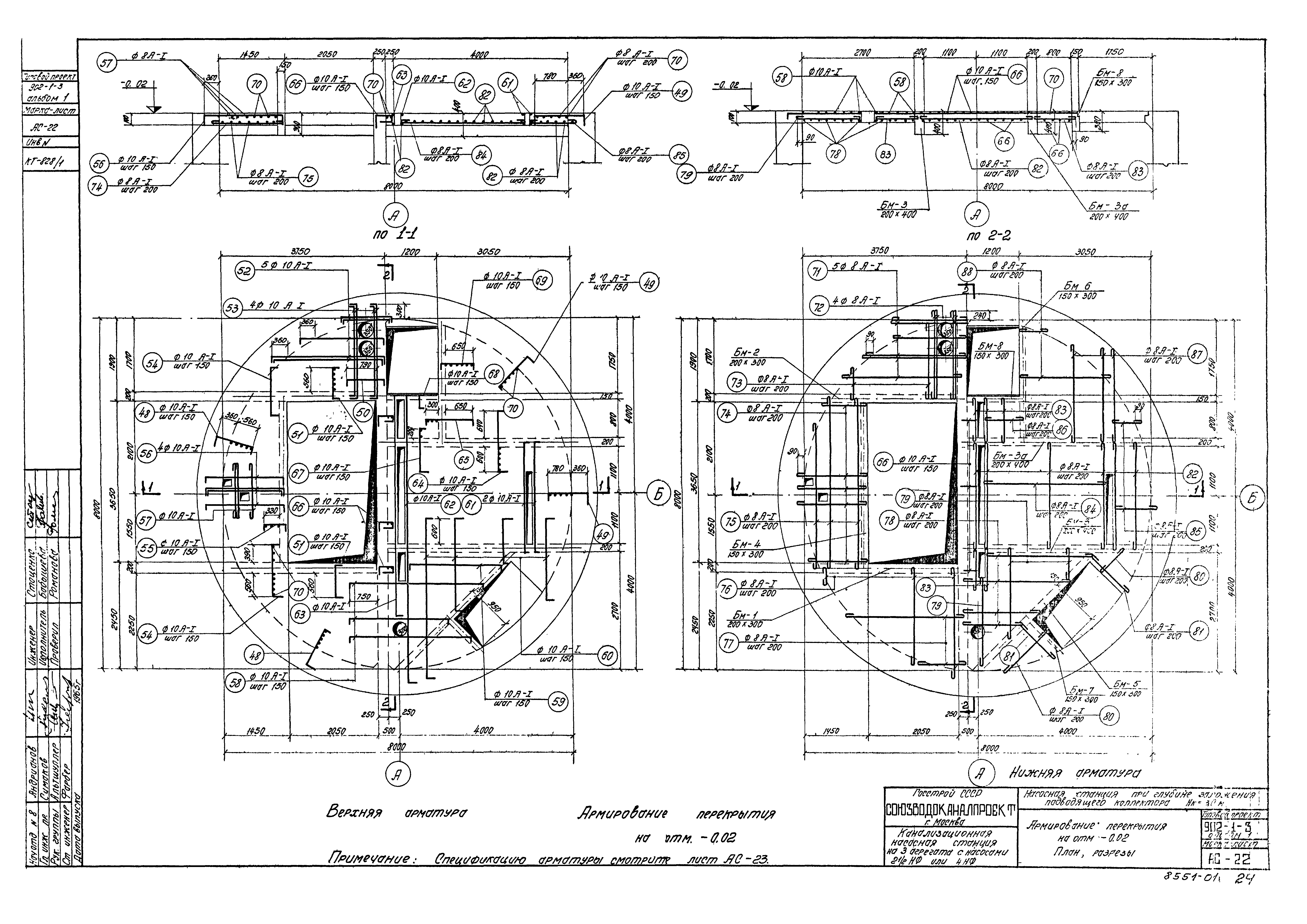
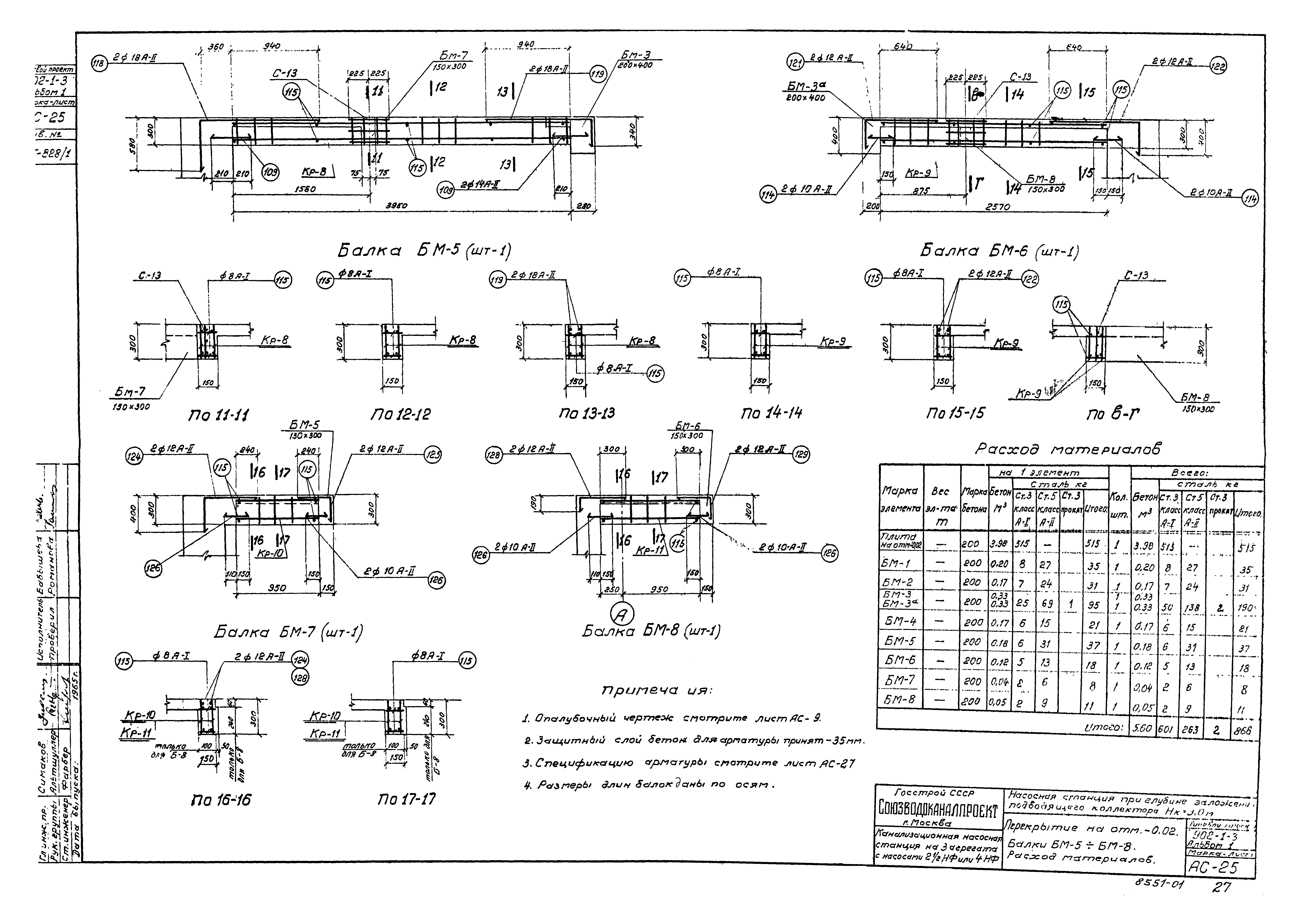
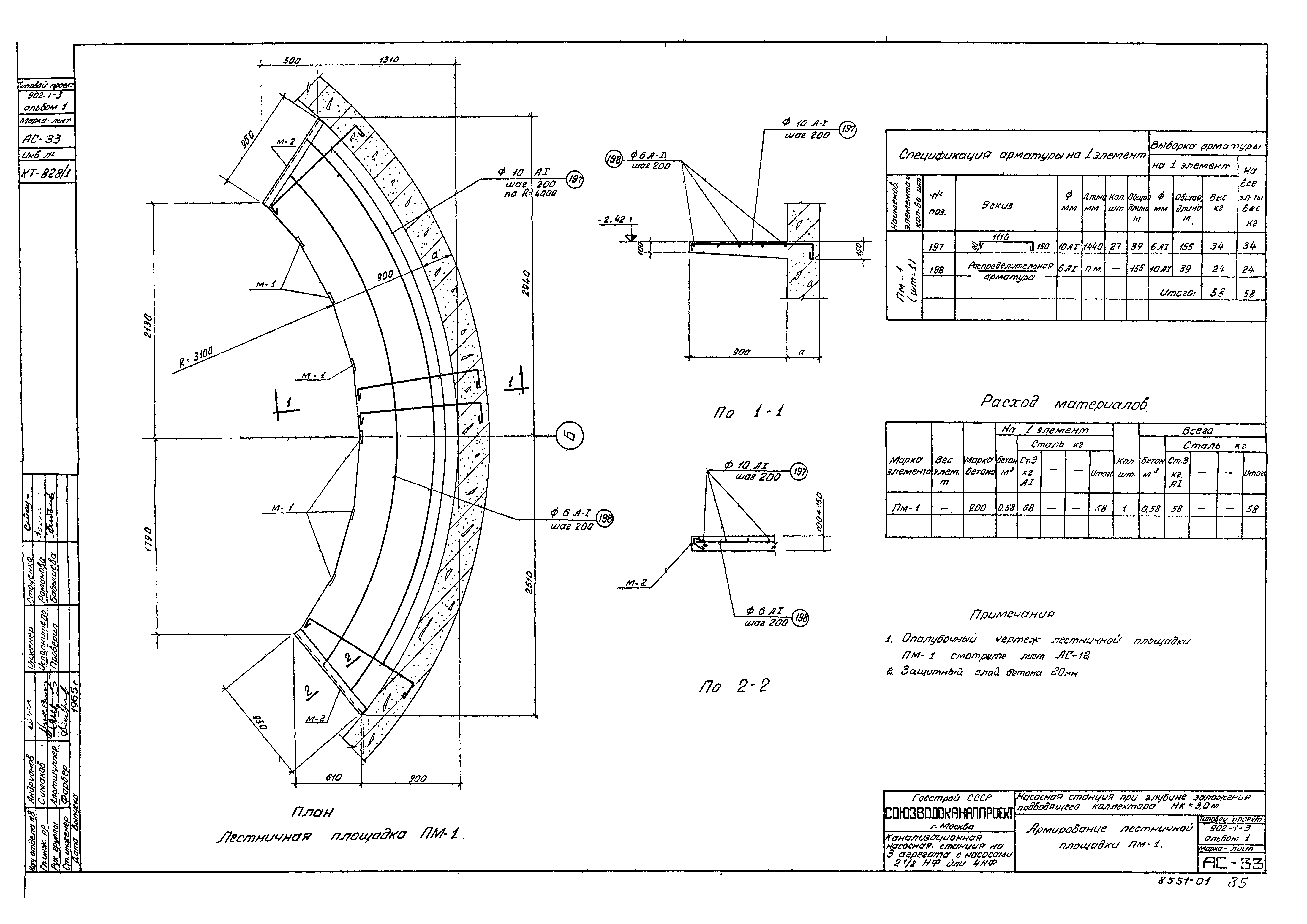
| Оглавление: | Обложка Титульный лист Заглавный лист Содержание альбома Пояснительная записка Планы кровли, полов и перемычек. Основные показатели. Толщина наружных стен и утеплителя кровли, воздух шахты. Спецификация столярных изделий. Экспликация полов, покрытия и перемычек Планы, разрезы Фасады. Детали разрезов и планов Опалубочный чертеж. План на отм. - 0.02. Сечения Опалубочный чертеж. План на отм. - 2.42. Сечения Опалубочный чертеж. Разрезы. Узлы Опалубочный чертеж. Разрез 7-7. План А-А. Сечения. Узлы Опалубочный чертеж. План на отм. - 5.20. Фундаменты Ф-1, Ф-2 Закладные элементы. Спецификация и выборка стали. Выборка сальников Площадка для обслуживания задвижек Армирование стен подземной части Армирование стен подземной части. Сетки, каркасы. Спецификация арматуры Армирование перегородки. Сетки, каркасы. Спецификация арматуры Армирование днища. Планы, разрезы Армирование днища. Сетки, каркасы. Спецификация арматуры Армирование перекрытия на отм. - 0.02. План, разрезы Перекрытие на отм. - 0.02. Спецификация арматуры Перекрытие на отм. - 0.02. Армирование балок Бм-1 - Бм-4 Перекрытие на отм. - 0.02. Балки Бм-5 - Бм8. Расход материалов Перекрытие на отм. - 0.02. Армирование балок. Сетки, каркасы Перекрытие на отм. - 0.02. Спецификация и выборка арматуры Армирование перекрытия на отм. - 2.42. Расход материалов Армирование перекрытия на отм. - 2.42. Лоток. План и сечения Армирование перекрытия на отм. - 2.42. Армирование балок Бм-9 - Бм-11 Армирование перекрытия на отм. - 2.42. Армирование балок Бм-12 - Бм-13. Сетки и каркасы Армирование перекрытия на отм. - 2.42. Спецификация и выборка арматуры Армирование лестничной площадки Пм-1 Сборные железобетонные плиты ПС-1, ПС-2 Кровельное покрытие. Арматурно-опалубочный чертеж Монорельсы. План, разрезы, узлы и сечения Монорельсы. Узлы, сечения, спецификация и выборка стали Лестницы. Схема расположения лестниц ЛС-1, ЛС-2, ЛС-2а. Узел "1" Лестницы. Узлы "2-4". Спецификация и выборка стали Сводные спецификации материалов Объемы строительных работ |
| Разработан: | Союзводоканалпроект |
| Утверждён: | 19.04.1966 Главпромстройпроект Госстроя СССР |












































