Скачать Типовой проект 902-1-3 Альбом 4. Технологическая, механическая и санитарно-техническая части при глубинах заложения подводящего коллектора 3,0; 5,0 (4,0) и 7,0 мДата актуализации: 01.01.2021
|
| Обозначение: | Типовой проект 902-1-3 |
| Обозначение англ: | 902-1-3 |
| Статус: | не действует |
| Название рус.: | Альбом 4. Технологическая, механическая и санитарно-техническая части при глубинах заложения подводящего коллектора 3,0; 5,0 (4,0) и 7,0 м |
| Дата добавления в базу: | 01.09.2013 |
| Дата актуализации: | 01.01.2021 |
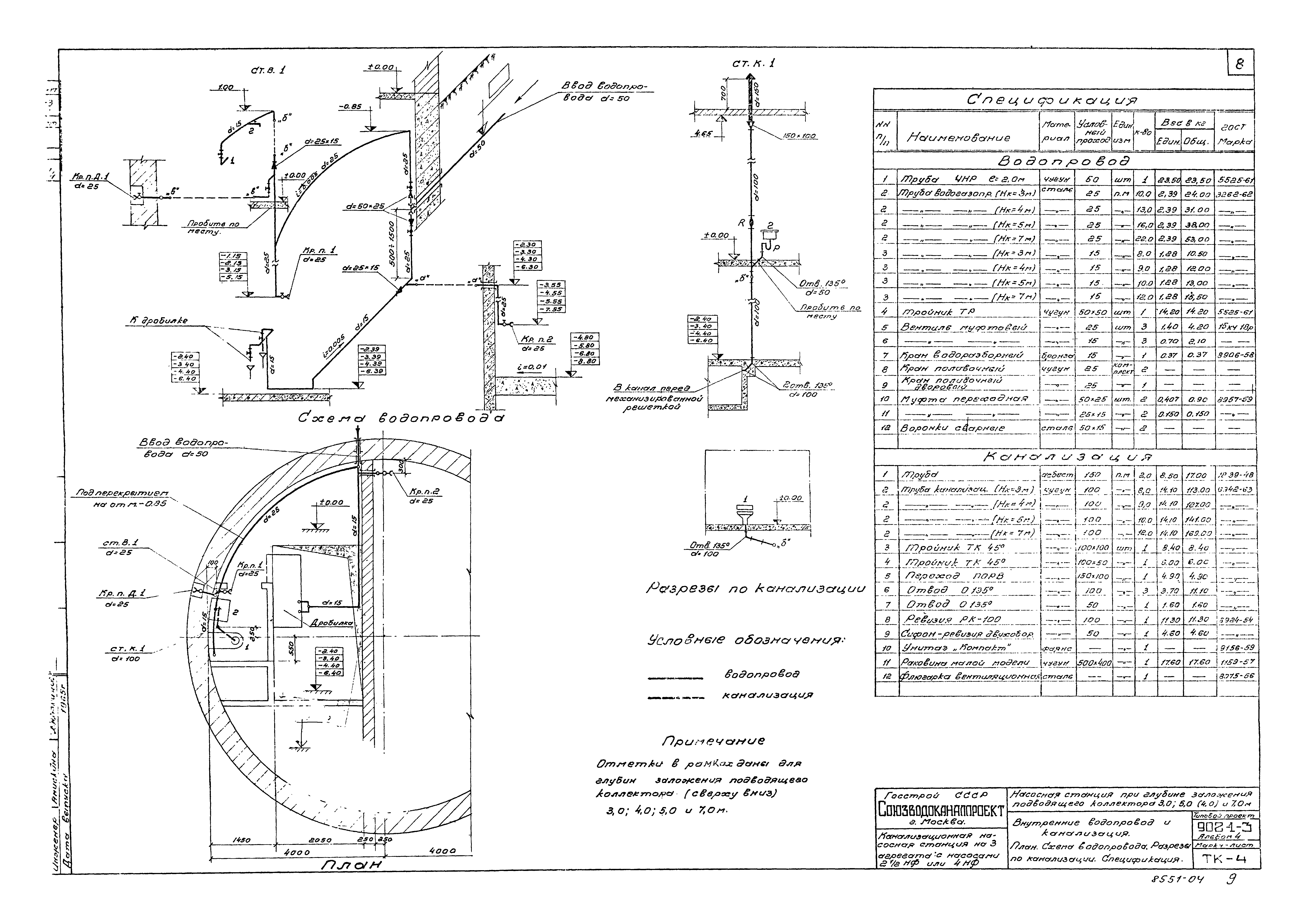
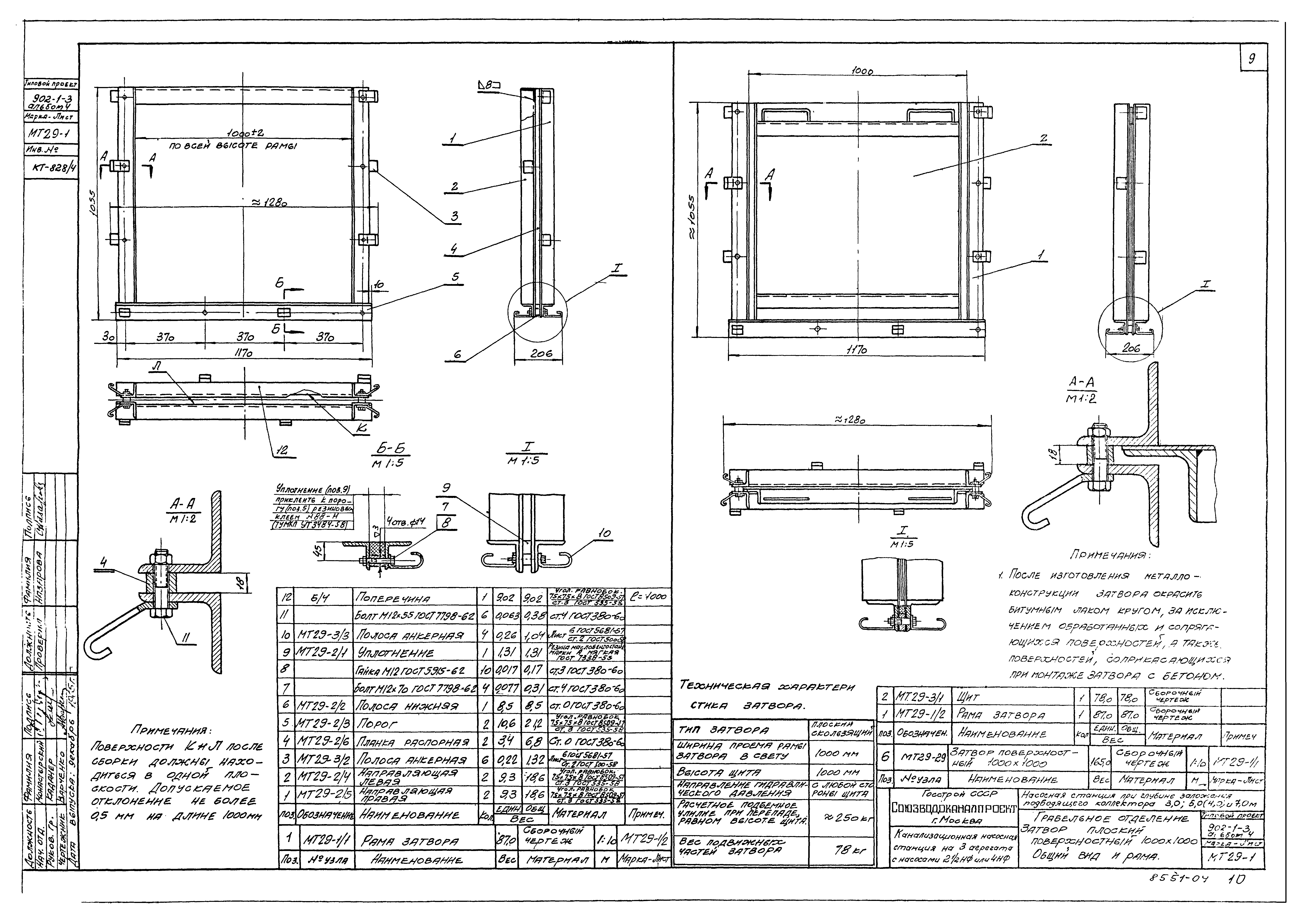
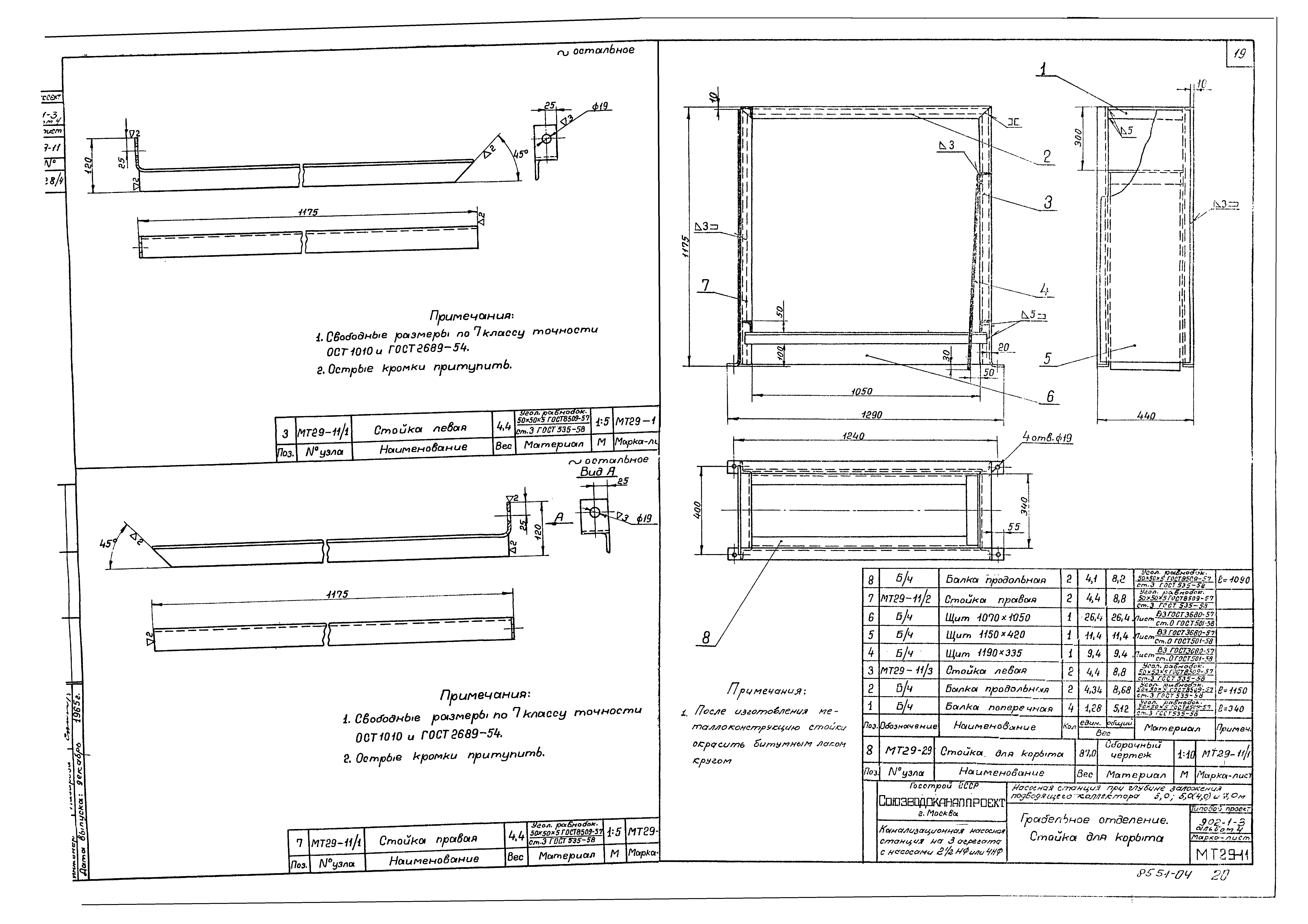
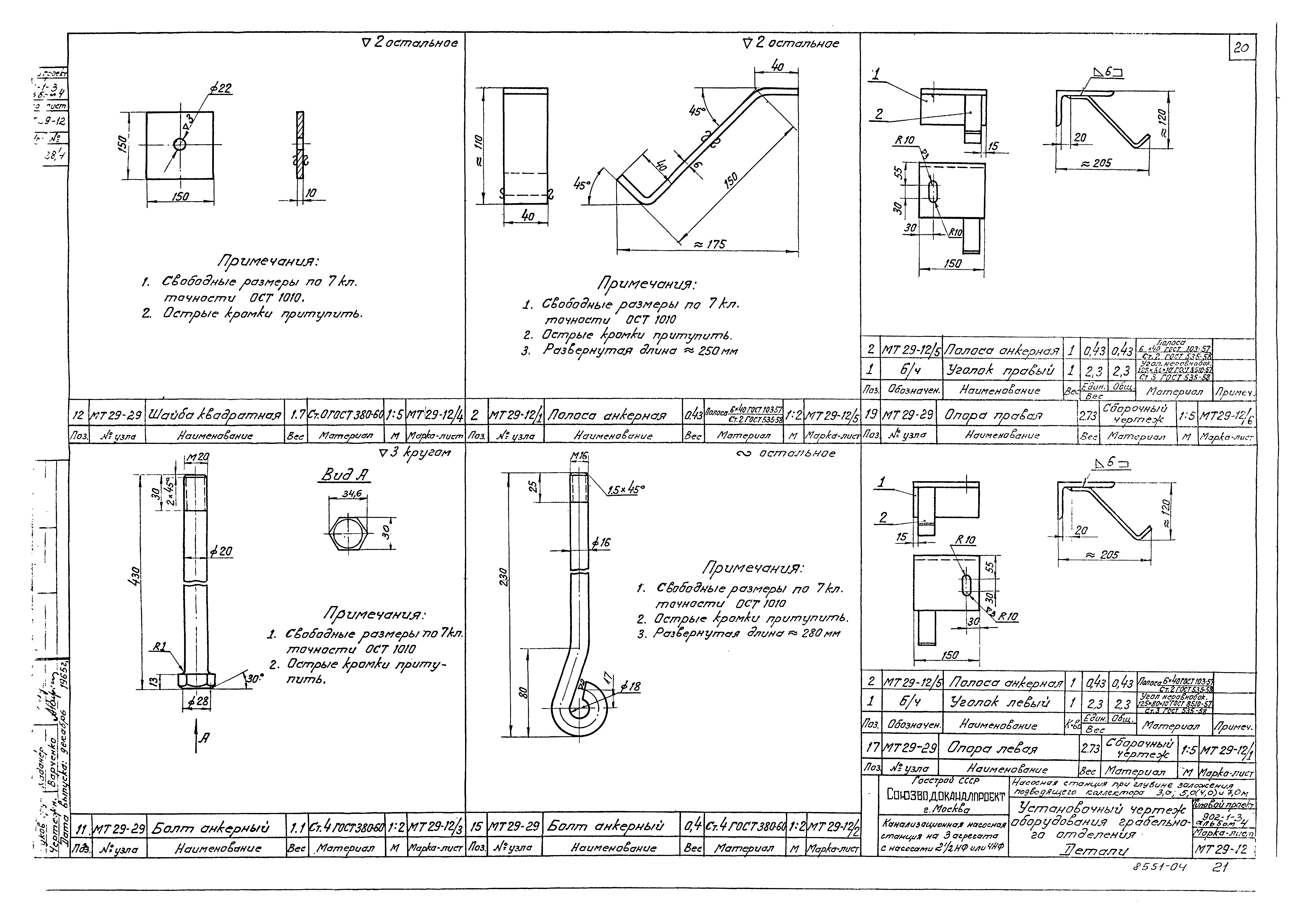
| Оглавление: | Содержание альбома Пояснительная записка Монтажный чертеж с насосами 2 1/2 нф. Планы и разрезы. Экспликация оборудования Монтажный чертеж. Планы и разрезы. Экспликация оборудования Спецификация Внутренние водопровод и канализация. План. Схема водопровода. Разрезы по канализации. Спецификация Затвор плоский поверхностный 1000х1000. Общий вид и рама Затвор плоский поверхностный 1000х1000. Детали Затвор плоский поверхностный 1000х1000. Щит, детали Затвор плоский поверхностный 1000х1000. Детали Затвор плоский поверхностный 500х1000. Общий вид и рама Затвор плоский поверхностный 500х1000. Щит, детали Решетка ручная Решетка ручная. Детали Корыто дырчатое Стойка для корыта Установочный чертеж оборудования грабельного отделения. Детали Насосное отделение. Переходы Установочный чертеж оборудования грабельного отделения. План Установочный чертеж оборудования грабельного отделения. Разрезы и сечения Отопление. Планы и схемы Вентиляция. Планы и разрезы (вариант заглубления подводящего коллектора 3,0; 4,0 м) Вентиляция. Планы и разрезы (вариант заглубления подводящего коллектора 5,0; 7,0 м) Отопление и вентиляция. Спецификация материалов и оборудования Вентиляция. Приточная установка П-1. Теплоноситель - перегретая вода t2 = 150; t0 = 70 градусов Цельсия Вентиляция. Приточная установка П-1. Теплоноситель - пар P = 4 - 5 атмосфер Вентиляция. Приточная установка П-1. Теплоноситель - электроэнергия |
| Разработан: | Союзводоканалпроект |
| Утверждён: | 19.04.1966 Главпромстройпроект Госстроя СССР |






























