Скачать Типовой проект 902-1-3 Альбом 5. Электротехническая часть при глубинах заложения подводящего коллектора 3,0; 5,0 (4,0) и 7,0 мДата актуализации: 01.01.2021
|
| Обозначение: | Типовой проект 902-1-3 |
| Обозначение англ: | 902-1-3 |
| Статус: | не действует |
| Название рус.: | Альбом 5. Электротехническая часть при глубинах заложения подводящего коллектора 3,0; 5,0 (4,0) и 7,0 м |
| Дата добавления в базу: | 01.09.2013 |
| Дата актуализации: | 01.01.2021 |
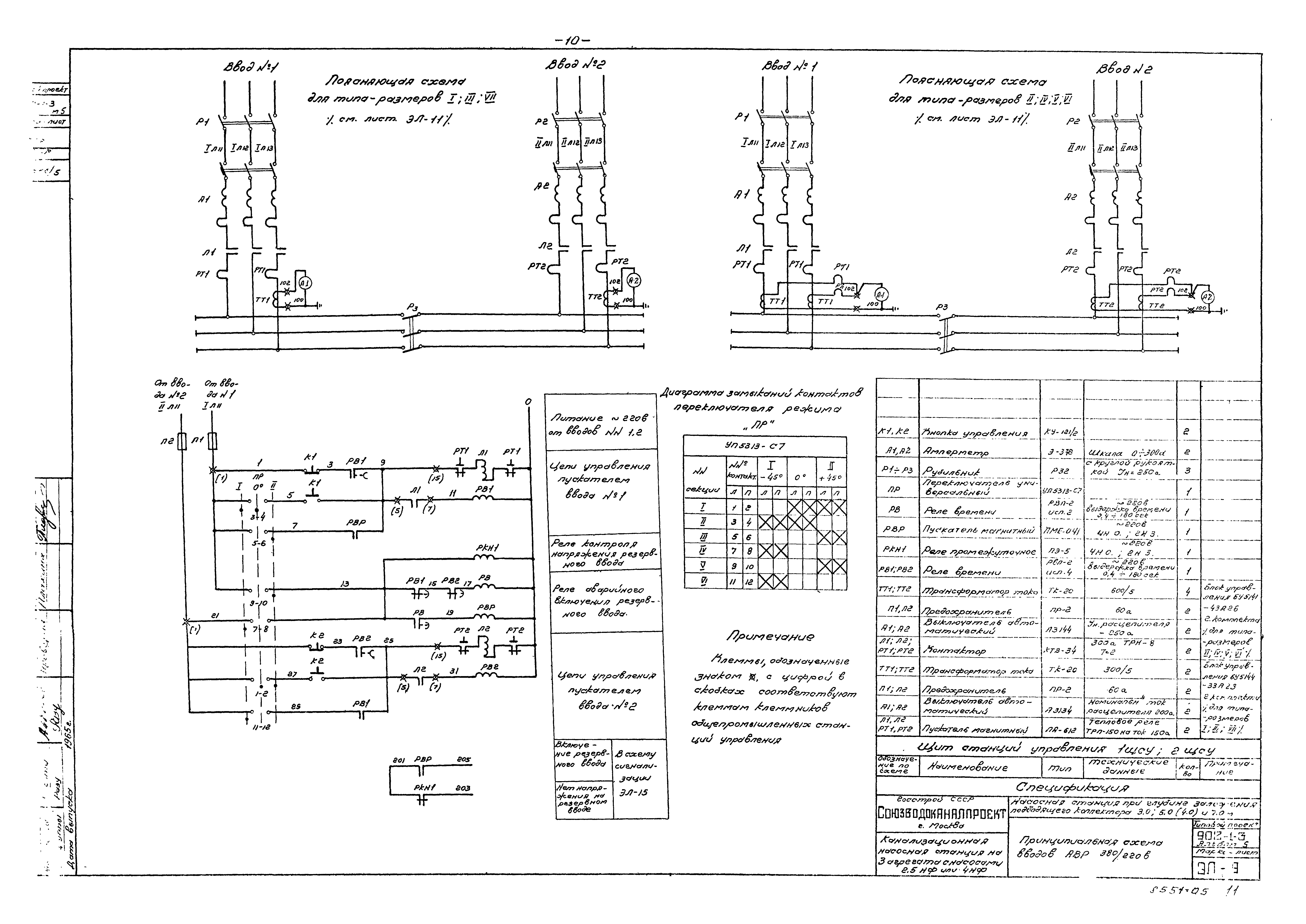
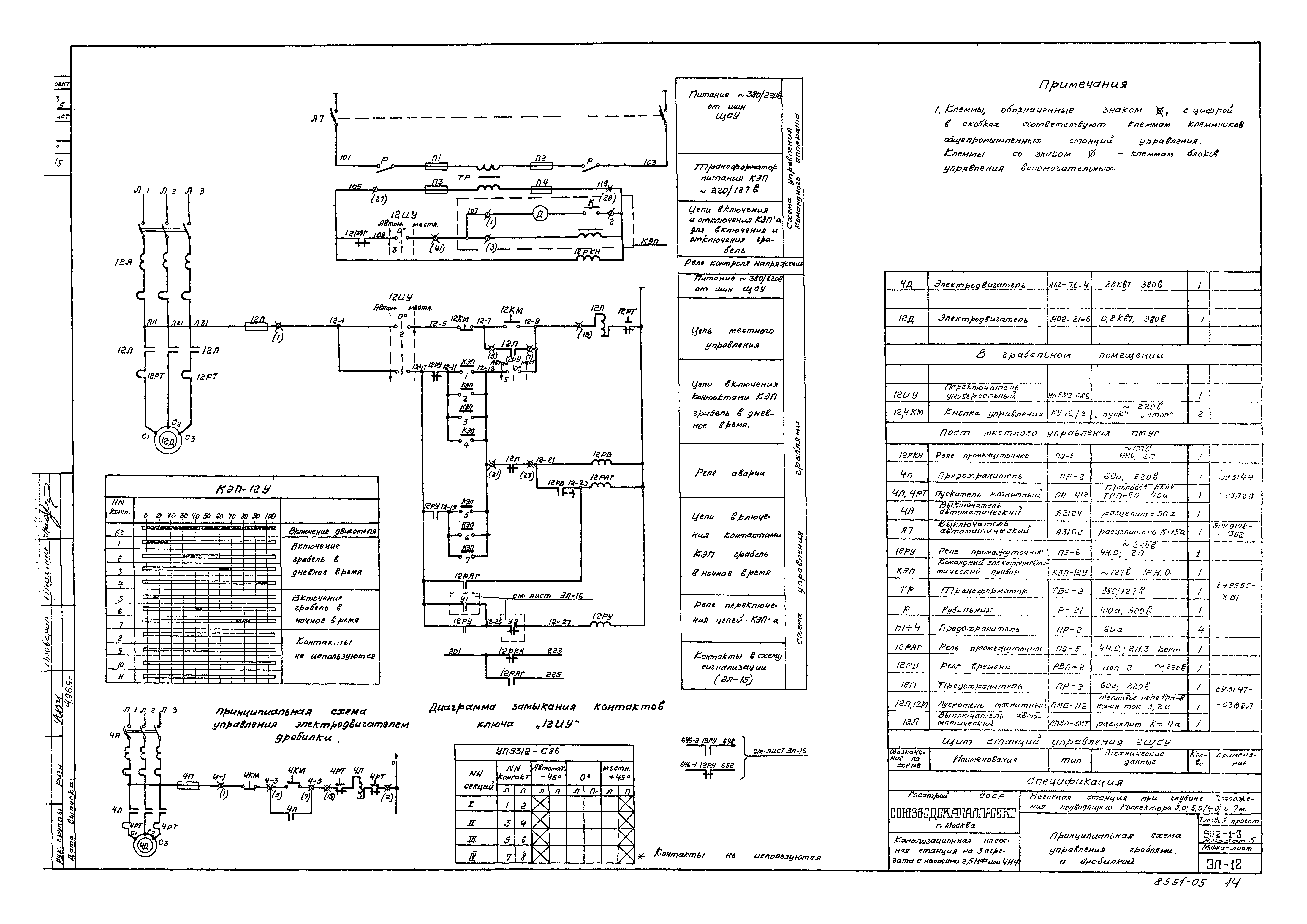
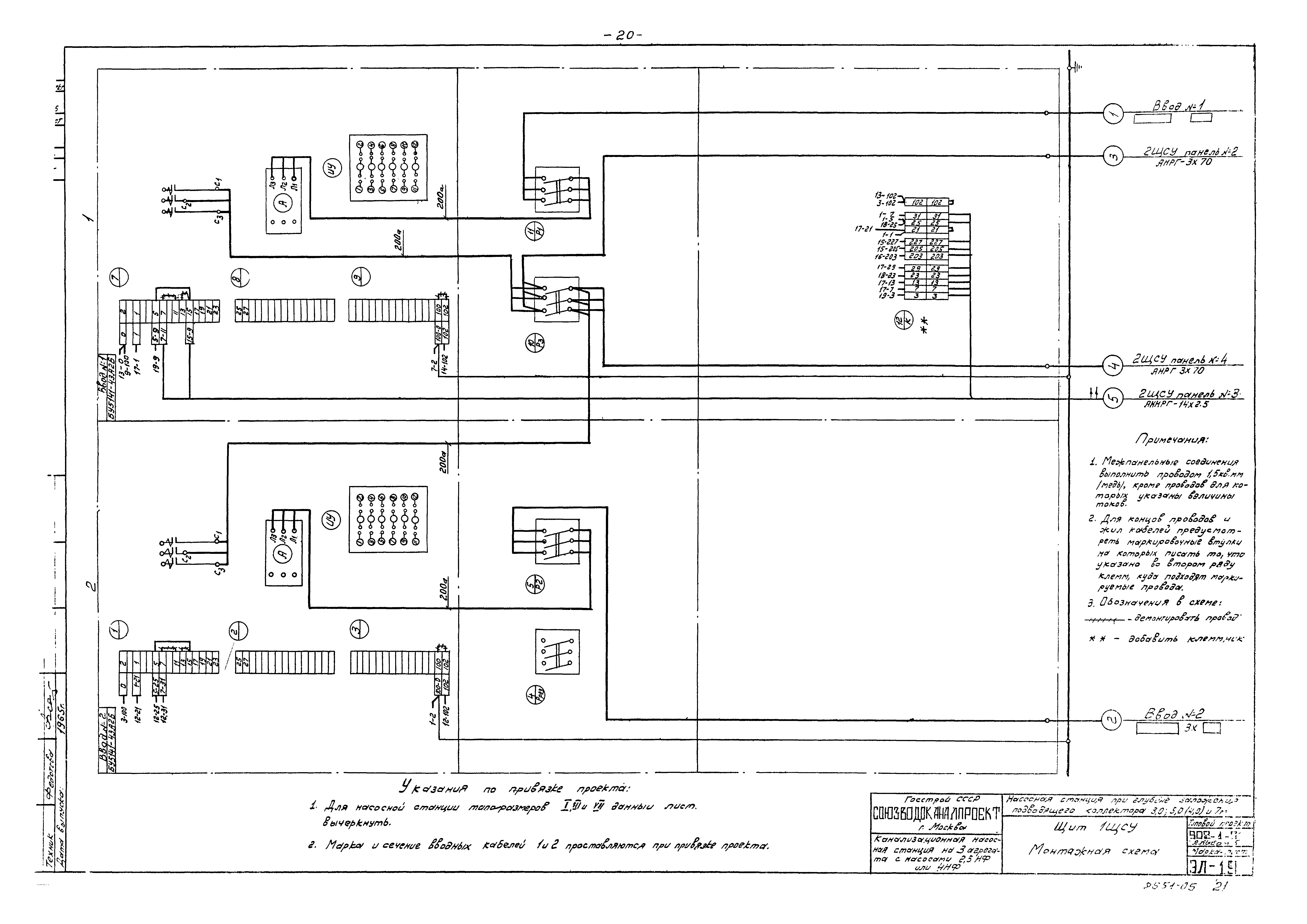
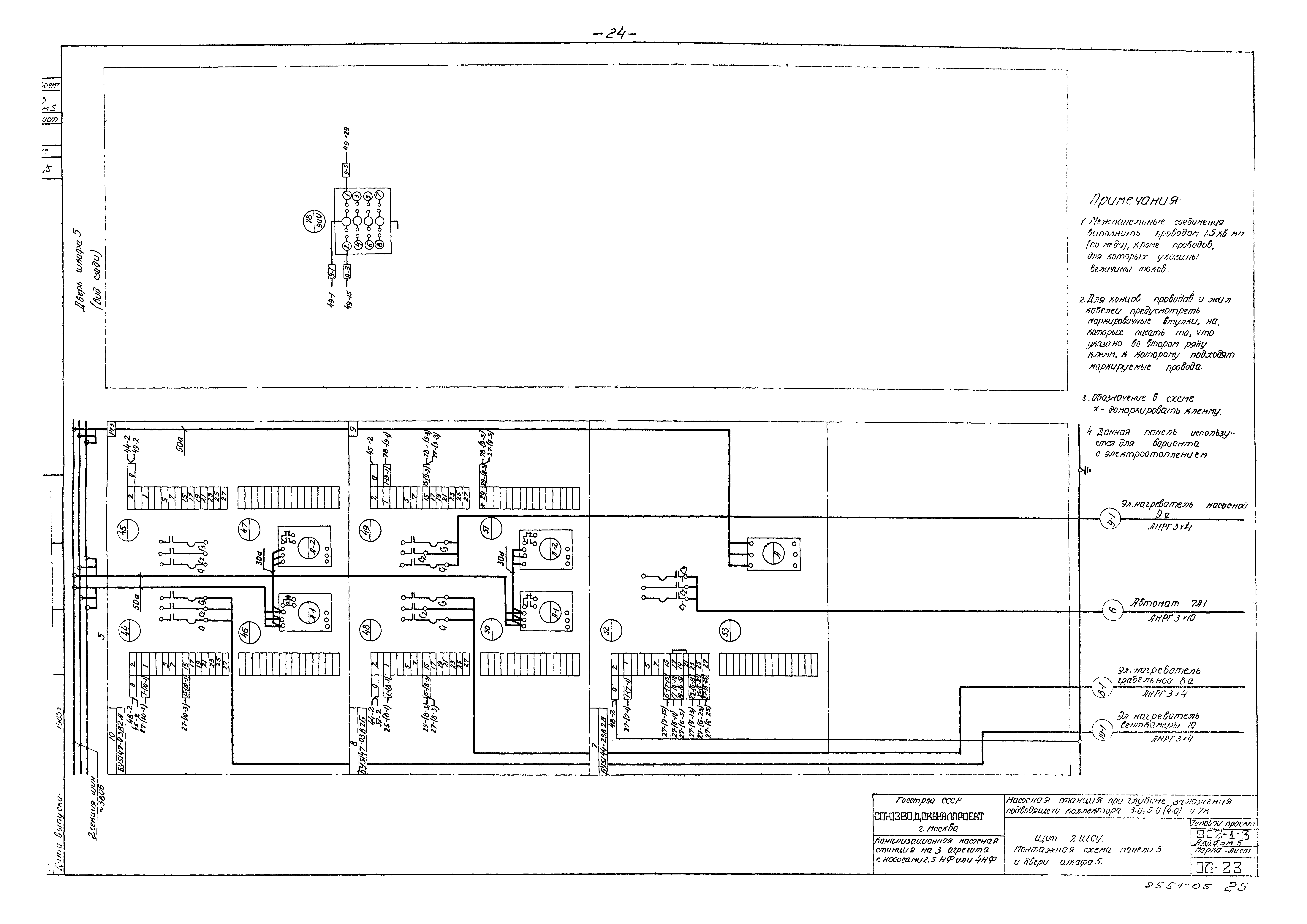
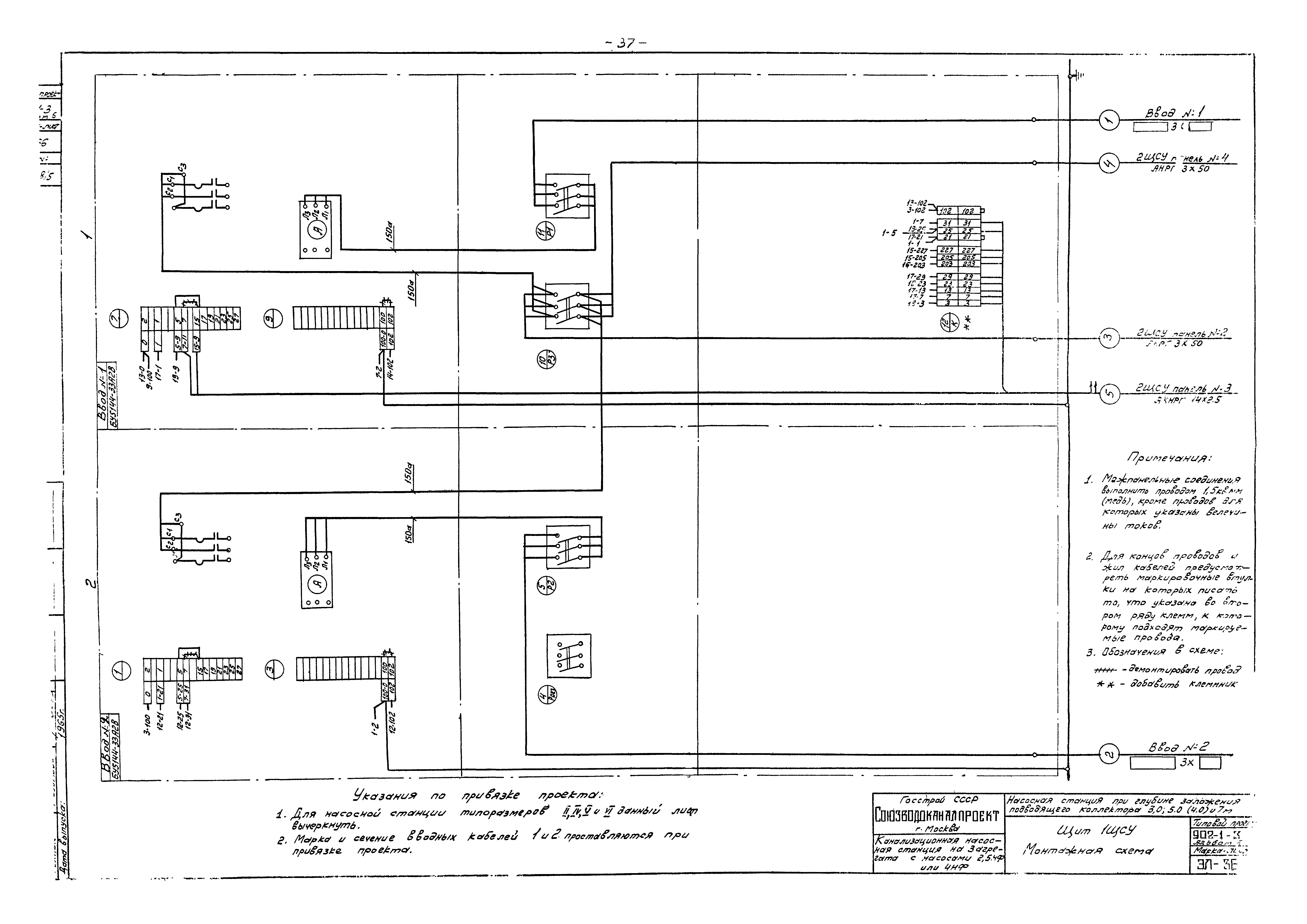
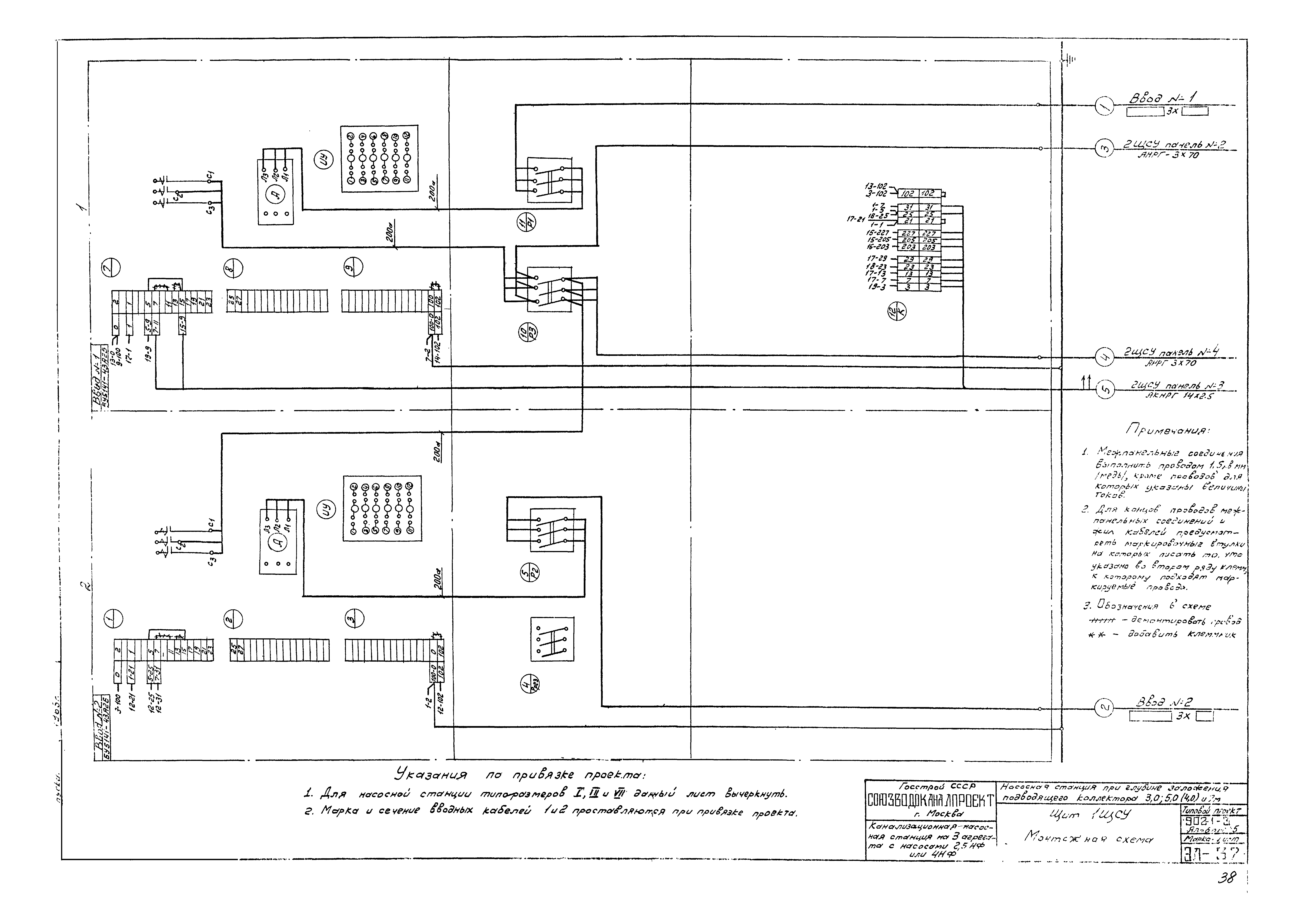
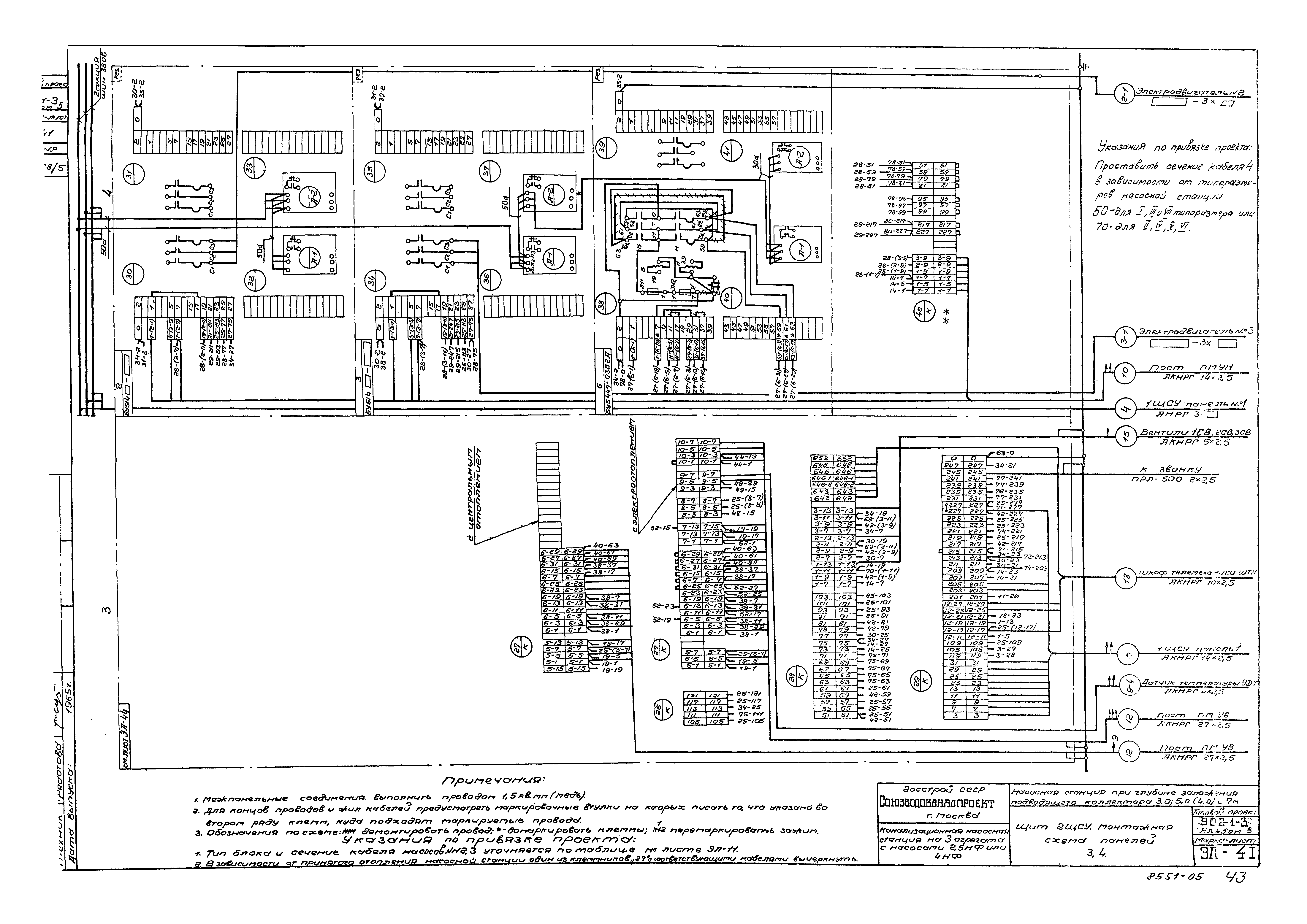
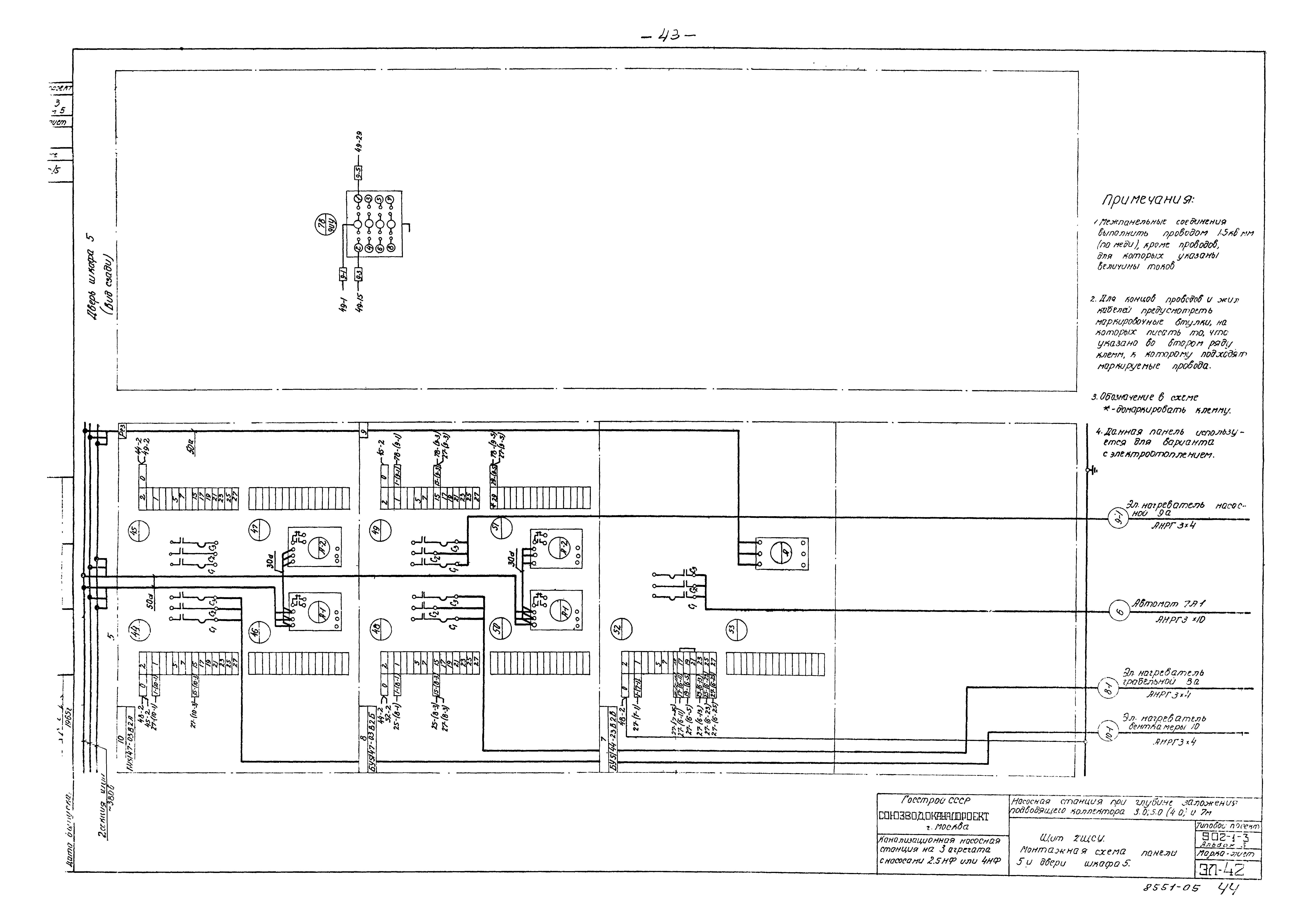
| Оглавление: | Содержание альбома Раздел 1 Содержание раздела 1 Пояснительная записка Спецификации Данные для заполнения вопросных листов Схема соединений 380/220 В Принципиальная схема вводов АВР 380/220 В Принципиальная схема управления насосами Принципиальная схема управления граблями и дробилкой Принципиальная схема управления электроотоплением приточным вентилятором Принципиальная схема сигнализации Принципиальная схема сигнализации и телеуправления механическими граблями Щит станций управления 1ЩСУ. Общий вид Щит 1 ЩСУ. Монтажная схема Щит станций управления 2ЩСУ. Общий вид Щит 2 ЩСУ. Монтажная схема панелей 1, 2 Щит 2 ЩСУ. Монтажная схема панелей 3, 4 Щит 2 ЩСУ. Монтажная схема панели 5 и двери шкафа 5. Посты местного управления ПМУН, ПМУГ, ПМУВ. Общие виды Пост ПМУН. Общий вид Пост ПМУГ. Общий вид Пост ПМУВ. Общий вид. Пост местного управления насосами ПМУН и венткамеры ПМУВ. Монтажные схемы Пост ПМУН. Монтажная схема Пост ПМУВ. Монтажная схема. Пост местного управления грабельной ПМУГ. Монтажные схемы Пост ПМУГ. Монтажная схема Пост ПМУГ. Монтажная схема. Шкафы телемеханики ШТН и ШТД. Шкаф ШТН. Монтажная схема. Шкаф ШТД. Общий вид и перечень надписей Шкаф ШТН. Монтажная схема Шкаф ШТД. Общий вид и перечень надписей Шкаф ШТД. Монтажная схема Кабельный журнал Расположение электрооборудования, прокладка кабелей и заземление. Планы Электроосвещение. Планы и разрезы. Установка датчиков регулятора - сигнализатора уровня ЭРСУ-2 и заземляющей полосы в дренажном приямке и в приемном резервуаре Установка датчиков регулятора - сигнализатора уровня ЭРСУ-2 в дренажном приямке Установка датчиков регулятора - сигнализатора уровня ЭРСУ-2 в приемном резервуаре Установка датчиков регулятора - сигнализатора уровня ЭРСУ-2 и заземляющей полосы. Конструкция и детали Раздел 2 Содержание раздела 2 Щит станций управления 1 ЩСУ Щит 1 ЩСУ. Перечень надписей, спецификация электрооборудования. Монтажная схема двери шкафа 1 Щит 1 ЩСУ. Перечень надписей Щит 1 ЩСУ. Спецификация электрооборудования Щит 1 ЩСУ. Монтажная схема двери шкафа 1 Щит 1 ЩСУ. Монтажная схема Щит станций управления 2 ЩСУ. Общий вид Щит 2 ЩСУ. Перечень надписей и спецификация электрооборудования Щит 2 ЩСУ. Перечень надписей Щит 2 ЩСУ. Спецификация электрооборудования Щит 2 ЩСУ. Монтажная схема панелей 1, 2 Щит 2 ЩСУ. Монтажная схема панелей 3, 4 Щит 2 ЩСУ. Монтажная схема панели 5 и двери шкафа 5 Щит 2 ЩСУ. Монтажная схема дверей шкафов 2, 3 и 4 Щит 2 ЩСУ. Панель 3. Общий вид Щит 2 ЩСУ. Панель 3. Элементная схема и спецификация Пост местного управления насосами ПМУН. Общий вид, перечень надписей, спецификация электрооборудования, монтажная схема Пост ПМУН. Общий вид Пост ПМУН. Перечень надписей Пост ПМУН. Спецификация электрооборудования Пост ПМУН. Монтажная схема. Пост местного управления грабельной ПМУГ. Общий вид. Перечень надписей, спецификация электрооборудования, монтажная схема Пост ПМУГ. Общий вид Пост ПМУГ. Перечень надписей Пост ПМУГ. Спецификация электрооборудования Пост ПМУГ. Монтажная схема. Пост местного управления грабельной ПМУГ. Общий вид. Перечень надписей, спецификация электрооборудования, монтажная схема Пост ПМУГ. Общий вид Пост ПМУГ. Перечень надписей Пост ПМУГ. Спецификация электрооборудования Пост ПМУГ. Монтажная схема. Пост местного управления венткамеры ПМУВ. Общий вид. Перечень надписей, спецификация электрооборудования, монтажная схема Пост ПМУВ. Общий вид Пост ПМУВ. Перечень надписей Пост ПМУВ. Спецификация электрооборудования Пост ПМУВ. Монтажная схема Раздел 3 Содержание раздела 3 Спецификация на щиты и пульты Элементная электрическая схема шкафов ШТН и ШТД Шкаф ШТН. Монтажная схема Шкаф ШТН. Спецификация электроаппаратуры Шкаф ШТН. Спецификация на провода и электромонтажные изделия Шкаф ШТД. Общий вид Шкаф ШТД. Спецификация электроаппаратуры Шкаф ШТД. Спецификация на провода и электромонтажные изделия Шкаф ШТД. Монтажная схема |
| Разработан: | Союзводоканалпроект |
| Утверждён: | 19.04.1966 Главстройпроект Госстроя СССР |






















































