Скачать Типовой проект 901-3-24 Альбом I. Часть 2. Здание очистной станции. Архитектурно-строительная часть. Стены - панельные, емкости - сборныеДата актуализации: 01.01.2021
|
| Обозначение: | Типовой проект 901-3-24 |
| Обозначение англ: | 901-3-24 |
| Статус: | не действует |
| Название рус.: | Альбом I. Часть 2. Здание очистной станции. Архитектурно-строительная часть. Стены - панельные, емкости - сборные |
| Дата добавления в базу: | 01.09.2013 |
| Дата актуализации: | 01.01.2021 |
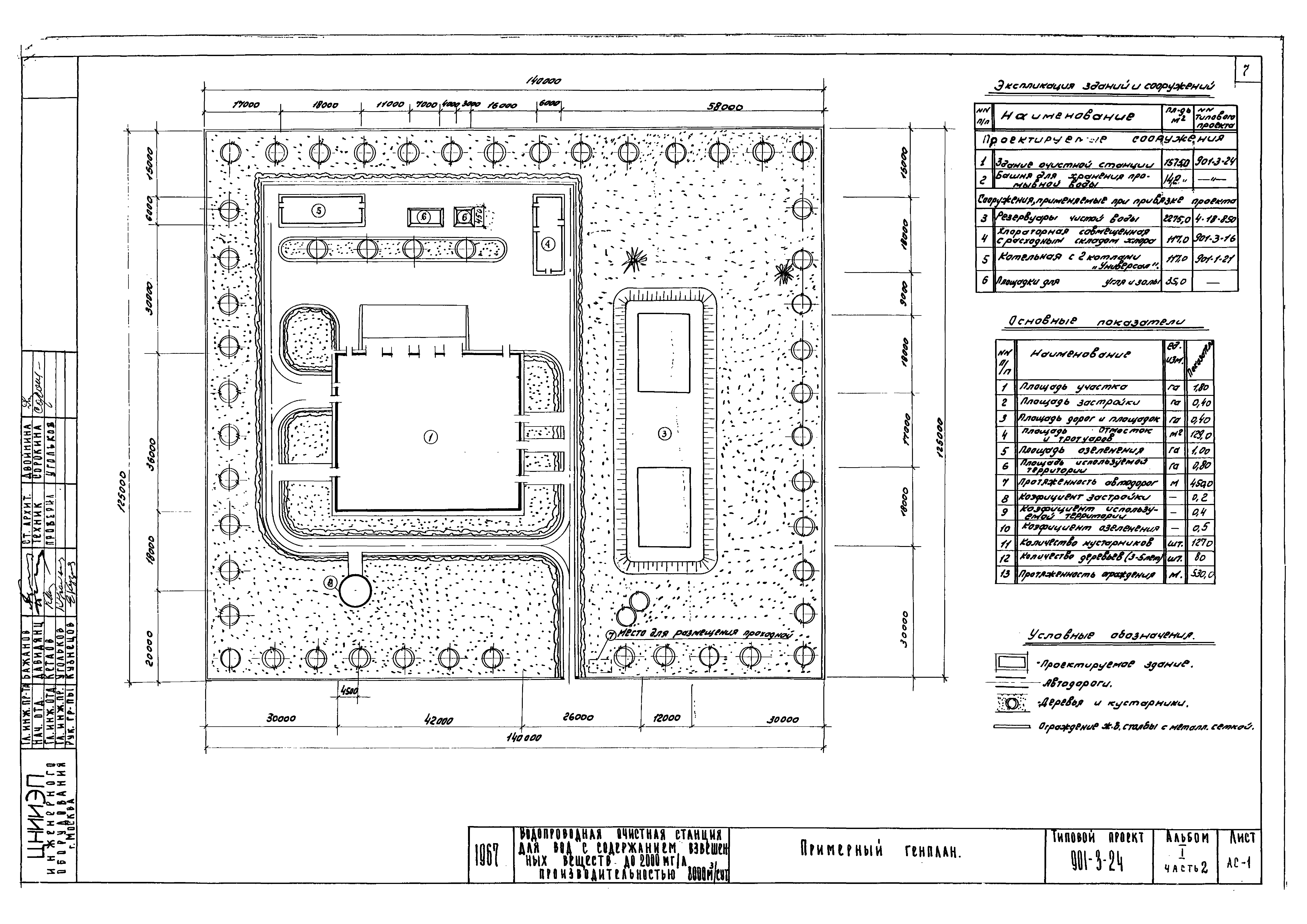
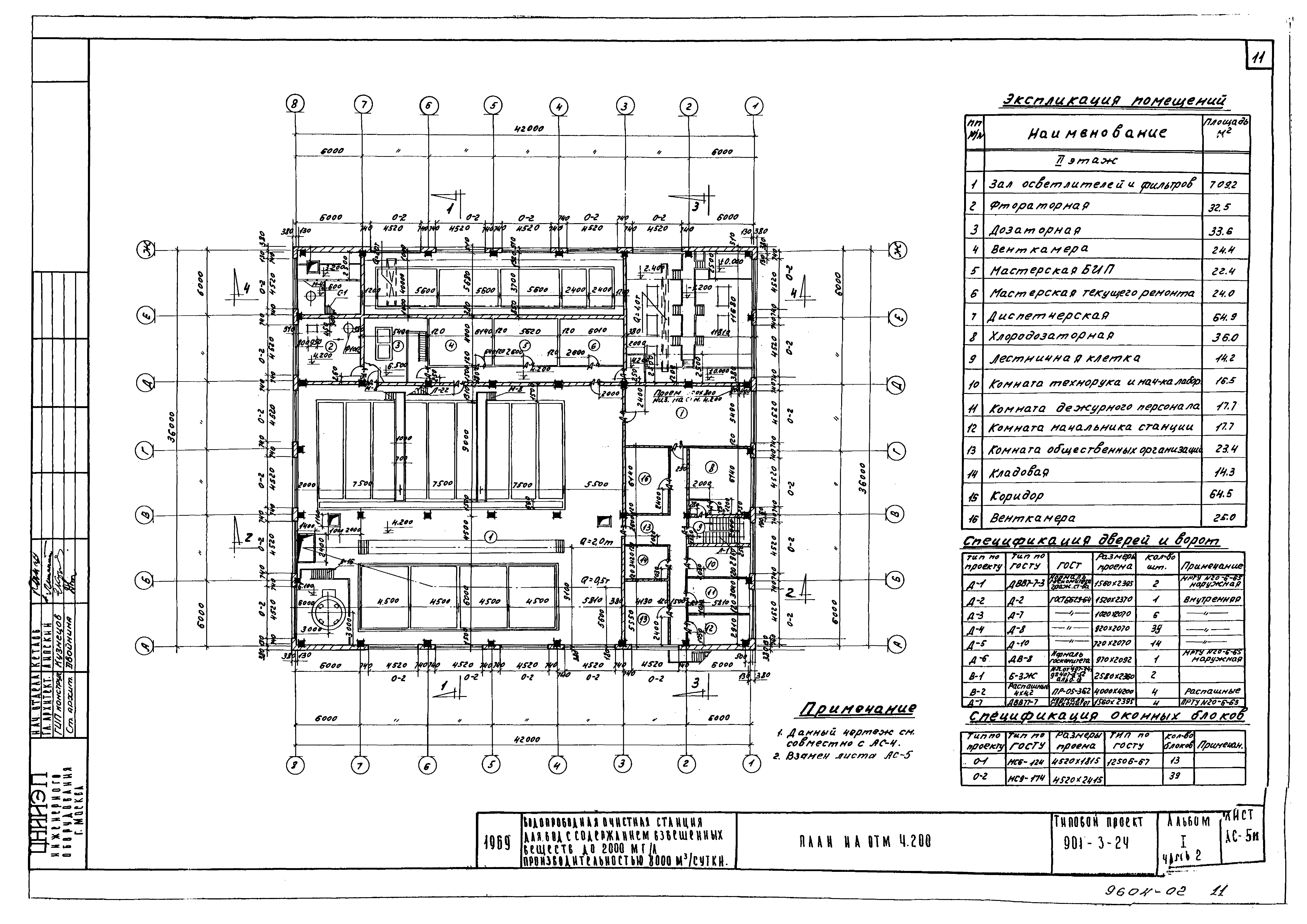
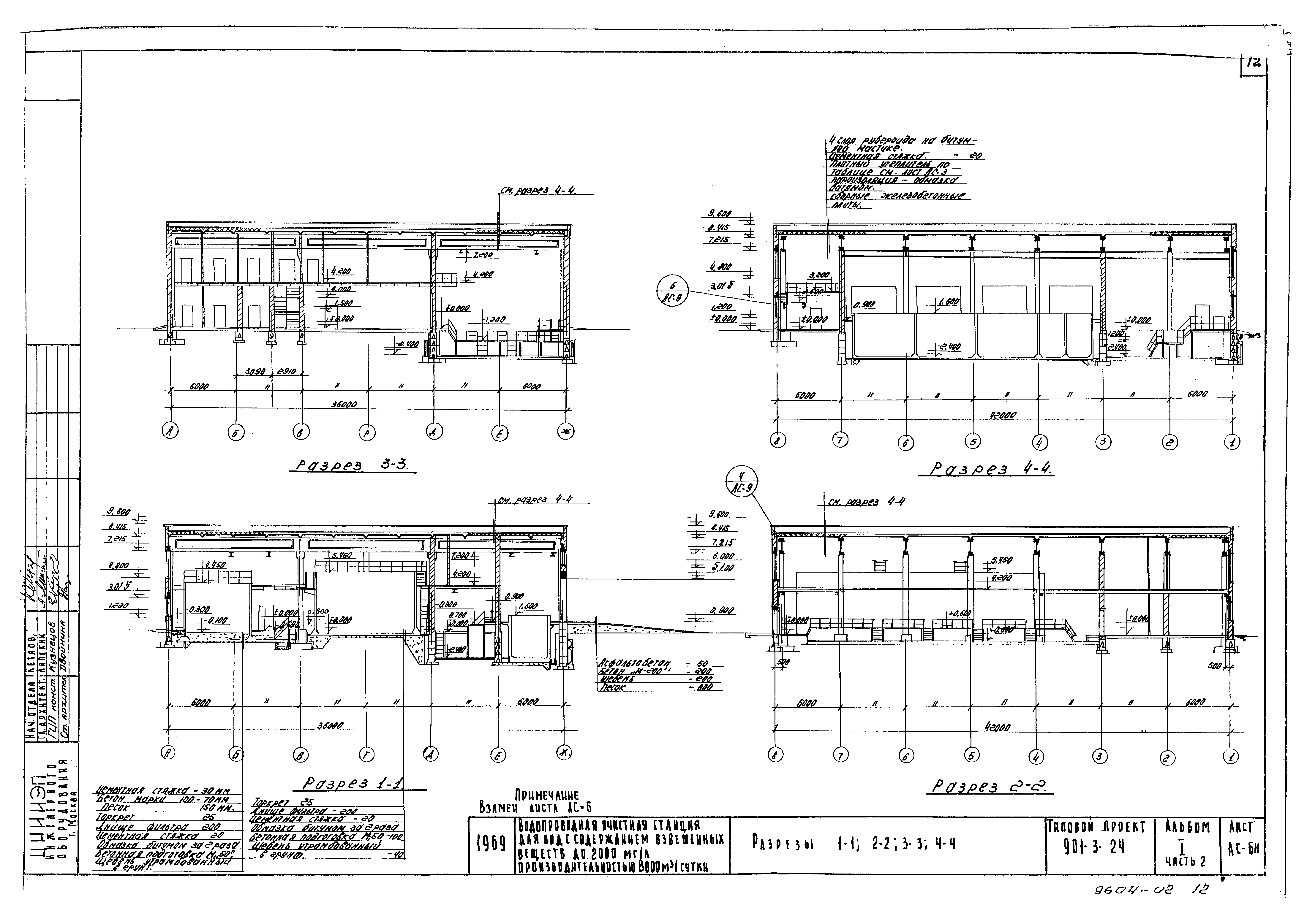
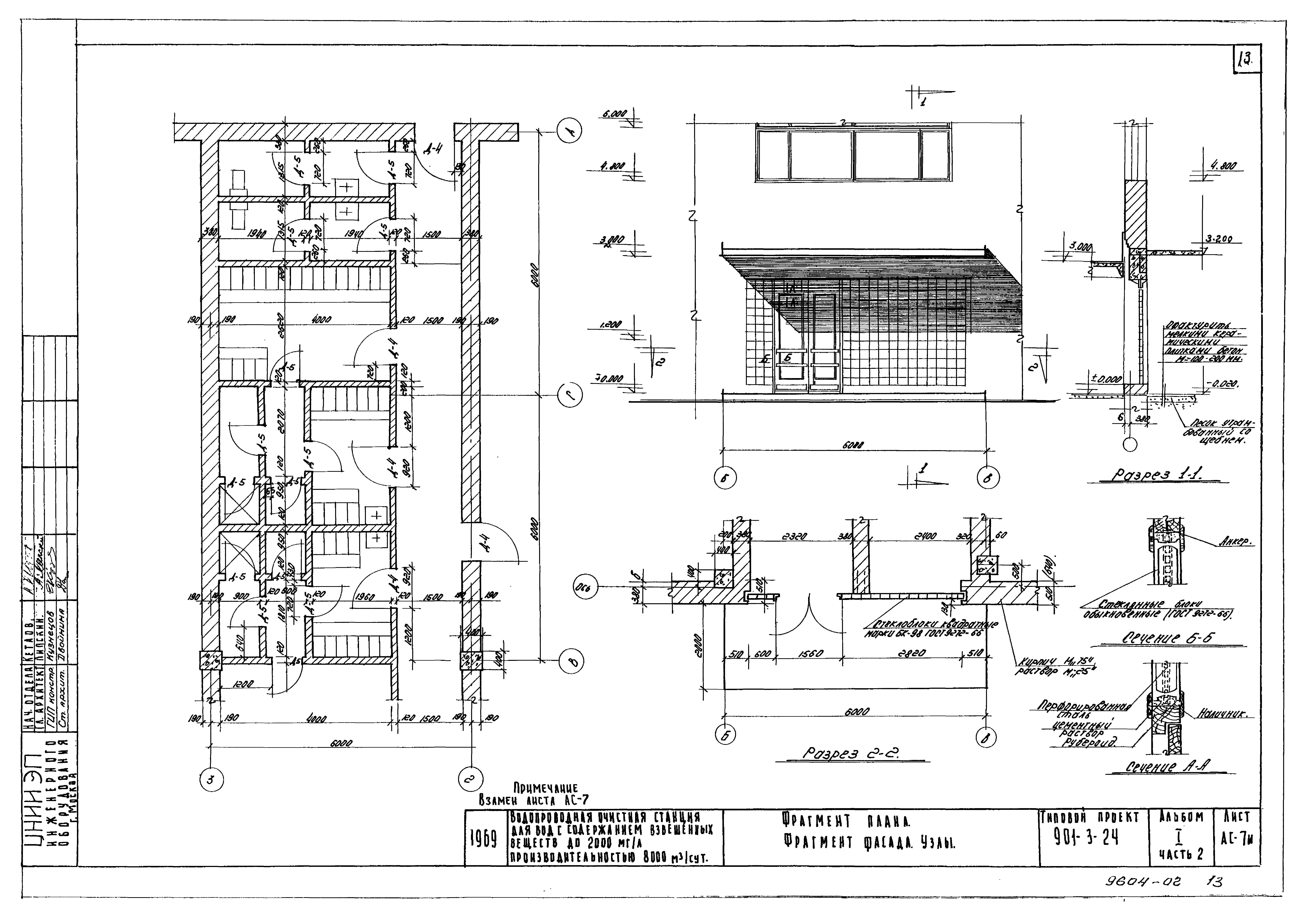
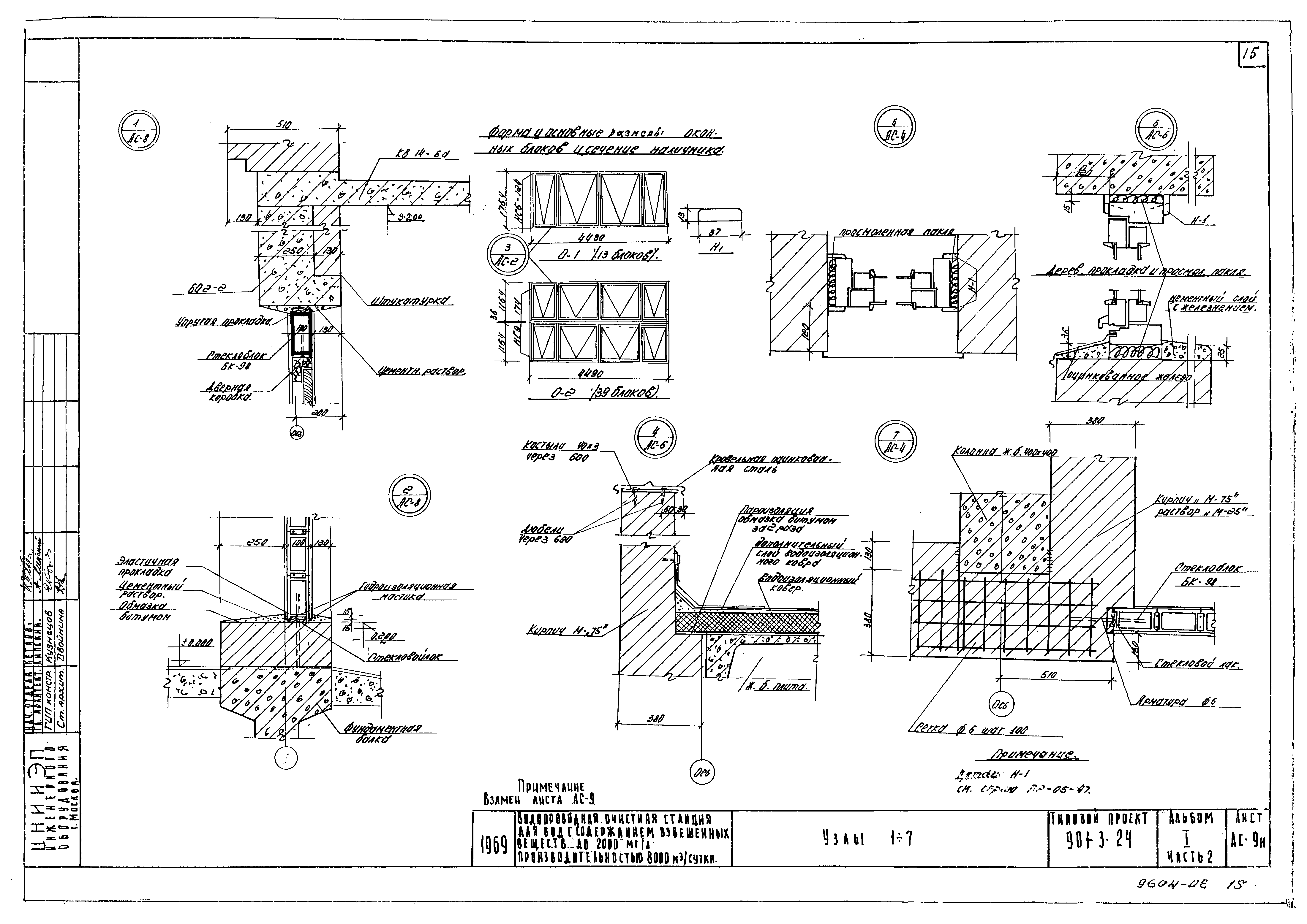
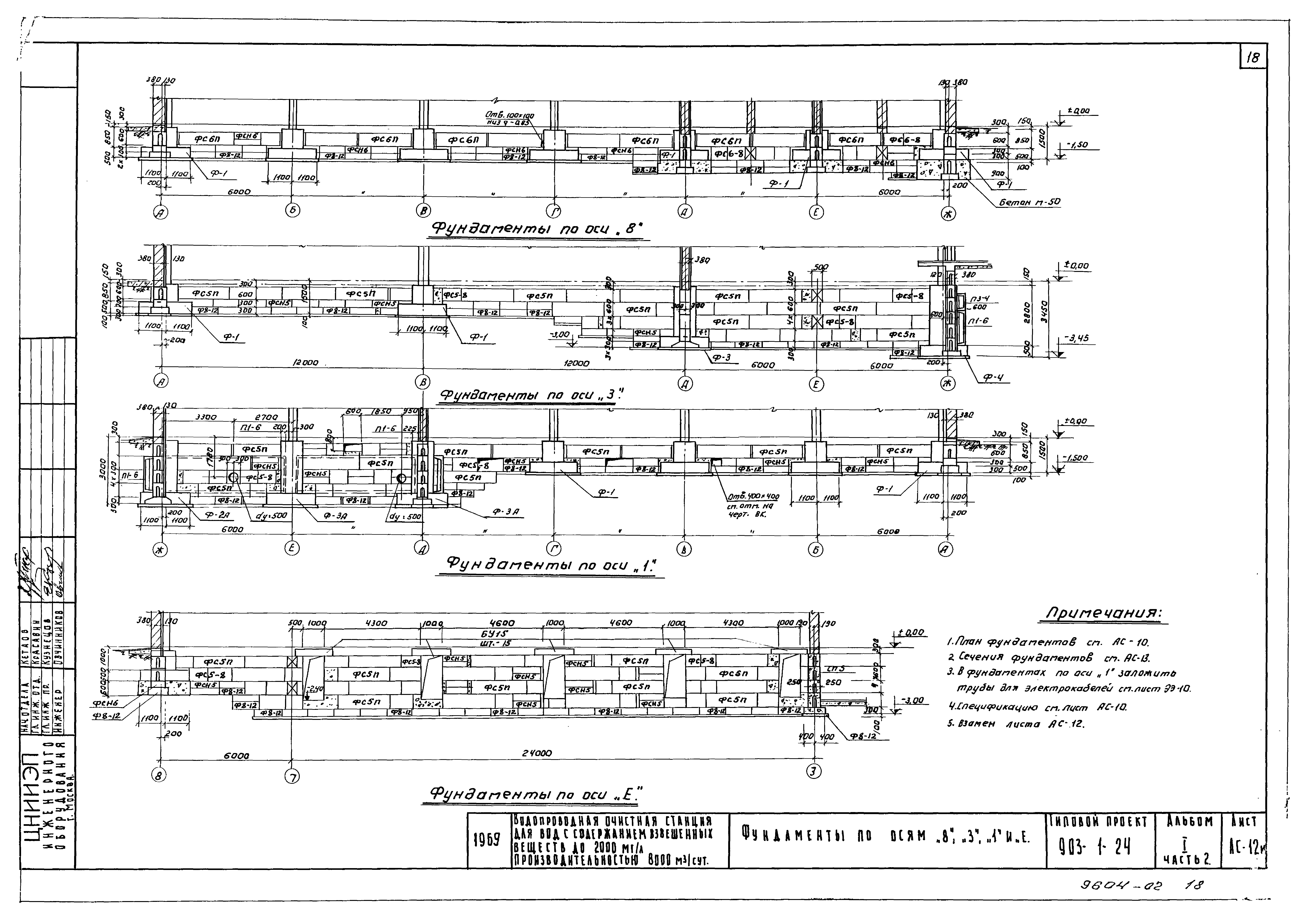
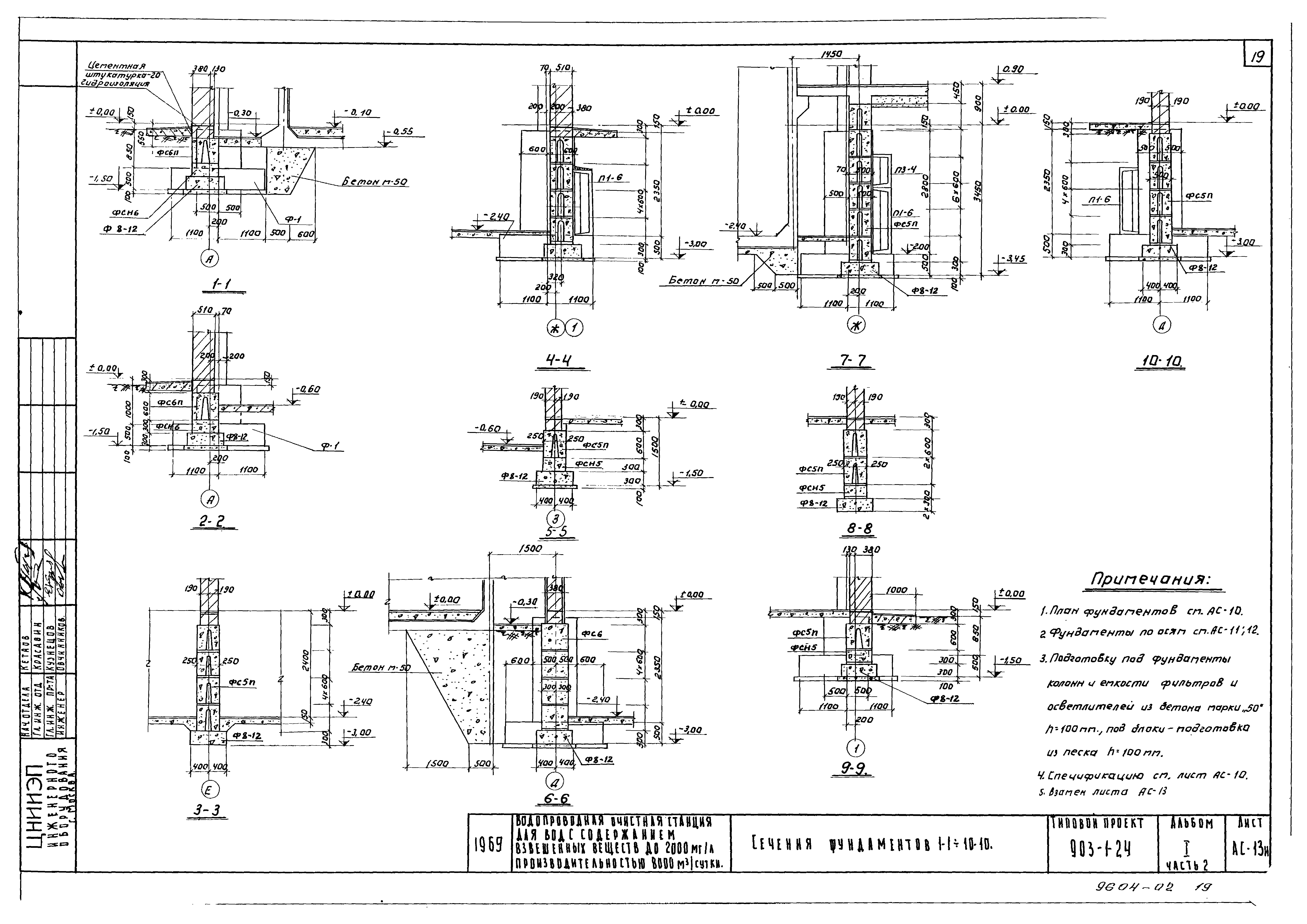
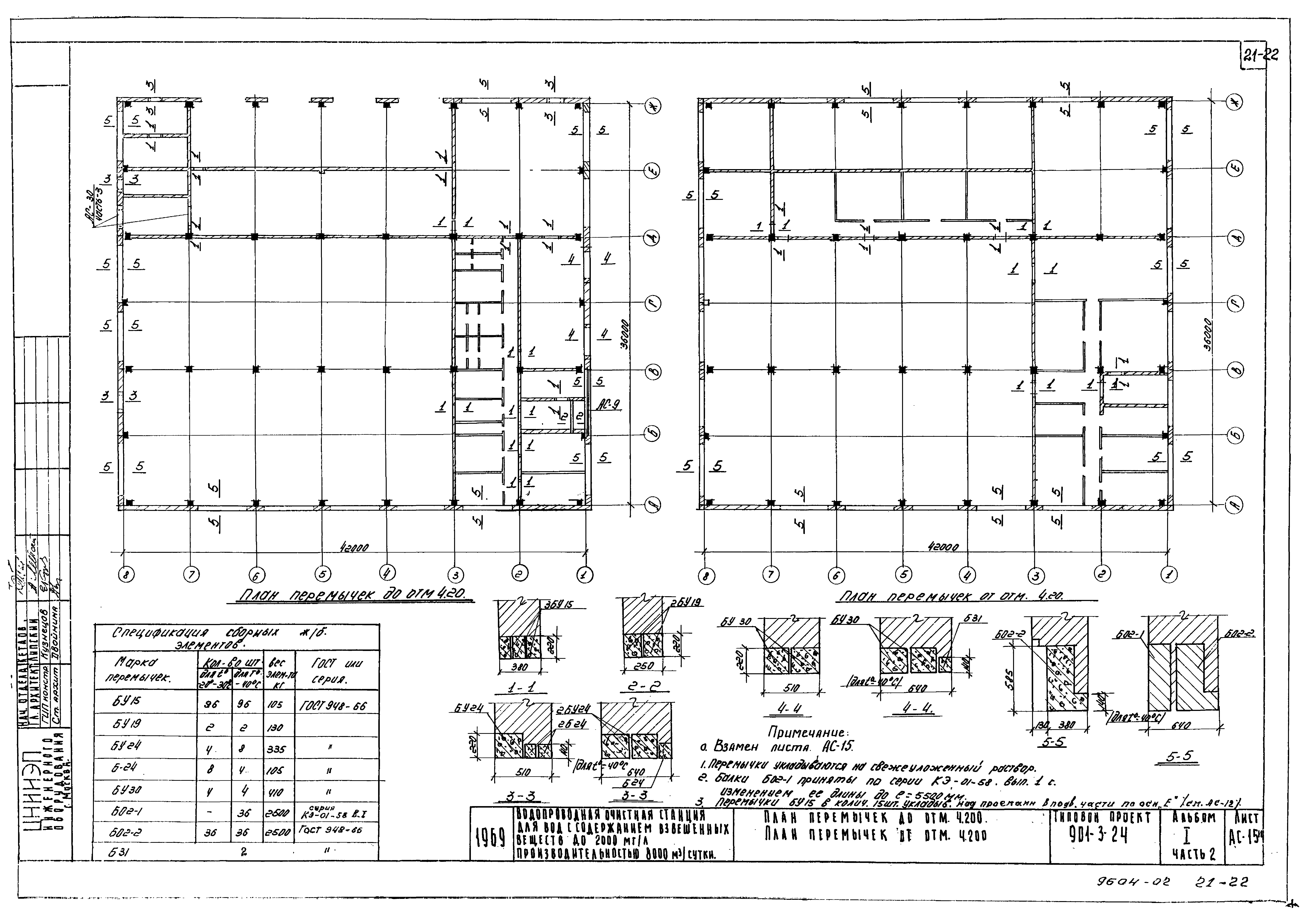
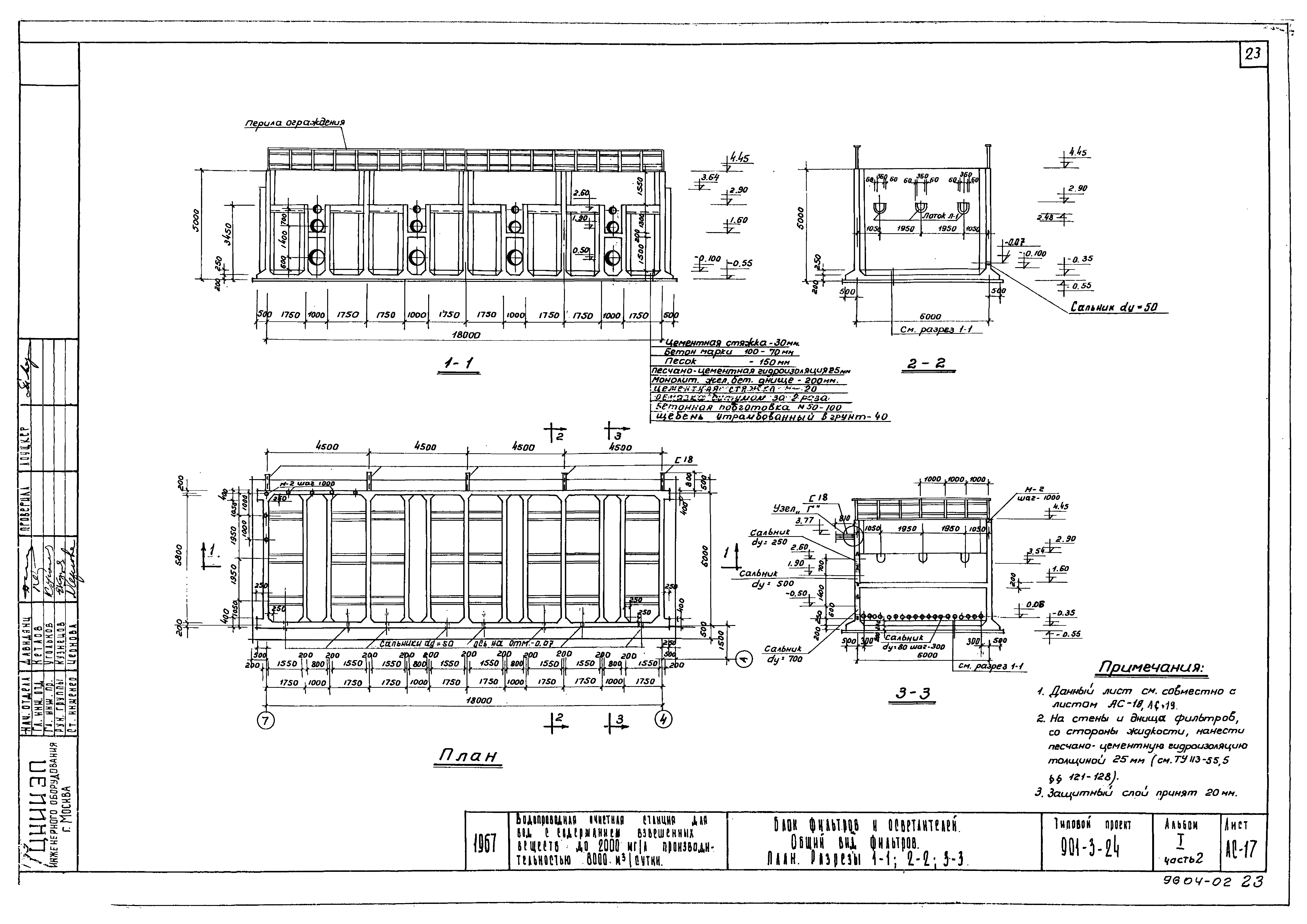
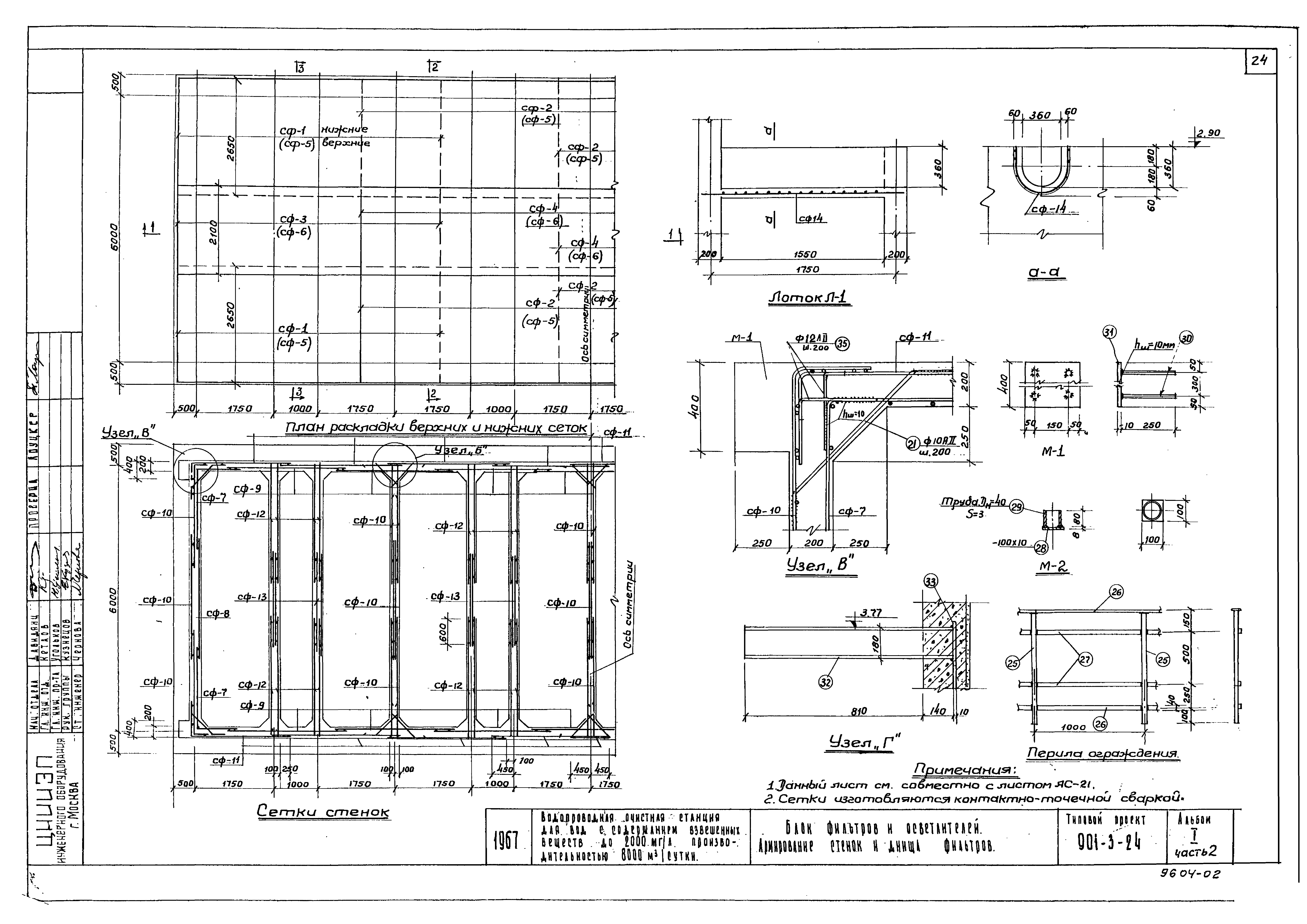
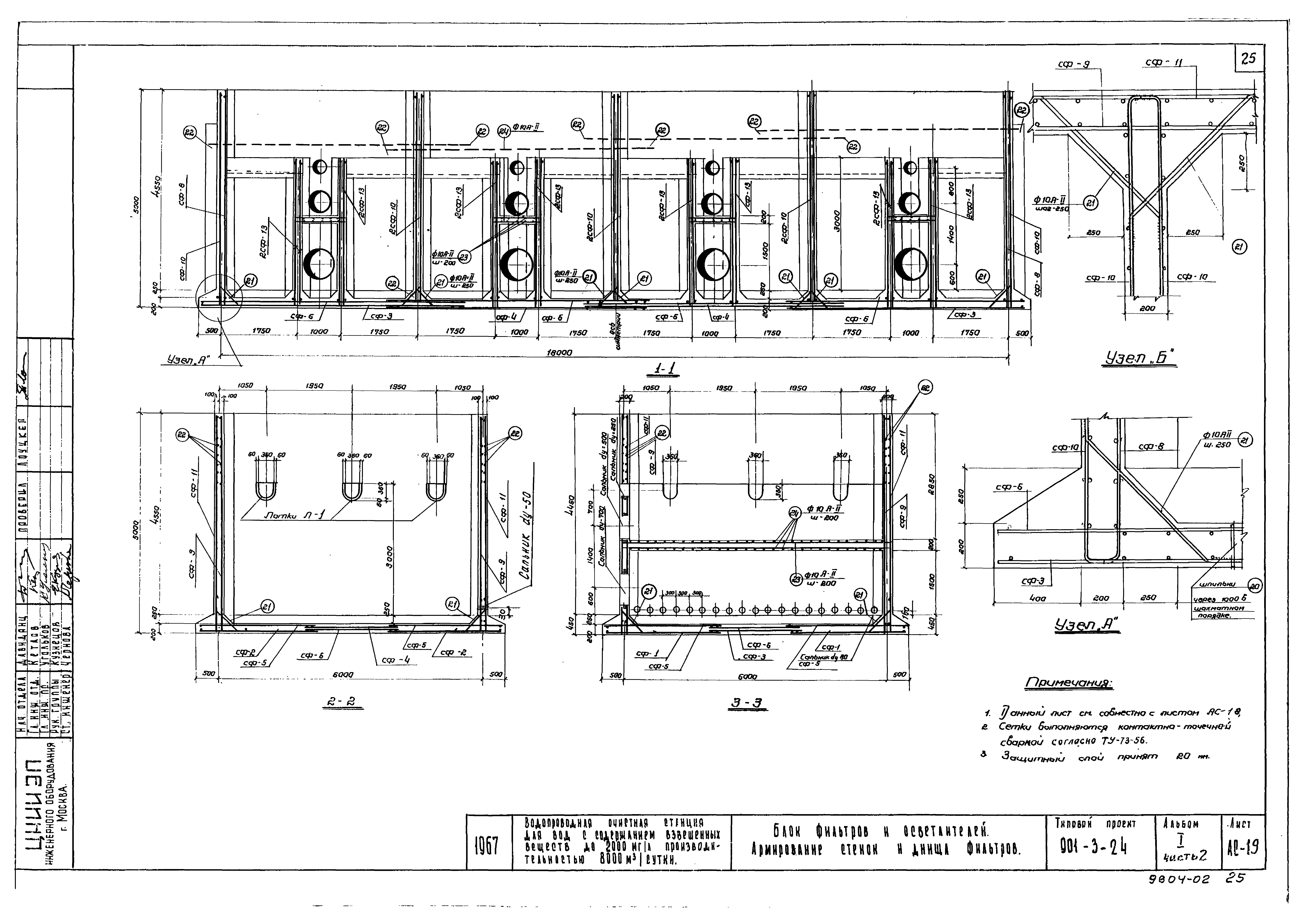
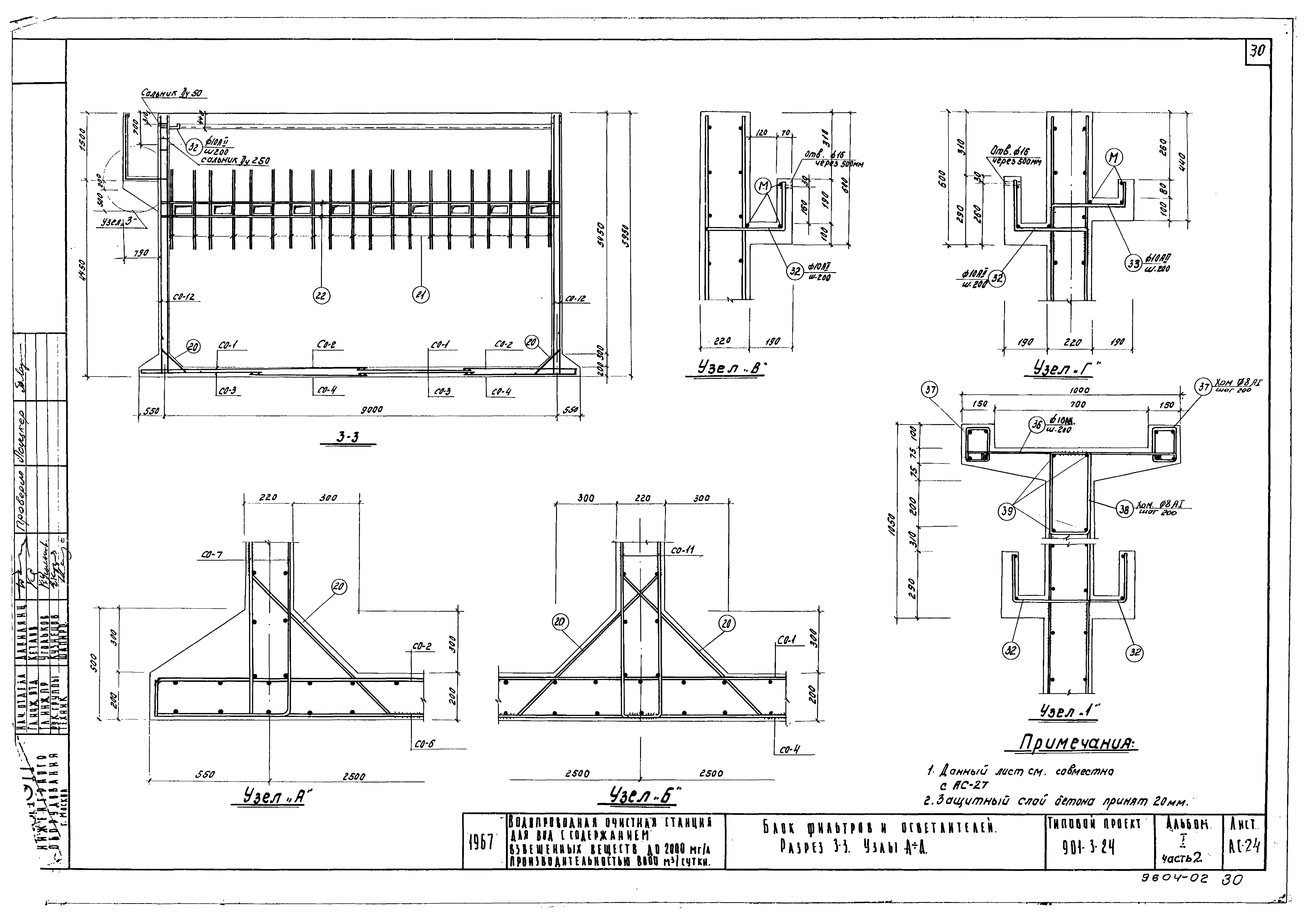
| Оглавление: | Обложка Титульный лист Содержание альбома Заглавный лист Пояснительная записка Примерный генплан Фасады А - Ж; Ж - А; 8 - 1; 1 - 8 Планы полов 1 и 2 этажей. План кровли. Экспликация полов. Ведомость внутренней отделки помещений План I этажа План на отм. 4.200 Разрезы 1-1, 2-2, 3-3, 4-4 Фрагмент плана. Фрагмент фасада. Узлы Железобетонная лестница. Устройство внутреннего водостока Узлы 1 - 6 План фундаментов Фундаменты по осям "Ж", "Д", "В" и "А" Фундаменты по осям "8", "3", "1" и "Е" Сечение фундаментов 1-1 - 10-10 Фундаменты Ф-1, Ф-2, Ф-3, Ф-4, Ф-2А и Ф-3А План перемычек до отм. 4.20. План перемычек от отм. 4.20 (t0 = - 20 и t0 = - 30 градусов Цельсия) Блок фильтров и осветлителей. Общий вид фильтров. План. Разрезы 1-1, 2-2, 3-3 Блок фильтров и осветлителей. Армирование стенок и днища фильтров Блок фильтров и осветлителей. Спецификация арматуры фильтров Блок фильтров и осветлителей. Общий вид осветлителей. План и разрезы 1-1 - 3-3 Блок фильтров и осветлителей. Узлы 1 - 5. Детали "А" и "Б" Блок фильтров и осветлителей. Армирование днища и стен осветлителей Блок фильтров и осветлителей. Узлы 3-3. узлы А - Д Блок фильтров и осветлителей. Узлы Е - 3. Закладные детали ЗД-1 - Зд-3. Деталь ограждения мостиков 0 - 1 Блок фильтров и осветлителей. Спецификация арматуры осветлителей |
| Разработан: | ЦНИИЭП инженерного оборудования Госгражданстроя |
| Утверждён: | 20.12.1967 ЦНИИЭП инженерного оборудования (TsNIIEP of Building Service Equipment 121) |































