Скачать Типовой проект 902-2-471.89 Альбом 3. Отстойники. Конструкции железобетонные. Конструкции металлическиеДата актуализации: 01.01.2021
|
| Обозначение: | Типовой проект 902-2-471.89 |
| Обозначение англ: | 902-2-471.89 |
| Статус: | не определен законодательством |
| Название рус.: | Альбом 3. Отстойники. Конструкции железобетонные. Конструкции металлические |
| Дата добавления в базу: | 01.09.2013 |
| Дата актуализации: | 01.01.2021 |
| Дата введения: | 12.05.1989 |
| Дата окончания срока действия: | 30.06.2003 |
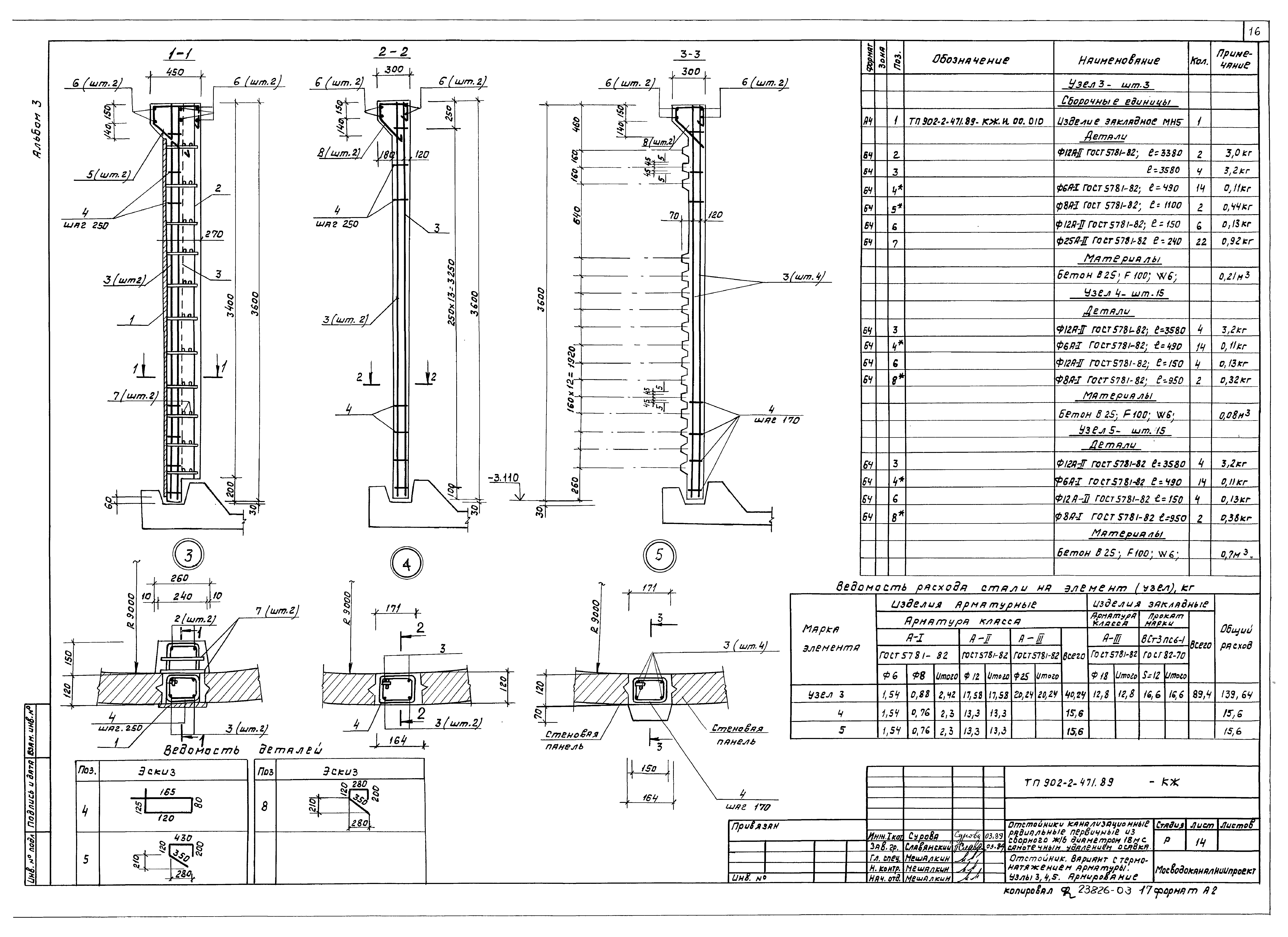
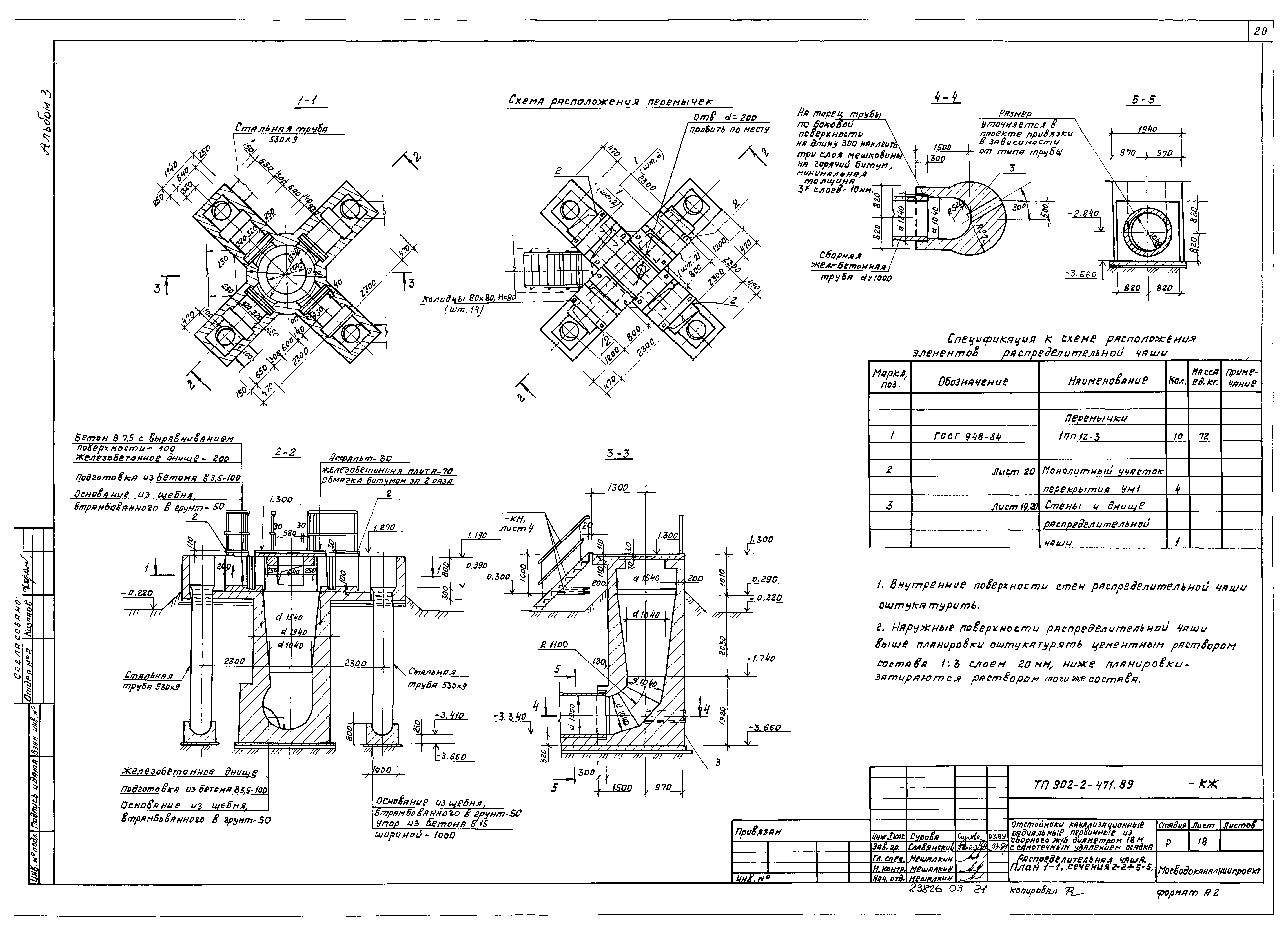
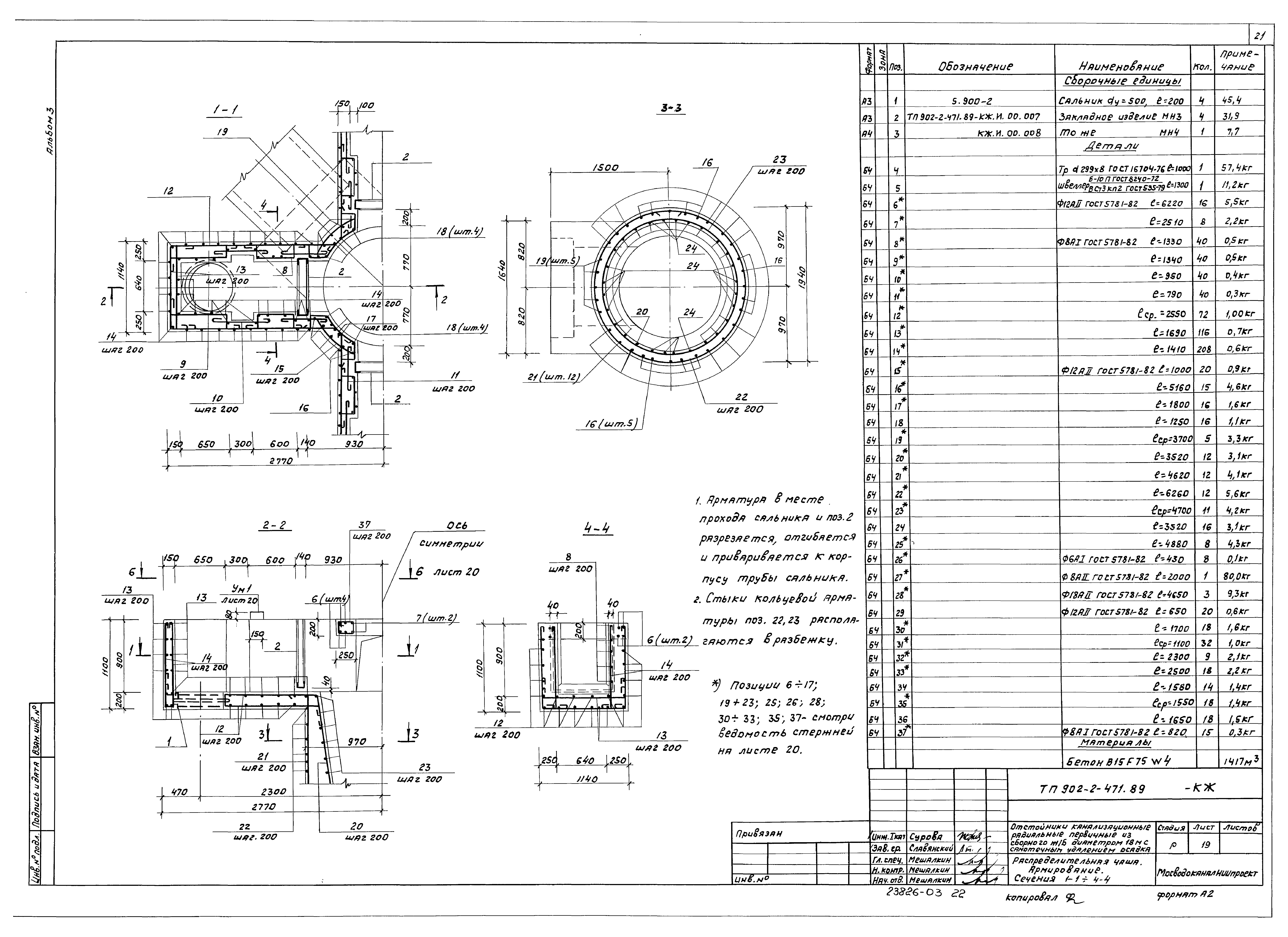
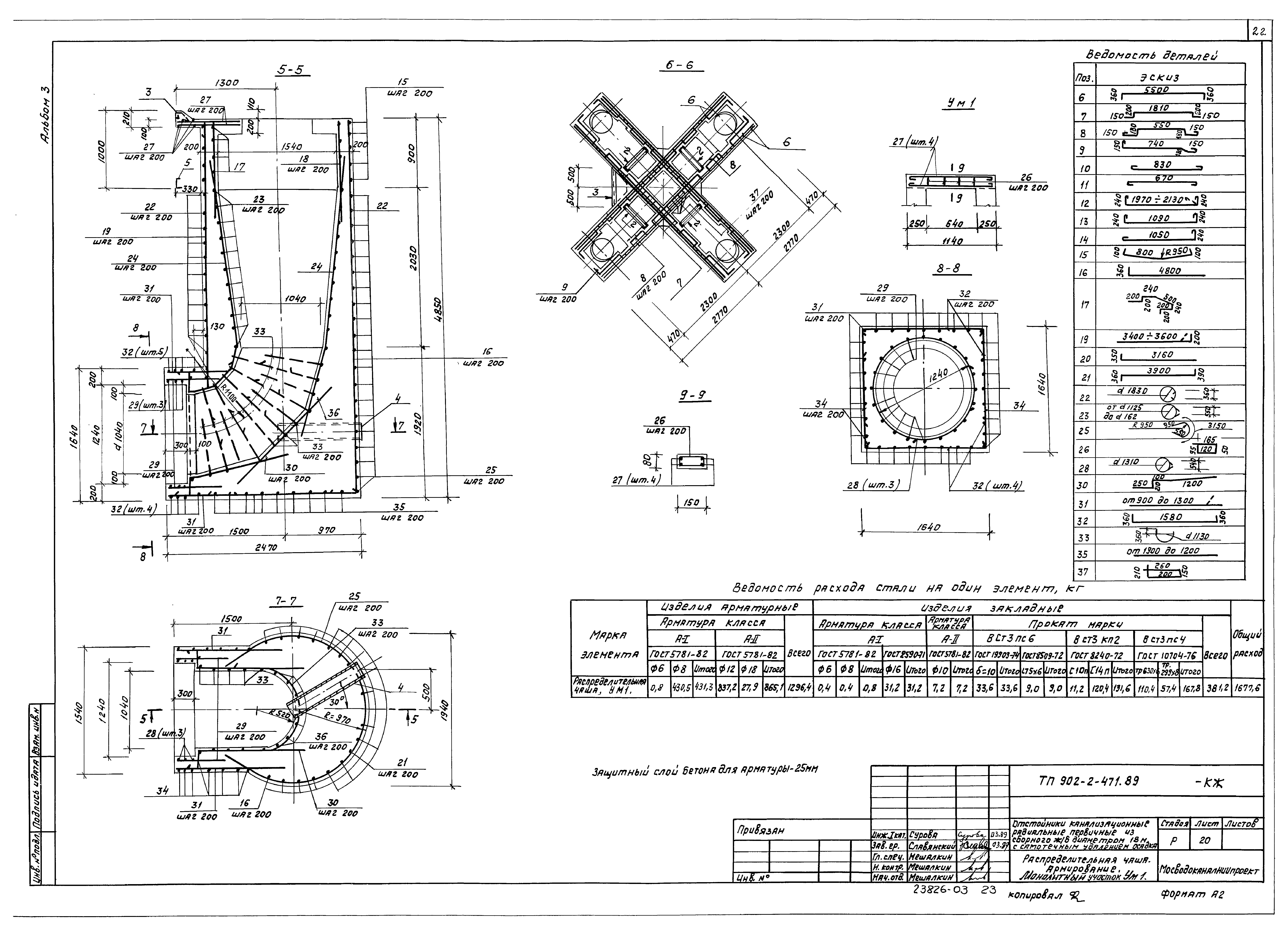
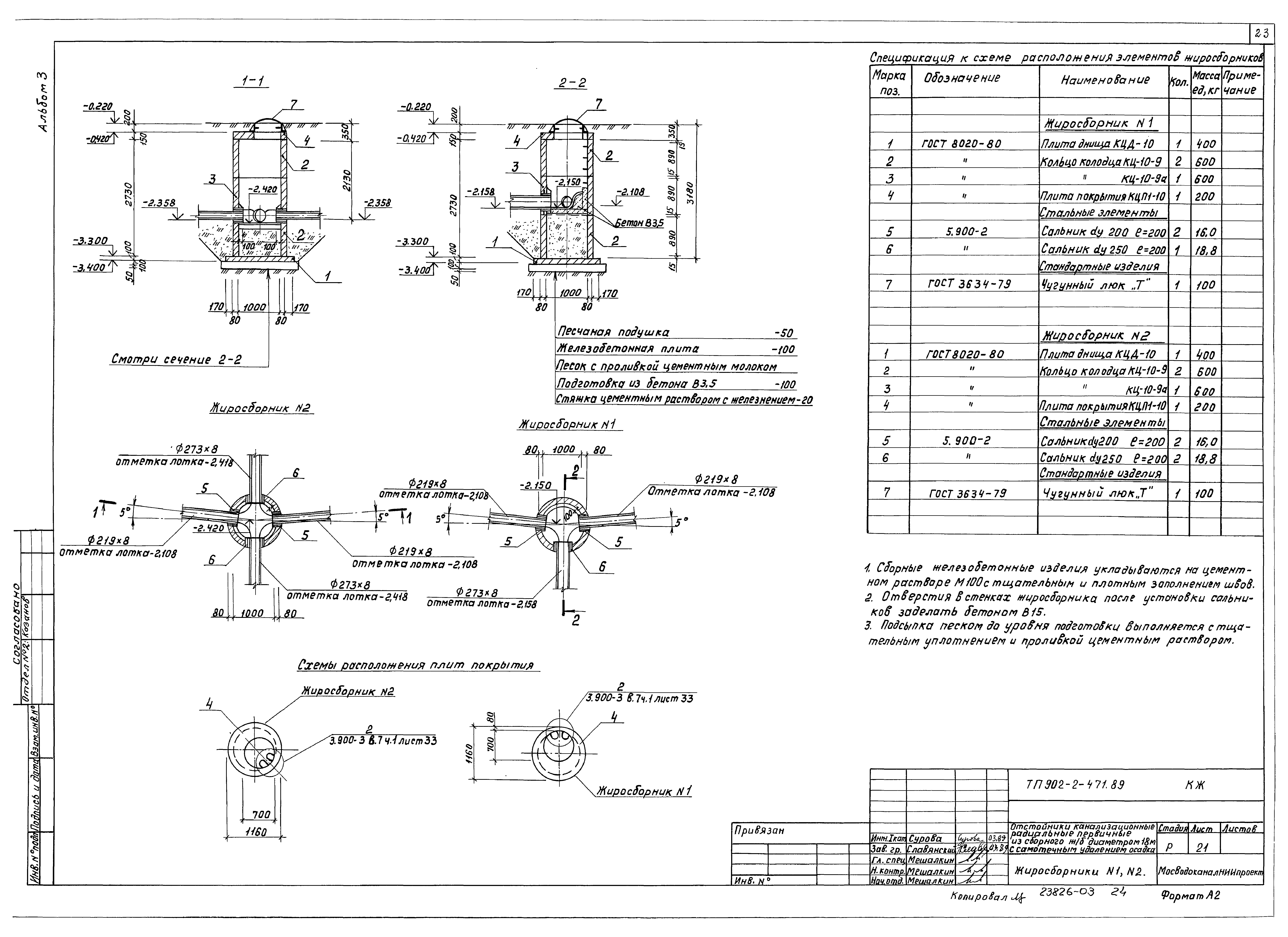
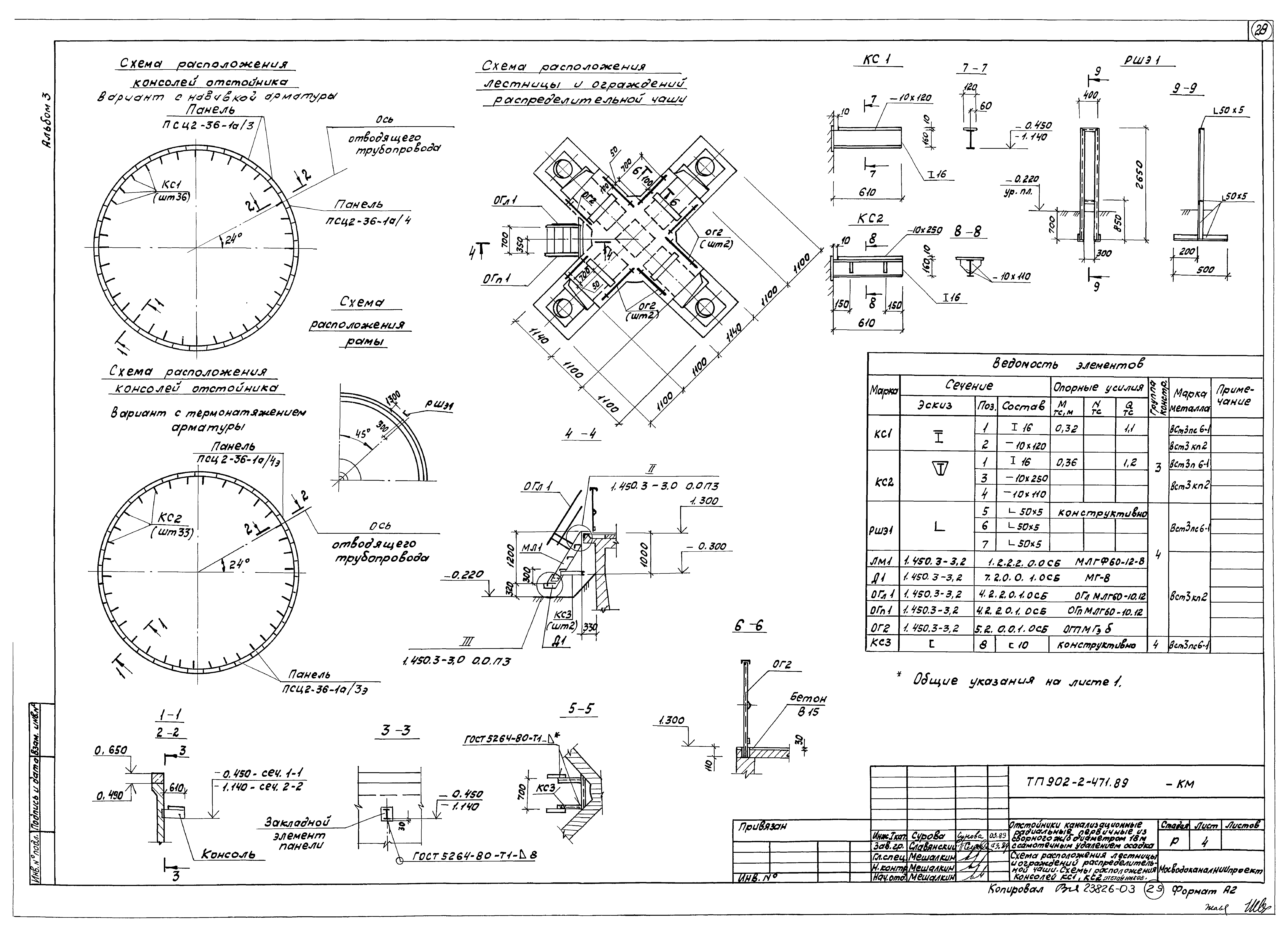
| Оглавление: | Титульный лист Содержание альбома Конструкции железобетонные Общие данные Схема группы отстойников Отстойник. План. Сечения Отстойник. Сечения 5-5 - 10-10 Отстойник. Сечения 11-11 - 15-15. Узел 1 Отстойник. Днище. Армирование Отстойник. Центральная часть. Армирование. Сечения 8-8 - 11-11 Отстойник. Схема расположения стеновых панелей Отстойник. Узлы 3 - 5. Деталь навивки кольцевой арматуры Отстойник. Схема расположения лотков. Узлы 6, 7. Сечения 1-1 - 5-5 Отстойник. Лоток Лом2, борт Бм1. Армирование Отстойник. Вариант с термонатяжением арматуры. Схема расположения панелей и лотков Отстойник. Вариант с термонатяжением арматуры. Узлы 3, 4, 5. Армирование Отстойник. Вариант с термонатяжением арматуры. Узел 6 Отстойник. Вариант с термонатяжением арматуры. Узел 7 Отстойник. Вариант с термонатяжением арматуры. План размещения оборудования Распределительная чаша. План 1-1. Сечения 2-2 - 5-5 Распределительная чаша. Армирование. Сечения 1-1 - 4-4 Распределительная чаша. Армирование. Монолитный участок Ум1 Жиросборники №1, №2 Камера ОП1. Опалубка и армирование. Планы и сечения Конструкции металлические Общие данные Схема расположения лестницы и ограждений распределительной чаши. Схемы расположения консолей КС1, КС2 отстойников |
| Разработан: | МосводоканалНИИпроект |
| Утверждён: | 28.04.1989 Мосгорисполком (Mosgorispolkom 890р) |




























