Скачать Типовой проект 902-2-471.89 Альбом 6. Электросиловое оборудование. Автоматизация вентсистемДата актуализации: 01.01.2021
|
| Обозначение: | Типовой проект 902-2-471.89 |
| Обозначение англ: | 902-2-471.89 |
| Статус: | не определен законодательством |
| Название рус.: | Альбом 6. Электросиловое оборудование. Автоматизация вентсистем |
| Дата добавления в базу: | 01.09.2013 |
| Дата актуализации: | 01.01.2021 |
| Дата введения: | 12.05.1989 |
| Дата окончания срока действия: | 30.06.2003 |
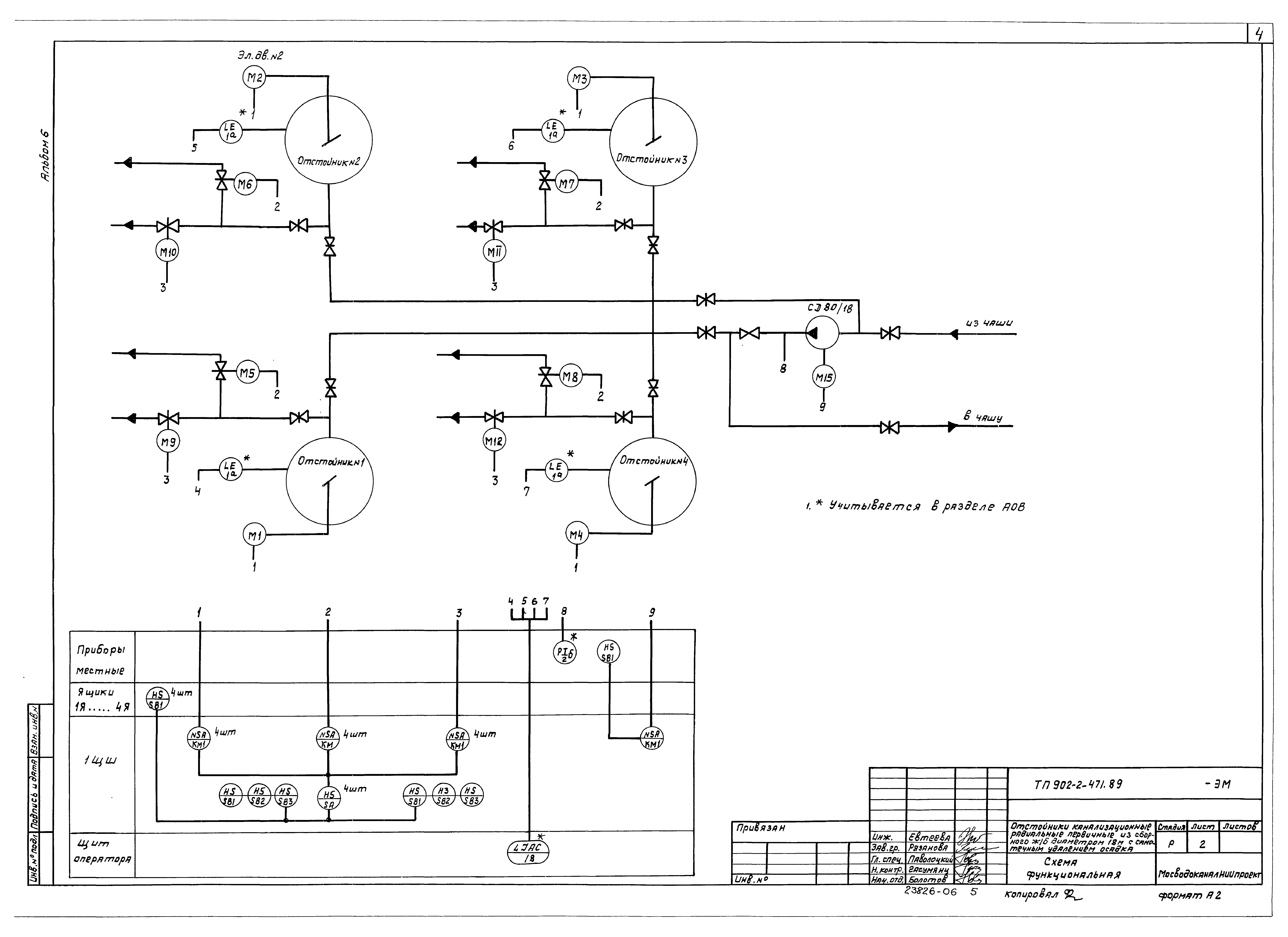
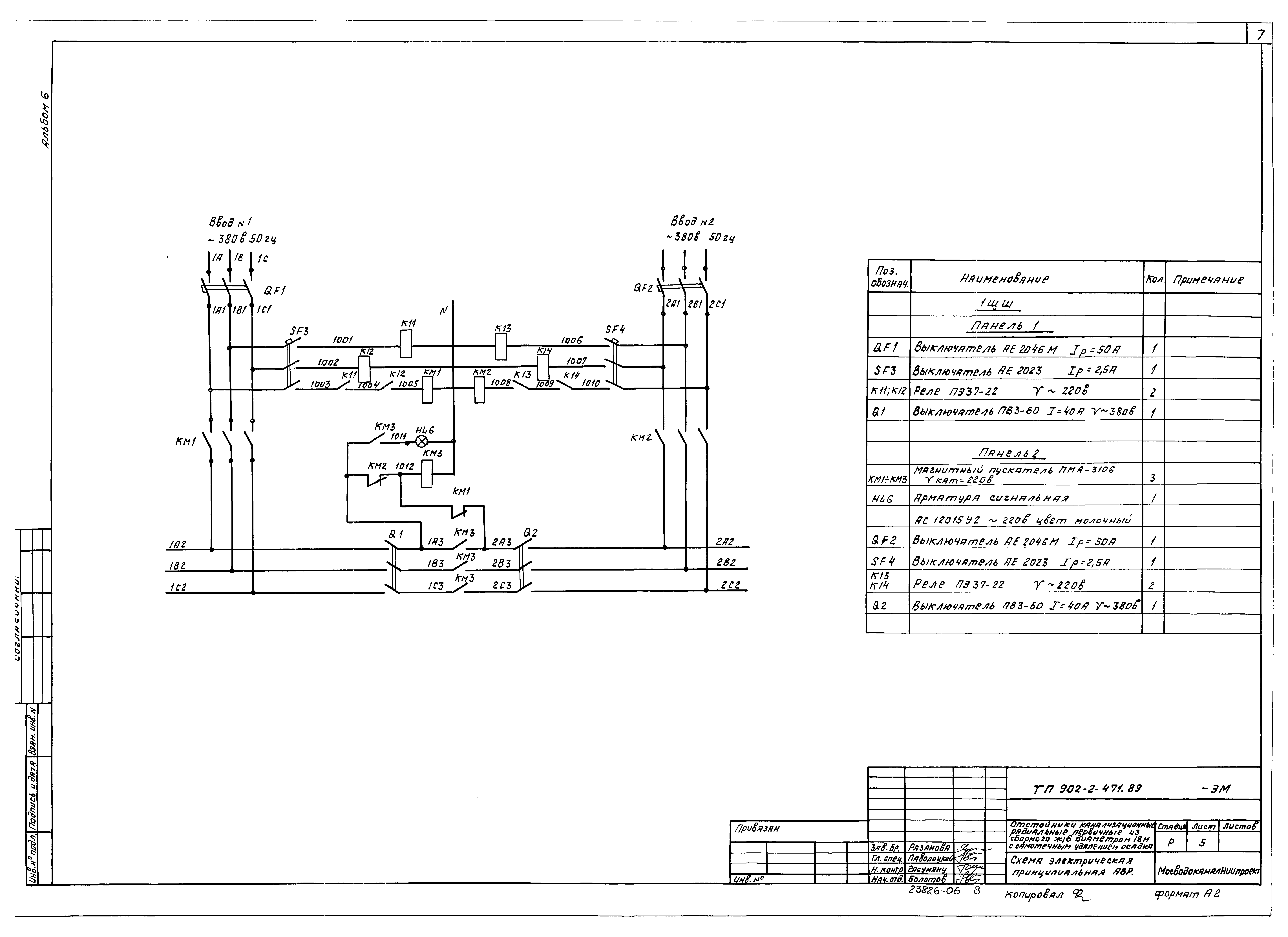
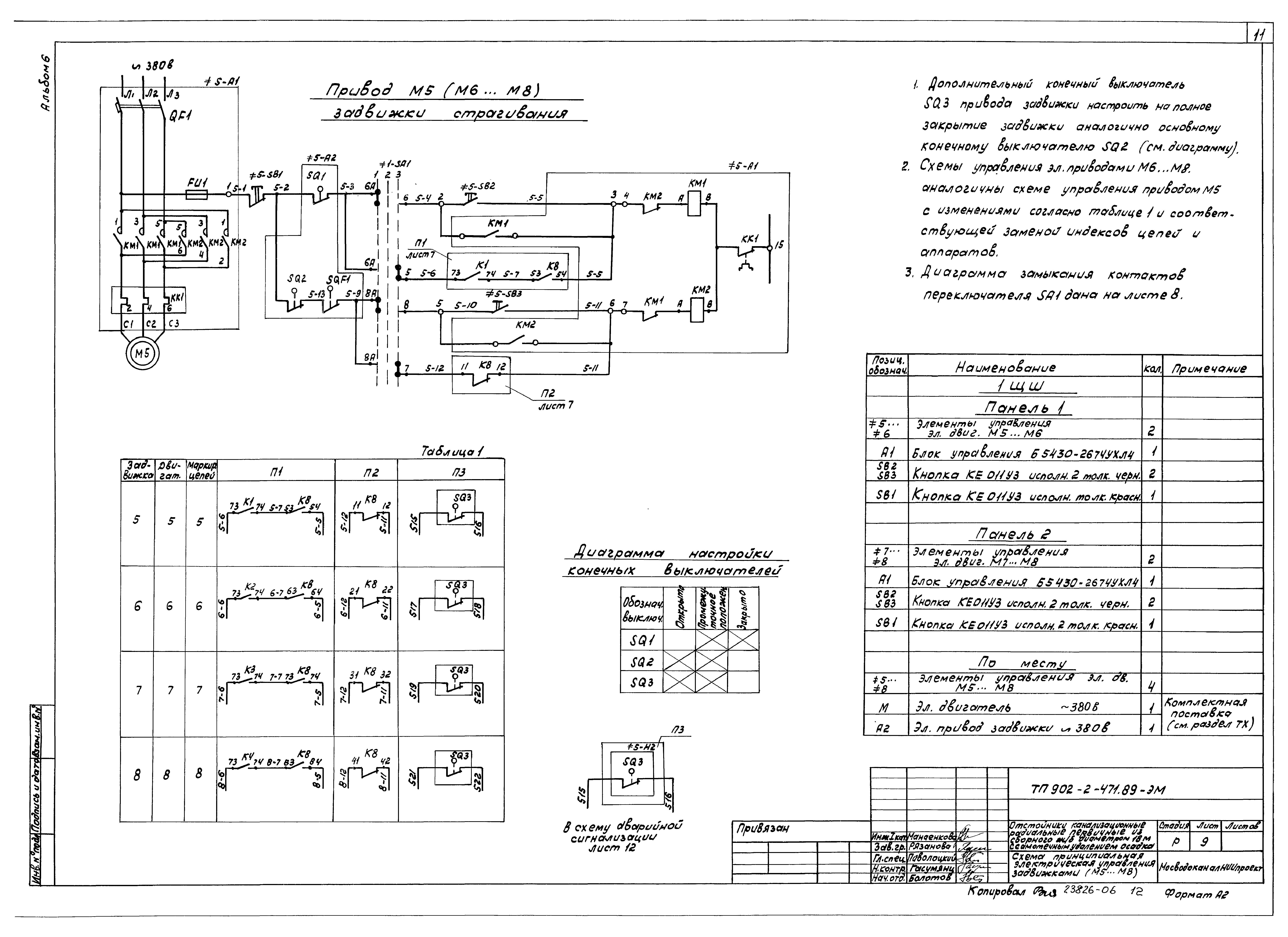
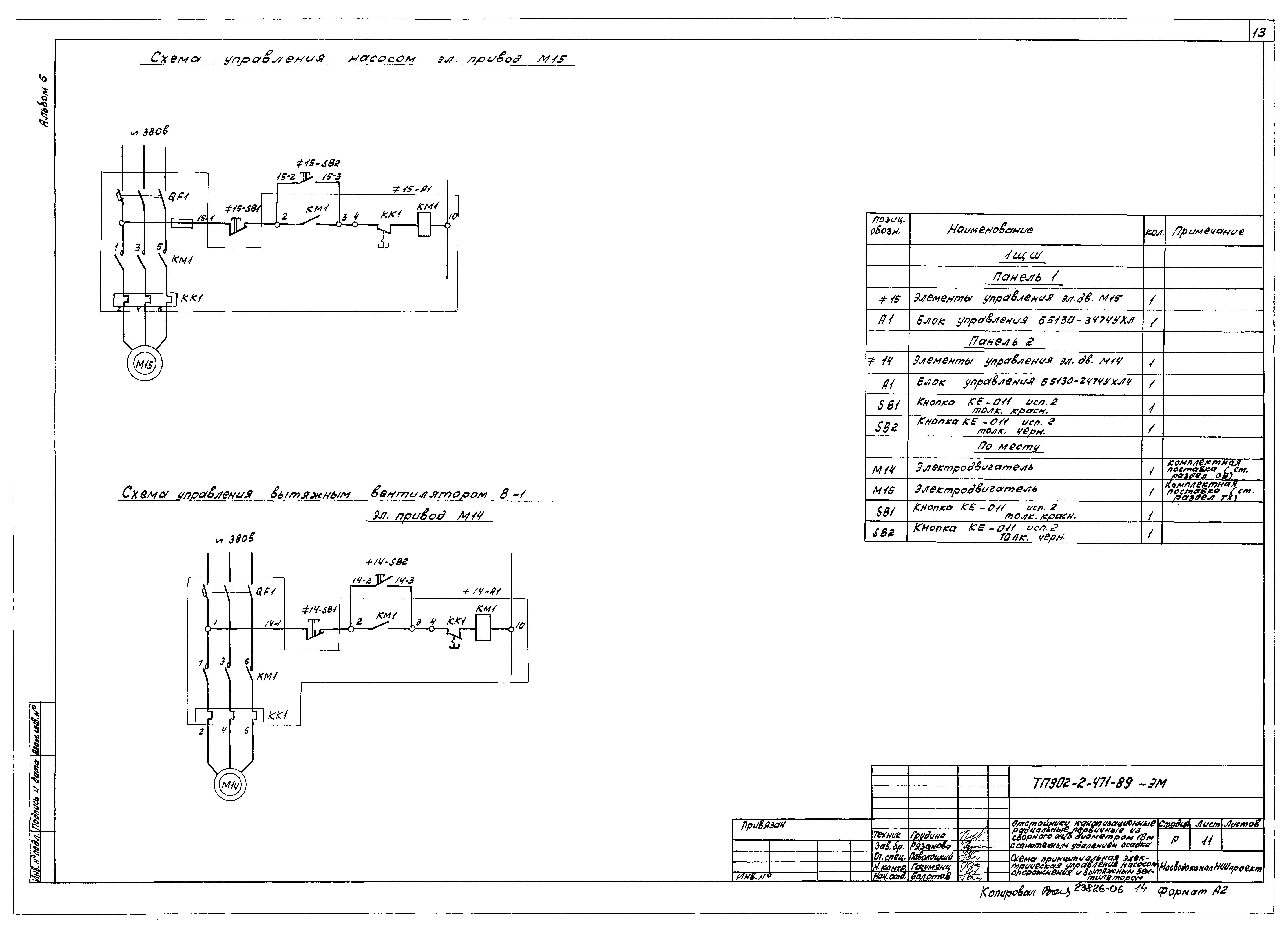
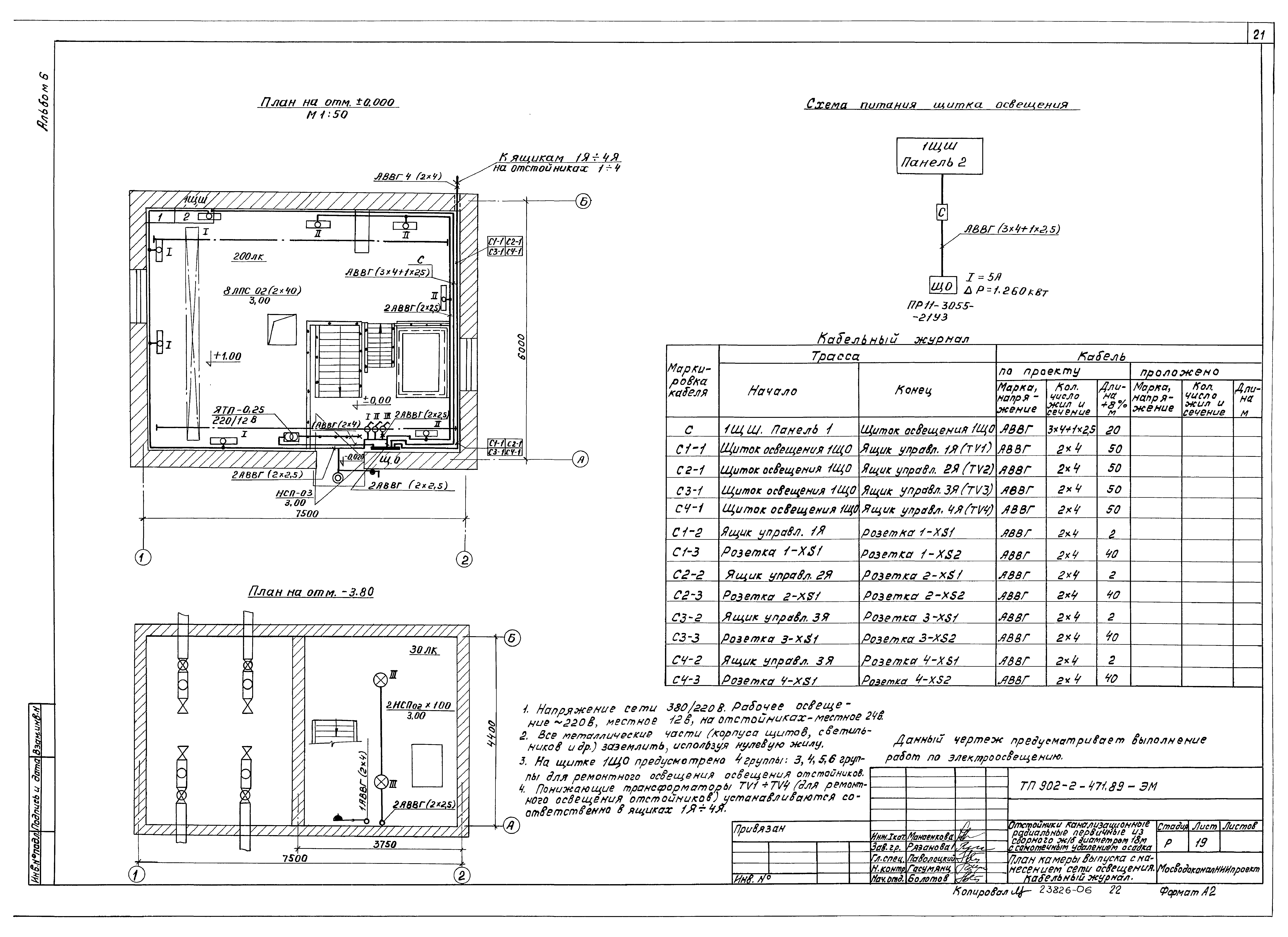
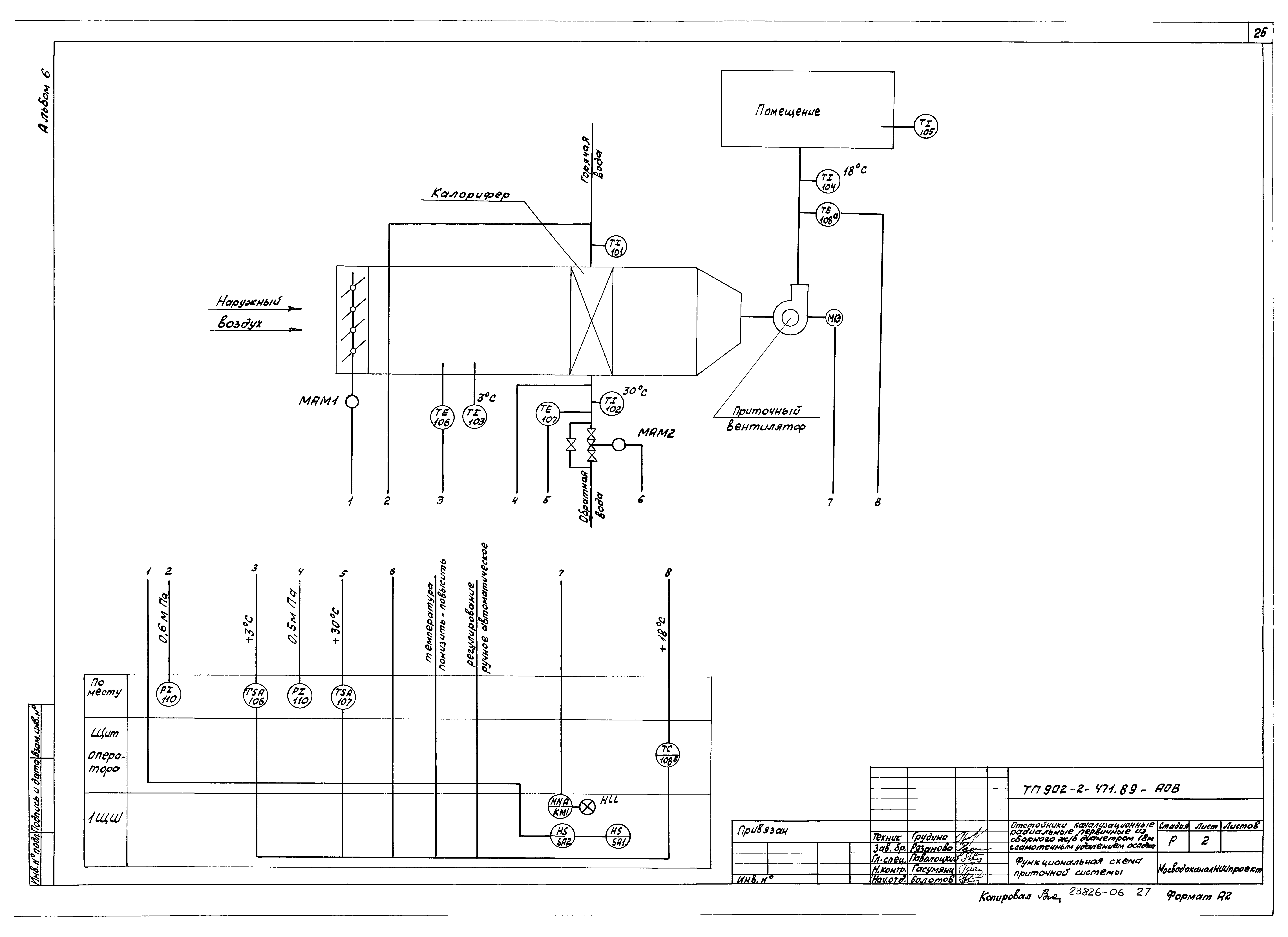
| Оглавление: | Содержание альбома Основной комплект ЭМ Общие данные Функциональная схема Схема электрическая принципиальная распределительной сети 380/220 В Схема электрическая принципиальная АВР Схема электрическая принципиальная удаления осадка из отстойников Схема электрическая принципиальная управления илоскребами (М1…М4) Схема электрическая принципиальная управления задвижками строгивания (М5…М8) Схема электрическая принципиальная управления телескопическими регуляторами выпуска осадка (М9…М12) Схема электрическая принципиальная насосом опорожнения (М15) и вытяжным вентилятором (М14) Схема электрическая принципиальная аварийной сигнализации Схема подключения внешних проводок Кабельный журнал План камеры выпуска с нанесением сети освещения. Кабельный журнал План расположения. Кабельные трассы Щит 1ЩШ. Эскизный чертеж общего вида Основной комплект АОВ Общие данные Функциональная схема приточной системы Схема электрическая принципиальная управления и регулирования приточной системой Схема соединений внешних проводок Схема автоматизации. Схема измерения уровня осадка в отстойниках |
| Разработан: | МосводоканалНИИпроект |
| Утверждён: | 28.04.1989 Мосгорисполком (Mosgorispolkom 890р) |





























