Скачать Типовой проект 701-1-54.89 Альбом 2. Архитектурные решения. Конструкции железобетонныеДата актуализации: 01.01.2021
|
| Обозначение: | Типовой проект 701-1-54.89 |
| Обозначение англ: | 701-1-54.89 |
| Статус: | не определен законодательством |
| Название рус.: | Альбом 2. Архитектурные решения. Конструкции железобетонные |
| Дата добавления в базу: | 01.09.2013 |
| Дата актуализации: | 01.01.2021 |
| Дата введения: | 14.12.1989 |
| Дата окончания срока действия: | 30.06.2003 |
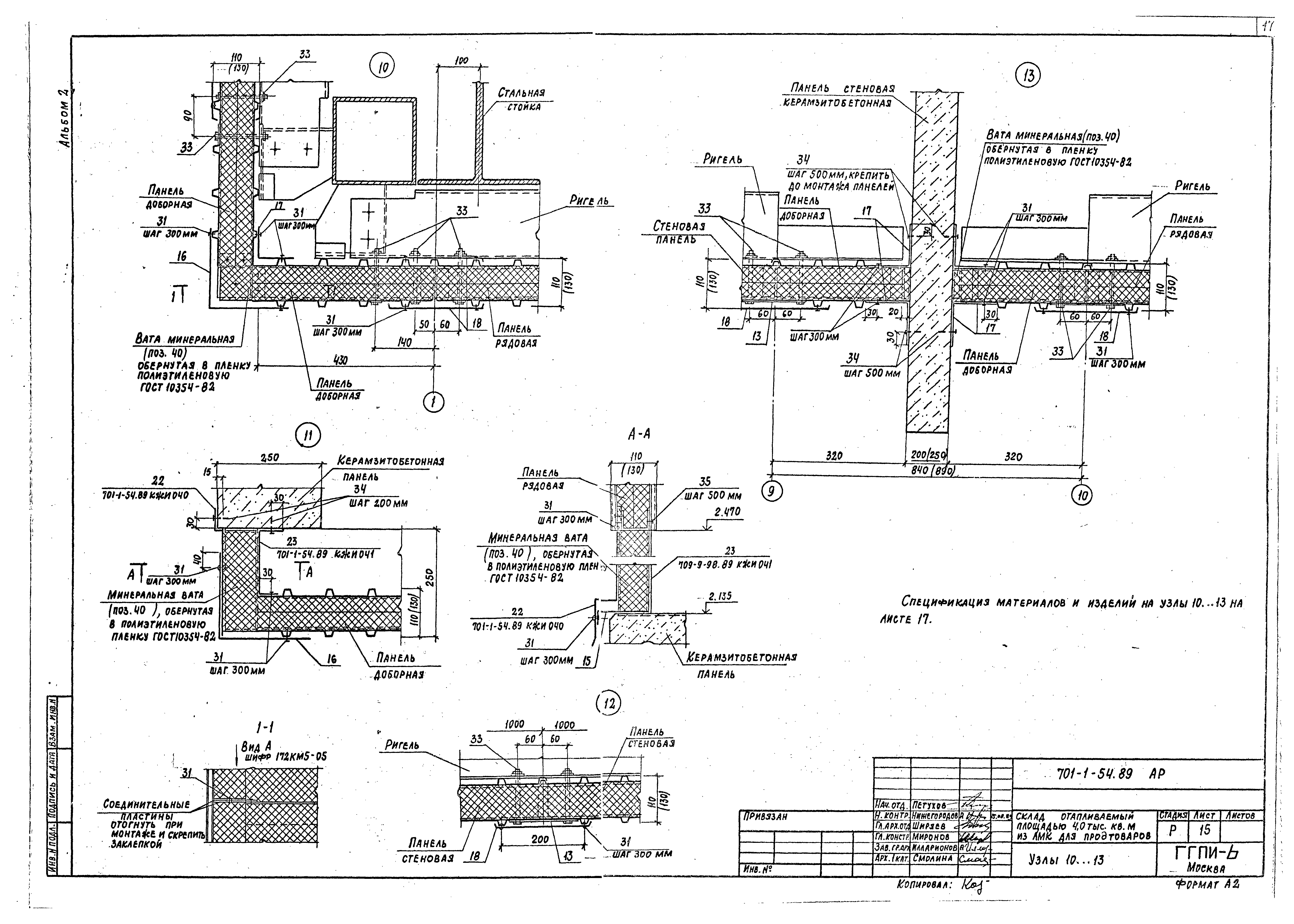
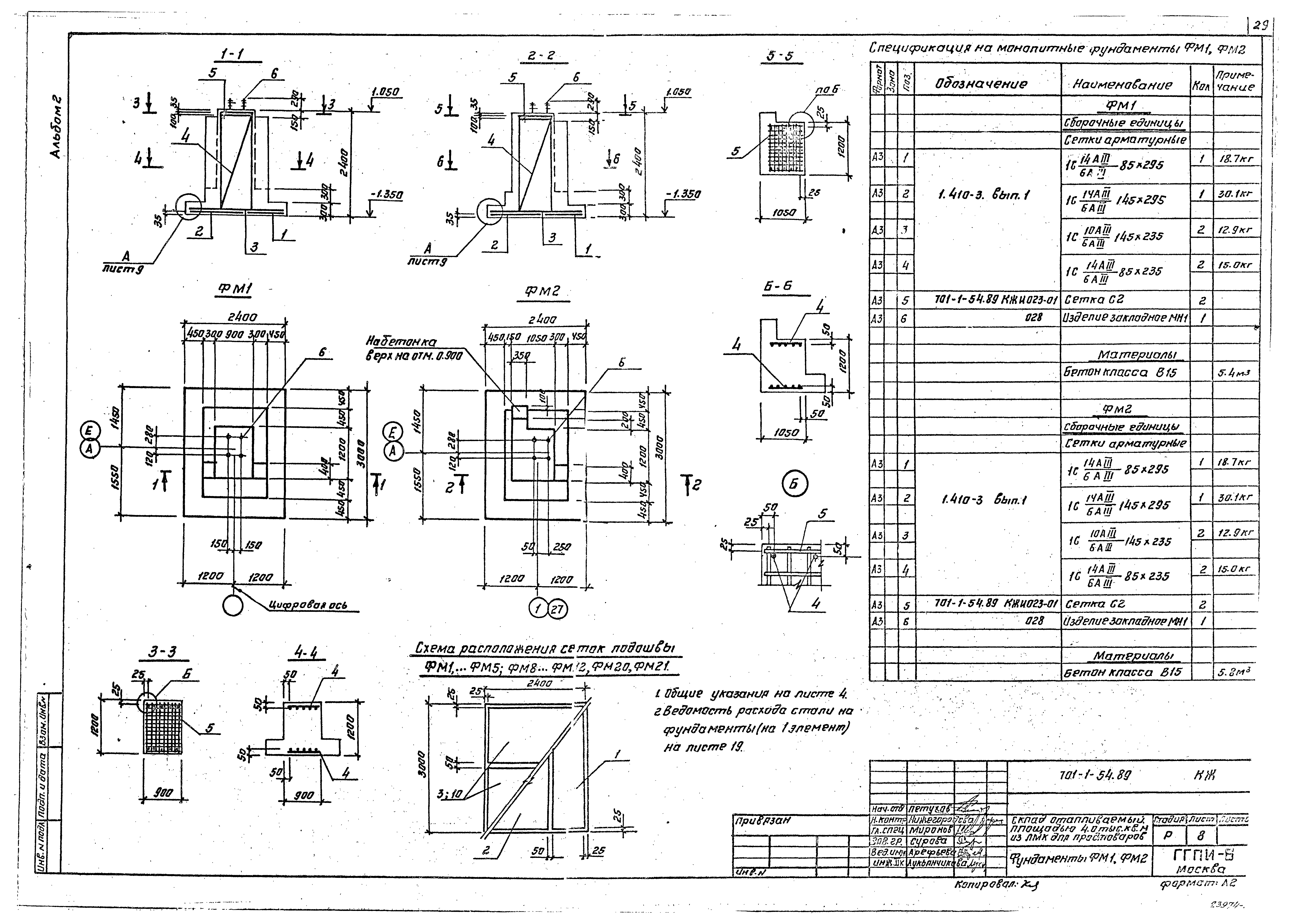
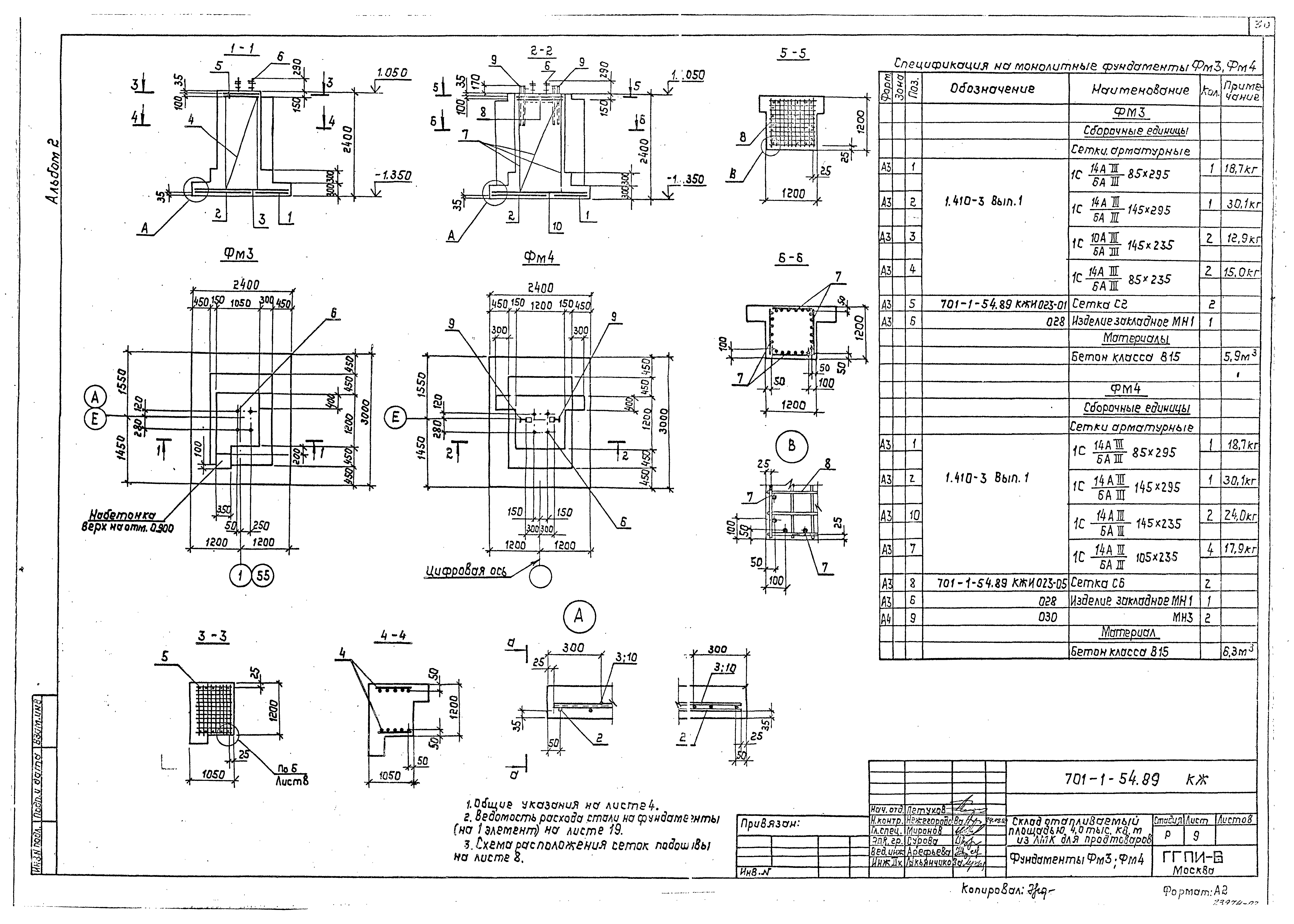
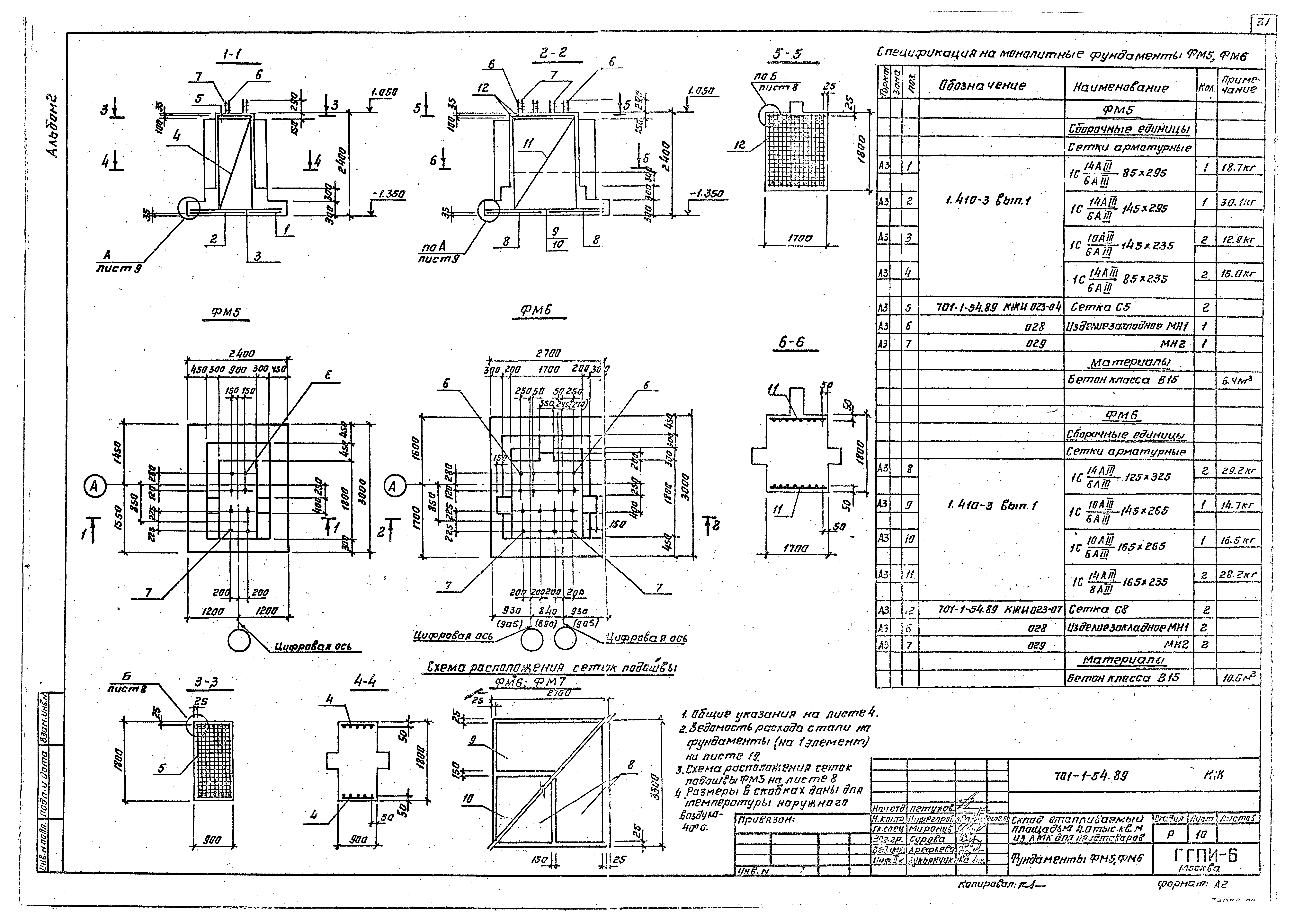
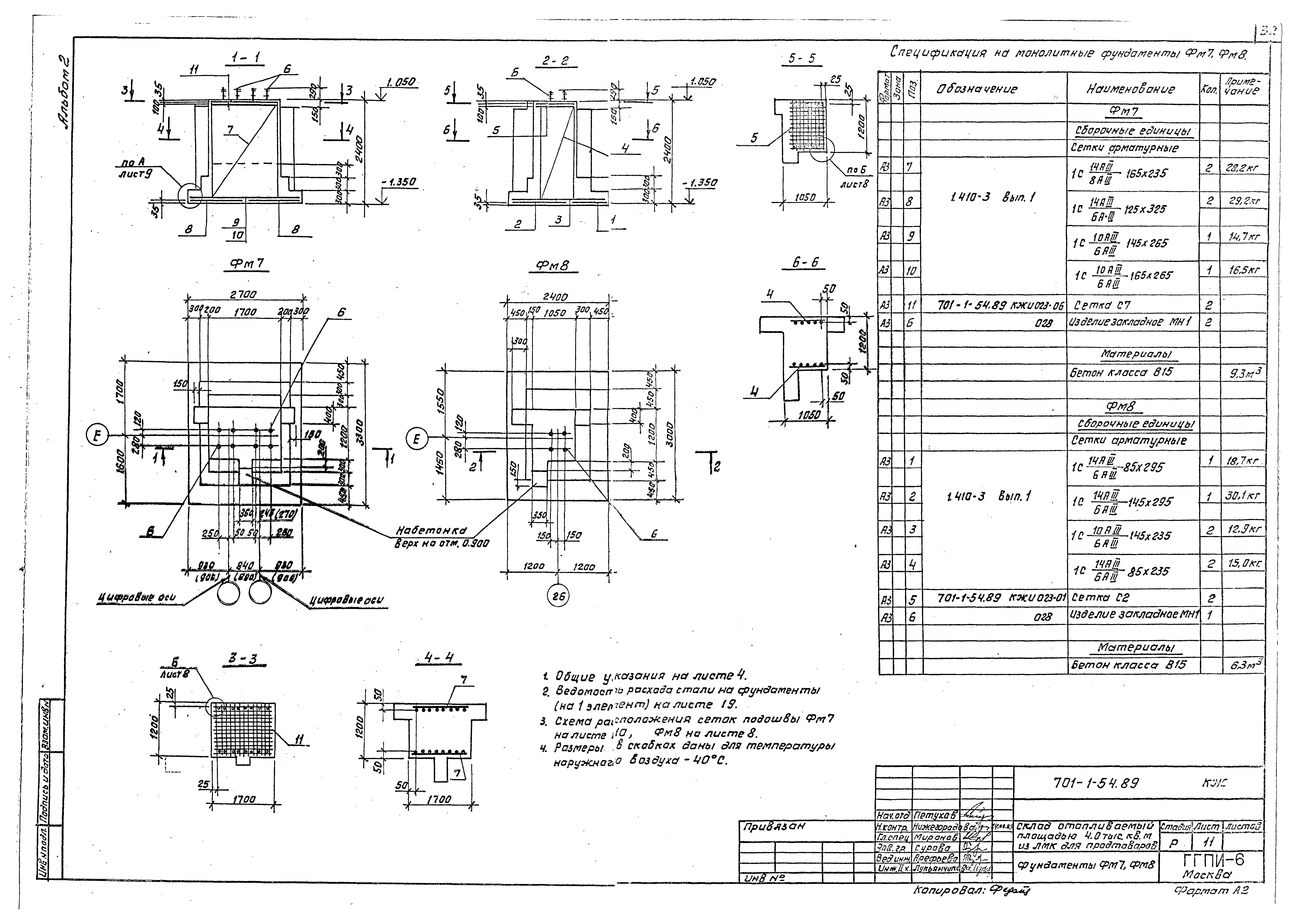
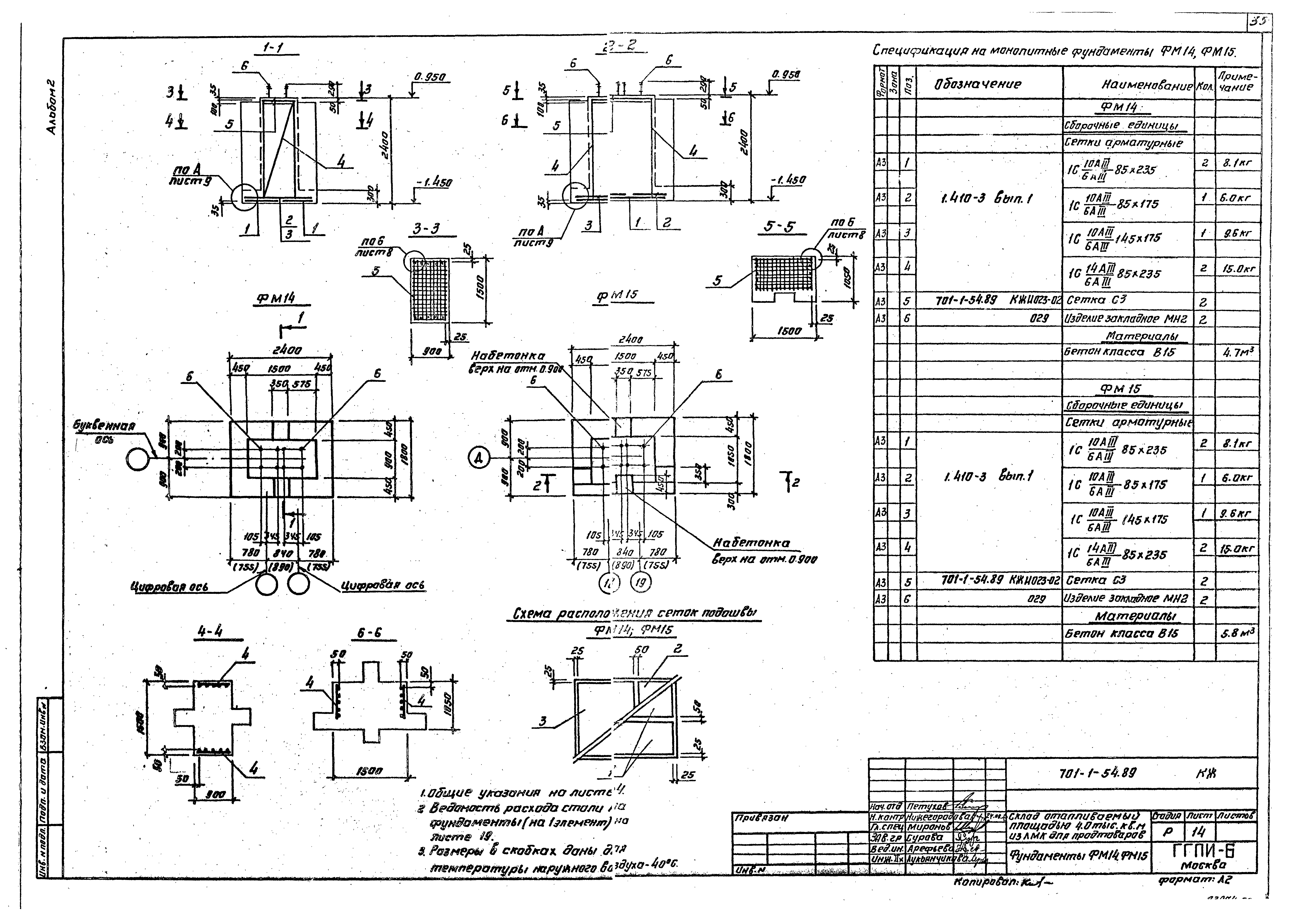
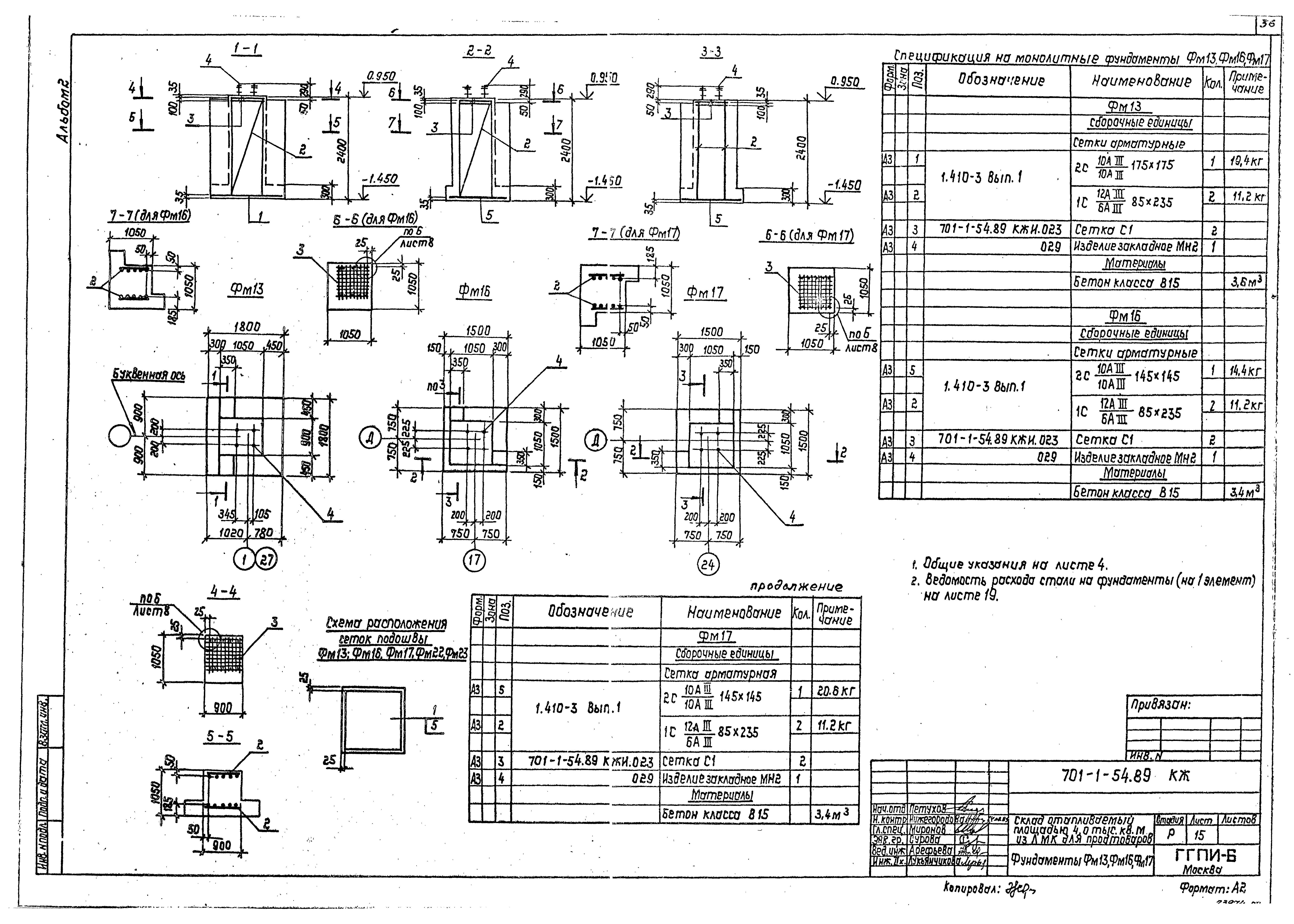
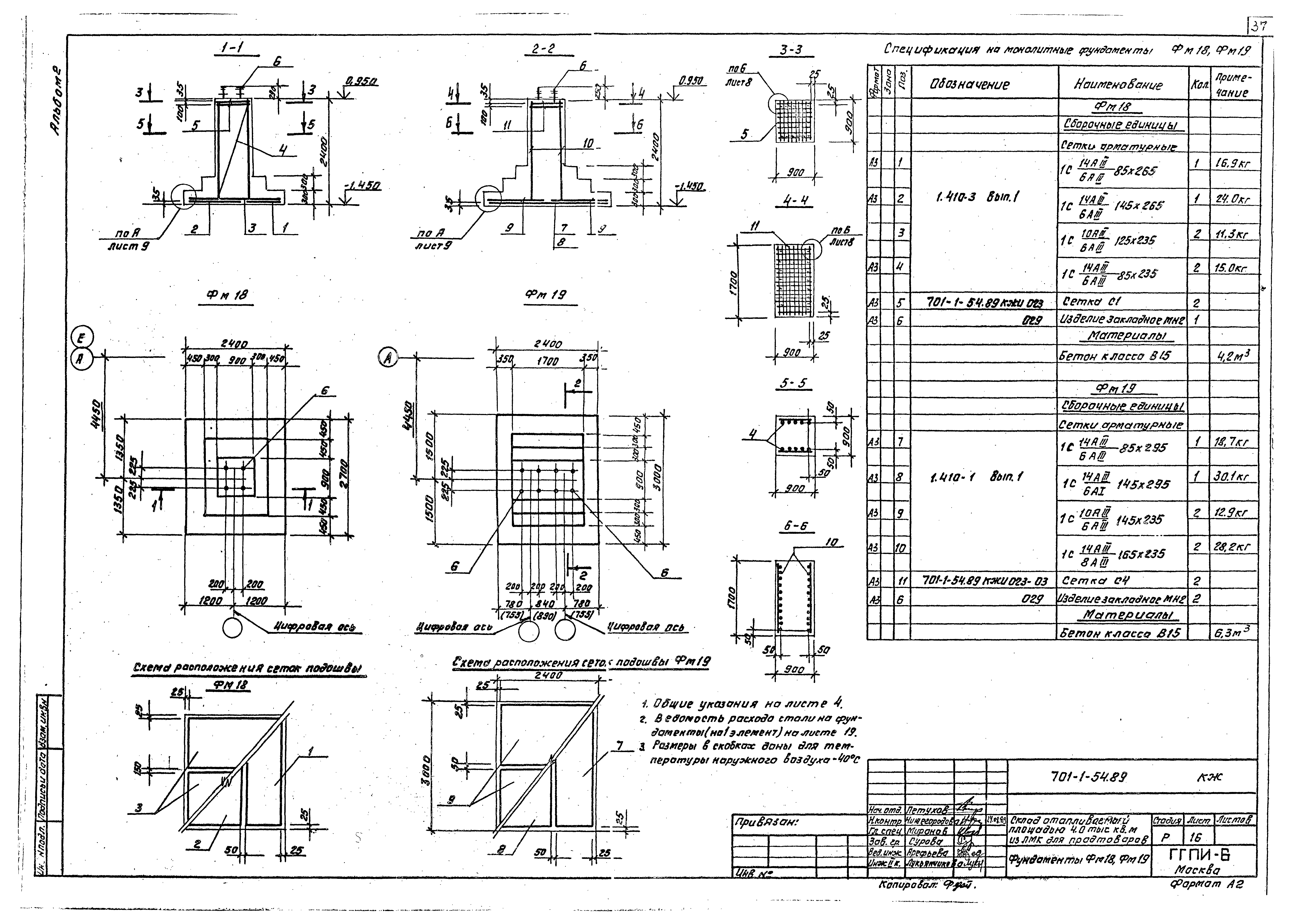
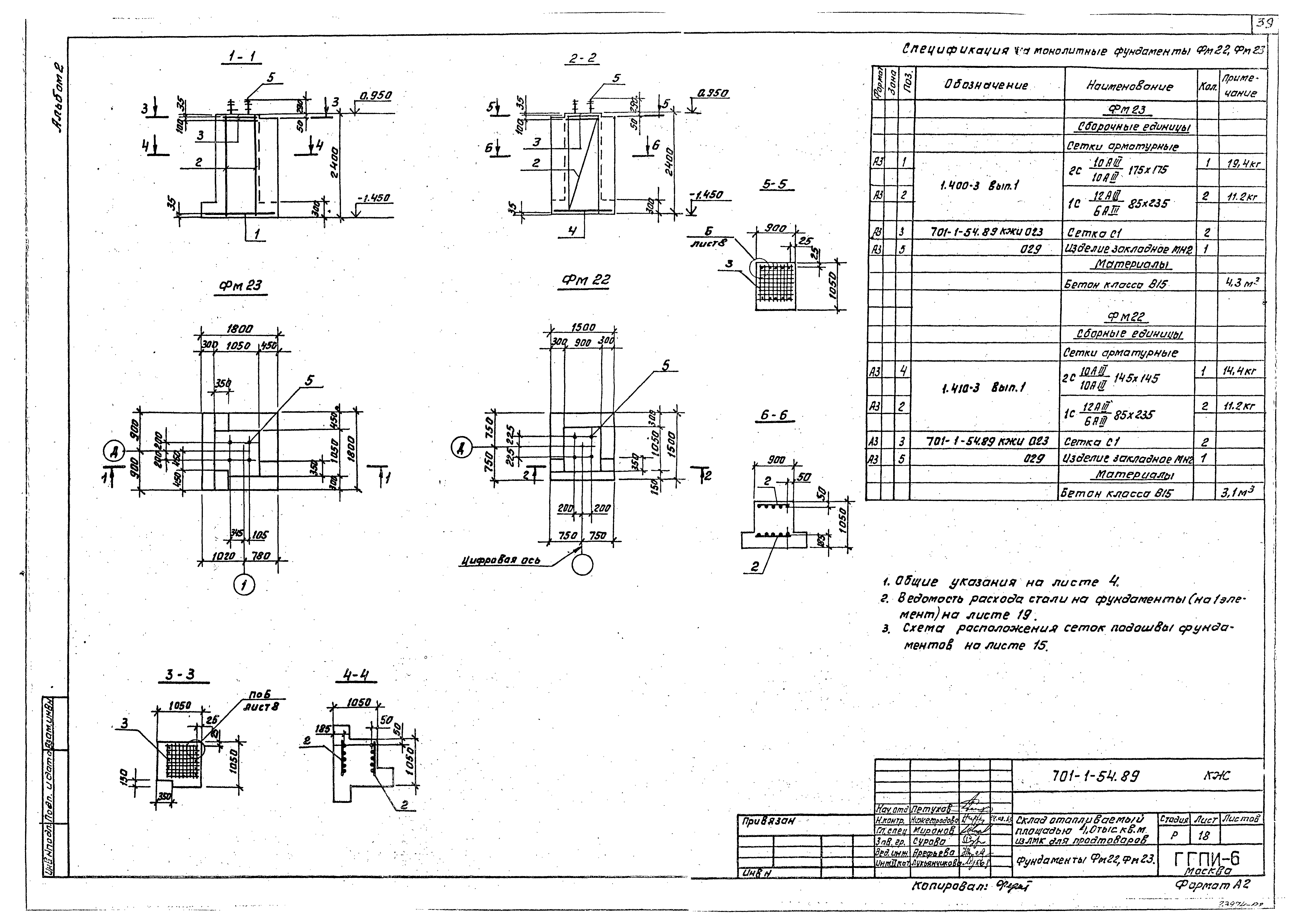
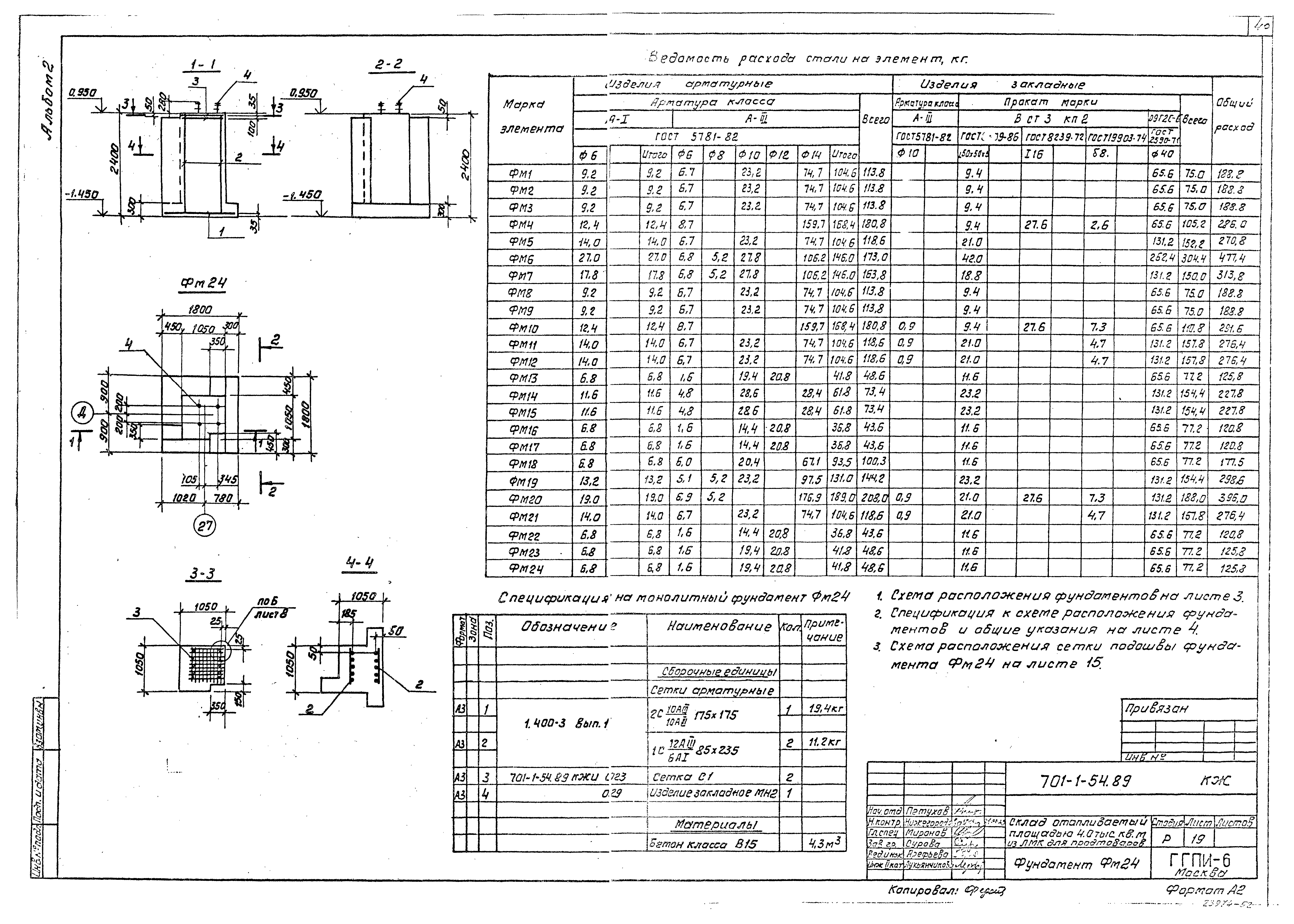
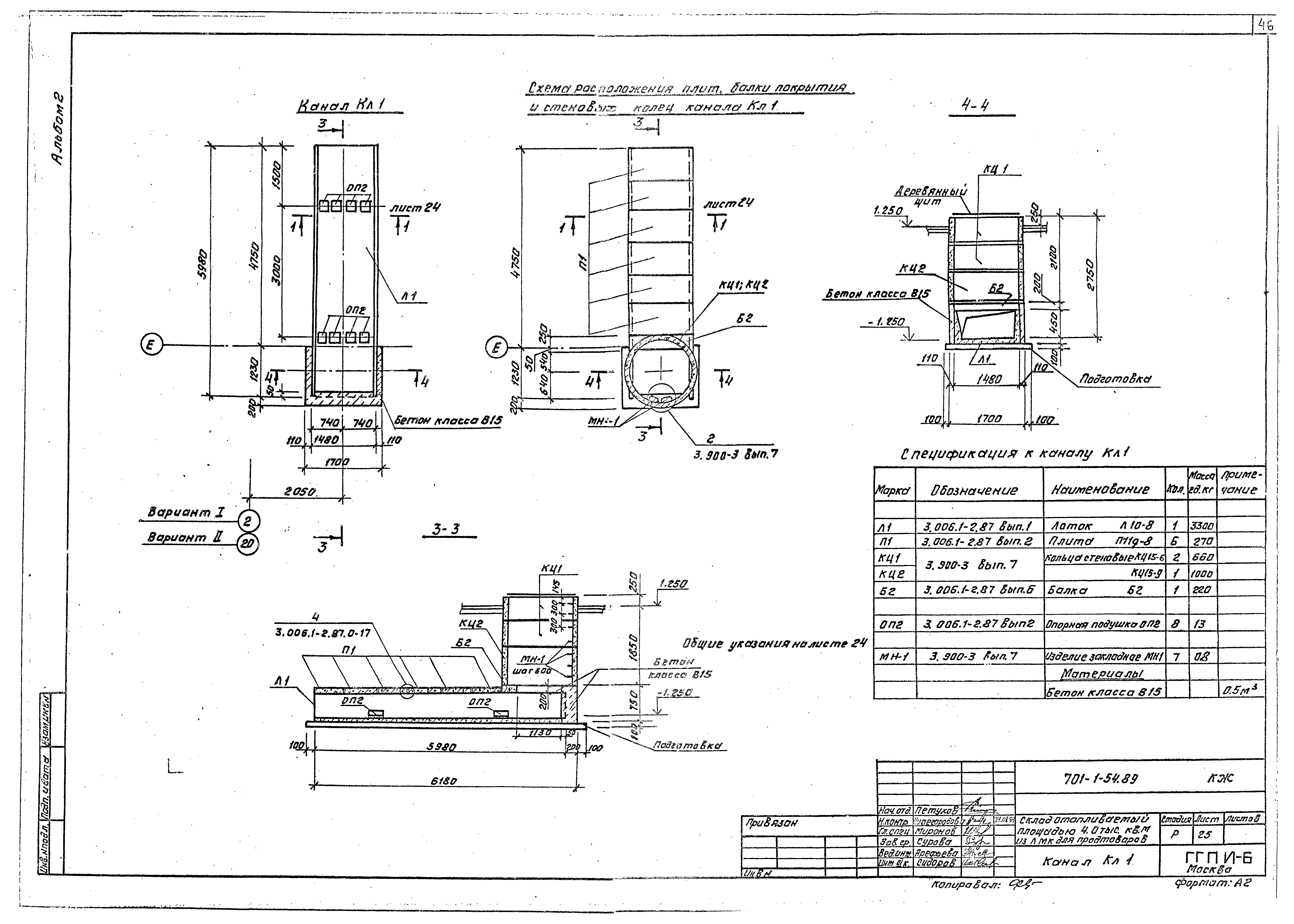
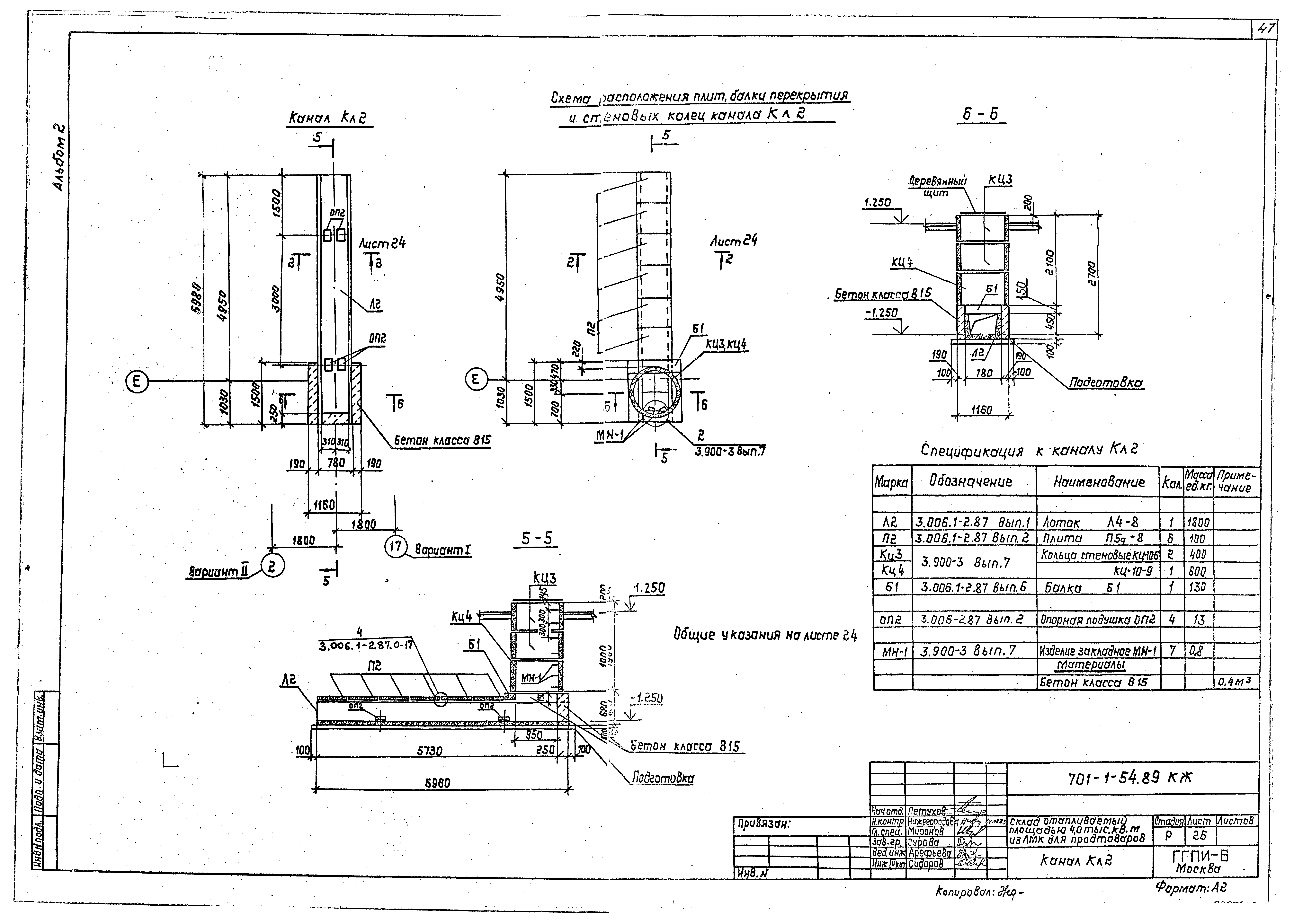
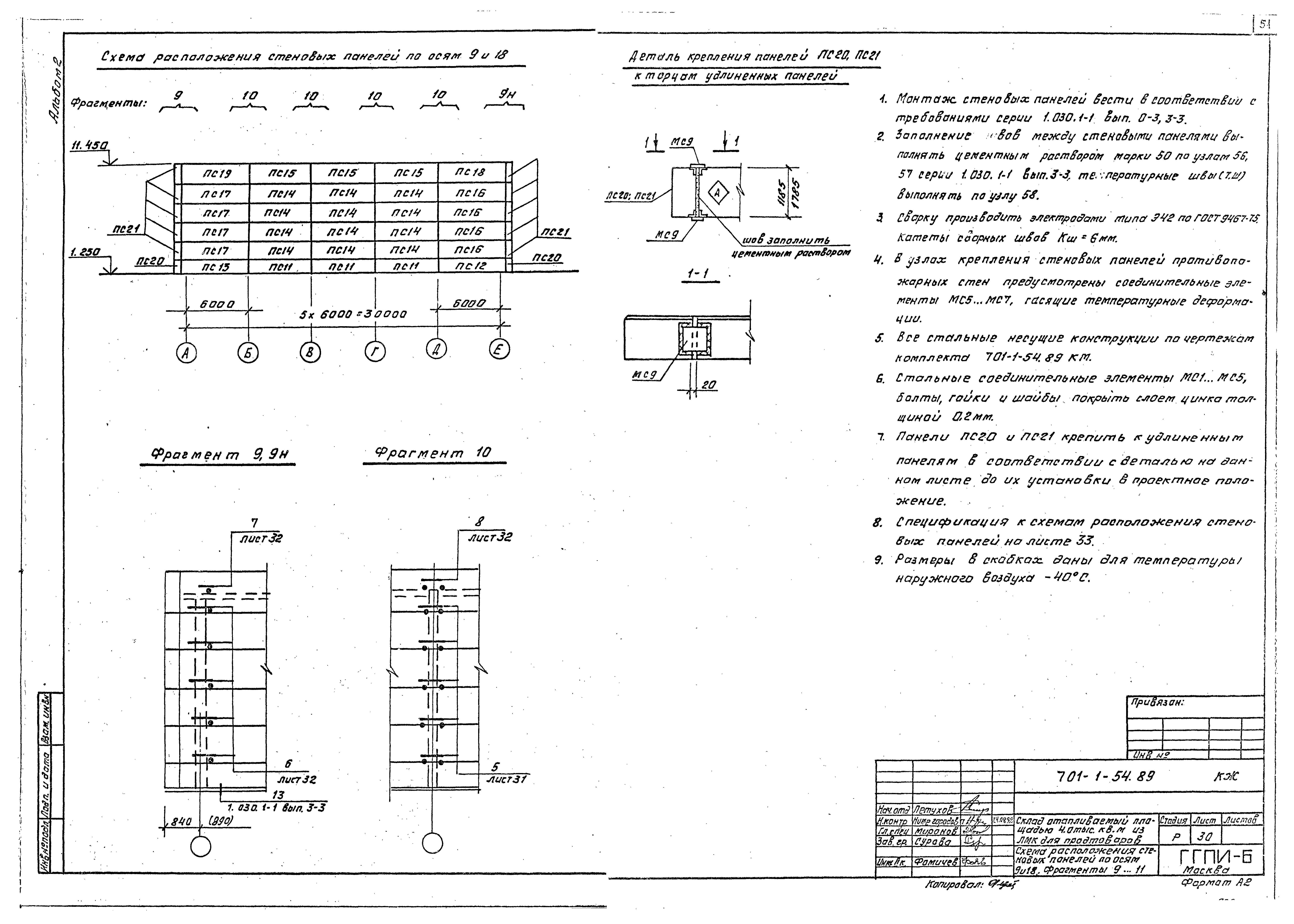
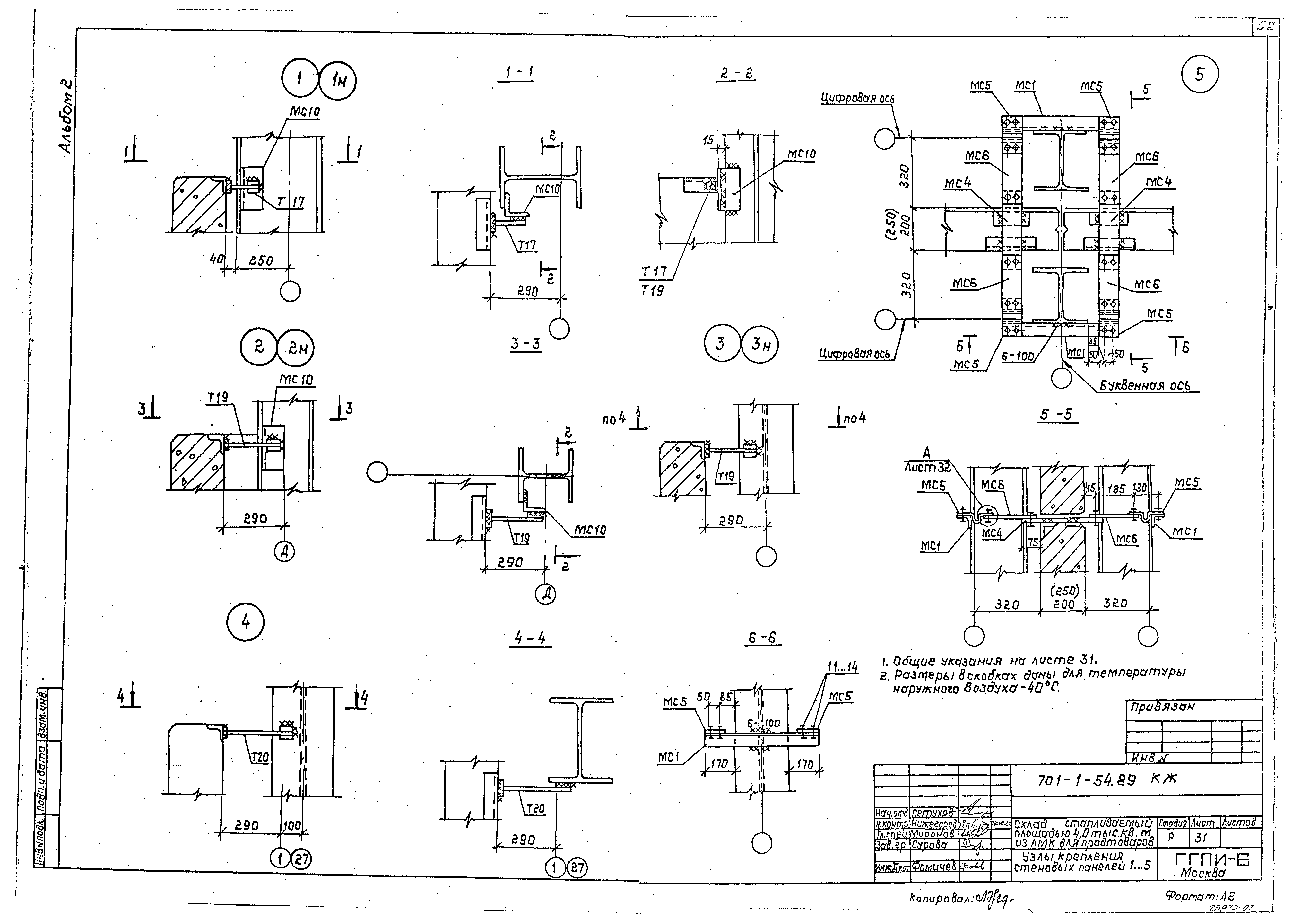
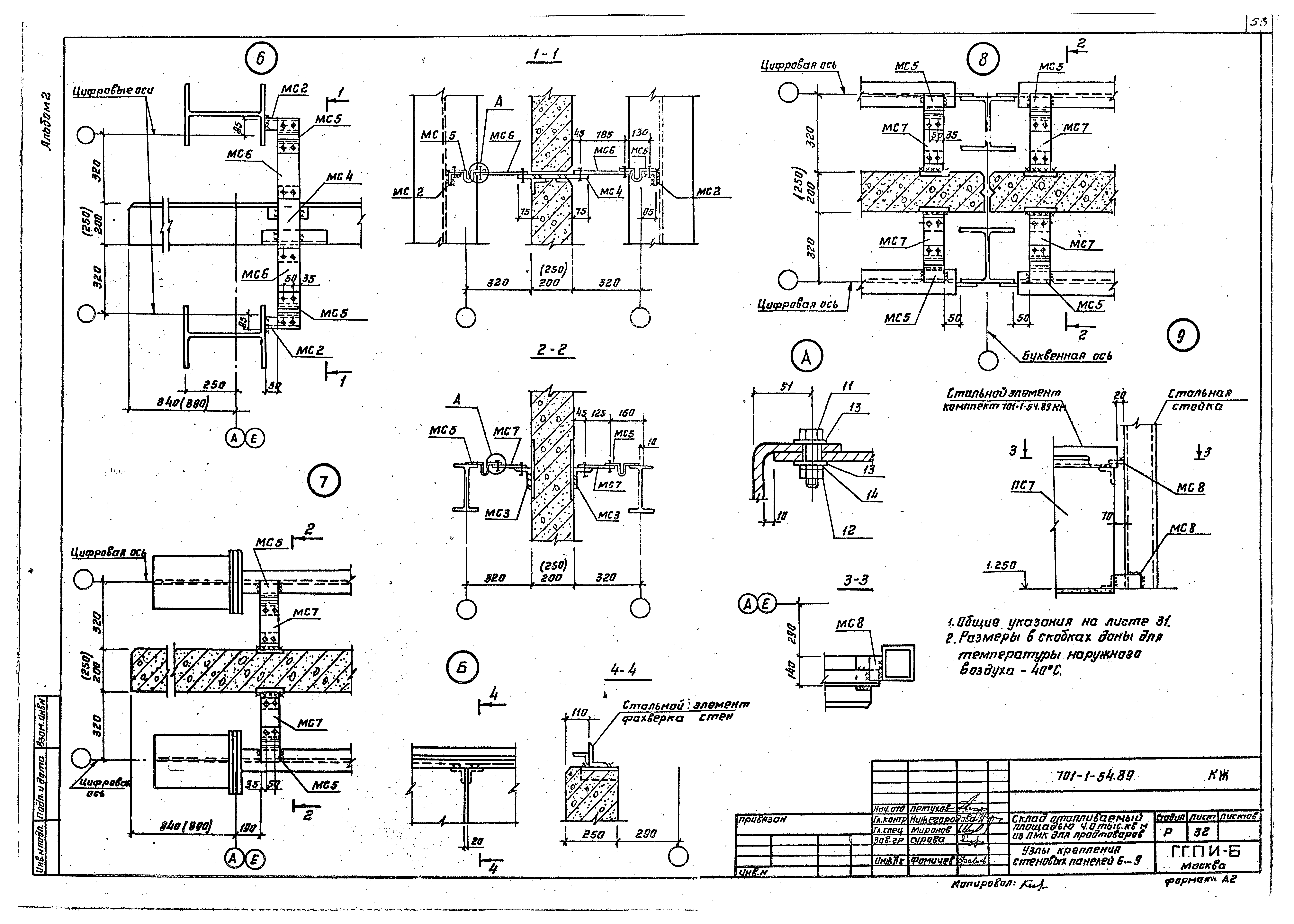
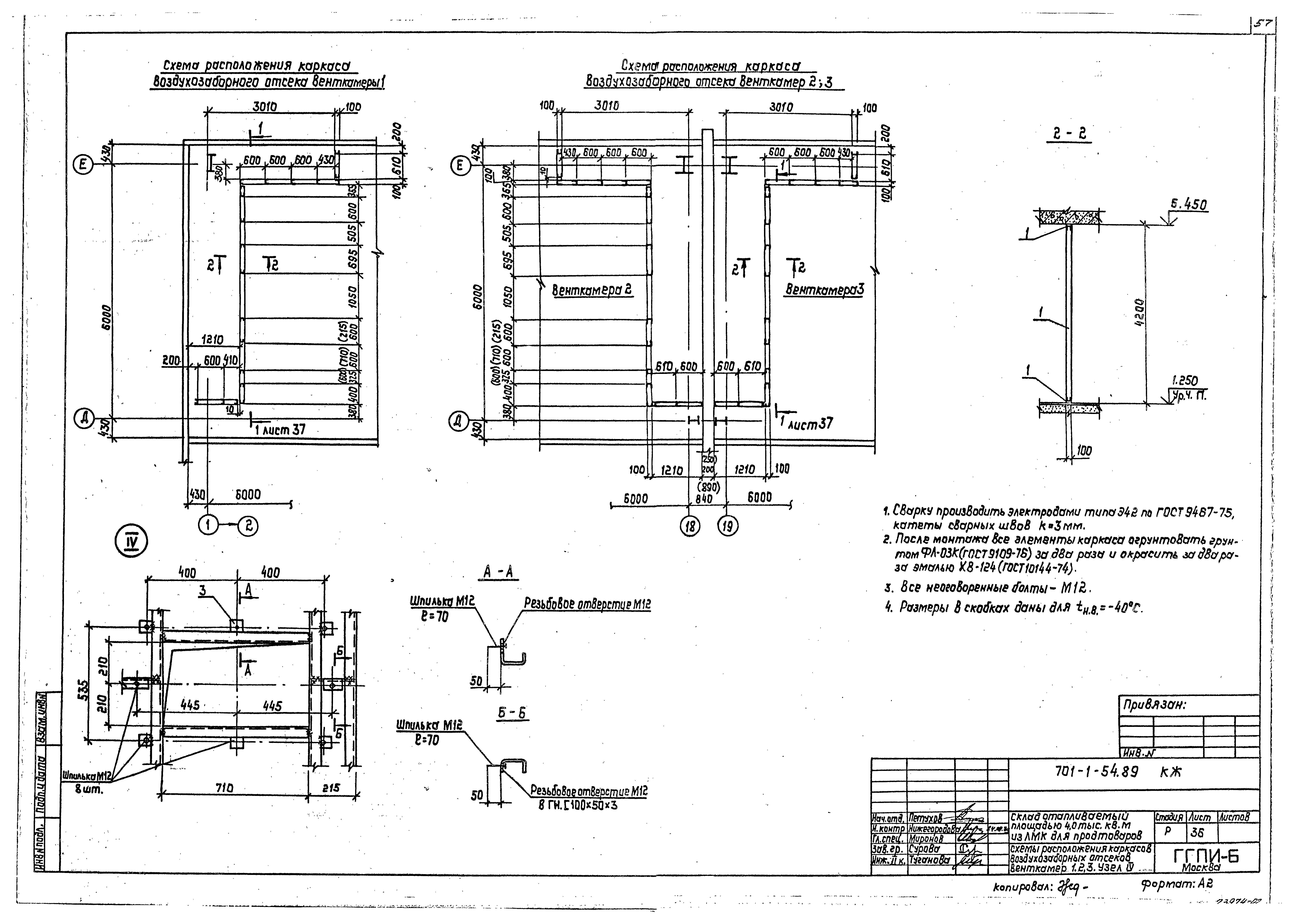
| Оглавление: | Содержание альбома 2 Архитектурные решения АР Общие данные План на отм. 1.250 Разрезы 1-1, 2-2, 3-3. Фрагменты 1, 2 Фасады 1 - 27, 27- 1, А - Е, Е - А. Схемы заполнения оконных проемов Фрагменты 3, 4 Фрагмент 5. Монтажные схемы внутренних стеновых панелей на фрагмент 5 Венткамеры 1, 2, 3 для tн = - 30 градусов Цельсия Воздухозаборные отсеки венткамер 1, 2, 3 для tн = - 40 градусов Цельсия. Узлы 1, 2 Схема каркасных перегородок из цементно-стружечных плит для tн = - 30; - 40 градусов Цельсия Монтажные схемы внутренних стеновых панелей на венткамеры 1, 2, 3. Узлы 3, 4 Узлы 5…9 Монтажные схемы наружных стеновых панелей по осям "А", "1" Монтажные схемы наружных стеновых панелей по осям "Е", "27" Узлы 10…13 Узлы 14…21 Спецификация на монтажные схемы наружных стеновых панелей для tн = - 30 (tн = - 40) градусов Цельсия Узлы 22…29 План кровли. План полов Конструкции железобетонные КЖ Общие данные Схема расположения фундаментов и фундаментных балок Узел I Узлы II…V Узлы VI…IX Узлы X…XII Фундаменты Фм1, Фм2 Фундаменты Фм3, Фм4 Фундаменты Фм5, Фм6 Фундаменты Фм7, Фм8 Фундаменты Фм9, Фм10 Фундаменты Фм11, Фм12 Фундаменты Фм14, Фм15 Фундаменты Фм13, Фм16, Фм17 Фундаменты Фм18, Фм19 Фундаменты Фм20, Фм21 Фундаменты Фм22, Фм23 Фундамент Фм24 Схема расположения элементов подпорных стен Фрагмент 1 Фрагменты 2, 3 Фрагменты 4, 5 Схемы расположения каналов (вариант I и II) Канал Кл1 Канал Кл2 Схемы расположения стеновых панелей цоколя по осям А и 1. Фрагменты 1…4, 8 Схемы расположения стеновых панелей цоколя по осям Е и 27. Фрагменты 5, 6, 7 Схемы расположения стеновых панелей цоколя по осям Д, 3, 16, 21, 26 Схема расположения стеновых панелей цоколя по осям 9 и 18. Фрагменты 9…11 Узлы крепления стеновых панелей 1…5 Узлы крепления стеновых панелей 6…9 Спецификация к схемам расположения стеновых панелей (к листам 27…32) Монолитное перекрытие Пм2 Монолитное перекрытие Пм1, Пм3 Схемы расположения каркасов воздухозаборных отсеков венткамер 1, 2, 3. Узел IV Разрез 1-1 для tн = - 30; для tн = - 40 градусов Цельсия. Узлы I, II, III |
| Разработан: | ГПИ Спецавтоматика Минприбора ЦНИИпроектстальконструкция Госстроя ГГПИ-6 Минсевзапстроя СССР |
| Утверждён: | 14.12.1989 Госкомрезерва СССР (164) |
| Издан: | ЦИТП Госстроя СССР (CITP, Gosstroy (USSR) 1990 г. ) |

























































