Скачать Типовой проект 144-16-145.91 Альбом I. Архитектурно-строительные решения. Отопление и вентиляция. Водопровод и канализация. Электрооборудование. Связь и сигнализация. ГазоснабжениеДата актуализации: 01.01.2021
|
| Обозначение: | Типовой проект 144-16-145.91 |
| Обозначение англ: | 144-16-145.91 |
| Статус: | не определен законодательством |
| Название рус.: | Альбом I. Архитектурно-строительные решения. Отопление и вентиляция. Водопровод и канализация. Электрооборудование. Связь и сигнализация. Газоснабжение |
| Дата добавления в базу: | 01.09.2013 |
| Дата актуализации: | 01.01.2021 |
| Дата введения: | 25.04.1991 |
| Дата окончания срока действия: | 30.06.2003 |
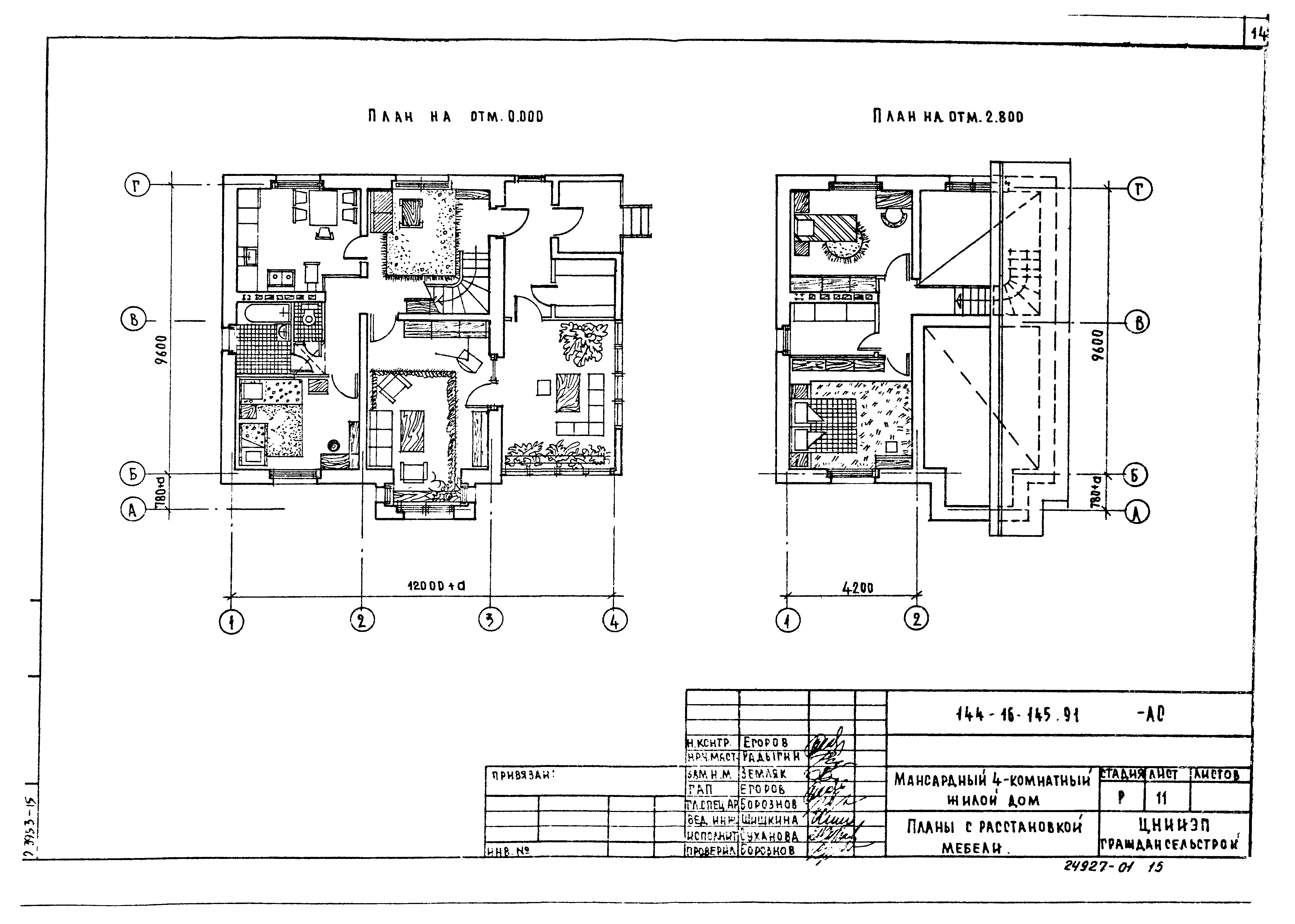
| Оглавление: | Содержание альбома Архитектурно-строительные чертежи Общие данные Фасады Фасады (вариант) Планы на отм. 0.000; 2.800. Фрагмент плана (вариант с люфт-клозетом) Кладочные планы на отм. 0.000 и 2.800. Фрагмент планы при варианте с люфт-клозетом Планы с расстановкой мебели Интерьер гостиной Разрезы I-I, II-II, III-III Ведомость отделки помещений. Экспликация полов Спецификация столярных изделий Схема расположения фундаментов Развертка стены по оси 1. Схема расположения фундаментов (варианты) Схемы сечений наружных стен с порядовкой 1-1, 2-2 Схемы сечений наружных стен с порядовкой 3-3, 4-4 Схемы сечений наружных стен с порядовкой 5-5 - 7-7 Планы раскладки перемычек Ведомость перемычек наружных стен Ведомость перемычек внутренних стен. Спецификация перемычек Схема расположения элементов деревянных перекрытий на отм. 2.530; 2.840 Схема расположения элементов деревянных перекрытий на отм. 5.330 Схема расположения стеновых панелей перекрытия (вариант с железобетонными панелями) Внутриквартирная лестница Деревянные элементы внутриквартирной лестницы Деревянные стойки внутриквартирной лестницы Ограждения внутриквартирной лестницы Узлы, сечения внутриквартирной лестницы Схема расположения элементов крыши. Сечения 1-1, 3-3 Сечение 4-4. Узлы 2, 3. План кровли Узлы 4…9 Спецификация к схеме расположения элементов крыши Оконный блок индивидуальный ИОС9-6 Оконный блок индивидуальный ИОР9-6 Оконный блок индивидуальный ИОРС9-6 Окно чердачное арочное ИО-1 Окно чердачное индивидуальное ИО-2 Оконный блок веранды индивидуальный ОВ-2, ОВ-3 Развертка стены с вентканалами Выгреб (при варианте дома с люфт-клозетом) Отопление и вентиляция Общие данные План на отм. 0.000. План на отм. 0.000 (вариант с люфт-клозетом). План на отм. 2.800 Схема системы отопления. Схема вентиляции ВЕ1 План на отм. 0.000. План на отм. 2.800. План на отм. - 2.100 (вариант) Схема системы отопления. Узел управления. Схема вентиляции ВЕ1 (вариант) Водопровод и канализация Общие данные План 1 этажа. План 1 этажа (вариант) Схемы систем В1, Т3, Т4, К1 Газоснабжение Общие данные План. Схема газоснабжения Электрооборудование Общие данные План расположения осветительных сетей Связь и сигнализация Общие данные Планы на отм. 0.000; 2.800 Схема расположения устройств связи. План кровли |
| Разработан: | ЦНИИЭП граждансельстрой |
| Утверждён: | 18.09.1989 Госкомархитектура (172) |
| Издан: | АПП ЦИТП (1991 г. ) |

































































