Скачать Типовой проект 184-16-86.85 Альбом I. Архитектурно-строительные, санитарно-технические и электротехнические чертежиДата актуализации: 01.01.2021
|
| Обозначение: | Типовой проект 184-16-86.85 |
| Обозначение англ: | 184-16-86.85 |
| Статус: | не определен законодательством |
| Название рус.: | Альбом I. Архитектурно-строительные, санитарно-технические и электротехнические чертежи |
| Дата добавления в базу: | 01.09.2013 |
| Дата актуализации: | 01.01.2021 |
| Дата введения: | 10.12.1985 |
| Дата окончания срока действия: | 30.06.2003 |
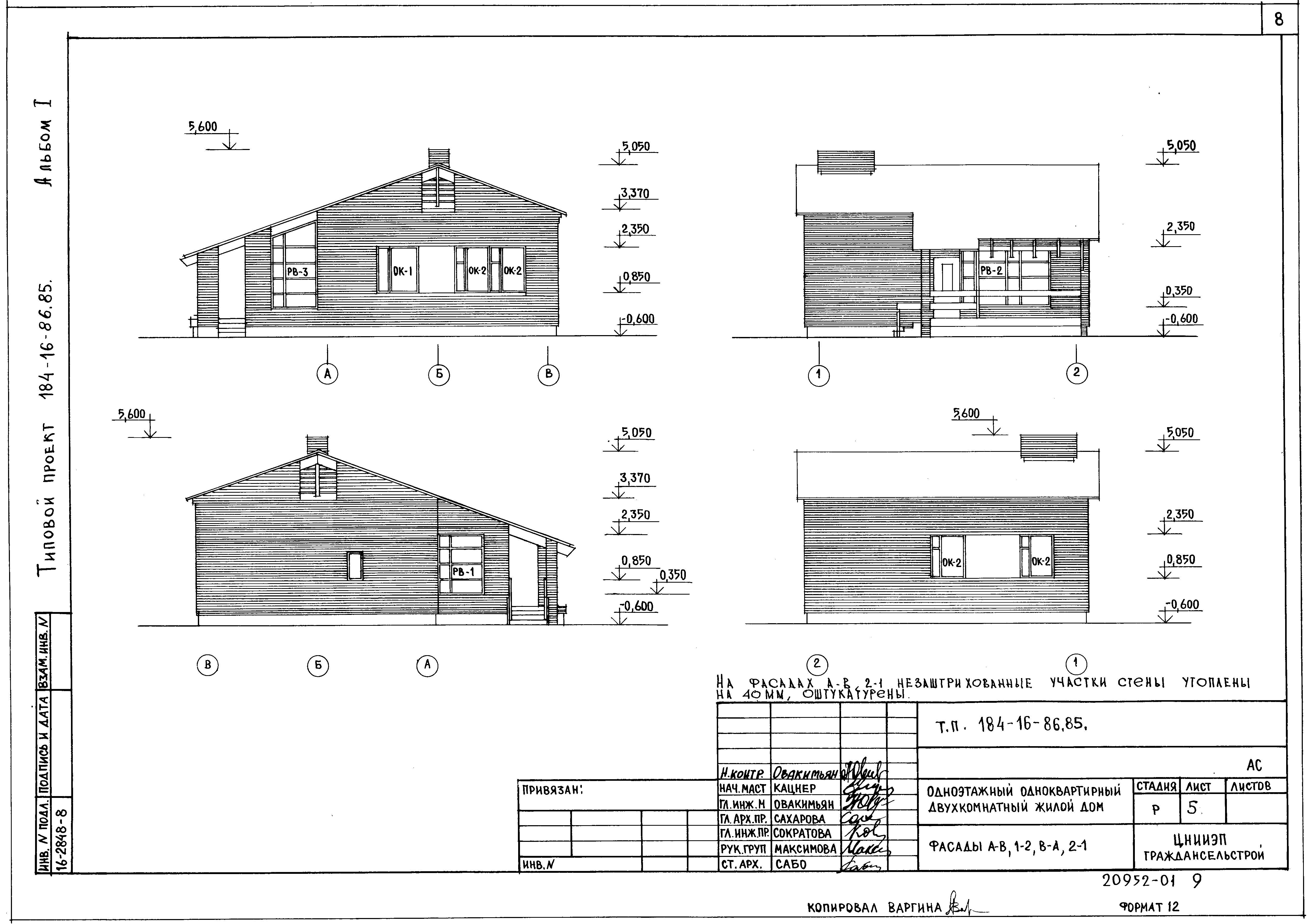
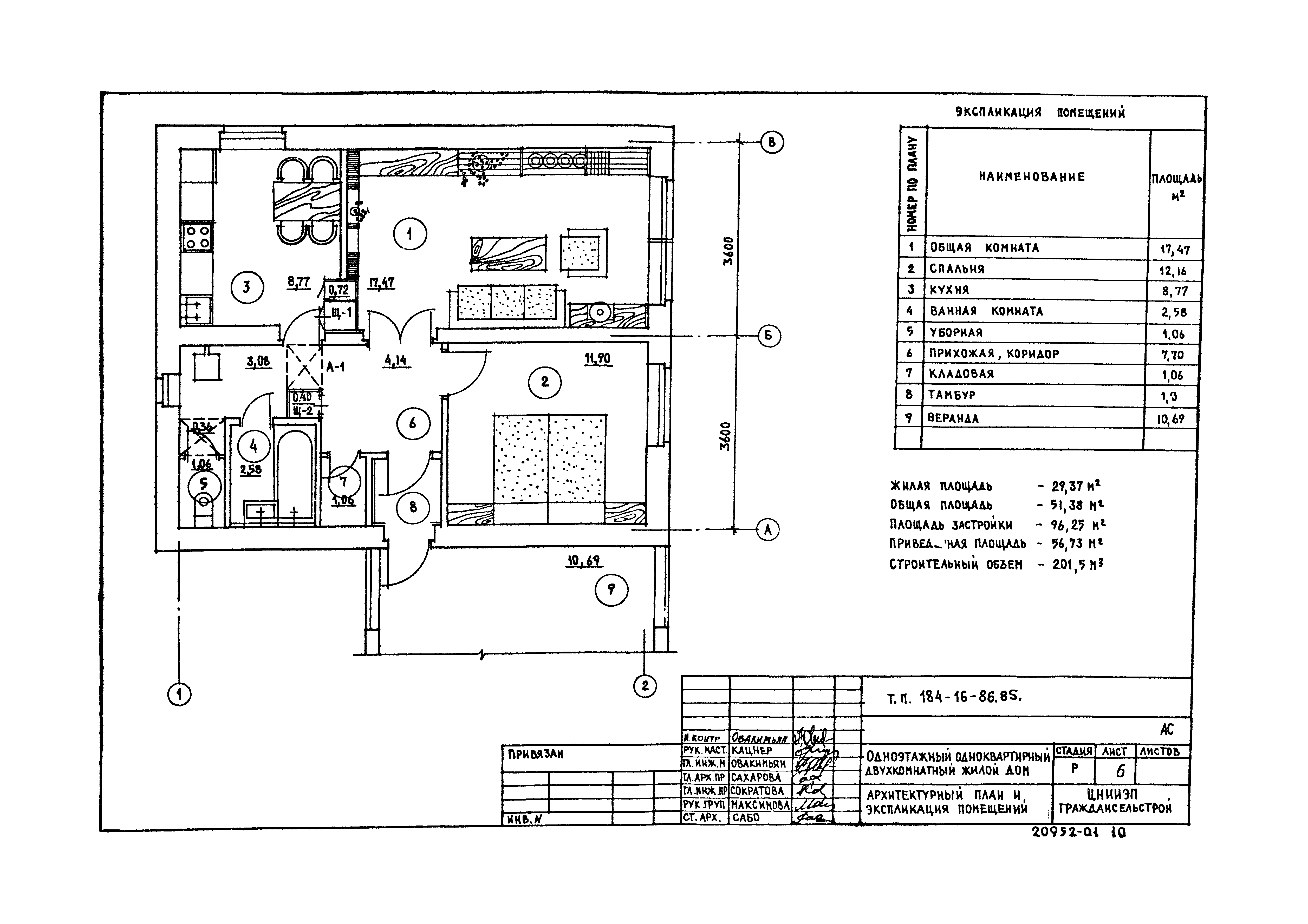
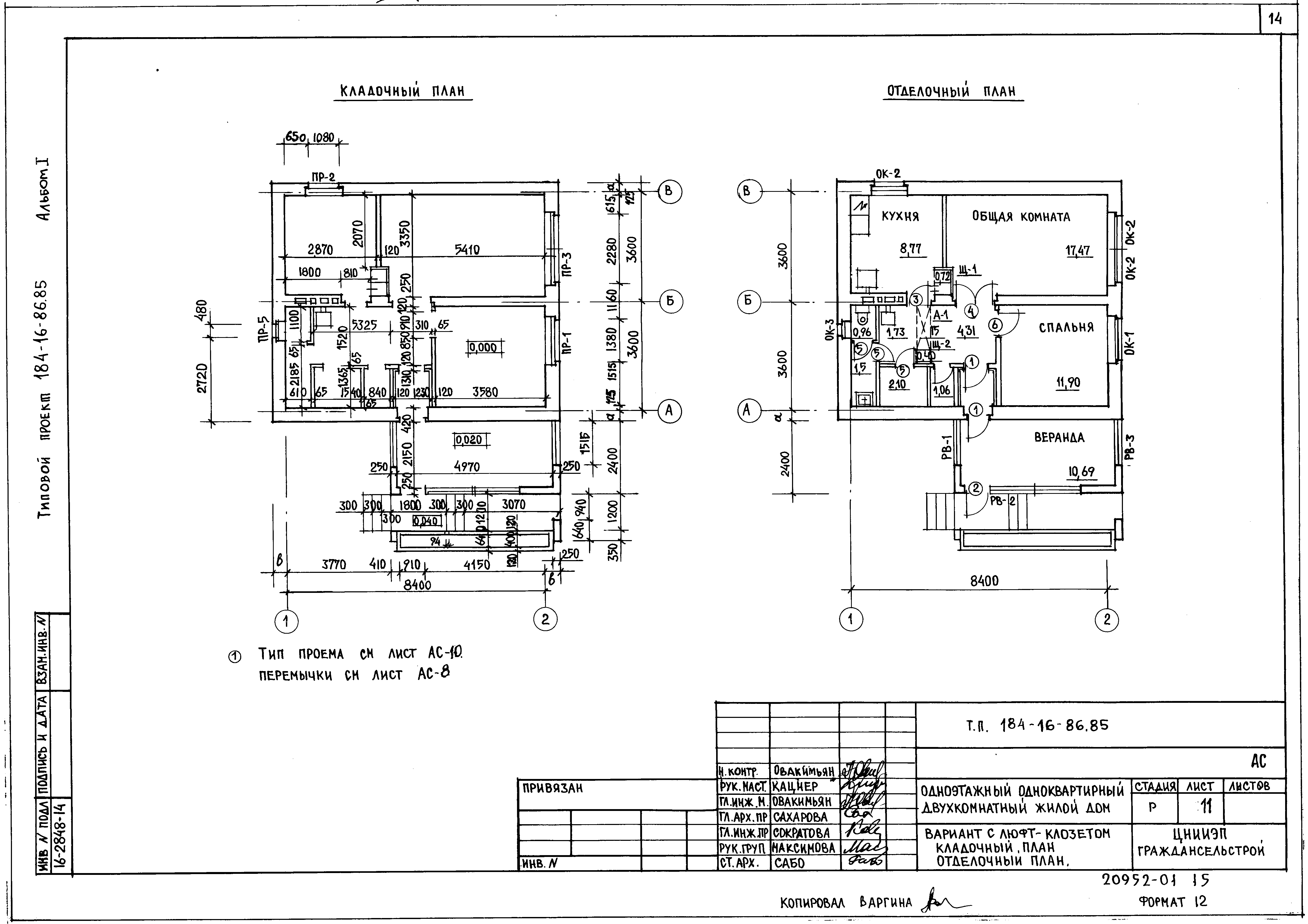
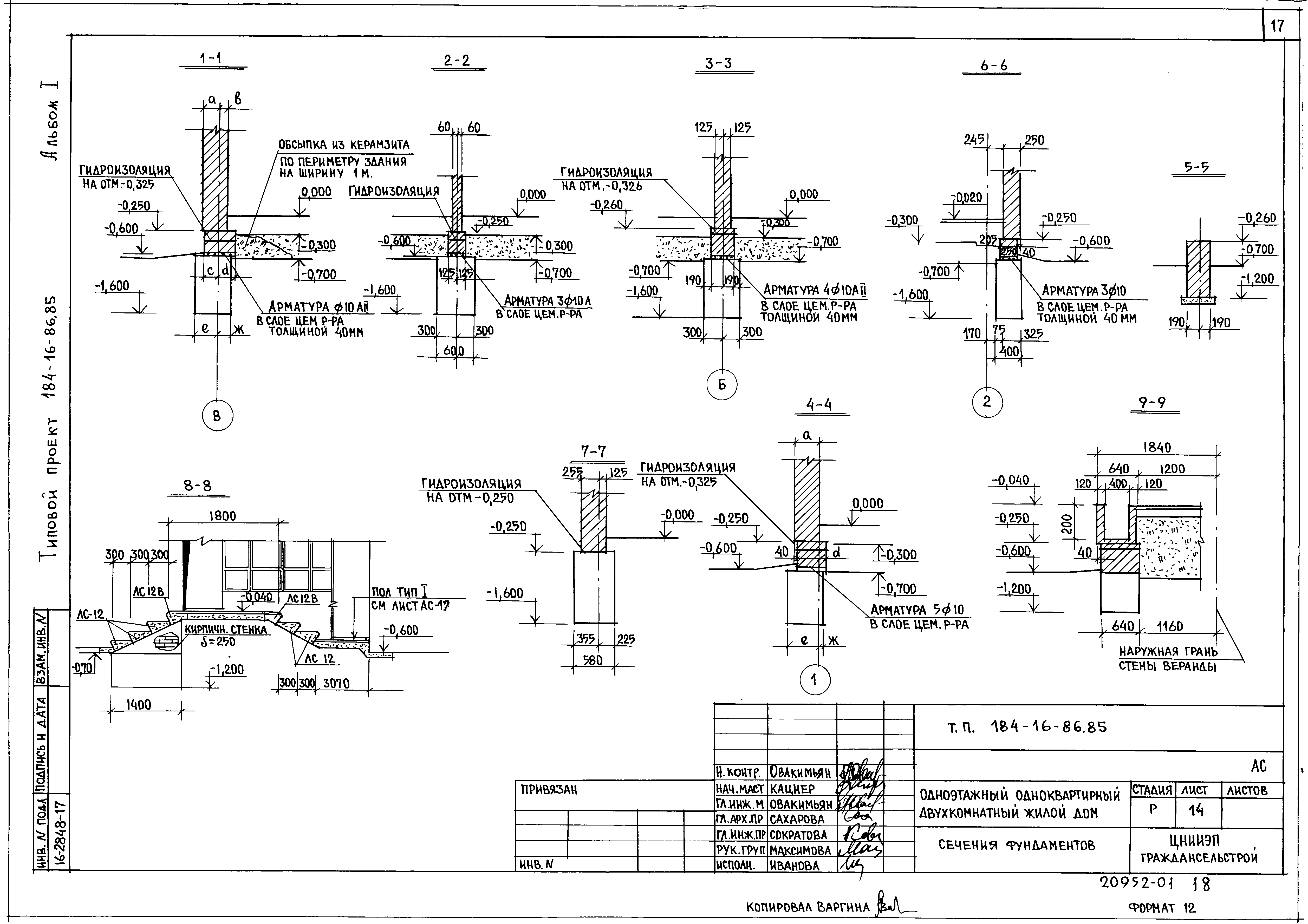
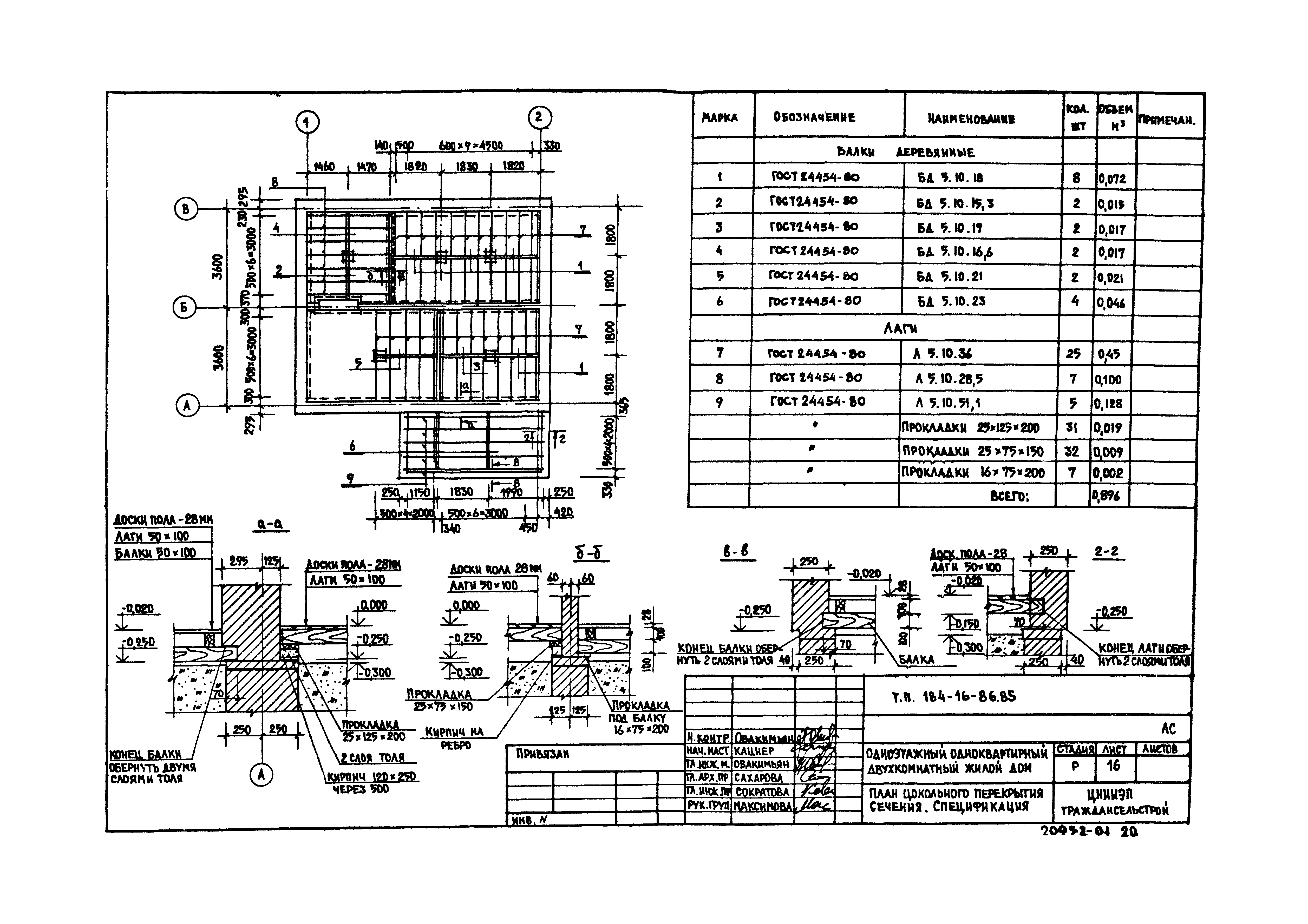
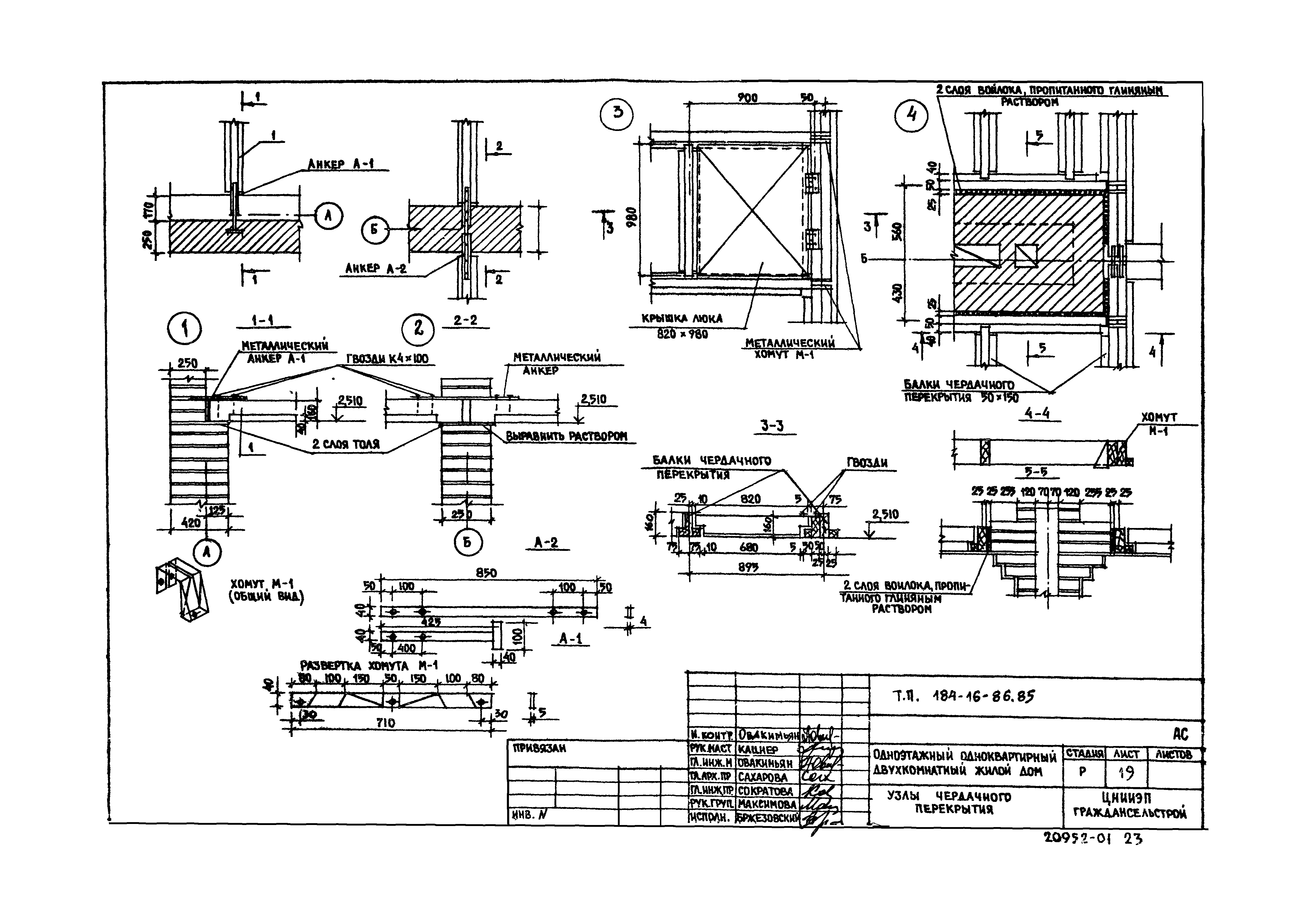
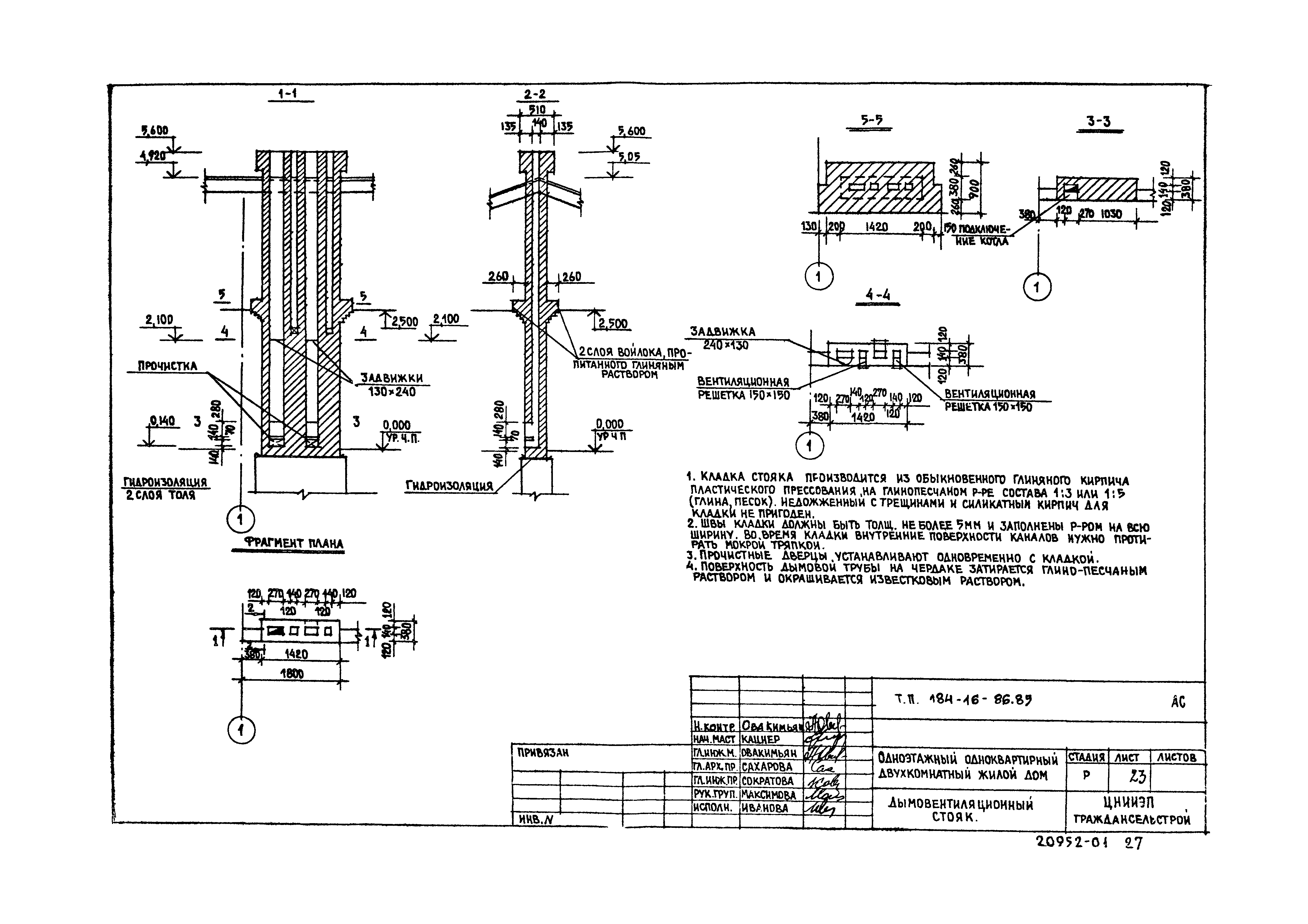
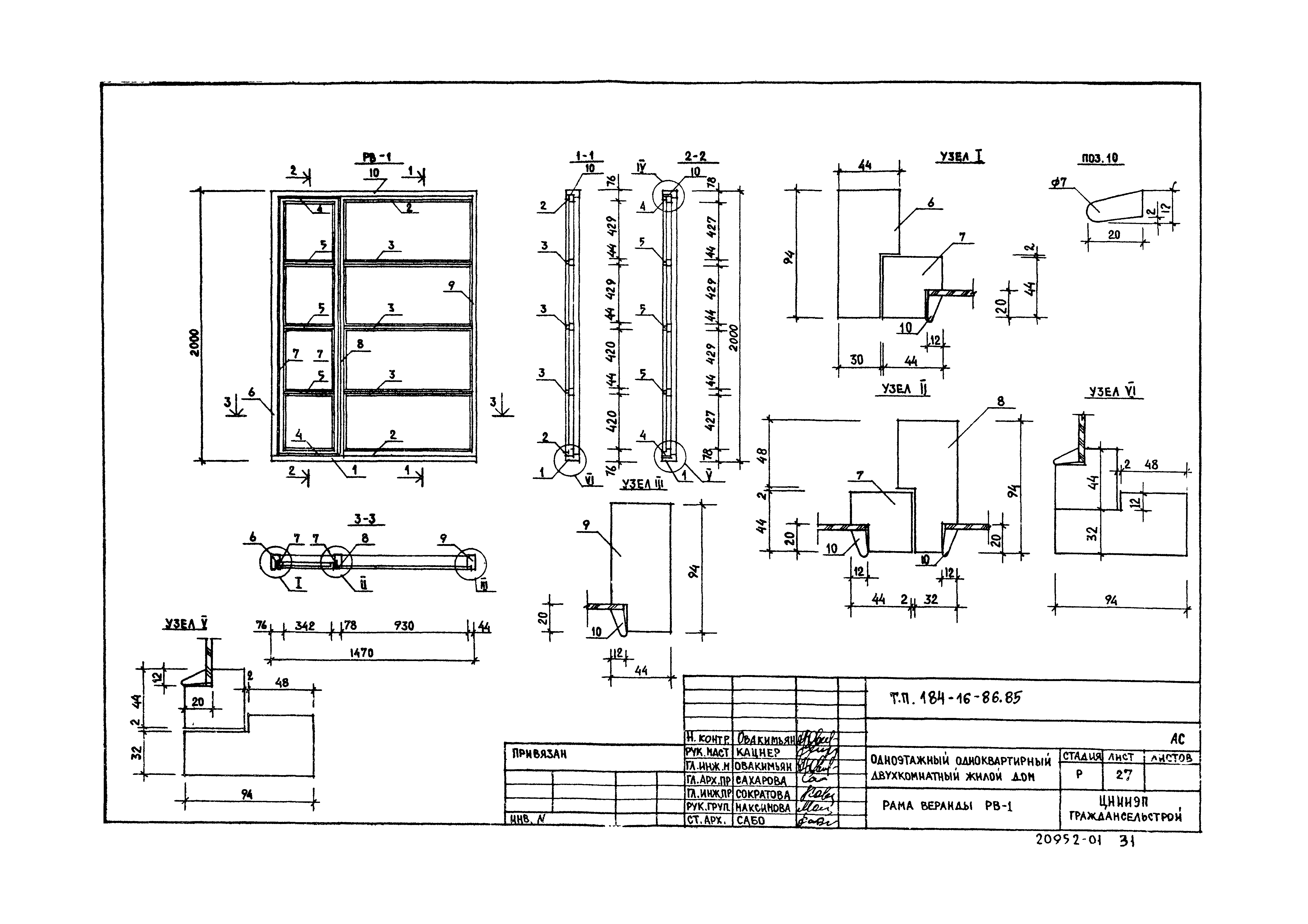
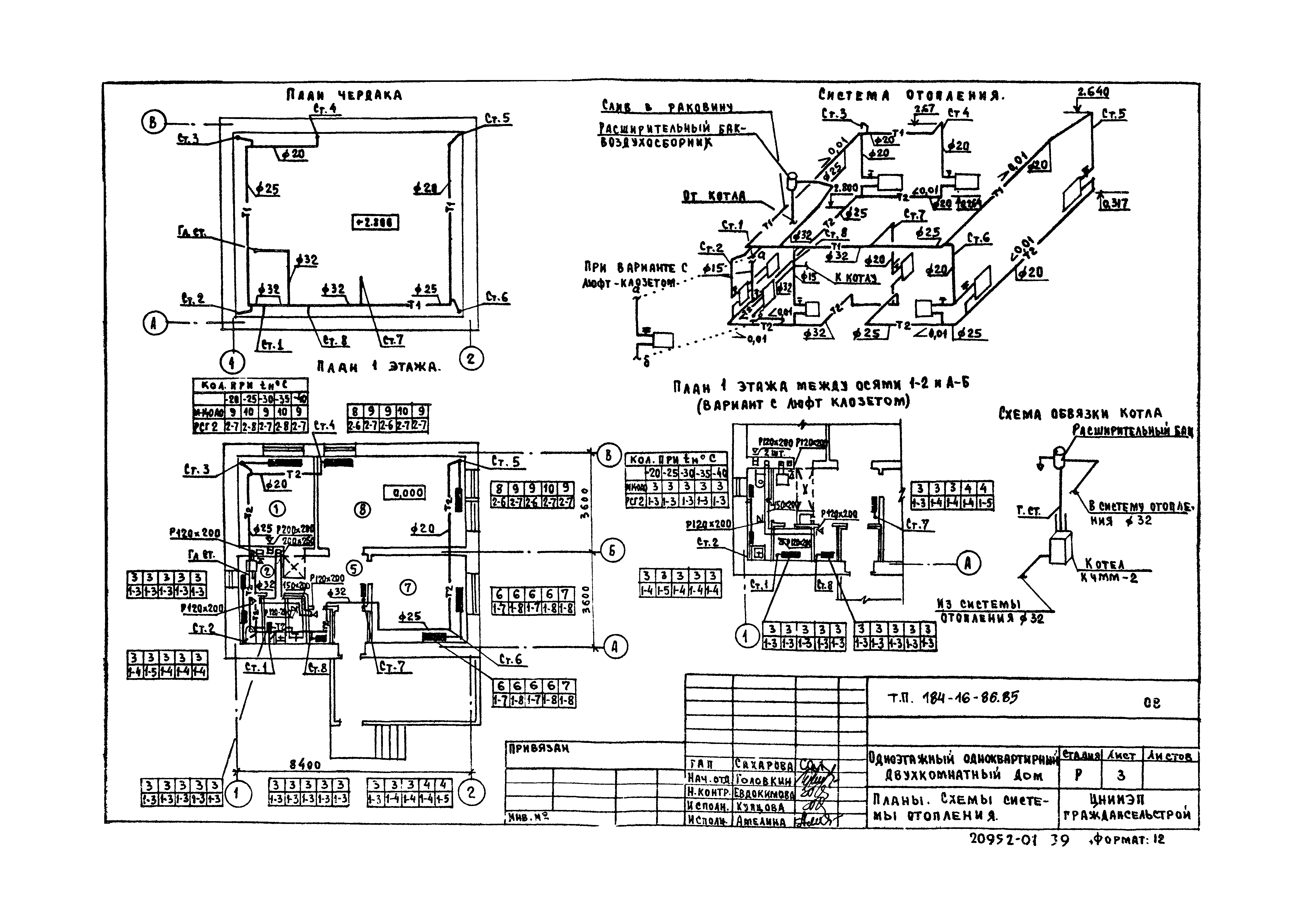
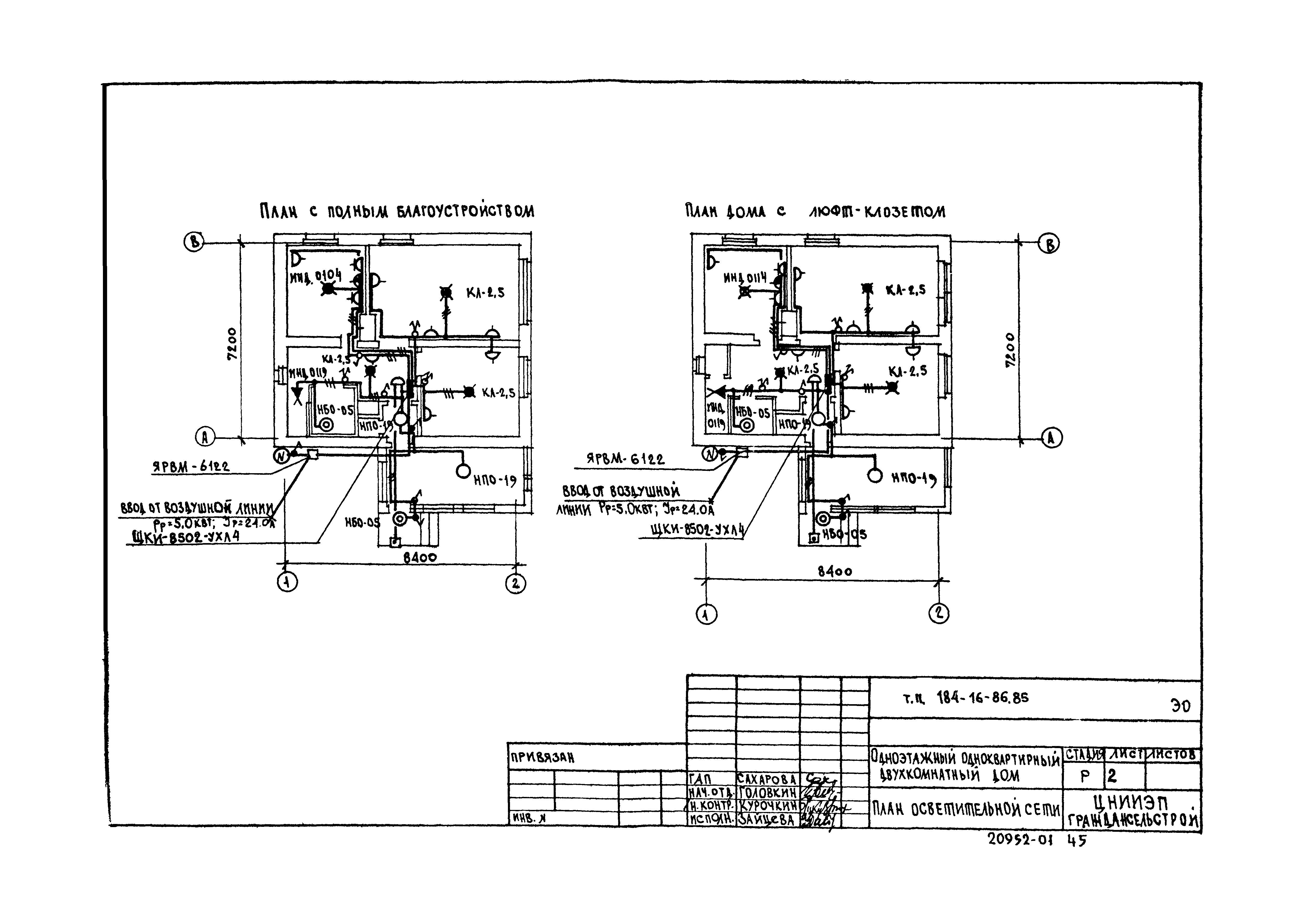
| Оглавление: | Обложка Титульный лист Содержание альбома Чертежи основного комплекта марки АС Общие данные Фасады А - В, 1 - 2, В - А, 2 - 1 Архитектурный план и экспликация помещений Кладочный план и ведомость перемычек Спецификация железобетонных перемычек Отделочный план. Ведомость отделки помещений Спецификация элементов заполнения проемов. Таблица толщин наружных стен. Ведомость проемов дверей Вариант с люфт-клозетом. Кладочный план. Отделочный план Разрезы I-I, II-II План фундаментов Сечения фундаментов Фрагмент плана фундаментов с хозяйственным подпольем План цокольного перекрытия. Сечения. Спецификация Раскладка досок пола и экспликация полов План чердачного перекрытия. Спецификация Узлы чердачного перекрытия Крыша. План стропил. Сечения 1-1, 2-2 Крыша. Узлы 1 - 4 Крыша. Узлы. Спецификация Дымовентиляционный стояк Люфт-клозет Варианты толщин наружных стен Варианты стен из легкобетонного камня. Таблица размеров Рама веранды РВ-1 Рама веранды РВ-2 Рама веранды РВ-3. Фрагмент входа. План. Фасад Ограждение крыльца Веранда. Крыльцо. Спецификация деревянных изделий Слуховое окно Чертежи основного комплекта марки ОВ Общие данные Планы. Схема системы отопления Чертежи основного комплекта марки ОВН Содержание Воздуховод из асбестоцементных листов Конструкция теплоизоляционная Чертежи основного комплекта марки ВК Общие данные План 1 этажа. Схемы систем В1, Т3, К1 Чертежи основного комплекта марки ЭО Общие данные План осветительной сети Чертежи основного комплекта марки СС Общие данные Фрагмент плана этажа. Схема расположения устройств связи Чертежи основного комплекта марки ГС Общие данные. План этажа. Схема газопровода |
| Разработан: | ЦНИИЭП граждансельстрой |
| Утверждён: | 17.06.1983 Госгражданстрой (Gosgrazhdanstroy 190) |
















































