Скачать Типовой проект 416-5-28.84 Альбом I. Общая пояснительная записка. Архитектурные решения. Конструкции железобетонные. Конструкции металлические. Строительные изделия. Отопление и вентиляция. Внутренние водопровод и канализация. Электрическое освещение. Связь и сигнализация. Организация строительстваДата актуализации: 01.01.2021
|
| Обозначение: | Типовой проект 416-5-28.84 |
| Обозначение англ: | 416-5-28.84 |
| Статус: | действует |
| Название рус.: | Альбом I. Общая пояснительная записка. Архитектурные решения. Конструкции железобетонные. Конструкции металлические. Строительные изделия. Отопление и вентиляция. Внутренние водопровод и канализация. Электрическое освещение. Связь и сигнализация. Организация строительства |
| Дата добавления в базу: | 01.09.2013 |
| Дата актуализации: | 01.01.2021 |
| Дата введения: | 01.07.1984 |
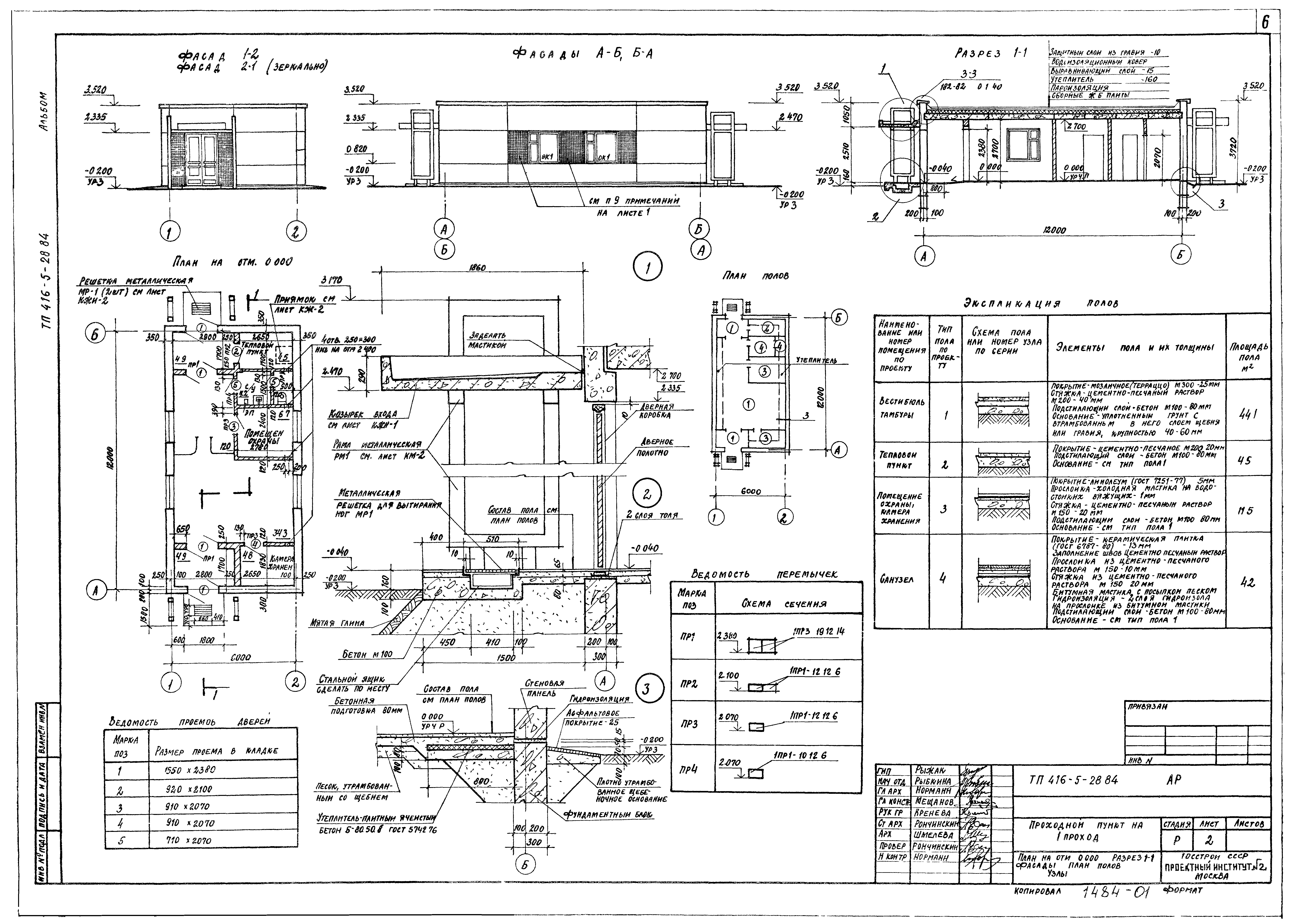
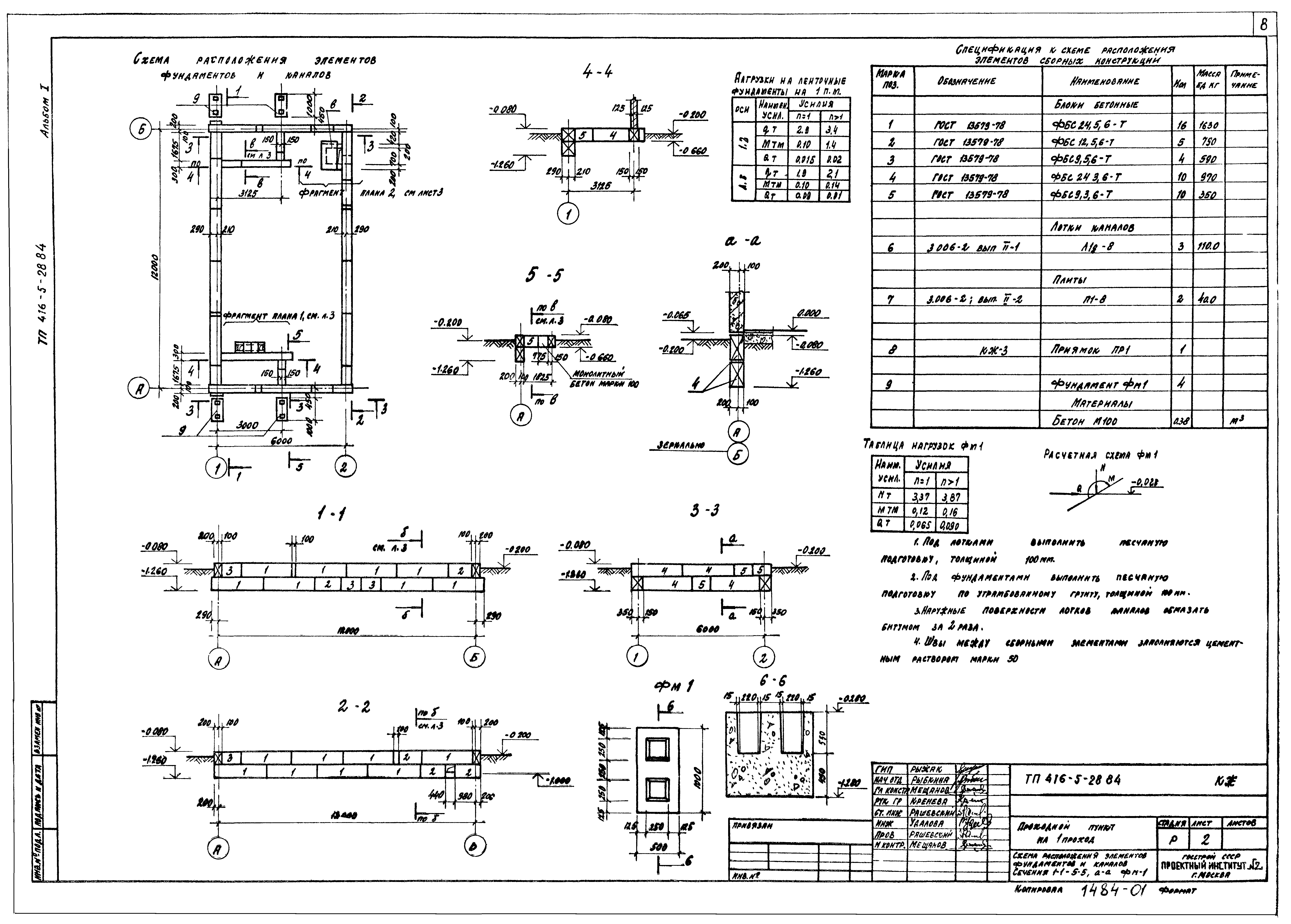
| Оглавление: | Содержание альбома Пояснительная записка Архитектурные решения Общие данные План на отм. 0.000. Разрез 1-1. Фасады. План полов. Узлы Конструкции железобетонные Общие данные Схема расположения элементов фундаментов и каналов. Сечения 1-1 - 5-5; а-а. Фм-1 Схема расположения элементов фундаментов и каналов. Фрагменты планов 1, 2. Сечения б-б; в-в; ПР-1 Схемы расположения наружных стен, покрытия фризовых камней Схемы расположения стеновых панелей Конструкции металлические Общие данные Схема расположения элементов рамы РМ1 Строительные изделия Козырек КВ22-2а Панели ПР6-60-15А; ПР6-60-15Б; ПР6-60-15В Решетка МР1 Отопление и вентиляция Общие данные План и схемы систем отопления и вентиляции Звено прямого участка асбестоцементного воздуховода Водопровод и канализация Общие данные План с сетями систем водопровода и канализации. Схемы систем В1, Т3, К1, К2 Электрическое освещение Общие данные Электроосвещение. План на отм. 0.000 Связь и сигнализация Общие данные Комплексная сеть связи и радиотрансляционная сеть Организация строительства Основные положения по организации строительства |
| Разработан: | Проектный институт № 2 Госстроя СССР |
| Утверждён: | 21.02.1984 Госстрой СССР (Государственный комитет Совета Министров СССР по делам строительства) (USSR Gosstroy ВА-11) |


























