Скачать Серия 5.908-2 Типовые узлы крепления трубопроводов установок автоматического пожаротушения. Рабочие чертежиДата актуализации: 01.01.2021
|
| Обозначение: | Серия 5.908-2 |
| Обозначение англ: | Series 5.908-2 |
| Статус: | не определен законодательством |
| Название рус.: | Типовые узлы крепления трубопроводов установок автоматического пожаротушения. Рабочие чертежи |
| Дата добавления в базу: | 01.09.2013 |
| Дата актуализации: | 01.01.2021 |
| Дата введения: | 01.01.1991 |
| Дата окончания срока действия: | 30.06.2003 |
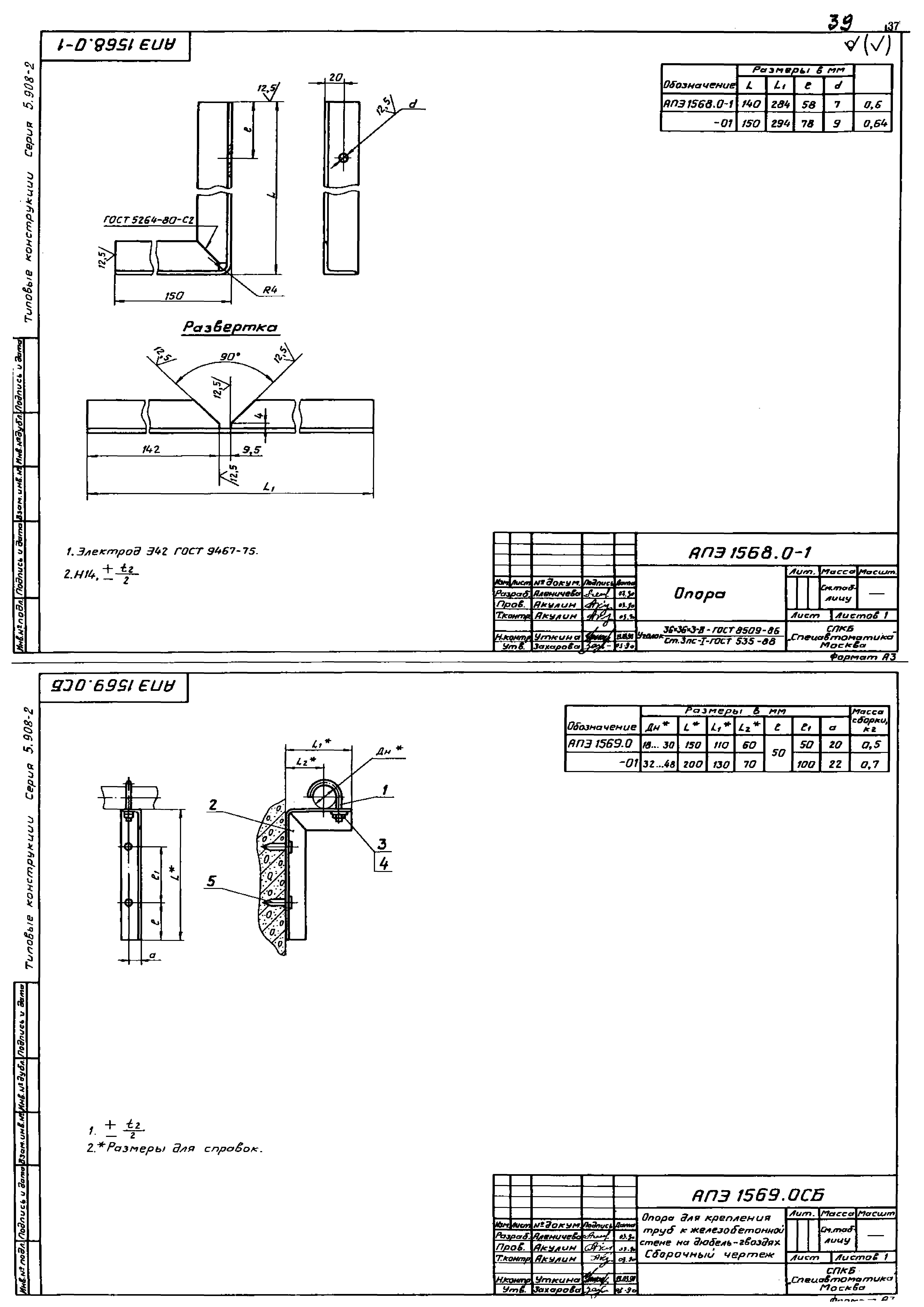
| Оглавление: | Титульный лист Содержание альбома АПЭ 1550.0СБ Опора для крепления трубы Дн18…48 к кирпичной стене АПЭ 1550.0 Спецификация АПЭ 1550.0-1 Хомут для труб Дн18…30, 32…48 АПЭ 1550.0-2 Опора АПЭ 1551.0СБ Опора для крепления труб Дн50…219 к кирпичной стене АПЭ 1551.0 Спецификация АПЭ 1551.0-1 Хомут для труб Дн50…65; 70…89; 108…140; 152…159; 219 АПЭ 1551.0-10 Опора АПЭ 1551.0 Спецификация АПЭ 1552.0 Спецификация АПЭ 1552.0СБ Опора для крепления 2х труб Дн18…48 к кирпичной стене АПЭ 1552.0-1 Опора АПЭ 1553.0 Спецификация АПЭ 1553.0СБ Опора для крепления 2х труб Дн50…219 к кирпичной стене АПЭ 1553.0-10СБ Опора АПЭ 1553.0-10 Спецификация АПЭ 1554.0 Спецификация АПЭ 1554.0СБ Опора для крепления 3х труб Дн18…89 к кирпичной стене АПЭ 1554.0-10СБ Опора АПЭ 1554.0-10 Спецификация АПЭ 1555.0СБ Опора для крепления 4х труб Дн18…89 к кирпичной стене АПЭ 1555.0 Спецификация АПЭ 1555.0-10СБ Опора АПЭ 1555.0-10 Спецификация АПЭ 1556.0СБ Опора для крепления труб Дн18…219 к металлоконструкциям АПЭ 1556.0 Спецификация АПЭ 1556.0-1 Опора АПЭ 1557.0СБ Опора для крепления 2х труб Дн18…219 к металлоконструкциям АПЭ 1557.0 Спецификация АПЭ 1557.0-1 Опора АПЭ 1558.0СБ Опора для крепления 3х труб Дн18…89 к металлоконструкциям АПЭ 1558.0 Спецификация АПЭ 1558.0-1 Опора АПЭ 1559.0 Спецификация АПЭ 1559.0-1 Опора АПЭ 1559.0СБ Опора для крепления 4х труб Дн18…89 к металлоконструкциям АПЭ 1560.0СБ Опора для крепления одной трубы Дн18…89 к железобетонной колонне АПЭ 1560.0 Спецификация АПЭ 1560.0-1 Перекладина АПЭ 1560.0-2 Шпилька АПЭ 1560.0-3 Перекладина АПЭ 1561.0СБ Опора для крепления 2х труб Дн18…89 к железобетонной колонне АПЭ 1561.0 Спецификация АПЭ 1561.0-1 Перекладина АПЭ 1562.0СБ Опора для крепления 3х труб Дн18…89 к железобетонной колонне АПЭ 1562.0 Спецификация АПЭ 1562.0-1 Перекладина АПЭ 1563.0СБ Опора для крепления 4х труб Дн18…89 к железобетонной колонне АПЭ 1563.0 Спецификация АПЭ 1563.0-1 Перекладина АПЭ 1564.0СБ Подвеска для крепления труб к плитам перекрытия АПЭ 1564.0 Спецификация АПЭ 1564.0-1 Скоба АПЭ 1564.0-2 Хомут АПЭ 1564.0-3 Тяга АПЭ 1565.0-1 Опора АПЭ 1565.0СБ Подвеска для крепления 2х труб к плитам перекрытия АПЭ 1565.0 Спецификация АПЭ 1565.0-2 Шпилька АПЭ 1565.0-10 Спецификация АПЭ 1565.0-10СБ Кронштейн АПЭ 1566.0СБ Подвеска для крепления 3х труб к плитам перекрытия АПЭ 1566.0 Спецификация АПЭ 1566.0-10СБ Кронштейн АПЭ 1566.0-10 Спецификация АПЭ 1566.0-1 Опора АПЭ 1567.0СБ Подвеска для крепления 4х труб к плитам перекрытия АПЭ 1567.0 Спецификация АПЭ 1567.0-1 Опора АПЭ 1567.0-2 Шпилька АПЭ 1568.0СБ Опора для крепления труб Дн18…30; 32…48 в подполье АПЭ 1568.0 Спецификация АПЭ 1568.0-1 Опора АПЭ 1569.0СБ Опора для крепления труб к железобетонной стене на дюбель-гвоздях АПЭ 1569.0 Спецификация АПЭ 1569.0-1 Опора АПЭ 1570.0СБ Опора для крепления 2х труб к железобетонной стене на дюбель-гвоздях АПЭ 1570.0 Спецификация АПЭ 1570.0-1 Опора АПЭ 1571.0СБ Опора для крепления 3х труб к железобетонной стене на дюбель-гвоздях АПЭ 1571.0 Спецификация АПЭ 1571.0-1 Опора АПЭ 1572.0СБ Опора для крепления 4х труб Дн18…30 к железобетонной стене на дюбель-гвоздях АПЭ 1572.0 Спецификация АПЭ 1572.0-1 Опора АПЭ 1573.0СБ Подвеска для крепления труб к железобетонным плитам перекрытия АПЭ 1573.0 Спецификация АПЭ 1573.0-1 Подкладка АПЭ 1573.0-2 Тяга АПЭ 1573.0-3 Хомут АПЭ 1574.0 Спецификация АПЭ 1574.0СБ Подвеска для крепления труб к железобетонным плитам перекрытия АПЭ 1574.0-10 СБ Подвеска АПЭ 1574.0-10 Спецификация АПЭ 1574.0-1 Подкладка АПЭ 1574.0-2 Тяга АПЭ 1574.0-3 Уголок АПЭ 1575.0-1 Подкладка АПЭ 1575.0 Спецификация АПЭ 1575.0СБ Подвеска для крепления 2х труб к железобетонным плитам перекрытия АПЭ 1575.0-2 Шпилька АПЭ 1575.0-3 Уголок АПЭ 1576.0СБ Подвеска для крепления 3х труб к железобетонным плитам перекрытия АПЭ 1576.0 Спецификация АПЭ 1576.0-1 Уголок АПЭ 1577.0СБ Подвеска для крепления 4х труб к железобетонным плитам перекрытия АПЭ 1577.0 Спецификация АПЭ 1577.0-1 Уголок АПЭ 1578.0СБ Подвеска для крепления труб к металлоконструкциям АПЭ 1578.0 Спецификация АПЭ 1578.0-1 Тяга АПЭ 1579.0-1 Тяга АПЭ 1579.0СБ Подвеска для крепления 2х труб к металлоконструкциям АПЭ 1579.0 Спецификация АПЭ 1580.0СБ Подвеска для крепления 3х труб к металлоконструкциям АПЭ 1580.0 Спецификация АПЭ 1581.0 Спецификация АПЭ 1581.0СБ Подвеска для крепления 4х труб к металлоконструкциям АПЭ 1582.0СБ Подвеска для крепления труб к железобетонным плитам перекрытия АПЭ 1582.0 Спецификация АПЭ 1582.0-1 Тяга АПЭ 1582.0-2 Уголок АПЭ 1583.0 Спецификация АПЭ 1583.0СБ Подвеска для крепления труб к железобетонным плитам перекрытия АПЭ 1583.0-1 Уголок АПЭ 1584.0 Спецификация АПЭ 1584.0-1 Скоба АПЭ 1584.0-2 Тяга АПЭ 1584.0-3 Кронштейн АПЭ 1584.0СБ Подвеска для крепления труб к деревянным балкам АПЭ 1585.0СБ Опора под колено Дн159…530 АПЭ 1585.0 Спецификация АПЭ 1585.0-1 Ребро АПЭ 1585.0-2 Ребро АПЭ 1585.0-3 Основание АПЭ 1586.0СБ Опора для крепления труб АПЭ 1586.0 Спецификация АПЭ 1586.0-1 Опора АПЭ 1586.0-2 Опора АПЭ 1586.0-3 Основание АПЭ 1587.0СБ Подвеска для крепления труб Дн18…65 к плитам перекрытия АПЭ 1587.0 Спецификация АПЭ 1587.0-1 Хомут |
| Разработан: | Специальное проектно-конструкторское бюро Спецавтоматика |
| Утверждён: | 18.06.1990 МГО Безопасность (8) |




































































