Скачать Типовой проект 901-3-261.89 Альбом 2. Технология производства. Внутренний водопровод и канализация. Эскизные чертежи общих видов. Отопление и вентиляцияДата актуализации: 01.01.2021
|
| Обозначение: | Типовой проект 901-3-261.89 |
| Обозначение англ: | 901-3-261.89 |
| Статус: | не определен законодательством |
| Название рус.: | Альбом 2. Технология производства. Внутренний водопровод и канализация. Эскизные чертежи общих видов. Отопление и вентиляция |
| Дата добавления в базу: | 01.09.2013 |
| Дата актуализации: | 01.01.2021 |
| Дата введения: | 16.03.1989 |
| Дата окончания срока действия: | 30.06.2003 |
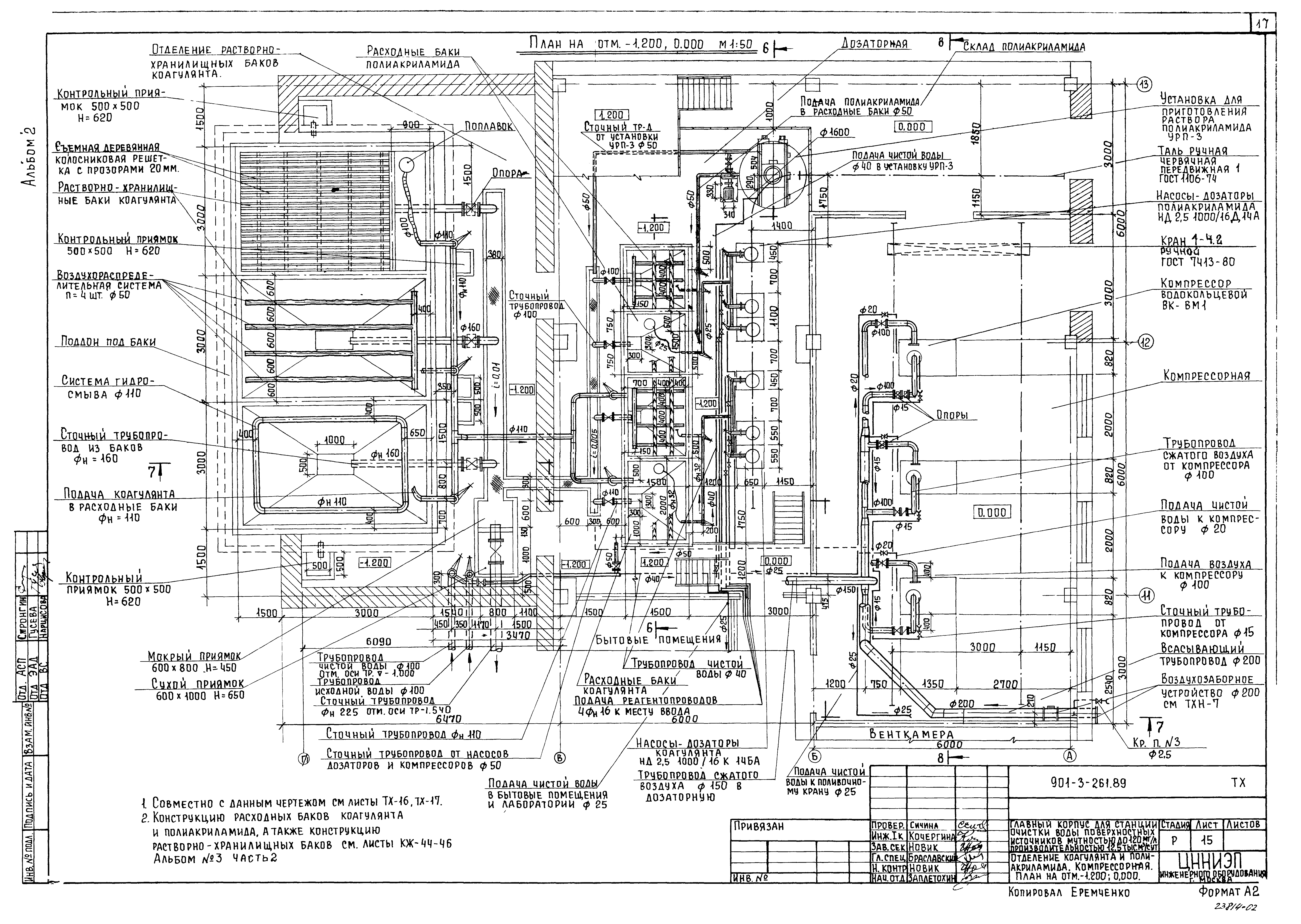
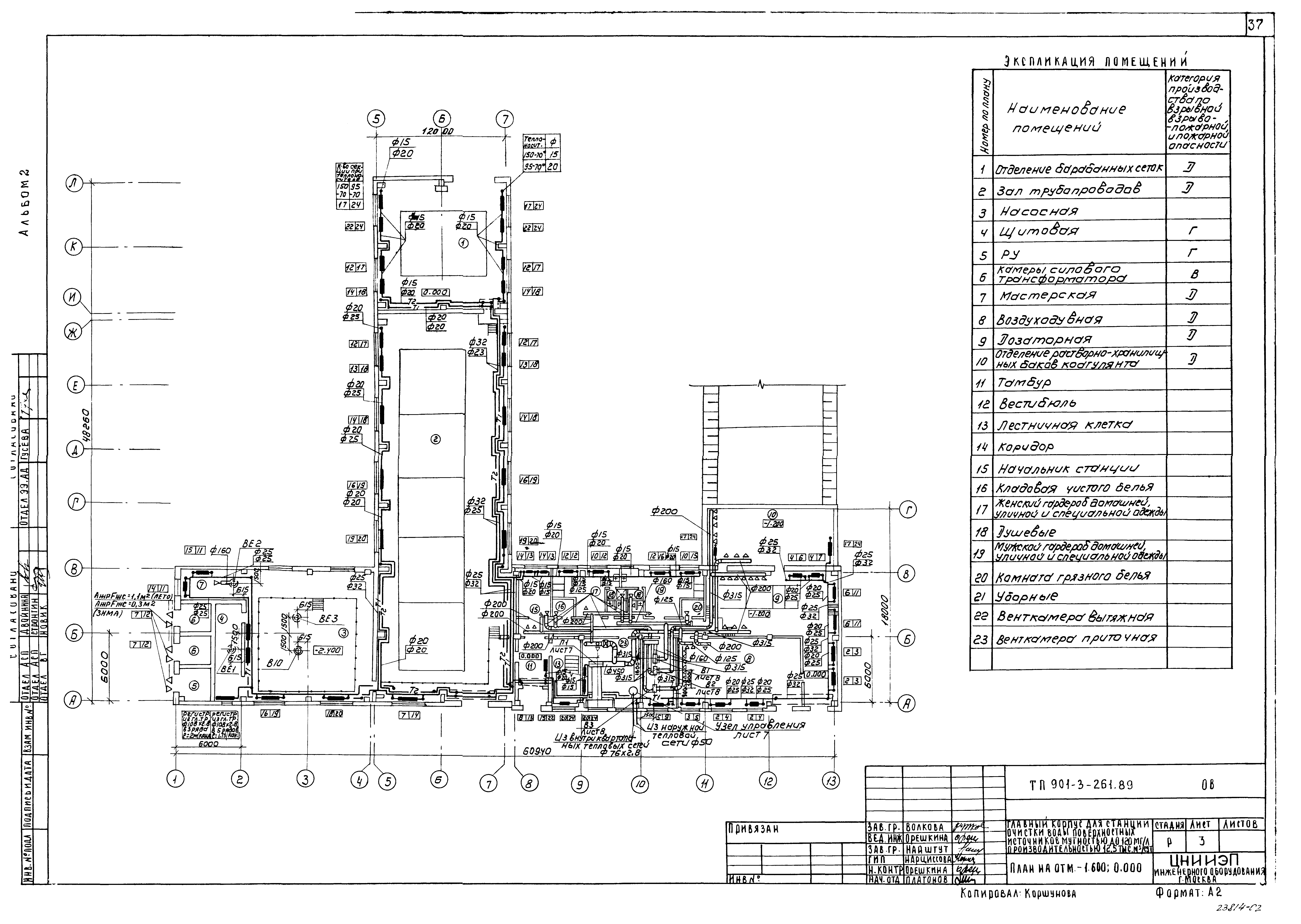
| Оглавление: | Технология производства. Чертежи марки ТХ Общие данные Принципиальная схема обработки воды Принципиальная схема приготовления основных реагентов Общеувязочный план на отм. - 2.400; - 0.600; 0.000. Экспликация помещений Общеувязочный план на отм. 3.600; 4.200. Экспликация помещений Отделение барабанных сеток. План на отм. 3.600 и 7.000 Отделение барабанных сеток. Разрезы 1-1, 2-2 Отделение барабанных сеток. Схемы трубопроводов В7, К3, В1 Зал контактных осветлителей. Планы на отм. - 0.600; 0.000; 3.600 Зал контактных осветлителей. Разрезы 3-3, 4-4 Зал контактных осветлителей. Гребенка безгравийной трубчатой распределительной системы Зал контактных осветлителей. План на отм. - 0.600; - 0.400; 0.000 с нанесением пробоотборных трубок. Схема пробоотборного узла Зал контактных осветлителей. Схемы трубопроводов В1 и В7 Зал контактных осветлителей. Схемы трубопроводов В1 и К3 Отделение коагулянта и полиакриламида. Компрессорная. План на отм. - 1.200; 0.000 Отделение коагулянта и полиакриламида. Компрессорная. Фрагмент плана на отм. 1.200; 1.800. Разрезы 5-5, 6-6 Отделение коагулянта и полиакриламида. Компрессорная. Разрезы 7-7, 8-8. Сечение А-А Отделение коагулянта и полиакриламида. Компрессорная. Схемы трубопроводов R2, R3, К3 Отделение коагулянта и полиакриламида. Компрессорная. Схемы трубопроводов В1, В7, А0 Лаборатории. План на отм. 4.200 с расстановкой мебели и оборудования Насосная станция II-го подъема. План на отм. - 2.400; - 1.000; 0.000. Разрезы 9-9, 10-10. Сечение б-б Насосная станция II-го подъема. Схемы трубопроводов В1, К3, R1 Механическая мастерская Эскизные чертежи общего вида. Чертежи марки ТХН Воздухораспределительная система в растворно-хранилищных баках коагулянта Воздухораспределительная система в расходных баках полиакриламида Система гидросмыва Воздухораспределительная система в расходных баках коагулянта Поплавок Рама лебедки Воздухозаборное устройство Ф200 Гребенка безгравийной трубчатой распределительной системы Тройник 400х250 Отвод Внутренний водопровод и канализация. Чертежи марки ВК Общие данные Планы на отм. 0.000; 4.200 с разводкой трубопроводов. Схемы В1, Т3, К1, К2. План кровли Отопление и вентиляция. Чертежи марки ОВ Общие данные План на отм. - 1.600; 0.000 План на отм. 3.600; 4.200 Схемы вентиляции П1, В1 - В10; ВЕ1 - ВЕ6 Схема системы отопления в осях 1 - 8; А - Л Схема системы отопления в осях 8 - 13; А - Г Установка системы П1. Схема системы теплоснабжения. Узел управления Установка систем В1, В2, В3 Установка систем В4, В5, В6, В7 Чертежи марки ОВН Конфузор. Переход |
| Разработан: | ЦНИИЭП |
| Утверждён: | 29.07.1986 Госгражданстрой (Gosgrazhdanstroy 242) |
| Издан: | ЦИТП Госстроя СССР (CITP, Gosstroy (USSR) 1989 г. ) |













































