Скачать Типовые проектные решения 901-3-0279.89 Альбом 2. Архитектурные решения. Технология производства. Внутренние водопровод и канализация. Отопление и вентиляцияДата актуализации: 01.01.2021
|
| Обозначение: | Типовые проектные решения 901-3-0279.89 |
| Обозначение англ: | 901-3-0279.89 |
| Статус: | справочные материалы, мп, тпр |
| Название рус.: | Альбом 2. Архитектурные решения. Технология производства. Внутренние водопровод и канализация. Отопление и вентиляция |
| Дата добавления в базу: | 01.10.2014 |
| Дата актуализации: | 01.01.2021 |
| Дата введения: | 08.09.1989 |
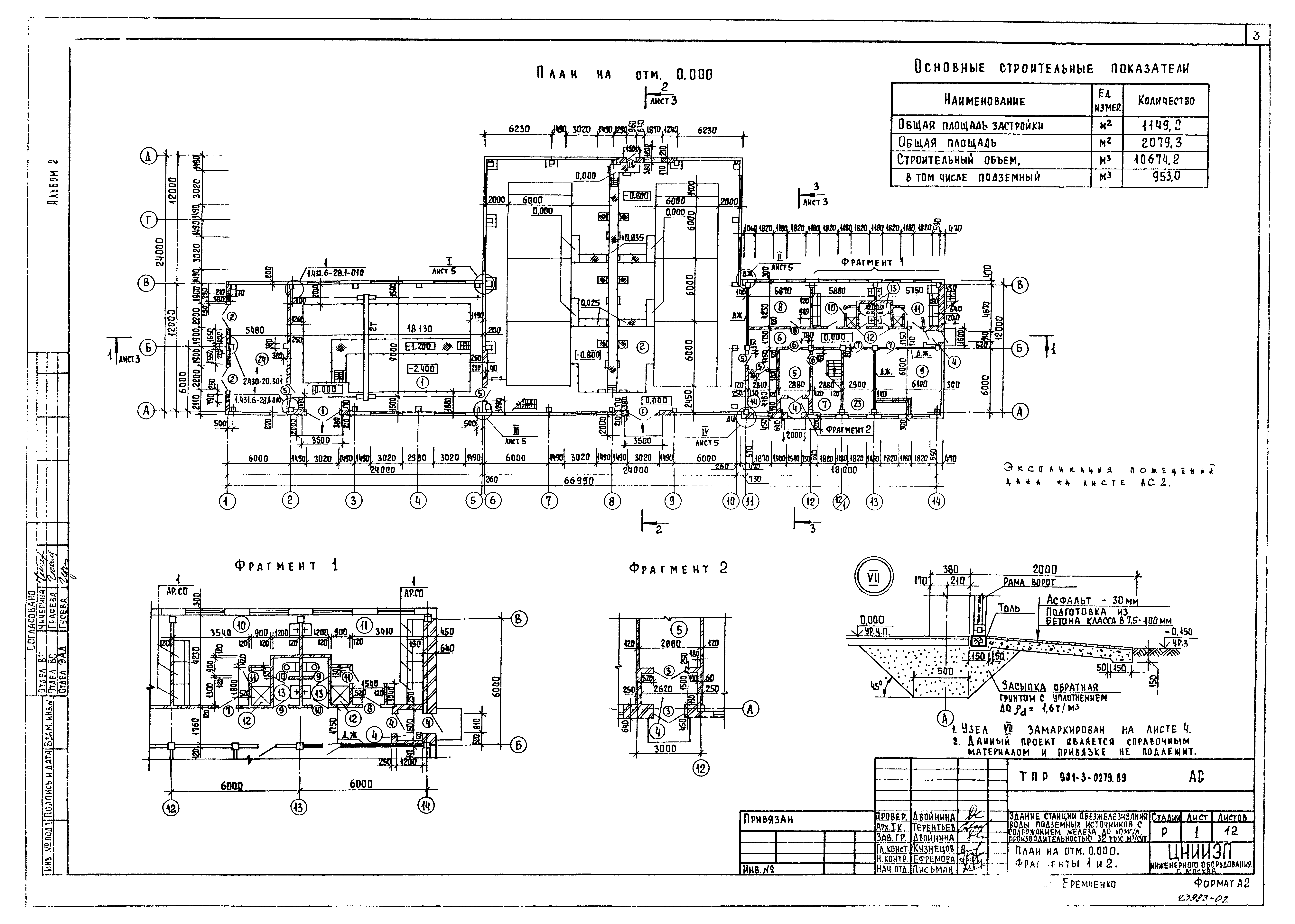
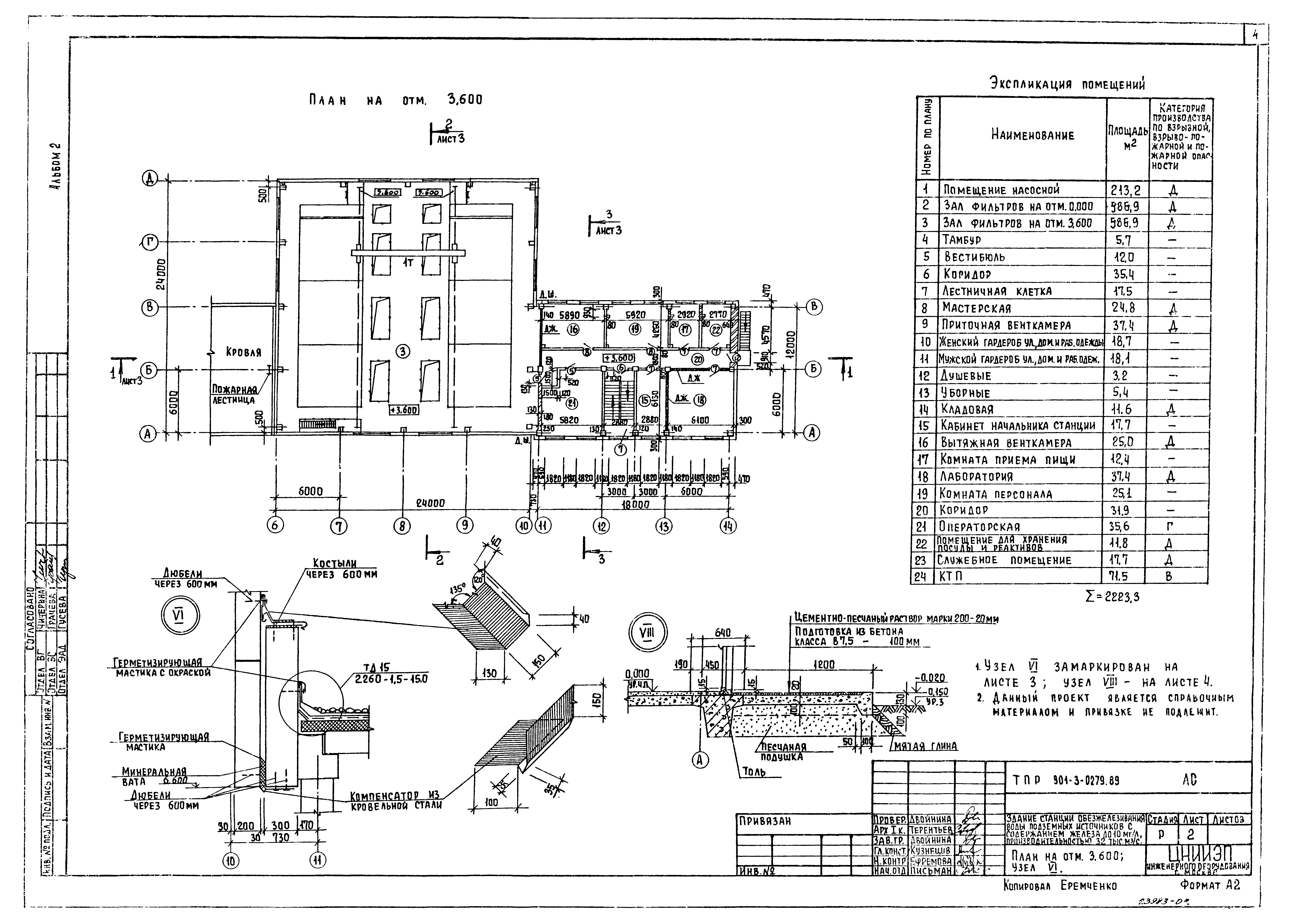
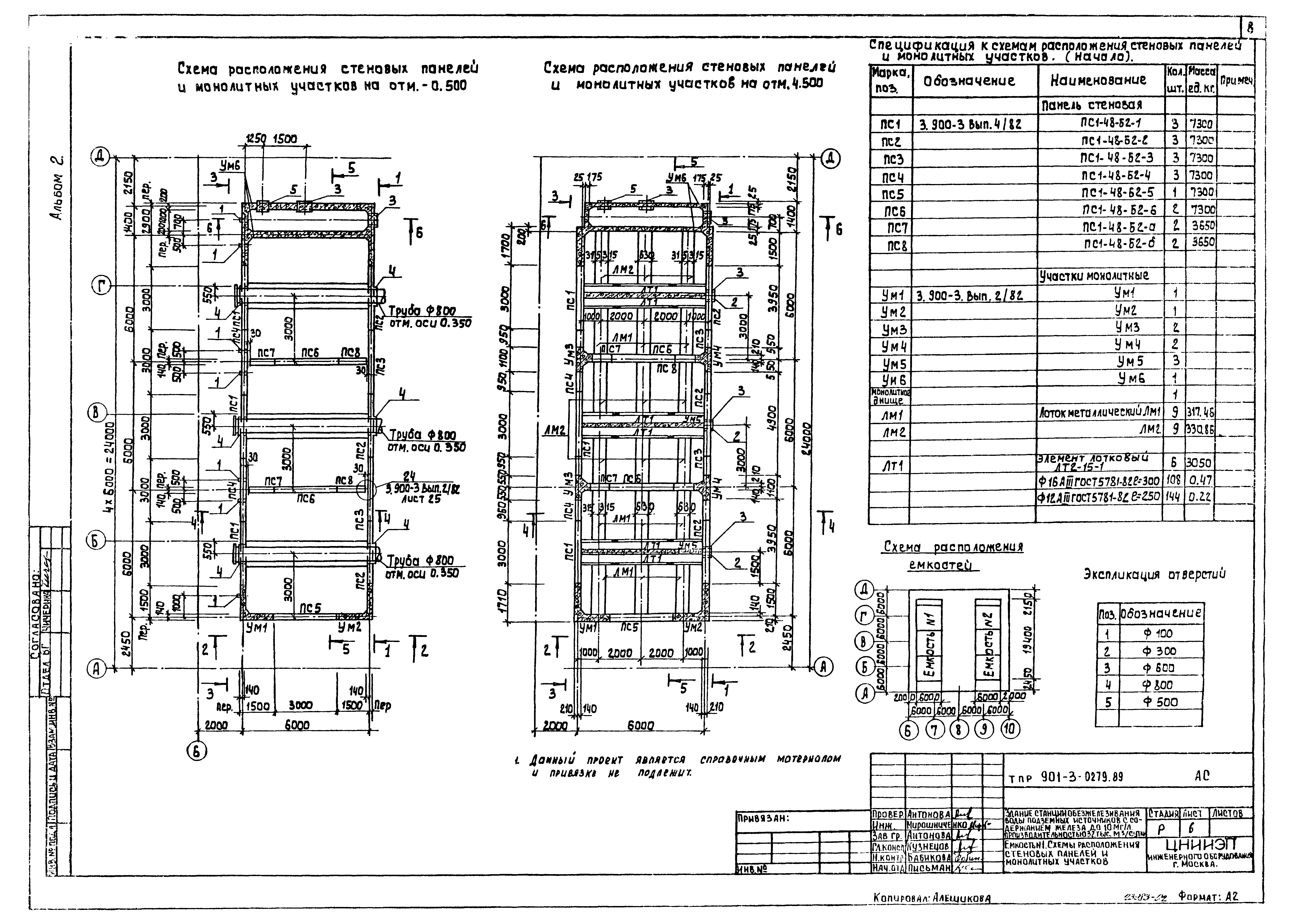
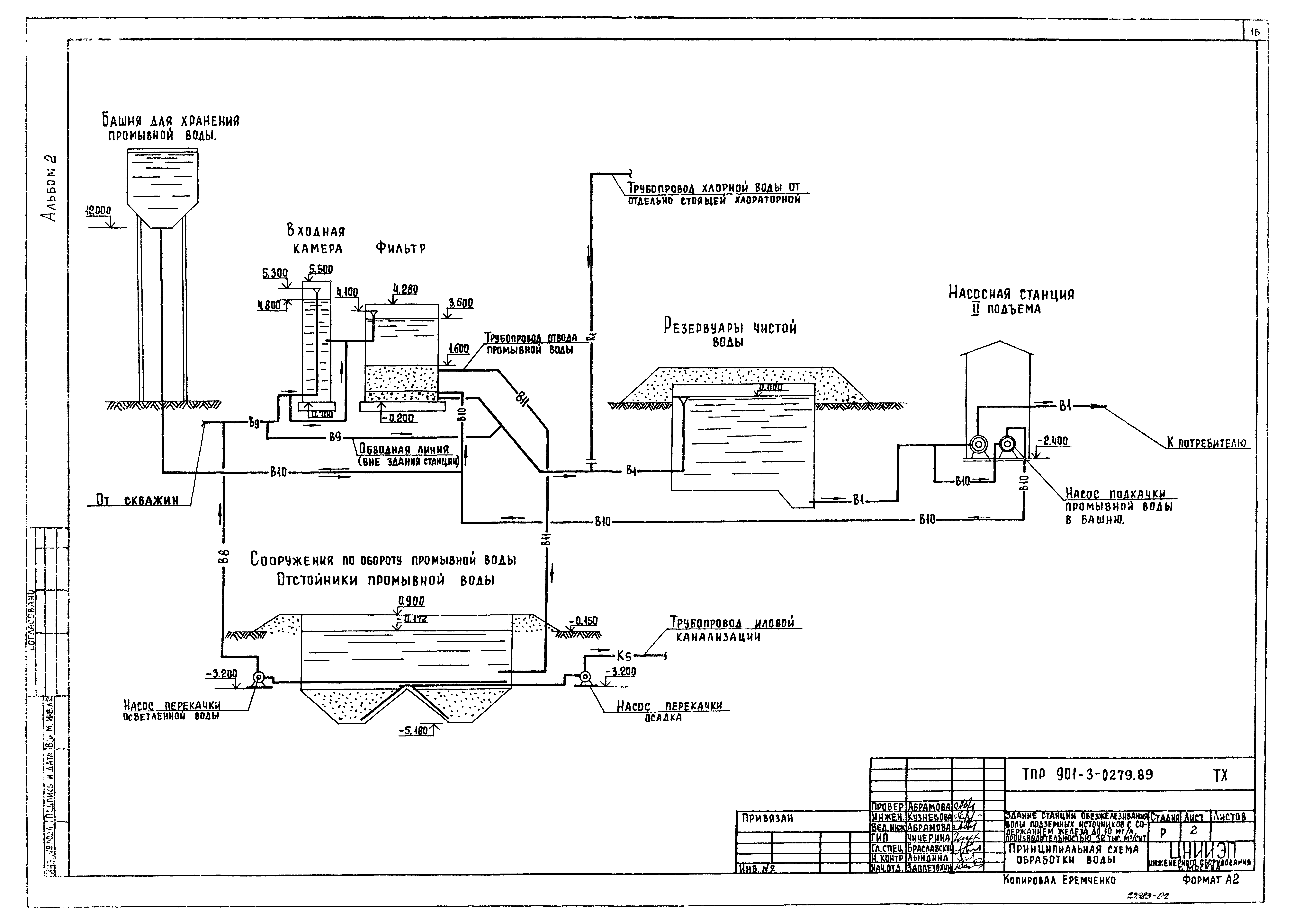
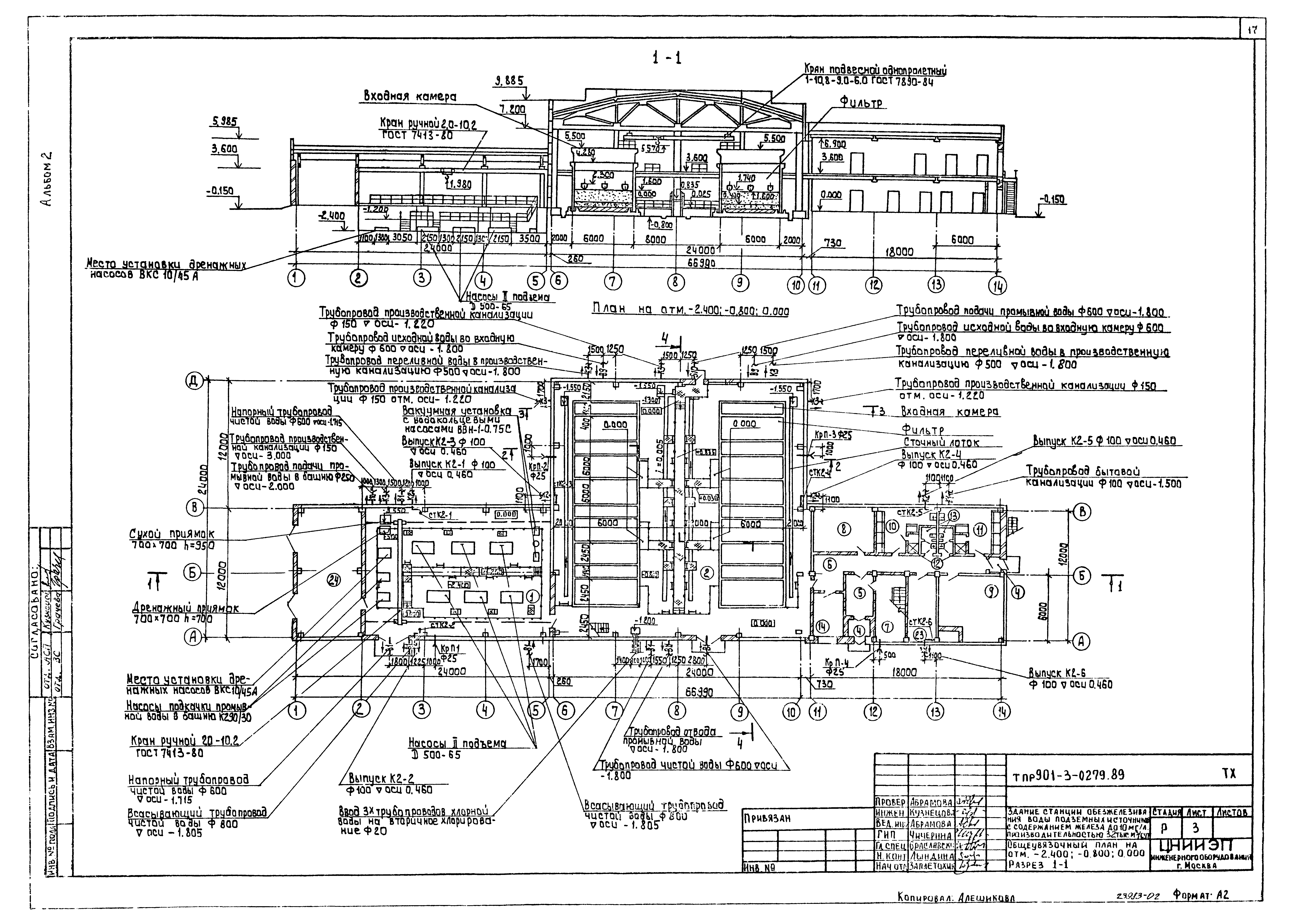
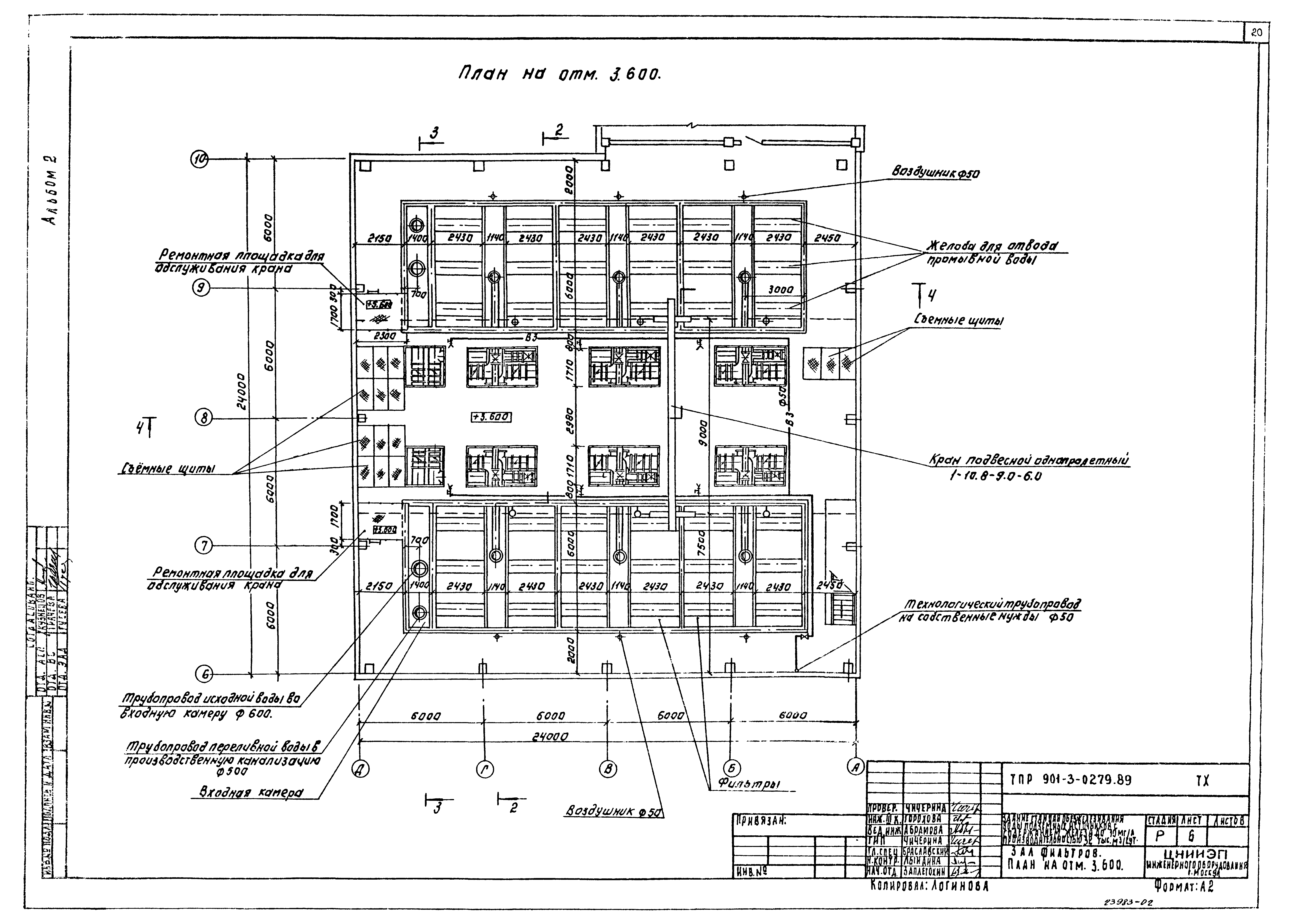
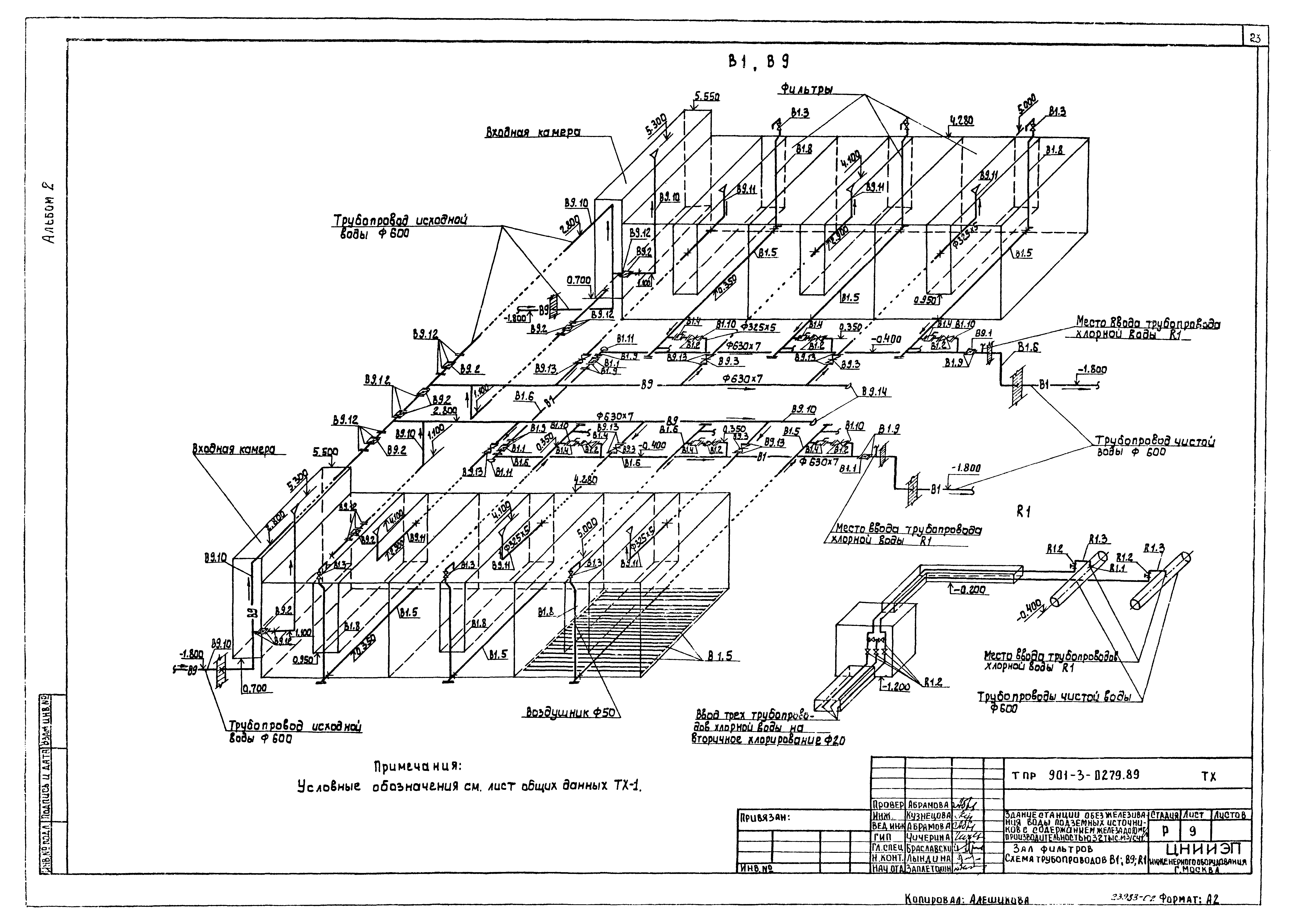
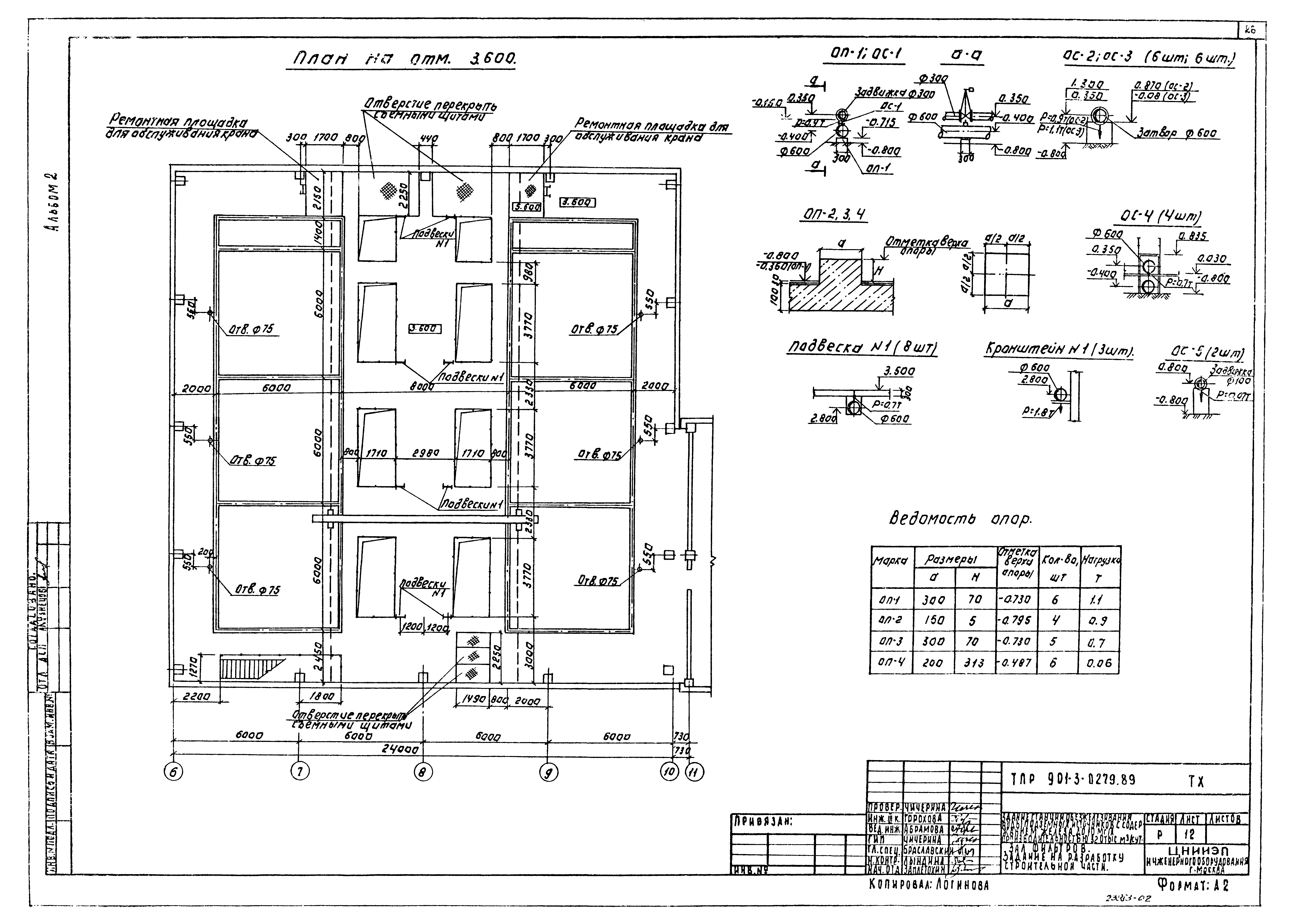
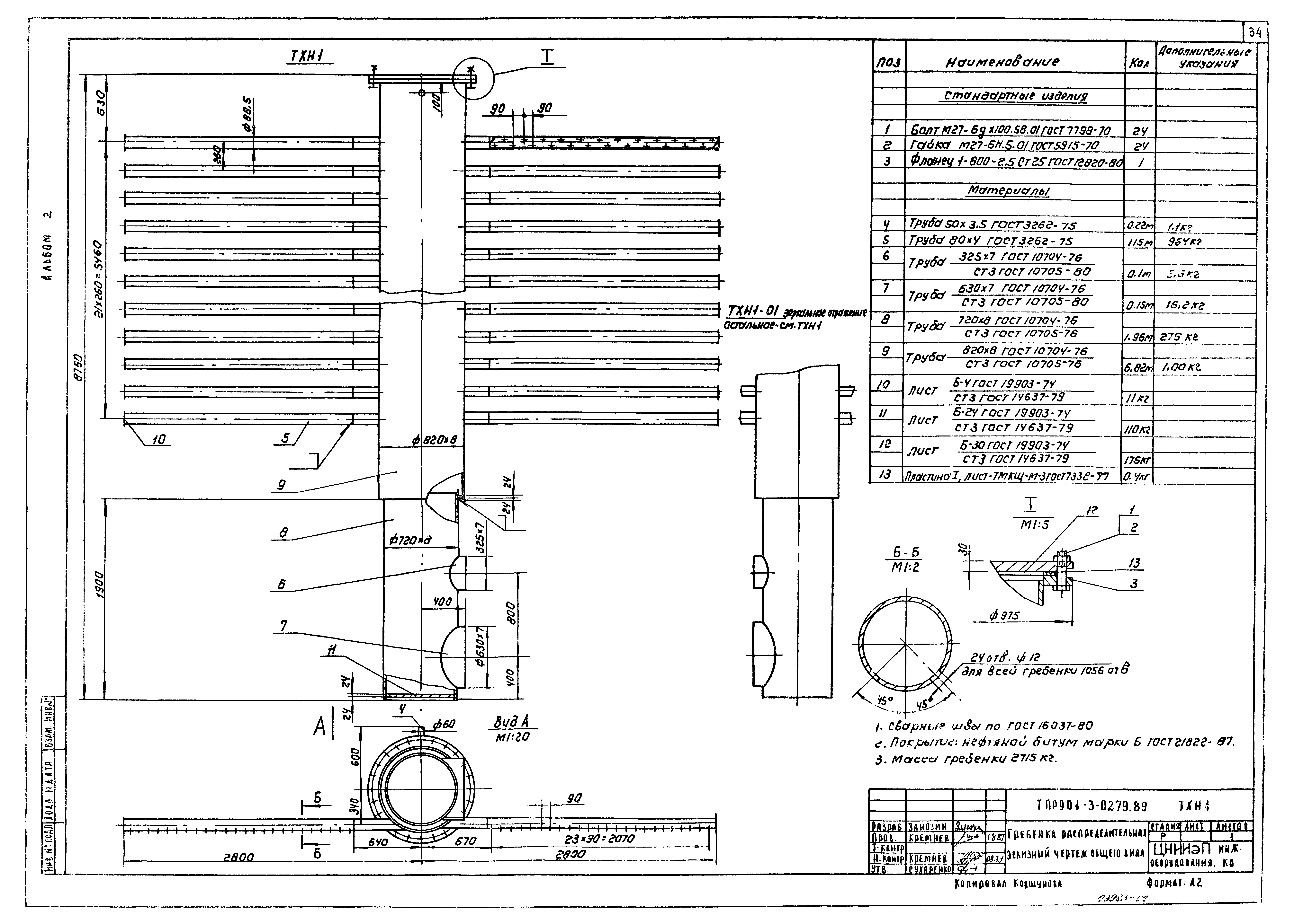
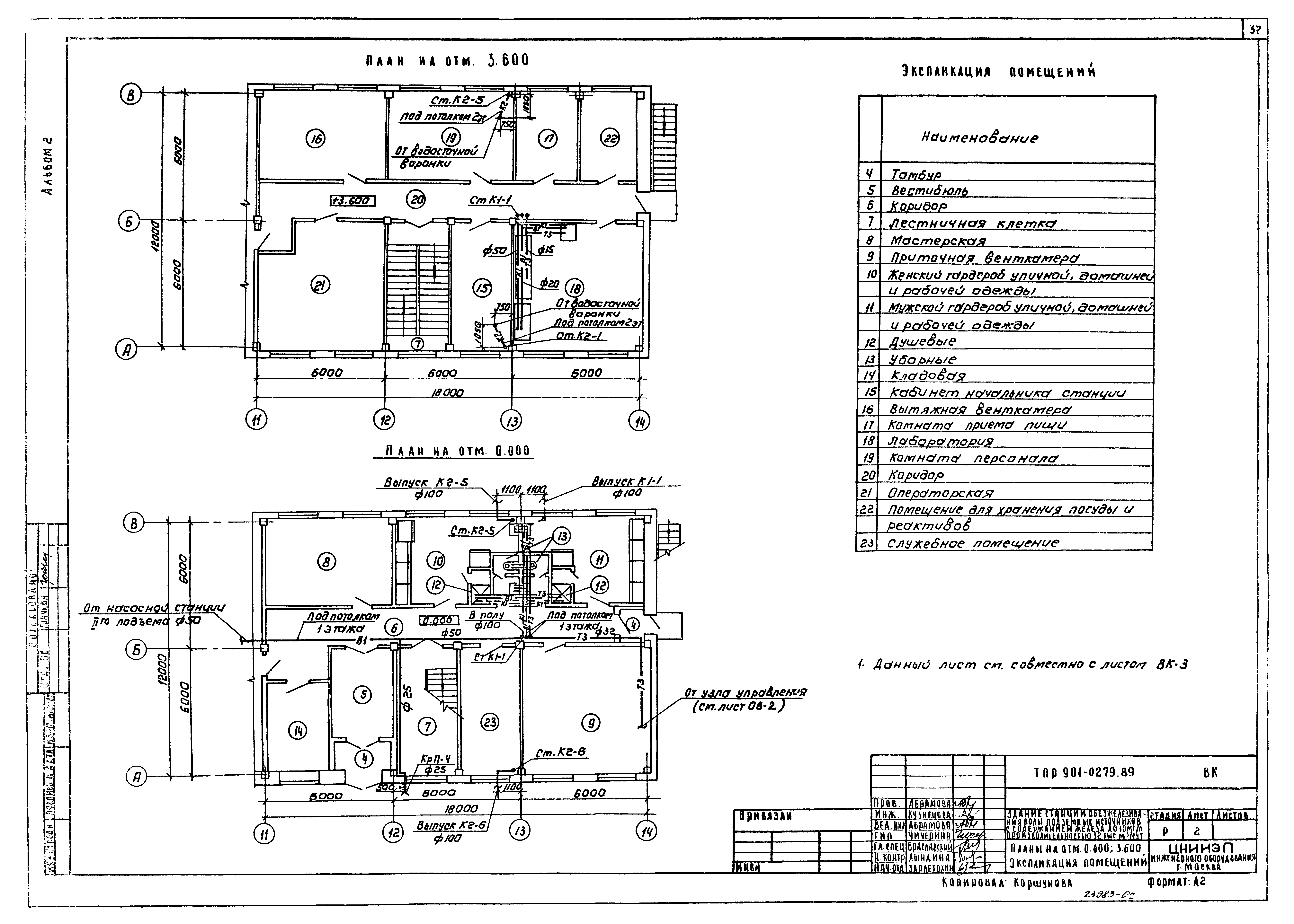
| Оглавление: | Архитектурно-строительные решения План на отм. 0.000. Фрагмент 1 и 2 План на отм. 3.600. Узел VI Разрезы 1-1, 2-2, 3-3 Фасады 1 - 14; 14 - 1; А - Е; Е - А Ведомость проемов ворот и дверей. Спецификация элементов заполнения проемов. Узлы I - V Емкость № 1. Схемы расположения стеновых панелей и монолитных участков Емкость № 1. Виды 1-1 - 4-4. Узлы I, II Емкость № 1. Разрезы 5-5, 6-6. Узлы III - VI Емкость № 1. Днище монолитное. Опалубочный чертеж. План. Разрезы. Узлы Схема расположения подземного хозяйства. Сечения 1-1 - 3-3 Схема расположения подземного хозяйства. Сечения 4-4 - 14-14. Фрагмент № 1 Зал фильтров. Схема расположения подбетонок для емкостей Технология производства Общие данные Принципиальная схема обработки воды Общеувязочный план на отм. - 2.400; - 0.800; 0.000. Разрез 1-1 Общеувязочный план на отм. 3.600. План кровли с нанесением водосточных воронок. Экспликация помещений Зал фильтров. План на отм. - 0.800; 0.000 Зал фильтров. План на отм. 3.600 Зал фильтров. Разрезы 2-2, 3-3, 4-4 Зал фильтров. Фильтры. План на отм. 0.000; 3.600. Разрезы 5-5, 6-6 Зал фильтров. Схема трубопроводов В1, В9, R1 Зал фильтров. Схема трубопроводов В10, В11, В3, К3 Зал фильтров. Задание на разработку строительной части Зал фильтров. Регулятор уровня Зал фильтров. План на отм. - 0.800; 0.000, с нанесением пробоотборных трубок. Схема пробоотборного узла Насосная станция II-го подъема. План на отм. - 2.400; 0.000. Разрезы 7-7, 8-8 Насосная станция II-го подъема. Схемы трубопроводов В1, В3, В10, К, А2 Насосная станция II-го подъема. Задание на разработку строительной части Лаборатория. План на отм. 3.600 с расстановкой мебели и оборудования Механическая мастерская Гребенка распределительная. Эскизный чертеж общего вида Крест 600х600. Эскизный чертеж общего вида Тройник 800х300. Эскизный чертеж общего вида Внутренний водопровод и канализация Общие данные План на отм. 0.000; 3.600. Экспликация помещений Схемы трубопроводов В1, Т3, К1, К2 Отопление и вентиляция Общие данные План на отм. 0.000 План на отм. 3.600 Схема системы отопления. Схема системы теплоснабжения установок А1, А2. Узлы управления Схемы систем П1; В1 - В5; ВЕ1 - ВЕ5 Установка систем П1, В1 - В4 План отверстий на отм. 0.000 к 3.600. Ведомость отверстий в стенах, перекрытии, кровле Конфузор Переход |
| Разработан: | ЦНИИЭП |
| Утверждён: | 18.11.1985 Госгражданстрой (Gosgrazhdanstroy 346) |
| Издан: | ЦИТП Госстроя СССР (CITP, Gosstroy (USSR) 1990 г. ) |
| Заменяет собой: |
|














































