Скачать Типовые проектные решения 901-3-0279.89 Альбом 3. Силовое электрооборудование. Автоматизация. Электрическое освещение. Связь и сигнализацияДата актуализации: 01.01.2021
|
| Обозначение: | Типовые проектные решения 901-3-0279.89 |
| Обозначение англ: | 901-3-0279.89 |
| Статус: | справочные материалы, мп, тпр |
| Название рус.: | Альбом 3. Силовое электрооборудование. Автоматизация. Электрическое освещение. Связь и сигнализация |
| Дата добавления в базу: | 01.09.2013 |
| Дата актуализации: | 01.01.2021 |
| Дата введения: | 08.09.1989 |
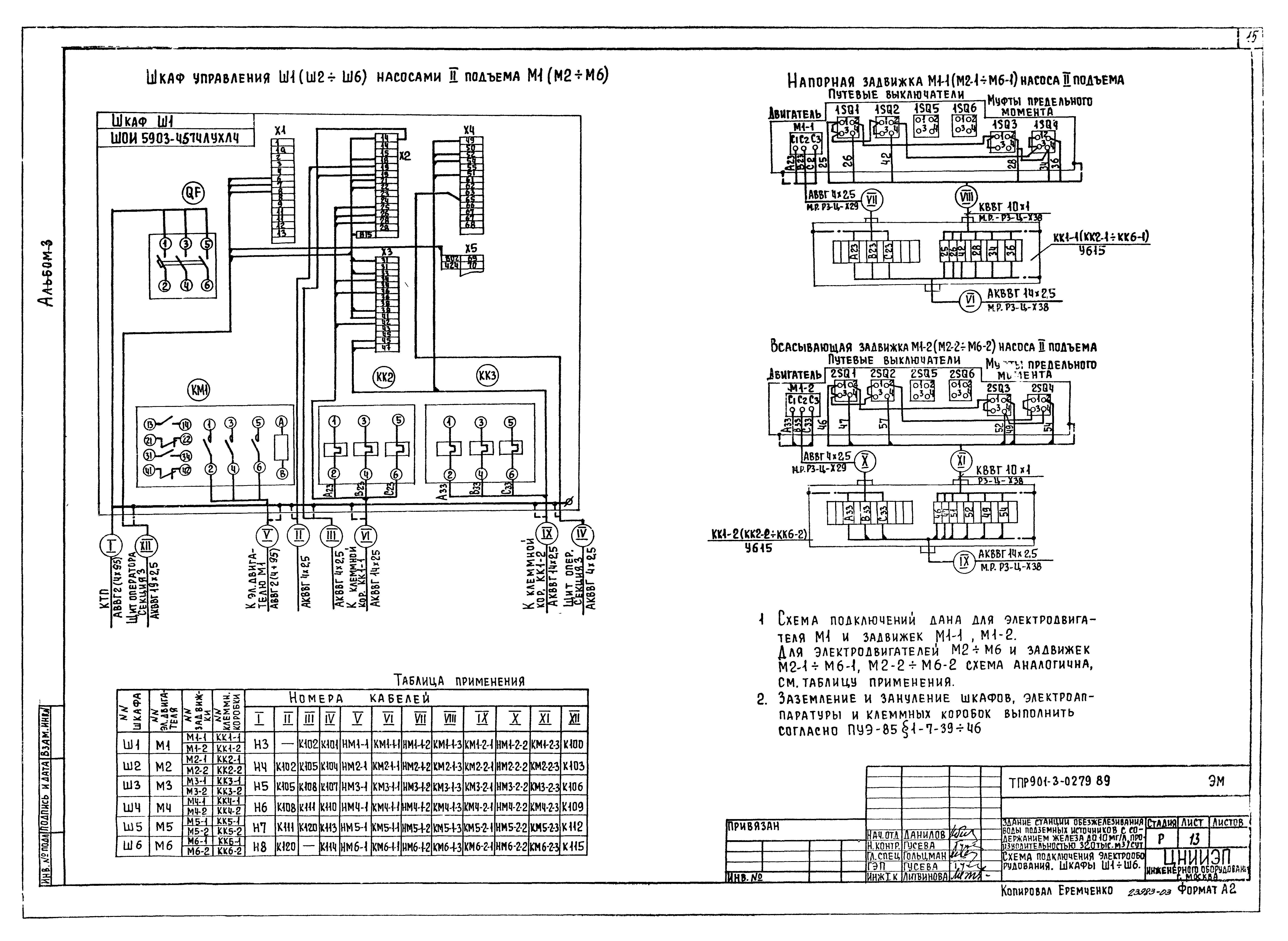
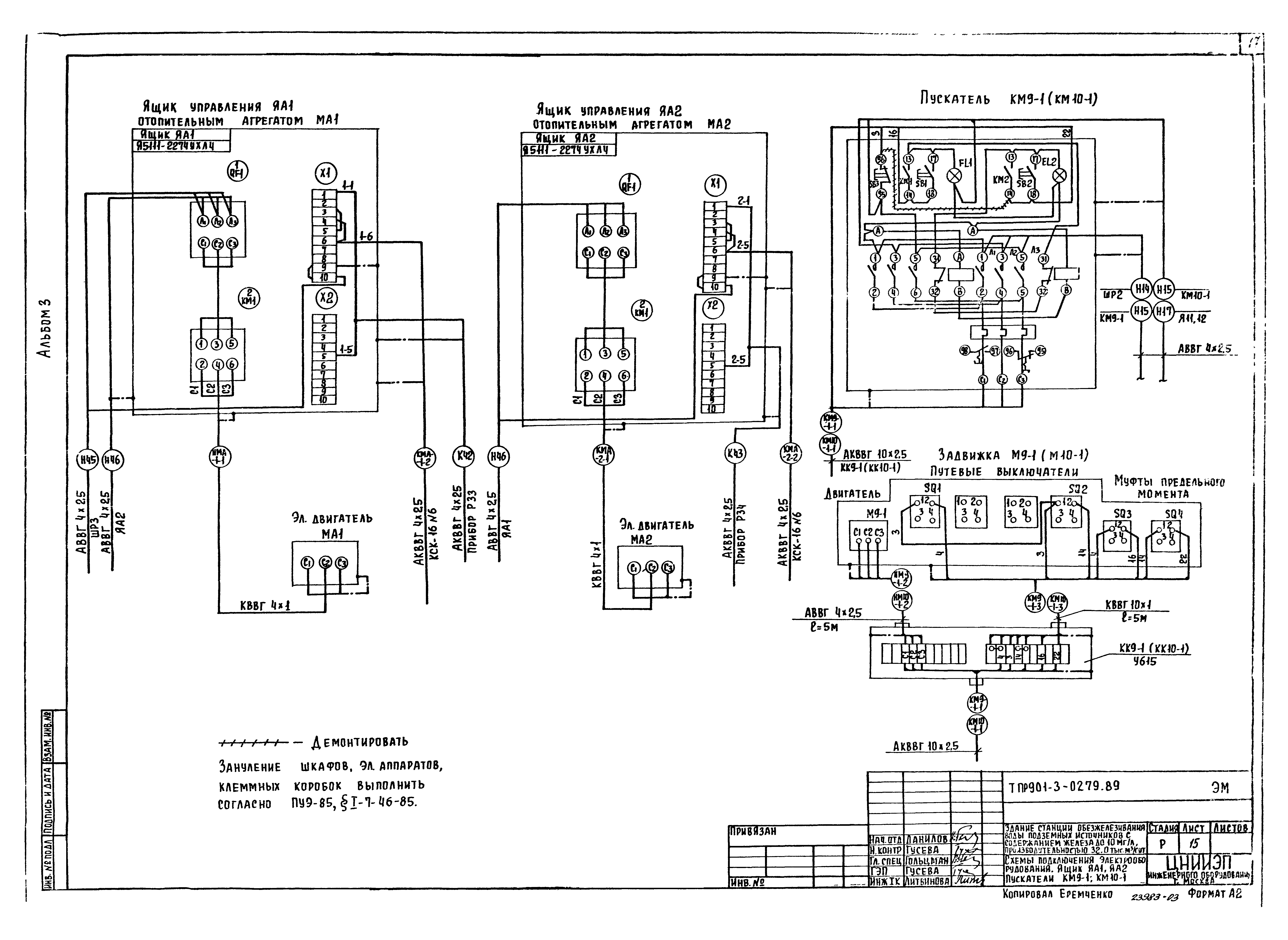
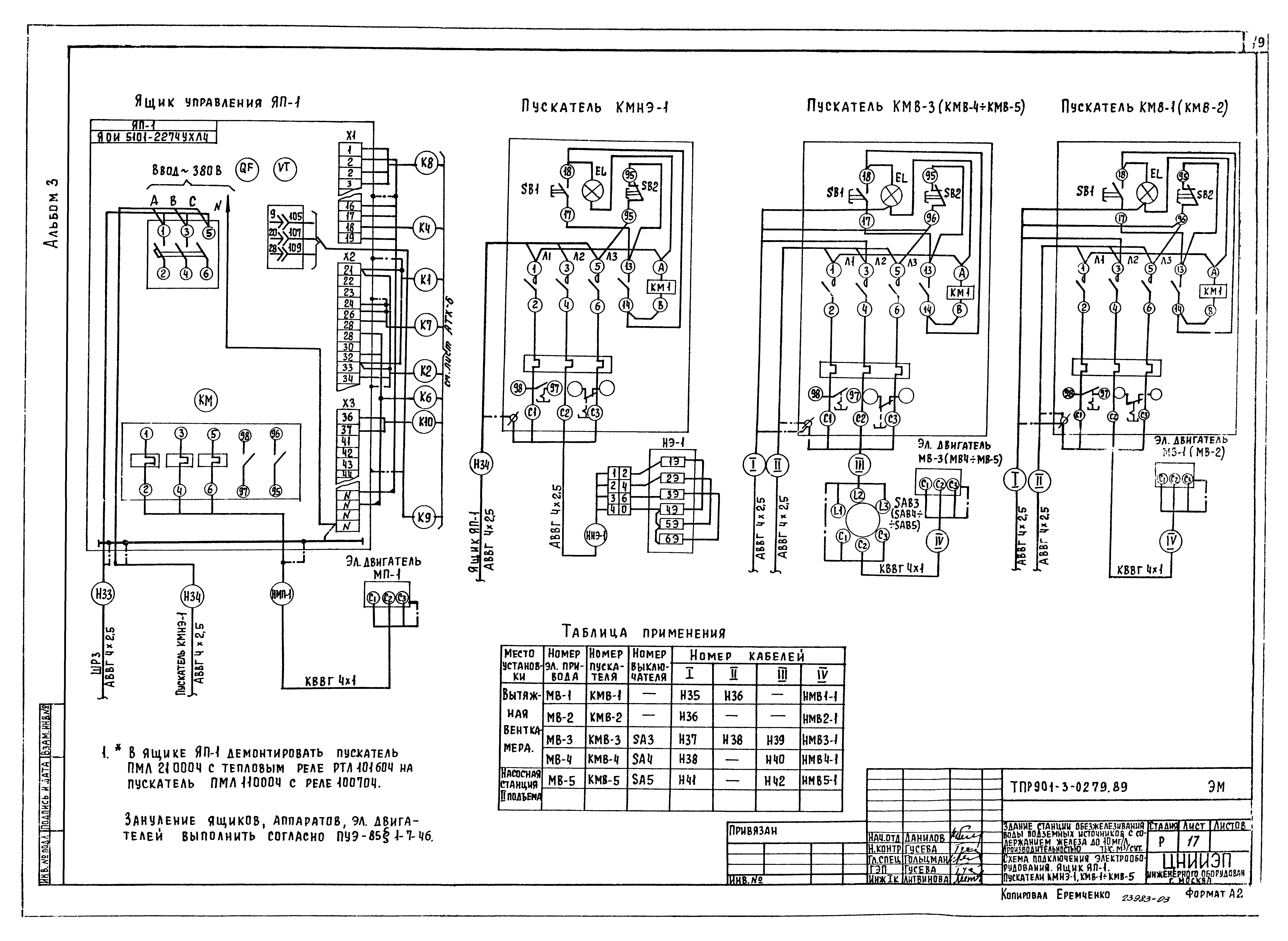
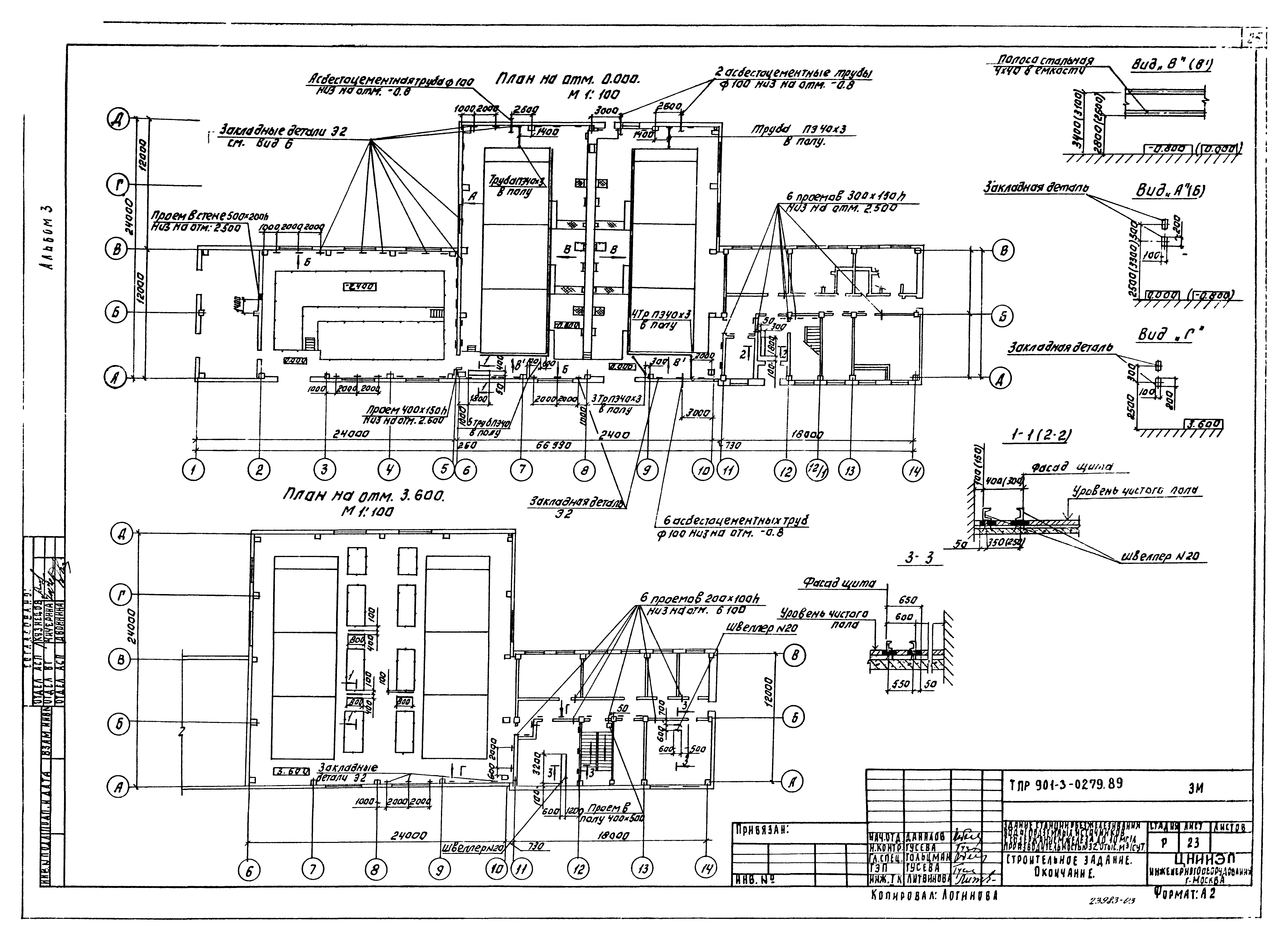
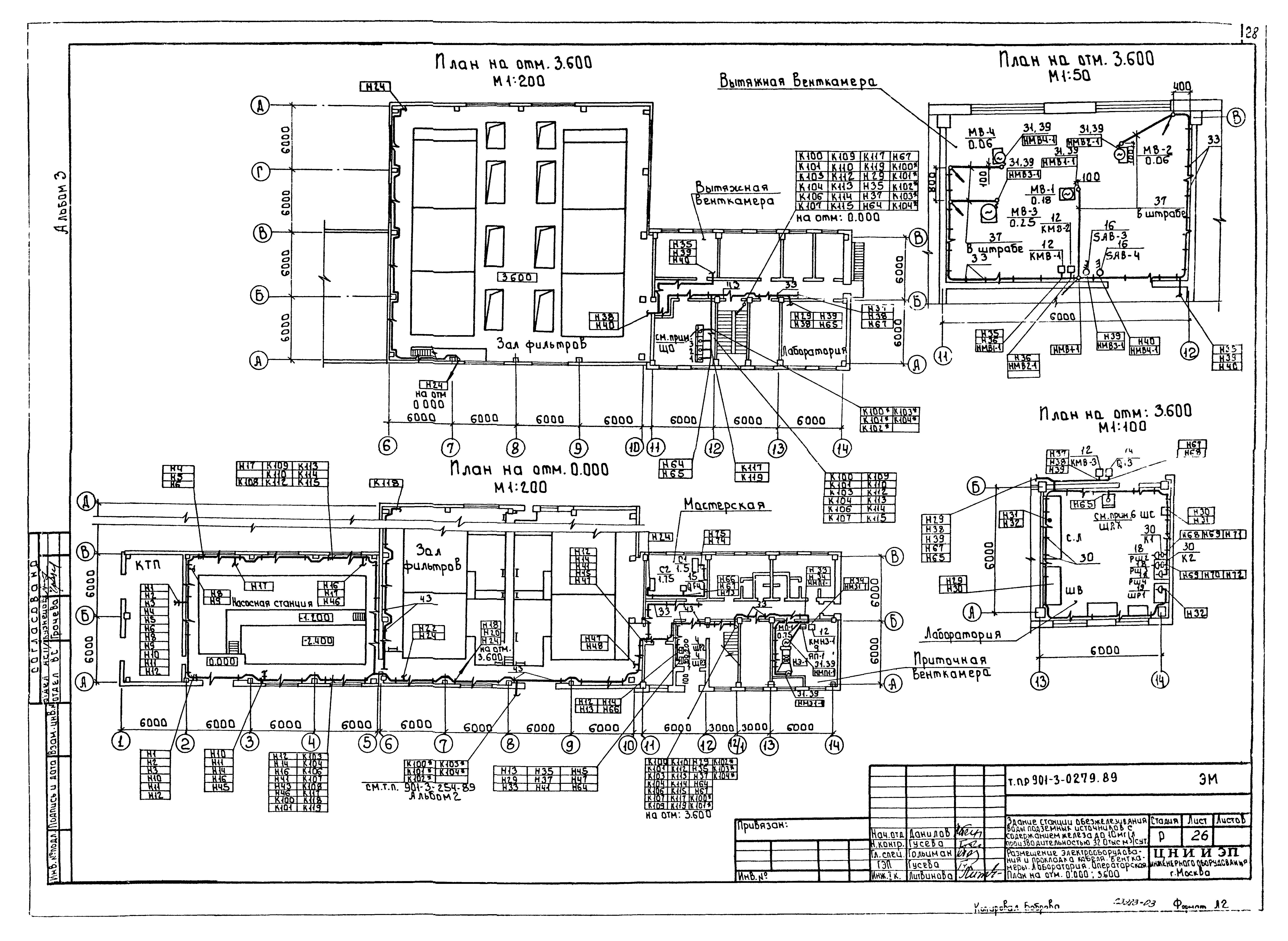
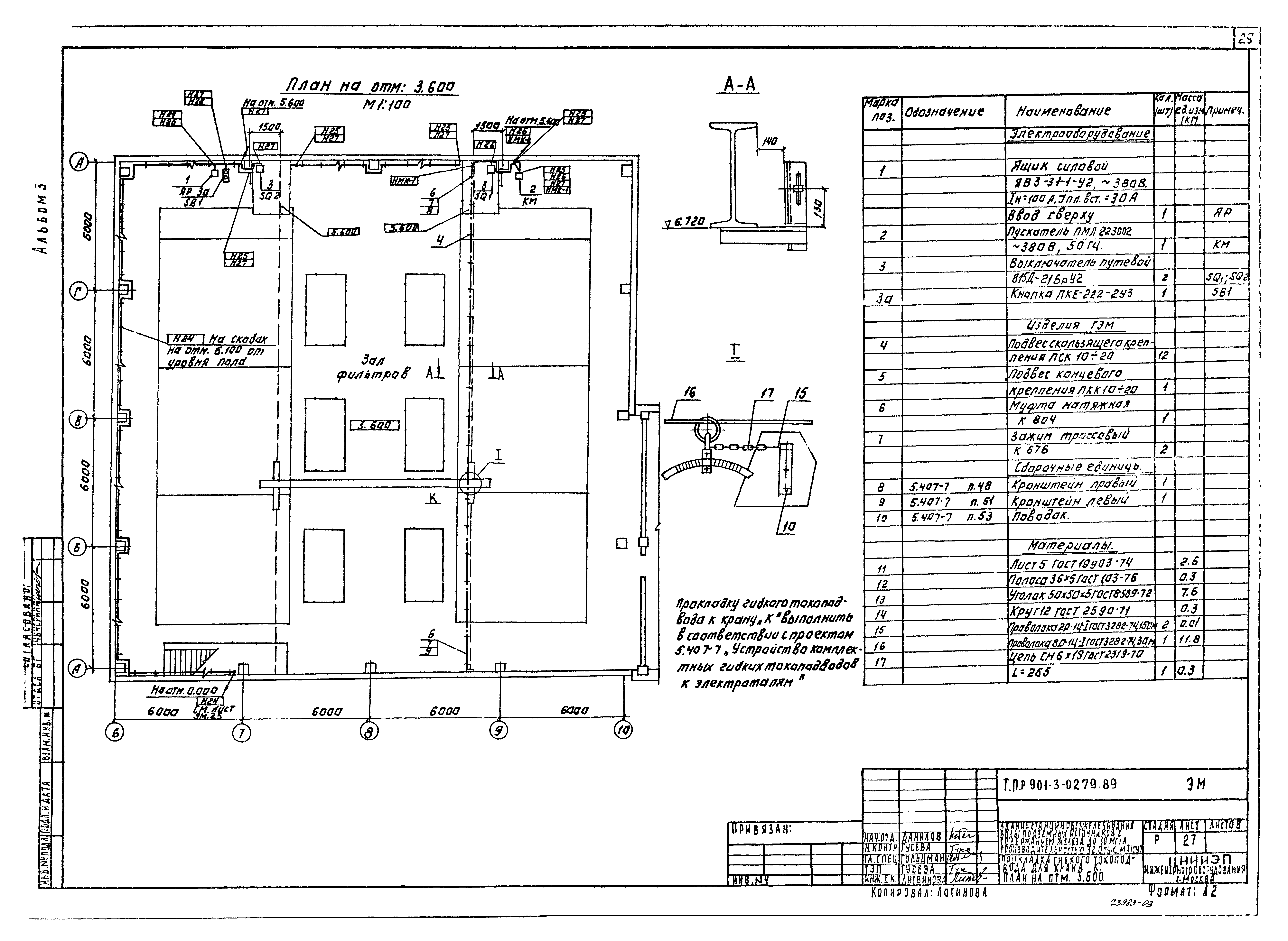
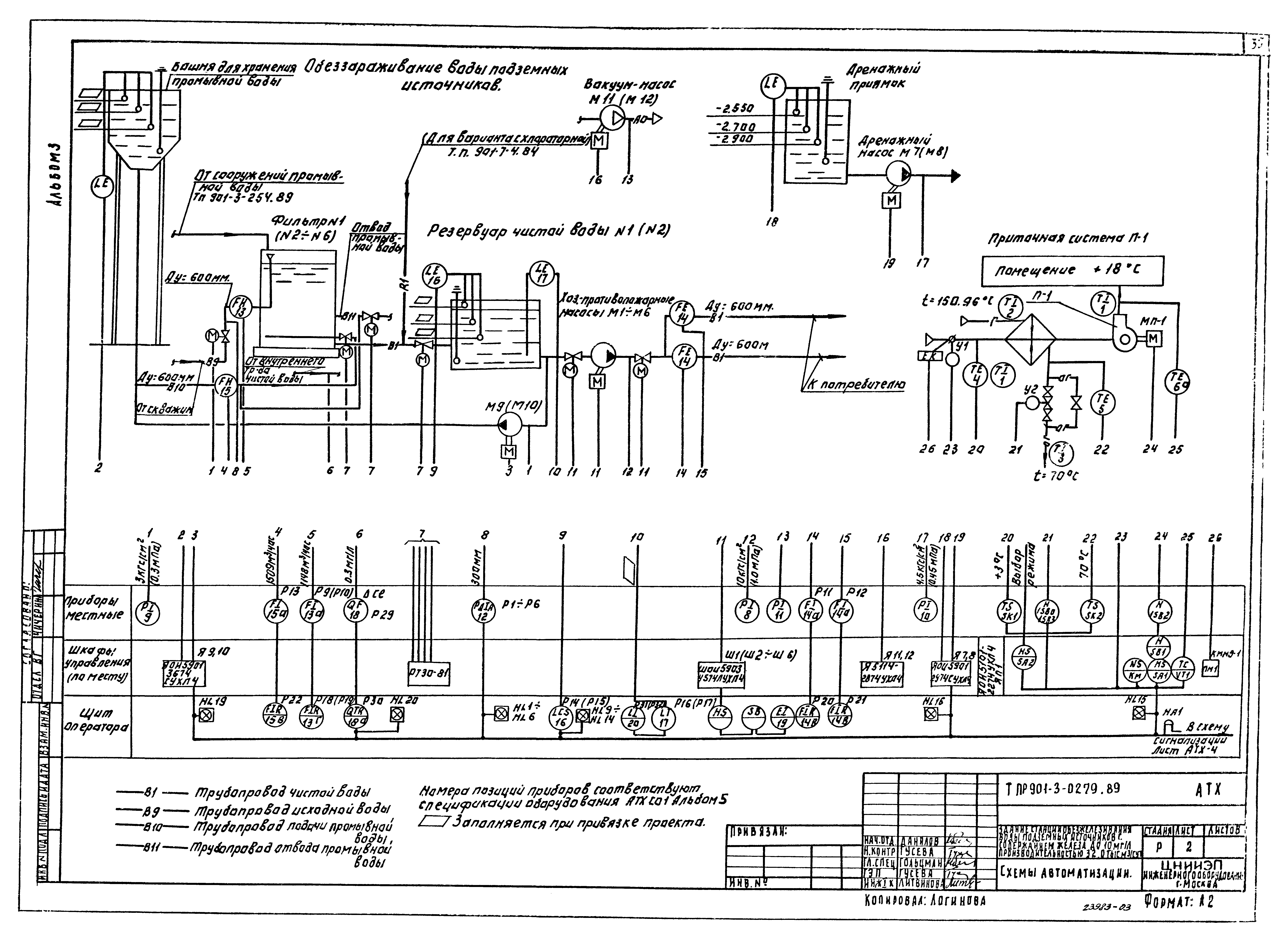
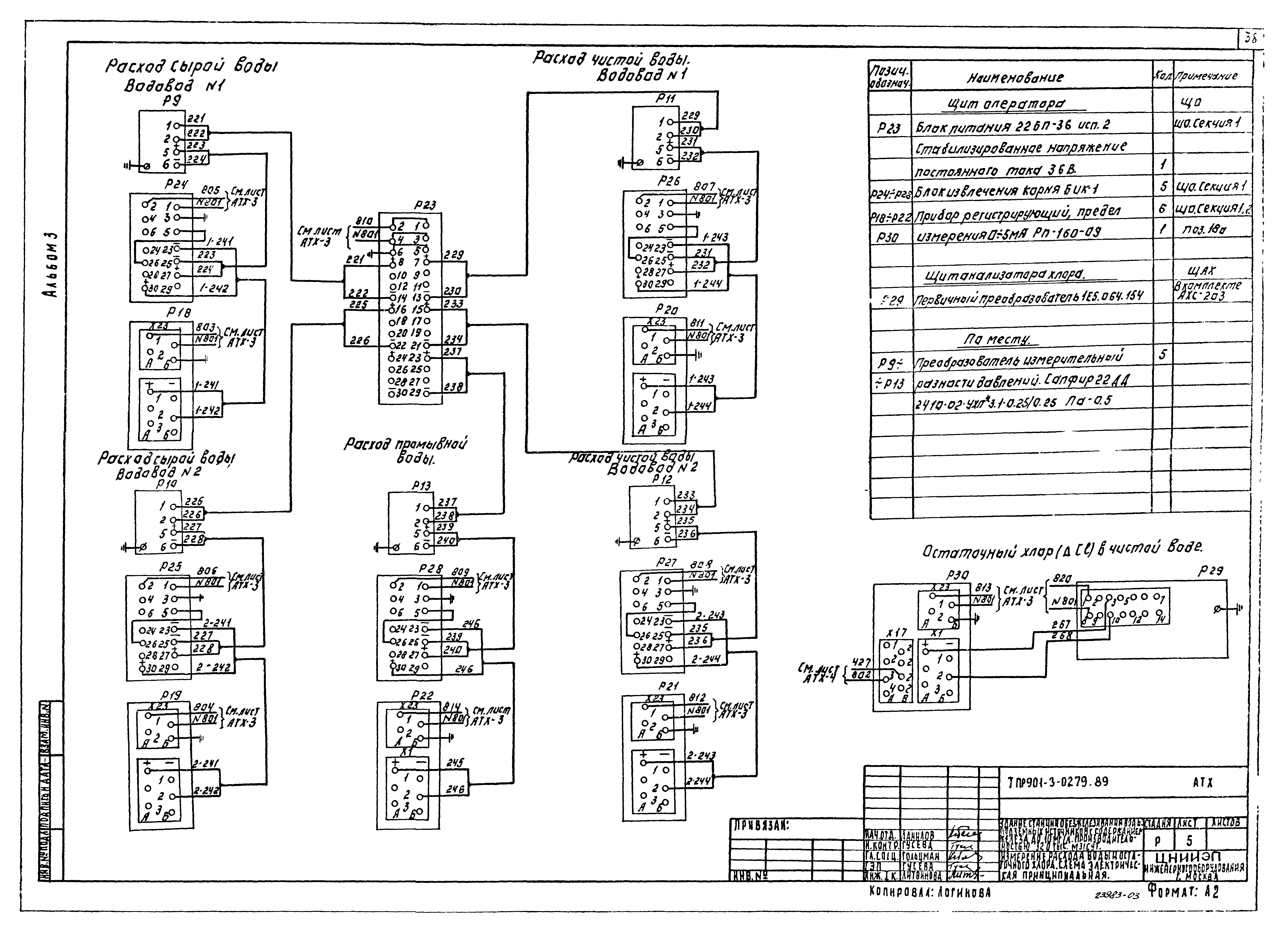
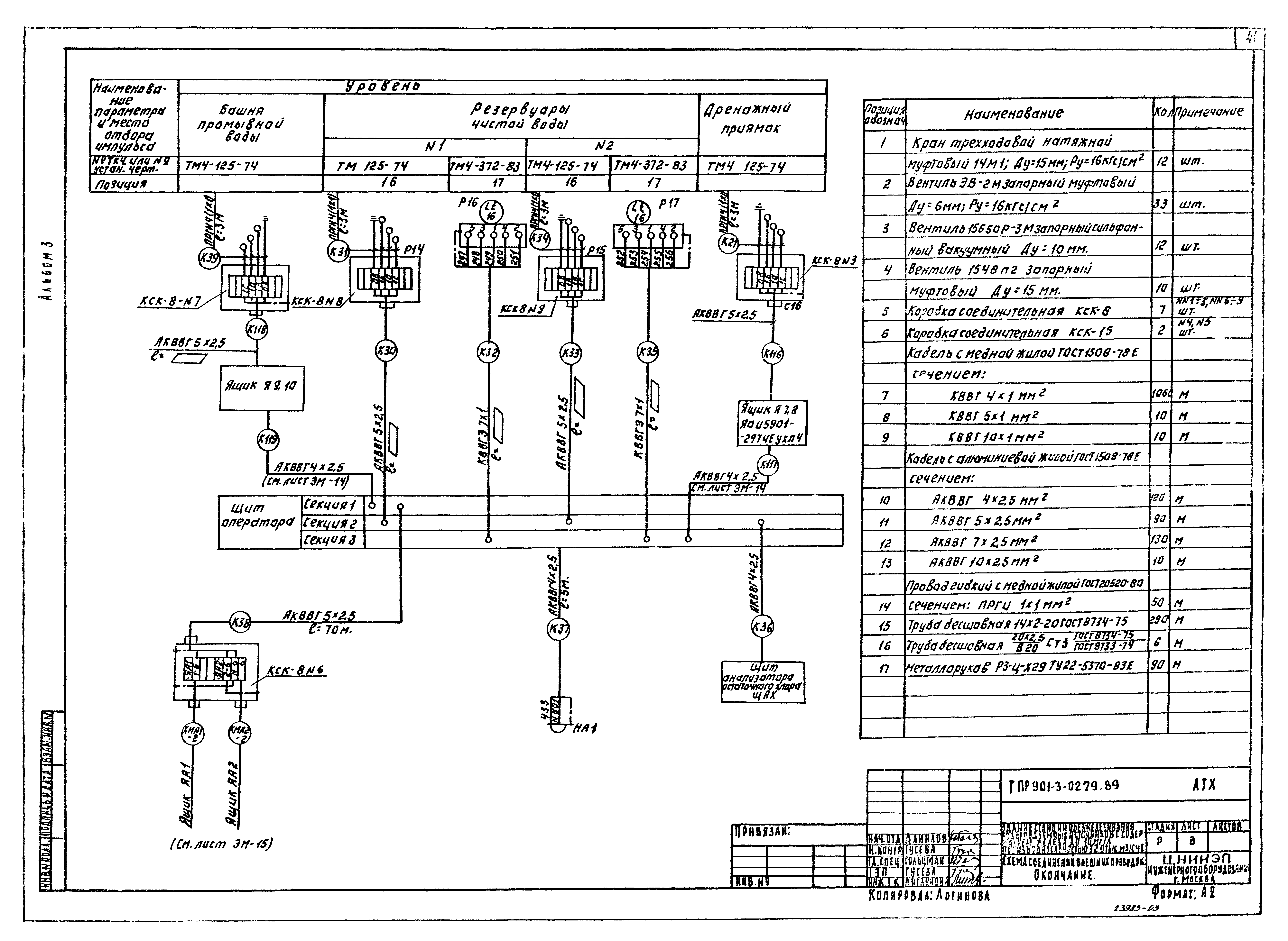
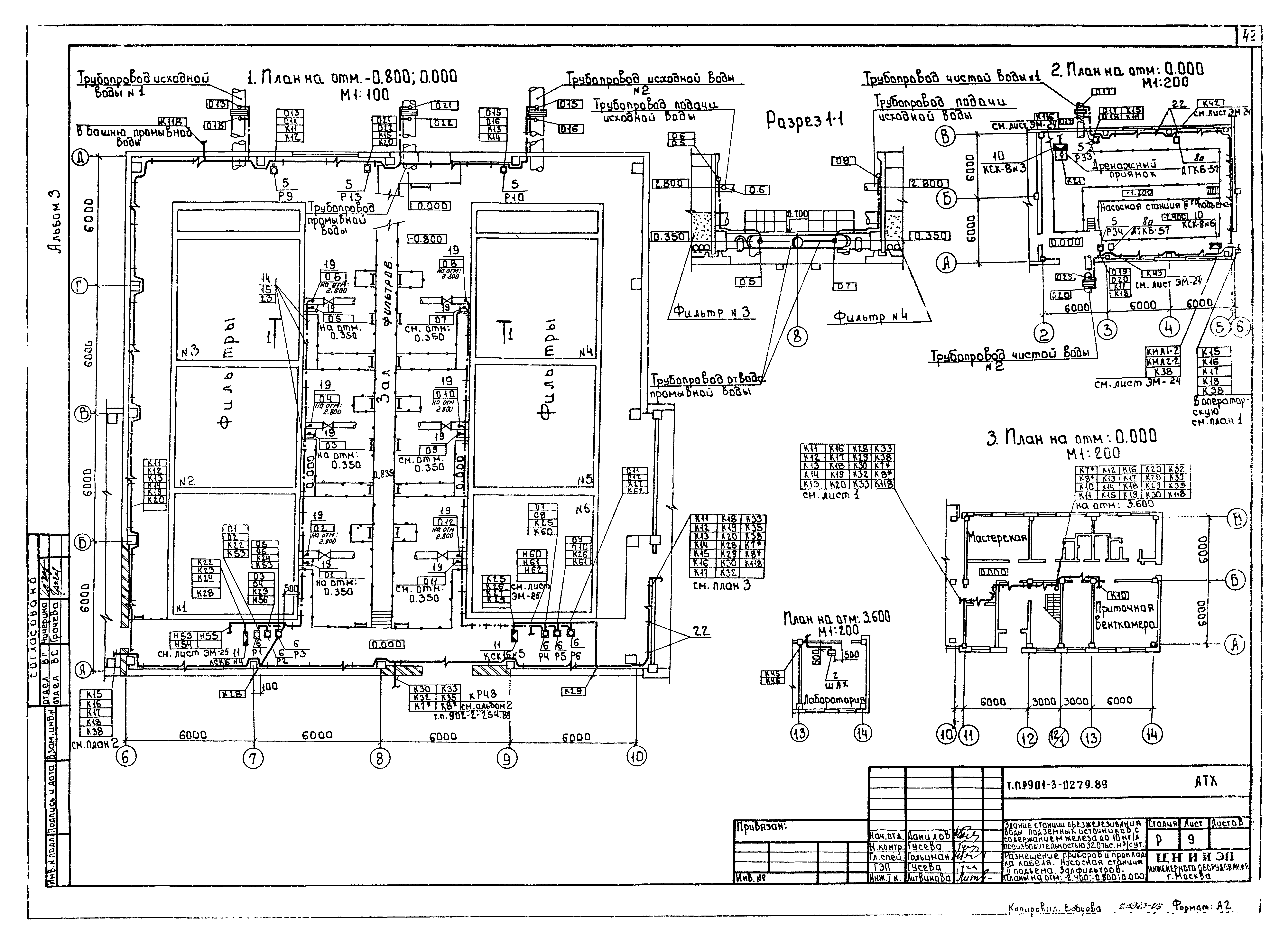
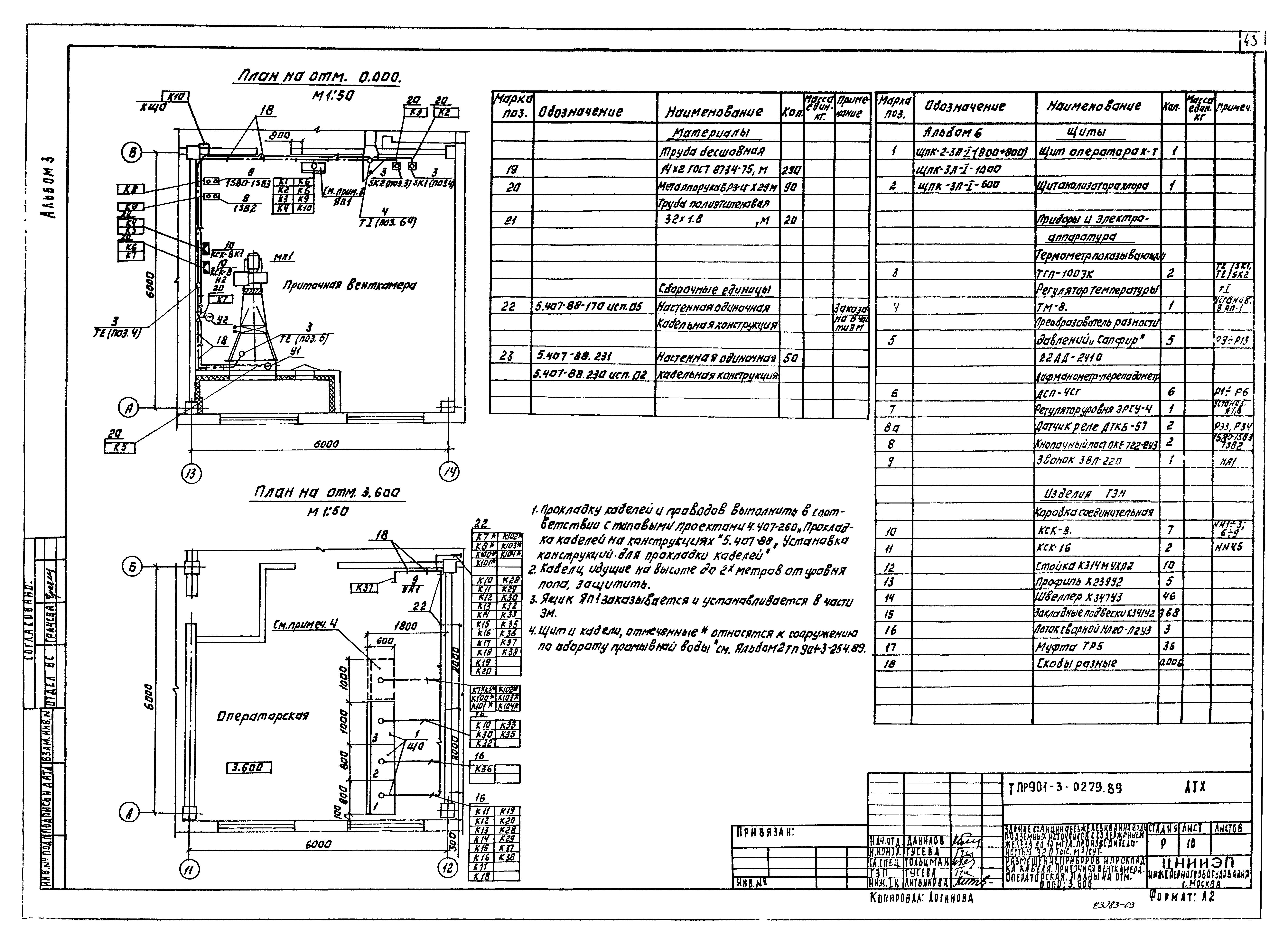
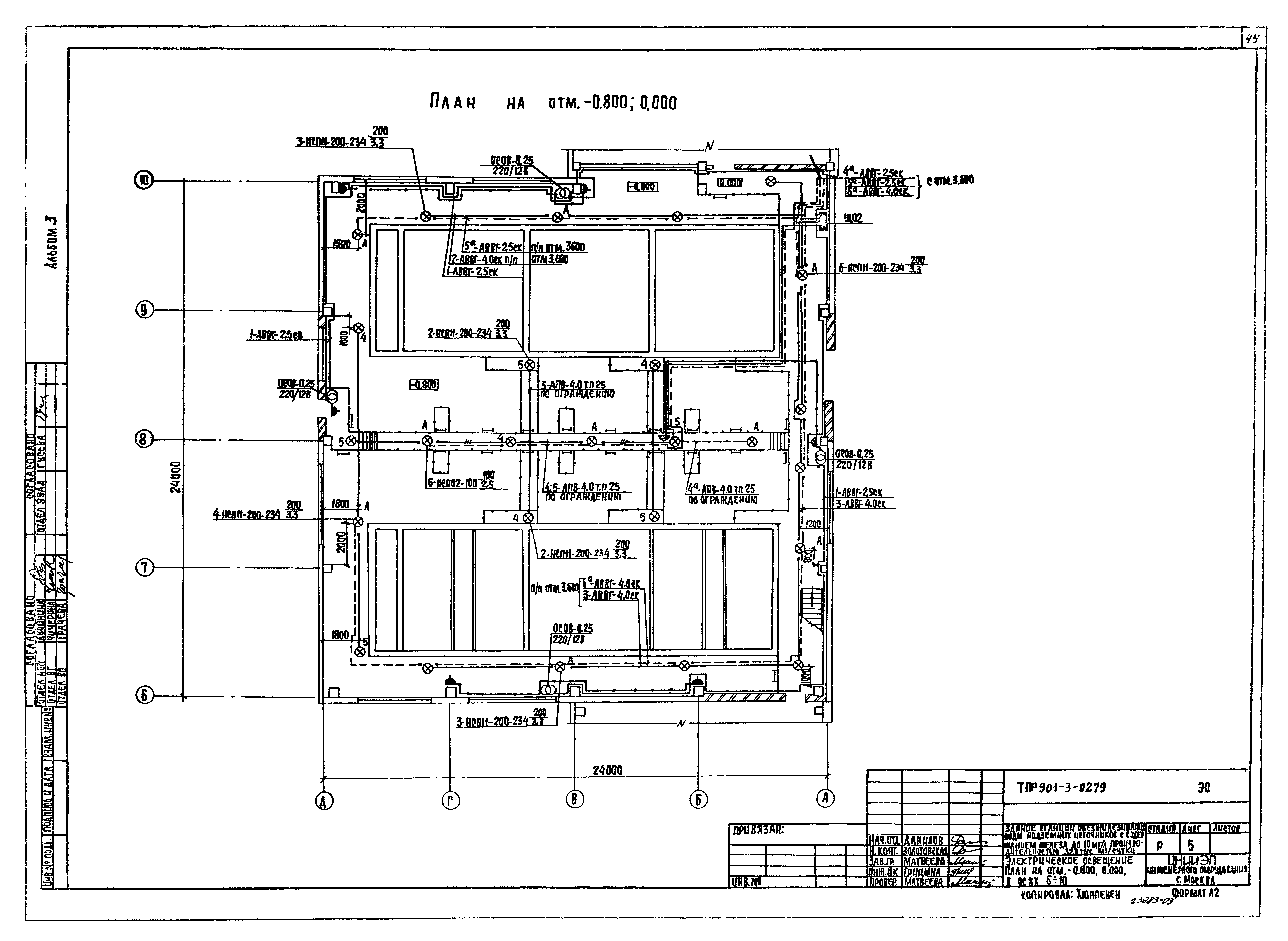
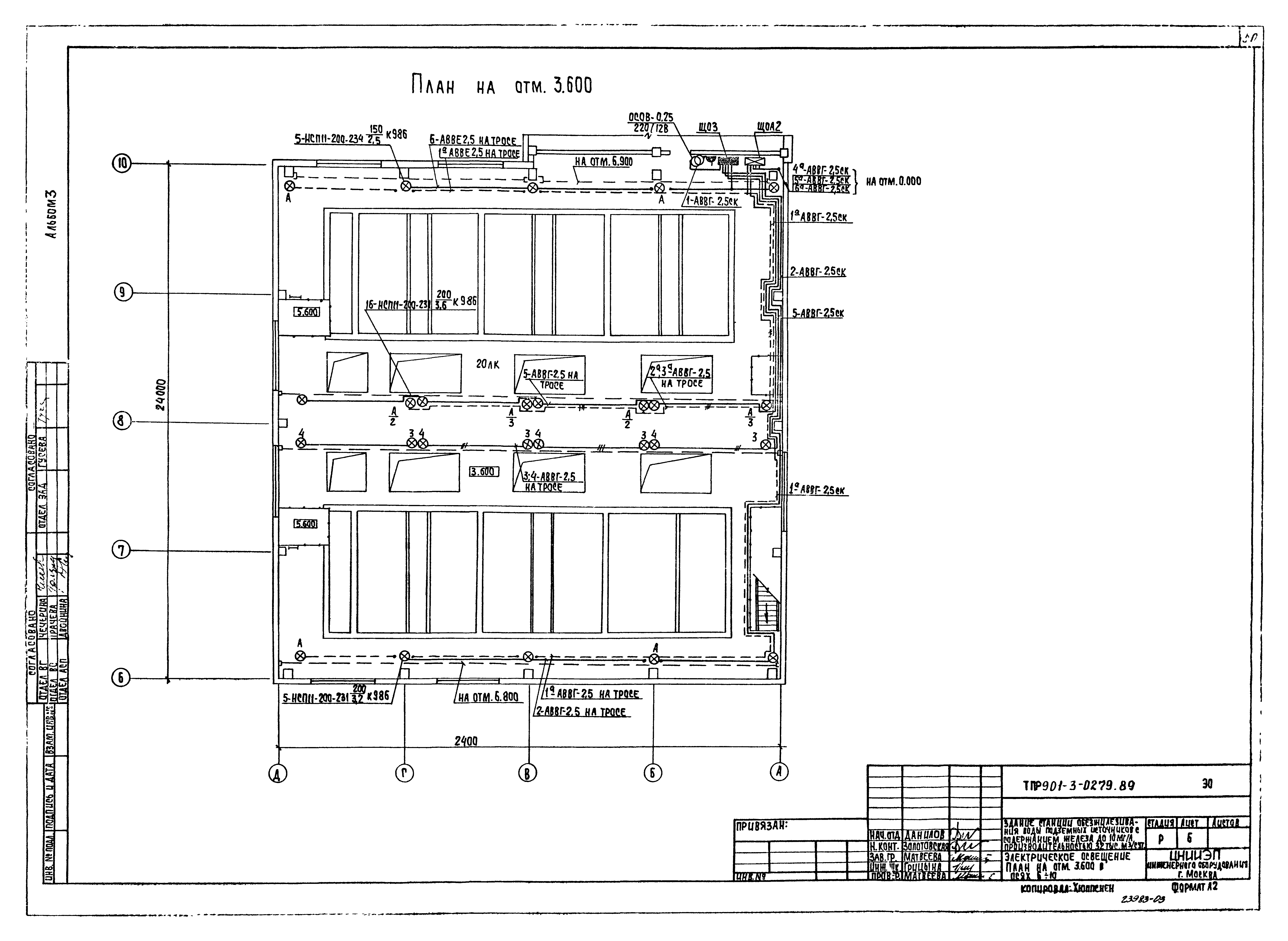
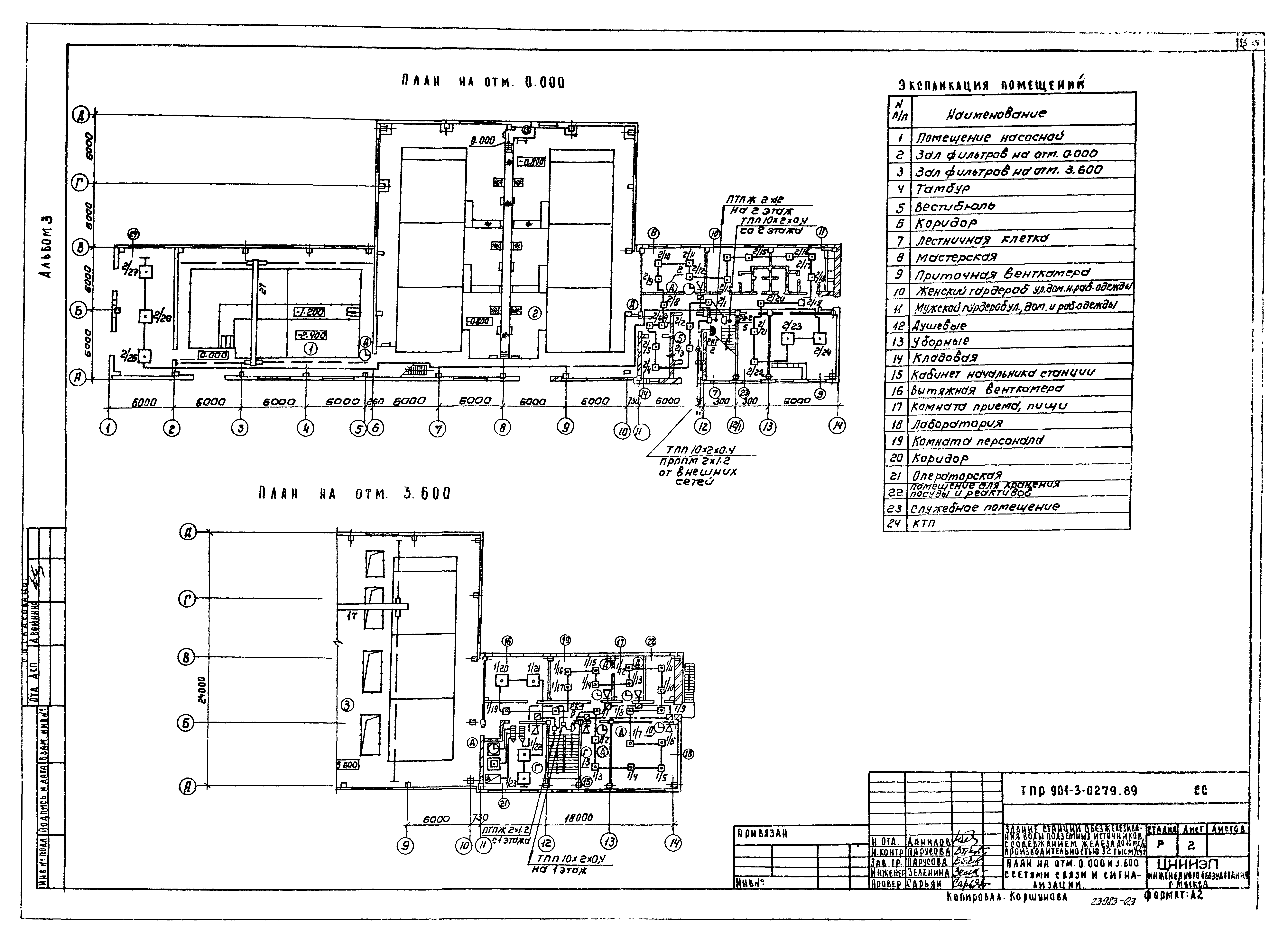
| Оглавление: | Содержание Силовое электрооборудование Общие данные 2КТП-630. Питающая сеть 380/220 В. Принципиальная схема Схема электрическая принципиальная распределительной сети 380/220 В Схема электрическая принципиальная управления задвижками, затворами МФ1 - МФ24; М35 - М-40; М45 - М50; М55 - М63 Схема электрическая принципиальная управления отопительными агрегатами МА1, МА2 Схема электрическая принципиальная электрооборудования при двух дверях ремонтных площадок крана. Схема подключения Схема подключения электрооборудования. Шкафы Ш1 - Ш6 Схема подключения электрооборудования. Ящики Я7, 8; Я9, 10 Схема подключения электрооборудования. Ящики ЯА1, ЯА2, пускатели КМ9-1, КМ10-1 Схема подключения электрооборудования. Шкафы РТ301 - РТ305, РТ30. Задвижки, затворы МФ1 - МФ32; М35 - М40; М45 - М50; М55 - М63 Схема подключения электрооборудования. Ящик ЯП-1. Пускатели КМНЭ-1, КМВ1 - КМВ5 Кабельнотрубный журнал Размещение электрооборудования и прокладка кабеля. Спецификация Строительное задание Размещение электрооборудования и прокладка кабеля. Насосная станция II подъема. План на отм. - 2.400 и 0.000 Размещение электрооборудования и прокладка кабеля. Зал фильтров. Планы на отм. - 0.800; 0.000; 3.600 Размещение электрооборудования и прокладка кабеля. Венткамера, лаборатория, операторская. Планы на отм. 0.000; 3.600 Прокладка гибкого токопровода для крана К. План на отм. 3.600 Строительное задание на установку 2КТП-630 кВА Хмельницкого завода 2КТП-630. Установка электрооборудования. План и разрезы 2КТП-630. Заземление. План на отм. 0.000 Опросный лист для заказа 2КТП-630 Хмельницкого завода трансформаторных подстанций Автоматизация Общие данные Схемы автоматизации Схема электрическая принципиальная питания приборов щитов ЩО, ЩАХ Схема электрическая принципиальная сигнализации Измерение расхода воды и остаточного хлора. Схема электрическая принципиальная Схема соединений внешних проводок Размещение приборов и прокладка кабеля. Насосная станция II подъема. Зал фильтров. Планы на отм. 0.000; 3.600 Размещение приборов и прокладка кабеля. Приточная венткамера. Операторская. План на отм. 0.000; 3.600 Щиты оператора ЩО и остаточного хлора ЩАХ. Схема подключения Электрическое освещение Общие данные Электрическое освещение. Принципиальная схема питающих сетей Электрическое освещение. План питающих сетей на отм. 0.000 и отм. 3.600 Электрическое освещение. План на отм. 0.000 в осях 1 - 5 и отм. - 2.400 в осях 2 - 5 Электрическое освещение. План на отм. 0.000 в осях 6 - 10 Электрическое освещение. План на отм. 3.600 в осях 6 - 10 Электрическое освещение. План на отм. 0.000 и 3.600 в осях 11 - 14 Связь и сигнализация Общие данные. Схема расположения сетей. Спецификация План на отм. 0.000 и 3.600 с сетями связи и сигнализации |
| Разработан: | ЦНИИЭП |
| Утверждён: | 18.11.1985 Госгражданстрой (Gosgrazhdanstroy 346) |
| Издан: | ЦИТП Госстроя СССР (CITP, Gosstroy (USSR) 1990 г. ) |
| Заменяет собой: |
|






















































