Скачать Типовой проект 901-6-81.86 Альбом I. Общие указания. Эскизные чертежи и узлы общих нетиповых конструкцийДата актуализации: 01.01.2021
|
| Обозначение: | Типовой проект 901-6-81.86 |
| Обозначение англ: | 901-6-81.86 |
| Статус: | не действует |
| Название рус.: | Альбом I. Общие указания. Эскизные чертежи и узлы общих нетиповых конструкций |
| Дата добавления в базу: | 01.09.2013 |
| Дата актуализации: | 01.01.2021 |
| Дата введения: | 22.08.1985 |
| Дата окончания срока действия: | 01.07.1996 |
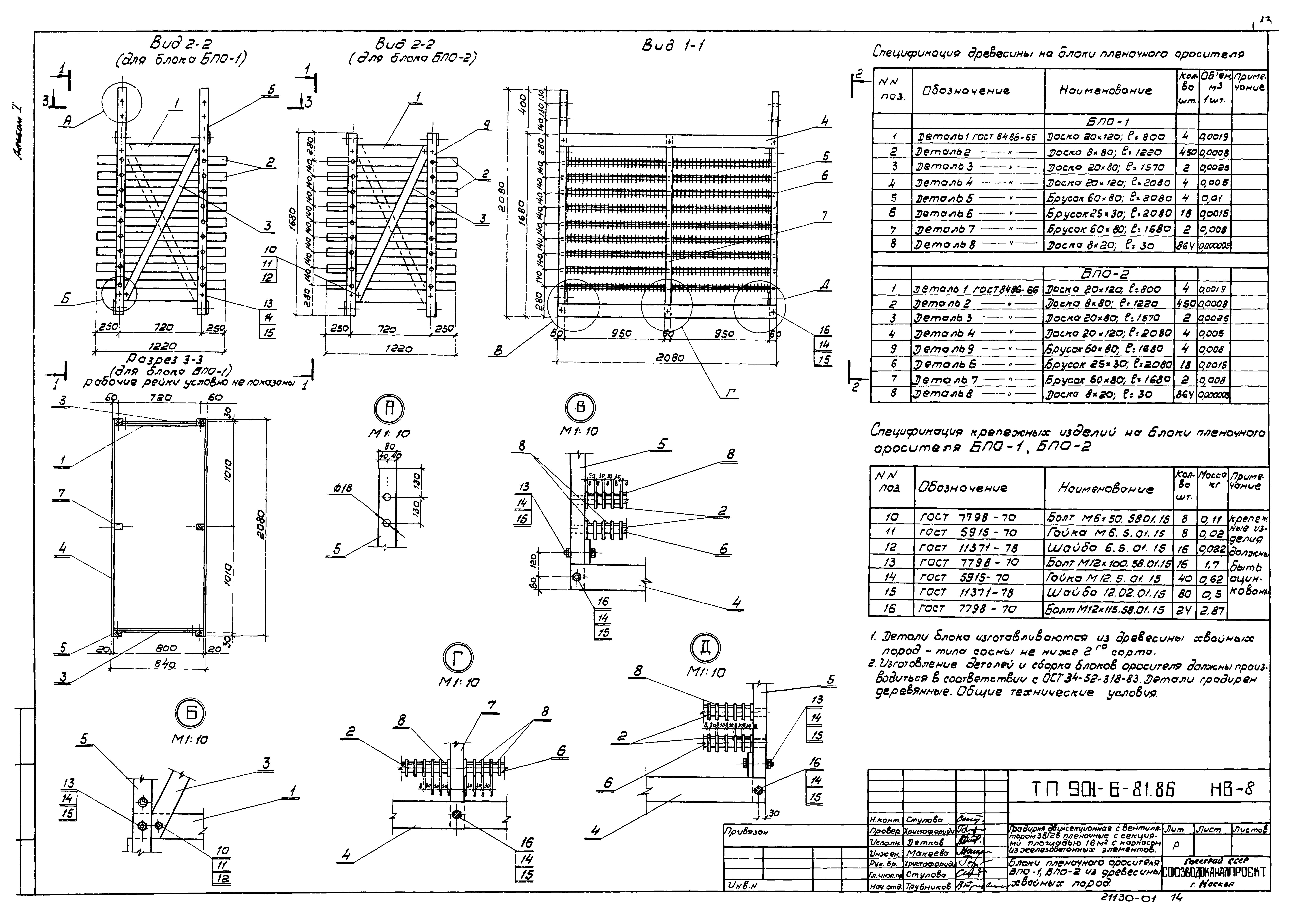
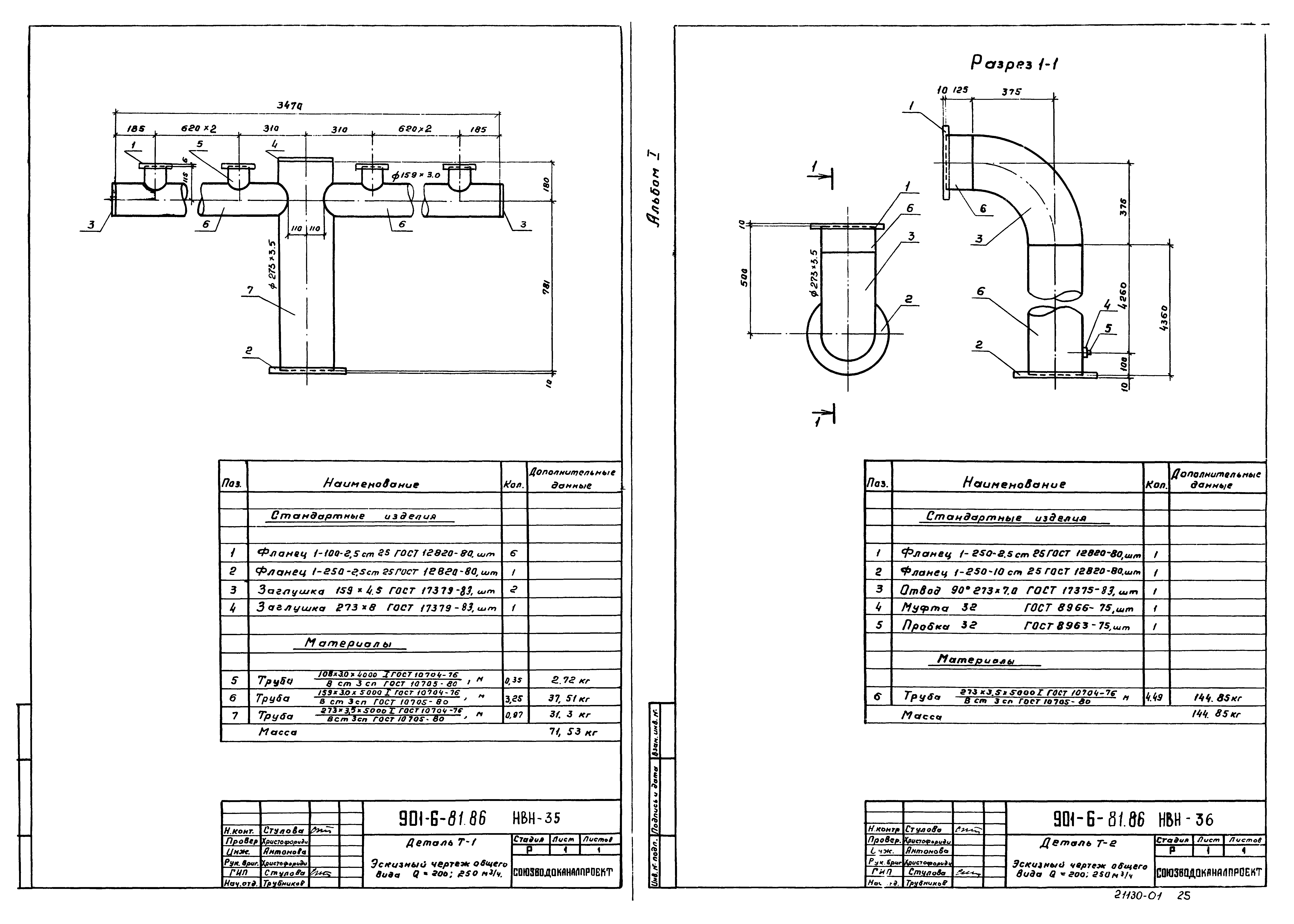
| Оглавление: | Содержание альбома Общие указания Водоуловительные решетки ВР-1, ВР-2 из древесины хвойных пород Водоуловительные решетки ВР-1, ВР-2 из модифицированной древесины Детали водоуловительных решеток Деталь 1 (для ВР-1, ВР-2) Деталь 2 (для ВР-1, ВР-2) Деталь 3, 3А (для ВР-1, ВР-2) Деталь Т4 (для ВР-1, ВР-2) Блок пленочного оросителя БПО-1. Аксонометрическая схема Блоки пленочного оросителя БПО-1, БПО-2 из древесины хвойных пород Блоки пленочного оросителя БПО-3, БПО-4 из древесины хвойных пород Блоки пленочного оросителя БПО-1, БПО-2 из модифицированной древесины Блоки пленочного оросителя БПО-3, БПО-4 из модифицированной древесины Детали блоков пленочного оросителя Деталь 1 (БПО1, 2) Деталь 2 (БПО1, 2) Деталь 3 (БПО1, 2) Деталь 4, 4А (БПО1, 2) Деталь 5 (БПО1, 2) Деталь 6, 6А (БПО1, 2) Деталь 7 (БПО1, 2) Деталь 8, 8А (БПО1, 2) Деталь 9 (БПО1, 2) Деталь 1, 2, 2А (БПО3, 4) Деталь 3 (БПО3, 4) Деталь 4 (БПО3, 4) Деталь 5 (БПО3, 4) Деталь 6 (БПО3, 4) Деталь 7 (БПО3, 4) Деталь 8 (БПО3, 4) Деталь 9, 10 (БПО3, 4) Детали водораспределительных систем Деталь Т-1. Эскизный чертеж общего вида Q = 100, 150 куб. м/час Деталь Т-2. Эскизный чертеж общего вида Q = 100, 150 куб. м/час Деталь Т-3. Эскизный чертеж общего вида Q = 100, 150 куб. м/час Деталь Т-3А. Эскизный чертеж общего вида Q = 100, 150 куб. м/час Деталь Т-4. Эскизный чертеж общего вида Q = 100, 150 куб. м/час Деталь Т-5. Эскизный чертеж общего вида Q = 100, 150 куб. м/час Деталь Т-1. Эскизный чертеж общего вида Q = 200, 250 куб. м/час Деталь Т-2. Эскизный чертеж общего вида Q = 200, 250 куб. м/час Деталь Т-3. Эскизный чертеж общего вида Q = 200 куб. м/час Деталь Т-3А. Эскизный чертеж общего вида Q = 250 куб. м/час Деталь Т-4. Эскизный чертеж общего вида Q = 200, 250 куб. м/час Деталь Т-5. Эскизный чертеж общего вида Q = 200, 250 куб. м/час Деталь Т-6. Эскизный чертеж общего вида Q = 100, 150 куб. м/час Деталь Т-6А. Эскизный чертеж общего вида Q = 200, 250 куб. м/час Водосборный бассейн Защитная решетка. Эскизный чертеж общего вида Переливная труба. Эскизный чертеж общего вида |
| Разработан: | Союзводоканалпроект |
| Утверждён: | 03.12.1984 Госстрой СССР (Государственный комитет Совета Министров СССР по делам строительства) (USSR Gosstroy 37) |
| Заменяет собой: |





























