Скачать Типовой проект 901-6-81.86 Альбом II. Технологические, архитектурно-строительные, электротехнические чертежи, спецификации оборудованияДата актуализации: 01.01.2021
|
| Обозначение: | Типовой проект 901-6-81.86 |
| Обозначение англ: | 901-6-81.86 |
| Статус: | не действует |
| Название рус.: | Альбом II. Технологические, архитектурно-строительные, электротехнические чертежи, спецификации оборудования |
| Дата добавления в базу: | 01.09.2013 |
| Дата актуализации: | 01.01.2021 |
| Дата введения: | 22.08.1985 |
| Дата окончания срока действия: | 01.07.1996 |
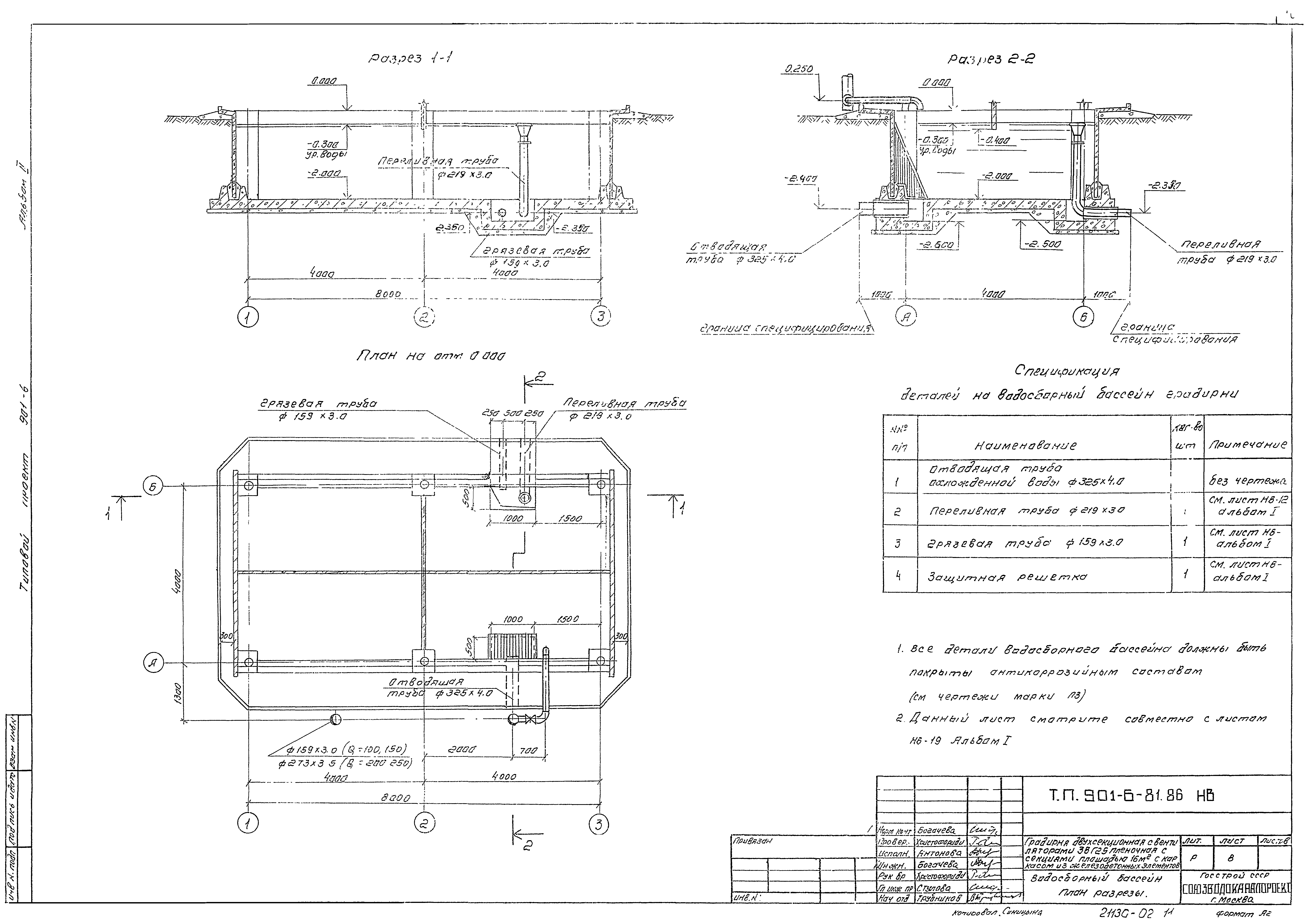
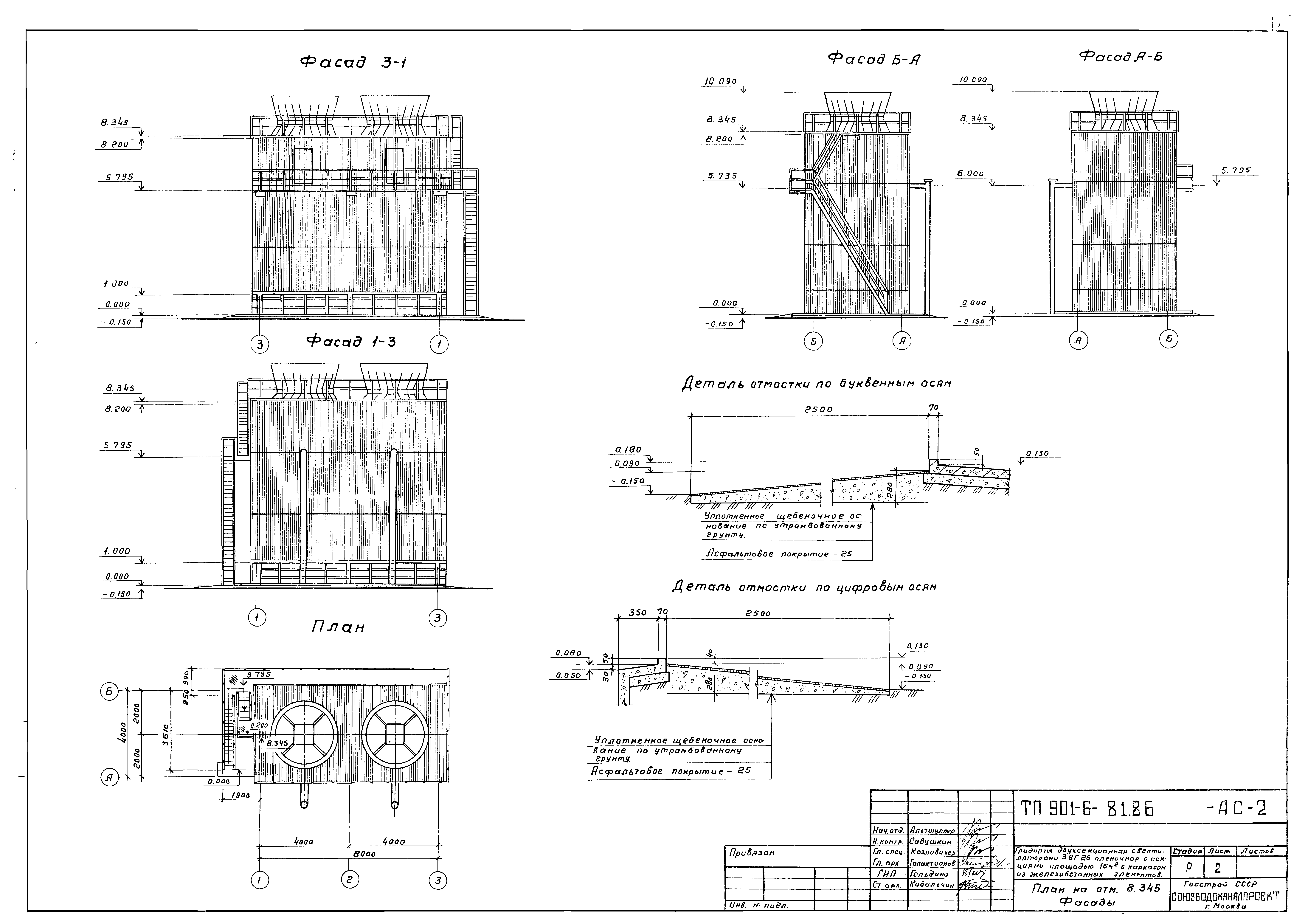
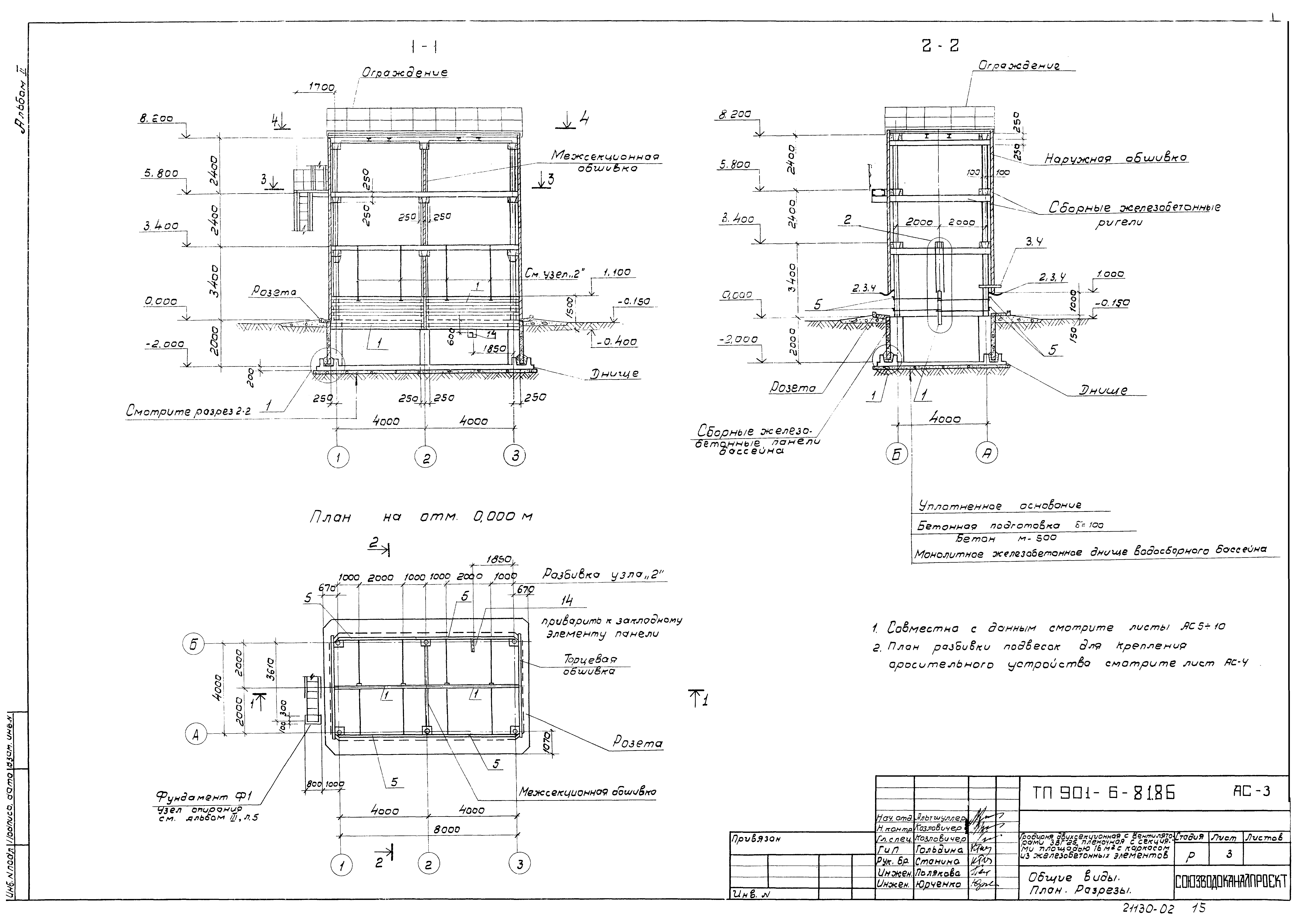
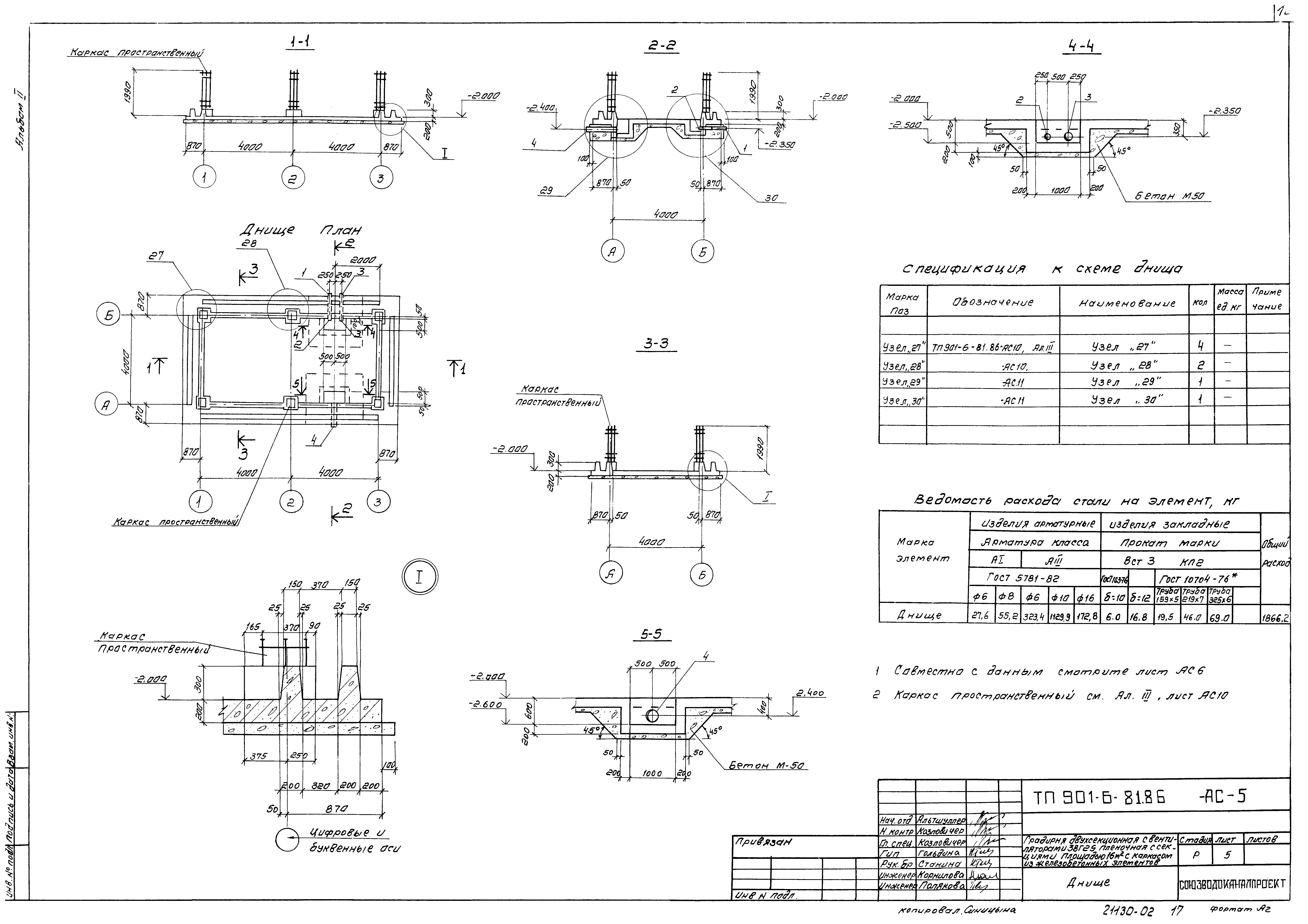
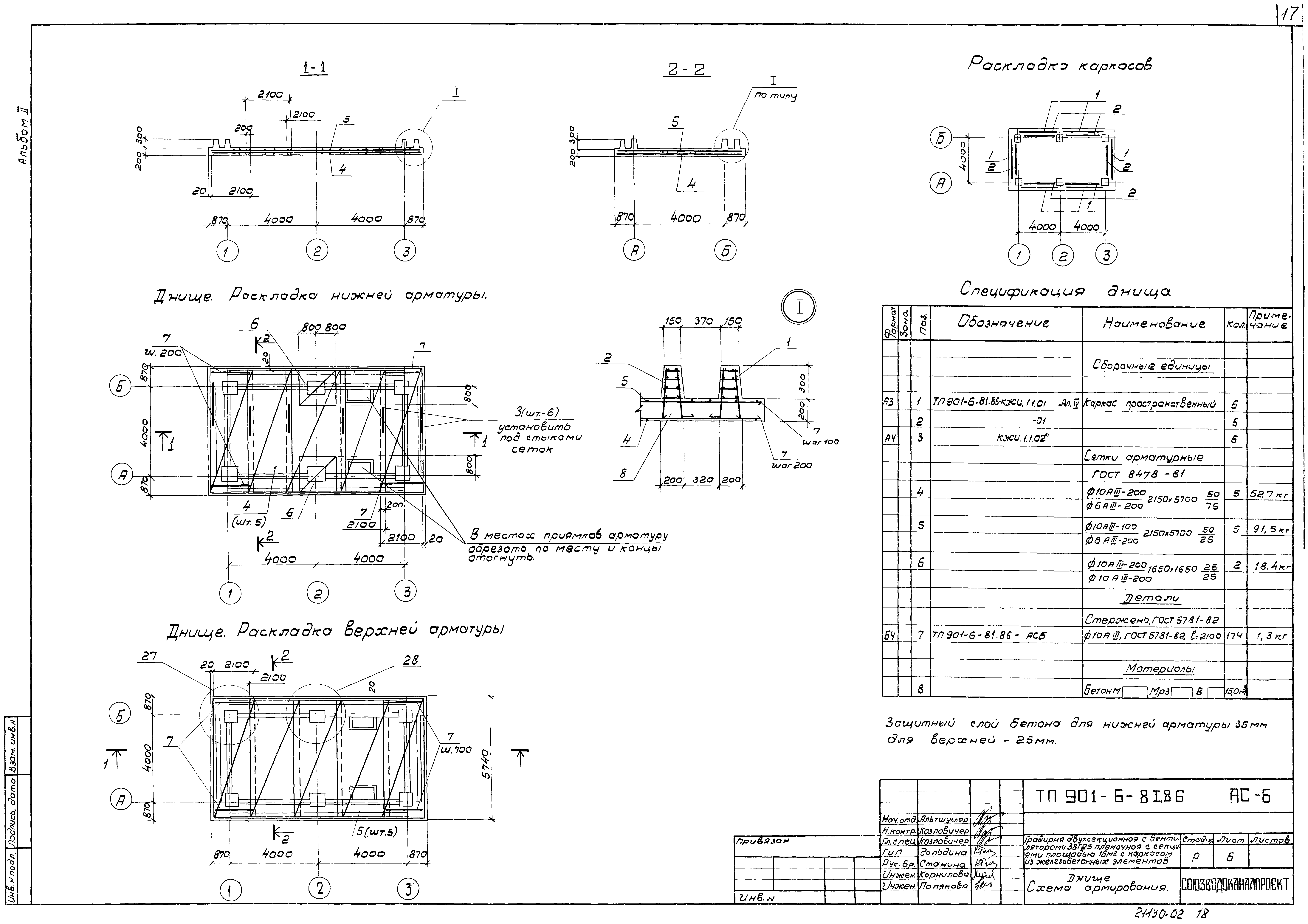
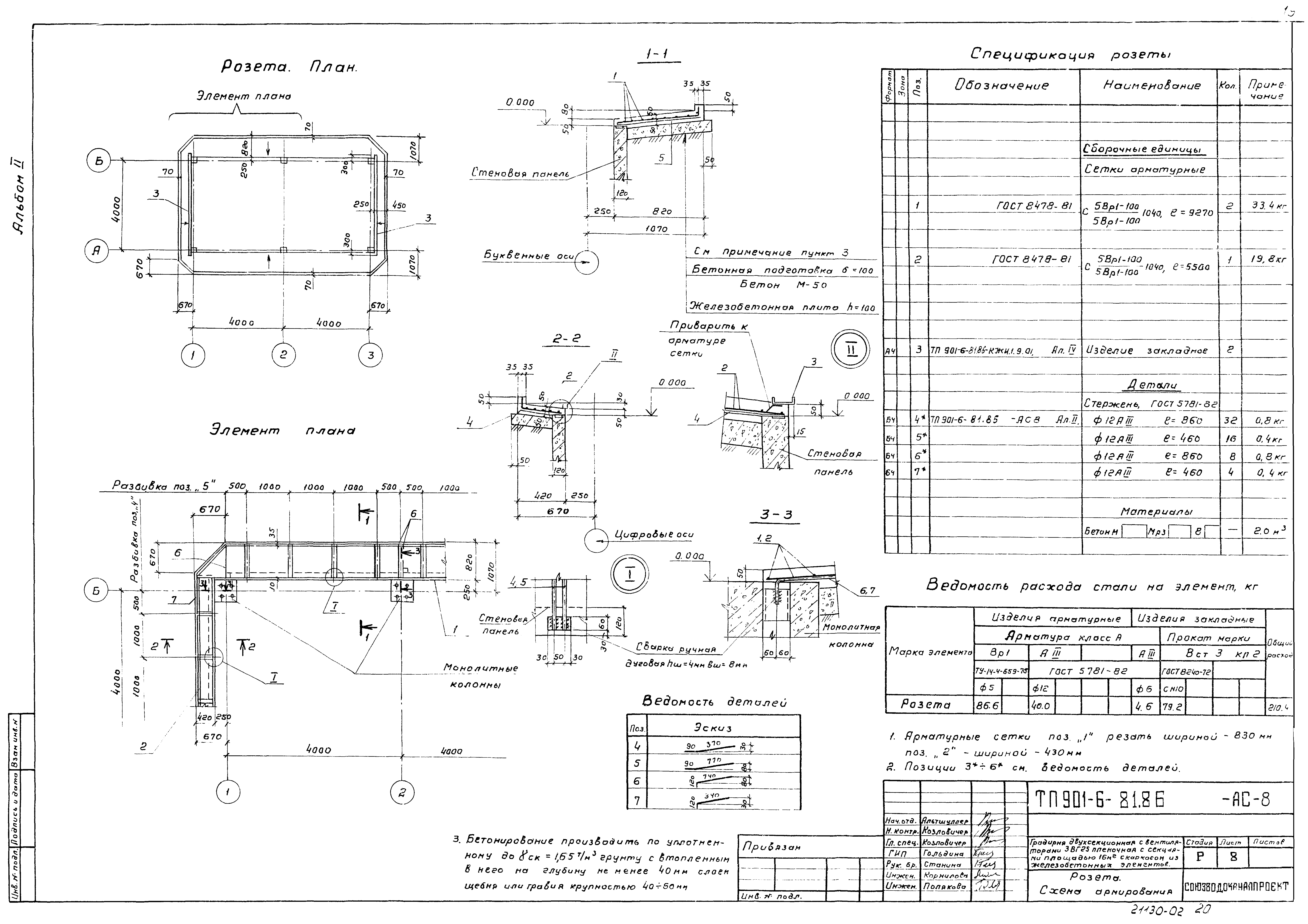
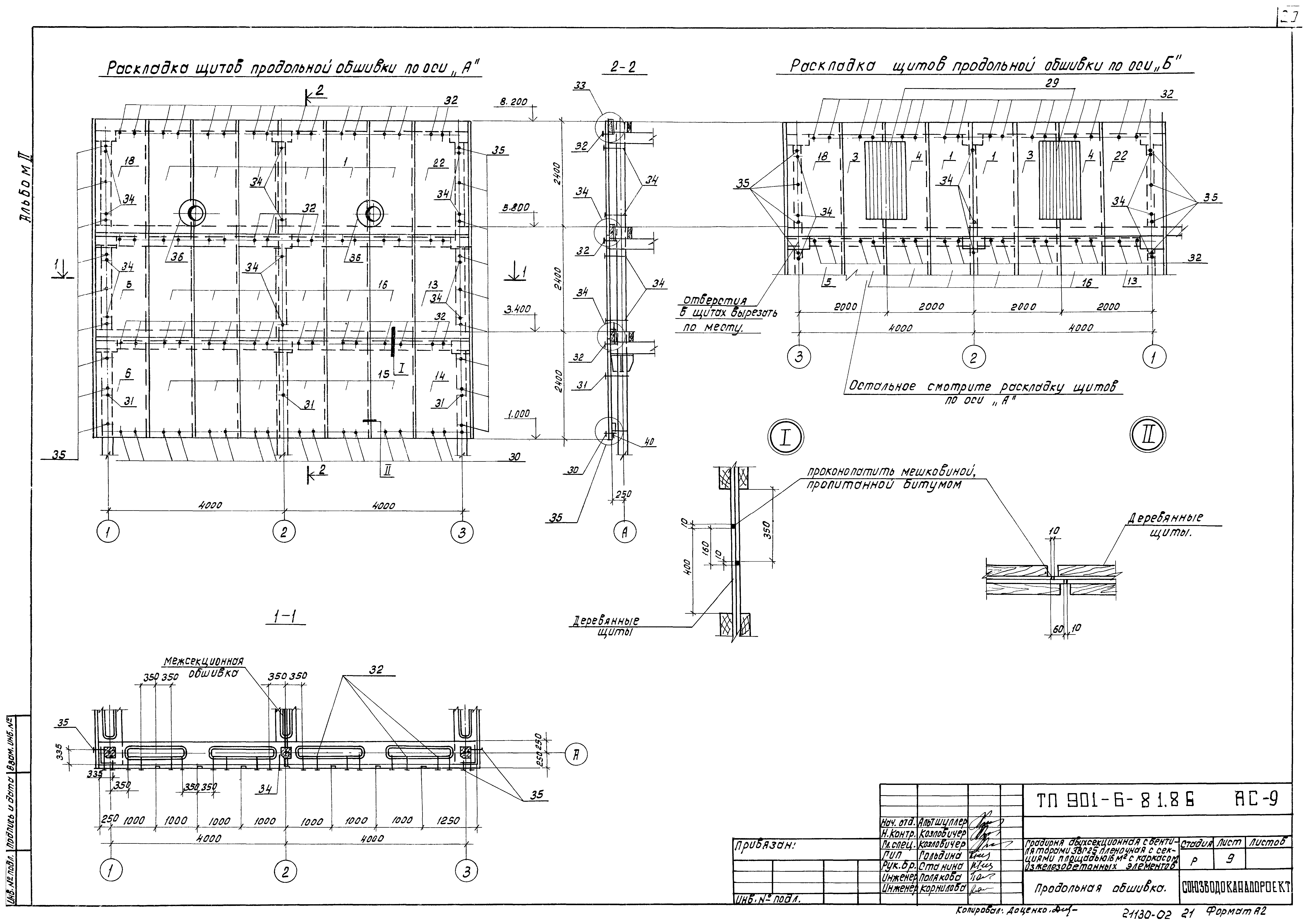
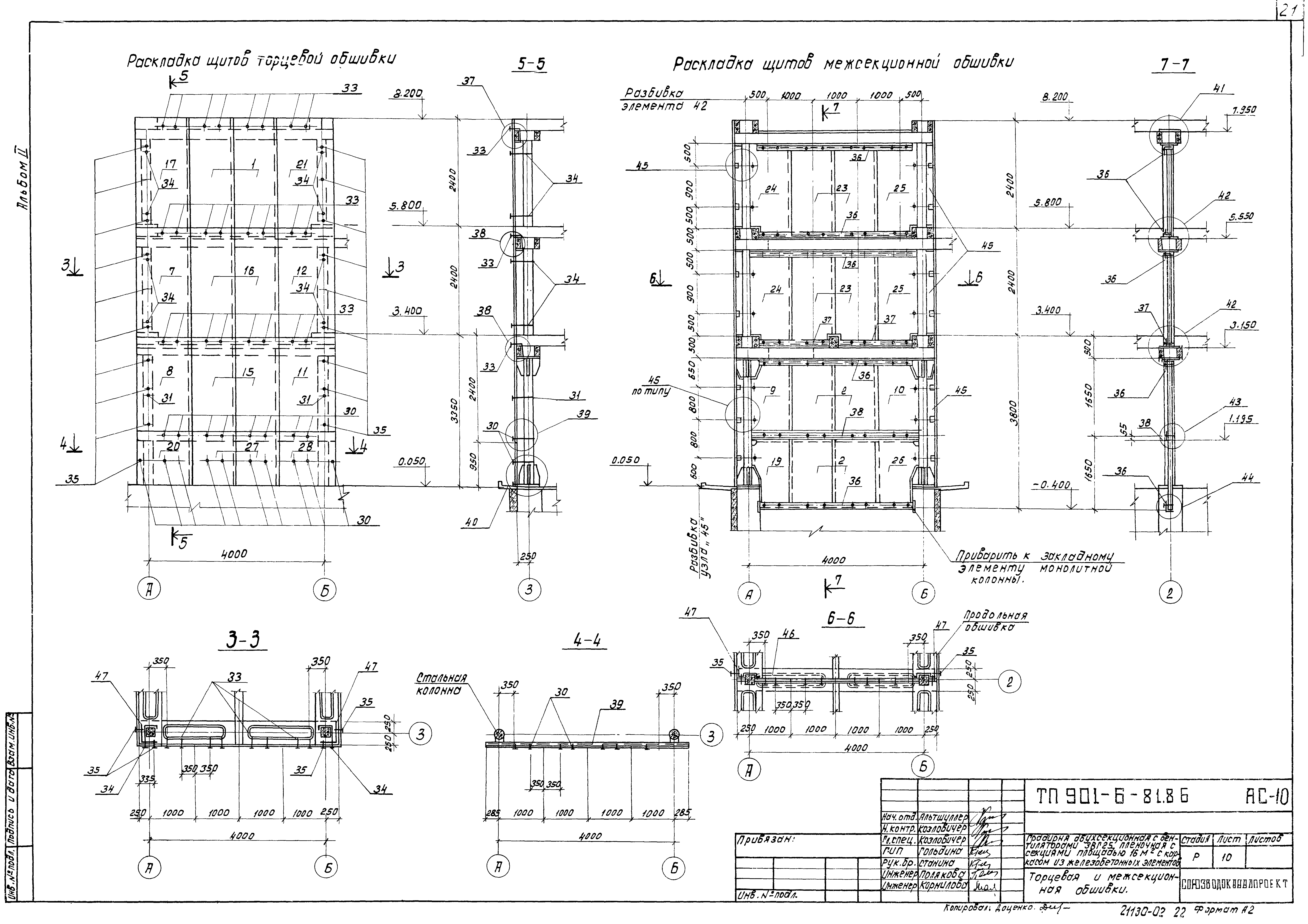
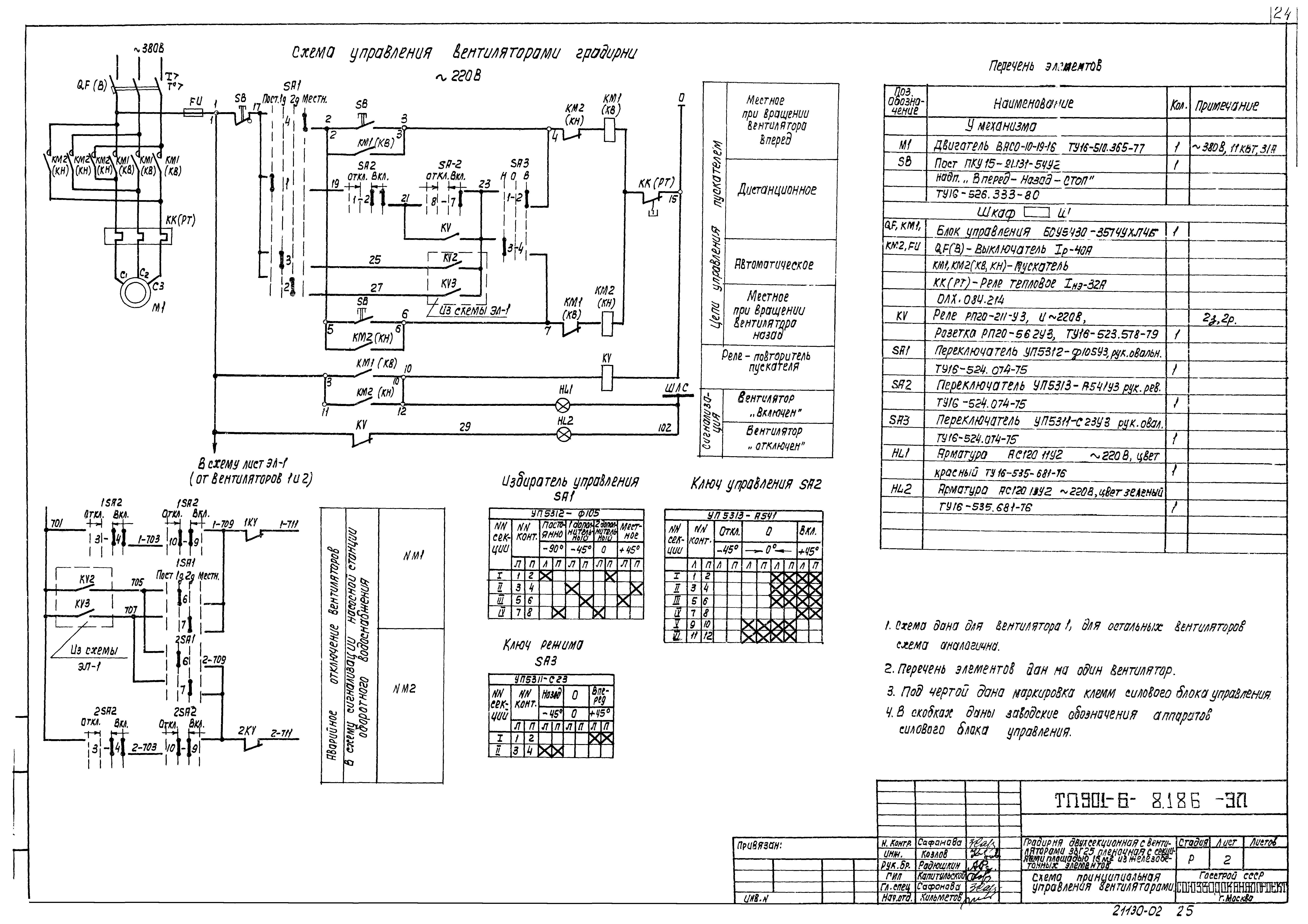
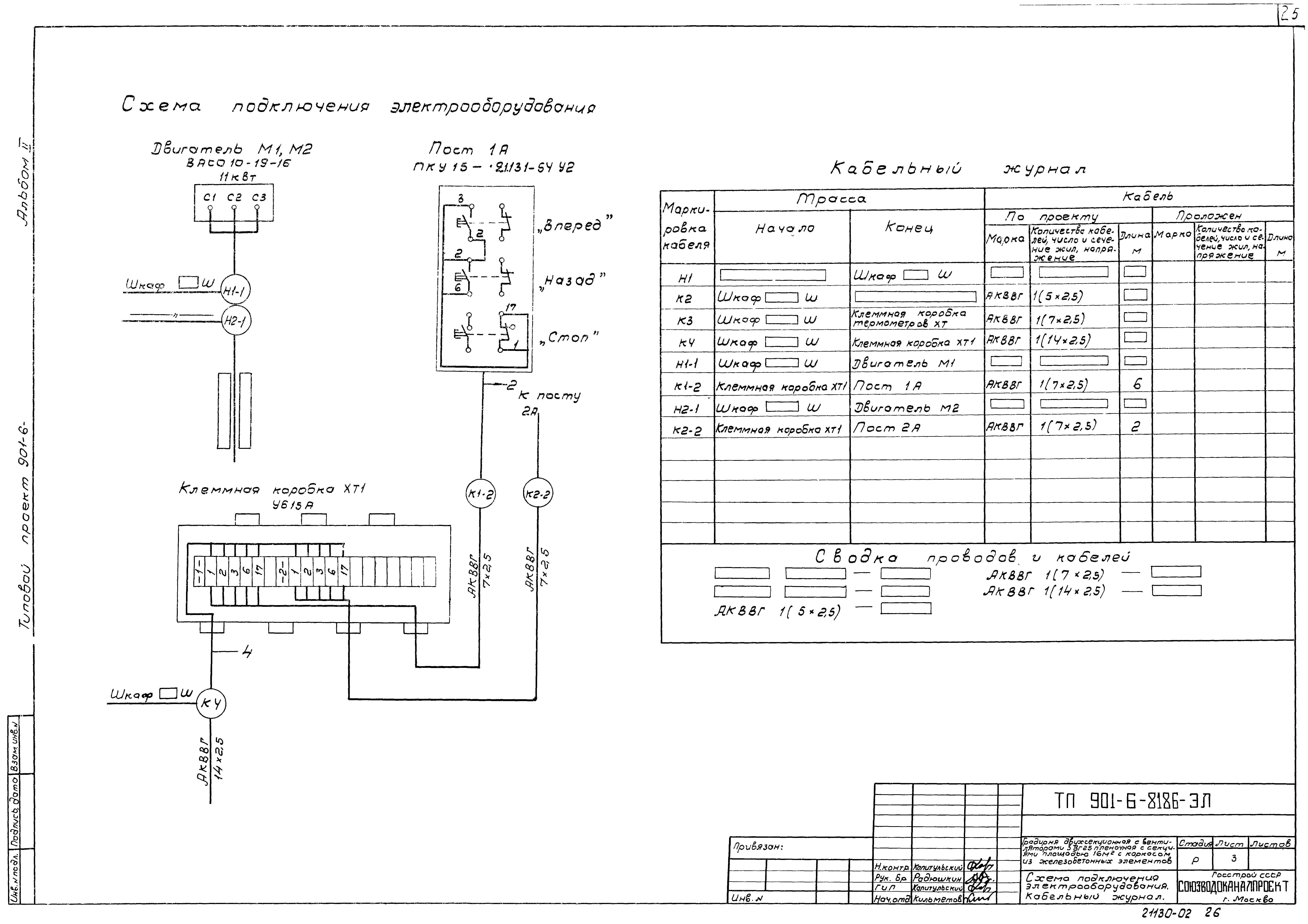
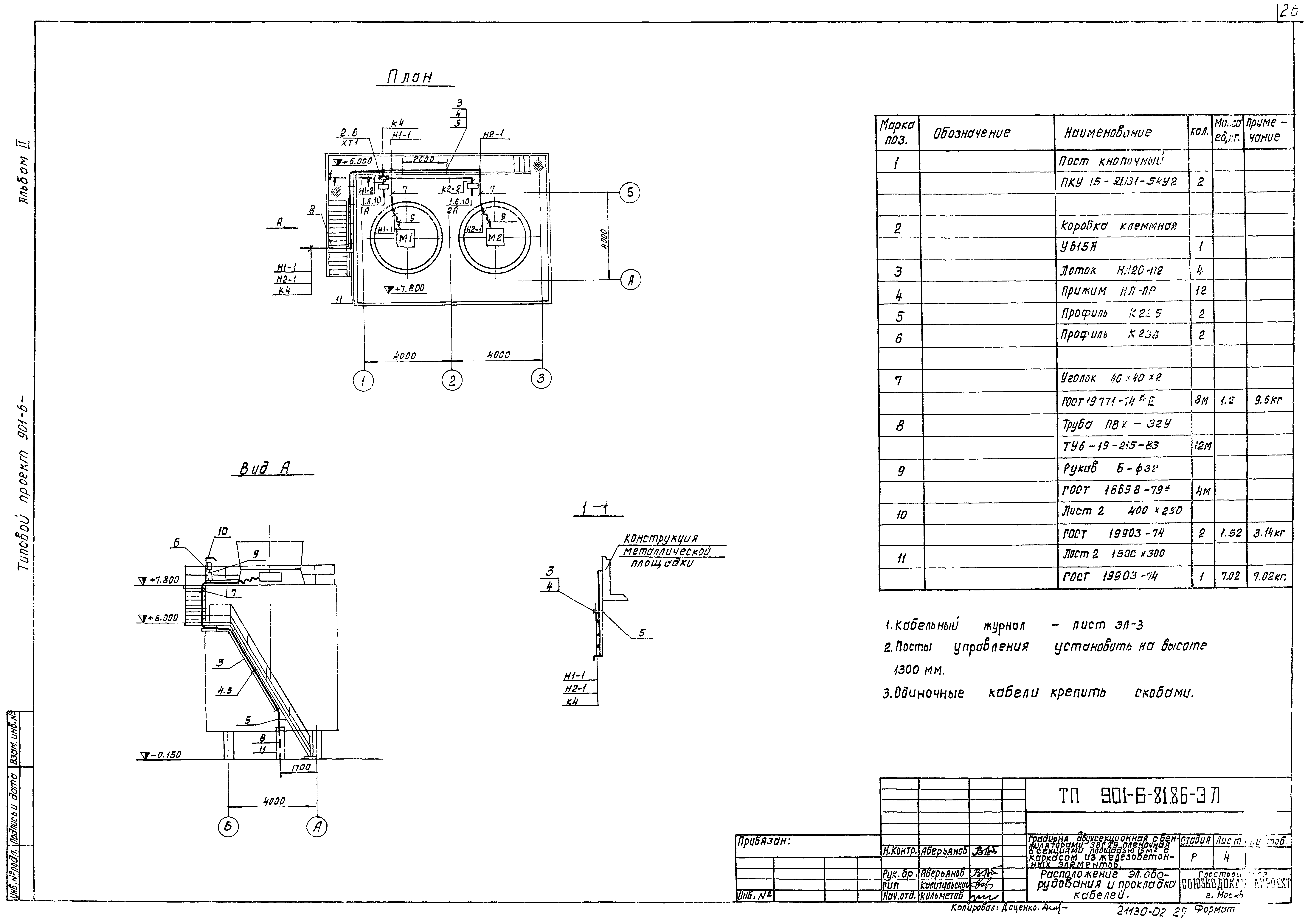
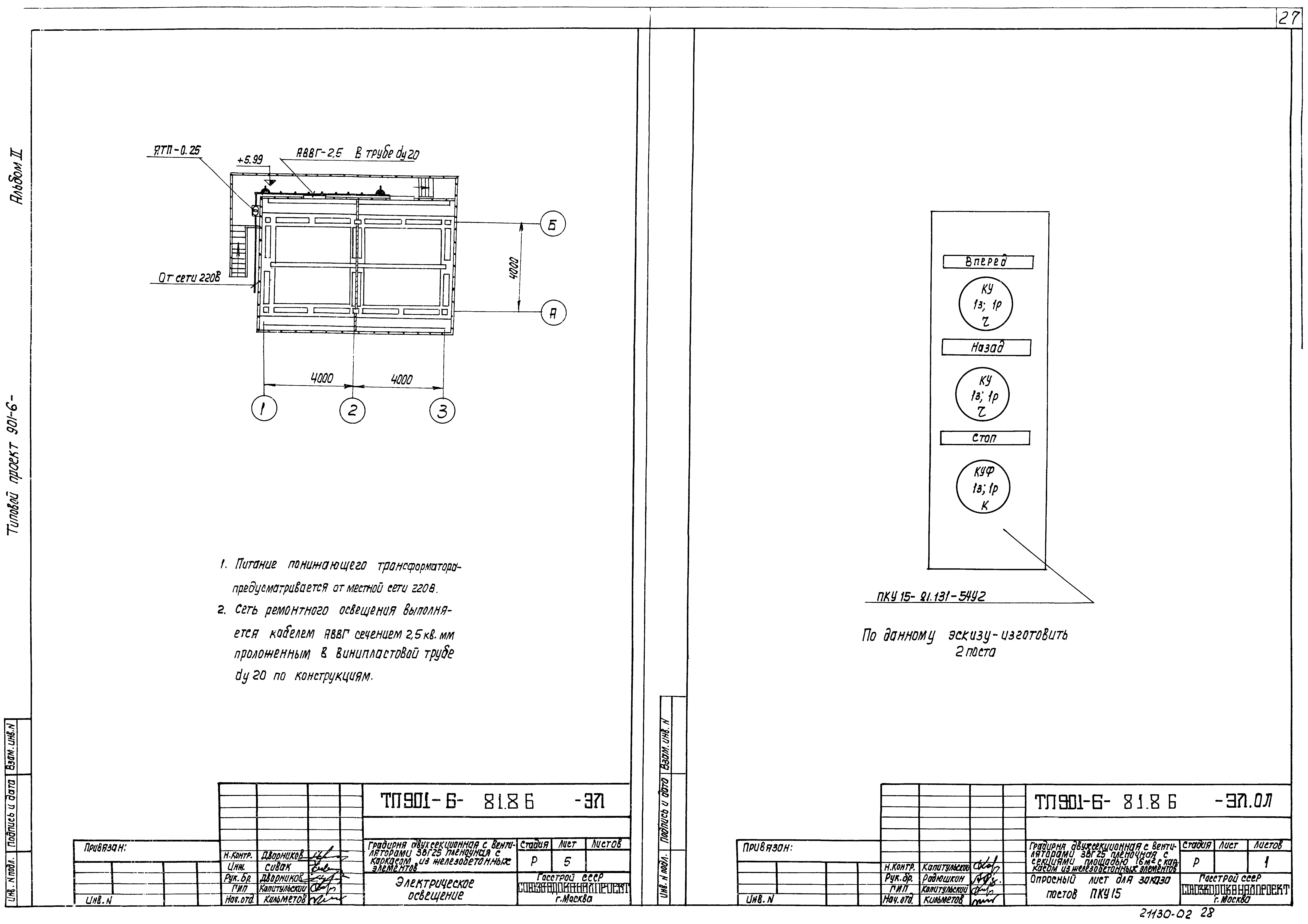
| Оглавление: | Содержание альбома Технологическая часть Общие данные Общий вид градирни Расстановка водоуловительных решеток ВР-1, ВР-2 Водораспределительная система при гидравлической нагрузке 100; 150 куб. м/ч Водораспределительная система при гидравлической нагрузке 200; 250 куб. м/ч Расстановка блоков пленочного оросителя Водосборный бассейн. План на отм. 0.000. Разрезы Спецификация оборудования Архитектурно-строительная часть Общие данные Фасады. План. Детали Общие виды. План. Разрезы Общие виды. Планы Днище Днище. Схема армирования Схема расположения элементов каркаса Розета. Схема армирования Раскладка щитов продольной обшивки. Сечения Раскладка щитов торцевой и межсекционной обшивок Спецификация к схемам раскладки обшивок Электротехническая часть Общие данные. Схемы принципиальные: однолинейная сети 380/220 В и общих цепей управления вентиляторами Схема принципиальная управления вентиляторами Схема подключения электрооборудования. Кабельный журнал Расположение электрооборудования и раскладка кабелей Электрическое освещение Опросный лист для заказа постов ПКУ15 Спецификация оборудования Задание заводу-изготовителю на шкаф Ш. Комплект марки ЭЛ33И Перечень комплектных устройств Шкаф Ш. Технические данные аппаратов Шкаф Ш. Общий вид Шкаф Ш. Таблица перечня надписей Шкаф Ш. Схема электрическая соединений |
| Разработан: | Союзводоканалпроект |
| Утверждён: | 03.12.1984 Госстрой СССР (Государственный комитет Совета Министров СССР по делам строительства) (USSR Gosstroy 37) |
| Заменяет собой: |


































