Скачать Типовой проект 902-2-466.89 Альбом 2. Технология производства. Отопление и вентиляция. Внутренние водопровод и канализацияДата актуализации: 01.01.2021
|
| Обозначение: | Типовой проект 902-2-466.89 |
| Обозначение англ: | 902-2-466.89 |
| Статус: | не определен законодательством |
| Название рус.: | Альбом 2. Технология производства. Отопление и вентиляция. Внутренние водопровод и канализация |
| Дата добавления в базу: | 01.09.2013 |
| Дата актуализации: | 01.01.2021 |
| Дата введения: | 21.11.1988 |
| Дата окончания срока действия: | 30.06.2003 |
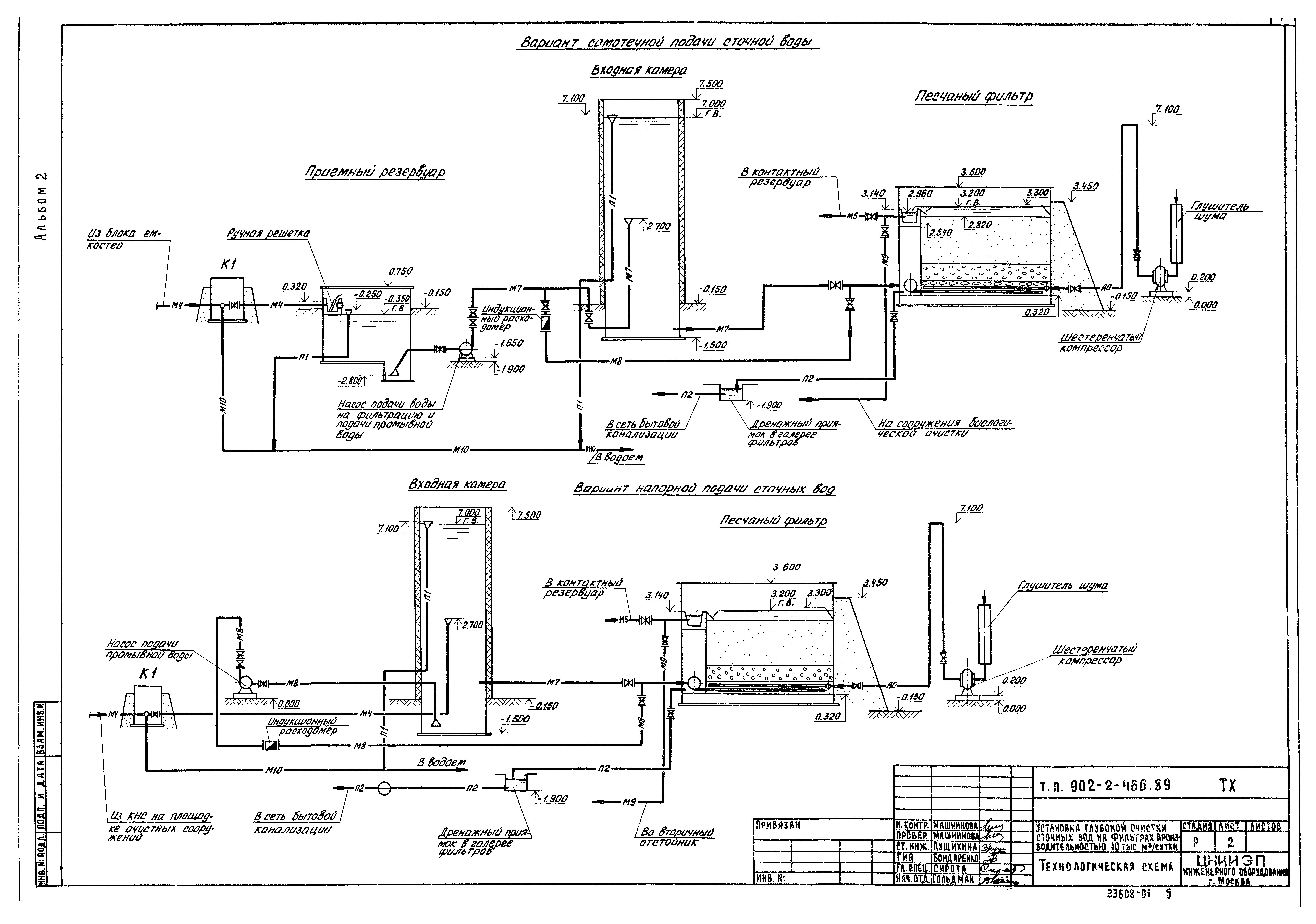
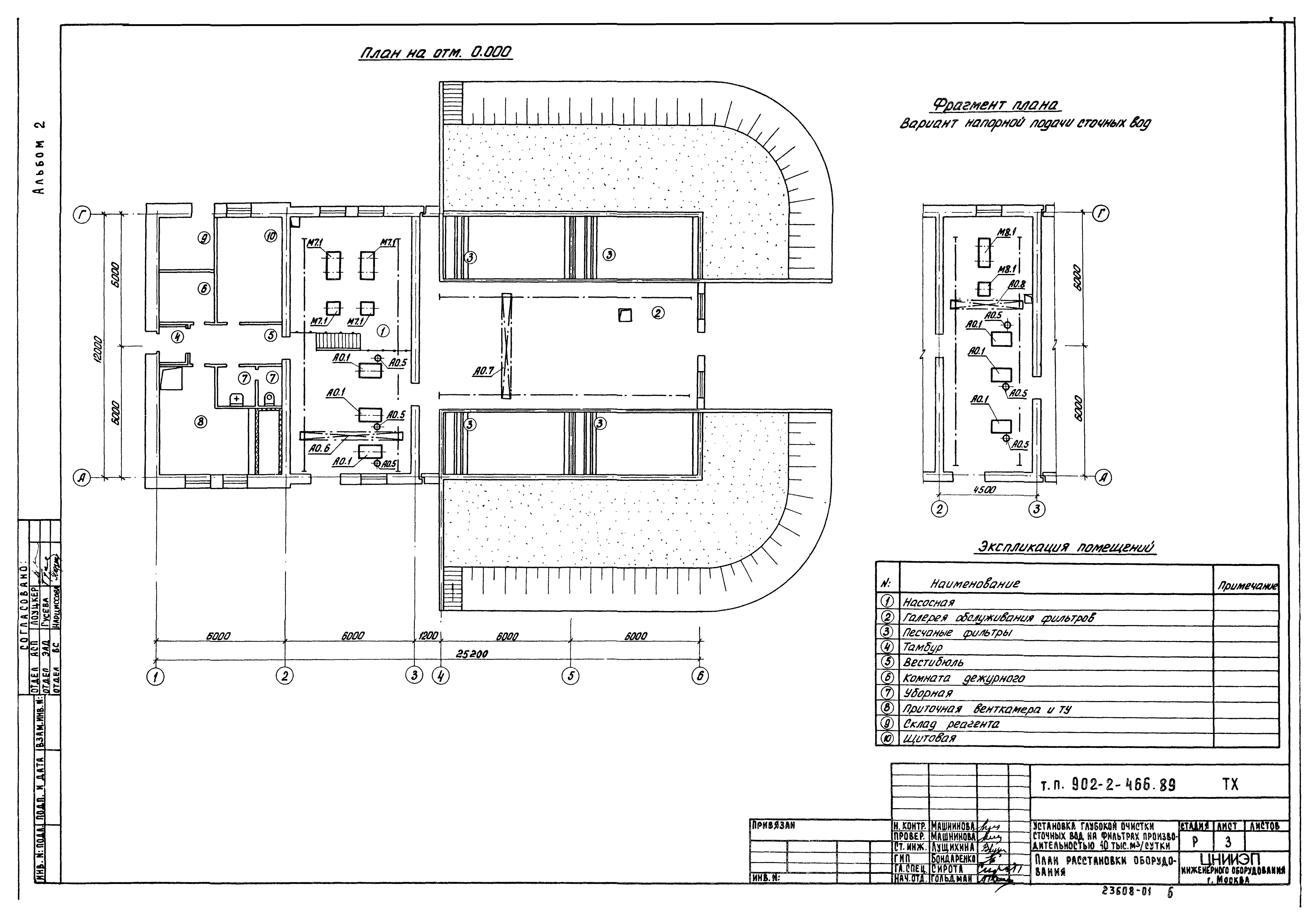
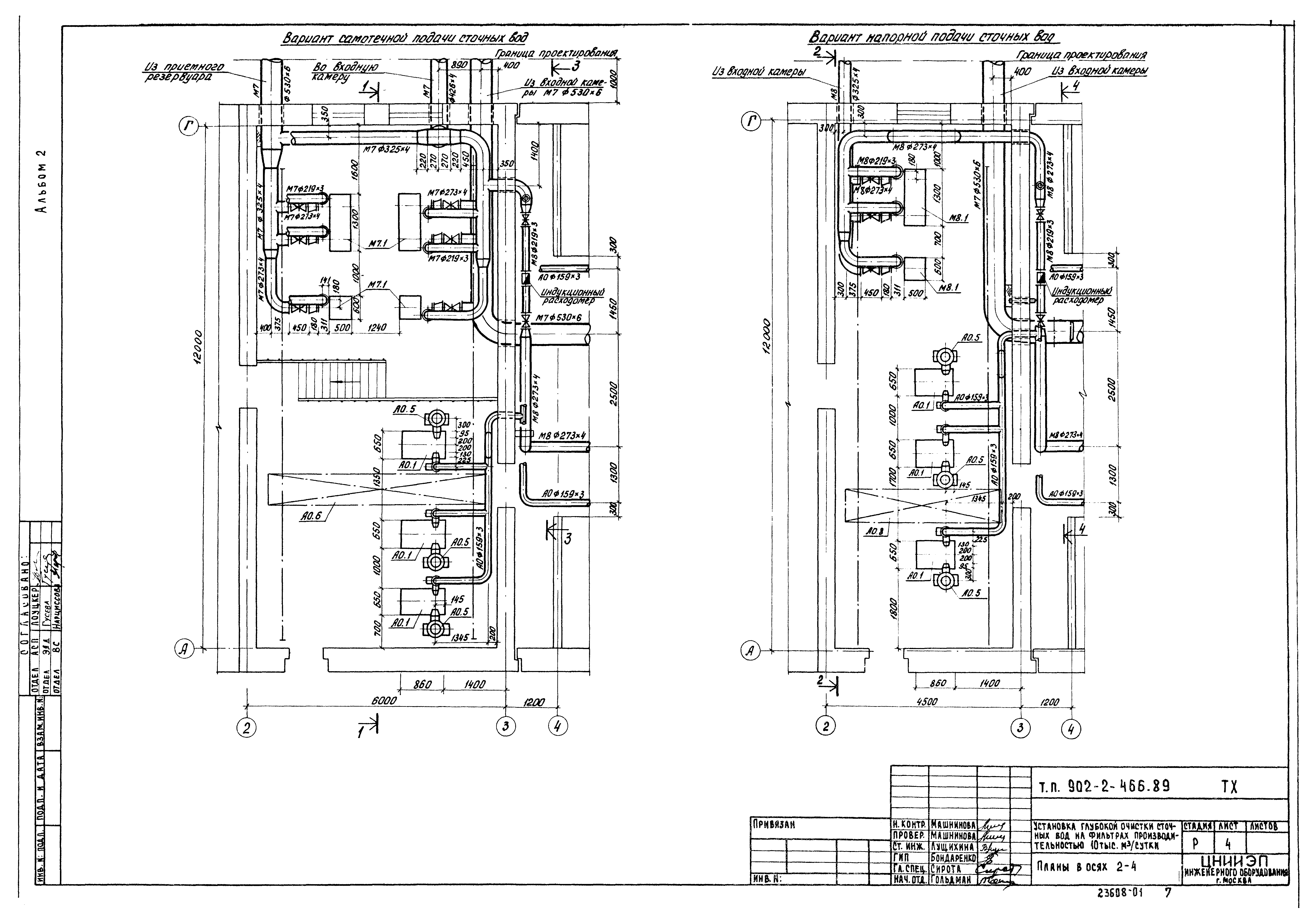
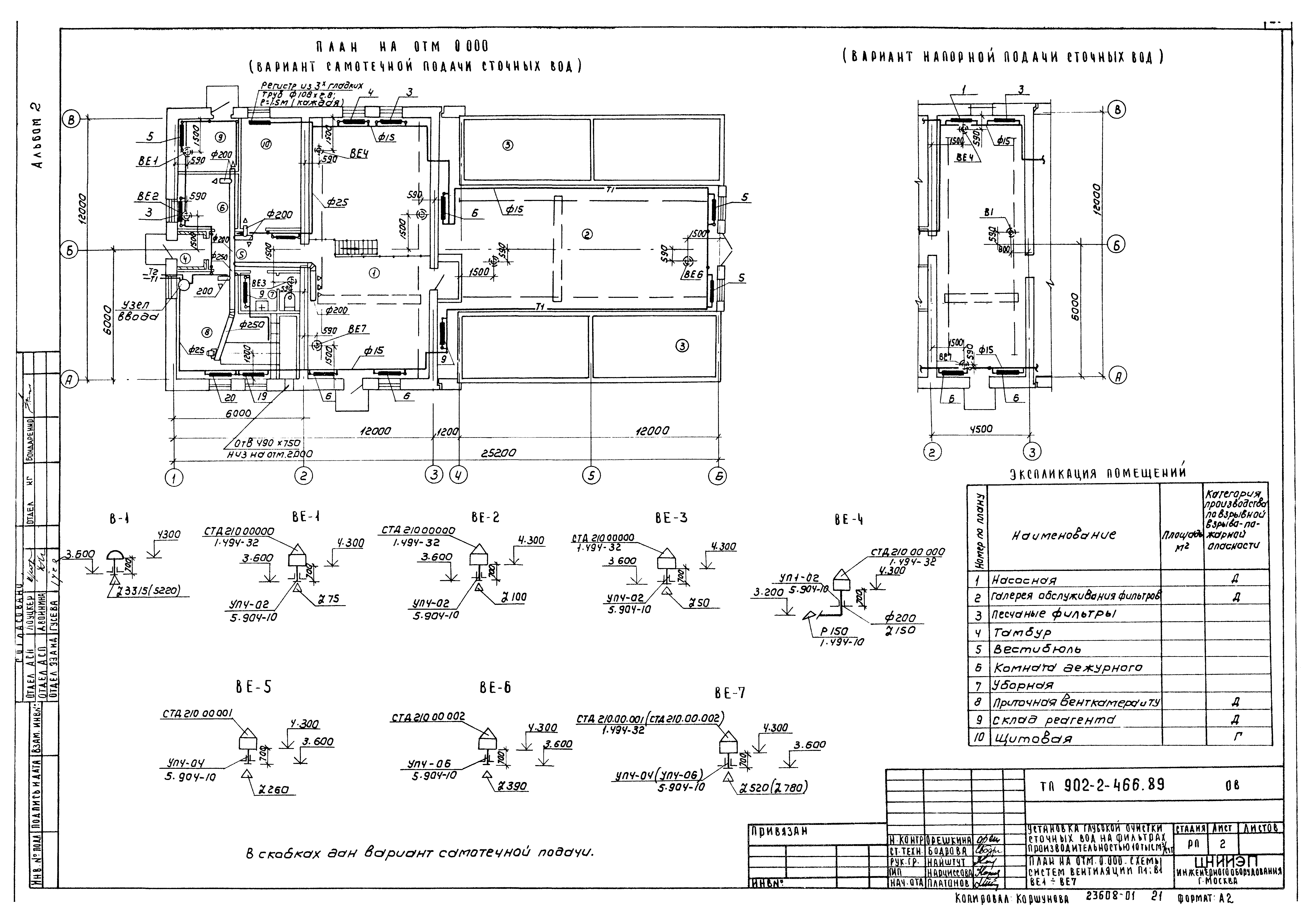
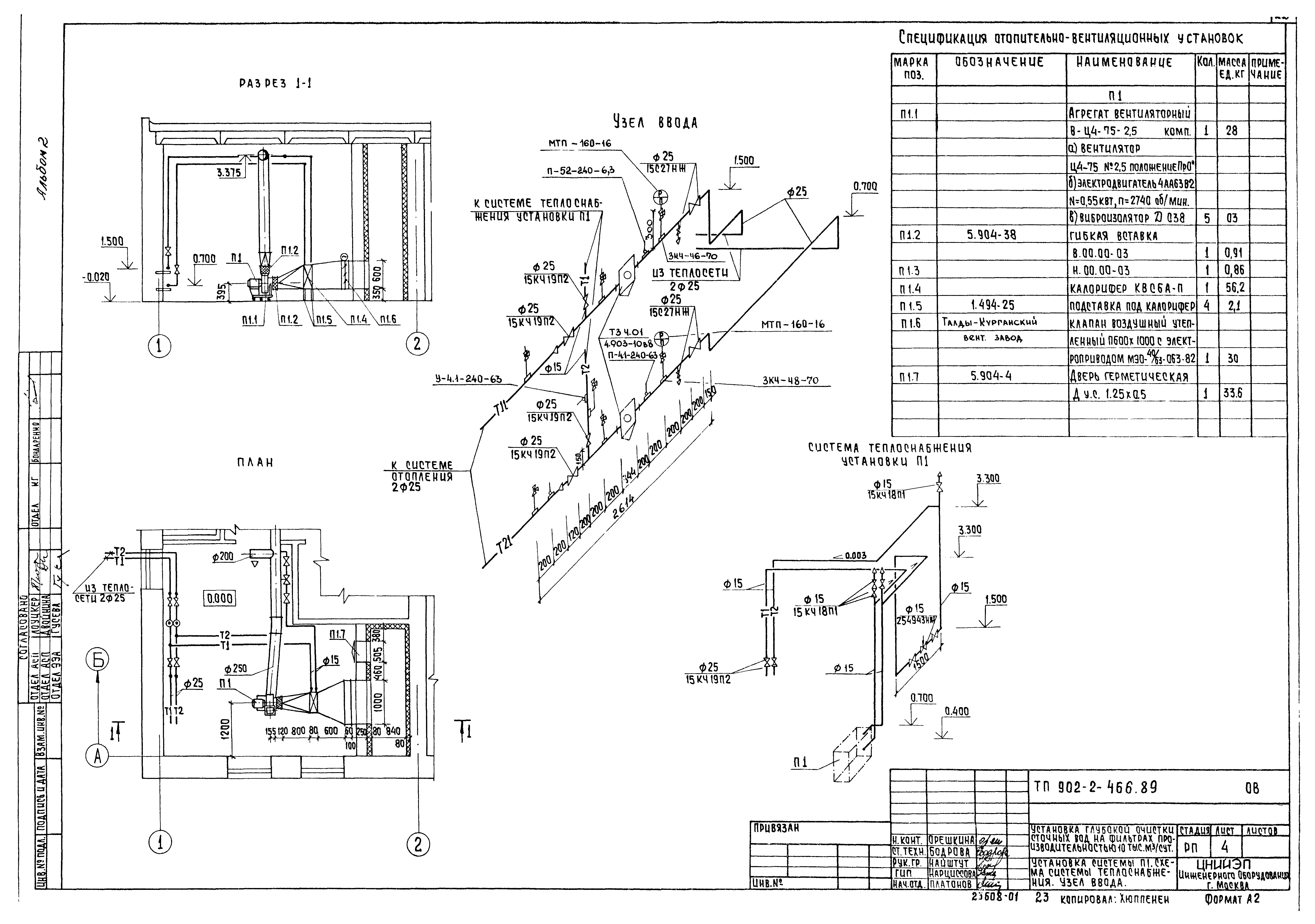
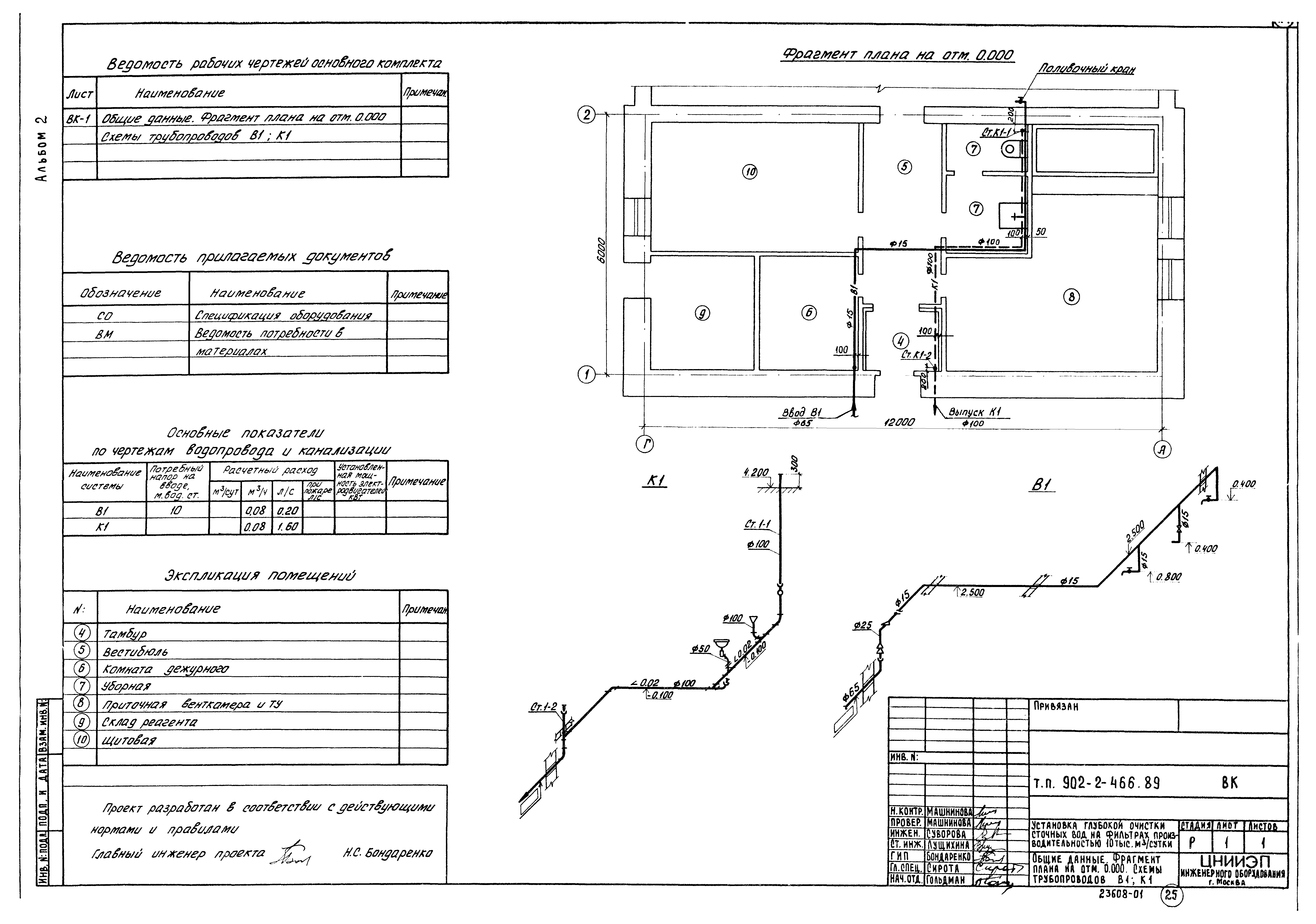
| Оглавление: | Содержание альбома Технологические решения Общие данные Технологическая схема План расстановки оборудования План в осях 2 - 4 План в осях 4 - 6 Разрезы 1-1, 2-2, 3-3, 4-4 Разрезы 5-5, 6-6, 7-7 Вариант с пластмассовыми трубами. План в осях 4 - 6 Вариант с пластмассовыми трубами. Разрезы 5-5, 6-6, 7-7 Схема трубопроводов М7, М8 Схема трубопроводов М5, М9, А0, П2 Вариант с пластмассовыми трубами. Схемы трубопроводов М5, М7, М8, М9, П2 Приемный резервуар. Входная камера (самотечная подача). Схемы трубопроводов Входная камера (напорная подача). Камера К1, К2, К3. Схемы трубопроводов Нестандартизированное оборудование Решетка. Лоток. Эскизный чертеж общего вида Глушитель шума. Воронка всасывающая. Эскизный чертеж общего вида Санитарно-технические решения Общие данные План на отм. 0.000. Схемы систем вентиляции П1, В1, ВЕ1 - ВЕ7 Схема систем отопления. Схема системы П1 Установка системы П1. Схема систем теплоснабжения Конфузор. Переход Внутренний водопровод и канализация Общие данные. Фрагмент плана на отм. 0.000. Схемы трубопроводов В1, К1 |
| Разработан: | ЦНИИЭП |
| Утверждён: | 21.11.1988 Госкомархитектура (310) |

























