Скачать Типовой проект 902-2-466.89 Альбом 6. Силовое электрооборудование. Автоматизация. Освещение. Связь и сигнализацияДата актуализации: 01.01.2021
|
| Обозначение: | Типовой проект 902-2-466.89 |
| Обозначение англ: | 902-2-466.89 |
| Статус: | не определен законодательством |
| Название рус.: | Альбом 6. Силовое электрооборудование. Автоматизация. Освещение. Связь и сигнализация |
| Дата добавления в базу: | 01.09.2013 |
| Дата актуализации: | 01.01.2021 |
| Дата введения: | 21.11.1988 |
| Дата окончания срока действия: | 30.06.2003 |
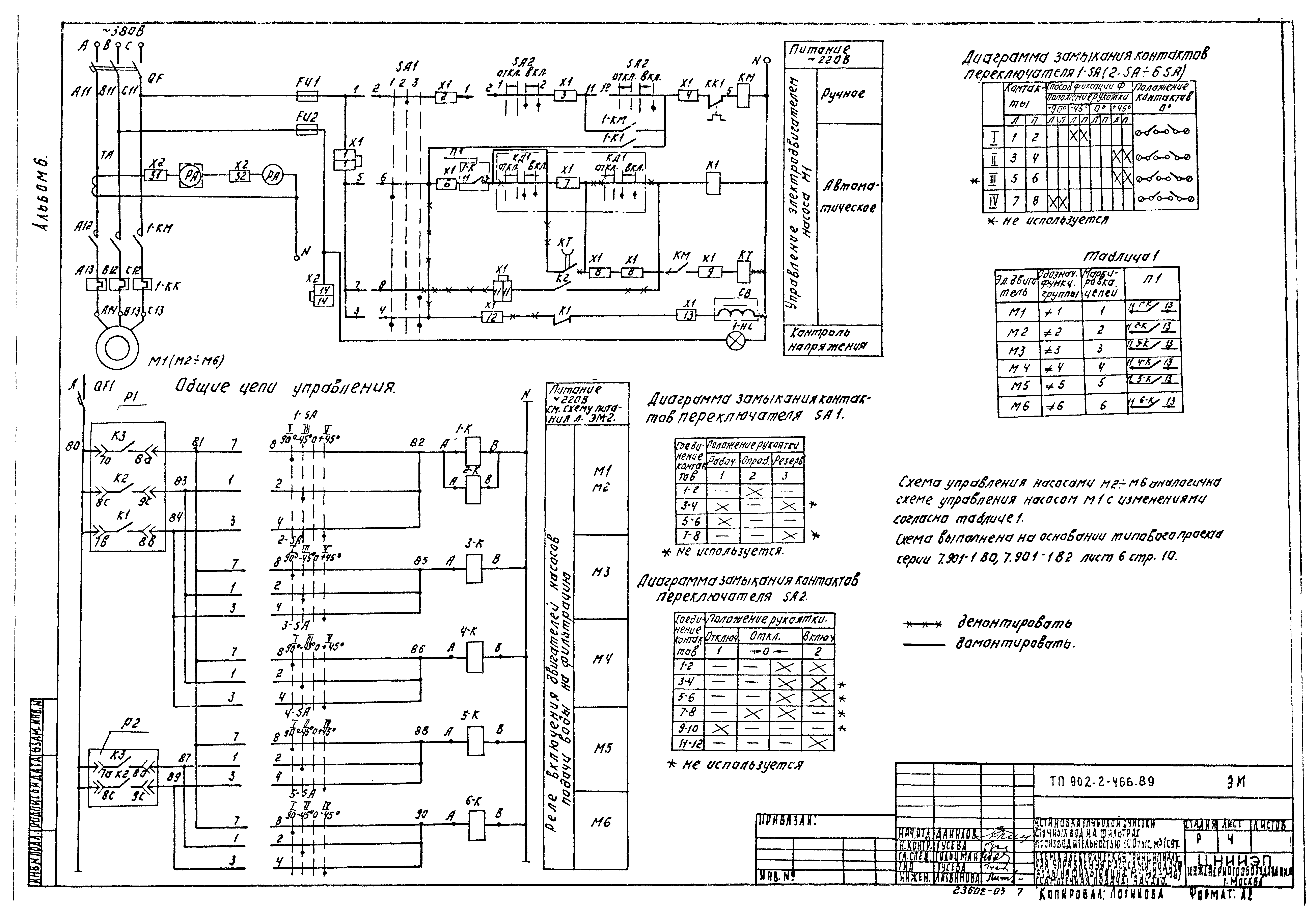
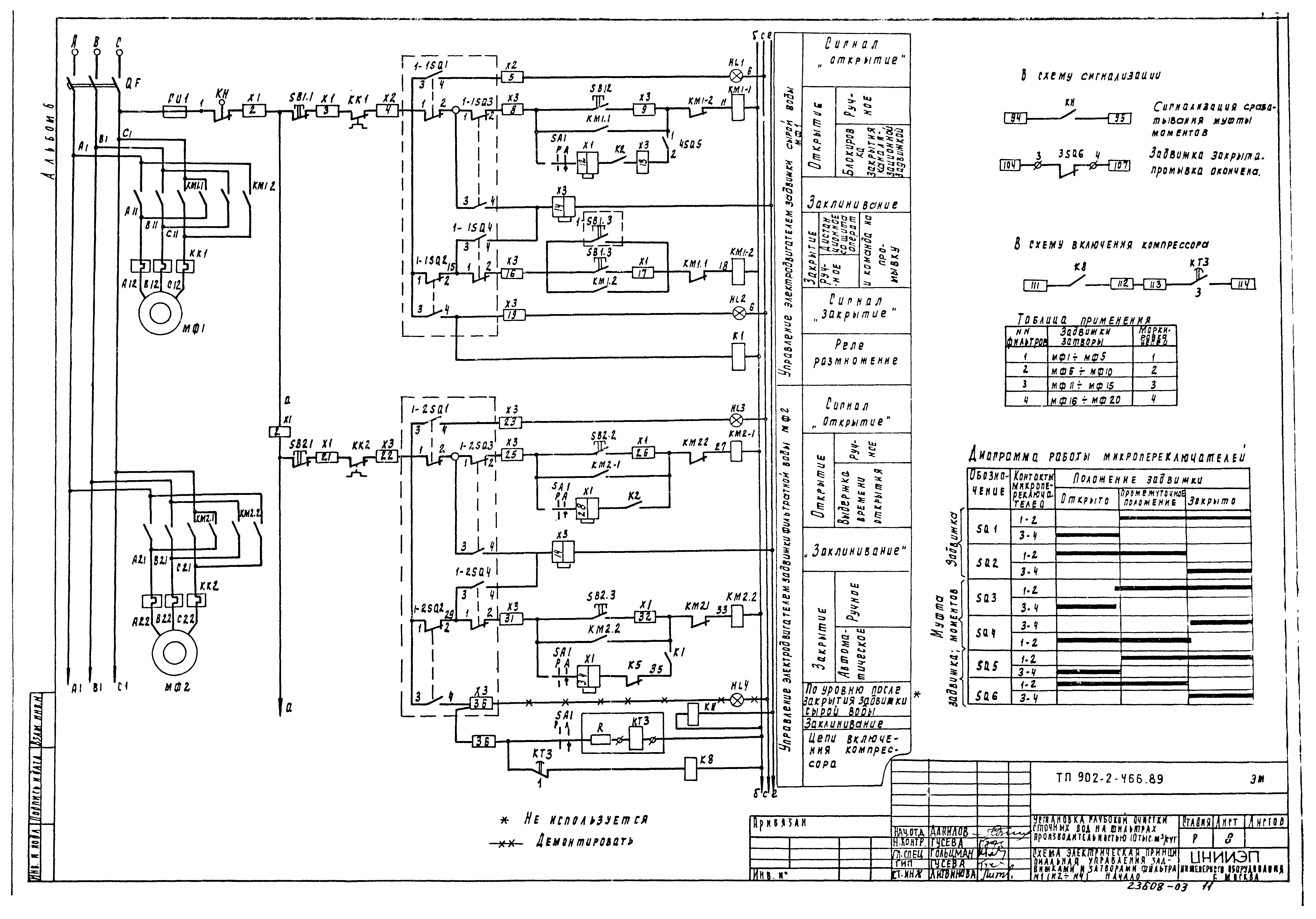
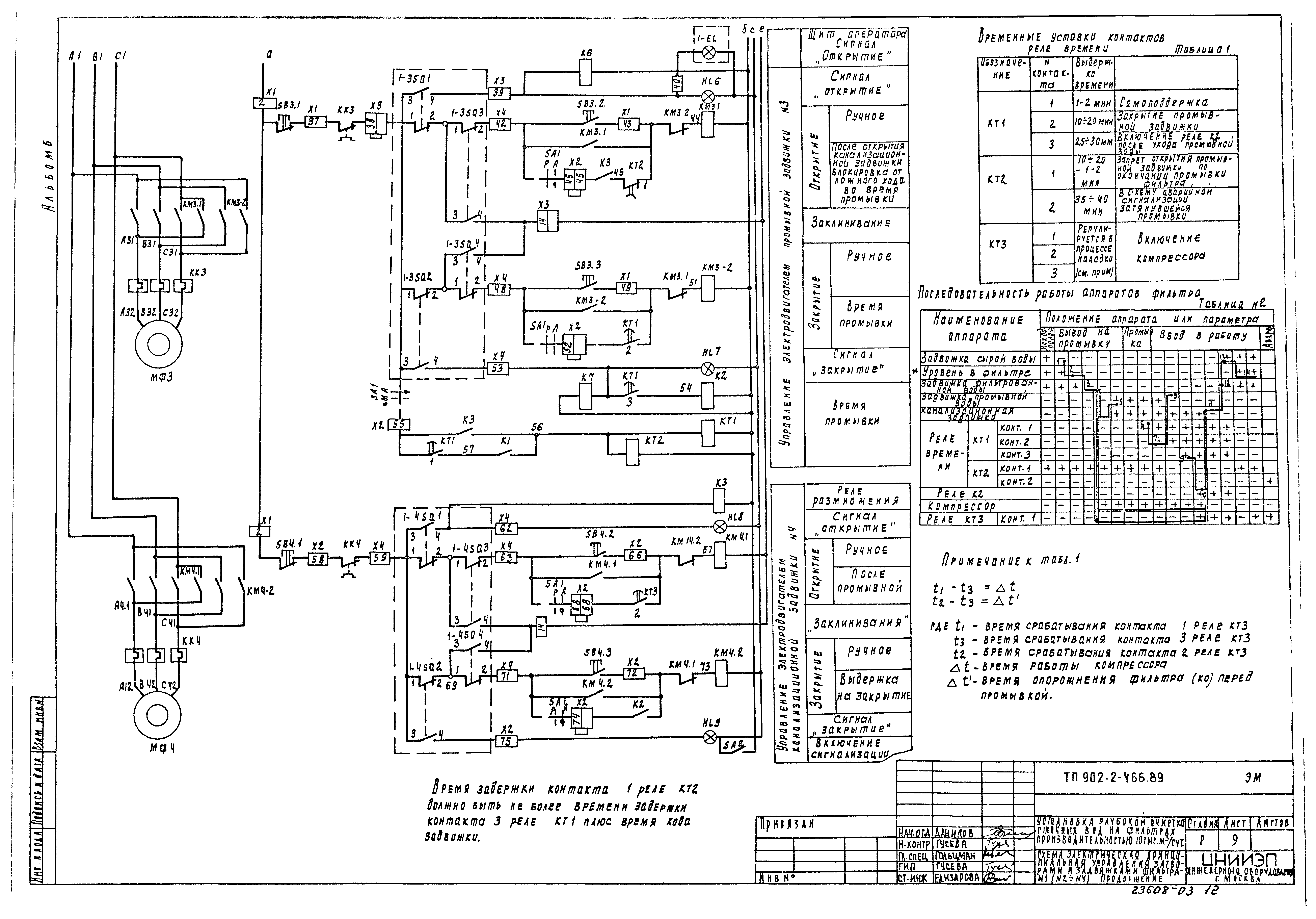
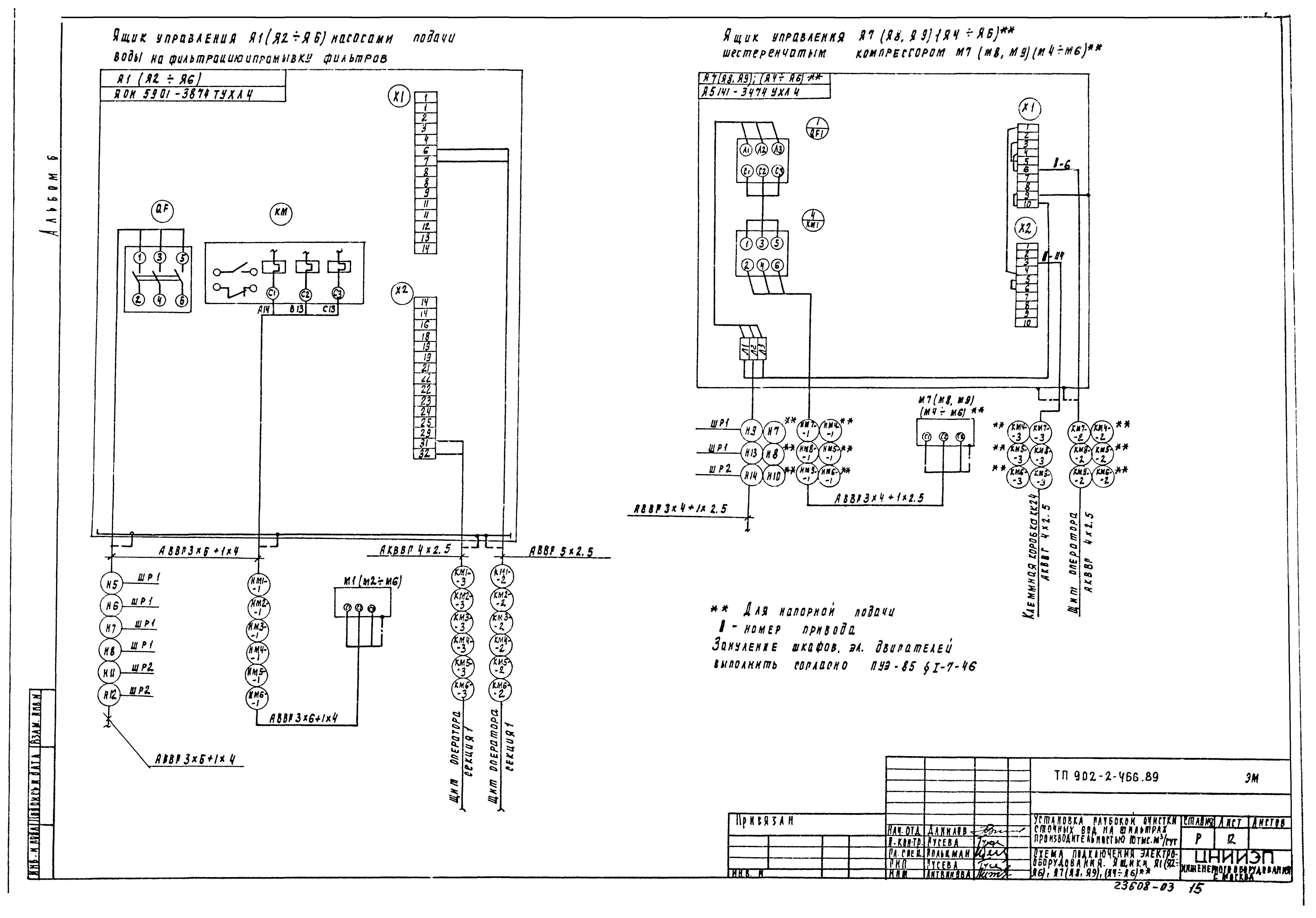
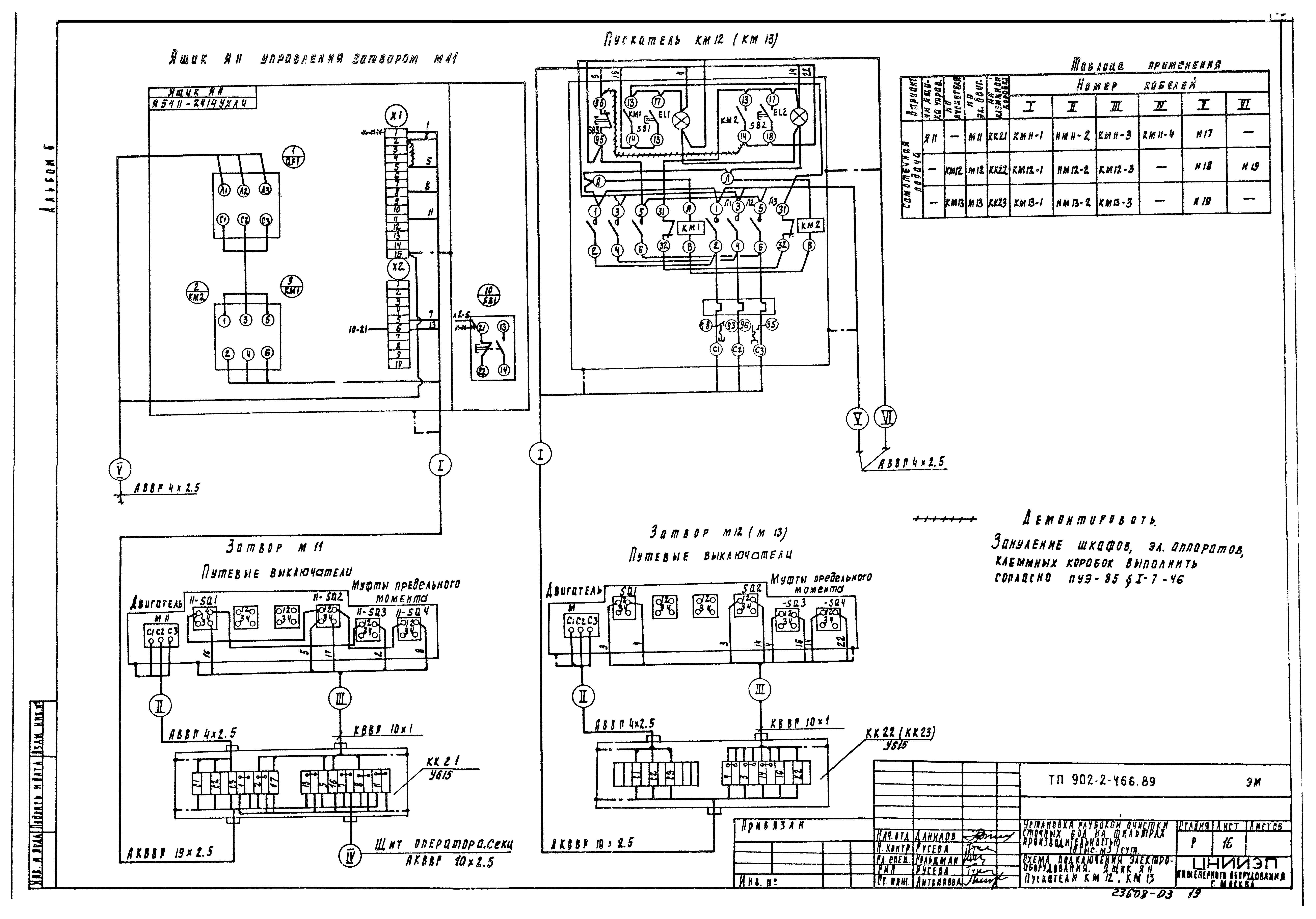
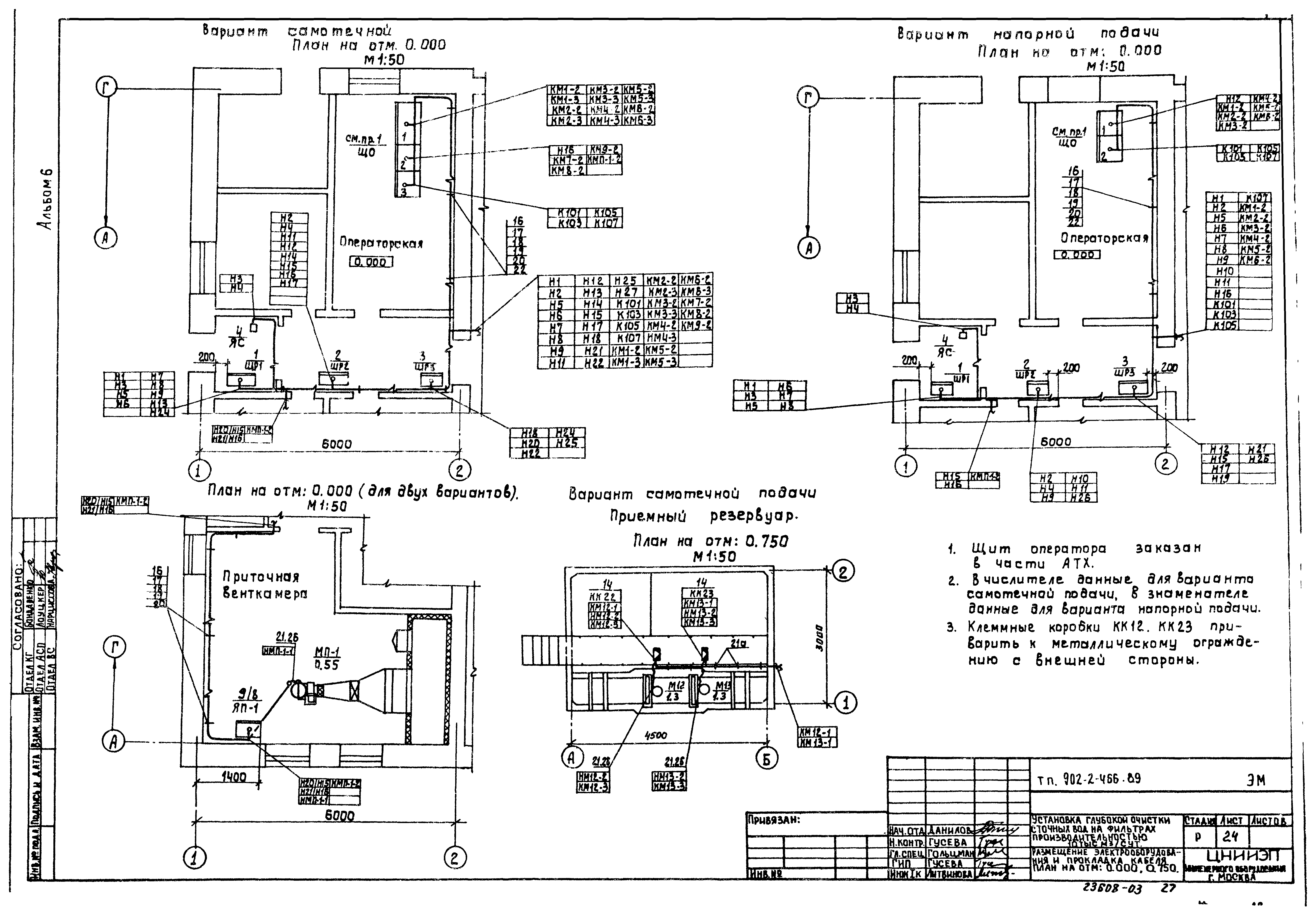
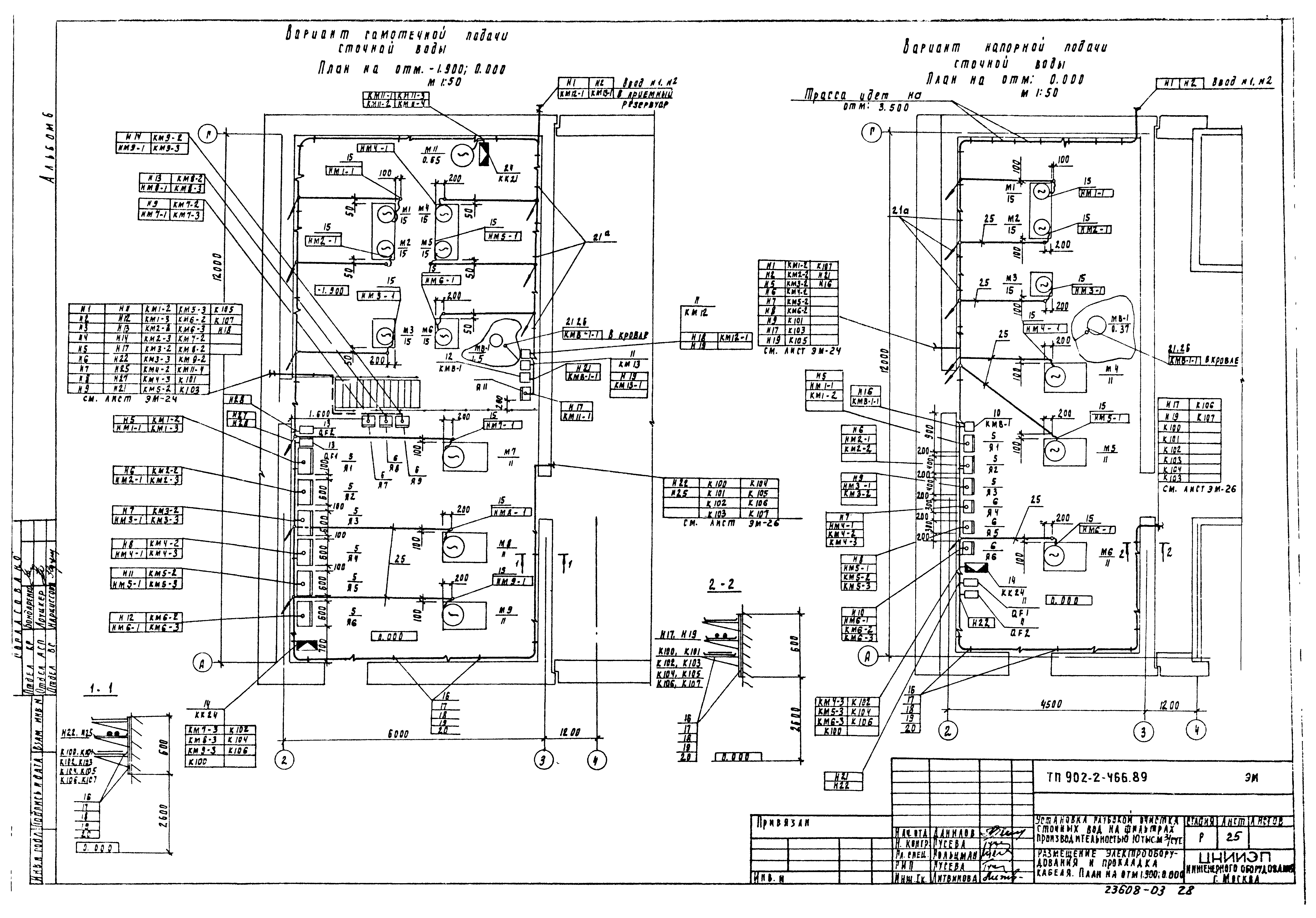
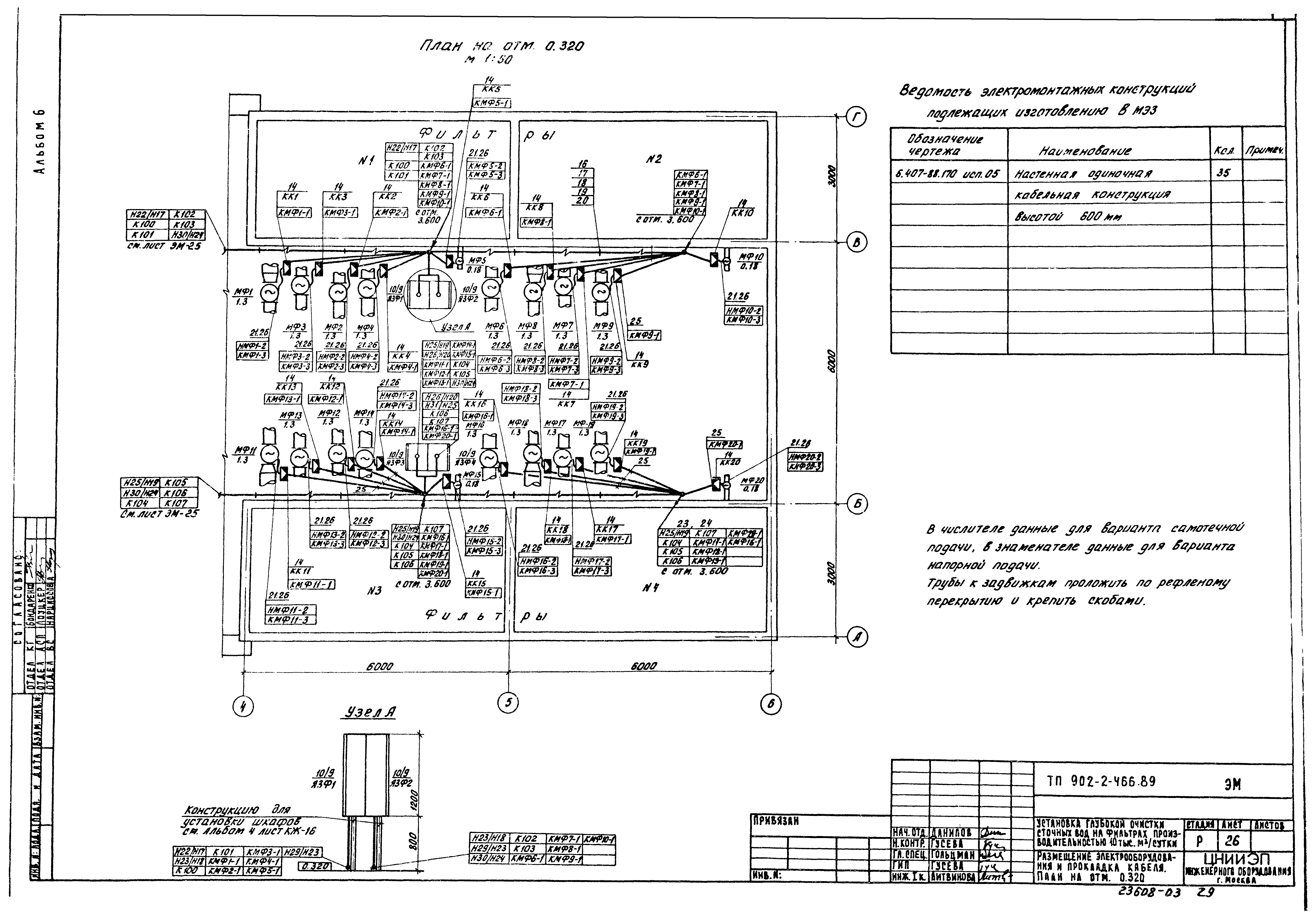
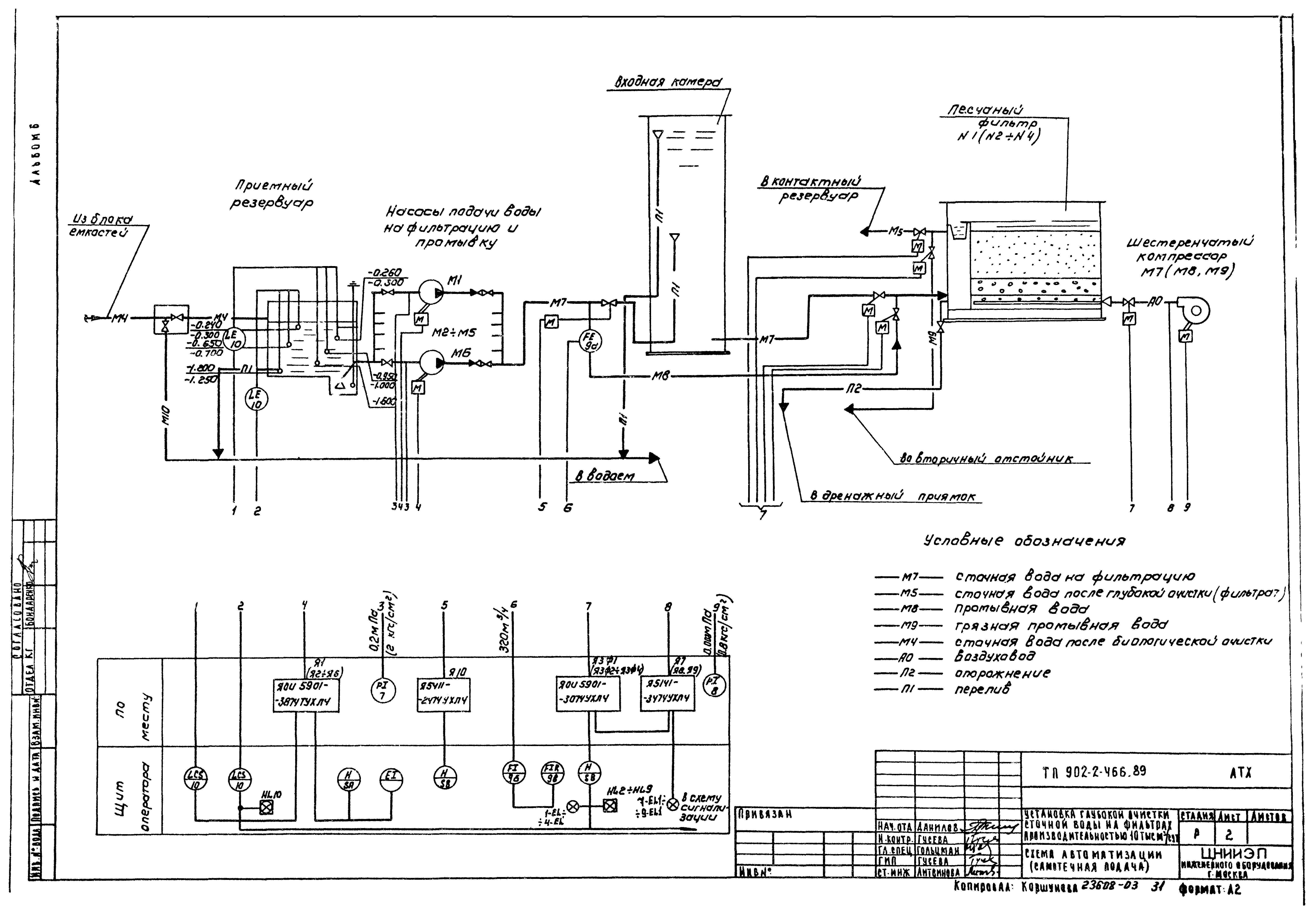
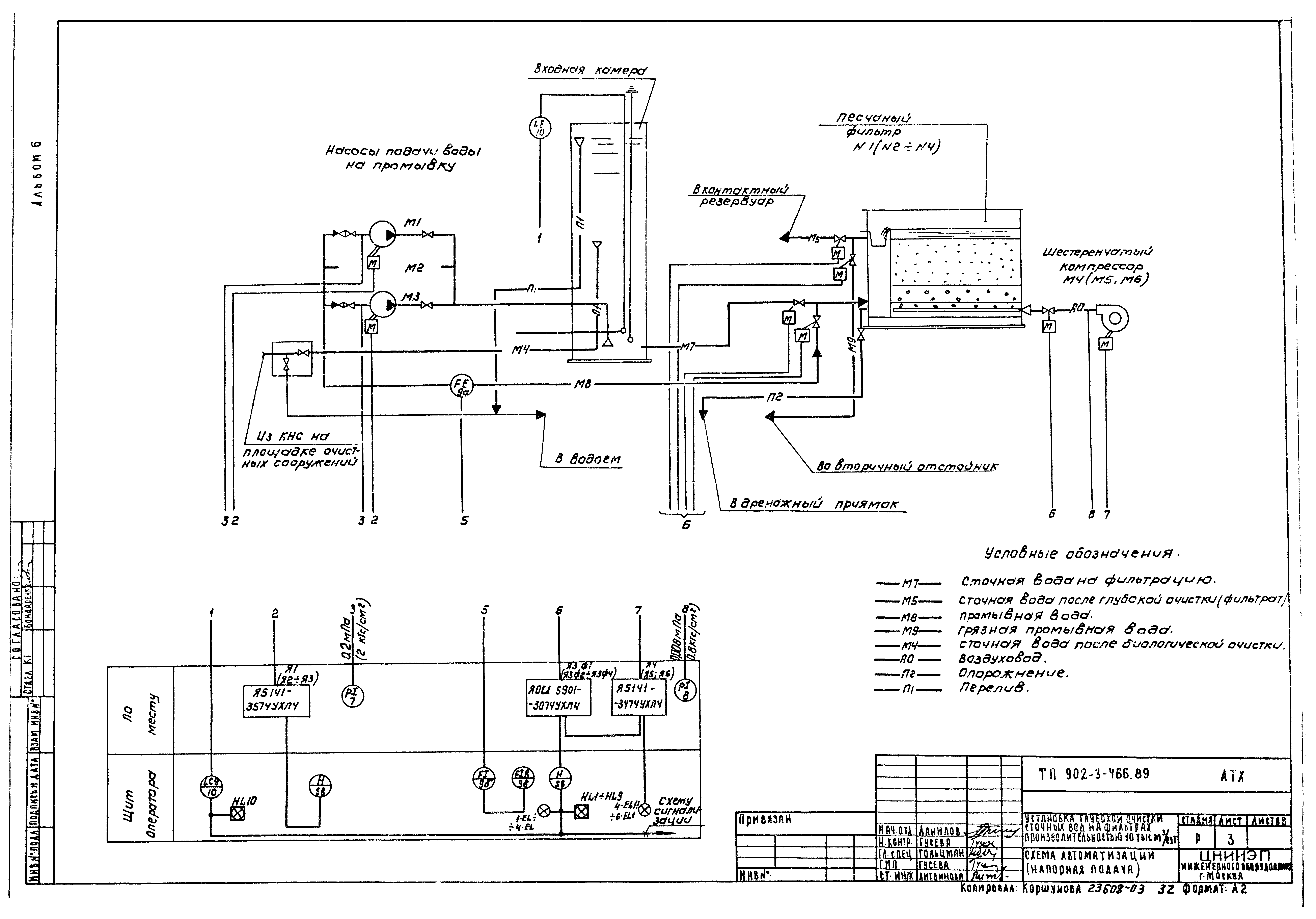
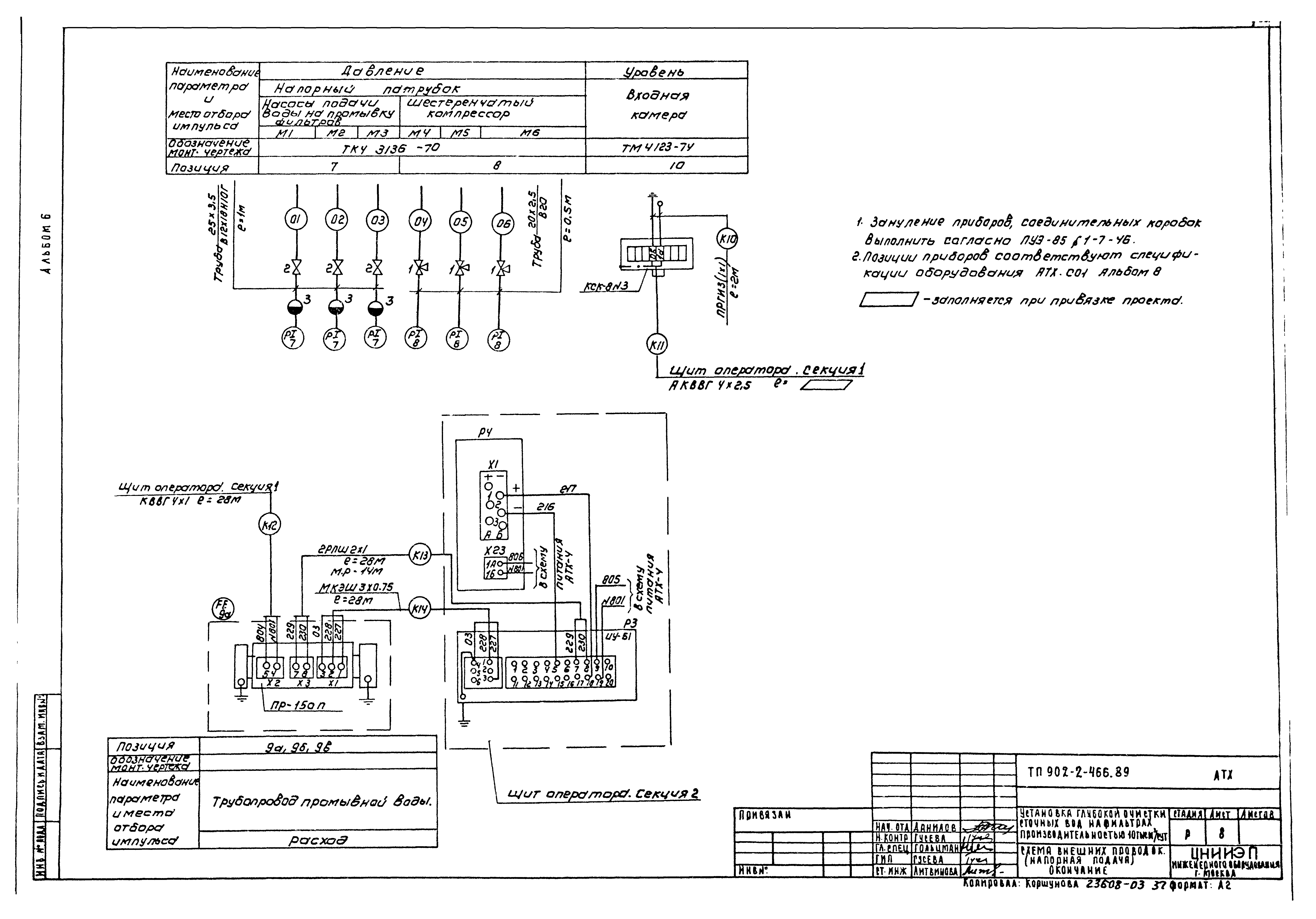
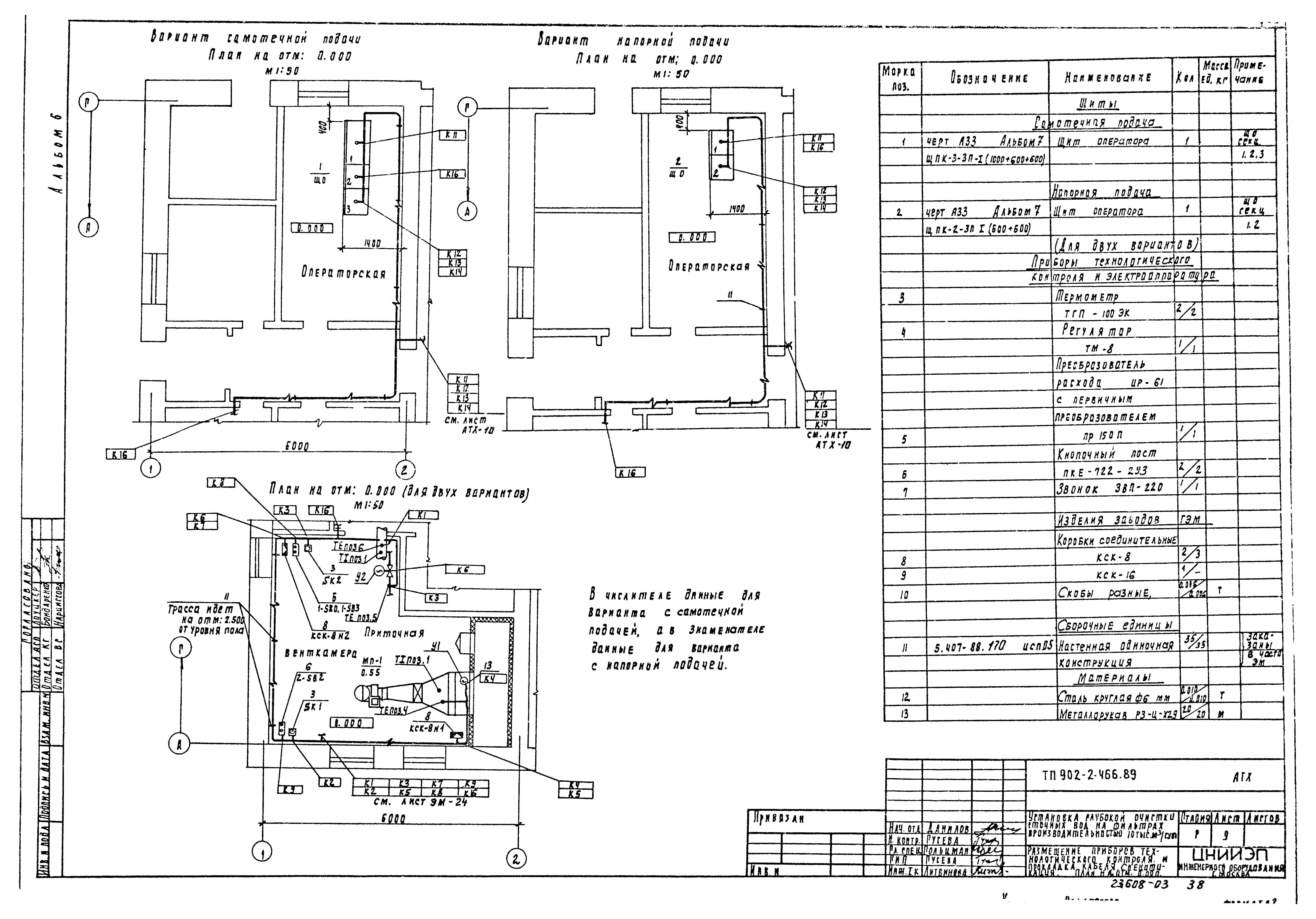
| Оглавление: | Содержание Силовое электрооборудование Общие данные Схема электрическая принципиальная распределительной сети 380/220 В (самотечная подача) Схема электрическая принципиальная распределительной сети 380/220 В (напорная подача) Схема электрическая принципиальная управления насосами подачи воды на фильтрацию М1 (М2 - М6) (самотечная подача) Схема электрическая принципиальная управления насосом подачи воды на промывку М1 (М2, М3) (напорная подача) Схема электрическая принципиальная управления шестеренчатым компрессором М Схема электрическая принципиальная управления задвижками и затворами фильтра №1 (№2 - №4) Схема электрическая принципиальная управления затвором М11 (самотечная подача) Схема подключения электрооборудования. Ящики Я1 (Я2 - Я6), Я7 (Я8, Я9) (Я4 - Я6)** Схема подключения электрооборудования. Ящики ЯП-1, Я1 - Я3. Пускатель КМВ-1 Схема подключения электрооборудования. Ящик ЯЗФ1 (ЯЗФ2 - ЯЗФ4) Схема подключения электрооборудования. Ящик Я11. Пускатели КМ12, КМ13 (самотечная подача) Кабельный журнал (самотечная подача) Кабельный журнал (напорная подача) Сводка кабелей и проводов учтенных кабельным журналом Размещение электрооборудования и прокладка кабеля. Спецификация (самотечная подача) Размещение электрооборудования и прокладка кабеля. Спецификация (напорная подача) Размещение электрооборудования и прокладка кабеля. План на отм. 0.000; 0.750 Размещение электрооборудования и прокладка кабеля. План на отм. - 1.900; 0.000 Размещение электрооборудования и прокладка кабеля. План на отм. 0.320 Автоматизация Общие данные Схема автоматизации (самотечная подача) Схема автоматизации (напорная подача) Схема электрическая принципиальная питания приборов щита ЩО автоматизации приточной системы П-1 Схема электрическая принципиальная сигнализации Схема внешних проводок Размещение приборов технологического контроля и прокладка кабеля. Спецификация. План на отм. 0.000 Размещение приборов технологического контроля и прокладка кабеля. Спецификация. План на отм. - 1.900; 0.000; 0.750; 7.500 Электрическое освещение Общие данные Электрическое освещение. План на отм. 0.000. План питающей сети (напорная подача) Электрическое освещение. План на отм. 0.000. План питающей сети (самотечная подача) Связь и сигнализация Общие данные. План на отм. 0.000 с сетями связи |
| Разработан: | ЦНИИЭП |
| Утверждён: | 21.11.1988 Госкомархитектура (310) |











































