Скачать Типовой проект 902-2-467.89 Альбом 3. Архитектурно-строительные решения. Конструкции железобетонные. Конструкции металлические. Генплан (самотечная подача сточных вод на фильтрацию)Дата актуализации: 01.01.2021
|
| Обозначение: | Типовой проект 902-2-467.89 |
| Обозначение англ: | 902-2-467.89 |
| Статус: | не определен законодательством |
| Название рус.: | Альбом 3. Архитектурно-строительные решения. Конструкции железобетонные. Конструкции металлические. Генплан (самотечная подача сточных вод на фильтрацию) |
| Дата добавления в базу: | 01.09.2013 |
| Дата актуализации: | 01.01.2021 |
| Дата введения: | 21.11.1988 |
| Дата окончания срока действия: | 30.06.2003 |
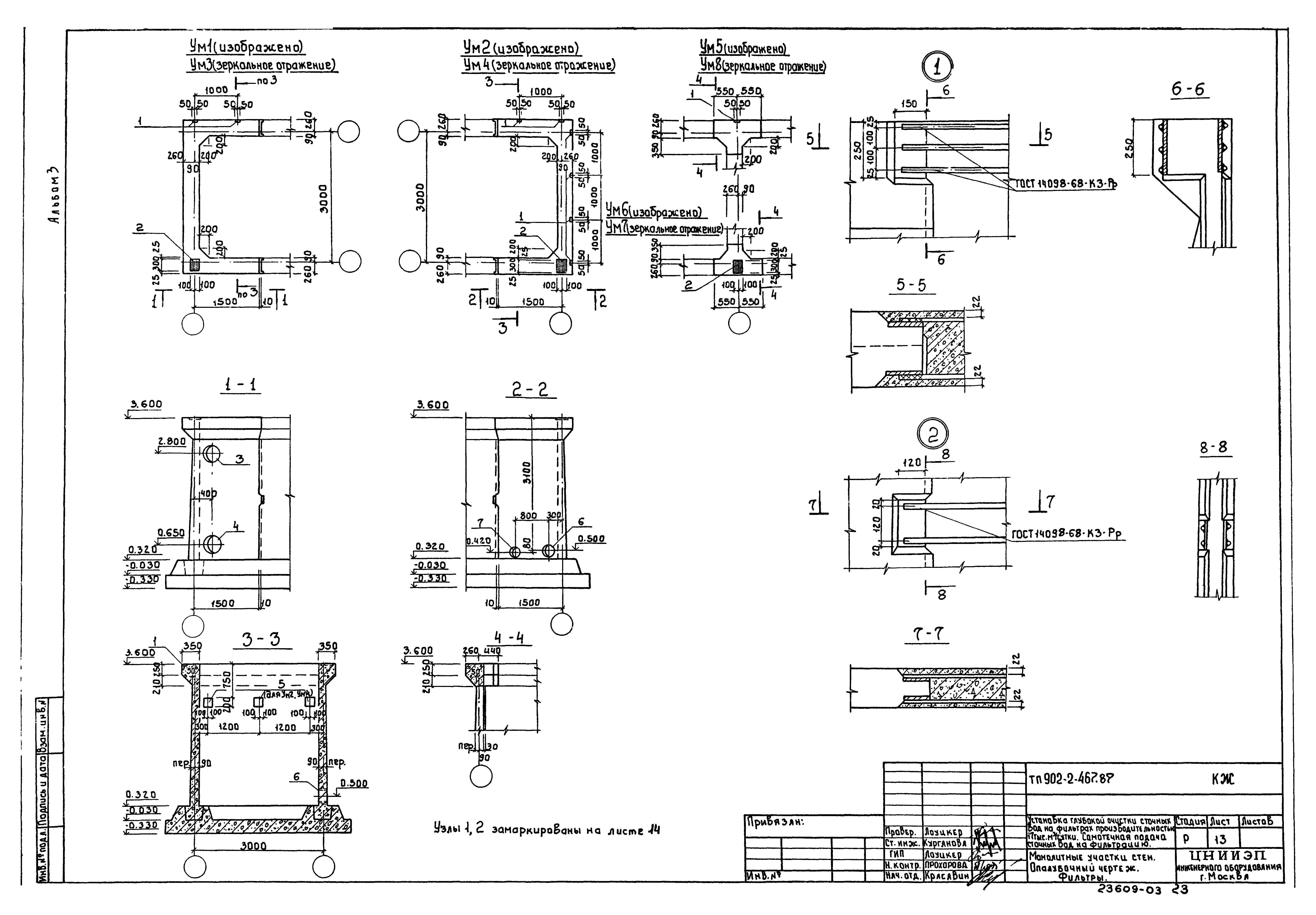
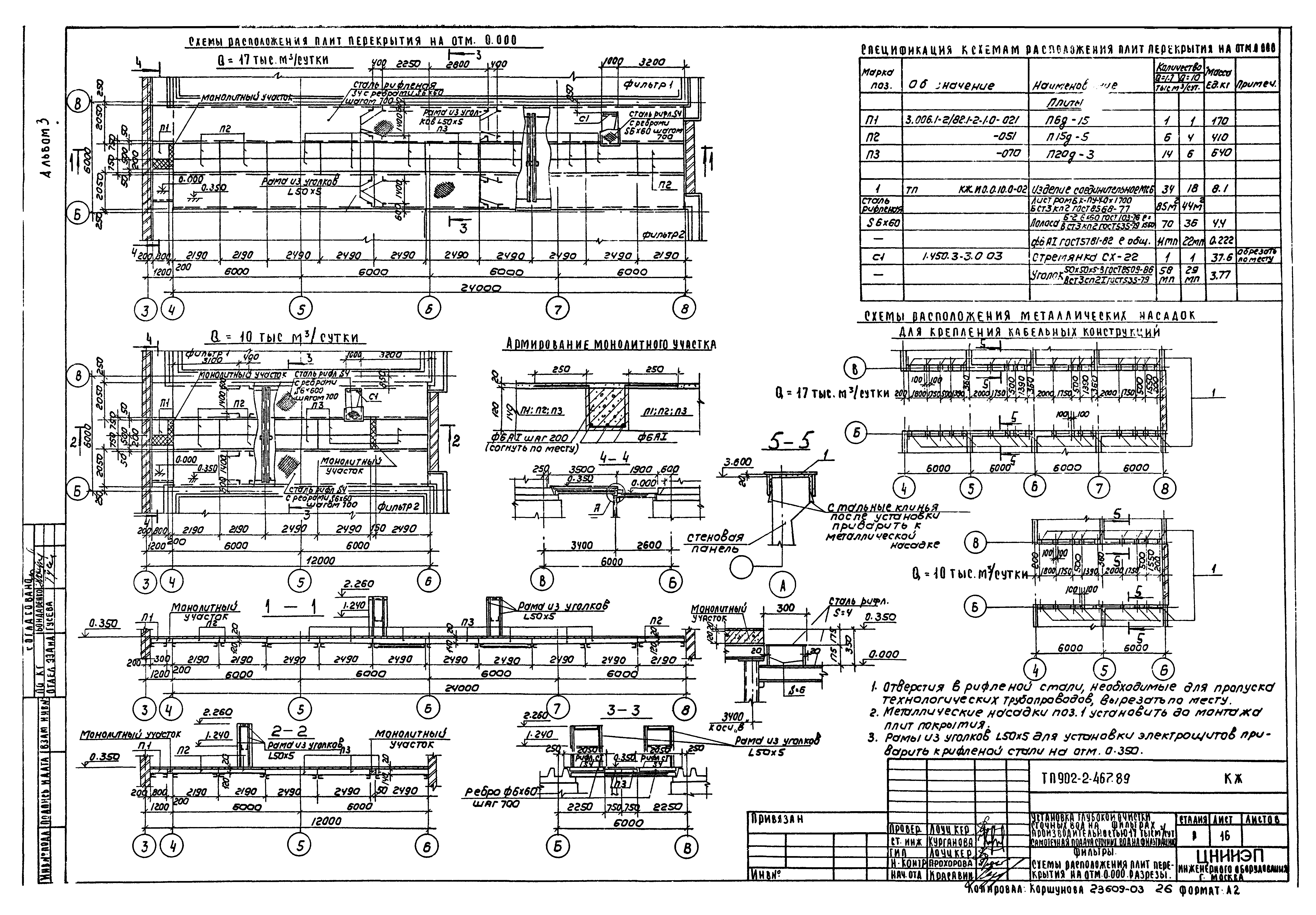
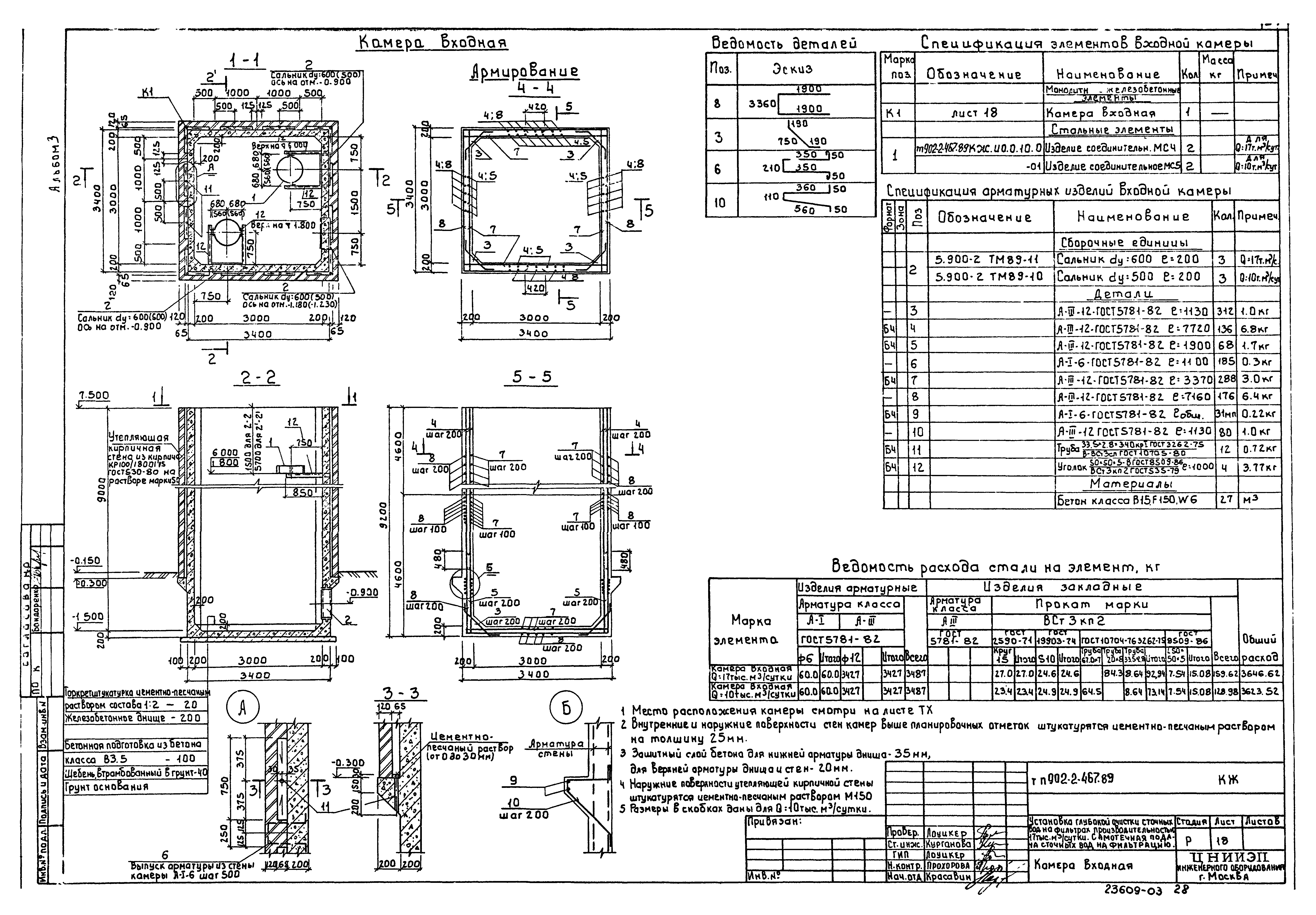
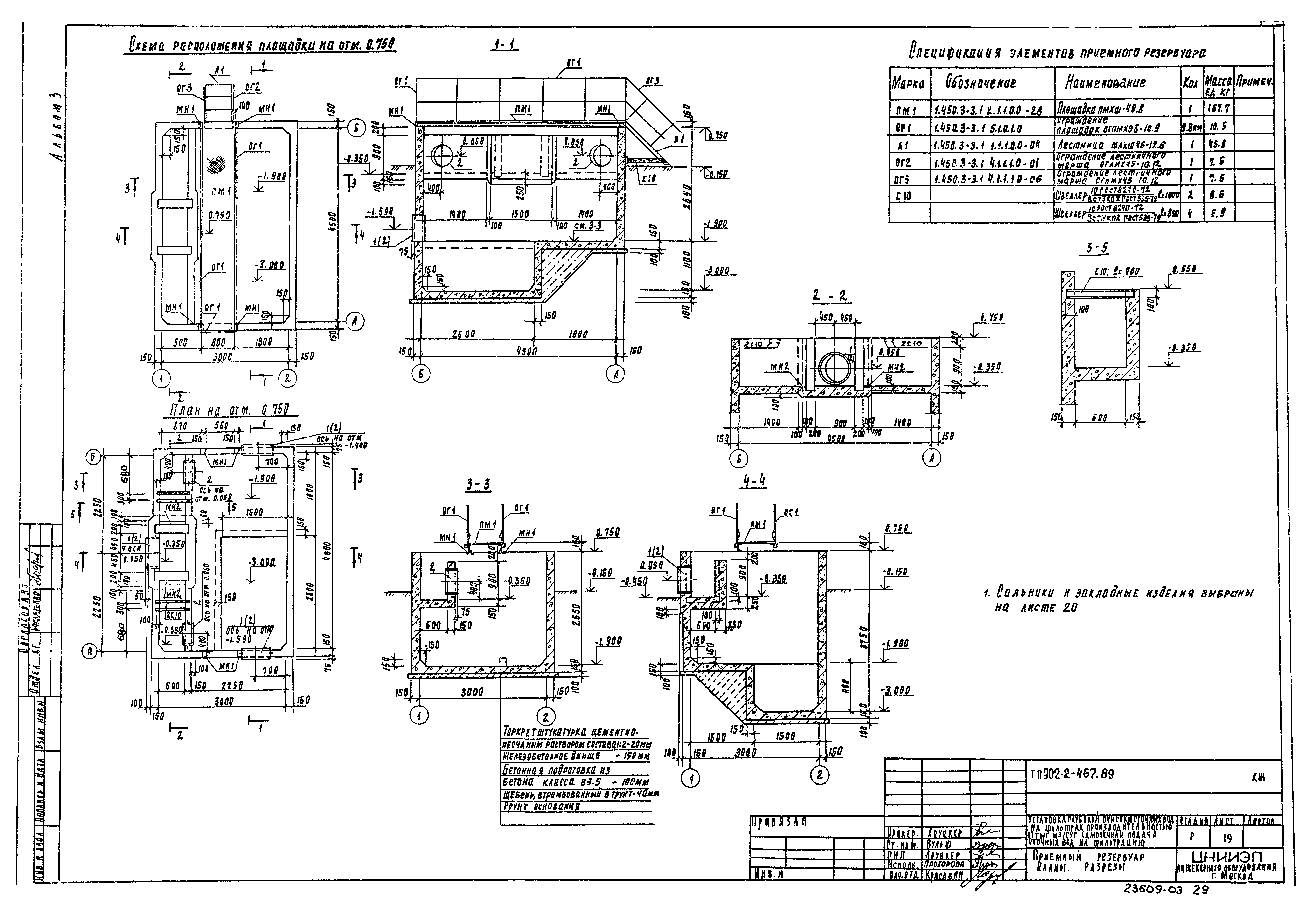
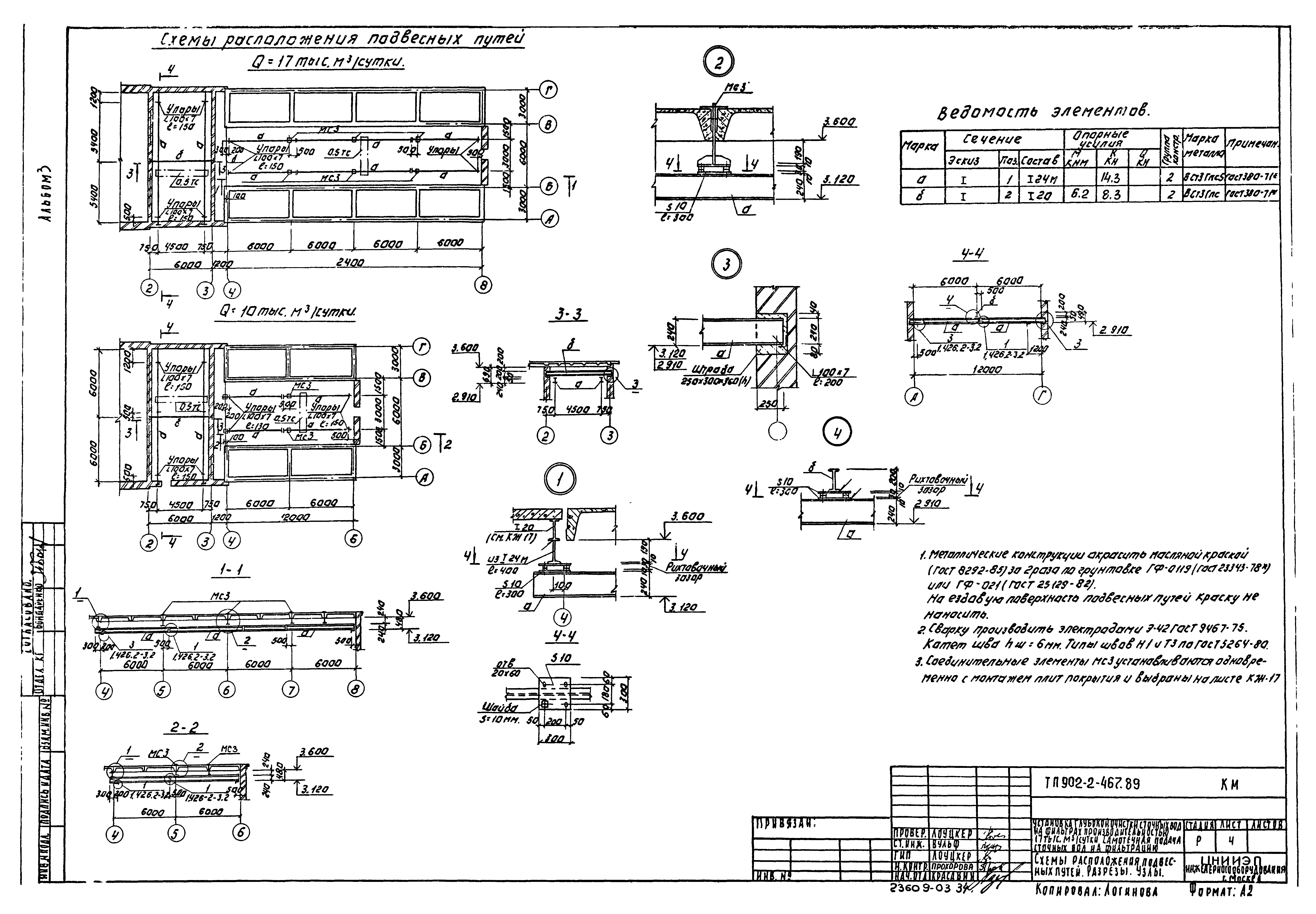
| Оглавление: | Содержание альбома Примерный генплан с коммуникациями Архитектурно-строительные решения Общие данные План на отм. 0.000 Разрезы 1-1, 2-2, 3-3 Фасады 1 - 8 (6); 8 (6) - 1; А - Г; Г- А Ведомости перемычек и проемов ворот и дверей. Спецификация элементов заполнения проемов. Узел I Планы кровли и полов. Экспликация полов. Ведомость отделки помещений Конструкции железобетонные Общие данные Схема расположения фундаментов и подбетонок. Разрезы 1-1 - 3-3 Схема расположения фундаментов и подбетонок. Разрезы 4-4 - 12-12 Схема расположения подпорной стены Схема расположения фундаментов под оборудование и каналов. Разрезы Фильтры. Схемы расположения стеновых панелей и лотков, закладных деталей на отм. 3.600 Фильтры. Разрезы 1-1 - 4-4 Фильтры. Детали крепления технологических труб. Схема расположения выпусков арматуры и бетонных столбиков. Узлы 1 - 3, А, Б Фильтры. Спецификация к схемам расположения стеновых панелей и лотков, закладных деталей на отм. 3.600 Фильтры. Днище. Опалубочные чертежи. Планы. Разрезы. Узлы Фильтры. Днище. Армирование. Схемы расположения каркасов, нижних сеток, верхних сеток Фильтры. Днище. Армирование. Разрезы 1-1 - 3-3. Узлы 1 - 3 Фильтры. Монолитные участки стен. Опалубочный чертеж Фильтры. Монолитные участки стен. Армирование Фильтры. Монолитные участки стен. Армирование. Спецификация Фильтры. Схемы расположения плит перекрытия на отм. 0.000. Разрезы Схема расположения плит покрытия. Венткамера. Разрезы Камера входная Приемный резервуар. Планы. Разрезы Приемный резервуар. Армирование Конструкции металлические Общие данные. Ведомость металлоконструкций по видам профилей Производительность 17 тысяч куб. м/сутки. Общие данные. Техническая спецификация стали Производительность 10 тысяч куб. м/сутки. Общие данные. Техническая спецификация стали Схемы расположения подвесных путей. Разрезы. Узлы Схемы расположения балок под площадки на отм. 0.350. Ограждения фильтров. Разрезы. Узлы Организация строительства Схема стройгенплана График производства работ |
| Разработан: | ЦНИИЭП |
| Утверждён: | 21.11.1988 Госкомархитектура (310) |






































