Скачать Серия 3.503.1-55 Выпуск 0. Материалы для проектирования Рабочие чертежиДата актуализации: 01.01.2021
|
| Обозначение: | Серия 3.503.1-55 |
| Обозначение англ: | Series 3.503.1-55 |
| Статус: | не действует |
| Название рус.: | Выпуск 0. Материалы для проектирования Рабочие чертежи |
| Дата добавления в базу: | 01.09.2013 |
| Дата актуализации: | 01.01.2021 |
| Дата введения: | 25.02.1981 |
| Дата окончания срока действия: | 01.08.1988 |
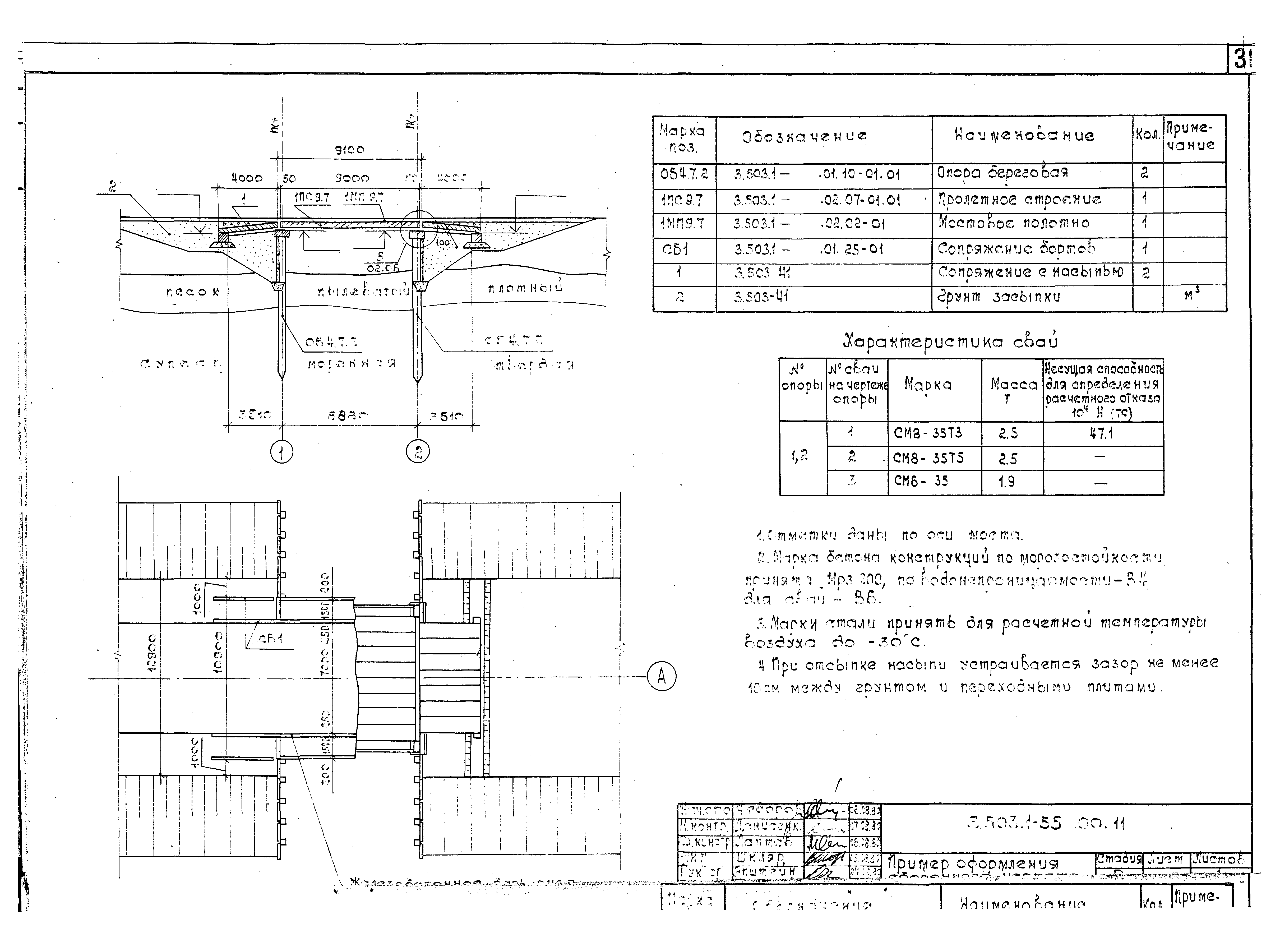
| Оглавление: | 3.503.1-55.00.00.ДО Содержание 3.503.1-55.00.00.ТО Техническое описание 3.503.1-55.00.00.ВД Ведомость ссылочных документов 3.503.1-55.00.10 Номенклатура железобетонных изделий 3.503.1-55.00.11 Пример оформления сборочного чертежа однопролетного моста 3.503.1-55.00.12 Пример оформления сборочного чертежа двухпролетного моста 3.503.1-55.00.13 Пример оформления сборочного чертежа трехпролетного моста. Спецификация 3.503.1-55.00.14 Пример оформления сборочного чертежа трехпролетного моста. Сборочный чертеж 3.503.1-55.00.15 Пример оформления сборочного чертежа трехпролетного моста с лежневыми опорами. Спецификация 3.503.1-55.00.16 Пример оформления сборочного чертежа трехпролетного моста с лежневыми опорами. Сборочный чертеж 3.503.1-55.00.17 Пример оформления сборочного чертежа четырехпролетного моста. Спецификация 3.503.1-55.00.18 Пример оформления сборочного чертежа четырехпролетного моста. Сборочный чертеж |
| Разработан: | БелгипродорНИИ Минавтодора БССР |
| Утверждён: | 23.02.1981 Миндорстрой БССР (BSSR Mindorstroy 1/81) |
| Чем заменён: |







































