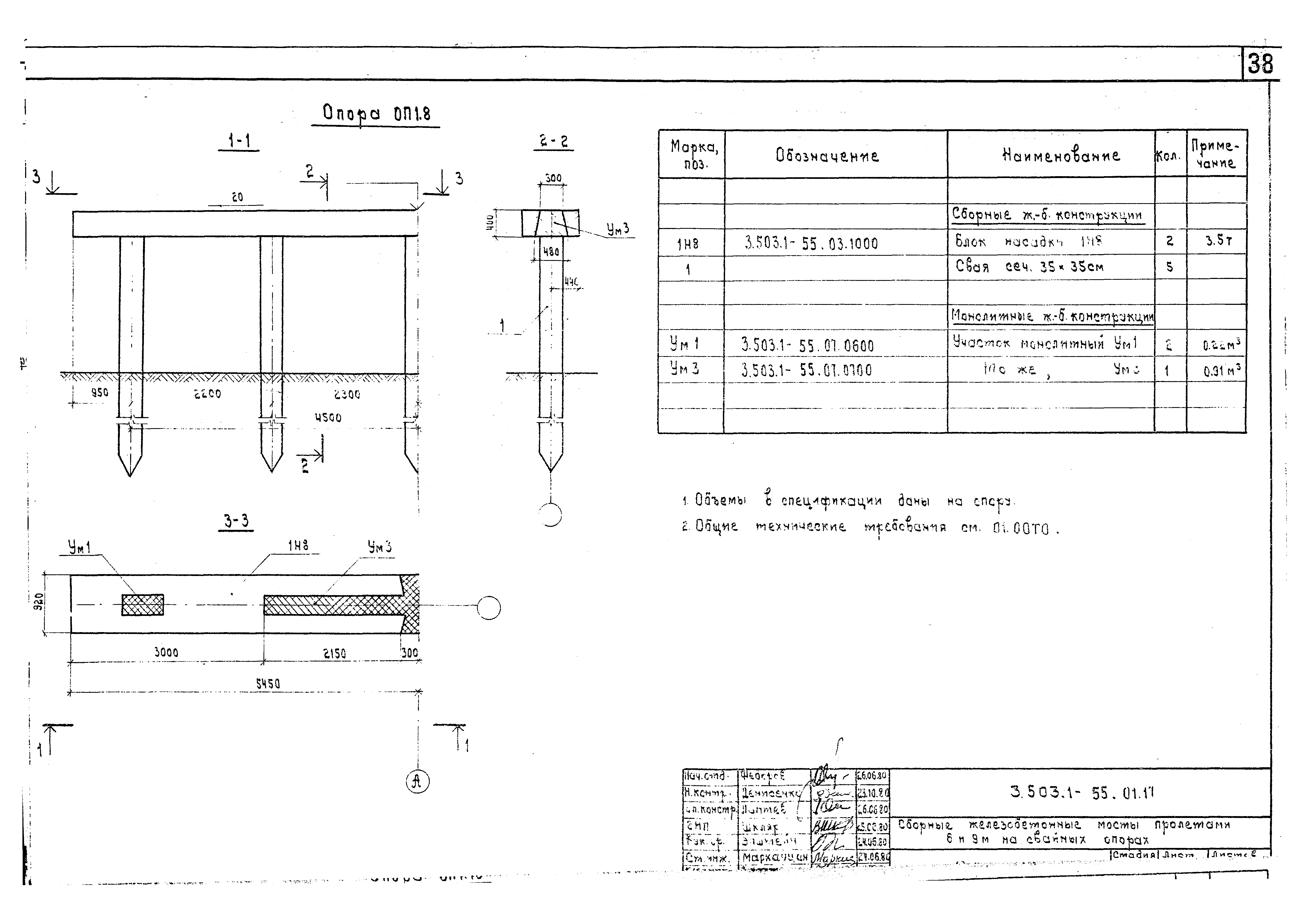
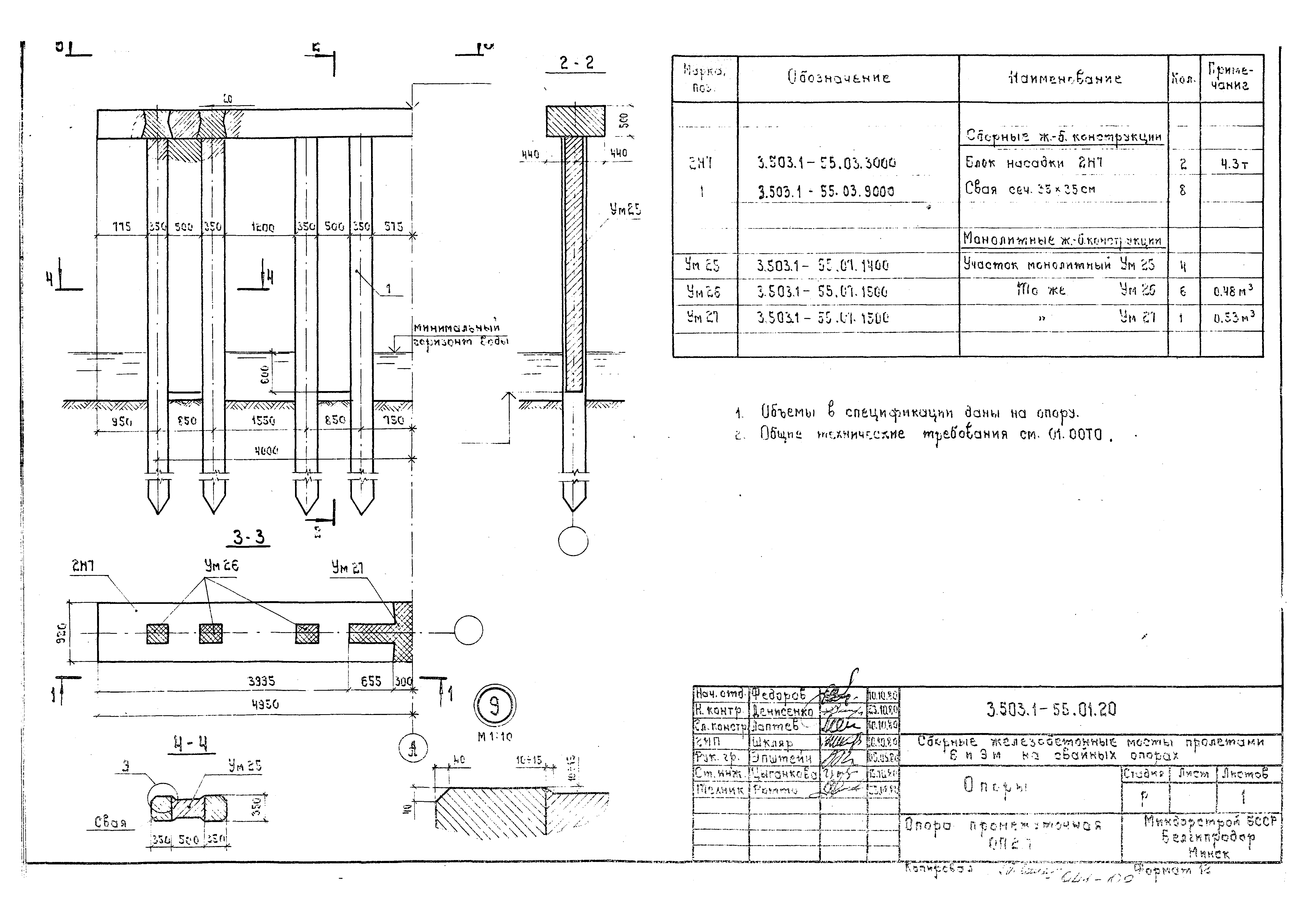
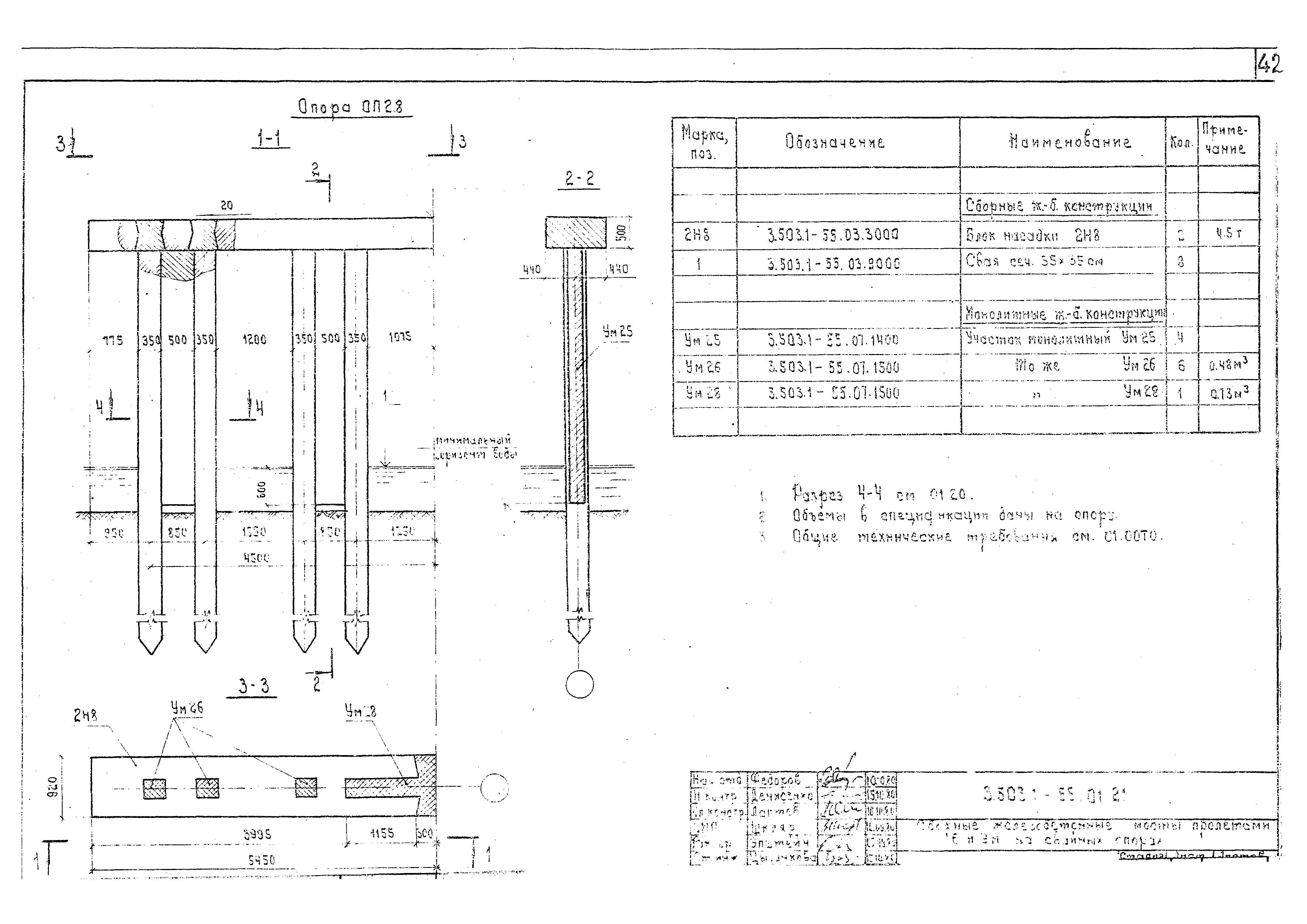
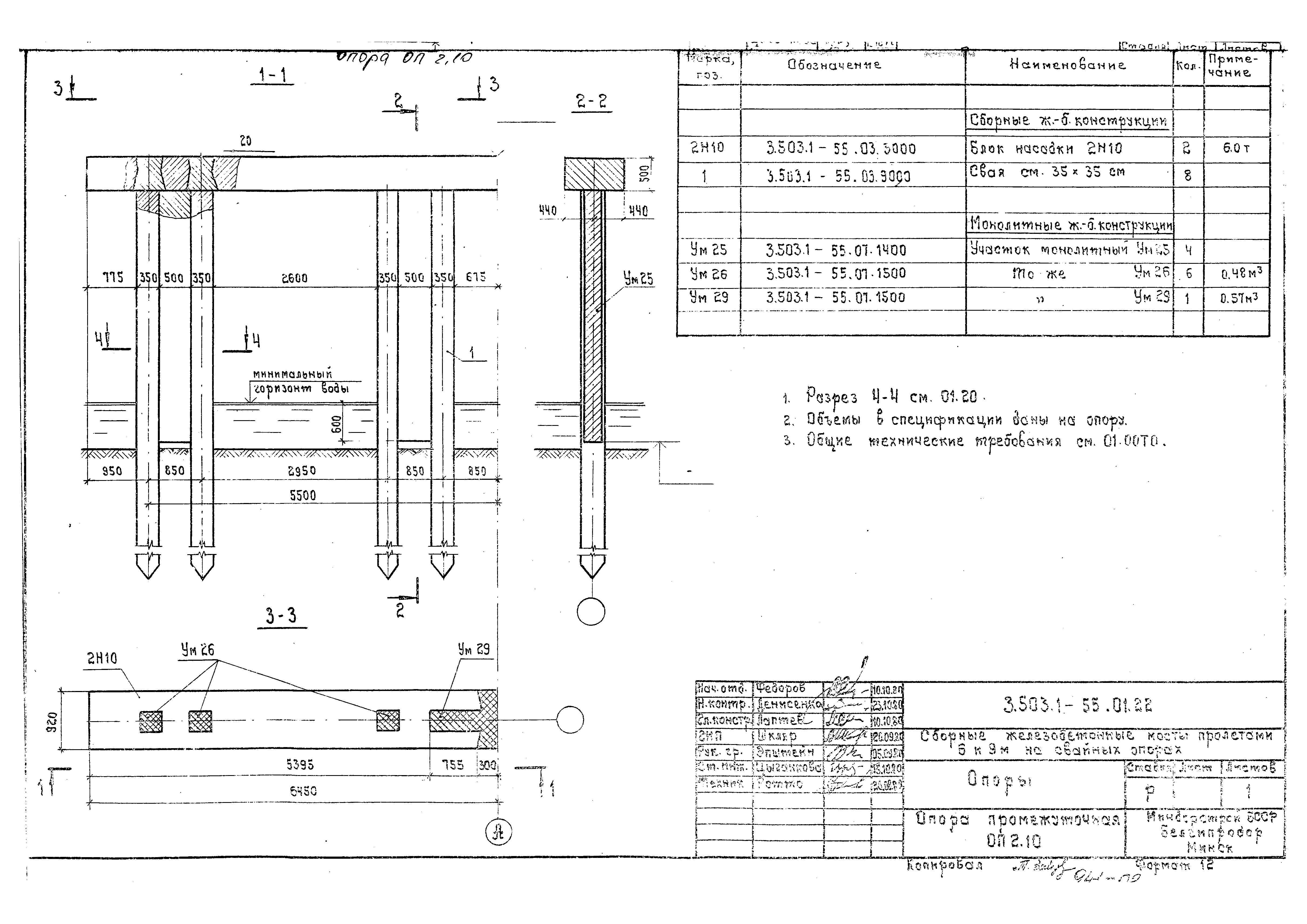
Скачать Серия 3.503.1-55 Выпуск 1. Опоры. Рабочие чертежиДата актуализации: 01.01.2021
|
| Обозначение: | Серия 3.503.1-55 |
| Обозначение англ: | Series 3.503.1-55 |
| Статус: | не действует |
| Название рус.: | Выпуск 1. Опоры. Рабочие чертежи |
| Дата добавления в базу: | 01.09.2013 |
| Дата актуализации: | 01.01.2021 |
| Дата введения: | 25.02.1981 |
| Дата окончания срока действия: | 01.08.1988 |
| Разработан: | БелгипродорНИИ Минавтодора БССР |
| Утверждён: | 23.02.1981 Миндорстрой БССР (BSSR Mindorstroy 1/81) |
| Чем заменён: |
















































