Скачать Серия 3.503.1-55 Выпуск 7. Монолитные конструкции опор. Рабочие чертежиДата актуализации: 01.01.2021
|
| Обозначение: | Серия 3.503.1-55 |
| Обозначение англ: | Series 3.503.1-55 |
| Статус: | заменен |
| Название рус.: | Выпуск 7. Монолитные конструкции опор. Рабочие чертежи |
| Дата добавления в базу: | 01.09.2013 |
| Дата актуализации: | 01.01.2021 |
| Дата введения: | 25.02.1981 |
| Дата окончания срока действия: | 01.08.1988 |
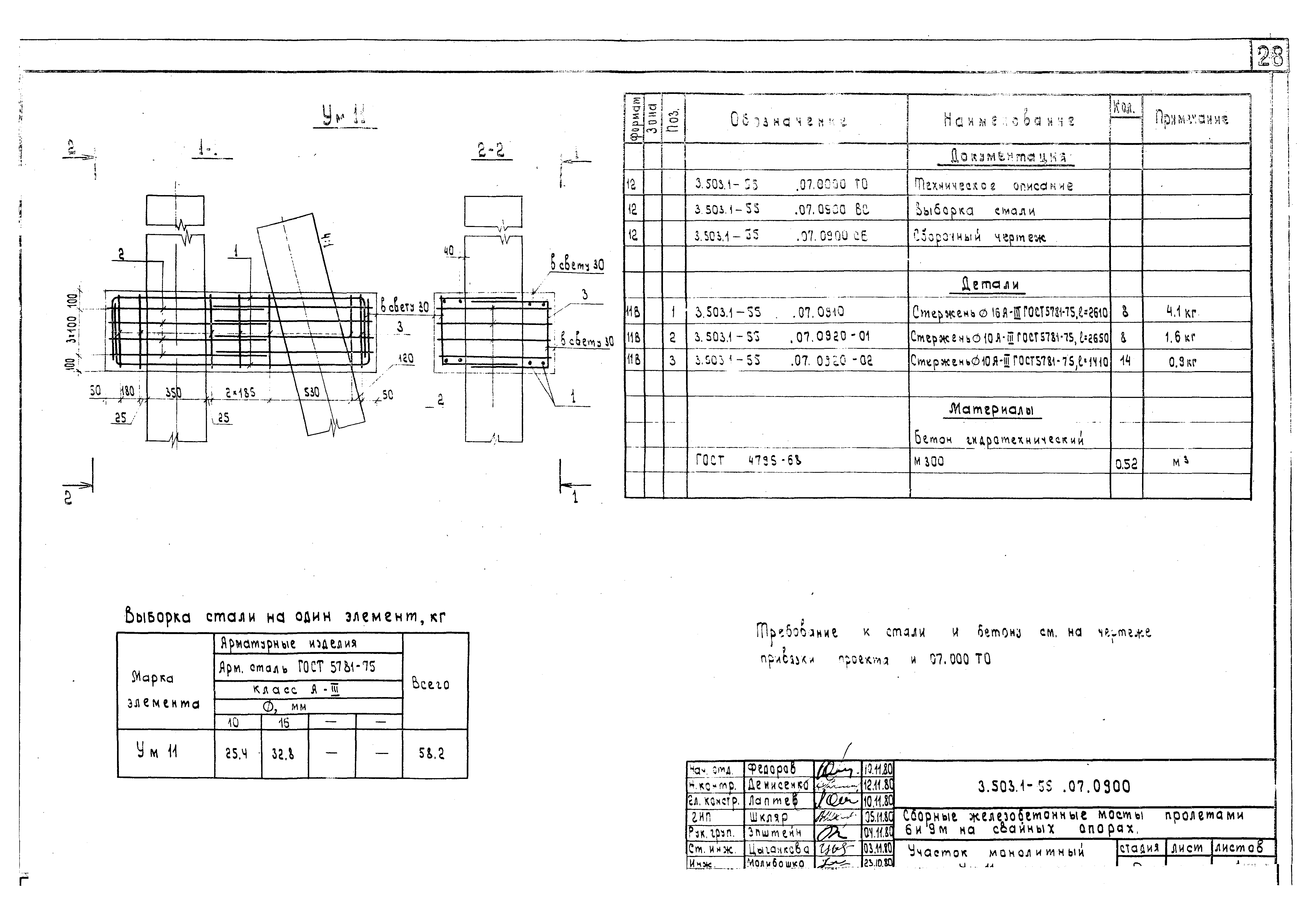
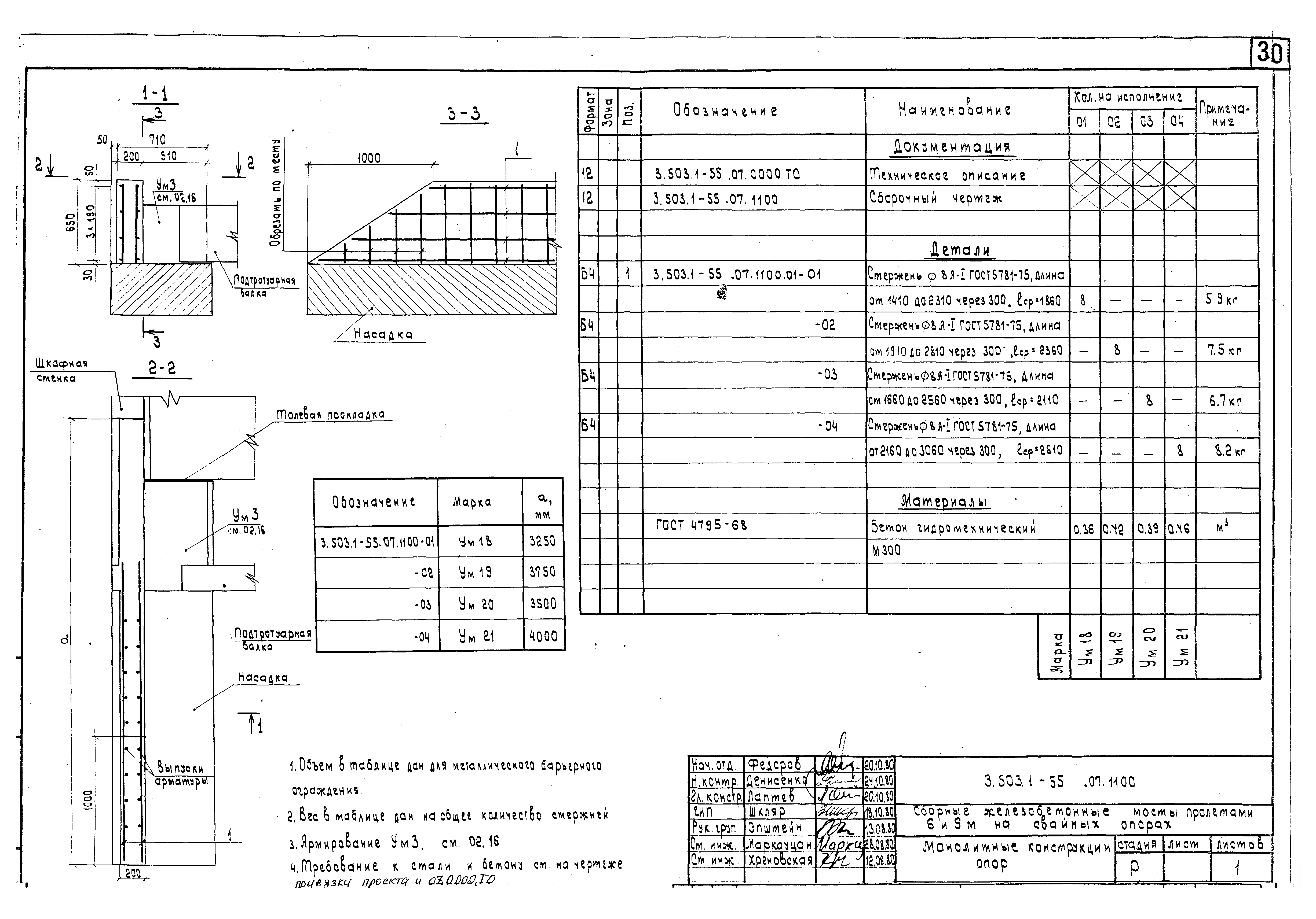
| Оглавление: | 3.503.1-55.07.0000ДО Содержание 3.503.1-55.07.0000ТО Техническое описание 3.503.1-55.07.0100 Насадка монолитная Нм1 - Нм4. Спецификация 3.503.1-55.07.0100СБ Насадка монолитная Нм1 - Нм4. Сборочный чертеж 3.503.1-55.07.0200 Насадка монолитная Нм5 - Нм12. Спецификация 3.503.1-55.07.0200СБ Насадка монолитная Нм5 - Нм12. Сборочный чертеж 3.503.1-55.07.0300 Насадка монолитная Нм13 - Нм16. Спецификация 3.503.1-55.07.0300СБ Насадка монолитная Нм13 - Нм16. Сборочный чертеж 3.503.1-55.07.0400 Фундамент монолитный Фм1 - Фм7. Спецификация 3.503.1-55.07.0400СБ Фундамент монолитный Фм1 - Фм7. Сборочный чертеж 3.503.1-55.07.0500 Фундамент монолитный Фм8 - Фм9. Спецификация 3.503.1-55.07.0500СБ Фундамент монолитный Фм8 - Фм9. Сборочный чертеж 3.503.1-55.07.0400ВС Фундамент монолитный Фм1 - Фм9. Выборка стали 3.503.1-55.07.0600 Участок монолитный Ум1 - Ум6 3.503.1-55.07.0700 Участок монолитный Ум2 - Ум5. Спецификация 3.503.1-55.07.0700СБ Участок монолитный Ум2 - Ум5. Сборочный чертеж 3.503.1-55.07.0600ВС Участок монолитный Ум1 - Ум6. Выборка стали 3.503.1-55.07.0800 Участок монолитный Ум7 - Ум10 3.503.1-55.07.0900 Участок монолитный Ум11 3.503.1-55.07.1000 Участок монолитный Ум12 - Ум15 3.503.1-55.07.1100 Участок монолитный Ум18 - Ум21 3.503.1-55.07.1200 Участок монолитный Ум22 3.503.1-55.07.1300 Участок монолитный Ум23, Ум24 3.503.1-55.07.1400 Участок монолитный Ум25. Спецификация 3.503.1-55.07.1400СБ Участок монолитный Ум25. Сборочный чертеж 3.503.1-55.07.1500 Участок монолитный Ум26 - Ум30. Спецификация 3.503.1-55.07.1500СБ Участок монолитный Ум26 - Ум30. Сборочный чертеж 3.503.1-55.07.1500ВС Участок монолитный Ум26 - Ум30. Выборка стали 3.503.1-55.07.0210 Каркас пространственный КП1 - КП7 3.503.1-55.07.0110 Каркас плоский КР1 - КР4 3.503.1-55.07.0220 Каркас плоский КР5 - КР11 3.503.1-55.07.0310 Каркас плоский КР12 - КР15 3.503.1-55.07.0810 Сетка арматурная С1 - С4 3.503.1-55.07.1310 Сетка арматурная С5 - С8 3.503.1-55.07.1410 Сетка арматурная С9 - С14 3.503.1-55.07.0120 Стержень одиночный насадки монолитной Нм1 - Нм4 3.503.1-55.07.0130 Стержень одиночный насадки монолитной Нм1 - Нм4 3.503.1-55.07.0230 Стержень одиночный насадки монолитной Нм5 - Нм12 3.503.1-55.07.0240 Стержень одиночный насадки монолитной Нм5 - Нм12 3.503.1-55.07.0320 Стержень одиночный насадки монолитной Нм13 - Нм16 3.503.1-55.07.0330 Стержень одиночный насадки монолитной Нм13 - Нм16 3.503.1-55.07.0410 Стержень одиночный фундамента монолитного Фм1 - Фм9 3.503.1-55.07.0420 Стержень одиночный фундамента монолитного Фм1 - Фм9 3.503.1-55.07.0610 Стержень одиночный участка монолитного Ум1 - Ум5 3.503.1-55.07.0710 Стержень одиночный участка монолитного Ум2 - Ум5 3.503.1-55.07.0720 Стержень одиночный участка монолитного Ум2 - Ум5 3.503.1-55.07.0730 Стержень одиночный участка монолитного Ум2 - Ум5 3.503.1-55.07.0620 Стержень одиночный участка монолитного Ум1 - Ум6 3.503.1-55.07.0630 Стержень одиночный участка монолитного Ум6 3.503.1-55.07.0910 Стержень одиночный участка монолитного Ум11 3.503.1-55.07.0920 Стержень одиночный участка монолитного Ум11 3.503.1-55.07.1210 Стержень одиночный участка монолитного Ум22 3.503.1-55.07.1220 Стержень одиночный участка монолитного Ум22 3.503.1-55.07.1420 Стержень одиночный участка монолитного Ум25 3.503.1-55.07.1510 Стержень одиночный участка монолитного Ум27 - Ум30 3.503.1-55.07.1520 Стержень одиночный участка монолитного Ум26 - Ум30 3.503.1-55.07.1530 Стержень одиночный участка монолитного Ум26 - Ум30 3.503.1-55.07.1600 Анкерная тяга АТ1, АТ2 3.503.1-55.07.1700 Изделие закладное МН1 |
| Разработан: | БелгипродорНИИ Минавтодора БССР |
| Утверждён: | 23.02.1981 Миндорстрой БССР (BSSR Mindorstroy 1/81) |
| Чем заменён: |
























































