Скачать Типовой проект 501-3-33.87 Альбом 2. Архитектурные решения. Конструкции железобетонные. Конструкции металлическиеДата актуализации: 01.01.2021
|
| Обозначение: | Типовой проект 501-3-33.87 |
| Обозначение англ: | 501-3-33.87 |
| Статус: | не определен законодательством |
| Название рус.: | Альбом 2. Архитектурные решения. Конструкции железобетонные. Конструкции металлические |
| Дата добавления в базу: | 01.09.2013 |
| Дата актуализации: | 01.01.2021 |
| Дата введения: | 11.03.1988 |
| Дата окончания срока действия: | 30.06.2003 |
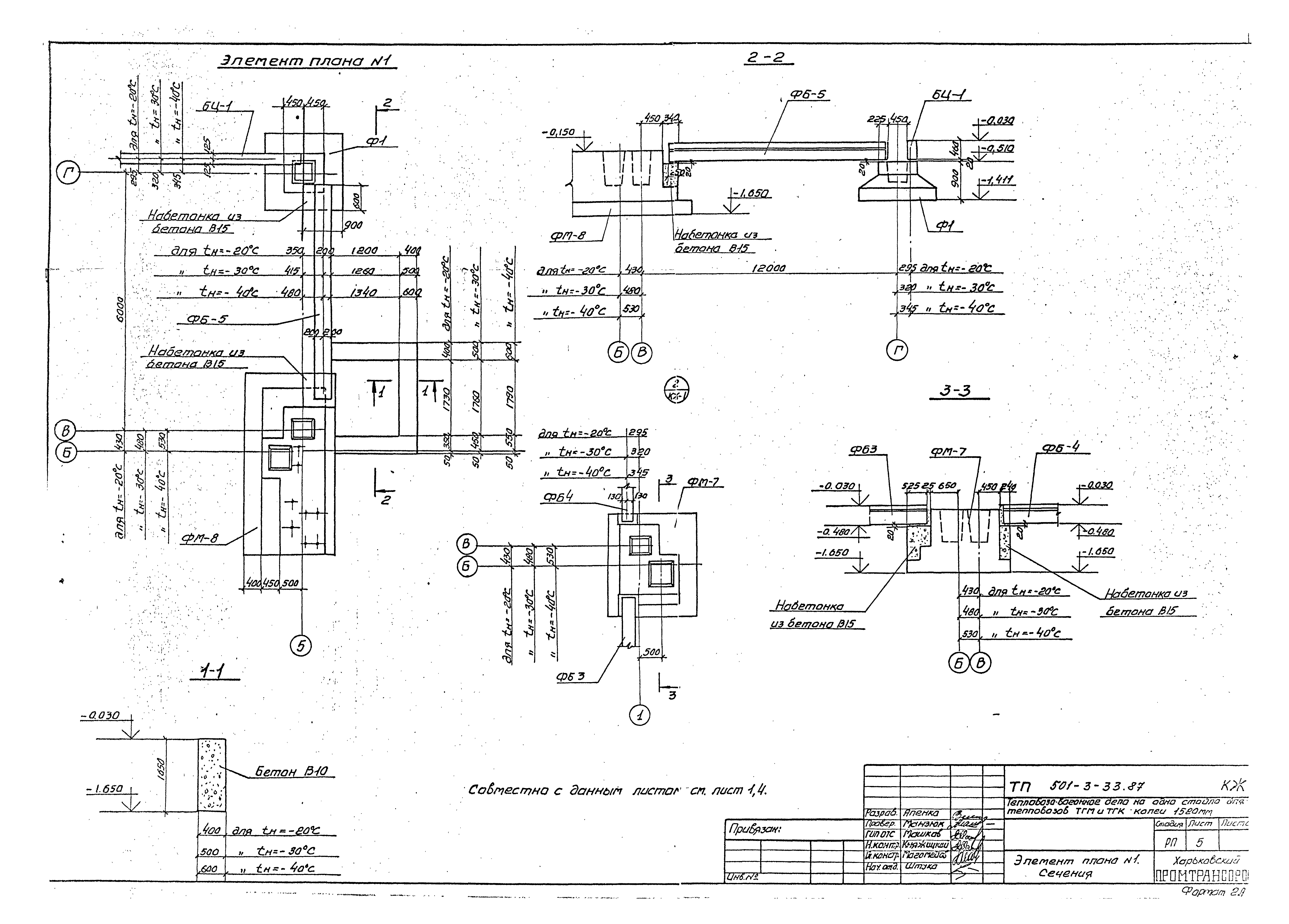
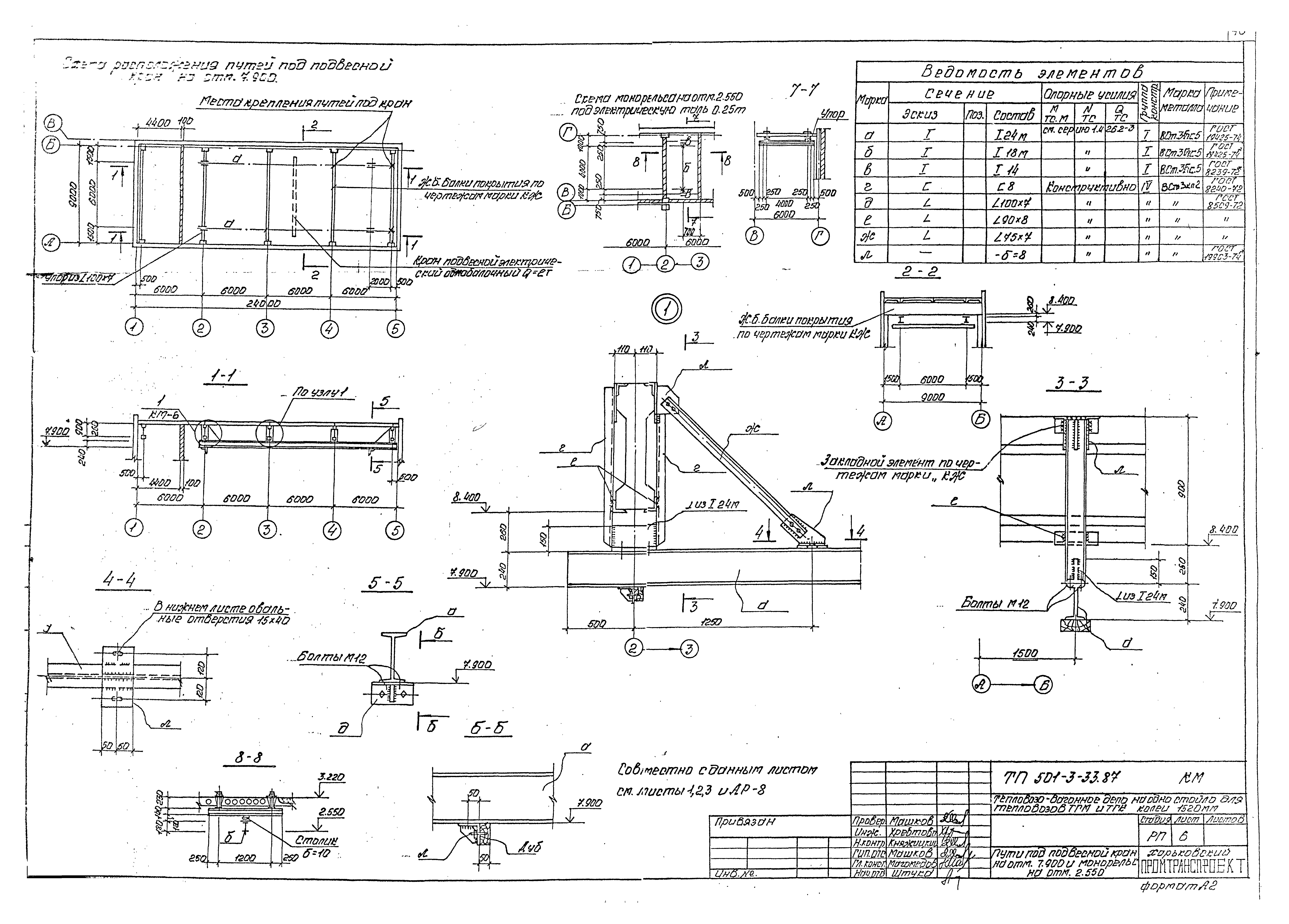
| Оглавление: | Чертежи основного комплекта марки АР Общие данные План на отм. 0.000 Разрезы 1-1 - 4-4 Фасады. Схема заполнения оконных проемов Фрагмент плана 2. Разрезы 5-5. Узлы План на отм. 5.800. План кровли Планы отверстий в перегородках на отм. 0.000 и 5.800. Таблица отверстий Схема расположения элементов подземного хозяйства. Спецификация элементов Планы полов на отм. 0.000 и 5.800. Экспликация полов Короба К-1 - К-4 Чертежи основного комплекта марки КЖ Общие данные Схема расположения элементов фундаментов Фундаменты. Фрагмент плана 1. Сечения Фундаменты. Фрагмент плана 2. Сечения Фундаменты ФМ-1 и ФМ-3. Сечения Фундаменты ФМ-2 и ФМ-4. Сечения Фундаменты ФМ-5 и ФМ-9. Сечения Фундаменты ФМ-6. Сечения Фундаменты ФМ-7 и ФМ-8. Сечения Фундаменты ФМ-10, ФМ-11, ФМ-12. Сечения Схема расположения колонн, ригелей и балок покрытия. Сечения 1-1 - 5-5 Схема расположения стальных стоек и насадок по осям "1" и "5". Спецификация Схема расположения плит покрытия Схема расположения стеновых панелей по рядам "А" и "Б", по осям "1" и "5", по ряду "Г" Фрагменты схем расположения стеновых панелей Спецификация к схемам расположения стеновых панелей в пристройке к цеху в осях "В" - "Г". Фундаменты Ф-1 - Ф-5 Спецификация к схемам расположения стеновых панелей цеха ремонта тепловозов и вагонов Схема расположения плит перекрытия площадки на отм. 5.800. Разрезы, сечения Грязеотстойник. Армирование Грязеотстойник. Разрезы 1-1, 2-2. План Канализационный колодец. Маслосборный колодец Чертежи основного комплекта марки КМ Общие данные Пути под подвесной кран на отм. 7.900 и монорельс на отм. 2.550 План балок перекрытия площадок на отм. 5.800. Разрезы 1-1 - 3-3. Спецификация Узлы 1 - 4. Сечения 4-4 - 9-9 Наружная металлическая лестница. План площадки на отм. 5.800. Узлы План расположения кронштейнов. Планы опор под трубопроводы. Разрезы 1-1 - 4-4 |
| Разработан: | Харьковский Промтранспроект |
| Утверждён: | 11.03.1988 Госстрой СССР (Государственный комитет Совета Министров СССР по делам строительства) (USSR Gosstroy 11) |

















































