Скачать Типовой проект 407-3-435.90 Альбом 2. Электротехнические чертежи. Строительные чертежи. Отопление и вентиляцияДата актуализации: 01.01.2021
|
| Обозначение: | Типовой проект 407-3-435.90 |
| Обозначение англ: | 407-3-435.90 |
| Статус: | не действует |
| Название рус.: | Альбом 2. Электротехнические чертежи. Строительные чертежи. Отопление и вентиляция |
| Дата добавления в базу: | 01.09.2013 |
| Дата актуализации: | 01.01.2021 |
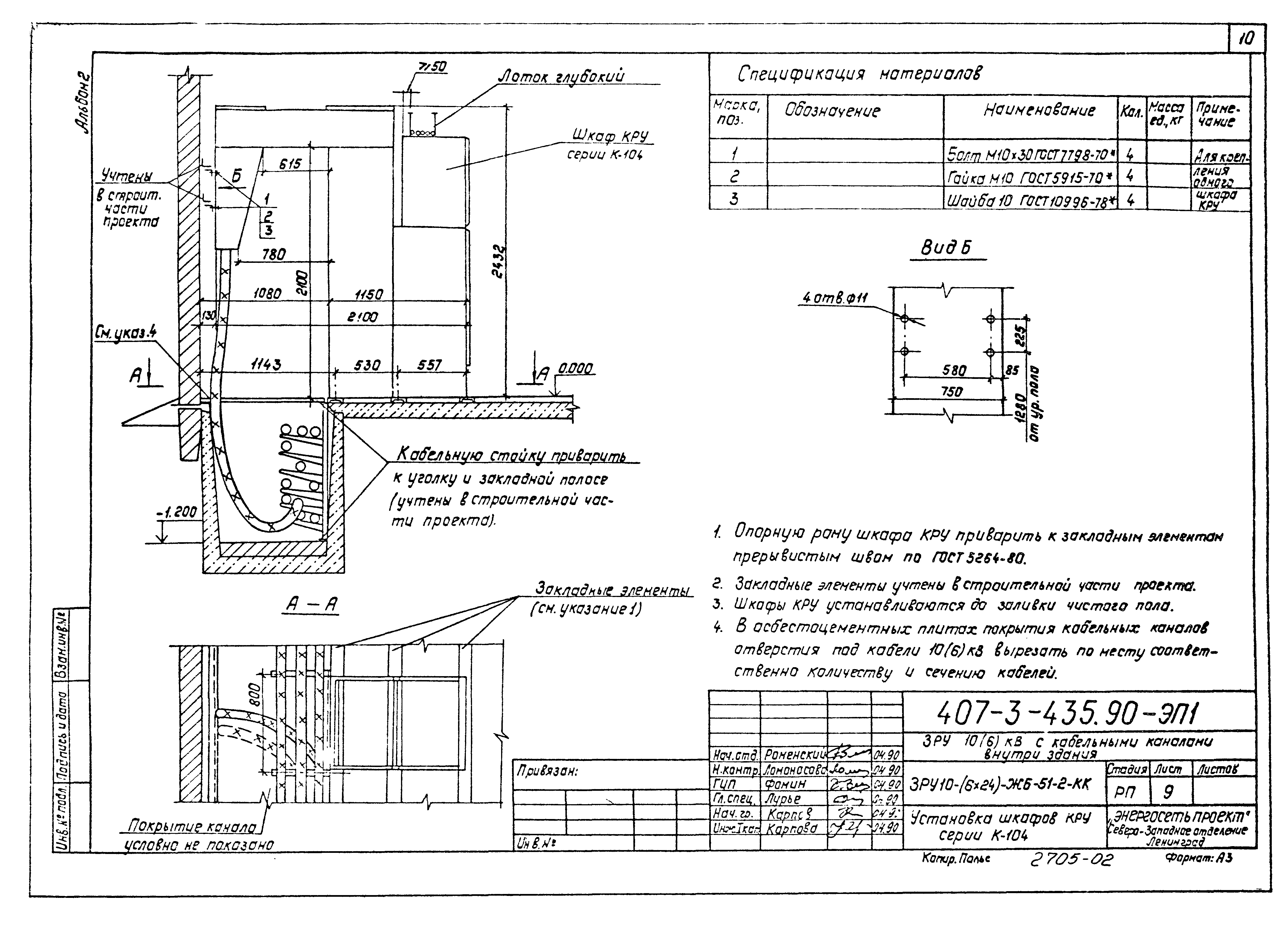
| Оглавление: | Чертежи основного комплекта марки ЭП1 ЗРУ10-(6х24)-ЖБ-51-2-КК со шкафами КРУ серии К-104. Общие данные ЗРУ10-(6х24)-ЖБ-51-2-КК на ток до 1600 А со шкафами КРУ серии К-104. Расстановка шкафов КРУ Спецификация к листу ЭП1-2 ЗРУ10-(6х24)-ЖБ-51-2-КК на ток до 2600 А со шкафами КРУ серии К-104. Расстановка шкафов КРУ Спецификация к листу ЭП1-4 Освещение Электрическое отопление и вентиляция Журнал силовых кабелей Установка шкафов КРУ серии К-104 Прокладка контрольных кабелей по шкафам КРУ. План. Разрезы Прокладка контрольных кабелей по шкафам КРУ. Узел I Крепление шинного ввода к стене ЗРУ Разводка кабелей 10 кВ ЗРУ10-(6х24)-ЖБ-51-2-КК со шкафами КРУ серии К-104. Спецификация оборудования ЗРУ10-(6х24)-ЖБ-51-2-КК со шкафами КРУ серии К-104. Ведомость потребности в материалах Чертежи основного комплекта марки АС1 ЗРУ10-(6х24)-ЖБ-51-2-КК. Общие данные План на отм. 0.000. Экспликация полов. Ведомость отделки помещений Разрезы 1-1 и 2-2 Архитектурные узлы А, Б Фасады Фрагмент входа №1 и №2 Фрагмент фасада 1 Схема расположения фундаментов здания Схема расположения фундаментов. Узлы 1, 2 Схемы расположения колонн, балок и плит покрытия Схемы расположения колонн, балок и плит покрытия. Узлы А и Б Схема расположения металлоконструкций в покрытии Схема расположения металлоконструкций в покрытии. Сечения 3-3 и 4-4 Схема расположения стеновых панелей Спецификация к схеме расположения стеновых панелей Схема расположения стеновых панелей. Узлы А, А`, Б Схема расположения стеновых панелей. Узлы В - Е Схема расположения закладных деталей в полу Схема расположения каналов Схема расположения плит покрытия каналов и приямков Схема расположения каналов, закладных деталей в полу. Сечения и узлы Схема расположения закладных деталей в стенах Ведомость потребности в материалах к комплекту марки АС1 Чертежи основного комплекта марки ЭП2 ЗРУ10-(6х24)-ЖБ-51-2-КК со шкафами КРУ серии КМ-1ф, КМ-1. Общие данные ЗРУ10-(6х24)-ЖБ-51-2-КК на ток 1600 А со шкафами КРУ серии КМ-1ф, КМ-1. Расстановка шкафов Спецификация к листу ЭП2-2 Освещение Электрическое отопление и вентиляция Журнал силовых кабелей Установка шкафов КРУ серий КМ-1ф, КМ-1 Установка проходных изоляторов Установка проходных изоляторов. Проходная доска. Детали Установка проходных изоляторов. Вариант установки ШШВ1 с ИПУ-10 заводского изготовления Прокладка контрольных кабелей по шкафам КРУ. План. Разрезы Прокладка контрольных кабелей по шкафам КРУ. Узел I Разводка кабелей 10 кВ Конструкция для крепления шкафа шинного ввода и шинной перемычки ЗРУ10-(6х24)-ЖБ-51-2-КК со шкафами КРУ серии КМ-1ф, КМ-1. Спецификация оборудования ЗРУ10-(6х24)-ЖБ-51-2-КК со шкафами КРУ серии КМ-1ф, КМ-1. Ведомость потребности в материалах для монтажных работ Чертежи основного комплекта марки АС2 ЗРУ10-(6х24)-ЖБ-51-2-КК. Общие данные План на отм. 0.000. Экспликация полов. Ведомость отделки помещений Разрезы 1-1 и 2-2 Архитектурные узлы А, Б Фасады Фрагмент входа №1 и №2 Фрагмент фасада 1 Схема расположения фундаментов здания Схема расположения фундаментов здания. Узлы 1, 2 Схемы расположения колонн, балок и плит покрытия Схемы расположения колонн, балок и плит покрытия. Узлы А и Б Схема расположения металлоконструкций в покрытии Схема расположения металлоконструкций в покрытии. Сечения 1-1 - 4-4 Схема расположения металлоконструкций в покрытии. Сечения 5-5 и 6-6 Схема расположения стеновых панелей Спецификация элементов к схеме расположения стеновых панелей Схема расположения стеновых панелей. Узлы А, Б, И, К Схема расположения стеновых панелей. Узлы В - Ж Схема расположения стеновых панелей. Узлы Л, М Схема расположения закладных деталей в полу Схема расположения каналов Схема расположения плит покрытия каналов и приямков Схема расположения каналов и закладных деталей в полу. Разрезы и узлы Ведомость потребности в материалах к комплекту марки АС2 Чертежи основного комплекта марки ОВ Общие данные План на отм. 0.000 Установка 2х и 3х электропечей. Рамы для установки 2х и 3х электропечей Спецификация оборудования |
| Разработан: | Северо-западное отделение института Энергосетьпроект |
| Утверждён: | 16.04.1990 Минэнерго СССР (USSR Minenergo 32) |















































































































