Скачать Типовой проект 901-2-152.87 Альбом III. Насосная станция Д1250-65. Нестандартизированное технологическое оборудованиеДата актуализации: 01.01.2021
|
| Обозначение: | Типовой проект 901-2-152.87 |
| Обозначение англ: | 901-2-152.87 |
| Статус: | не определен законодательством |
| Название рус.: | Альбом III. Насосная станция Д1250-65. Нестандартизированное технологическое оборудование |
| Дата добавления в базу: | 01.09.2013 |
| Дата актуализации: | 01.01.2021 |
| Дата введения: | 26.05.1986 |
| Дата окончания срока действия: | 30.06.2003 |
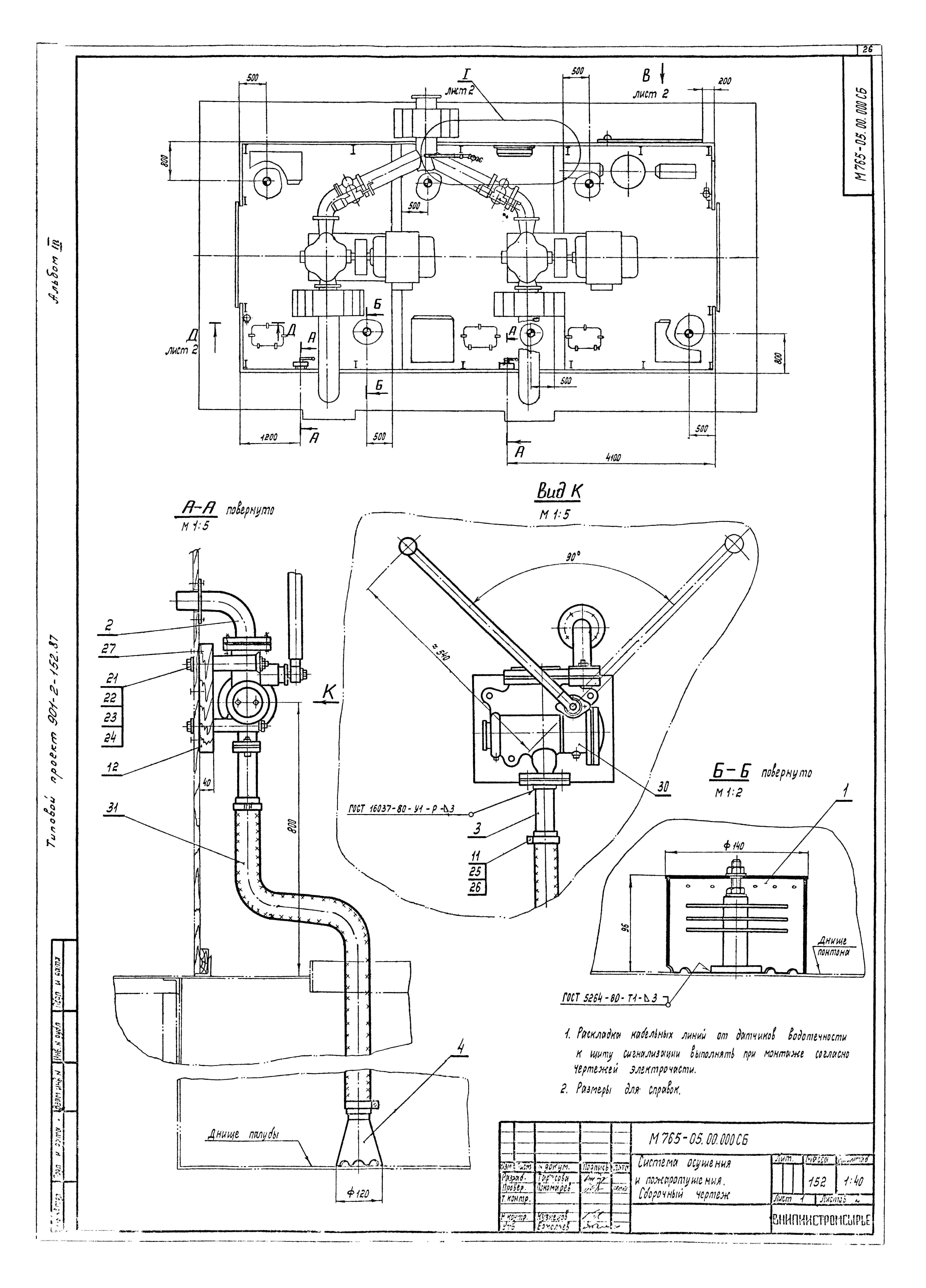
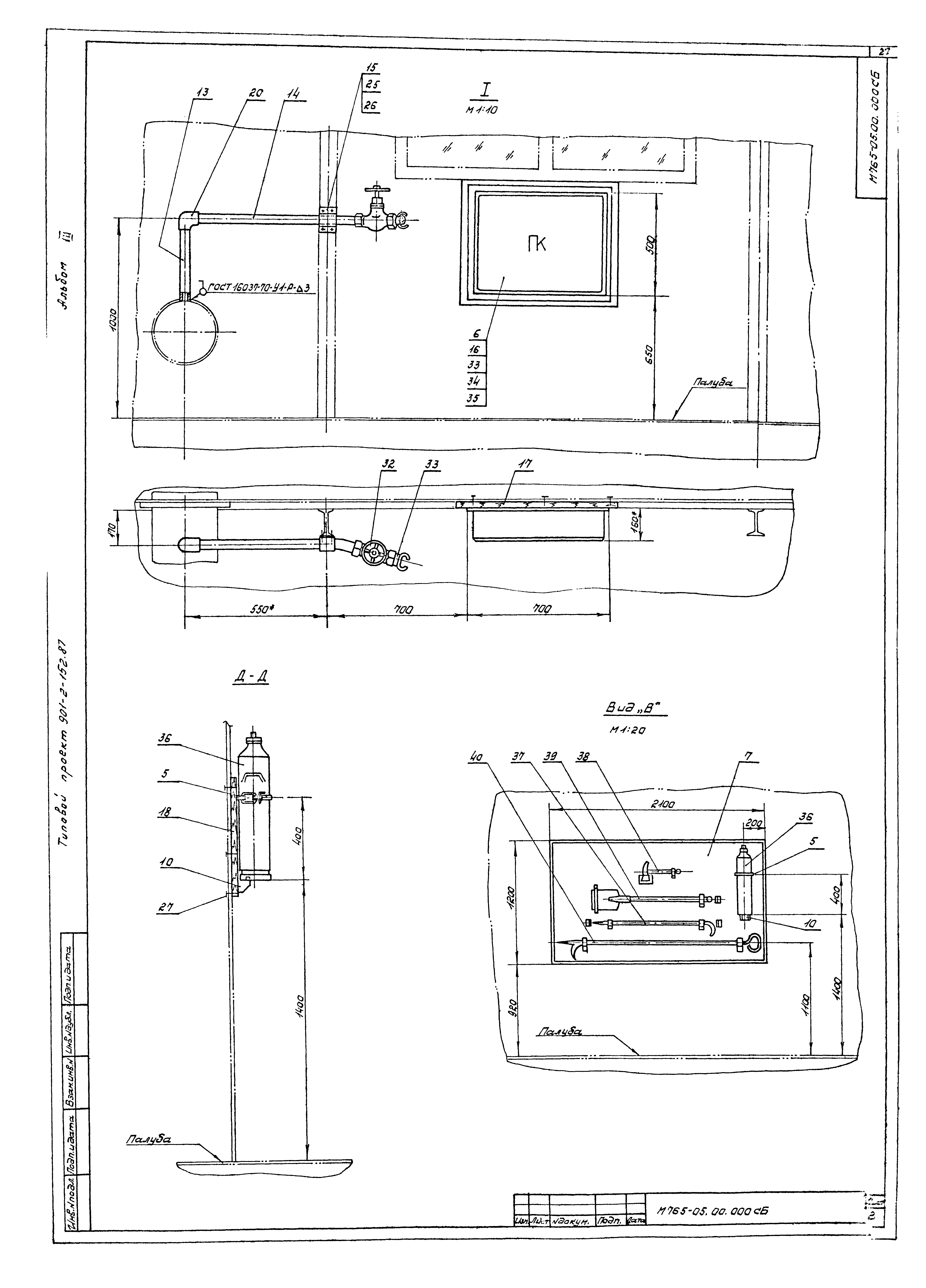
| Оглавление: | Содержание альбома 3 М765.01.00.000СБ Плавучая часть. Сборочный чертеж М765.01.00.000 Плавучая часть. Спецификация М765.01.01.000СБ Понтон. Сборочный чертеж М765.01.01.000 Понтон. Спецификация М765.02.00.000СБ Надстройка. Сборочный чертеж М765.02.00.000 Надстройка. Спецификация М765.02.01.000СБ Каркас надстройки. Сборочный чертеж М765.02.01.000 Каркас надстройки. Спецификация М765.03.00.000СБ Водопровод. Сборочный чертеж М765.03.00.000 Водопровод. Спецификация М765.04.00.000СБ Система заливки. Сборочный чертеж М765.04.00.000 Система заливки. Спецификация М765.05.00.000СБ Система осушения и пожаротушения. Сборочный чертеж М765.05.00.000 Система осушения и пожаротушения. Спецификация |
| Разработан: | ВНИПИстромсырье |
| Утверждён: | 26.05.1986 Минстройматериалов СССР (USSR Minstroymaterialov 28-169/85) |




























