Скачать Типовой проект 901-2-167с.13.89 Альбом I. Пояснительная записка. Технологические решения. Архитектурно-строительные решения. Конструкции железобетонные. Конструкции металлические. Отопление и вентиляция. Внутренние водопровод и канализация. Электротехническая часть. Автоматизация электропривода. Технологический контрольДата актуализации: 01.01.2021
|
| Обозначение: | Типовой проект 901-2-167с.13.89 |
| Обозначение англ: | 901-2-167с.13.89 |
| Статус: | действует |
| Название рус.: | Альбом I. Пояснительная записка. Технологические решения. Архитектурно-строительные решения. Конструкции железобетонные. Конструкции металлические. Отопление и вентиляция. Внутренние водопровод и канализация. Электротехническая часть. Автоматизация электропривода. Технологический контроль |
| Дата добавления в базу: | 01.09.2013 |
| Дата актуализации: | 01.01.2021 |
| Дата введения: | 01.09.1989 |
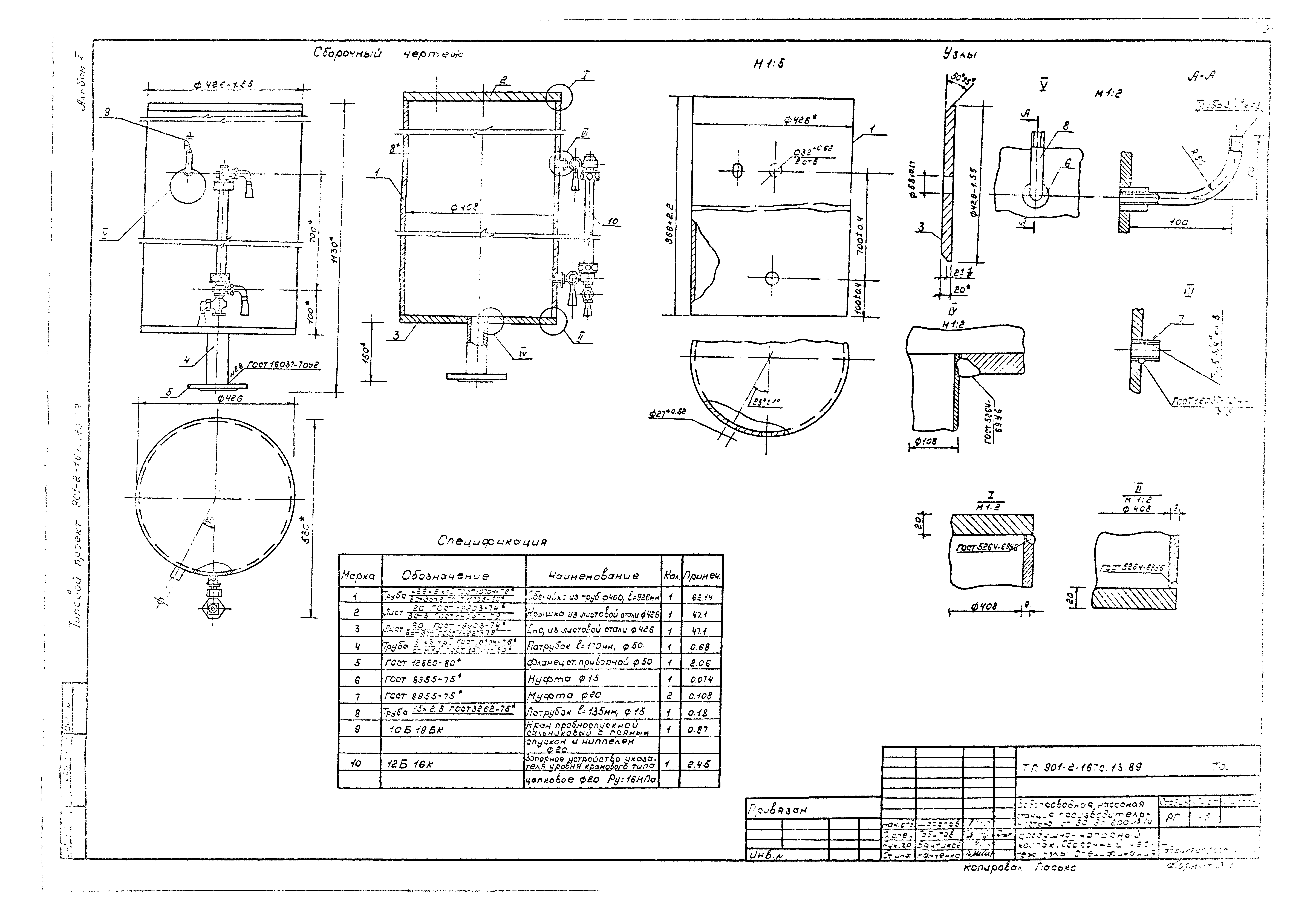
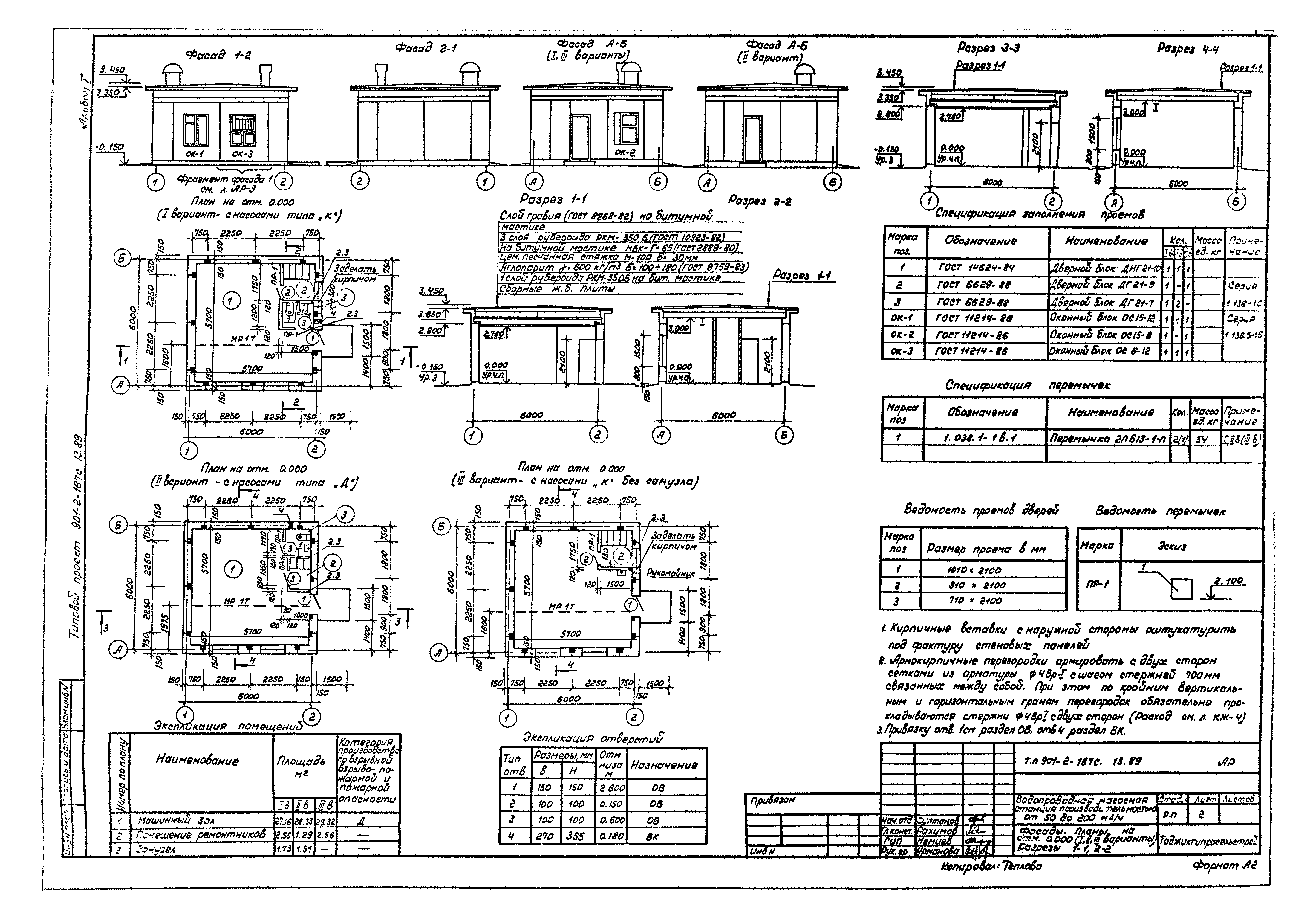
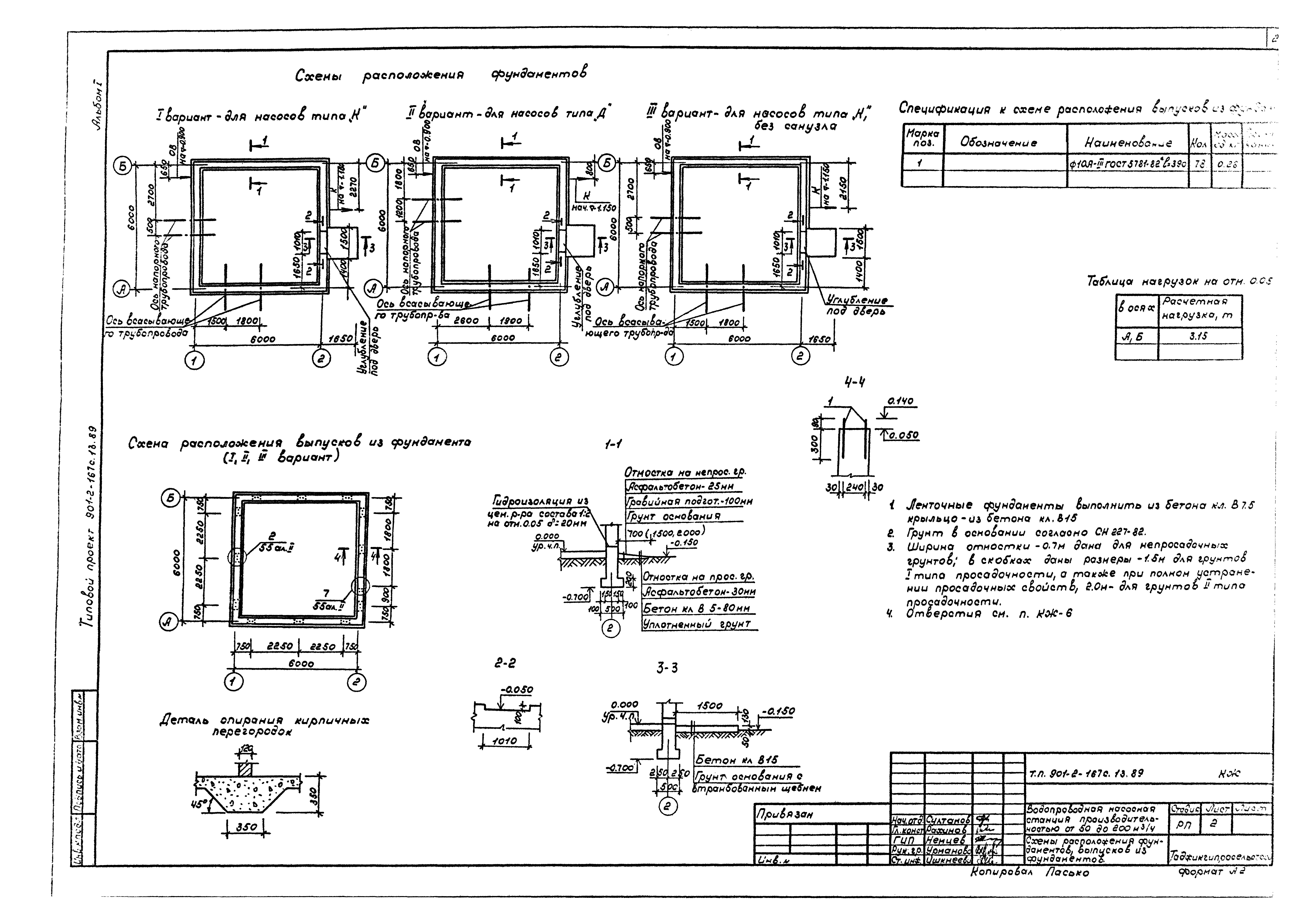
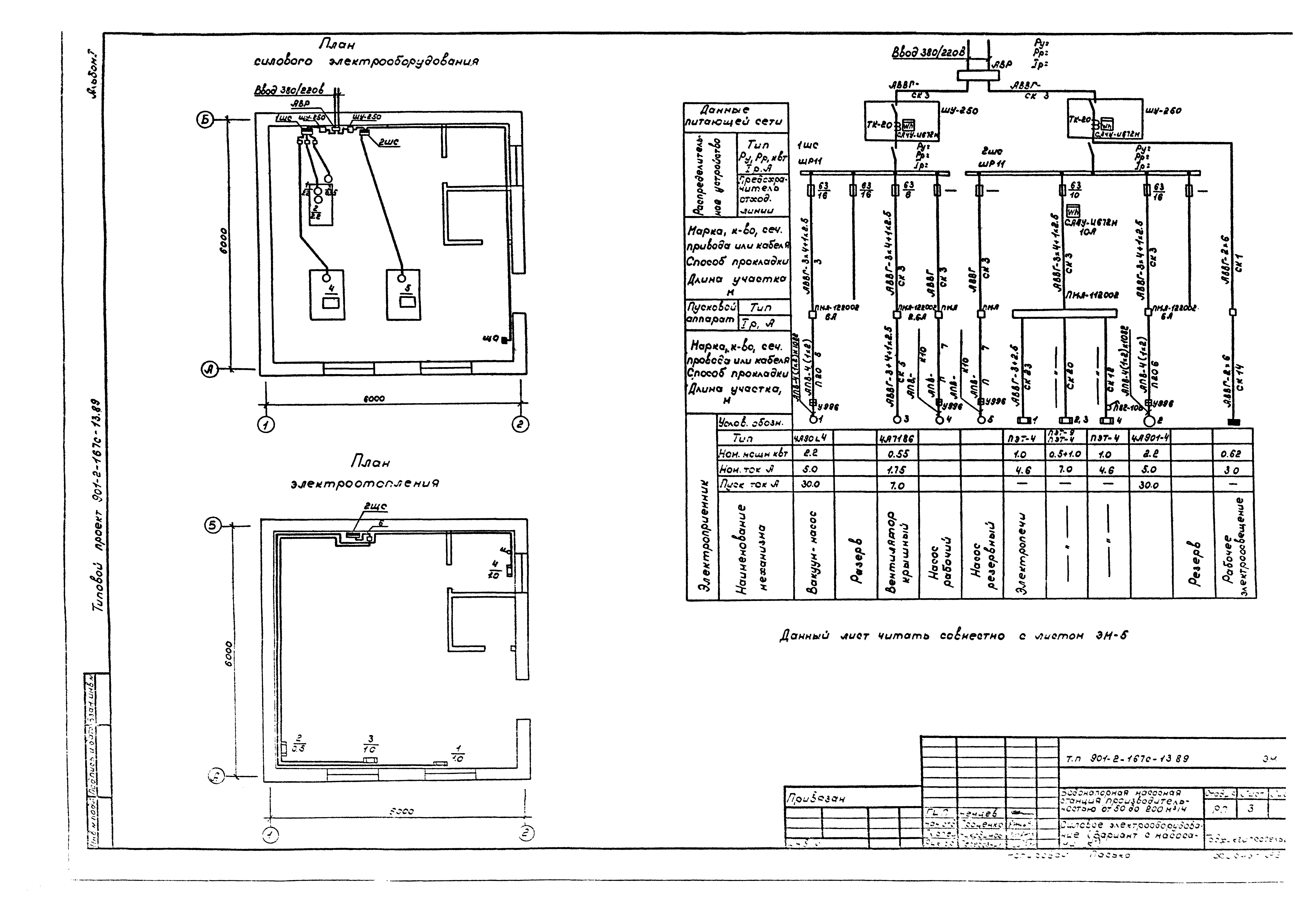
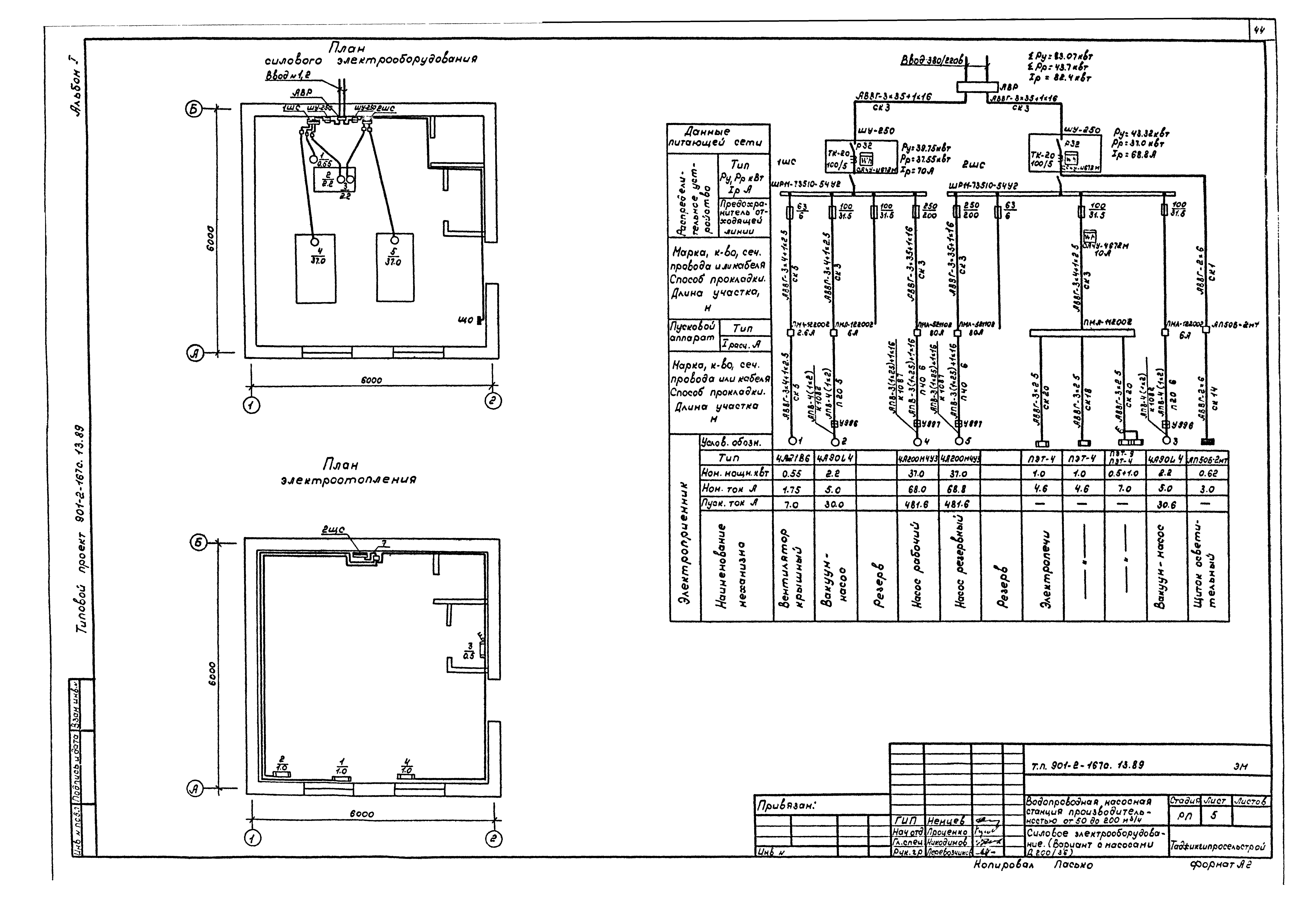
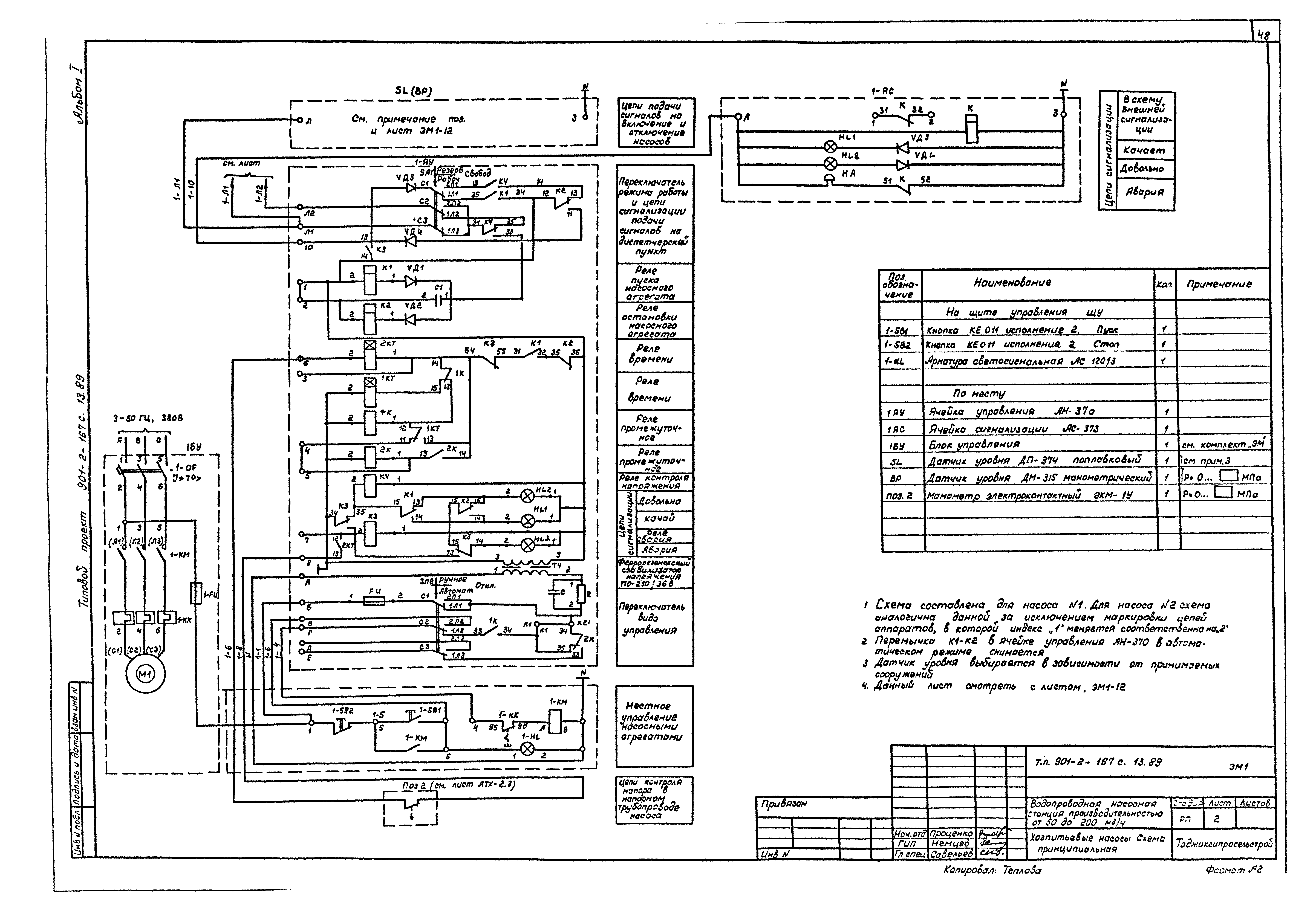
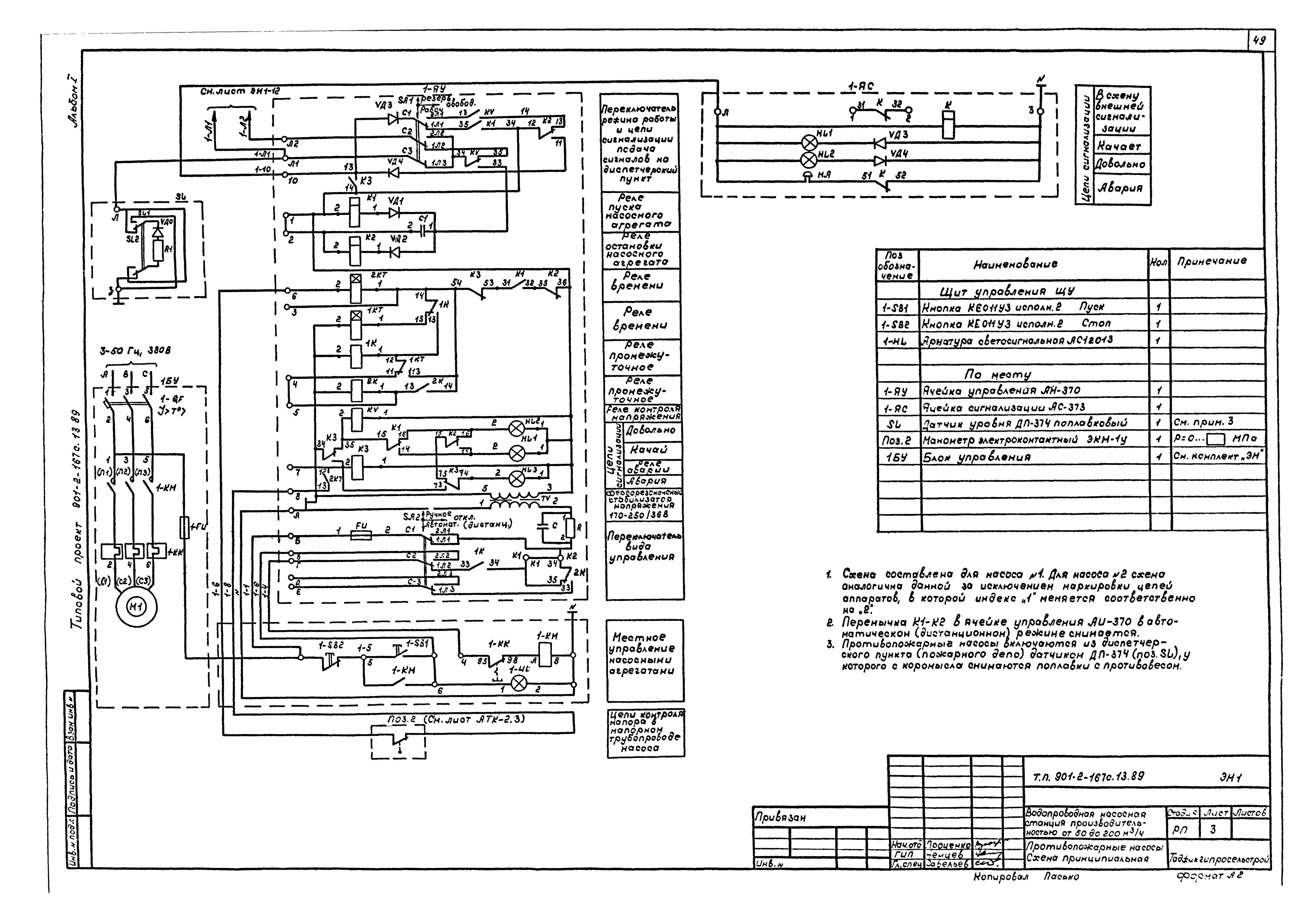
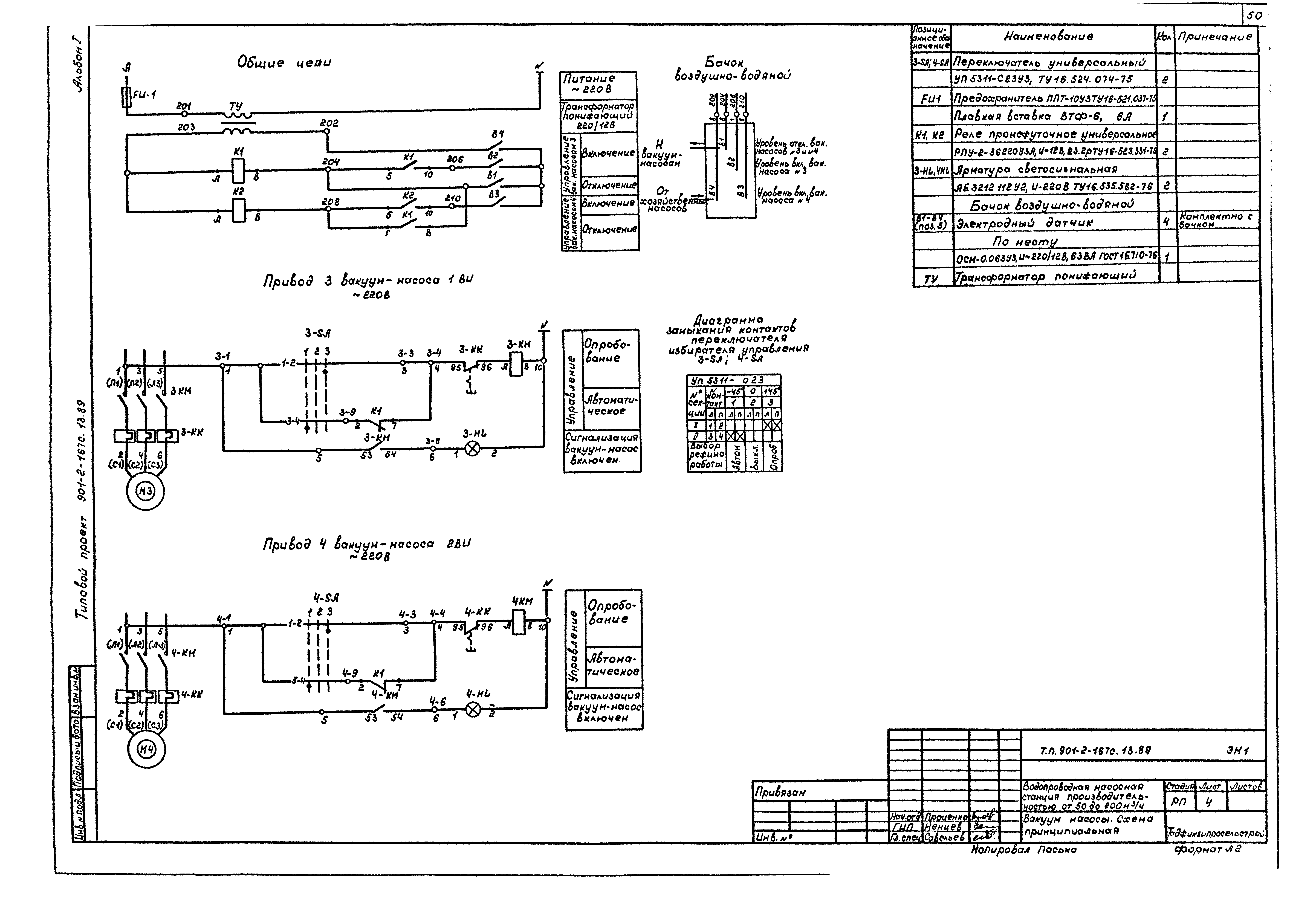
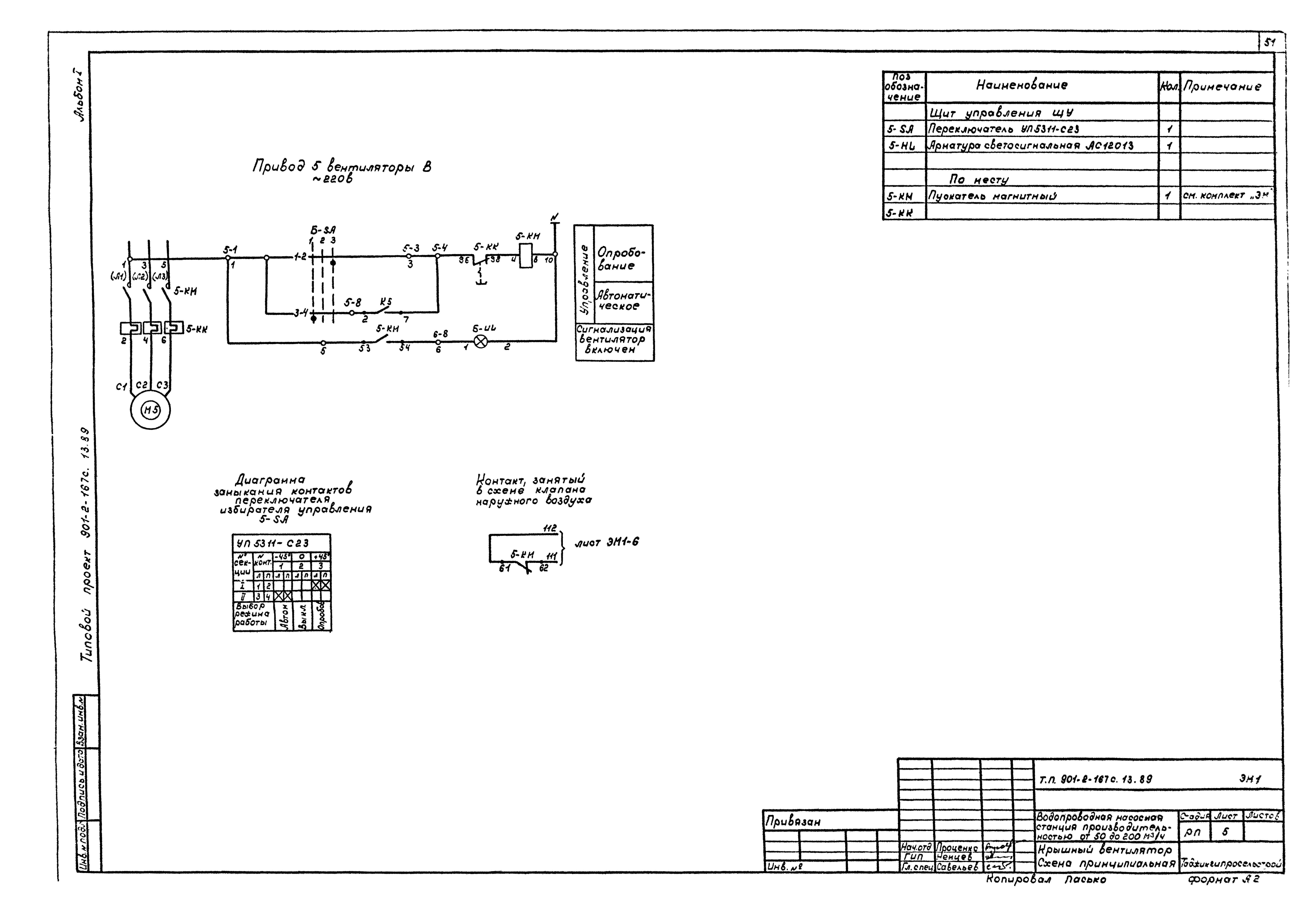
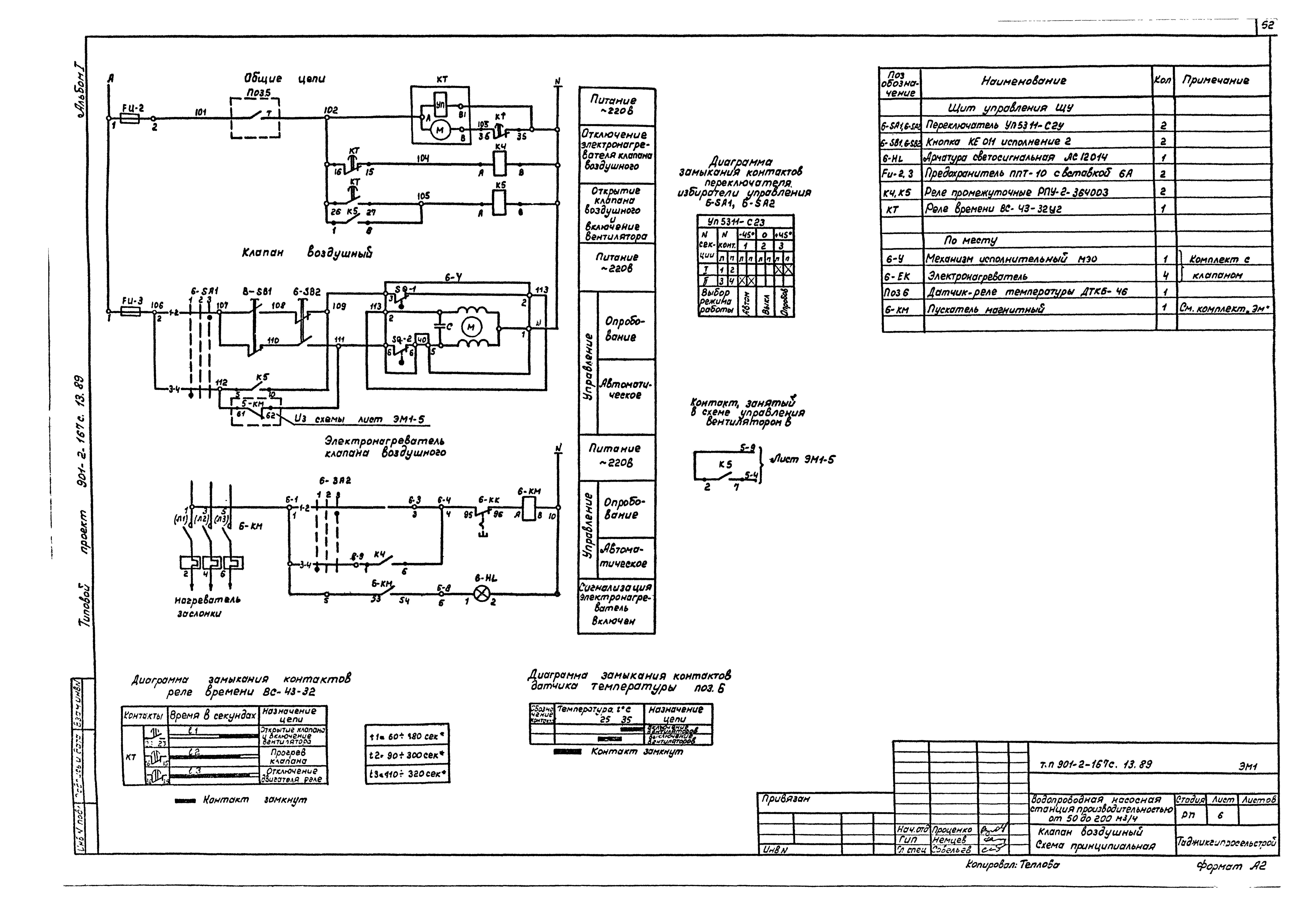
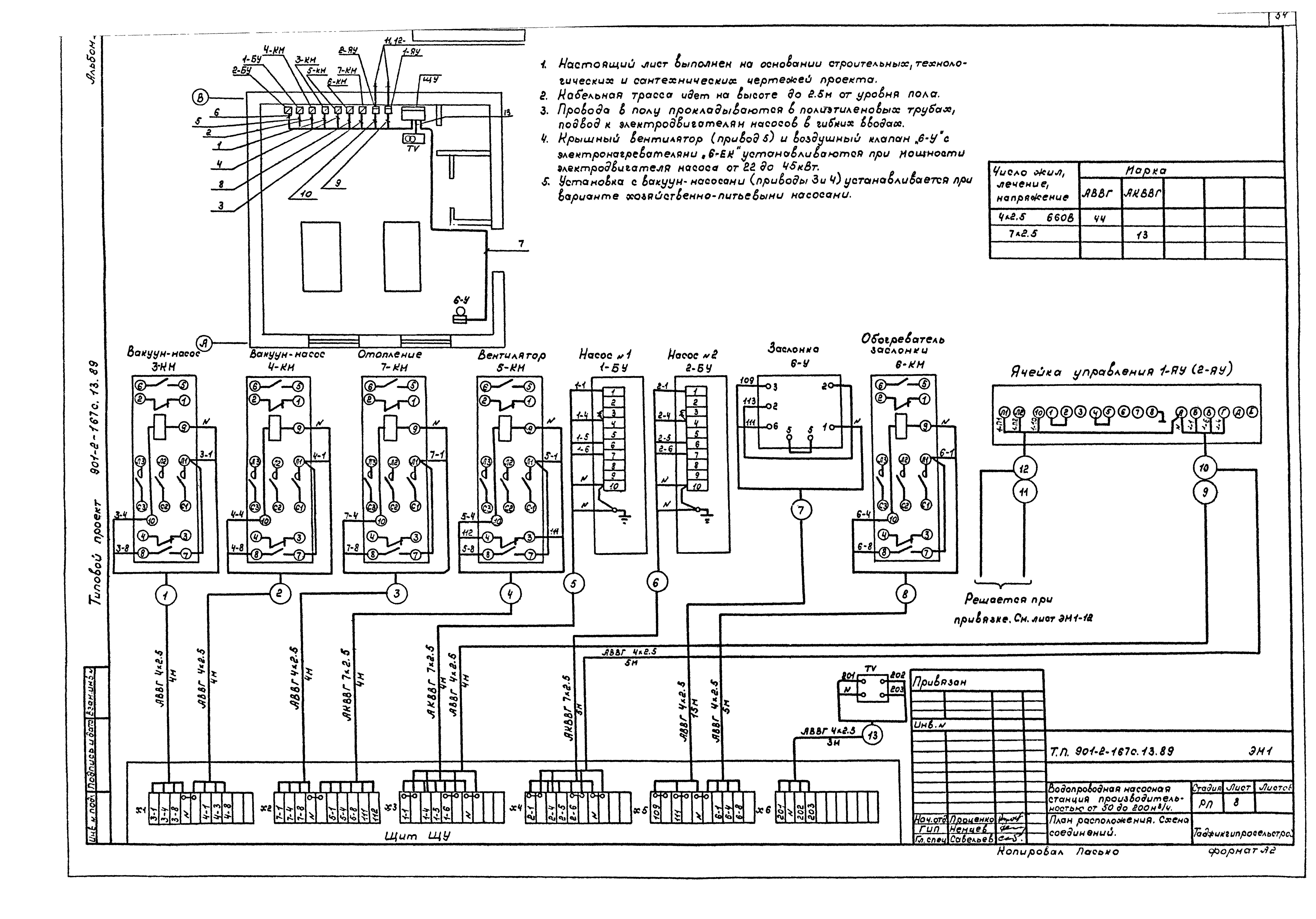
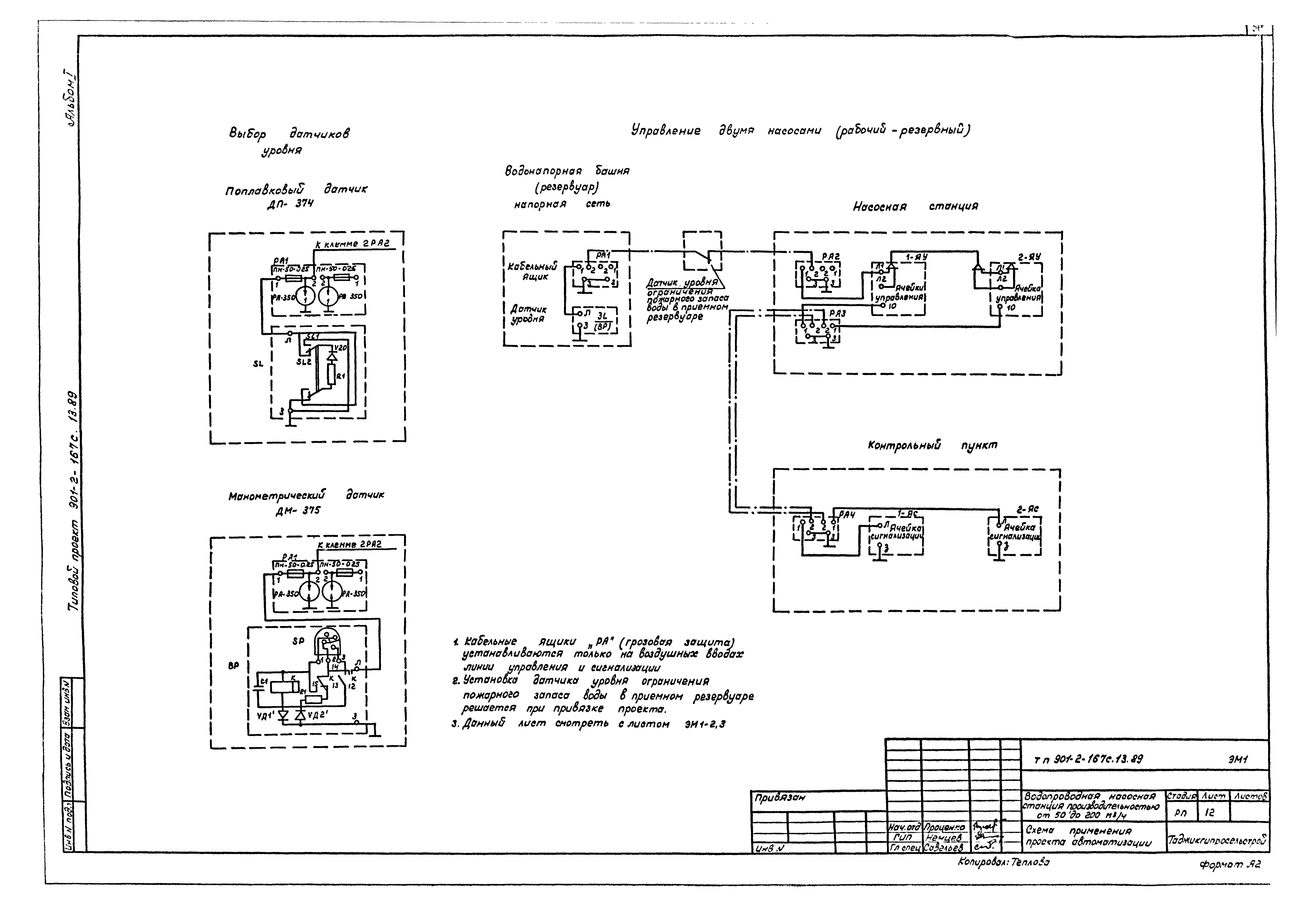
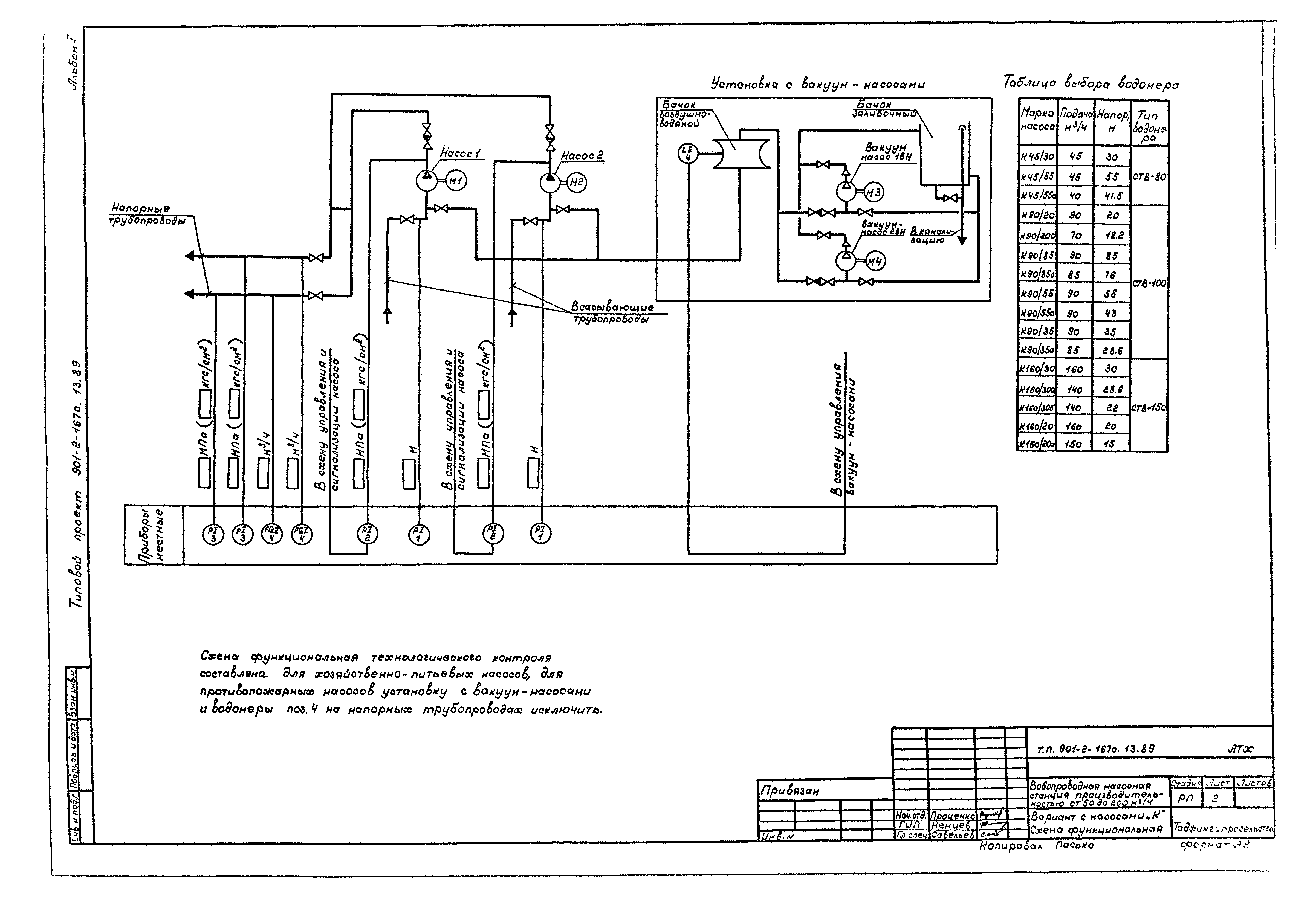
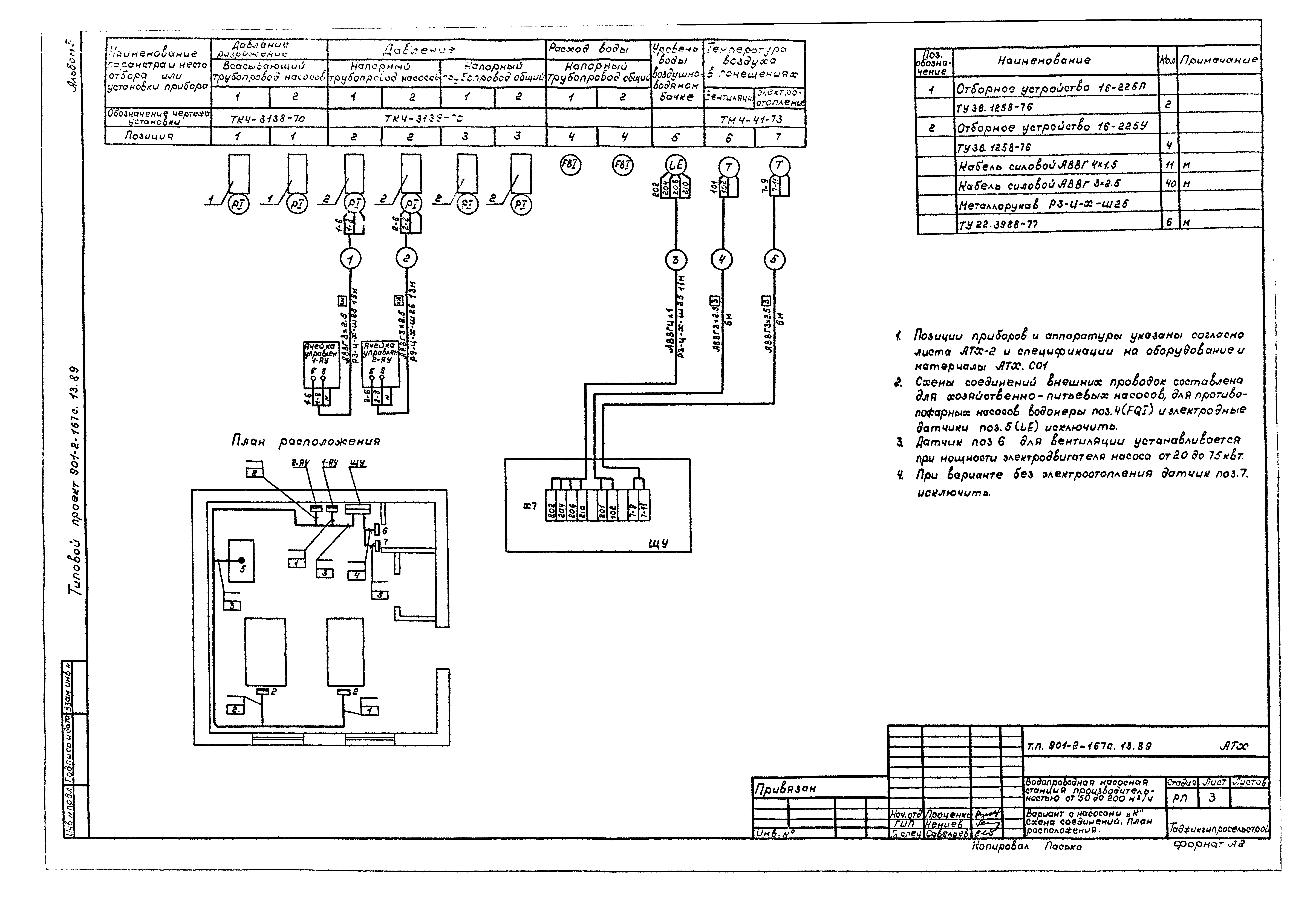
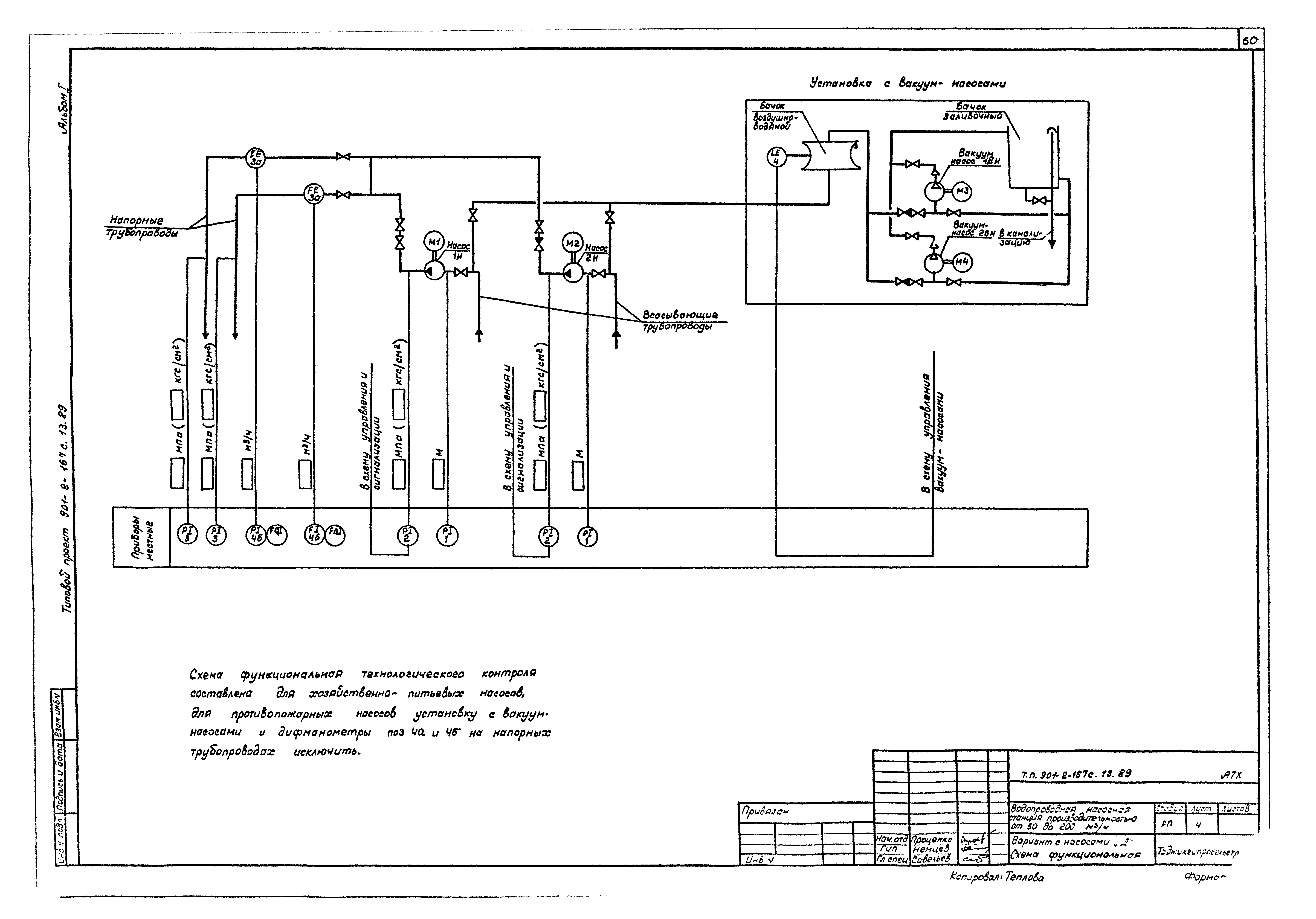
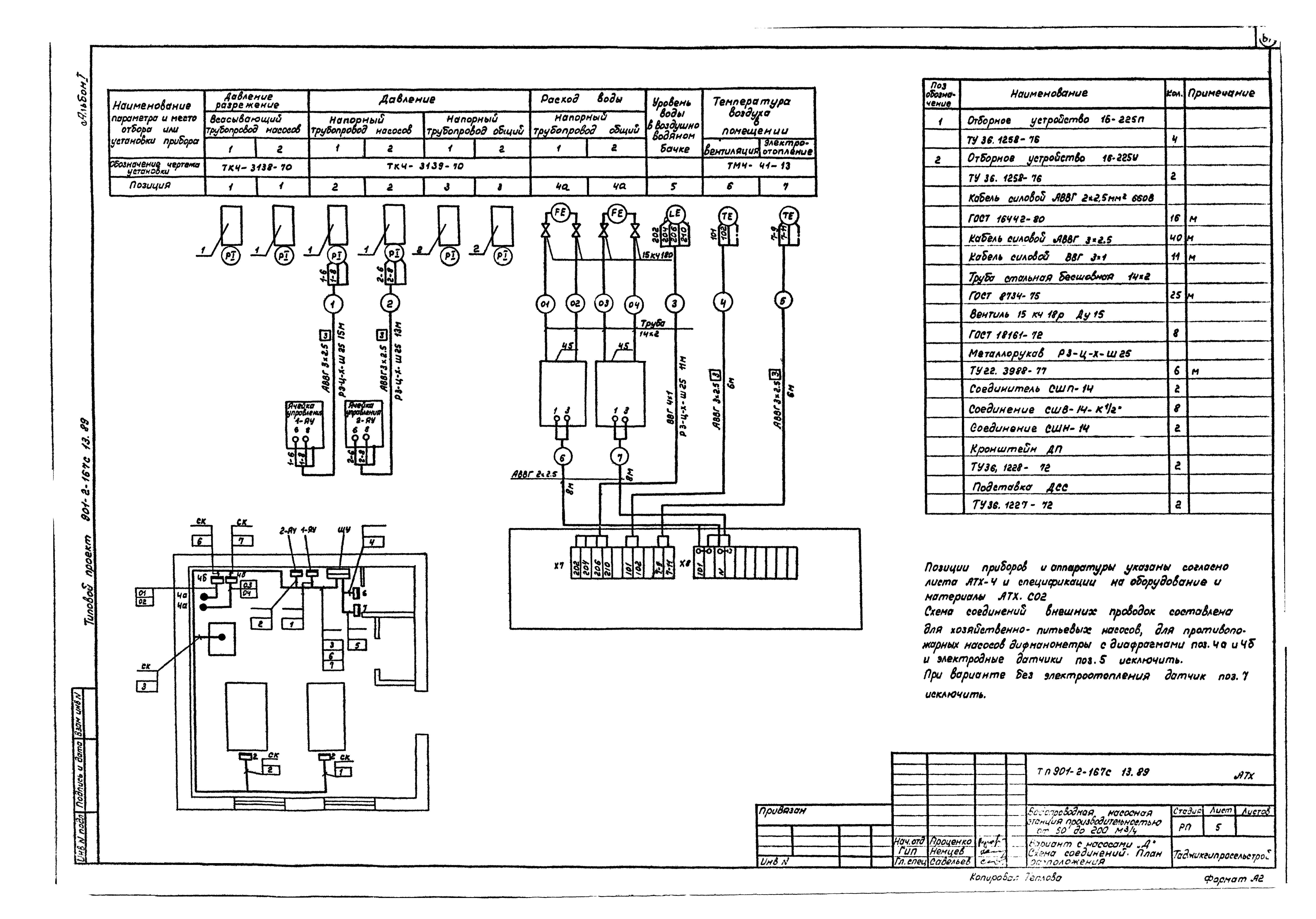
| Оглавление: | Пояснительная записка Чертежи основного комплекта марки ТХ Общие данные Вариант с насосами "К". Компоновочный чертеж. План. Разрезы Вариант с насосами "К". Схема установки систем технологических трубопроводов. Схема установки с вакуум-насосами Вариант с насосами "К". Спецификация установки насосов Вариант с насосами "К" для нужд пожаротушения. Компоновочный чертеж. План. Разрезы Вариант с насосами "К" для нужд пожаротушения. Схема установки систем технологических трубопроводов. План (вариант без санузла) Вариант с насосами "К" для нужд пожаротушения. Спецификация установки насосов Вариант с насосами "Д". Компоновочный чертеж. План. Разрезы Вариант с насосами "Д". Схема установки систем технологических трубопроводов. Схема установки с вакуум-насосами Вариант с насосами "Д". Спецификация установки насосов Воздушно-напорный колпак. Сборочный чертеж. Узлы. Спецификация Чертежи основного комплекта марки АР Общие данные Фасады. Планы на отм. 0.000 (I, II, III варианты). Разрезы 1-1, 2-2 План полов (I, II, III варианты). План кровли. Фрагмент фасада №1 Чертежи основного комплекта марки КЖ Общие данные Схема расположения фундаментов, выпусков из фундаментов Схема расположения фундаментов под оборудование. Маркировочная схема закладных изделий Схемы расположения стеновых панелей (I, II, III варианты) и плит покрытия Схемы расположения лотков, приямков, отверстий (грунты непросадочные) Схемы расположения лотков, приямков, отверстий (вариант с просадочными грунтами) Приямки ПР-1 - ПР-5, лотки ЛМ-1, ЛМ-2, плиты ПК-1 - ПК-3 Чертежи основного комплекта марки КМ Общие данные Схема расположения путей тали. Узлы Чертежи основного комплекта марки ОВ Общие данные Отопление. Планы, схемы отопления (вариант с насосами "К" и "Д"). Узел управления Вентиляция. Планы, разрезы, схемы систем (вариант с насосами "К" и "Д"). Электроотопление Чертежи основного комплекта марки ВК Общие данные Планы для насосов типа "К" и "Д" и вариант без санузла Спецификация Чертежи основного комплекта марки ЭМ Общие данные План электроосвещения Силовое электрооборудование (вариант с насосами "К") Силовое электрооборудование (вариант с насосами "Д"200/95) Силовое электрооборудование (вариант с насосами "К"200/36) Таблица комплектации насосных агрегатов и выбора аппаратуры и материалов Ящик АВР. Схема электрическая принципиальная Чертежи основного комплекта марки ЭМ1 Общие данные Хозяйственно-питьевые насосы. Схема принципиальная Противопожарные насосы. Схема принципиальная Вакуум-насосы. Схема принципиальная Крышный вентилятор. Схема принципиальная Клапан воздушный. Схема принципиальная Электроотопление. Схема принципиальная План расположения. Схема соединений Щит управления. Общий вид Технические данные аппаратов Перечень надписей Схема применения проектов автоматизации Чертежи основного комплекта марки АТХ Общие данные Вариант с насосами "К". Схема функциональная Вариант с насосами "К". Схема соединений. План расположения Вариант с насосами "Д". Схема функциональная Вариант с насосами "Д". Схема соединений. План расположения |
| Разработан: | Таджикгипросельстрой |
| Утверждён: | 31.08.1989 Госагропром Таджикской ССР (143) |





























































