Скачать Типовой проект 284-4-107.85 Альбом I. Архитектурно-строительные решения. Технология. ВитражиДата актуализации: 01.01.2021
|
| Обозначение: | Типовой проект 284-4-107.85 |
| Обозначение англ: | 284-4-107.85 |
| Статус: | не определен законодательством |
| Название рус.: | Альбом I. Архитектурно-строительные решения. Технология. Витражи |
| Дата добавления в базу: | 01.09.2013 |
| Дата актуализации: | 01.01.2021 |
| Дата введения: | 13.02.1985 |
| Дата окончания срока действия: | 30.06.2003 |
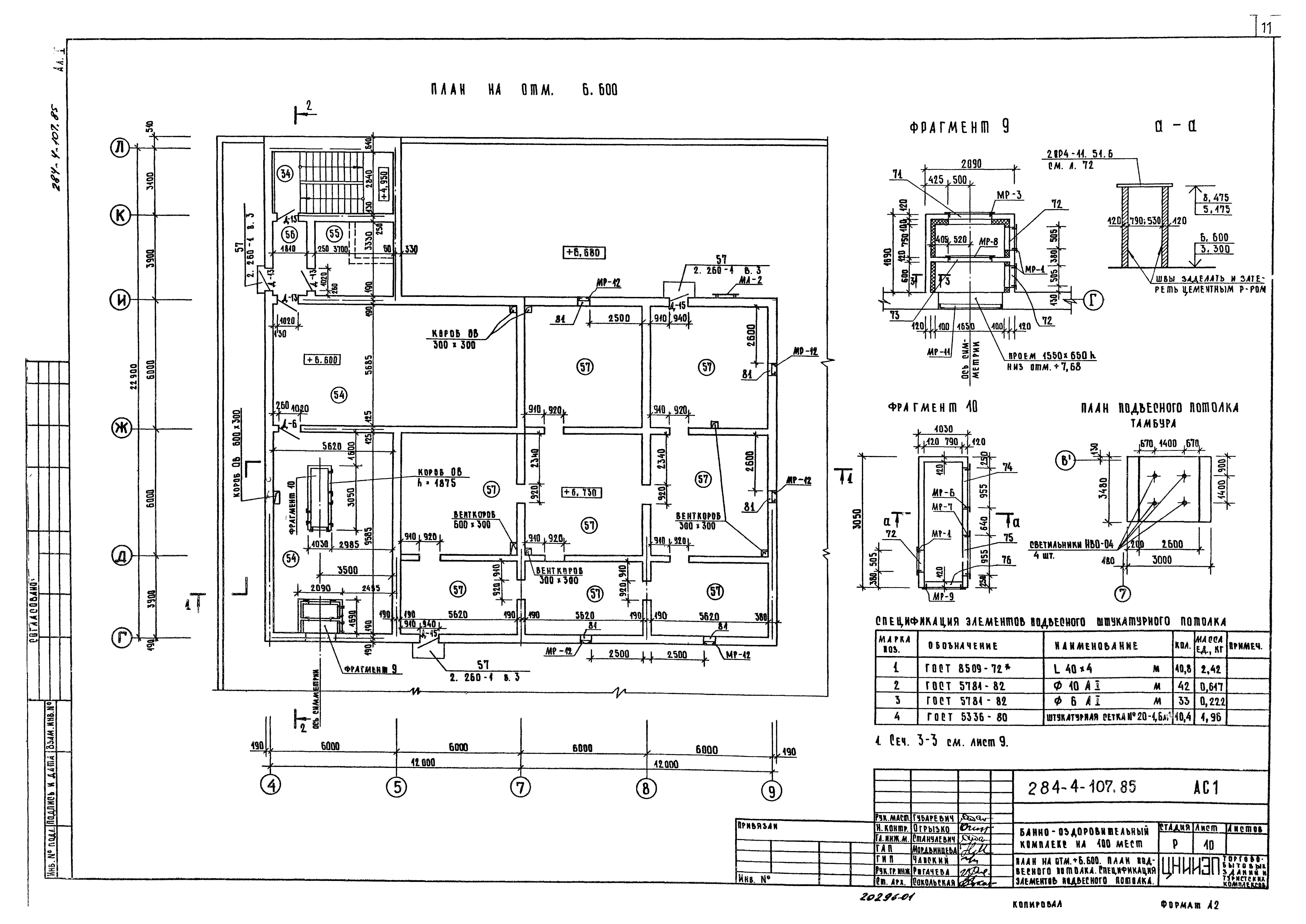
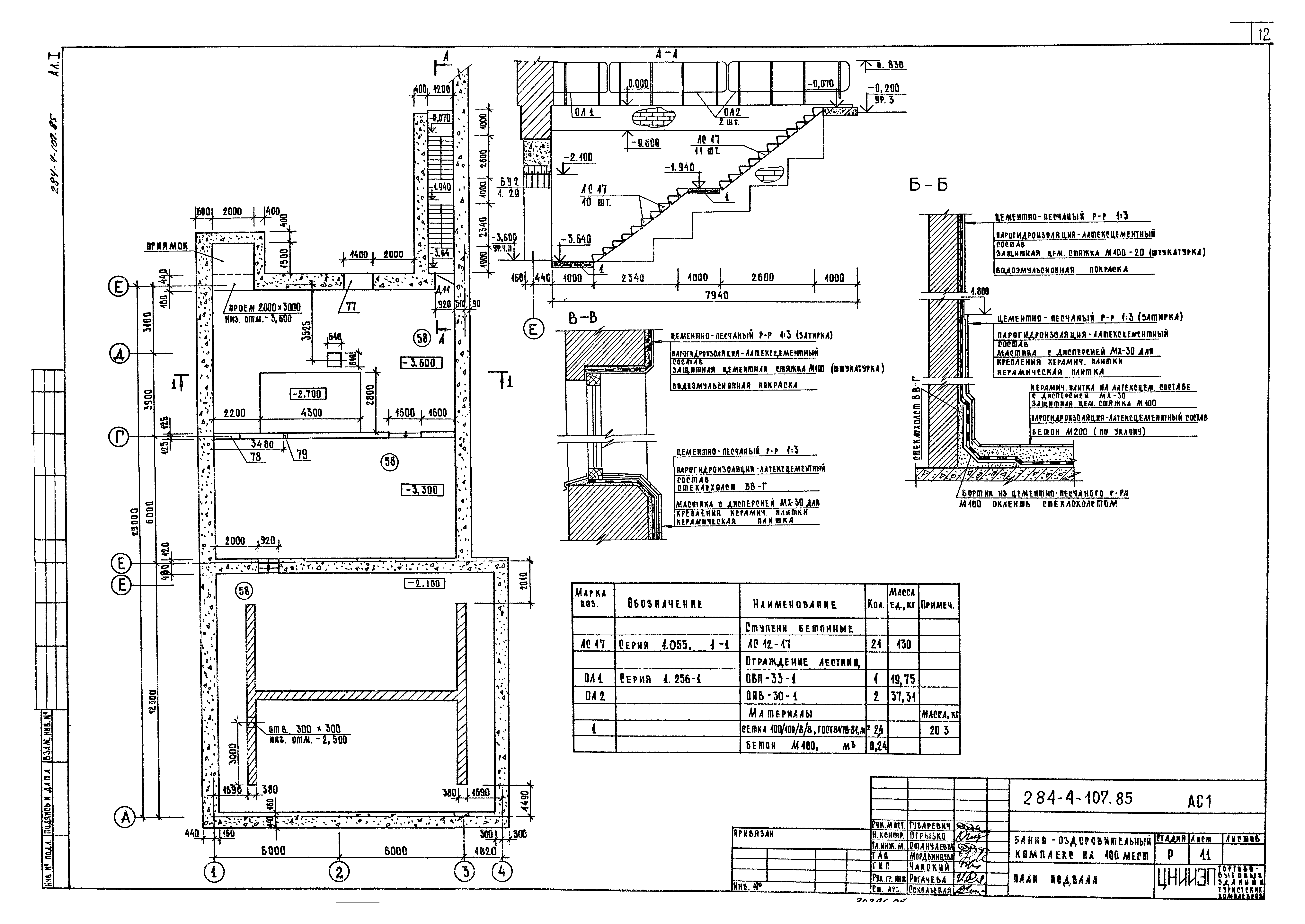
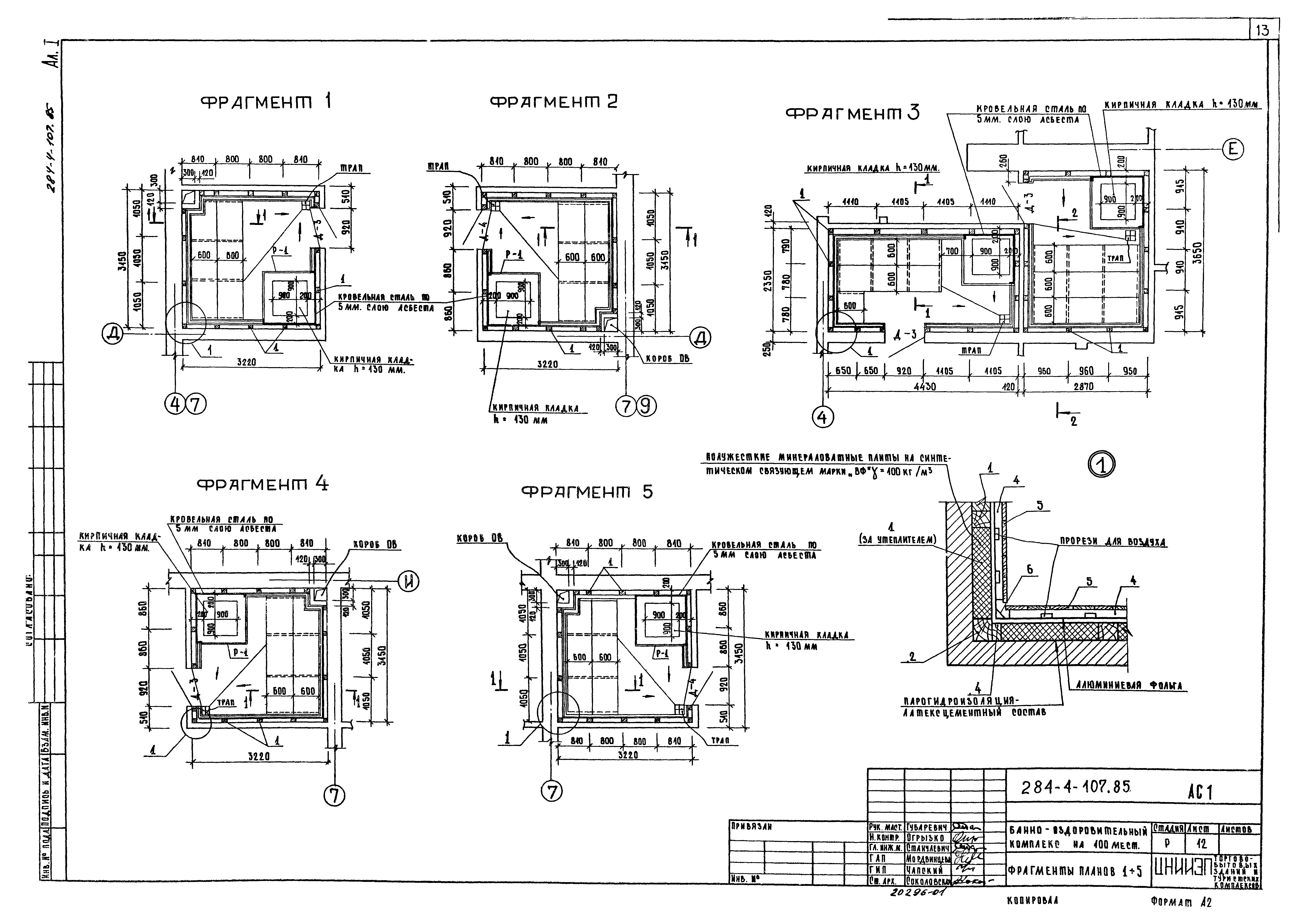
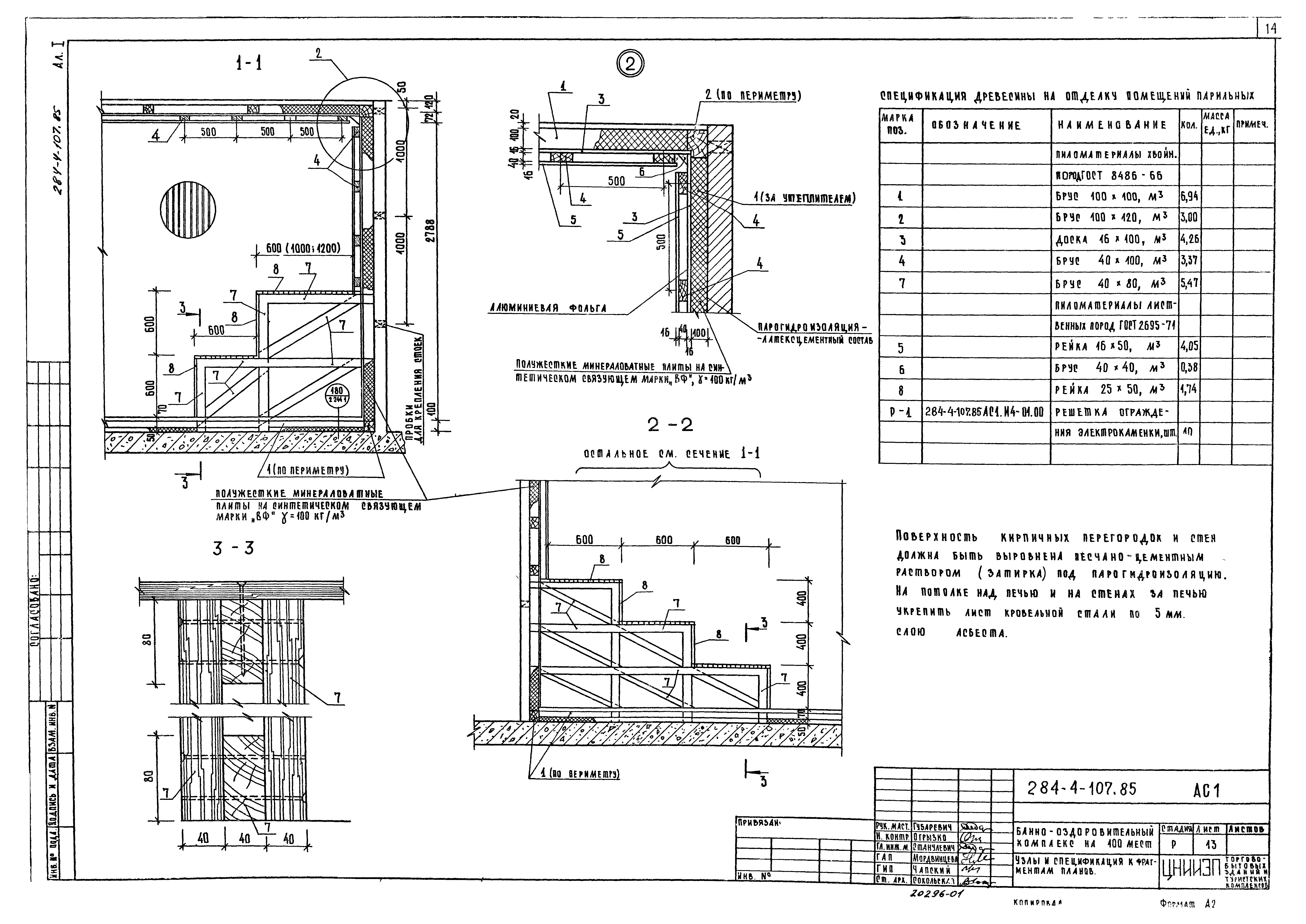
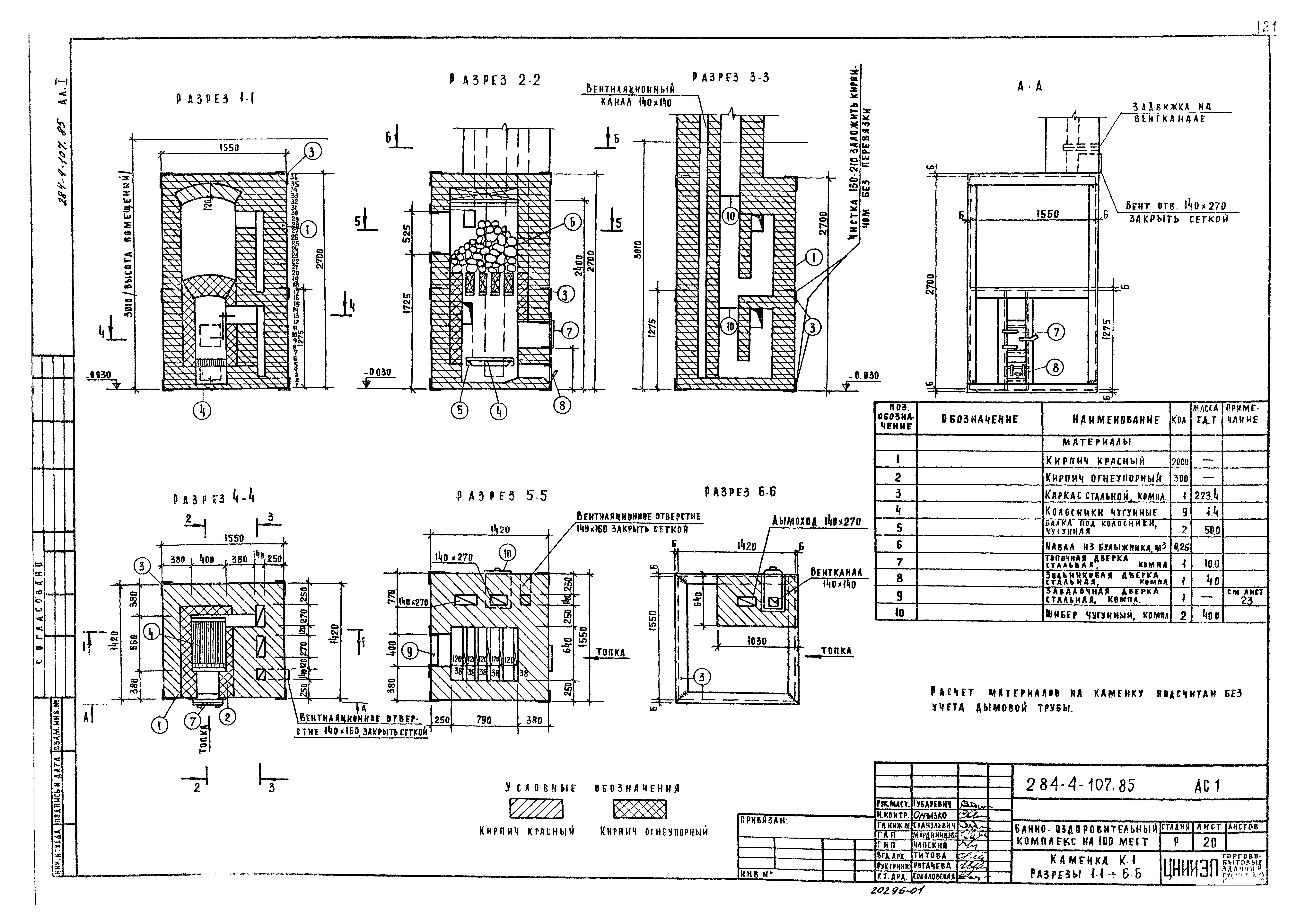
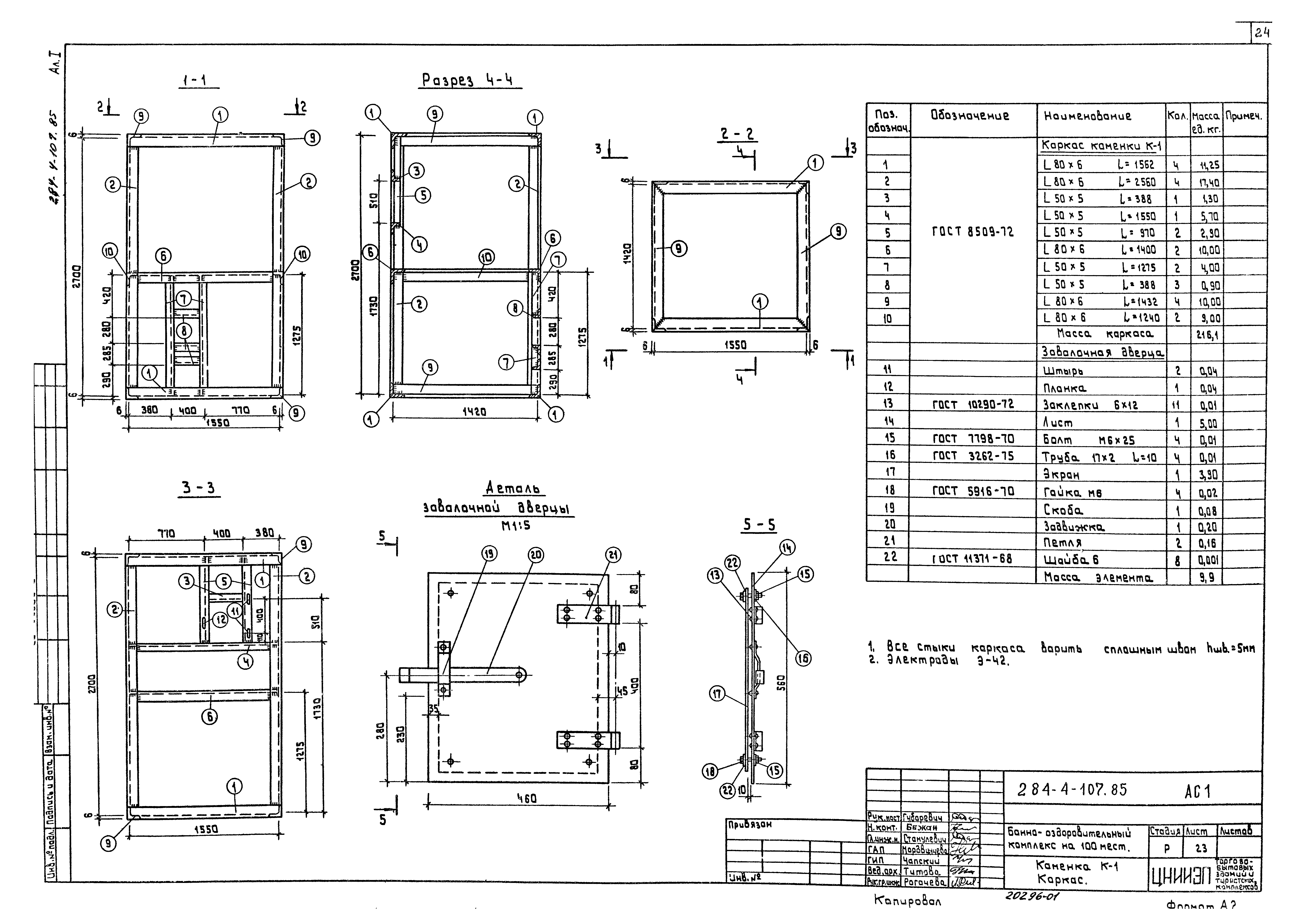
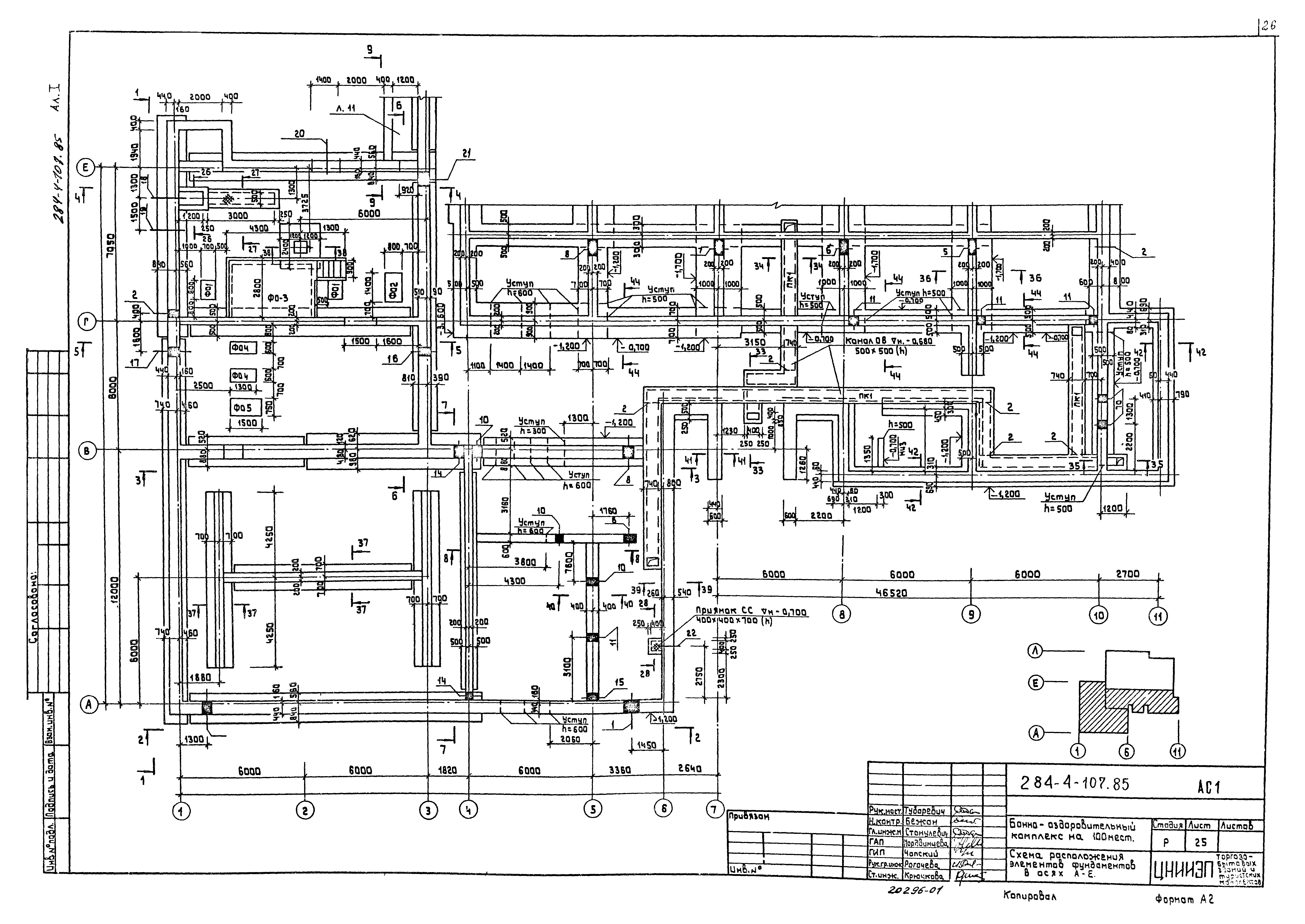
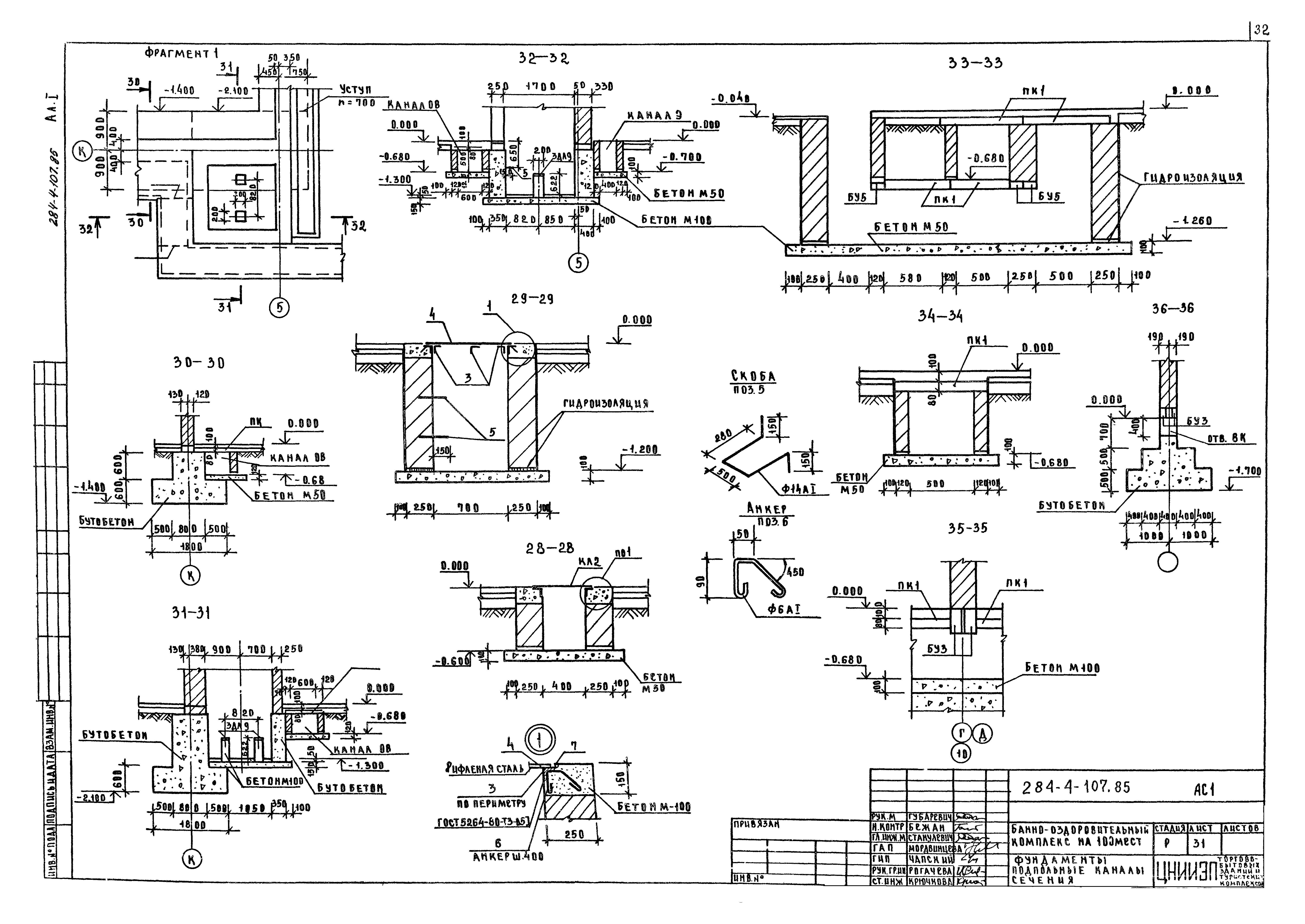
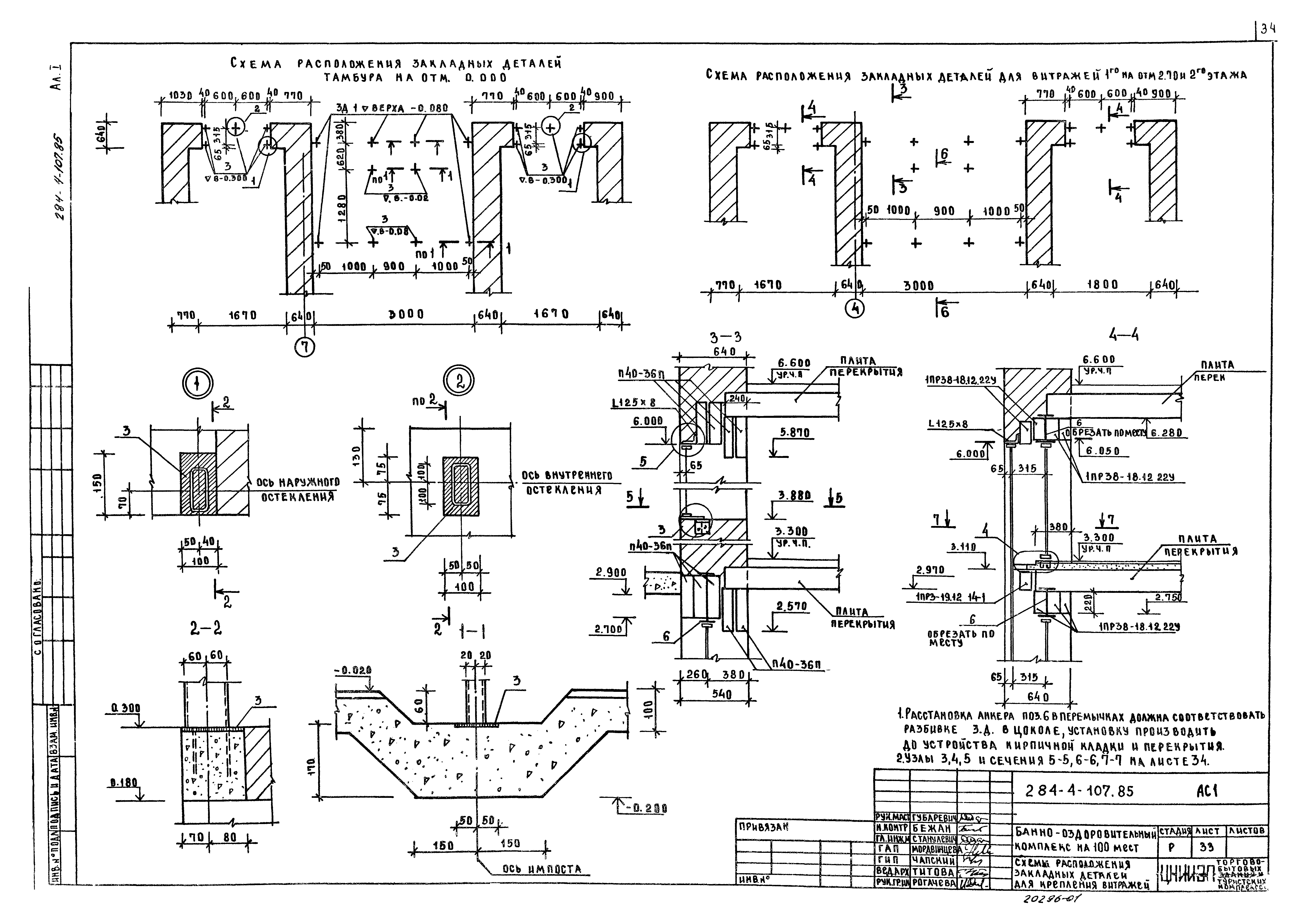
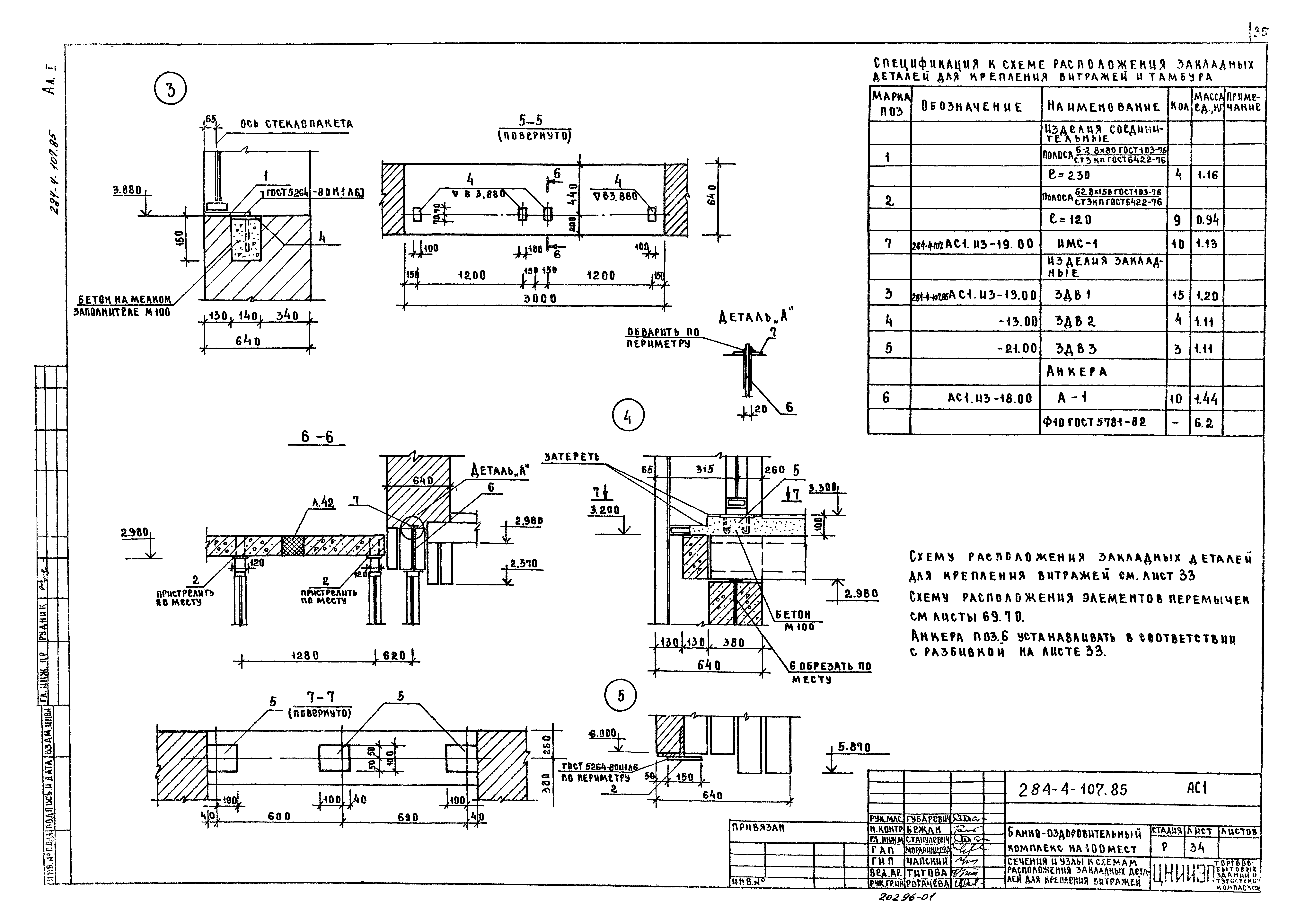
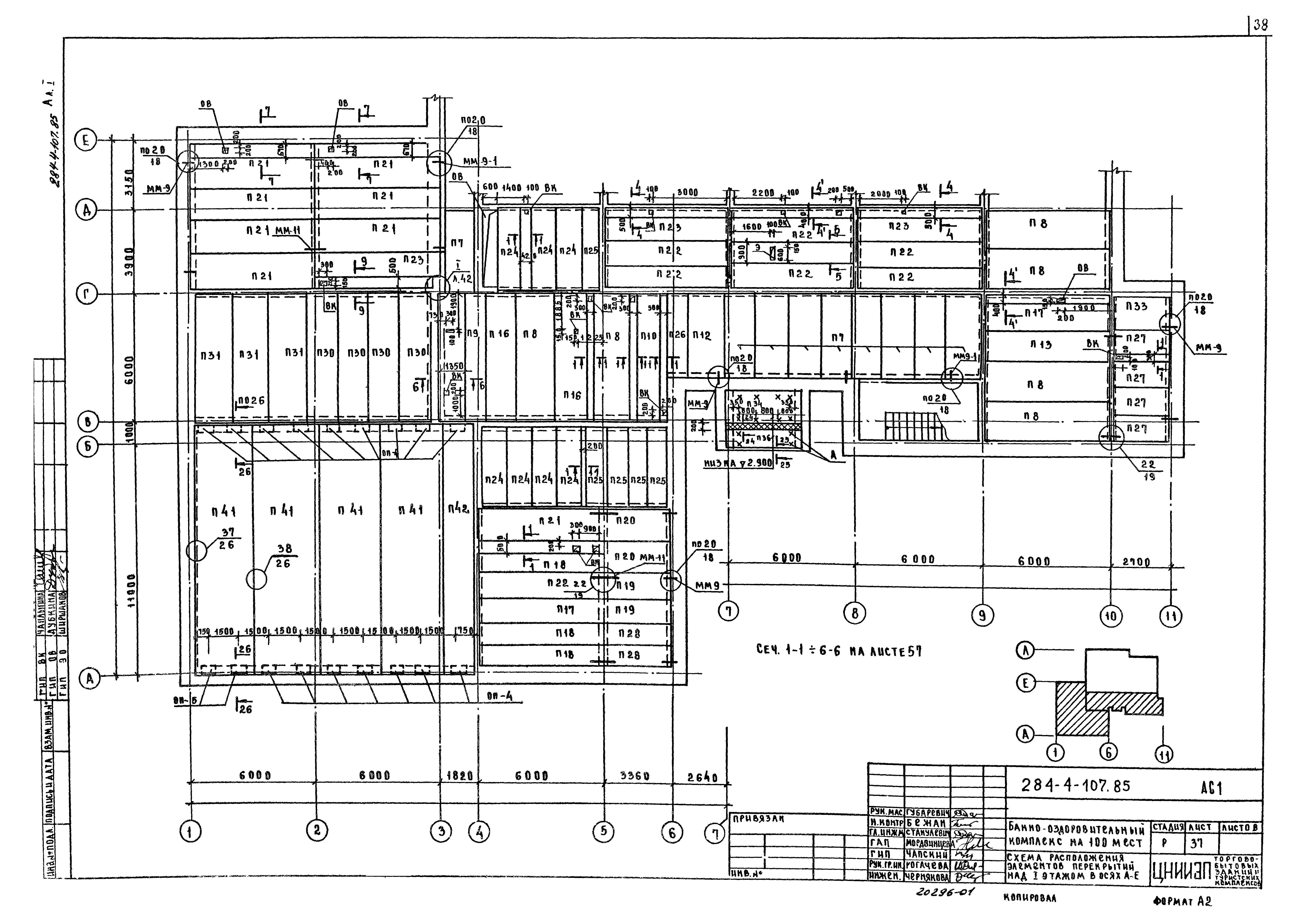
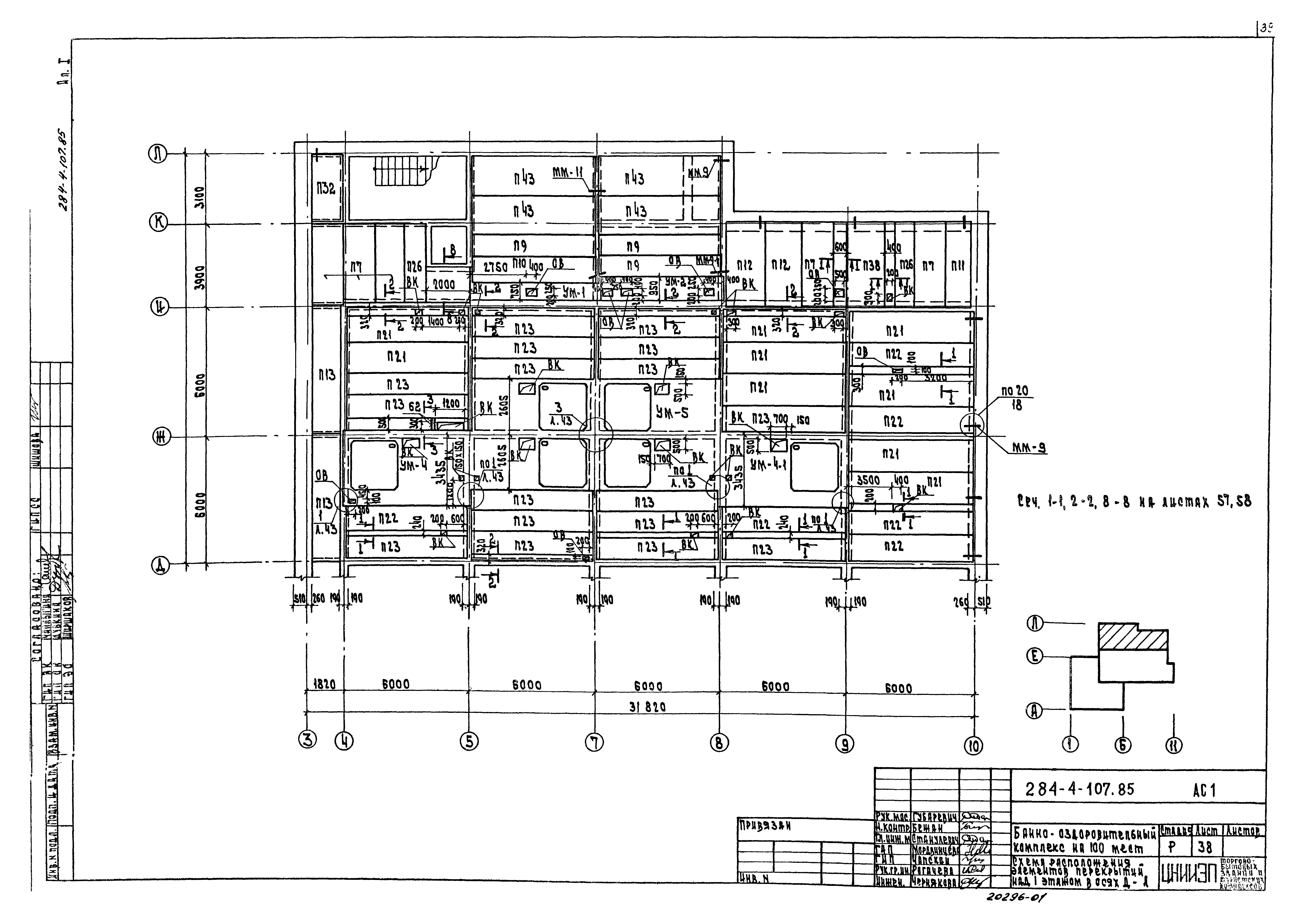
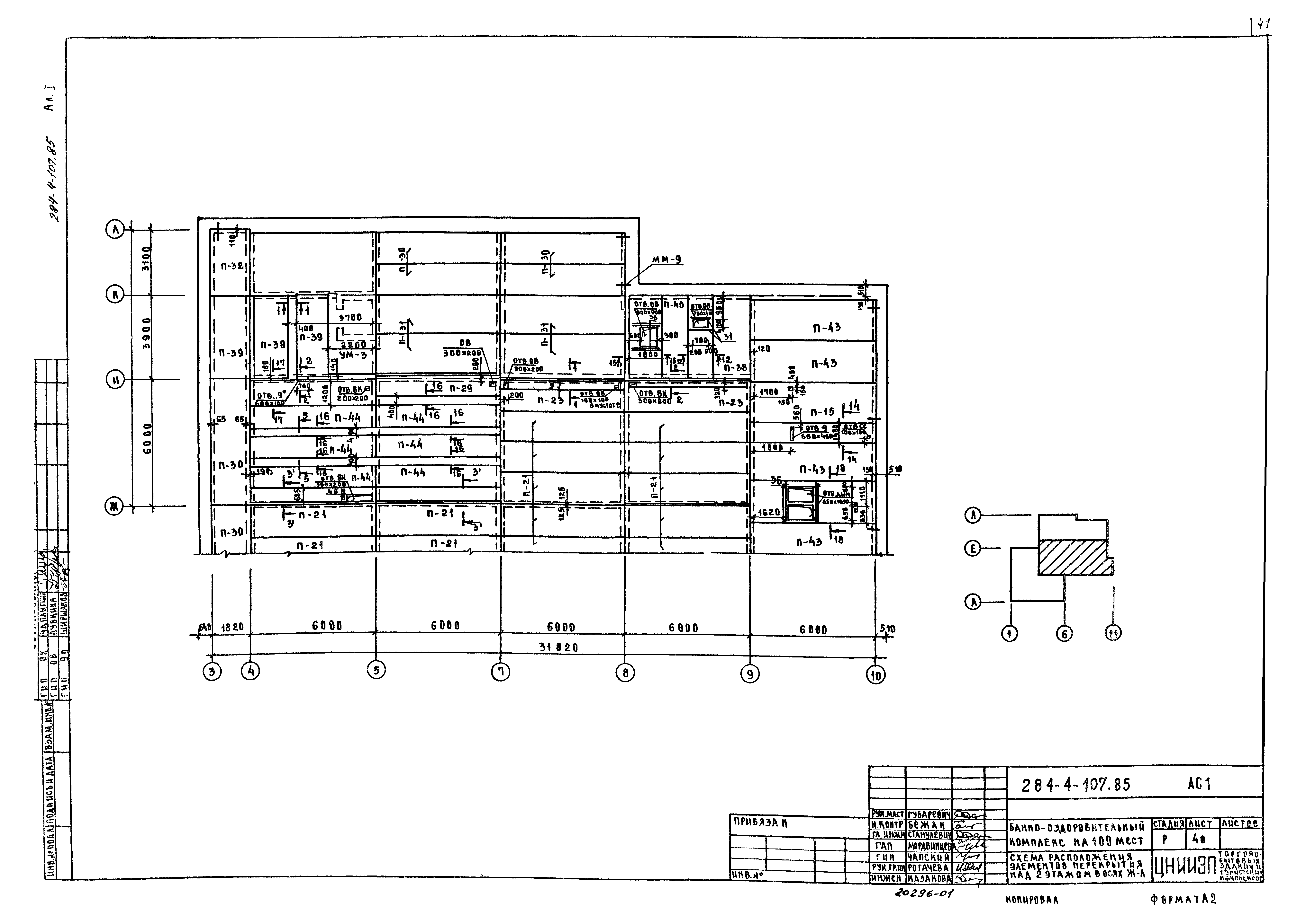
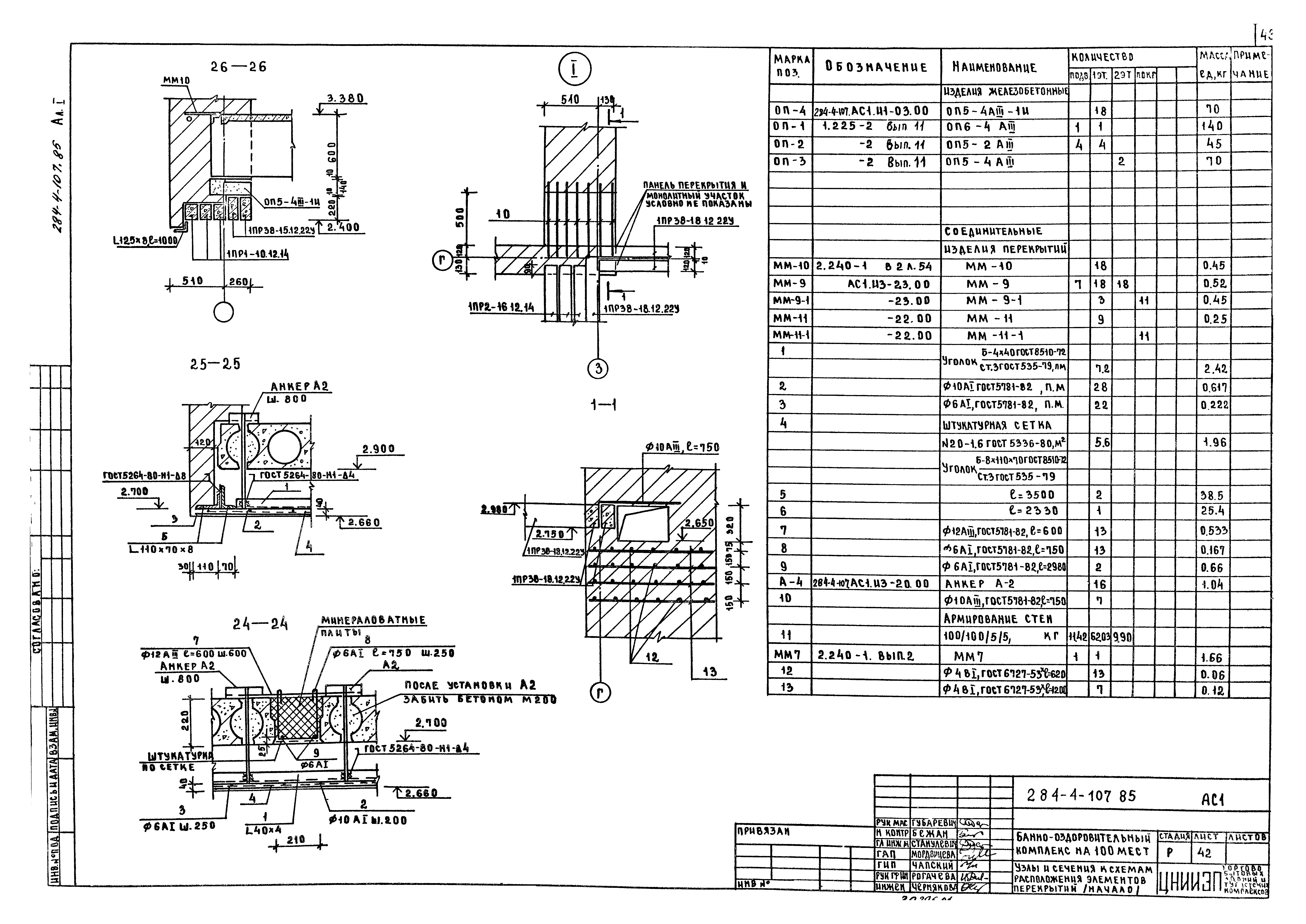
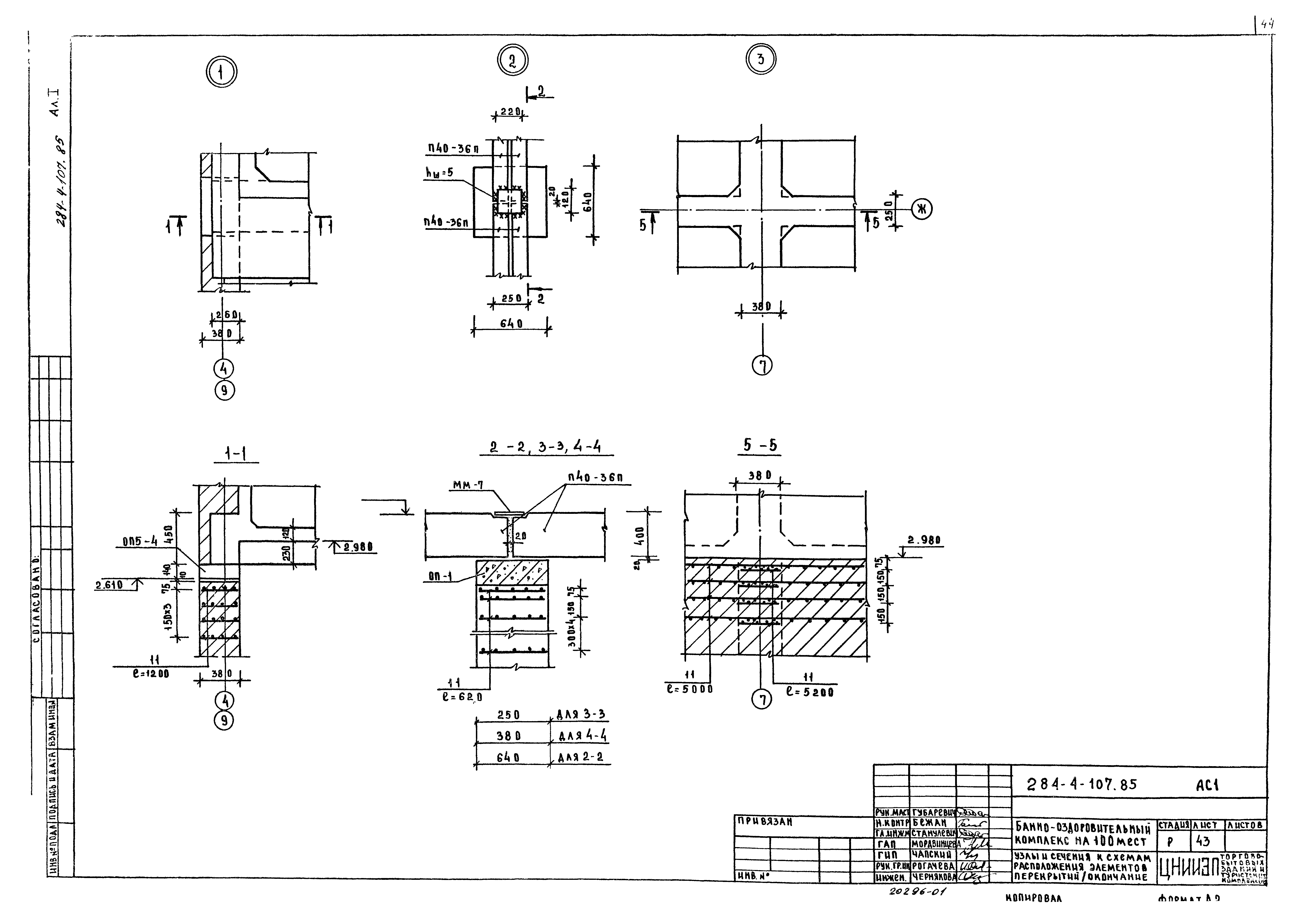
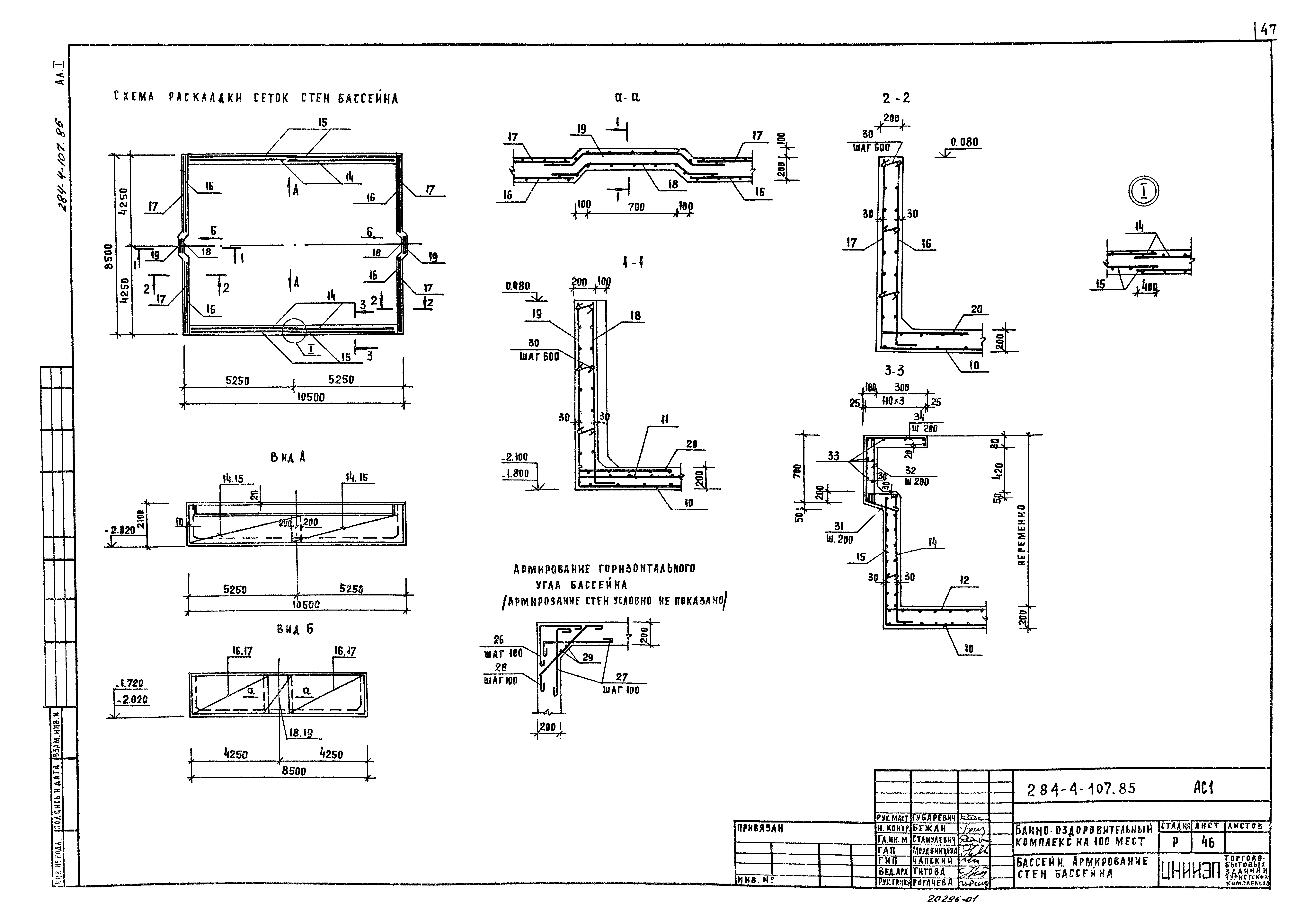
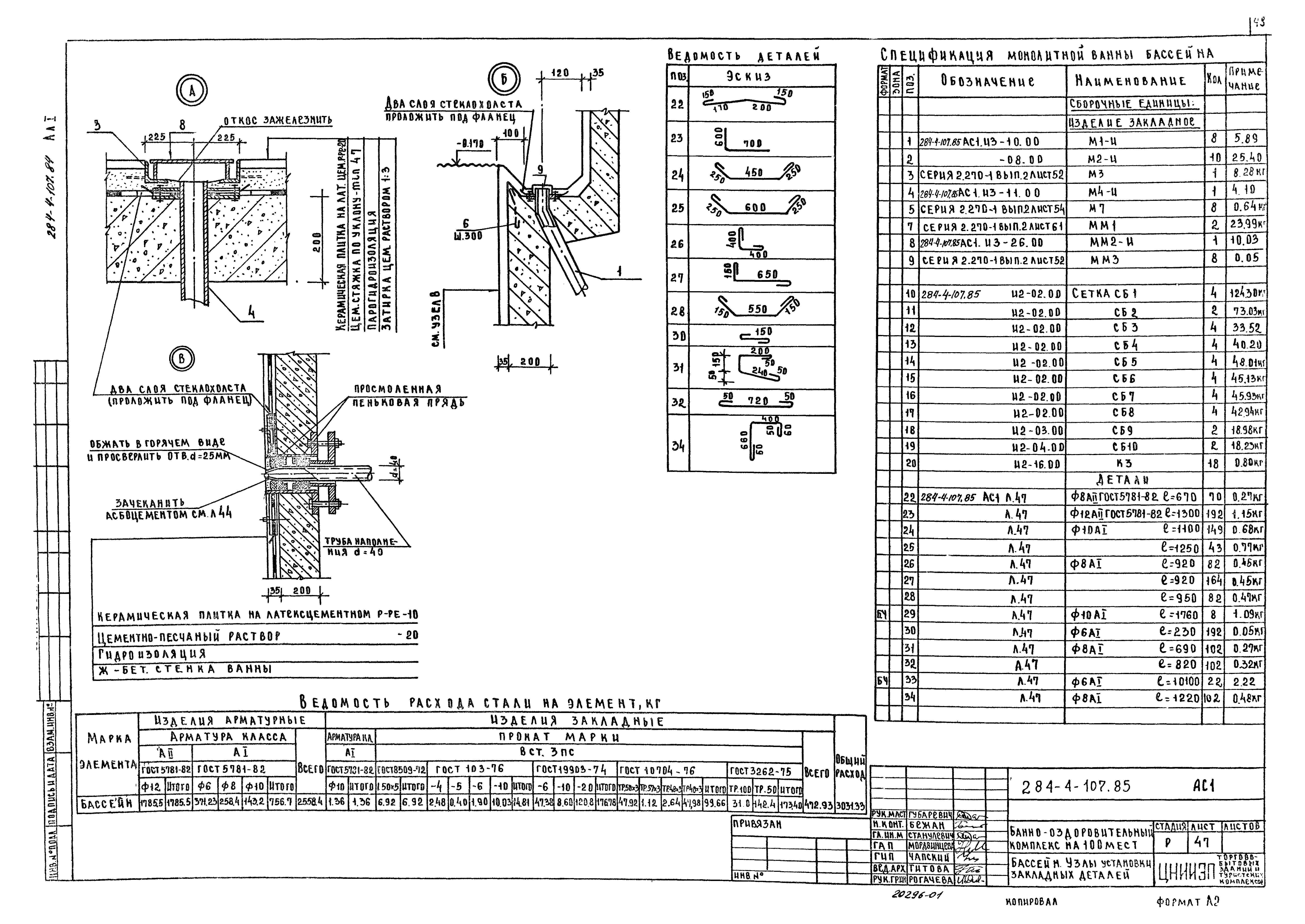
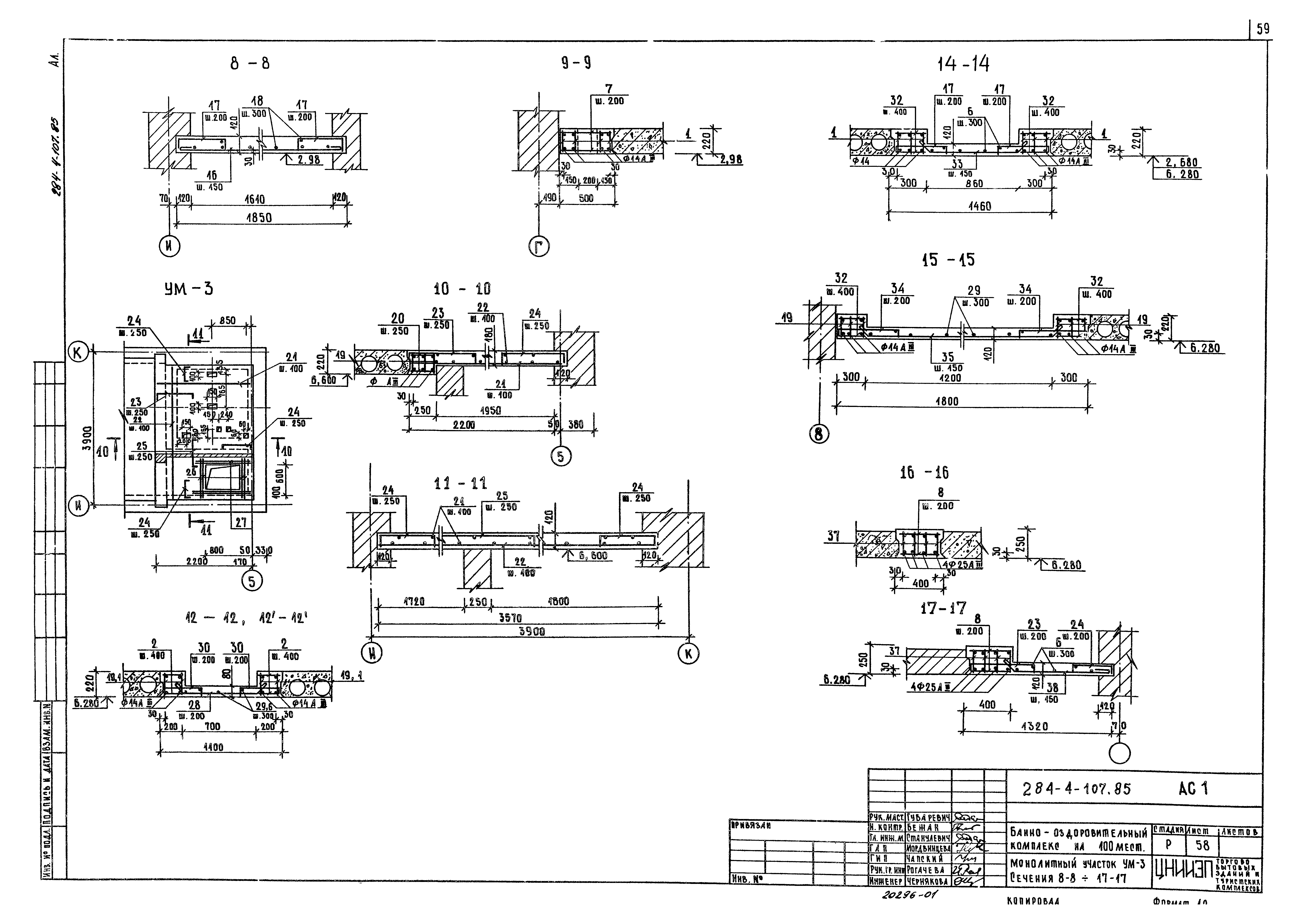
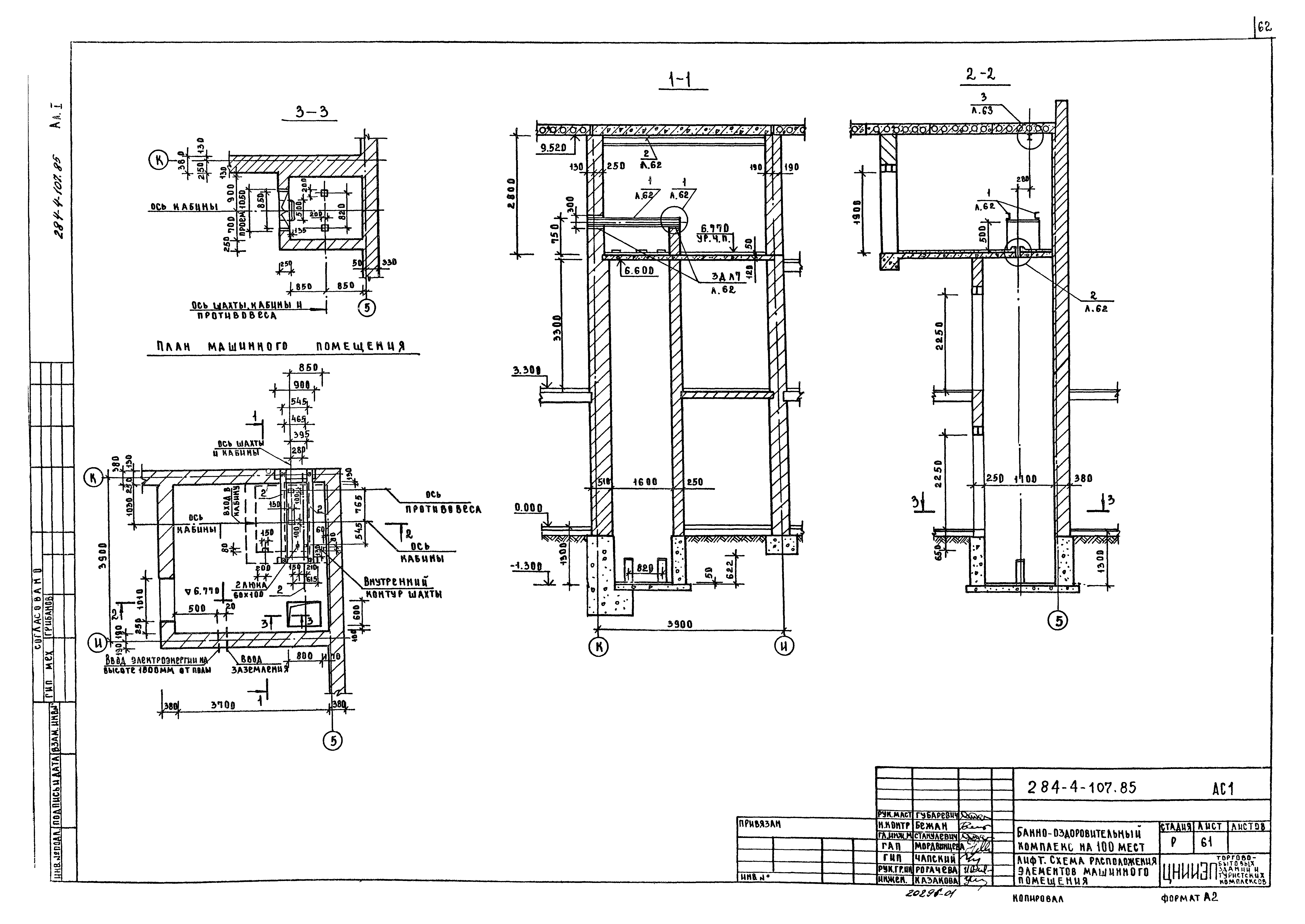
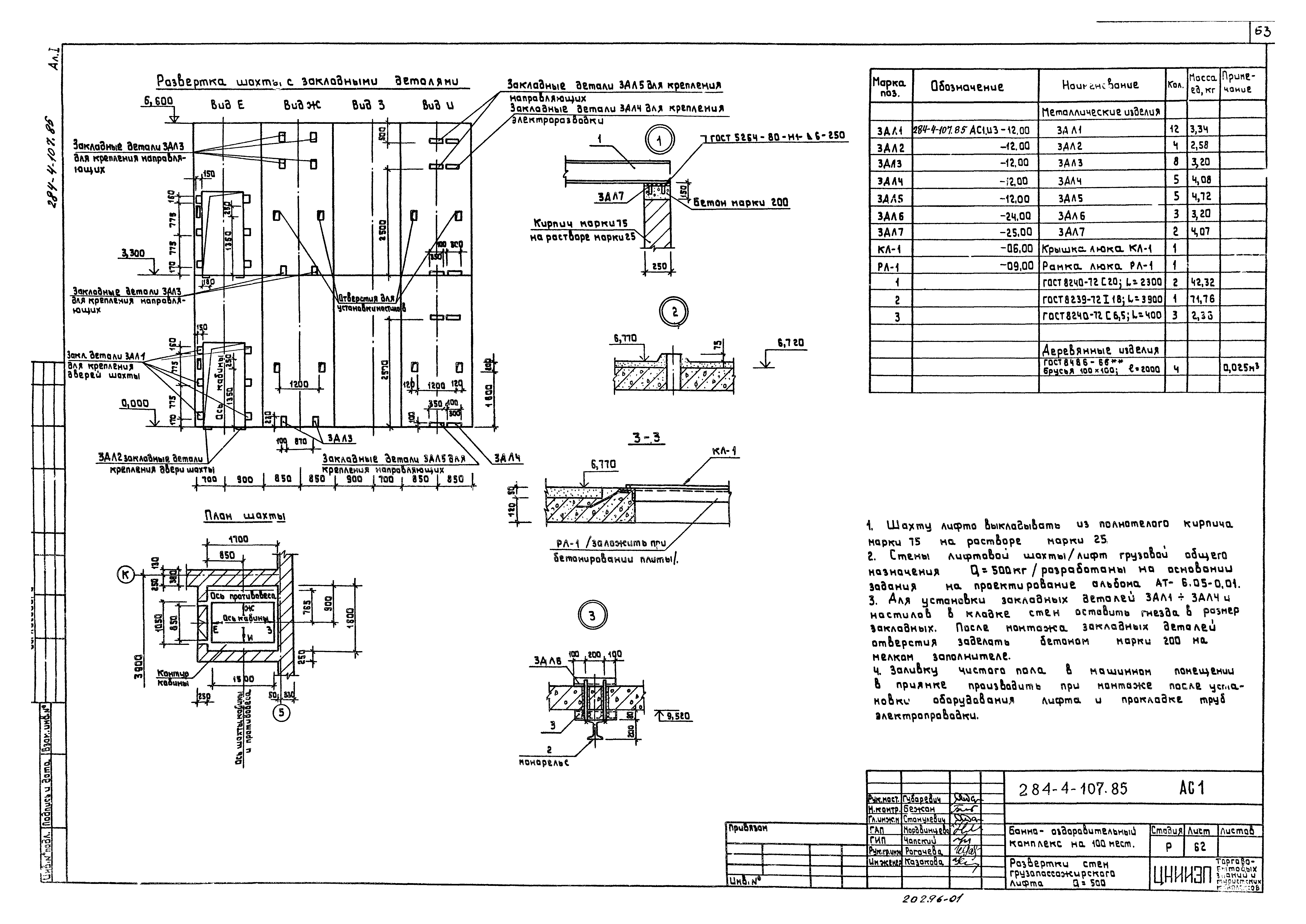
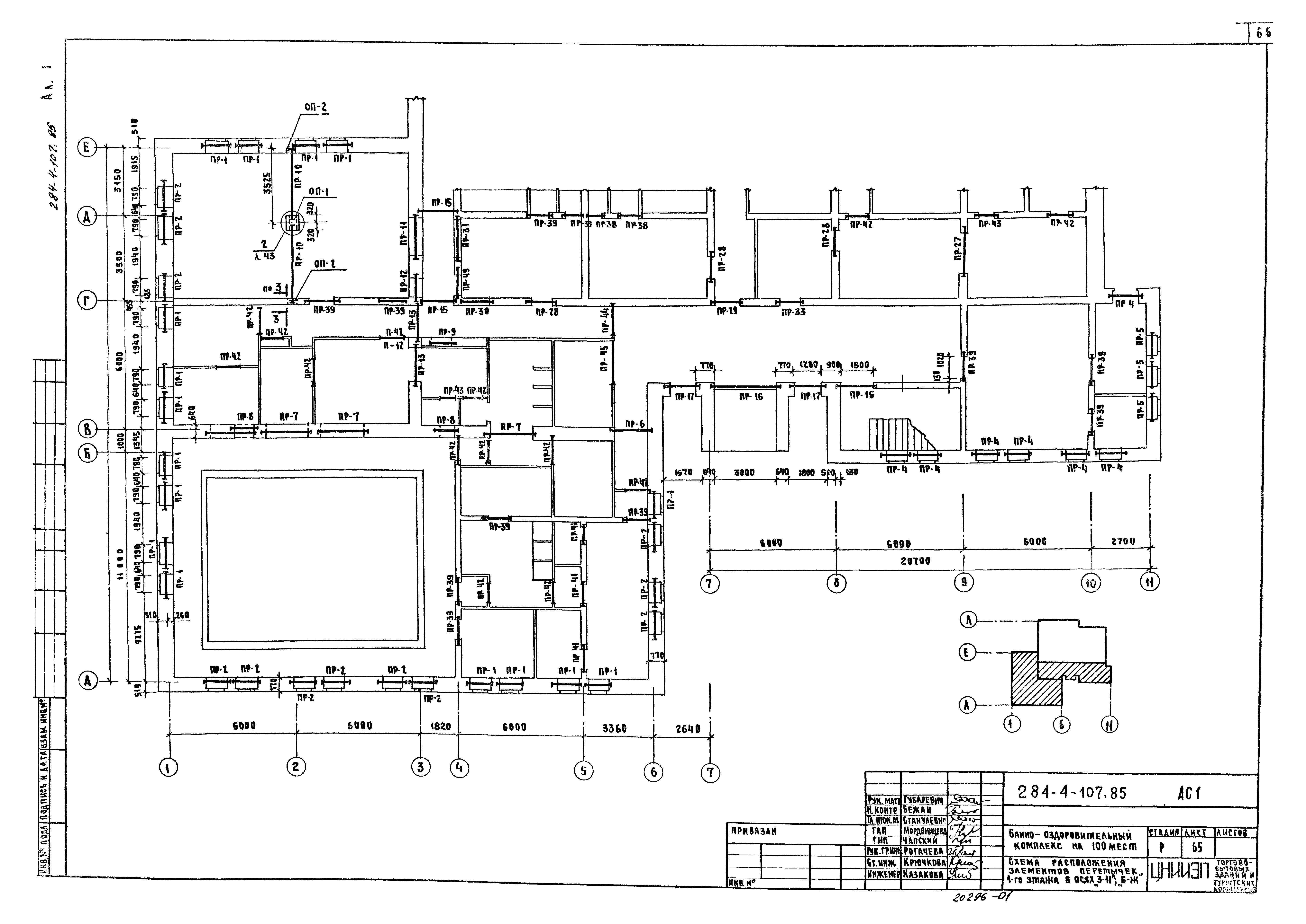
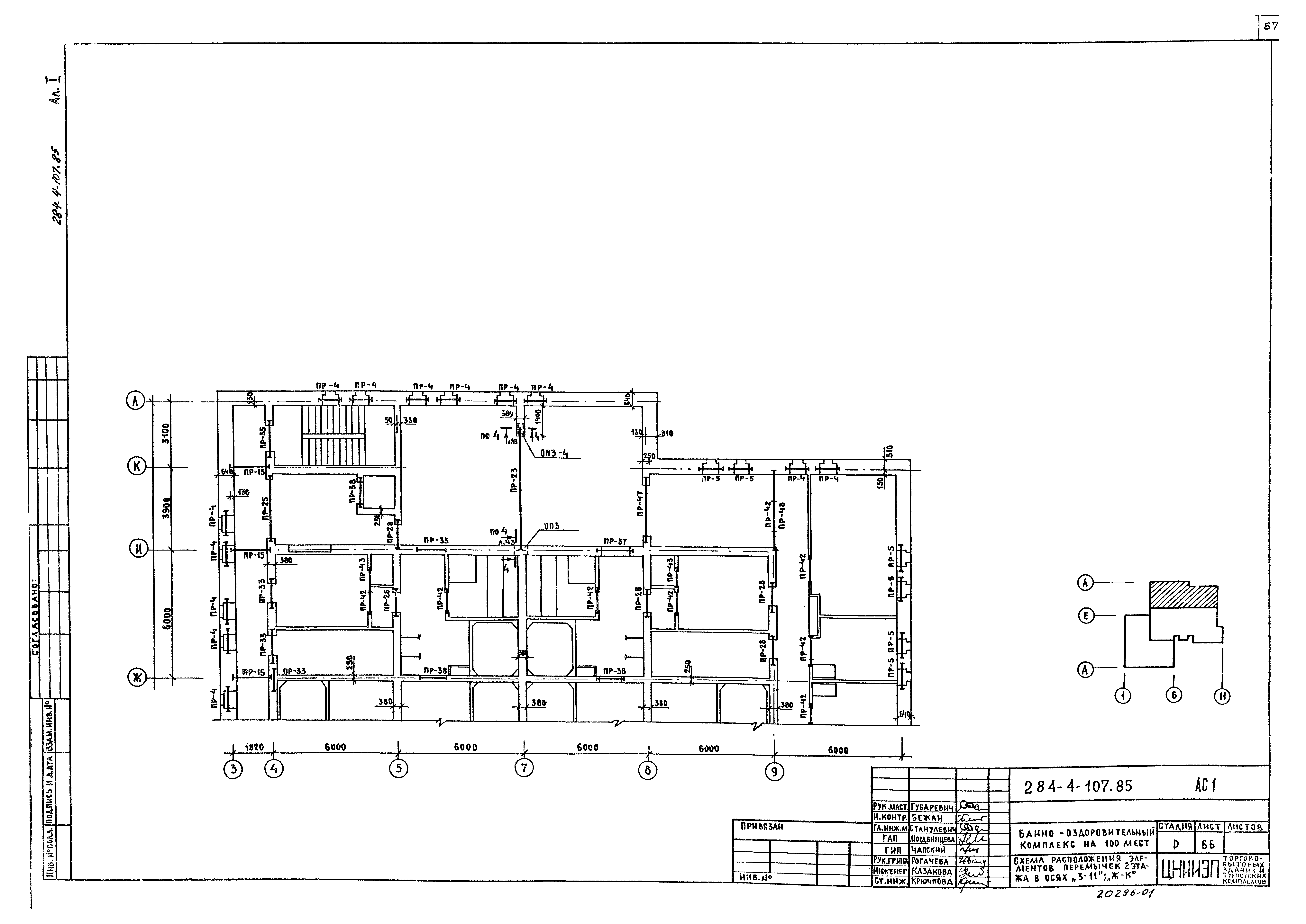
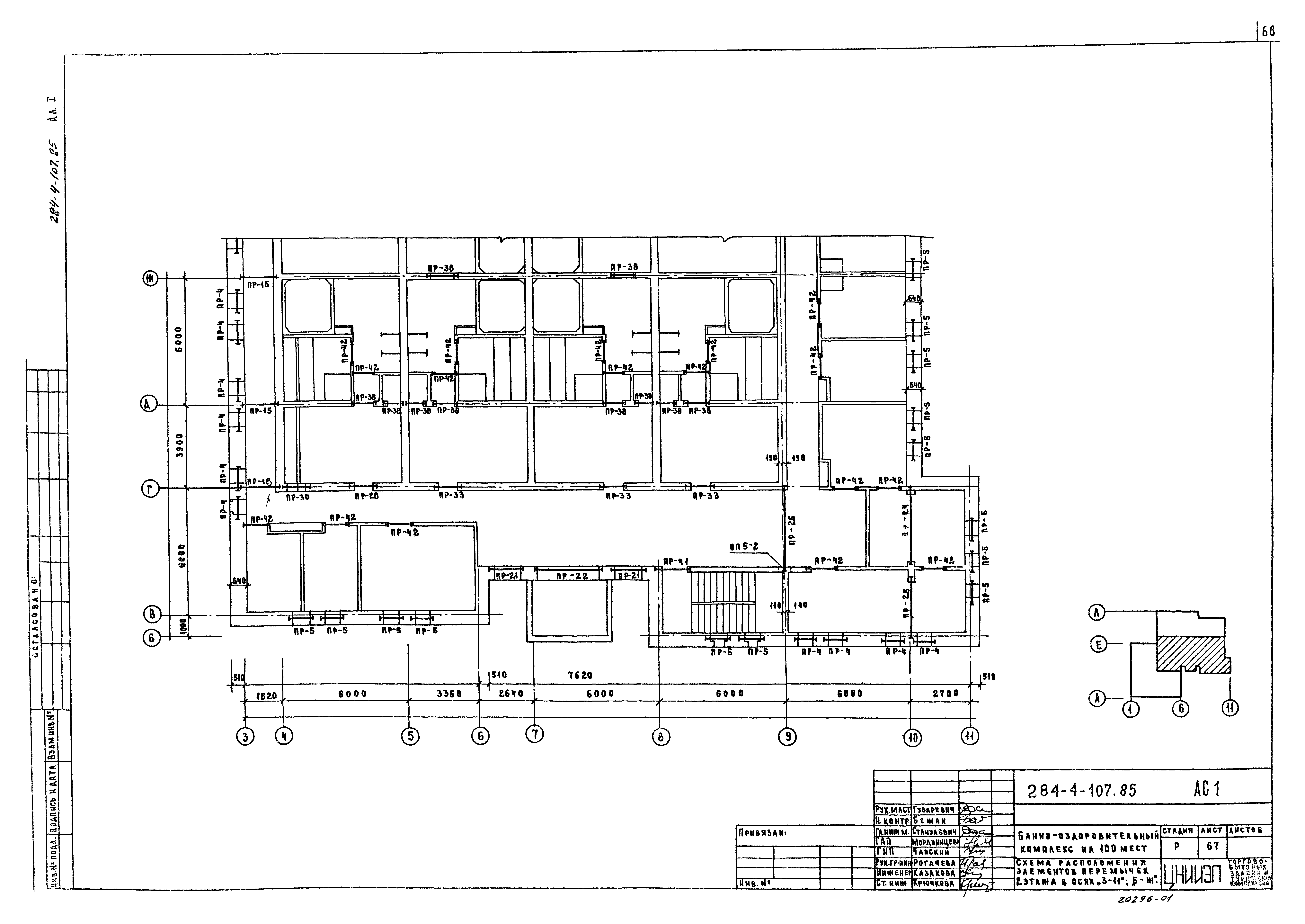
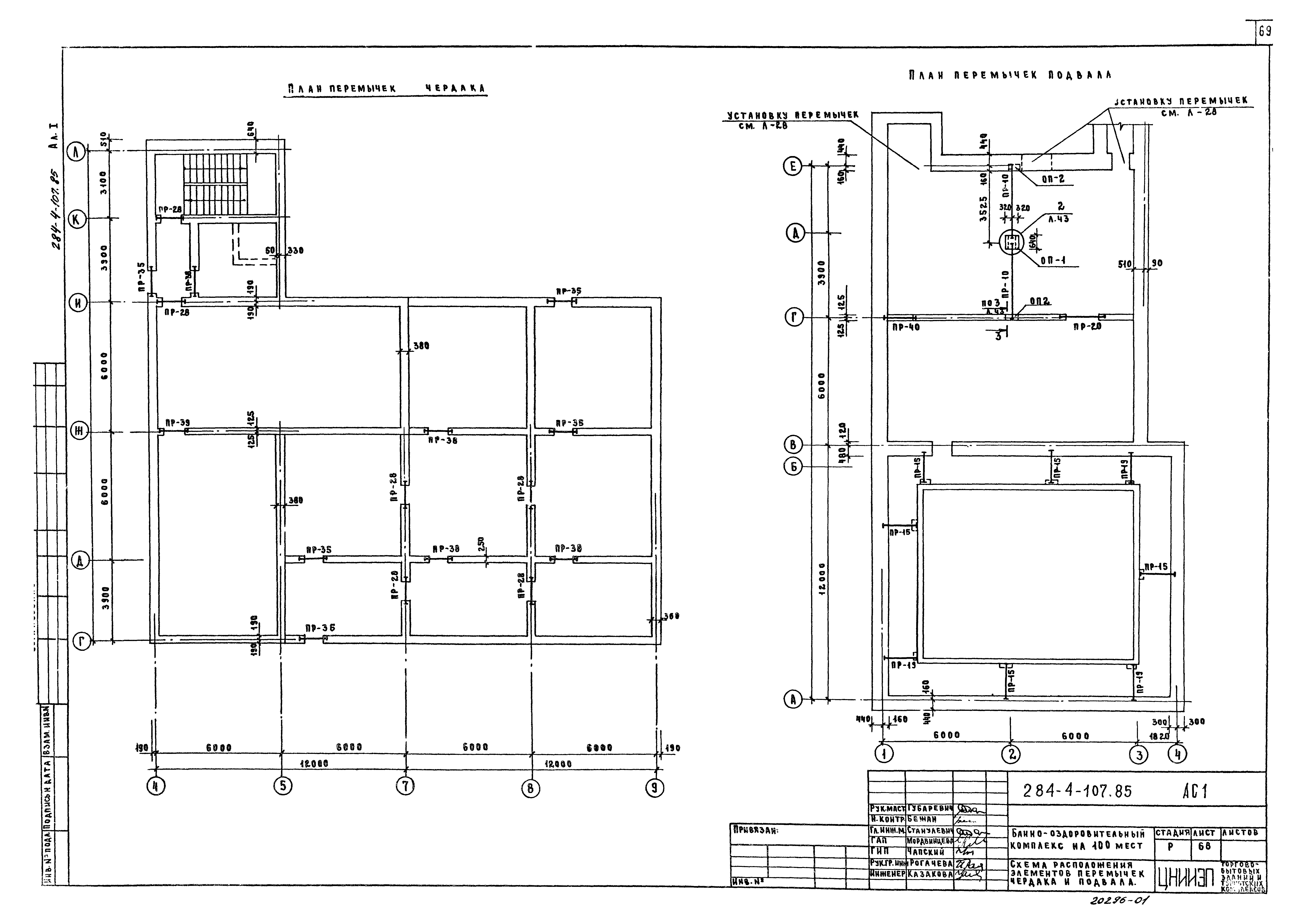
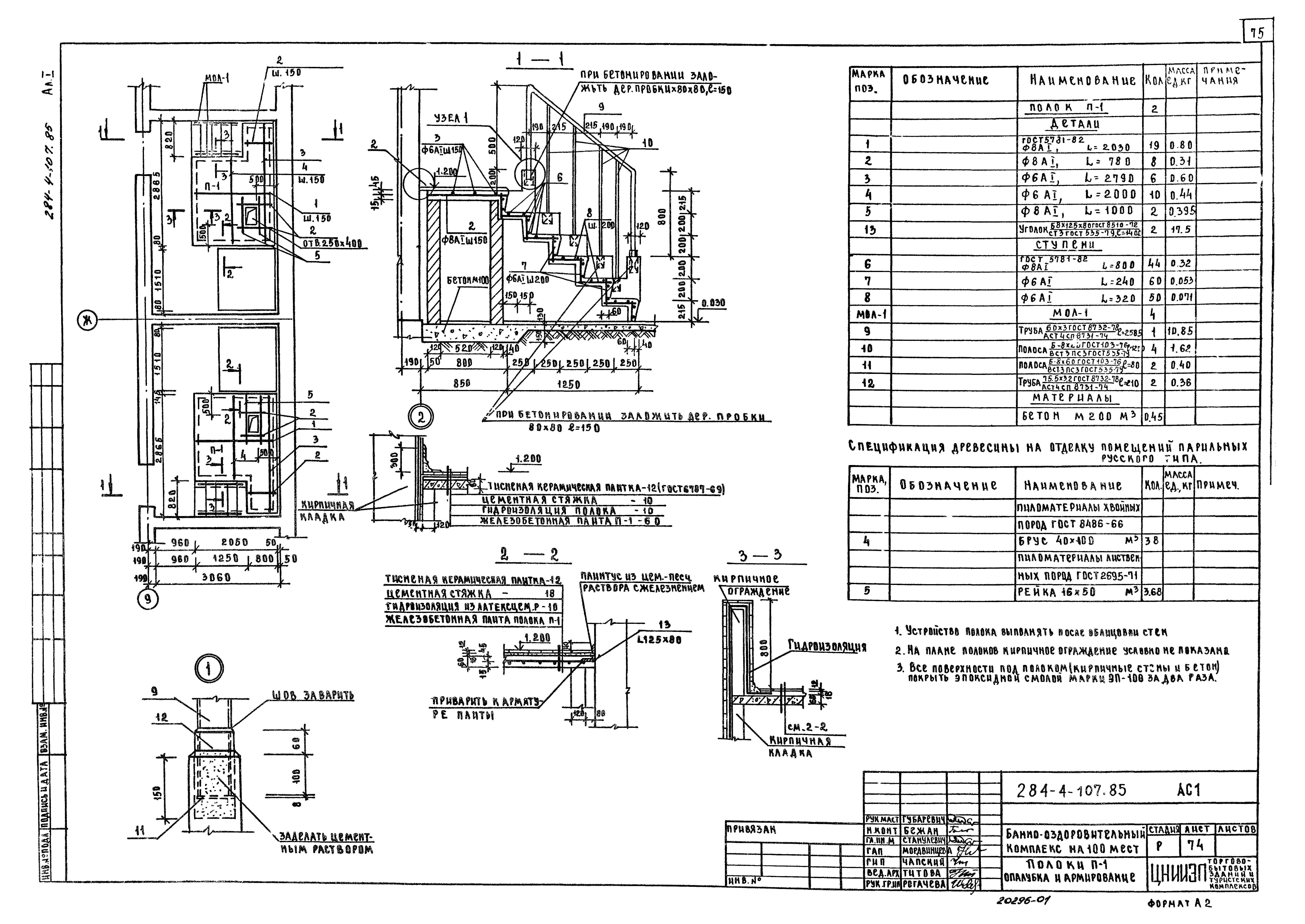
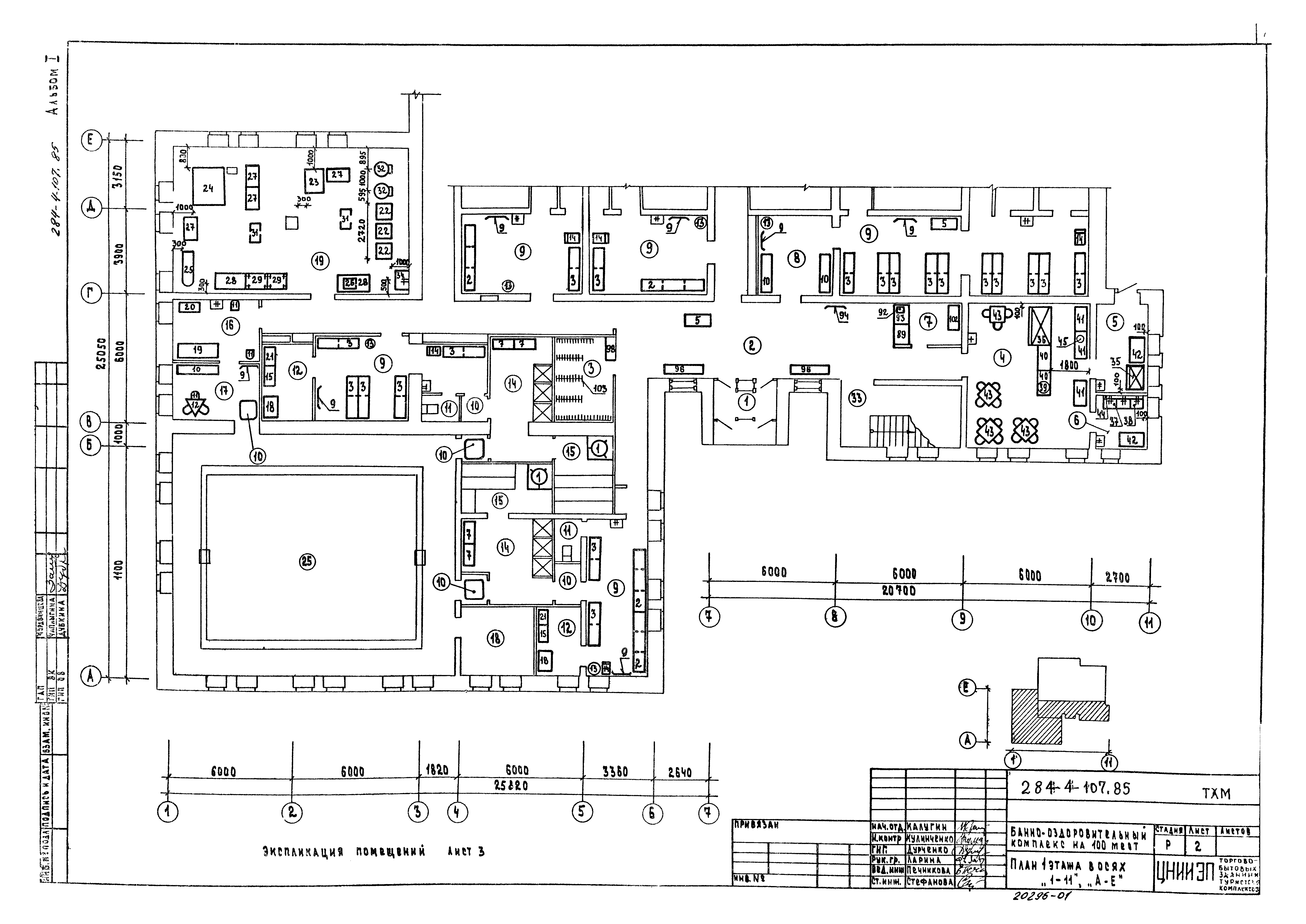
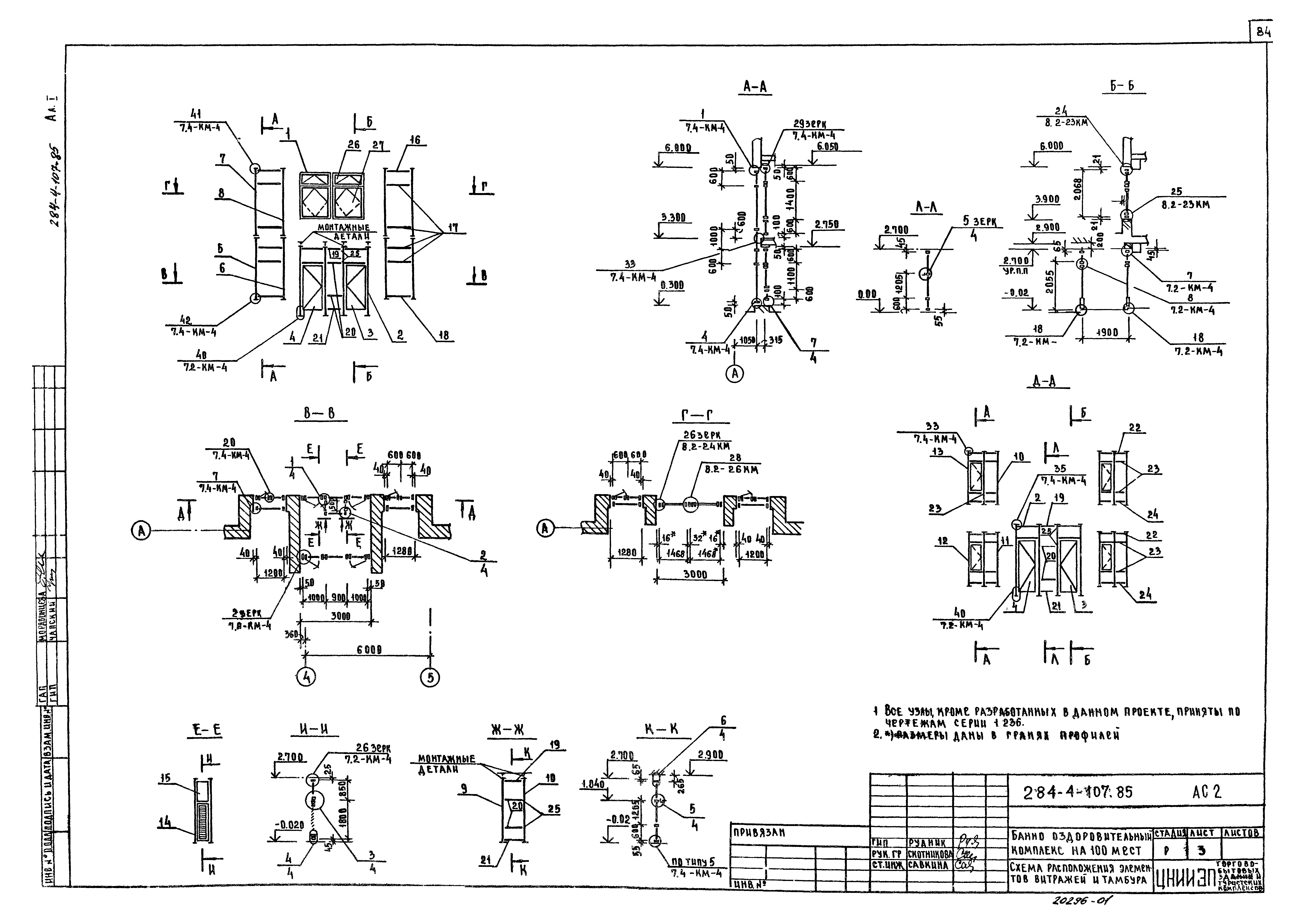
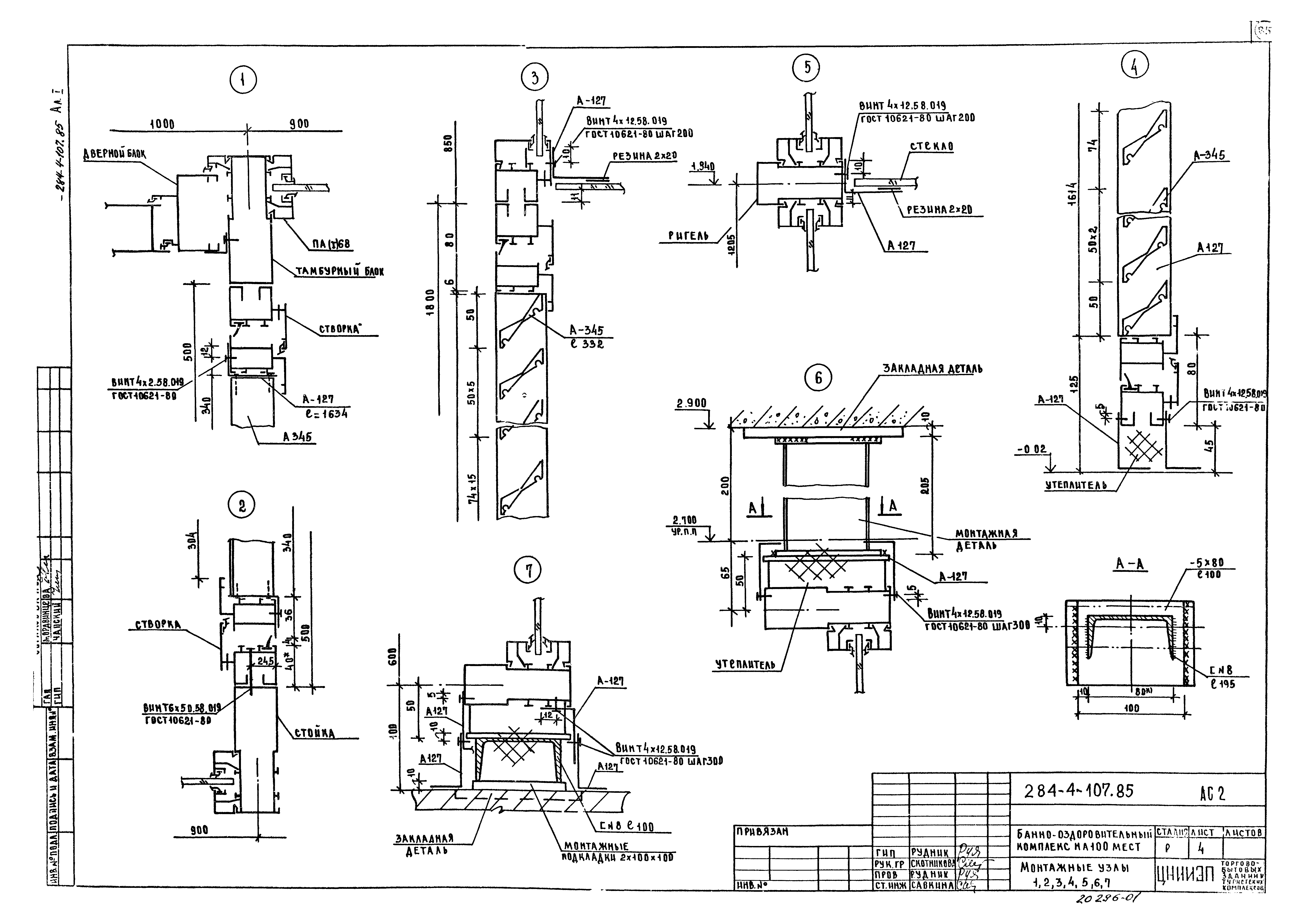
| Оглавление: | Чертежи основного комплекта марки АС1 Общие данные План 1 этажа в осях А - Е План 1 этажа в осях Д - Л План 2 этажа в осях Б - Ж План 2 этажа в осях Ж - Л План на отм. 6.600. План подвесного потолка. Спецификация элементов подвесного потолка План подвала Фрагменты планов 1 - 5 Узлы и спецификация к фрагментам планов План крыши. Узлы, спецификация Спецификация элементов планов. Экспликация отверстий Разрез 1-1 Разрез 2-2 Фасады 1- 11; Л - А Фасады 11 - 1; А - Л Каменка К-1, разрезы 1-1 - 6-6 Каменка К-1, планы порядовок Каменка К-1, детали каркаса каменки Каменка К-1, каркас Схема расчетных нагрузок на фундаменты Схема расположения элементов фундаментов в осях А - Е Схема расположения элементов фундаментов в осях Д - Л Фундаменты. Развертка стен и сечения 1-1 - 3-3, 10-10 - 15-15 Фундаменты. Развертка стен и сечения 4-4 - 9-9; 16-16; 17-17 Фундаменты. Сечения 18-18 - 27-27 Фундаменты. Сечения 37-37 Сечения по подпольным каналам Фундаменты под оборудование Схема расположения закладных деталей для крепления витражей Сечения и узлы к схемам расположения закладных деталей для крепления витражей Схема нагрузок на перекрытия Спецификация к схемам расположения элементов перекрытий Схема расположения элементов перекрытий над 1 этажом в осях А - Е Схема расположения элементов перекрытий над 1 этажом в осях Д - Л Схема расположения элементов перекрытий над 2 этажом в осях Б - Ж Схема расположения элементов перекрытий над 2 этажом в осях Ж - Л Схема расположения элементов покрытия и перекрытия над подвалом Узлы и сечения к схемам расположения элементов перекрытия Бассейн. Опалубочный чертеж. Узлы I - V Бассейн. Армирование днища Бассейн. Армирование стен бассейна Бассейн. Узлы установки закладных деталей Спецификация монолитных участков микробассейнов Микробассейны 1, 1а, УМ-4, УМ-4-1. Опалубка Микробассейны УМ-5. Опалубка Микробассейн 1. Армирование Микробассейны УМ-4, УМ-4-1. Армирование Микробассейн УМ-5. Армирование Сводная спецификация элементов монолитных участков Монолитные участки УМ1, УМ2. Сечения 1-1 - 7-7 Монолитный участок УМ3. Сечения 8-8 - 17-17 Сечения 18-18 - 20-20 Схемы расположения элементов лестниц Л1, Л2 Лифт. Схема расположения элементов машинного помещения Развертка стен грузопассажирского лифта Q = 500 Чертеж на заказ лифта Схема расположения элементов перемычек 1-го этажа в осях 3 - 10; Д - Л Схема расположения элементов перемычек 1-го этажа в осях 3 - 11; Б - Ж Схема расположения элементов перемычек 2-го этажа в осях 3 - 11; Ж - К Схема расположения элементов перемычек 2-го этажа в осях 3 - 11; Б - Ж Схема расположения элементов перемычек чердака и подвала Ведомость перемычек Спецификация к схемам расположения элементов перемычек Сводная спецификация элементов перемычек Схемы расположения перегородок кабин душевых Полоки П-1. Опалубка. Армирование Конструкция звена асбестоцементного воздуховода Чертежи основного комплекта марки ТХМ Общие данные План 1 этажа в осях 1 - 11; А - Е План 1 этажа в осях 3 - 10; Д - Л План 2 этажа в осях 3 - 11; Б - Ж План 2 этажа в осях 3 - 10; Ж - Л Чертежи основного комплекта марки АС2 Общие данные Спецификация элементов витражей Схема расположения элементов витражей и тамбура Монтажные узлы 1, 2, 3, 4, 5, 6, 7 |
| Разработан: | ЦНИИЭП торгово-бытовых зданий и туристских комплексов |
| Утверждён: | 14.01.1983 Госгражданстрой (Gosgrazhdanstroy 24) |






















































































