Скачать Типовой проект 284-4-107.85 Альбом III. Изделия железобетонные заводского изготовления. Изделия монолитных железобетонных конструкций. Изделия металлические. Изделия деревянныеДата актуализации: 01.01.2021
|
| Обозначение: | Типовой проект 284-4-107.85 |
| Обозначение англ: | 284-4-107.85 |
| Статус: | не определен законодательством |
| Название рус.: | Альбом III. Изделия железобетонные заводского изготовления. Изделия монолитных железобетонных конструкций. Изделия металлические. Изделия деревянные |
| Дата добавления в базу: | 01.09.2013 |
| Дата актуализации: | 01.01.2021 |
| Дата введения: | 13.02.1985 |
| Дата окончания срока действия: | 30.06.2003 |
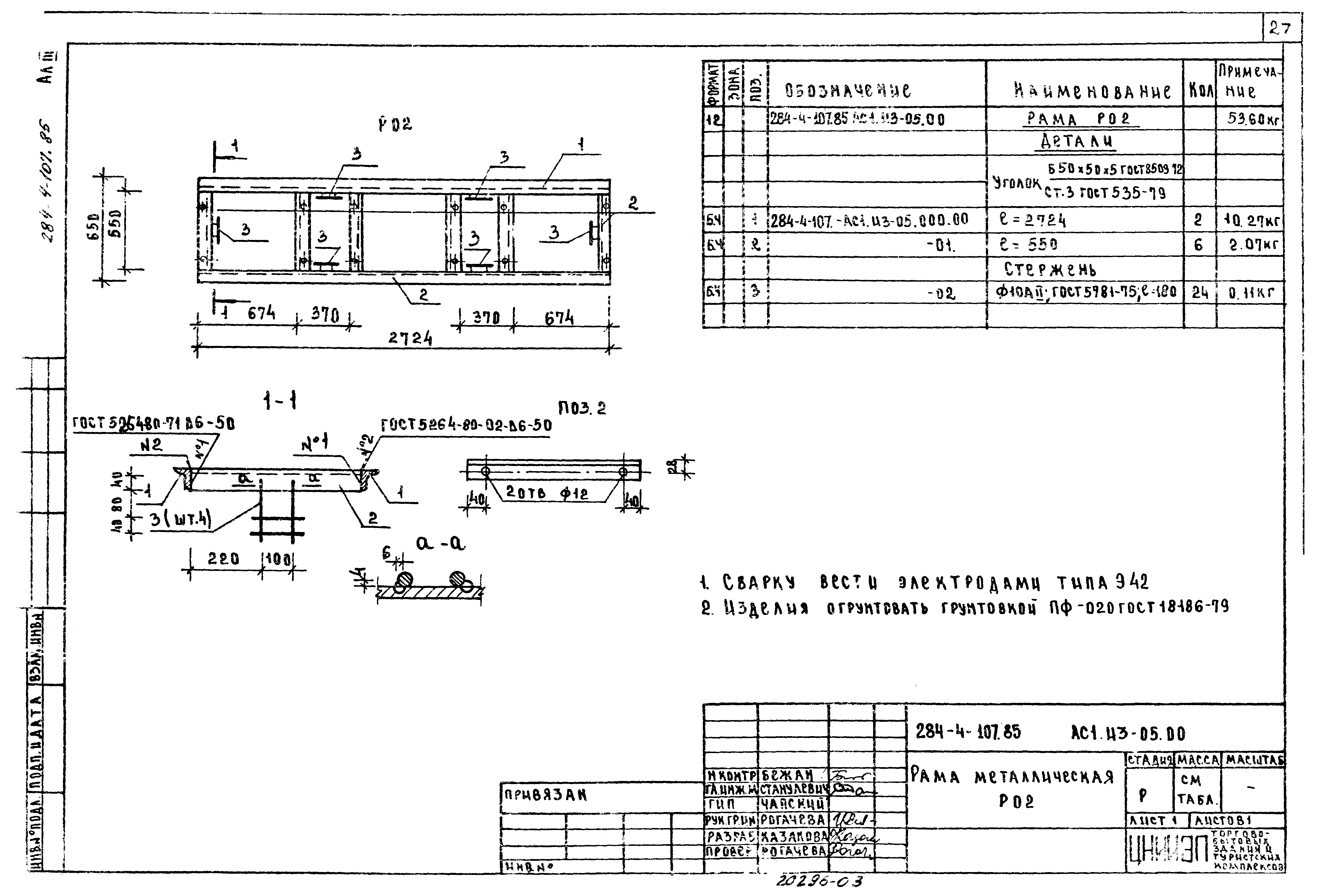
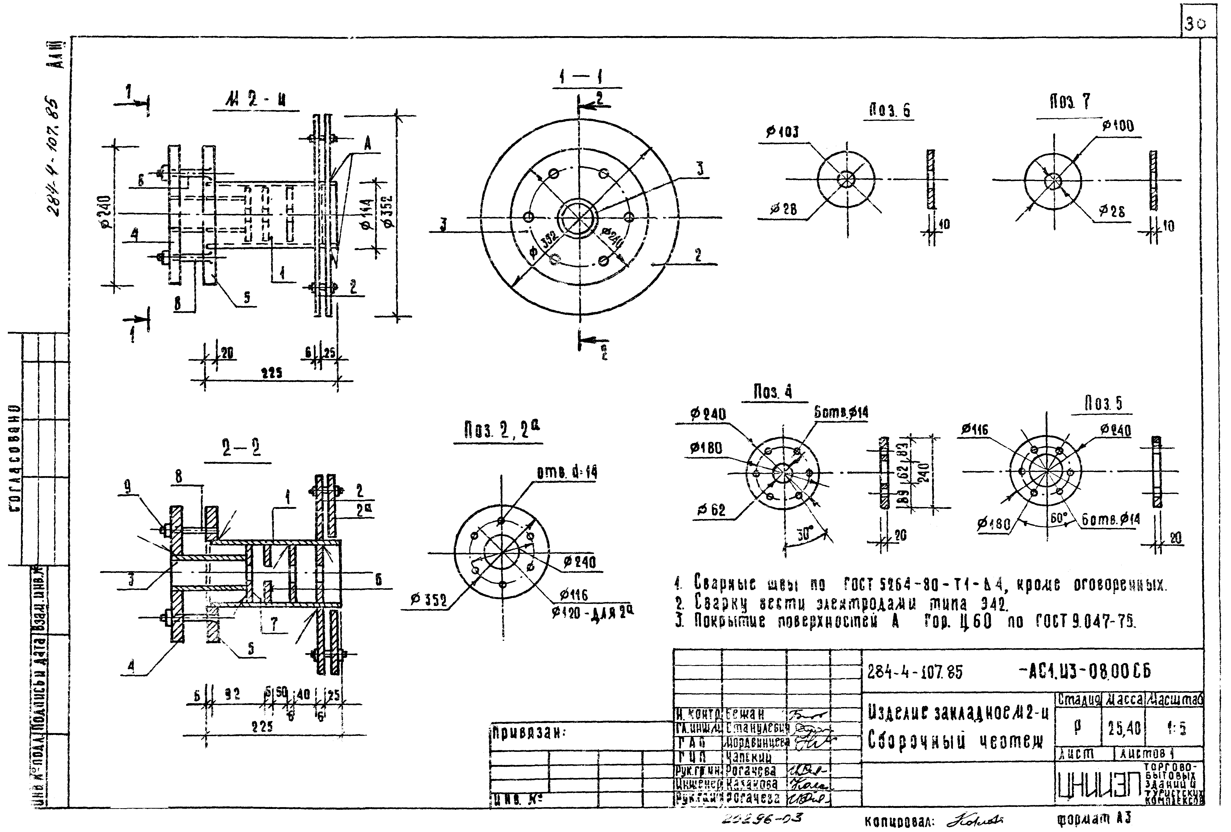
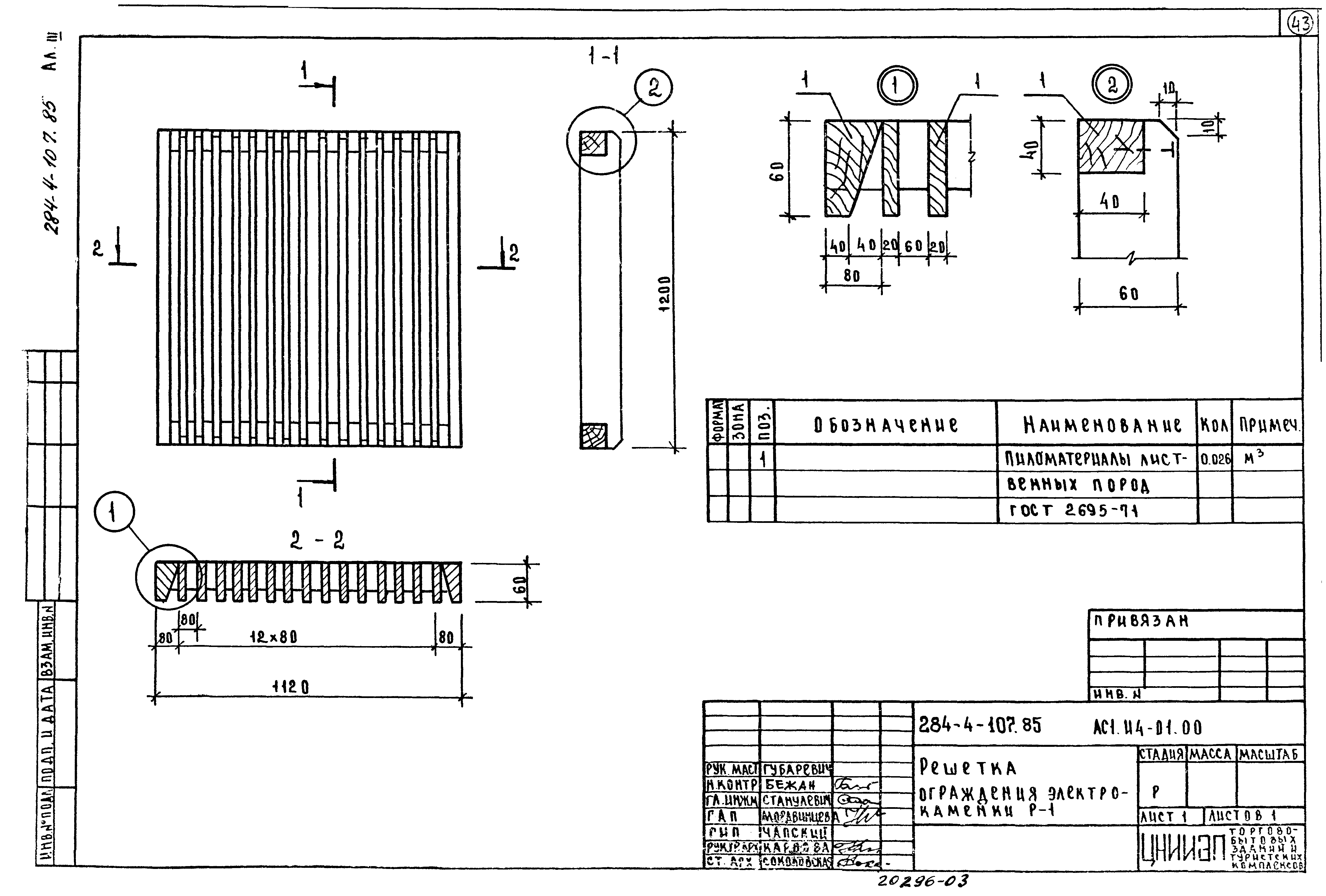
| Оглавление: | Обложка Титульный лист Содержание альбома И1-01.00 Панель перекрытия ПБ6-39.12 и ПБ6-39.10 и ПБ6-39.15 И1-01.00СБ Панель перекрытия ПБ6-39.12 и ПБ6-39.10 и ПБ6-39.15 И1-01.01 Сетка (С-15, С-16, С-17) И1-01.01СБ Сетка (С-15, С-16, С-17) И1-02.00 Плита перекрытия ПК8-60.15а-1; ПБ6-60.10-1; ПБ6-60.10-2; ПБ6-60.12-1; ПБ6-60.15-1; ПК10-60.18а-1; ПБ10-60.10-1 И1-03.00 Опорная подушка ОП5-4АIII-1и И1-04.00 Перемычка 1ПР3-19.12.14-1 И2-01.00 Сетка С-10 И2-02.00 Сетка СБ1 - СБ8 И2-03.00 Сетка СБ9 И2-04.00 Сетка СБ10 И2-05.00 Сетка (СМ-1 - СМ-3; СМ-8 - СМ-10) И2-05.00СБ Сетка (СМ-1 - СМ-3; СМ-8 - СМ-10) И2-06.00 Сетка (СМ-4; СМ-5; СМ-11; СМ-12) И2-06.00СБ Сетка (СМ-4; СМ-5; СМ-11; СМ-12) И2-07.00 Сетка СМ-6 И2-08.00 Сетка СМ-7 И2-09.00 Сетка СМ-13 И2-10.00 Сетка СМ-14 И2-11.00 Каркас плоский КР-2, КР-3 И2-11.00СБ Каркас плоский КР-2, КР-3 И2-12.00 Каркас плоский КР-1 И2-13.00 Каркас плоский К-3 И2-14.00 Сетка (С1…С9) И2-14.00СБ Сетка (С1…С9) И2-15.00 Каркас плоский (К-1, К-2, К-5, К-6) И2-15.00СБ Каркас плоский (К-1, К-2, К-5, К-6) И2-16.00 Каркас плоский К-3 И2-17.00 Каркас плоский К-4 И3-01.00 Рама металлическая (МР-1, МР-2, МР-3) И3-01.00СБ Рама металлическая (МР-1, МР-2, МР-3) И3-02.00 Рама металлическая (МР-5, МР-6, МР-8) И3-02.00СБ Рама металлическая (МР-5, МР-6, МР-8) И3-03.00 Рама металлическая (МР-9, МР-10) И3-03.00СБ Рама металлическая (МР-9, МР-10) И3-04.00 Рама металлическая (МР-4, МР-7, МР-11) И3-04.00СБ Рама металлическая (МР-4, МР-7, МР-11) И3-05.00 Рама металлическая РО2 И3-06.00 Крышка люка (КЛ1, КЛ2) И3-06.00СБ Крышка люка (КЛ1, КЛ2) И3-07.00 Лестница МЛ1 И3-08.00СБ Изделие закладное М2-и И3-09.00 Рамка люка машинного отделения РЛ-1 И3-10.00 Изделие закладное М1-и И3-11.00 Изделие закладное М4-и И3-12.00 Деталь закладная (ЗДЛ1 - ЗДЛ5) И3-12.00СБ Деталь закладная (ЗДЛ1 - ЗДЛ5) И3-13.00 Деталь закладная (ЗДВ1, ЗДВ2) И3-13.00СБ Деталь закладная (ЗДВ1, ЗДВ2) И3-15.00 Деталь закладная М-4 И3-16.00 Деталь закладная М-1 И3-17.00 Деталь закладная М-2 И3-18.00 Анкер А-1 И3-19.00 Изделие соединительное ИМС-1 И3-20.00 Анкер А-2 И3-21.00 Деталь закладная ЗДВ-3 И3-22.00СБ Анкер (ММ11, ММ11-1) И3-23.00СБ Анкер (ММ9, ММ9-1) И3-24.00 Деталь закладная ЗДЛ6 И3-25.00 Деталь закладная ЗДЛ7 И3-26.00 Деталь закладная ММ2-и И3-27.00 Деталь закладная ЗДЛ9 И3-28.00 Лестница МЛ2 И4-01.00 Решетка ограждения электрокаменки Р-1 |
| Разработан: | ЦНИИЭП торгово-бытовых зданий и туристских комплексов |
| Утверждён: | 14.01.1983 Госгражданстрой (Gosgrazhdanstroy 24) |












































