Скачать Типовой проект 294-2-71 Альбом IV. Электрооборудование. Связь и сигнализацияДата актуализации: 01.01.2021
|
| Обозначение: | Типовой проект 294-2-71 |
| Обозначение англ: | 294-2-71 |
| Статус: | не определен законодательством |
| Название рус.: | Альбом IV. Электрооборудование. Связь и сигнализация |
| Дата добавления в базу: | 01.09.2013 |
| Дата актуализации: | 01.01.2021 |
| Дата введения: | 17.12.1982 |
| Дата окончания срока действия: | 30.06.2003 |
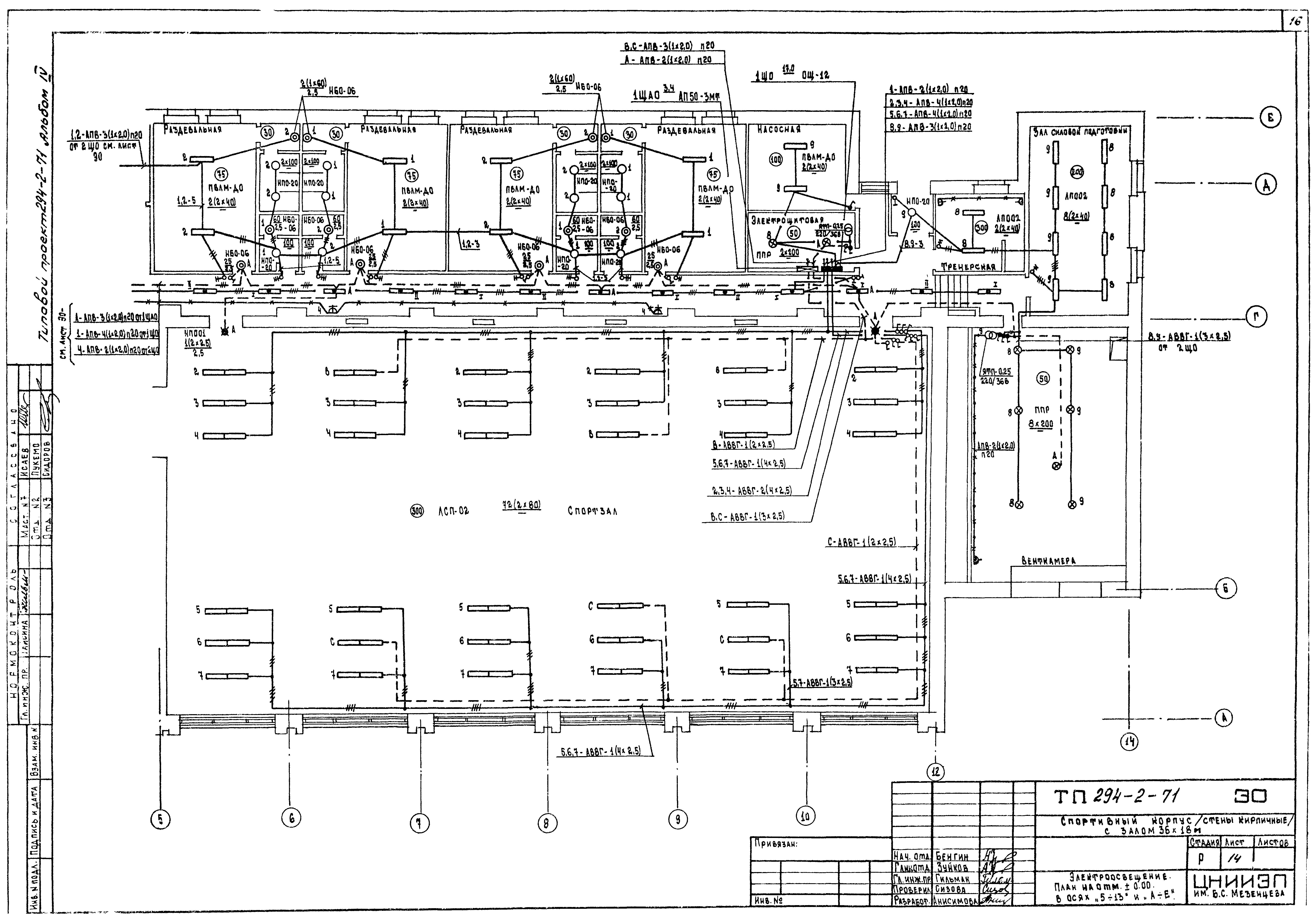
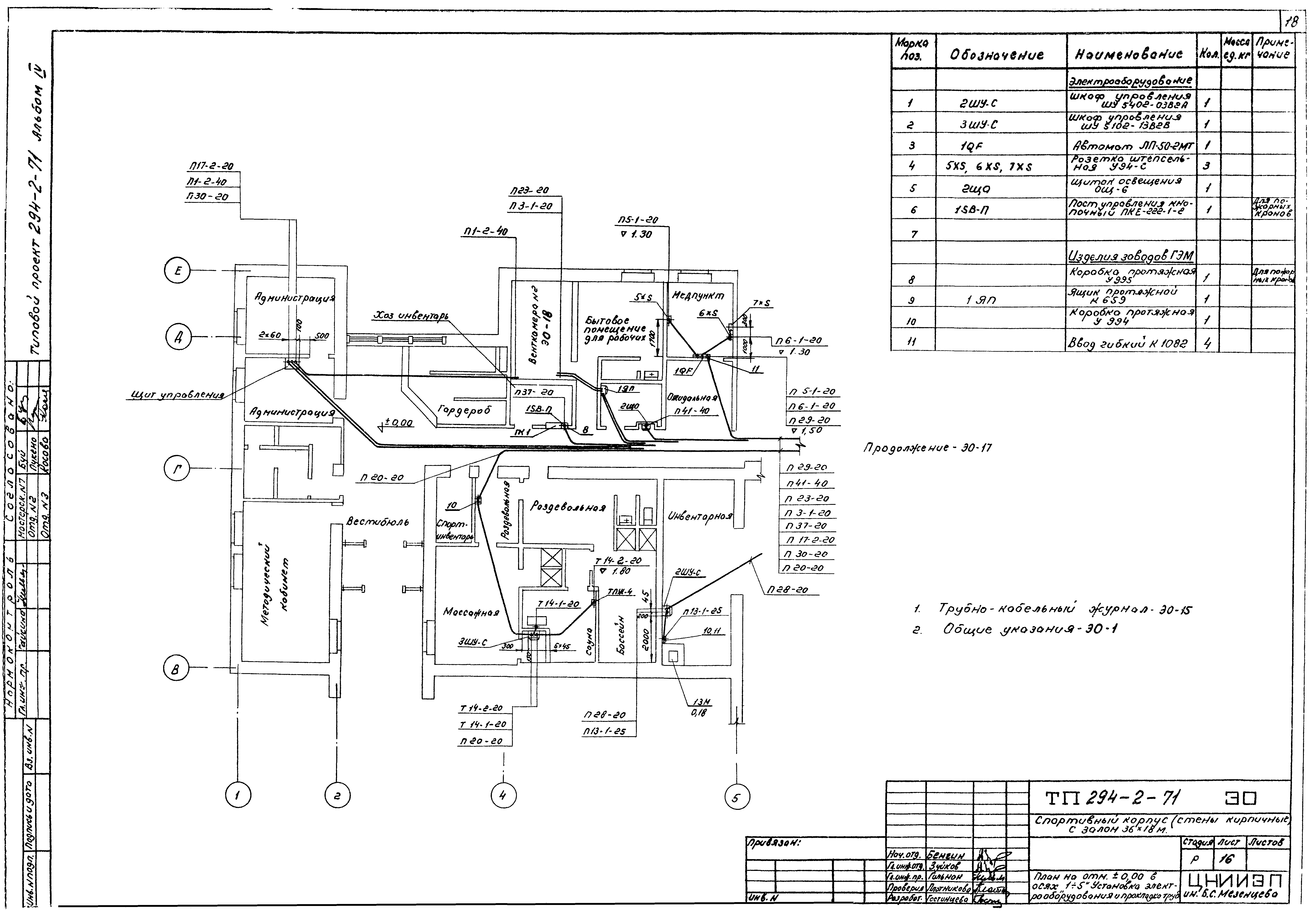
| Оглавление: | Титульный лист Содержание альбома Электротехническая часть Общие данные Сводная спецификация на электрооборудование и материалы Вводно-распределительное устройство ВРУ. Схема принципиальная однолинейная. Шкаф управления 3ШУ-С. Схема подключений Шкафы управления 1ШУ-С - 8ШУ-С. Автомат QF. Схемы принципиальные однолинейные Привод 8. Схема принципиальная Приводы 1, 2, 3, 13, 15, 16, 17. Отключение вентиляции. Схемы принципиальные Шкафы управления 1ШУ-С, 2ШУ-С. Кнопки пожарных кранов. Схемы подключений Шкафы управления 4ШУ-С, 5ШУ-С, 6ШУ-С. Схемы подключений Шкафы управления 7ШУ-С, 8ШУ-С, 9ШУ-С. Схемы подключений Электроосвещение. План на отм. 0.00 в осях 1 - 5 и А - Е Электроосвещение. План на отм. 0.00 в осях 5 - 13 и А - Е Трубно-кабельный журнал План на отм. 0.00 в осях 1 - 5. Установка электрооборудования и прокладка труб План на отм. 0.00 в осях 5 - 10. Электрощитовая. Установка электрооборудования и прокладка труб Венткамеры №1 и №2. Установка электрооборудования и прокладка труб Вводно-распределительное устройство (ВРУ). Опросный лист Связь и сигнализация Общие данные Сводная спецификация на устройства связи и сигнализации Сети на планах отметки 0.000 и кровли. Схема сетей |
| Разработан: | ЦНИИЭП им. Б.С. Мезенцева Госгражданстроя |
| Утверждён: | 21.09.1981 Госгражданстрой (Gosgrazhdanstroy 273) |

























