Скачать Типовой проект 294-3-36.85 Альбом I. Архитектурно-строительная и технологическая частиДата актуализации: 01.01.2021
|
| Обозначение: | Типовой проект 294-3-36.85 |
| Обозначение англ: | 294-3-36.85 |
| Статус: | не определен законодательством |
| Название рус.: | Альбом I. Архитектурно-строительная и технологическая части |
| Дата добавления в базу: | 01.09.2013 |
| Дата актуализации: | 01.01.2021 |
| Дата введения: | 03.10.1985 |
| Дата окончания срока действия: | 30.06.2003 |
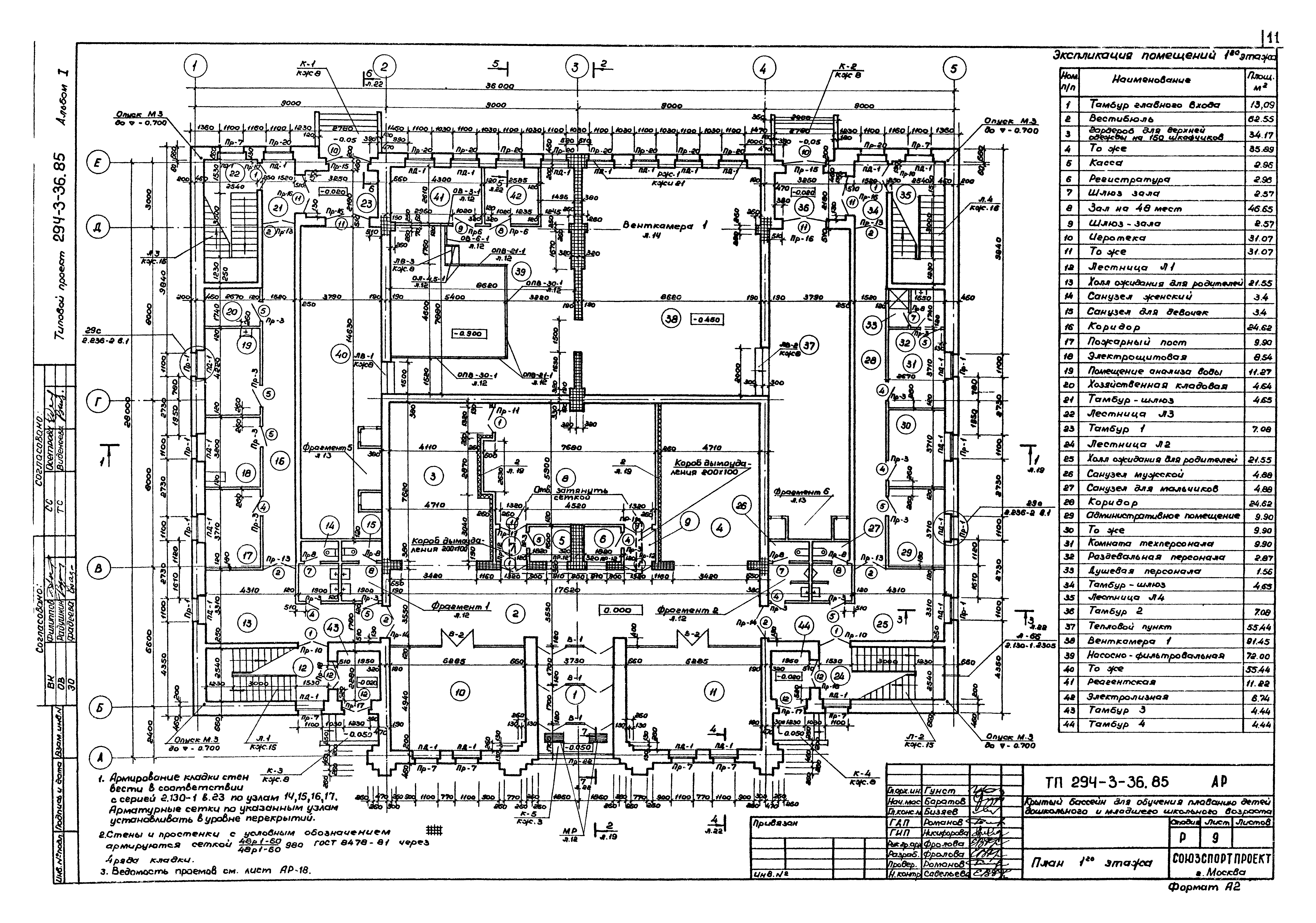
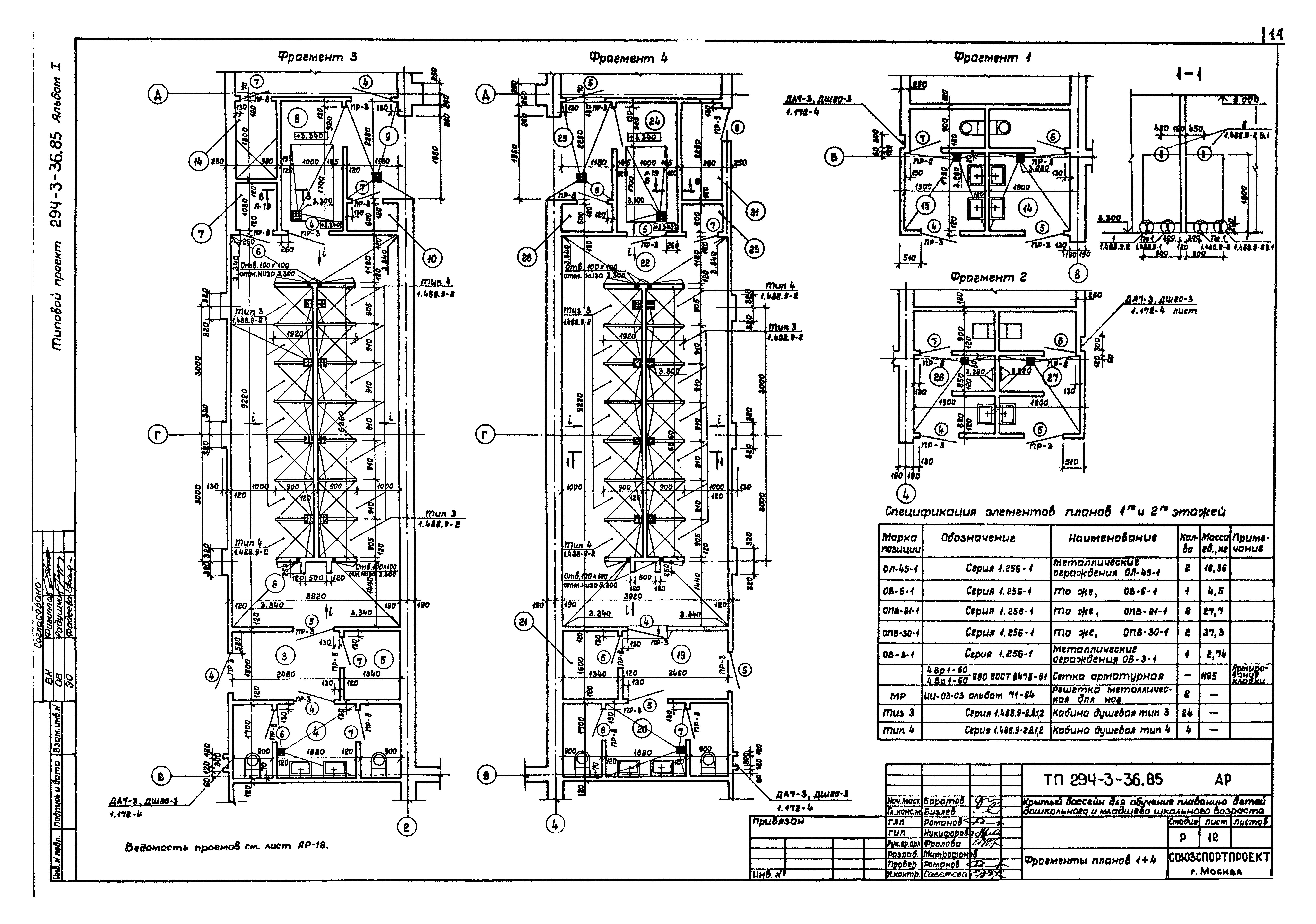
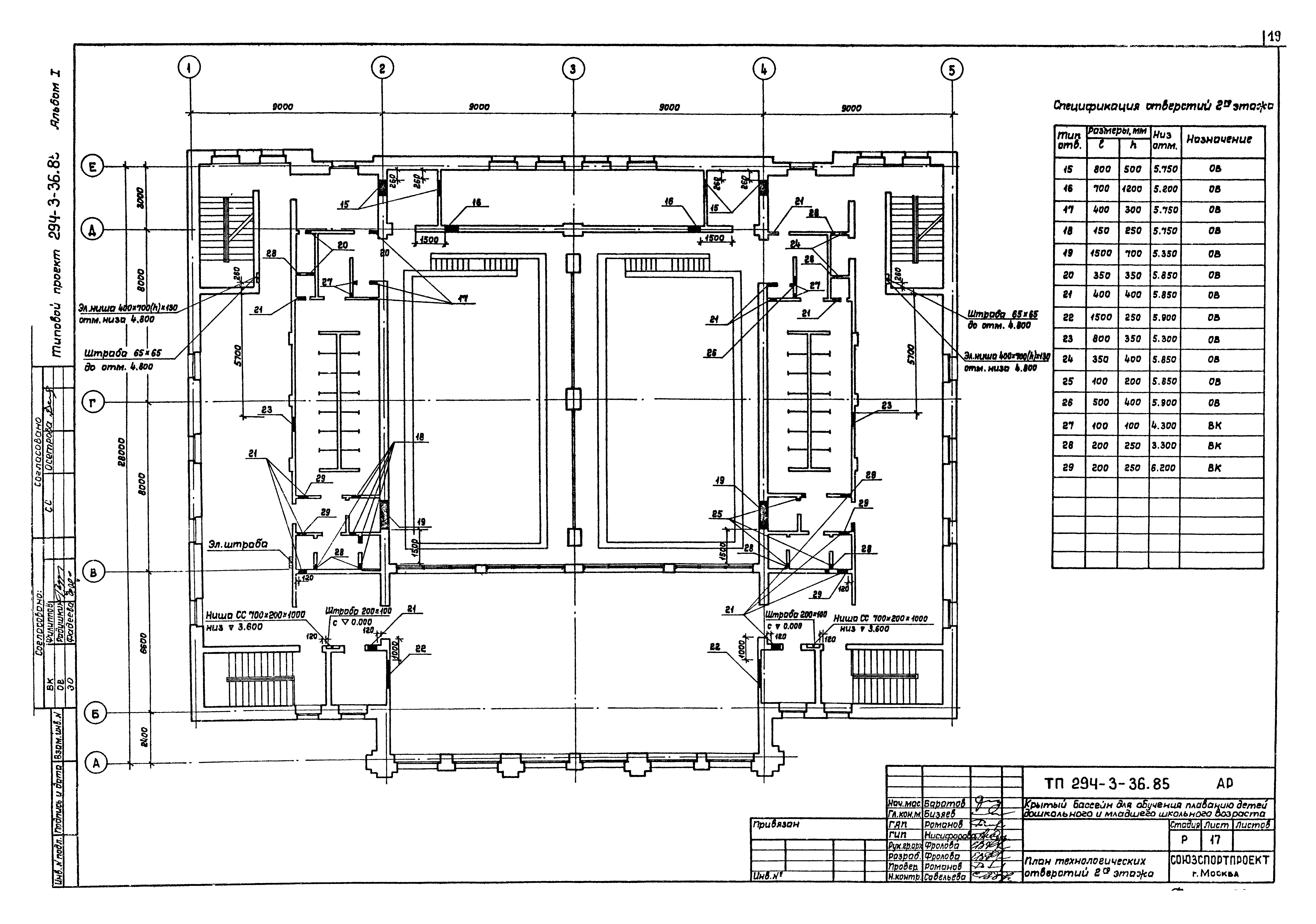
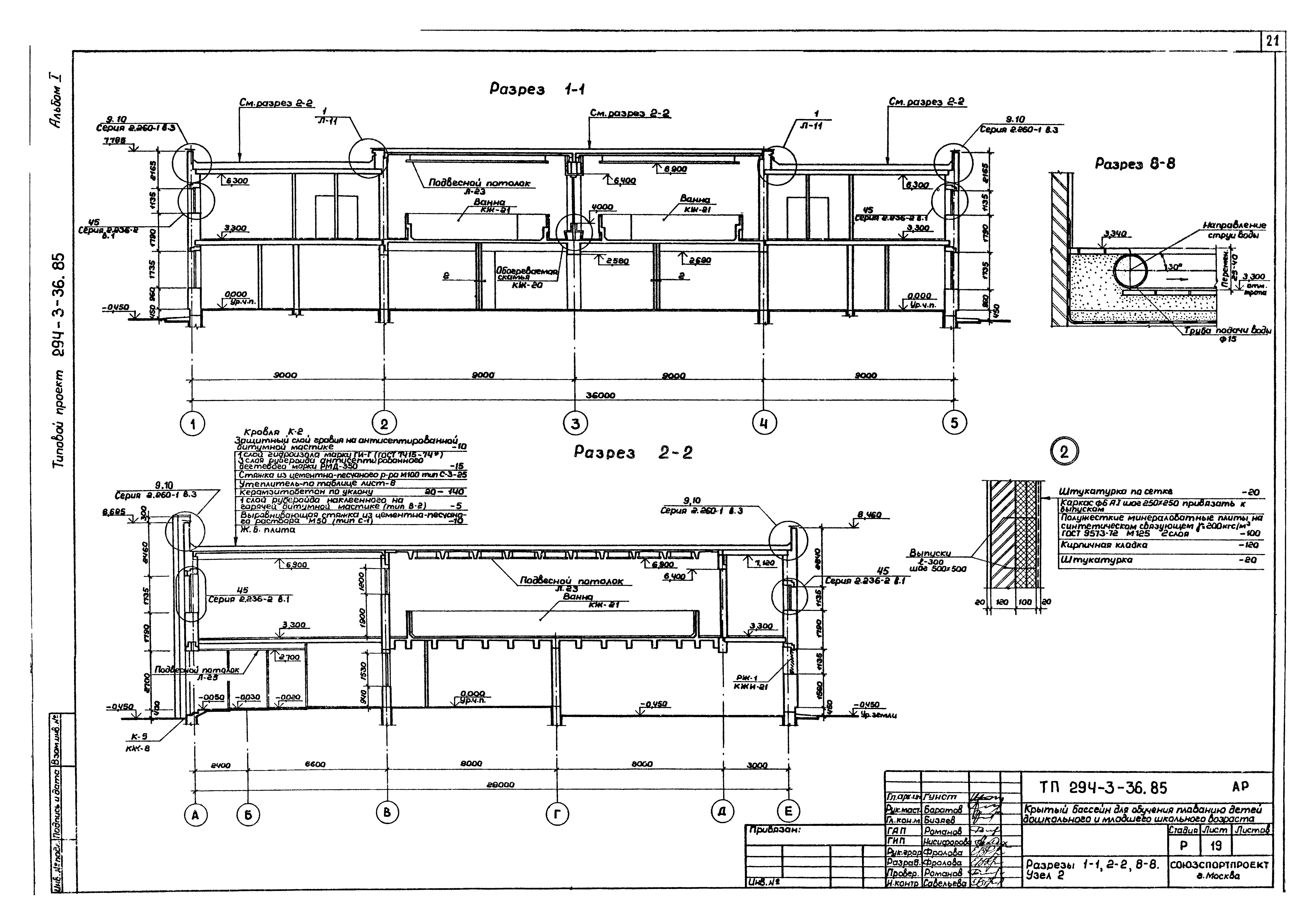
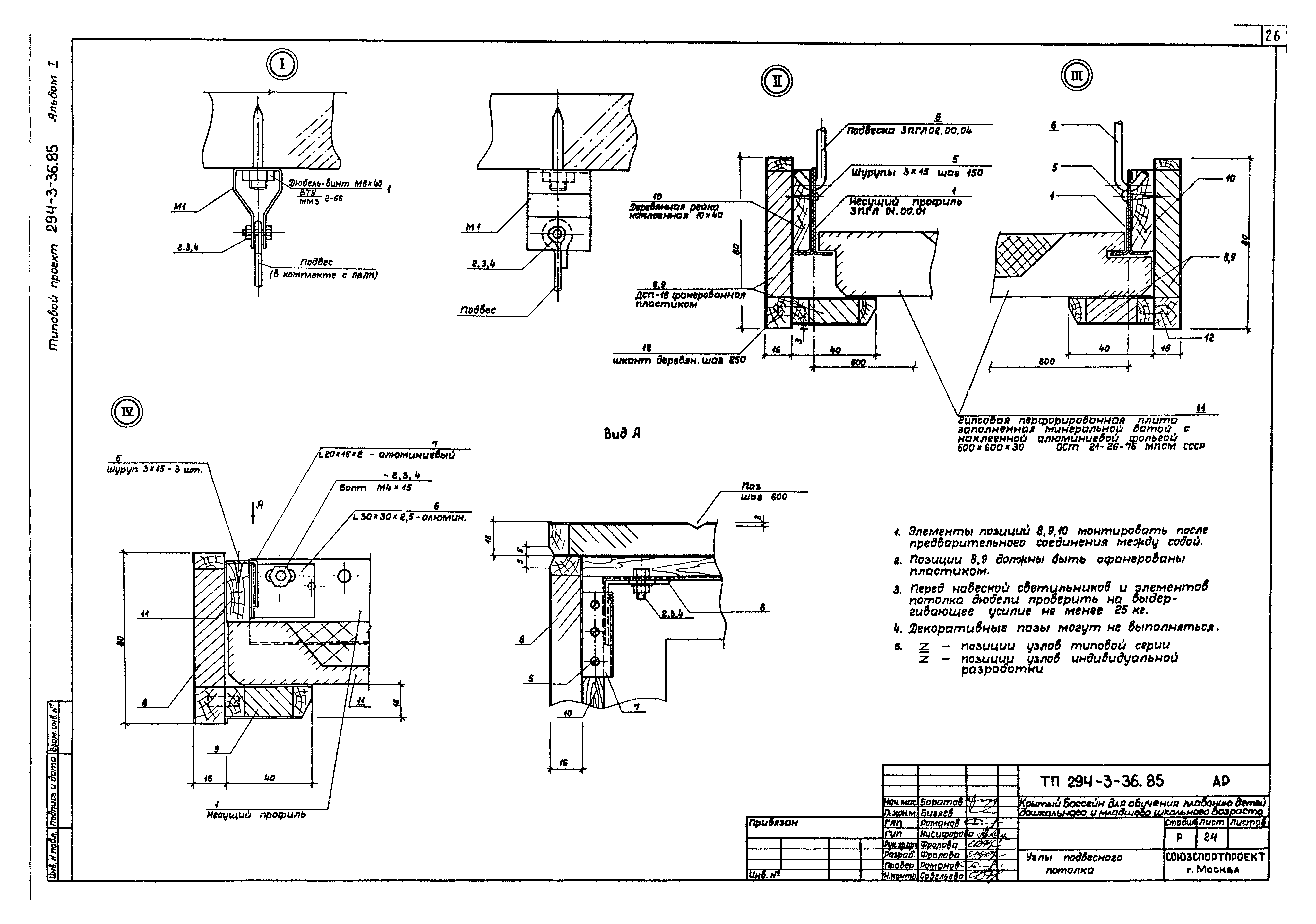
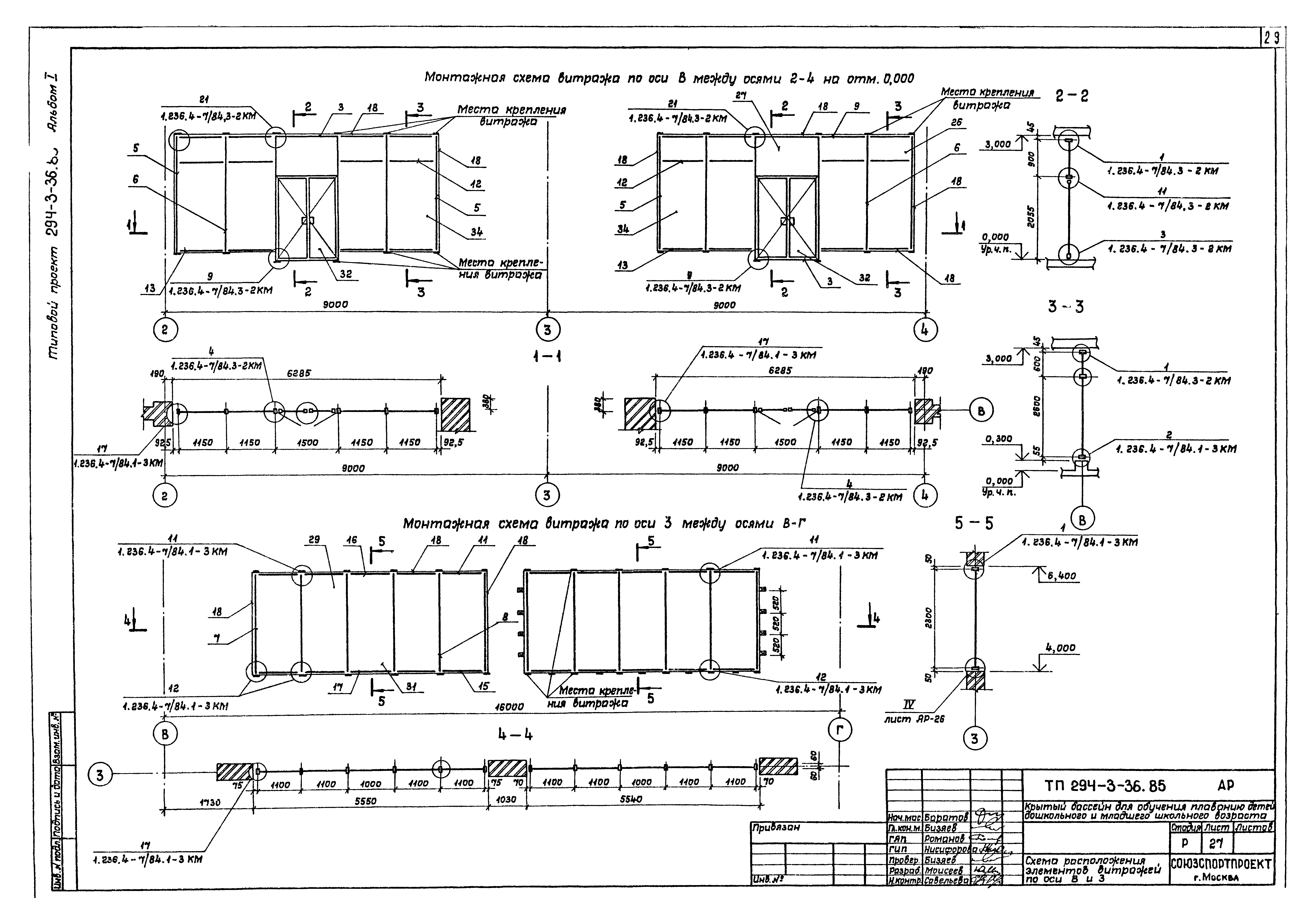
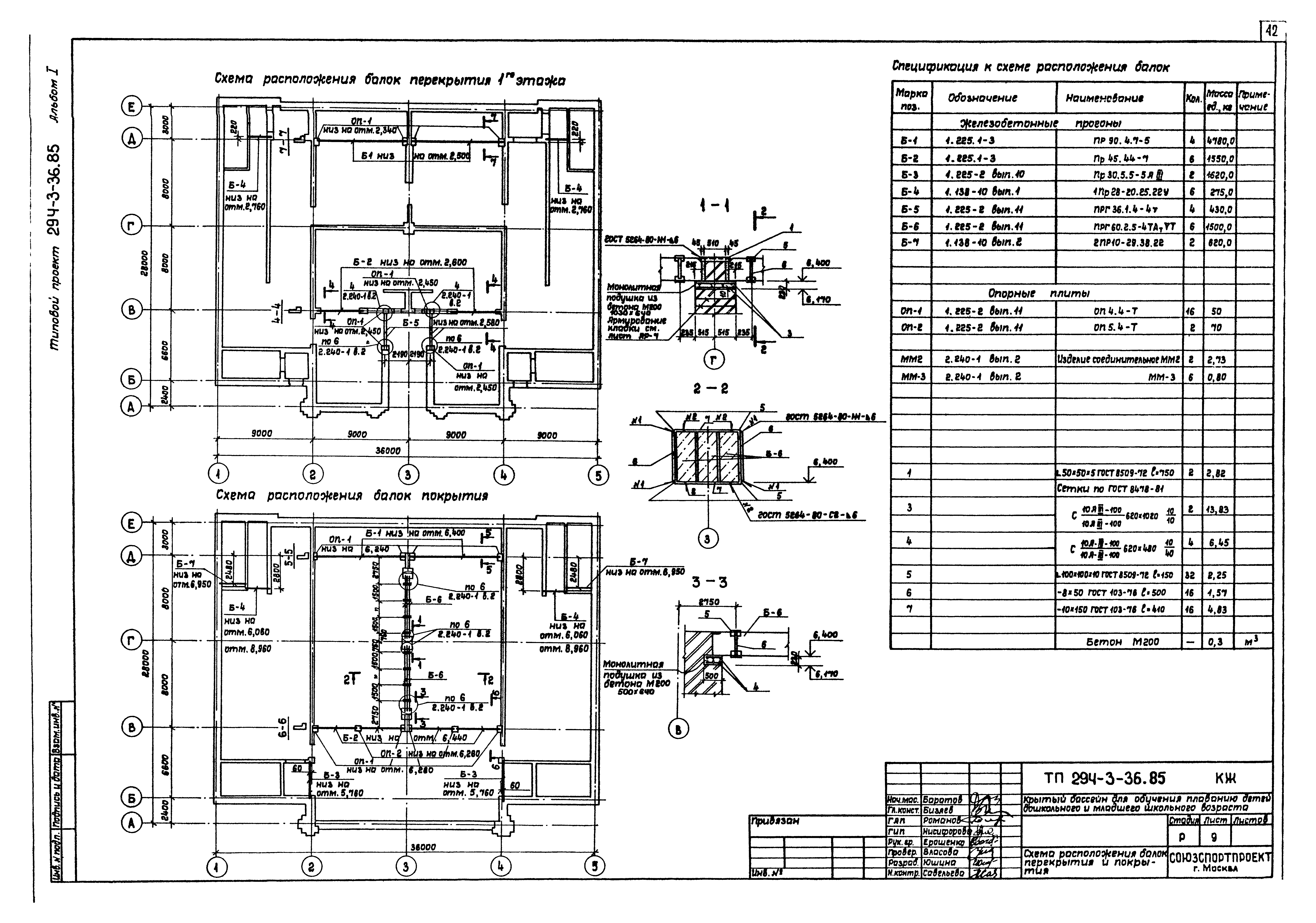
| Оглавление: | Содержание альбома Комплект марки АР Общие данные План 1-го этажа План 2-го этажа План на отм. 6.600. Разрезы 9-9; 10-10. План кровли. Вентшахты ВШ-1 - ВШ-3. Узлы 1, 2 Фрагменты планов 1 - 4 Венткамера 1. План. Разрез 1-1. Фрагменты плана 1-го этажа 5, 6. Разрезы 6-6, 7-7 Венткамера 1. Разрезы 2-2 - 5-5 Венткамера 2. План. Разрезы 1-1 и 2-2 План технологических отверстий 1-го этажа План технологических отверстий 2-го этажа Спецификация элементов плана Разрезы 1-1, 2-2, 8-8. Узел 2 Фасады 1 - 5 и 5 - 1 Фасады А - Е и Е - А Разрезы 3-3, 4-4, 5-5, 6-6, 7-7 Схема расположения элементов подвесного потолка над ванными залами Узлы подвесного потолка Схемы расположения элементов подвесных потолков в тамбурах Схемы расположения элементов витражей главного входа Схемы расположения элементов витражей по оси В и 3 Узлы витражей I - IV Спецификация элементов витражей Фрагменты плана 1-го этажа. Размещение технологического оборудования План 2-го этажа. Размещение технологического оборудования Комплект марки КЖ Общие данные Схема расположения фундаментов Сечения фундаментов 1-1 - 13-13 Схема расположения элементов подпольных каналов и приямков Сечения подпольных каналов 1-1 - 11-11 Схемы расположения элементов крылец 1 - 5 и лестниц ЛВ-1 - ЛВ-3 Схема расположения балок перекрытия и покрытия Схема расположения элементов перекрытия на отм. 3.300 Схема расположения элементов покрытия Схема расположения элементов перекрытия венткамер №1 и №2 Спецификация элементов перекрытия, покрытия и элементов венткамер №1 и №2 Устройство отверстий в сантехнических панелях перекрытий. Узлы I - IV Схемы расположения элементов лестниц Л1, Л2 Схемы расположения элементов лестниц Л3, Л4 План ванн плавательных бассейнов. Сечения 1-1 - 3-3 Узлы ванн плавательных бассейнов 6, 9. Разрезы 4-4 - 6-6 Узлы ванн плавательных бассейнов 1 - 5 Детали облицовки ванн плавательных бассейнов А - Ж Деталь обогреваемой скамейки плавательных бассейнов Ванны плавательных бассейнов. Опалубочный план Ванны плавательных бассейнов. Опалубочные разрезы. Узлы III - V Ванны плавательных бассейнов. Армирование плиты днища ПД-1 Ванны плавательных бассейнов. Спецификация элементов плиты днища ПД-1 Ванны плавательных бассейнов. Армирование стенок СМ-1 - СМ-5 и марша ЛМ-1. Сечения 1-1 - 3-3 Ванны плавательных бассейнов. Армирование стенок СМ-1 - СМ-5 и марша ЛМ-1. Сечения 4-4 - 12-12 Ванны плавательных бассейнов. Спецификация элементов стенок СМ-1 - СМ-5, лестничного марша ЛМ-1 Ванны плавательных бассейнов. Армирование балок БМ-1 - БМ-3. Сечения 1-1 - 4-4 Ванны плавательных бассейнов. Армирование балок БМ-1 - БМ-3. Сечения 5-5 - 8-8 Схема расположения закладных деталей для крепления спортивного оборудования |
| Разработан: | Союзспортпроект Спорткомитета СССР |
| Утверждён: | 28.11.1983 Госгражданстрой (Gosgrazhdanstroy 360) |

































































