Скачать Типовой проект 416-1-245.90 Альбом 1. Пояснительная записка. Архитектурно-строительные решения. Технология производства. Отопление и вентиляция. Внутренние водопровод и канализация. Силовое электрооборудование. Внутреннее электрическое освещение. Автоматизация систем отопления и вентиляции. Связь и сигнализация. Пожарно-охранная сигнализацияДата актуализации: 01.01.2021
|
| Обозначение: | Типовой проект 416-1-245.90 |
| Обозначение англ: | 416-1-245.90 |
| Статус: | не определен законодательством |
| Название рус.: | Альбом 1. Пояснительная записка. Архитектурно-строительные решения. Технология производства. Отопление и вентиляция. Внутренние водопровод и канализация. Силовое электрооборудование. Внутреннее электрическое освещение. Автоматизация систем отопления и вентиляции. Связь и сигнализация. Пожарно-охранная сигнализация |
| Дата добавления в базу: | 01.09.2013 |
| Дата актуализации: | 01.01.2021 |
| Дата введения: | 01.11.1990 |
| Дата окончания срока действия: | 30.06.2003 |
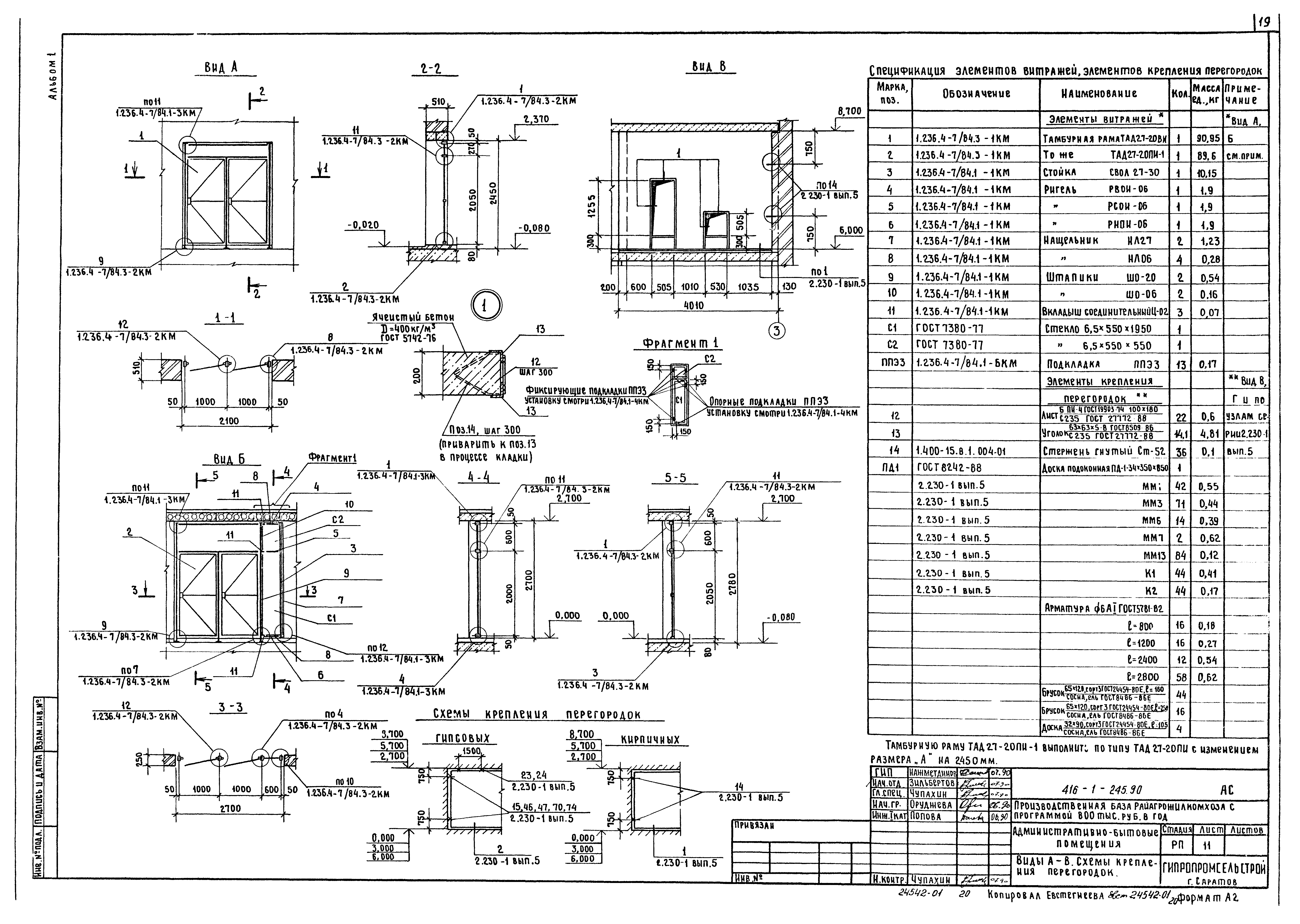
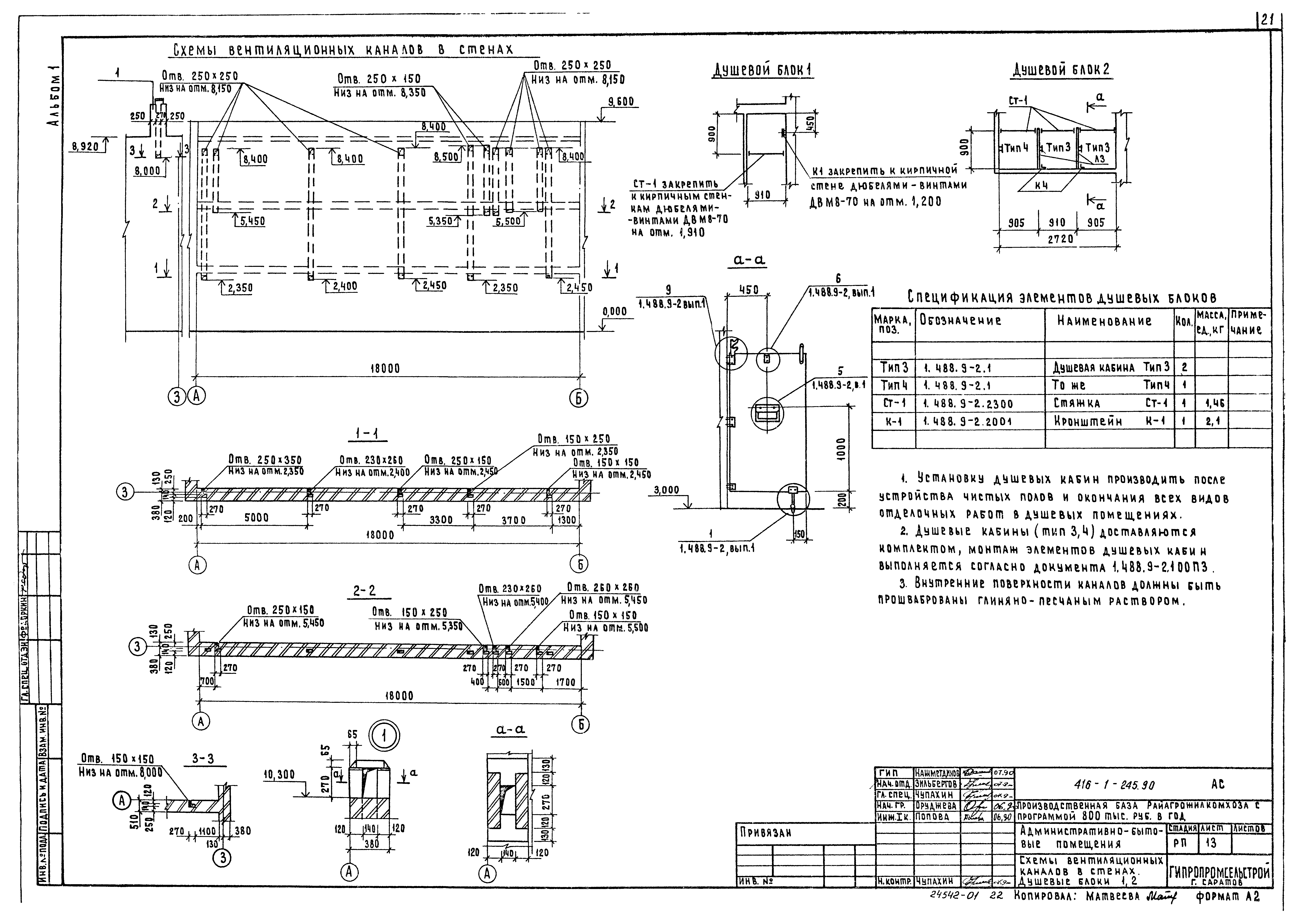
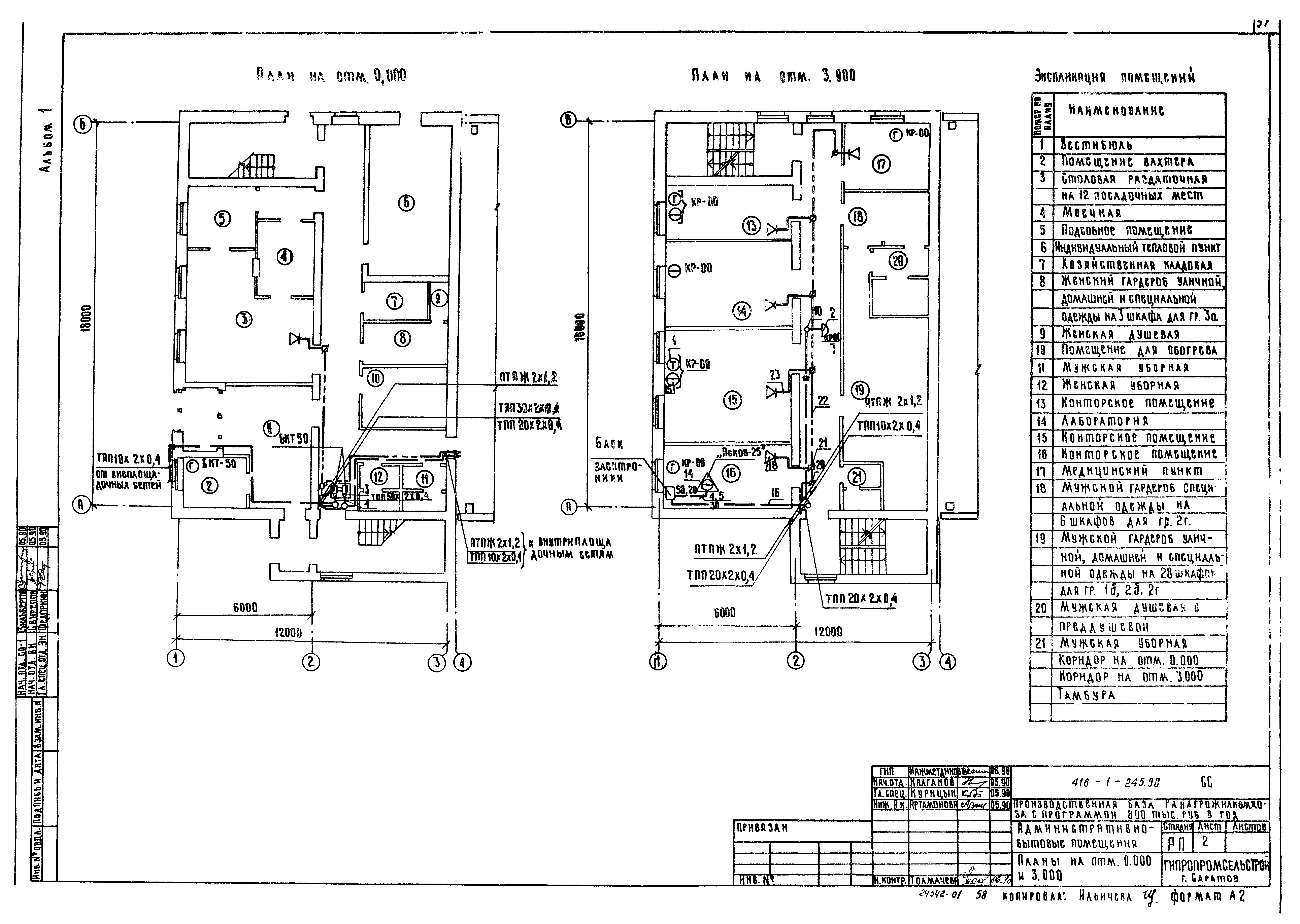
| Оглавление: | Содержание альбома Пояснительная записка Архитектурно-строительные решения Общие данные Фасады 1 - 3, 3 - 1, Б - А Планы на отм. 0.000 и 3.600 Планы на отм. 6.000. Разрез 1-1 Спецификация заполнения проемов дверей, перемычек Планы полов на отм. 0.000; 3.000 и 6.000 План кровли Виды А - В. Схемы крепления перегородок Вид Г. Узлы 1 - 7 Схемы вентиляционных каналов в стенах. Душевые блоки 1, 2 Схема расположения элементов фундаментов Сечения 1-1 - 21-21. Виды А - Г к схеме расположения элементов фундаментов Схема расположения элементов покрытия и перекрытия на отм. 3.000 Схема расположения элементов перекрытия на отм. 6.000 Схемы расположения элементов лестниц Технология производства Общие данные. Планы на отм. 0.000 между осями А - Б; 1 - 2; на отм. 3.000 между осями А - Б; 1 - 2; А- Б; 2 - 3 Ведомость оборудования Отопление и вентиляция Общие данные Планы на отм. 0.000; 3.000 План на отм. 6.000. Разрез 1-1 Схемы систем П1, В1 - В4, ВЕ1 - ВЕ7 Установки систем П1, В3, В4 Схема системы отопления. Схема системы теплоснабжения установки П1 Индивидуальный тепловой пункт (ИТП) Внутренние водопровод и канализация Общие данные План на отм. 0.000; 3.000 План на отм. 6.000. План кровли с водосточными воронками. Водомерный узел 1, 2, 3 Схемы систем К1, К2, В0, Т3, Т4 Силовое электрооборудование Общие данные Принципиальная схема питающей сети. Принципиальная схема распределительной сети Принципиальная схема распределительной сети. План расположения электрооборудования, прокладки электрической сети и зануления на отм. 0.000 Планы расположения электрооборудования, прокладки электрической сети и зануления на отм. 3.000; 5.000 Внутреннее электрическое освещение Общие данные. Принципиальная схема питающей сети Планы расположения электрического оборудования и прокладки электрических сетей на отм. 0.000; 3.000 и 6.000 Автоматизация систем отопления и вентиляции Общие данные. Система П1. Схема автоматизации Система П1. Схема соединений внешних проводок. План расположения на отм. 6.000 ИТП. Схема автоматизации, соединений внешних проводок. План расположения на отм. 0.000 Автоматизация внутреннего водопровода и канализации Общие данные. Задвижка. Схема электрическая принципиальная управления Схема подключения. Планы расположения на отм. 0.000; 3.000; 6.000 Ящик 12Я. Чертеж общего вида Ящик 12Я. Перечень надписей Ящик 12Я. Технические данные аппаратов Ящик 12Я. Схема электрическая соединений Связь и сигнализация Общие данные. Спецификация Планы на отм. 0.000 и 3.000 План на отм. 6.000. Схема расположения устройств связи Пожарно-охранная сигнализация Общие данные. Спецификация Планы на отм. 0.000 и 3.000. Схема расположения устройств пожарно-охранной сигнализации Схема подключения |
| Разработан: | Гипропромсельстрой |
| Утверждён: | 01.11.1990 Главагропромнаучпроект Госкомиссии СМ СССР по продовольствию и закупкам (13-а) |
| Издан: | ЦИТП Госстроя СССР (CITP, Gosstroy (USSR) 1991 г. ) |






























































