Скачать Типовой проект 805-9-8.84 Альбом I. Общая пояснительная записка. Архитектурно-строительные чертежиДата актуализации: 01.01.2021
|
| Обозначение: | Типовой проект 805-9-8.84 |
| Обозначение англ: | 805-9-8.84 |
| Статус: | не определен законодательством |
| Название рус.: | Альбом I. Общая пояснительная записка. Архитектурно-строительные чертежи |
| Дата добавления в базу: | 01.09.2013 |
| Дата актуализации: | 01.01.2021 |
| Дата введения: | 16.02.1984 |
| Дата окончания срока действия: | 30.06.2003 |
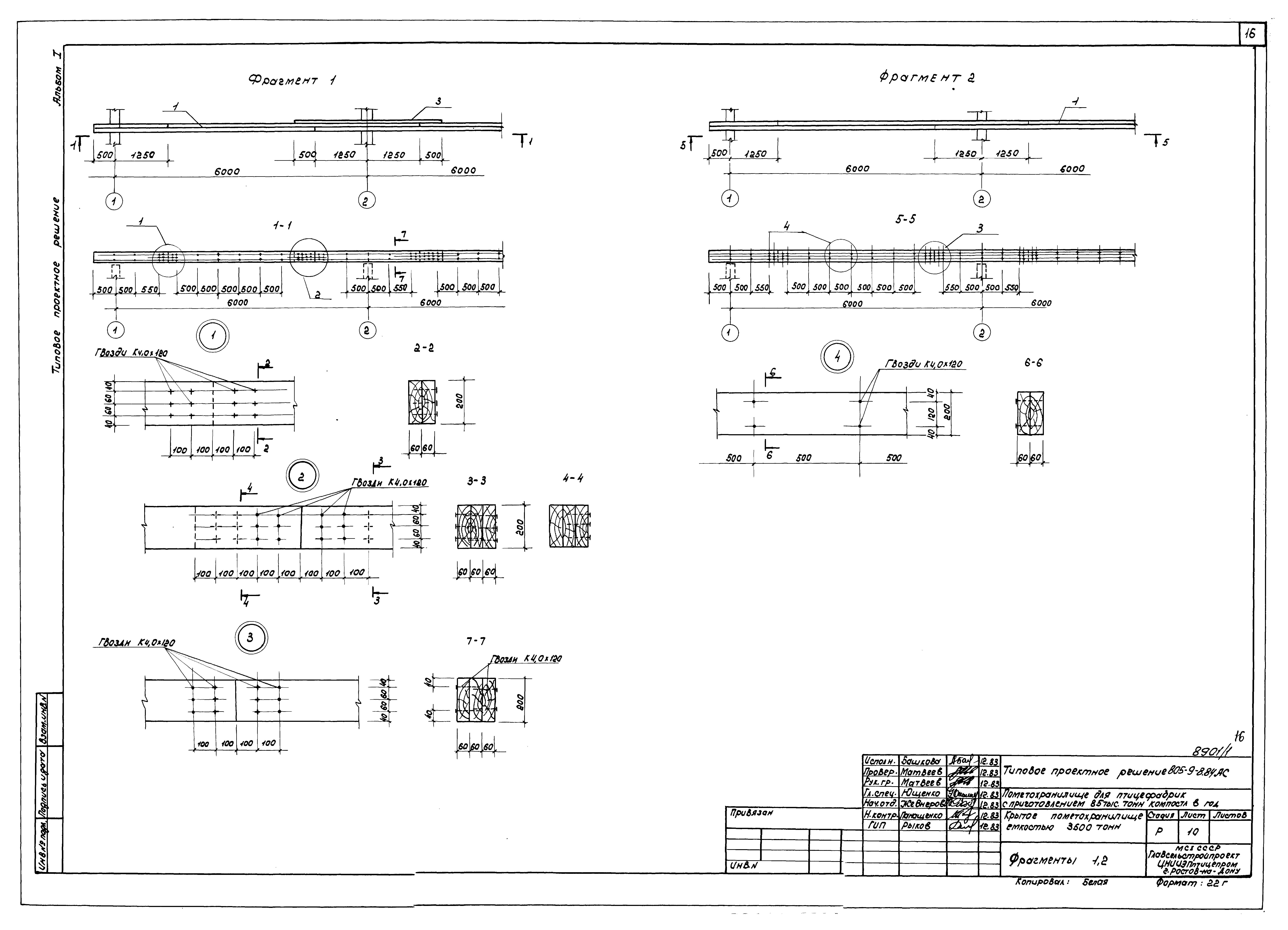
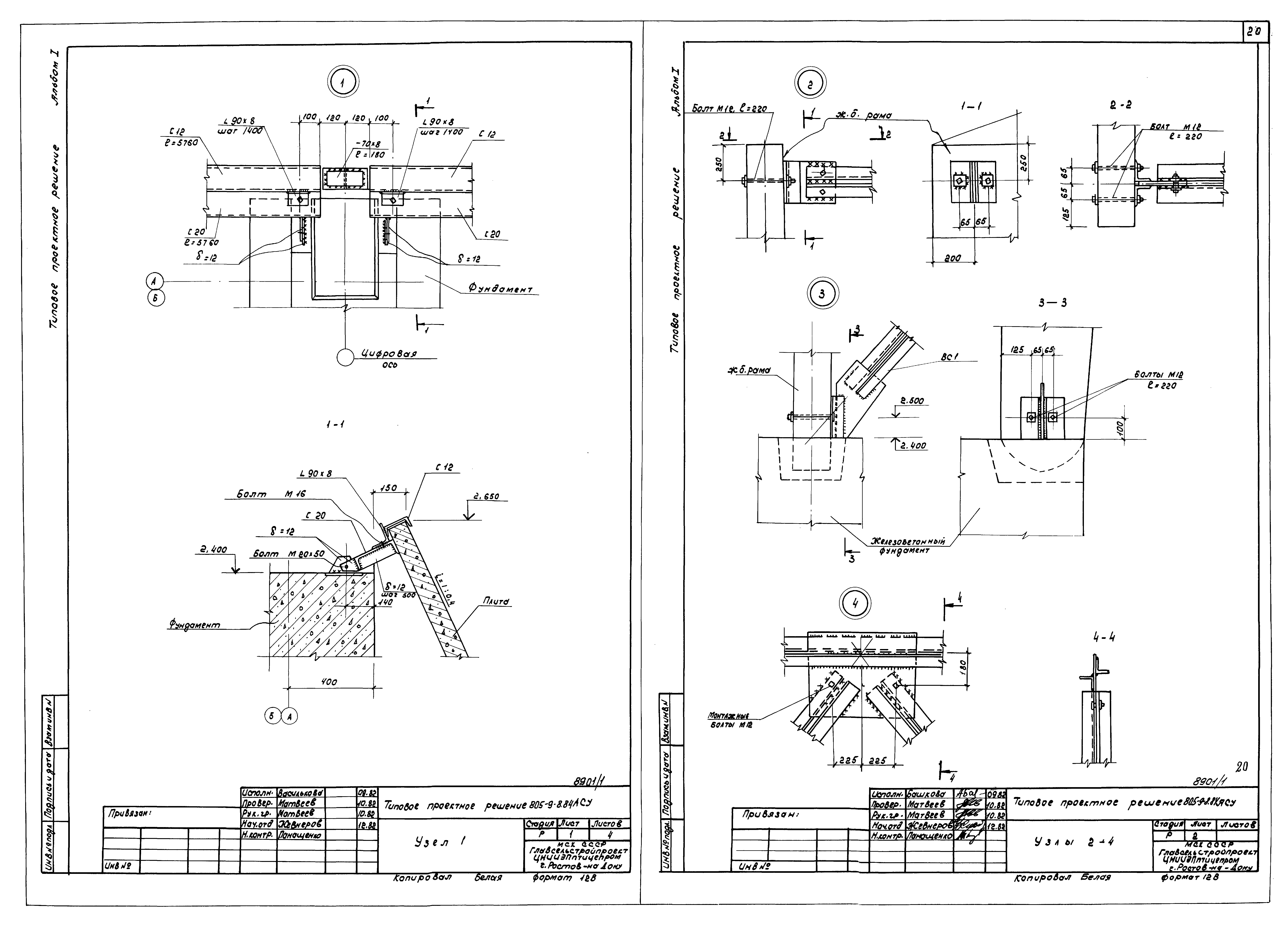
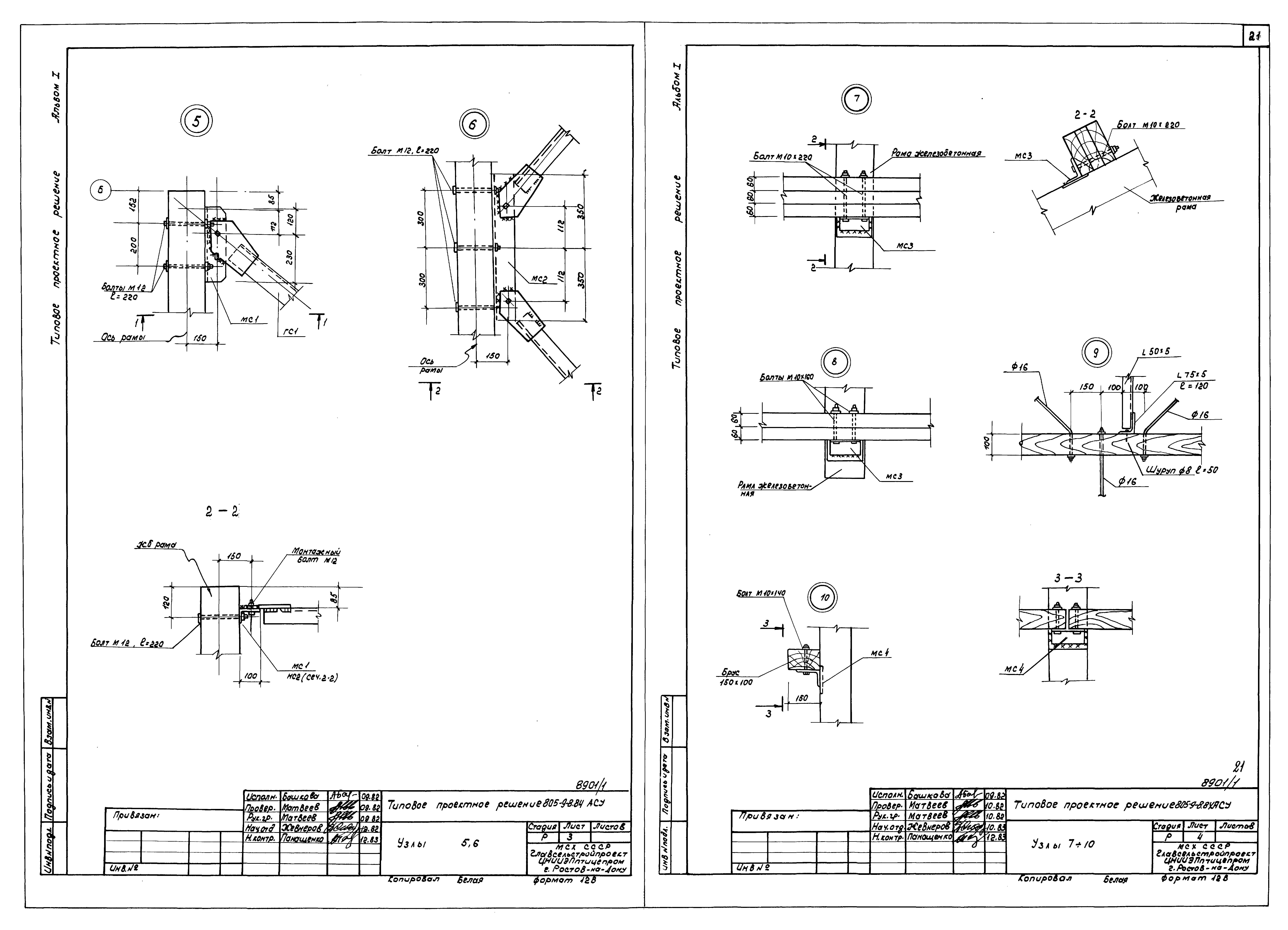
| Оглавление: | Общая пояснительная записка Чертежи основного комплекта марки АС Крытое пометохранилище емкостью 3500тн Общие данные Схема расположения элементов фундаментов и стен траншеи План на отм. 0.000. Разрезы 1-1 - 3-3. Вид 4-4 Фасады. План кровли Схемы расположения асбестоцементных листов кровли и стен Схема расположения рам и связей Техническая спецификация металла Схемы расположения прогонов покрытия и прогонов стеновых ограждений Фрагменты 1, 2 Площадка для приготовления компоста План на отм. 0.000 Площадка для хранения компостирующего материала План на отм. 0.000 Фрагмент плана 1 Ведомость чертежей комплекта АСУ Узел 1 Узлы 2 - 4 Узлы 5 - 6 Узлы 7 - 10 Ведомость чертежей комплекта АСИ Полурамы ПР18-1-1а; ПР18-1-1б, ПР18-1-1в Фундамент Ф18-15-1а Вертикальная связь ВС1 Горизонтальная связь ГС1 Плита ПС1 Сетка арматурная С1 Каркас плоский Кр1 Петли П1, П2 Изделие закладное МН1 Изделие соединительное МС1 Изделие соединительное МС2 Изделие соединительное МС3, МС4 Изделие соединительное МС5 |
| Разработан: | ЦНИИЭПптицепром Минсельхоза СССР |
| Утверждён: | 06.09.1983 Министерство сельского хозяйства СССР (USSR Ministry of Agriculture 86) |
| Издан: | ЦИТП Госстроя СССР (CITP, Gosstroy (USSR) 1988 г. ) |


























