Скачать Типовой проект 807-10-117.87 Альбом I. Пояснительная записка. Технология производства. Архитектурные решения. Конструкции железобетонные. Внутренние водопровод и канализация. Отопление и вентиляция. Электроосвещение и силовое электрооборудование. Автоматизация систем отопления и вентиляцияДата актуализации: 01.01.2021
|
| Обозначение: | Типовой проект 807-10-117.87 |
| Обозначение англ: | 807-10-117.87 |
| Статус: | не определен законодательством |
| Название рус.: | Альбом I. Пояснительная записка. Технология производства. Архитектурные решения. Конструкции железобетонные. Внутренние водопровод и канализация. Отопление и вентиляция. Электроосвещение и силовое электрооборудование. Автоматизация систем отопления и вентиляция |
| Дата добавления в базу: | 01.09.2013 |
| Дата актуализации: | 01.01.2021 |
| Дата введения: | 12.10.1987 |
| Дата окончания срока действия: | 30.06.2003 |
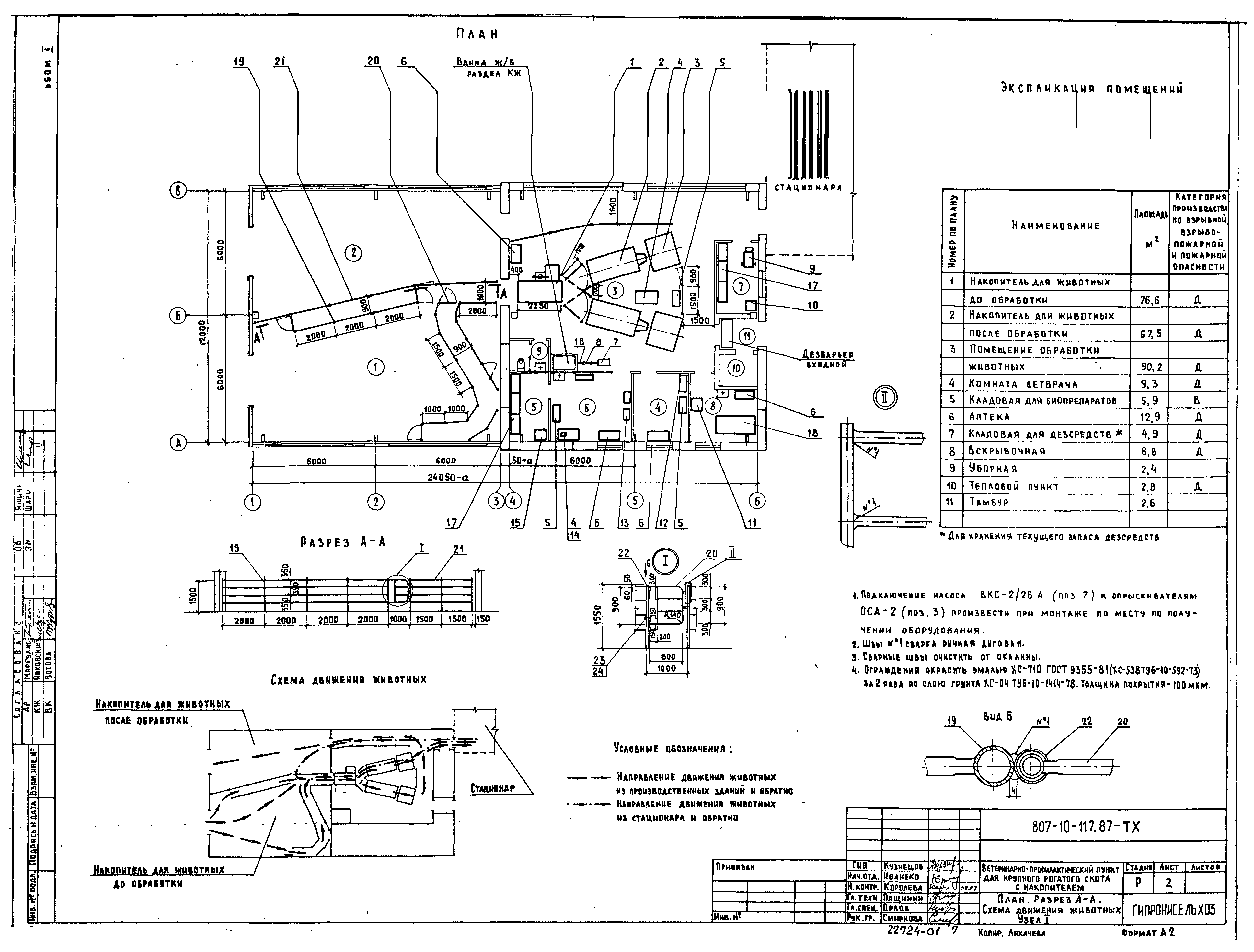
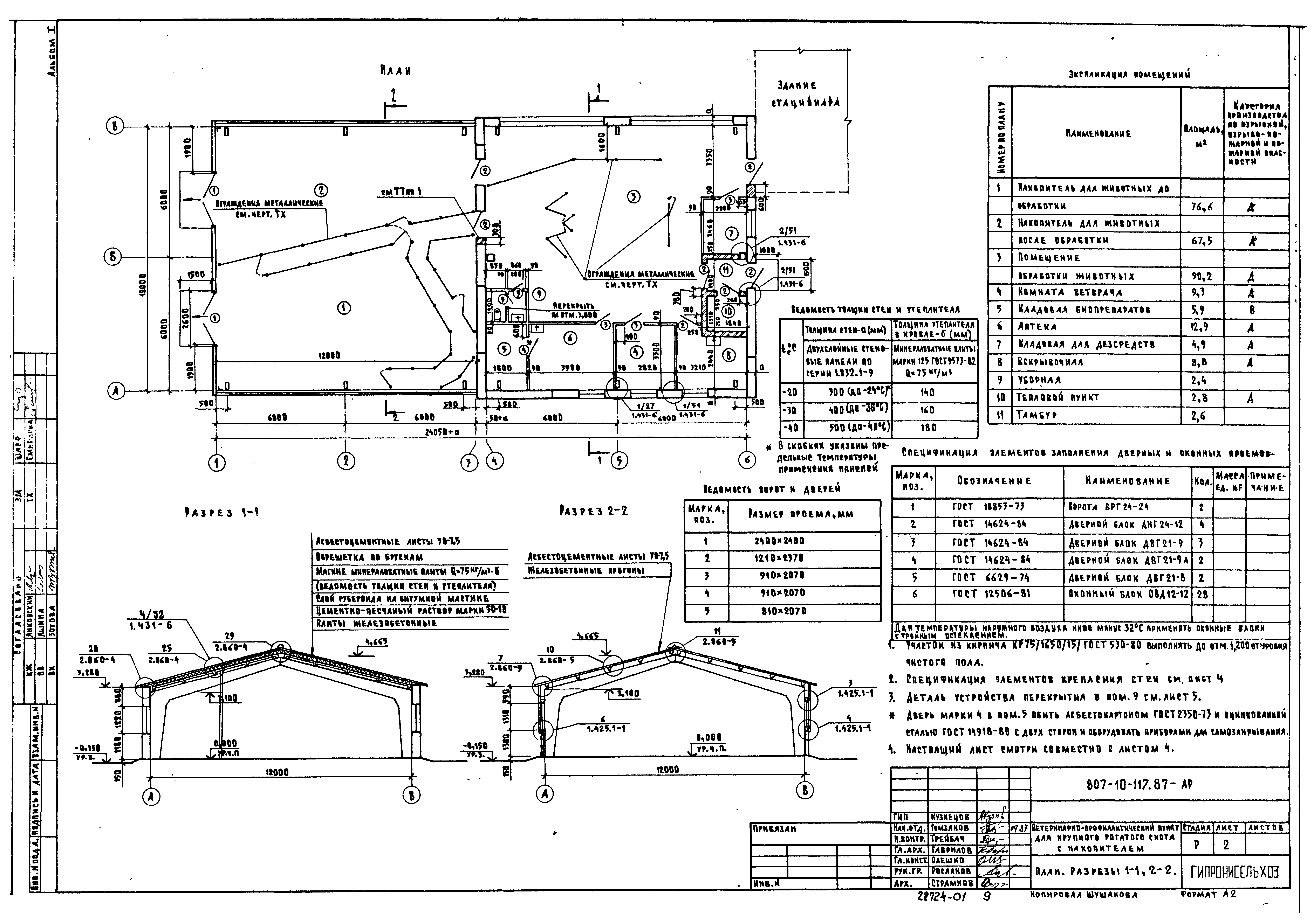
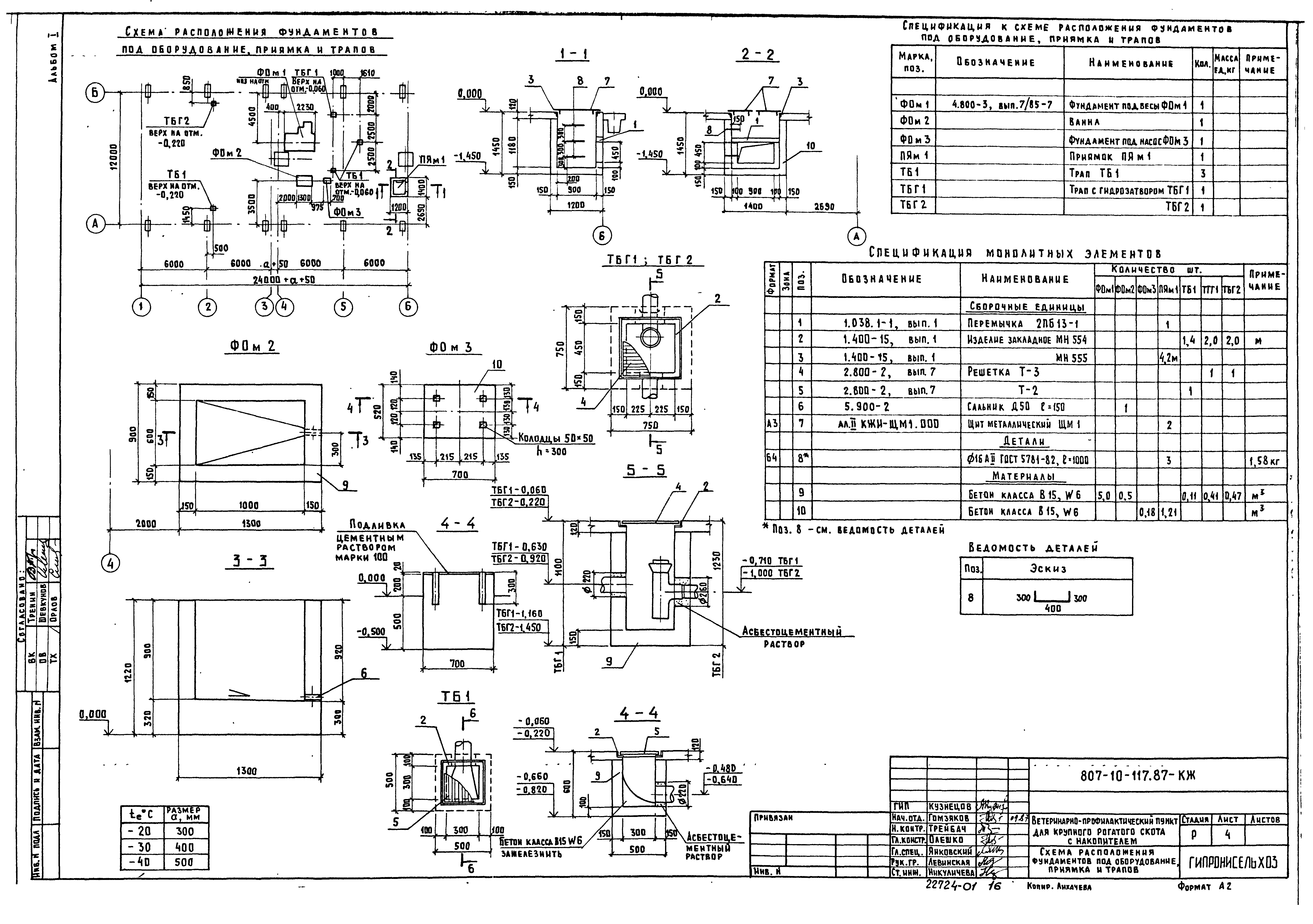
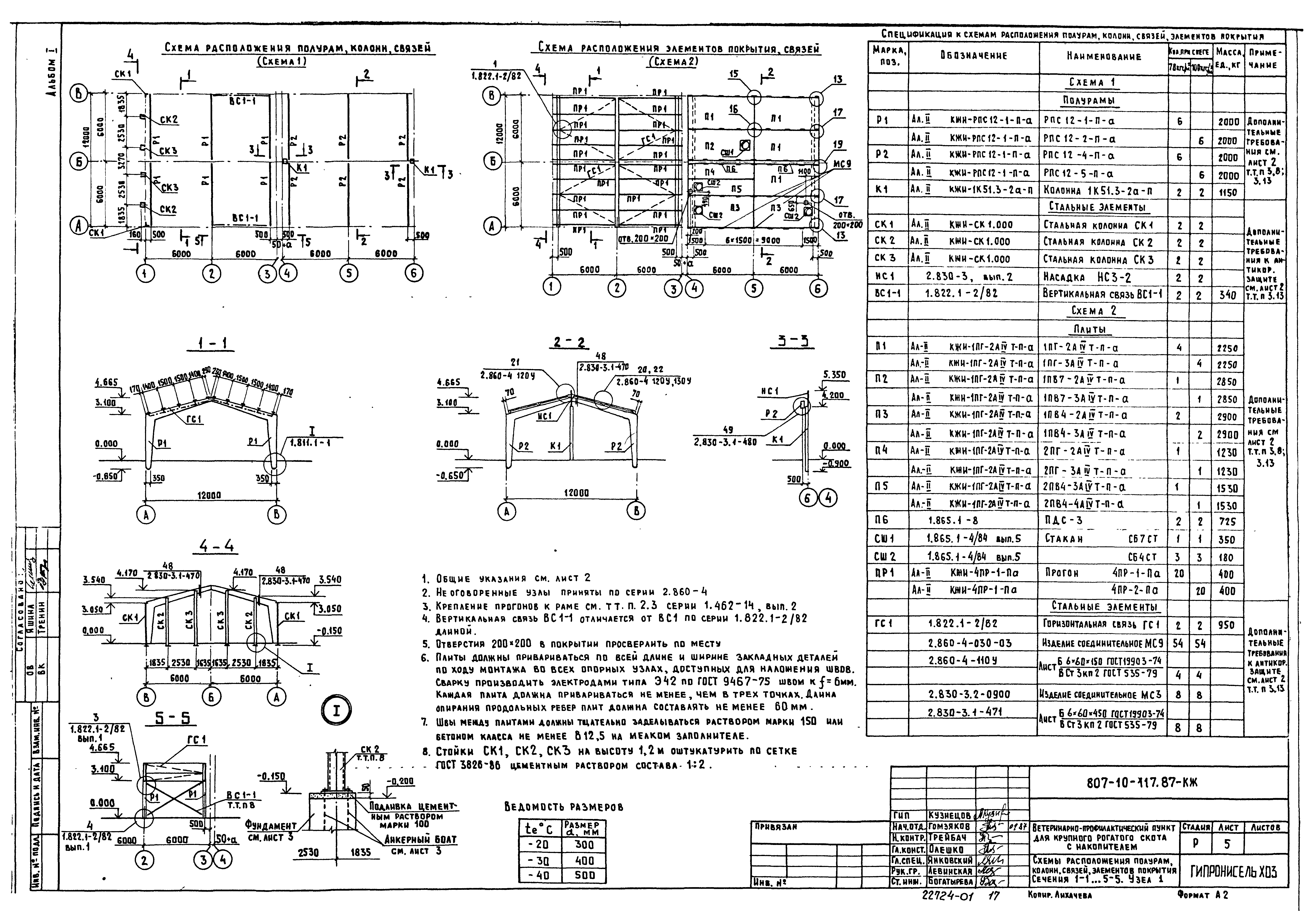
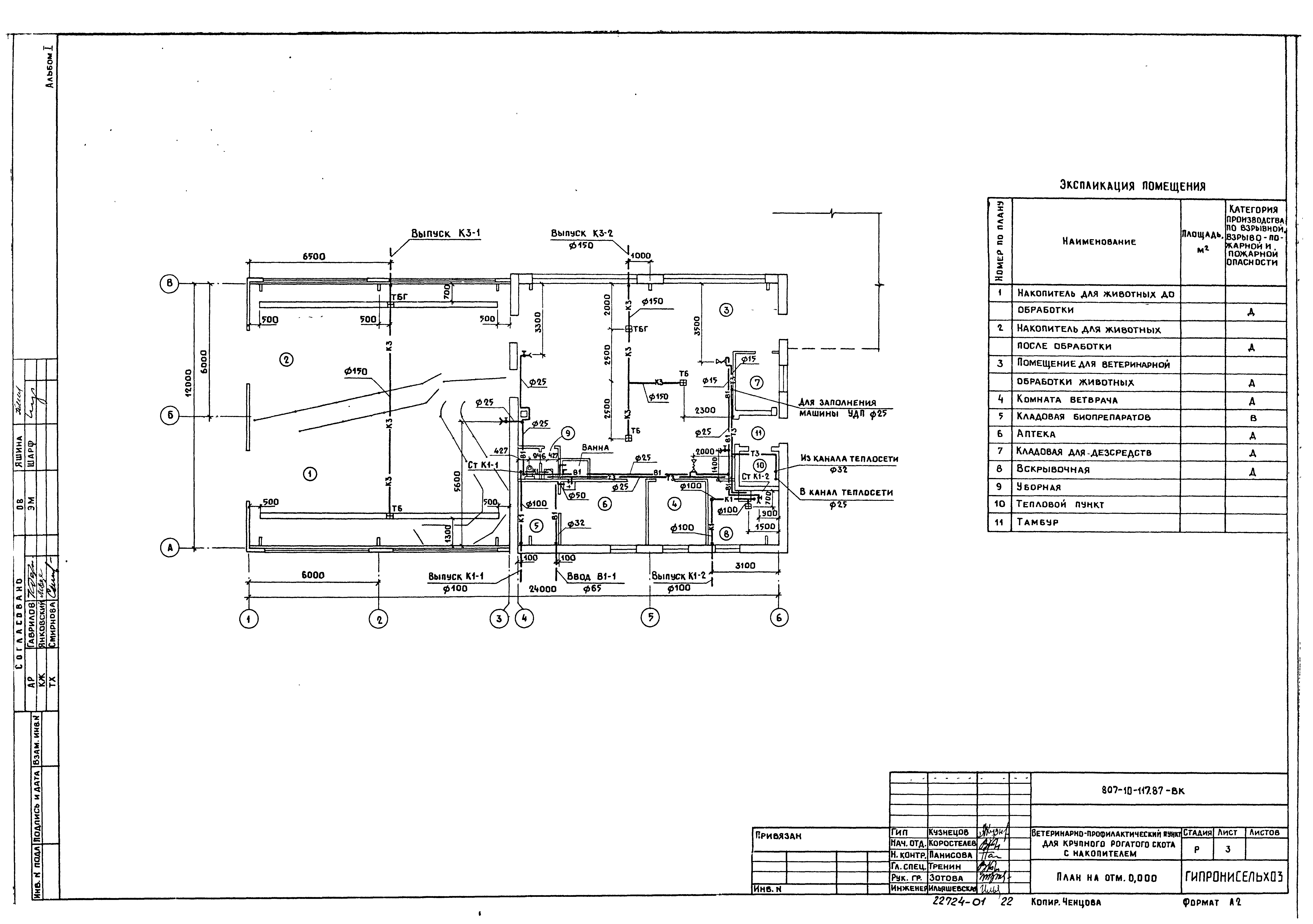
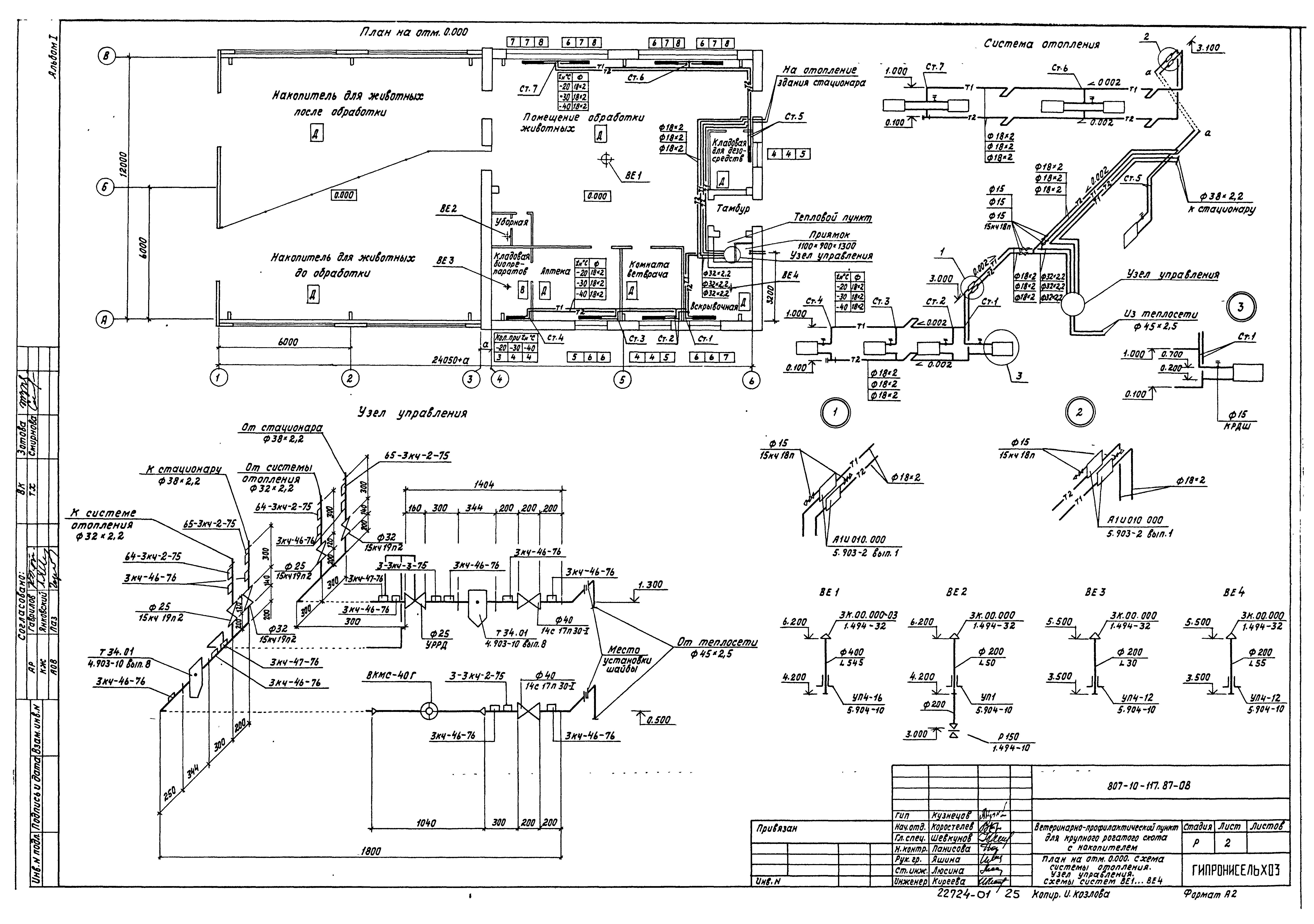
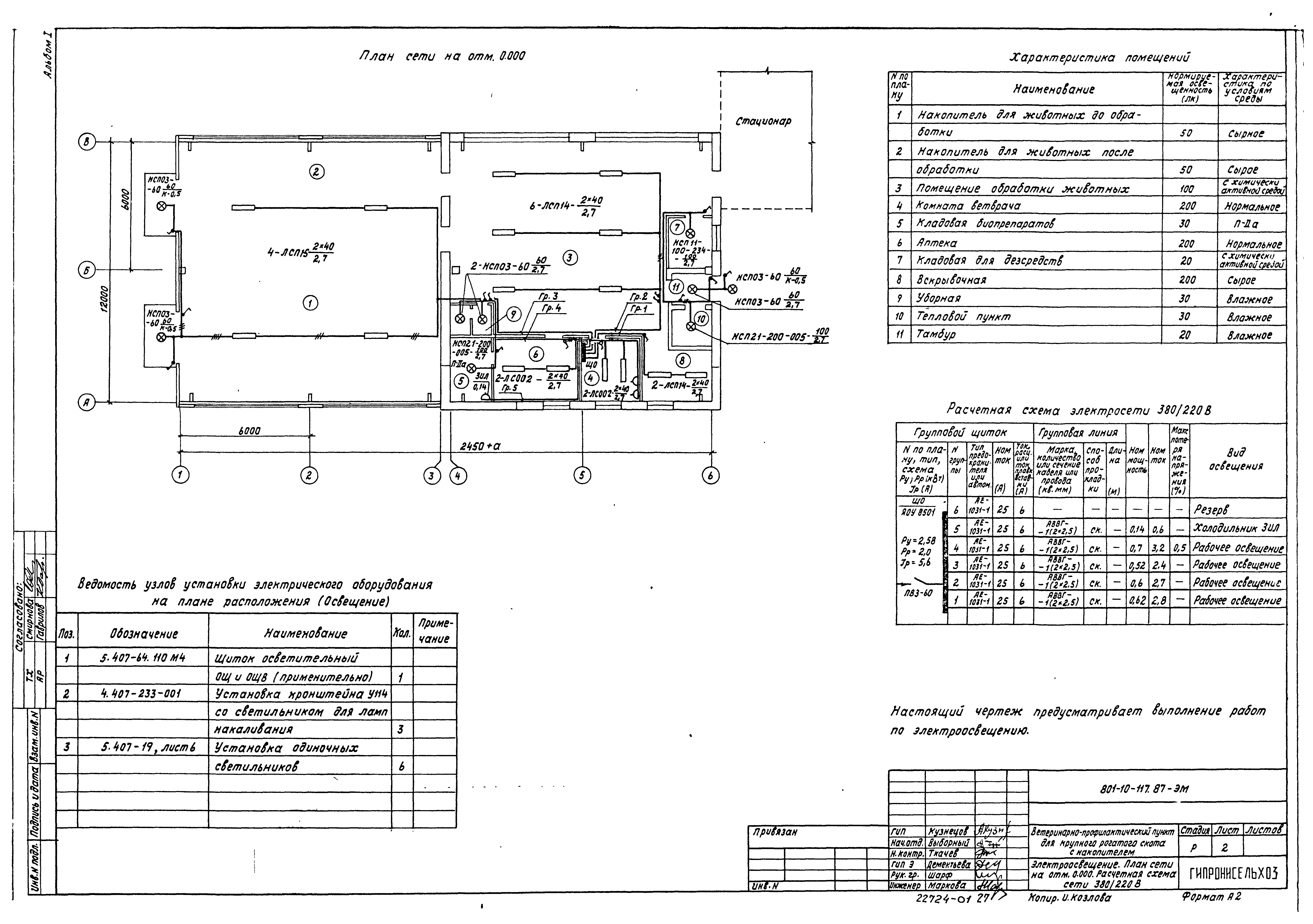
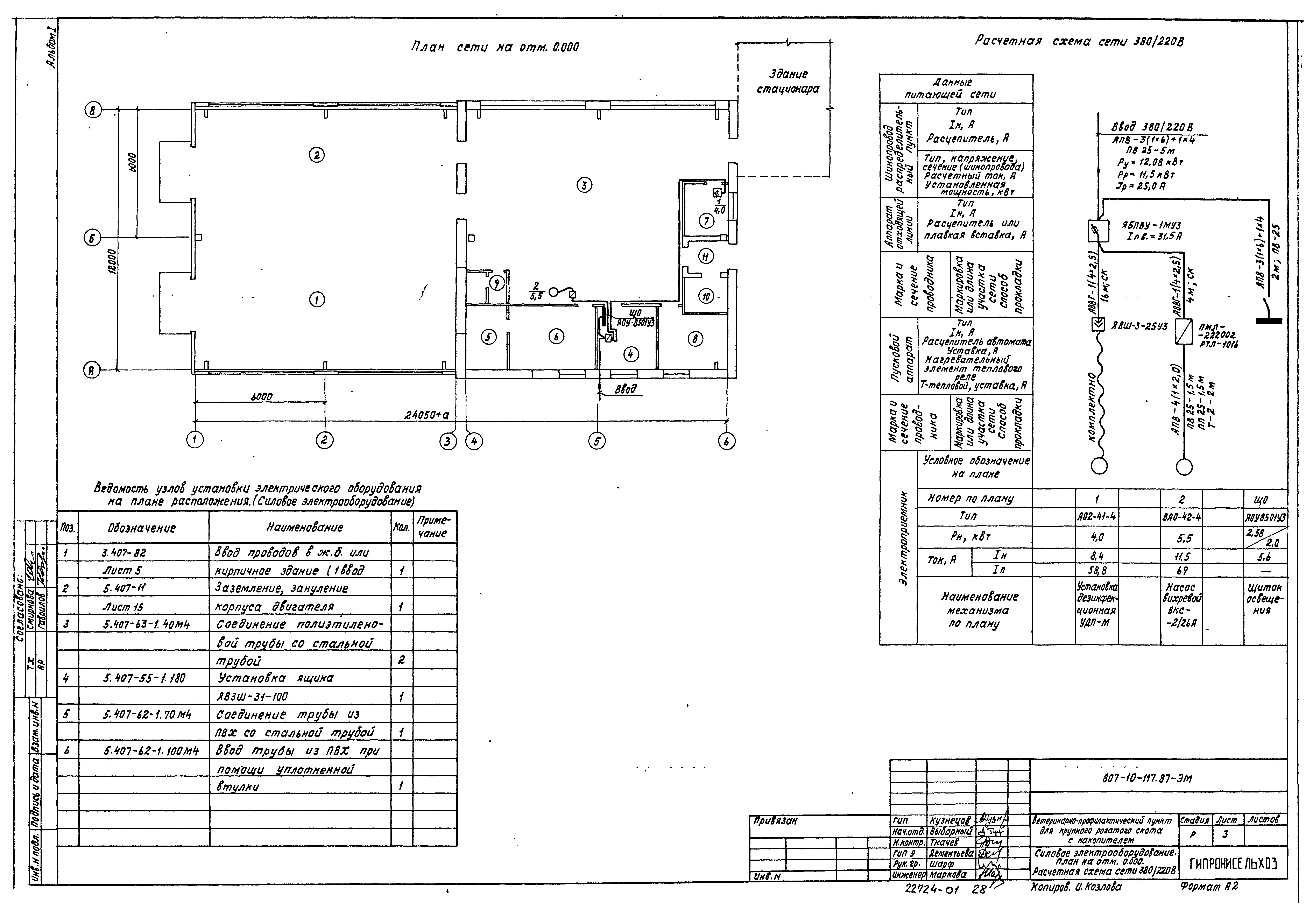
| Оглавление: | Содержание Пояснительная записка Основной комплект рабочих чертежей марки ГТ Схема стройгенплана Основной комплект рабочих чертежей марки ТХ Общие данные План. Разрез А-А. Схема движения животных. Узел I Основной комплект рабочих чертежей марки АР Общие данные План. Разрезы 1-1, 2-2 Фасады План полов, перемычек и отверстий в стенах и перегородках План кровли Основной комплект рабочих чертежей марки КЖ Общие данные Схема расположения элементов фундаментов Схема расположения фундаментов под оборудование, приямка и трапов Схема расположения полурам, колонн, связей, элементов покрытия. Сечения 1-1…5-5. Узел 1 Схемы расположения элементов стен по осям А, В, Б, 4, 1. Фрагменты 1…3. Узлы I…V Спецификация к схемам расположения элементов стен Основной комплект рабочих чертежей марки ВК Общие данные План на отм. 0.000 Схемы систем В1, Т3, Т4, К1, К3 Основной комплект рабочих чертежей марки ОВ Общие данные План на отм. 0.000. Схема системы отопления. Узел управления. Схемы систем ВЕ1…ВЕ4 Основной комплект рабочих чертежей марки ЭМ Общие данные Электроосвещение. План сети на отм. 0.000. Расчетная схема сети 380/220 В Силовое электрооборудование. План на отм. 0.000. Расчетная схема сети 380/220 В Основной комплект рабочих чертежей марки АОВ Узел управления. Общие данные. Схема автоматизации |
| Разработан: | ГипроНИсельхоз (Институт Гипронисельхоз ) |
| Утверждён: | 12.10.1987 Гипронисельхоз (Giproniselkhoz 214-П) |
| Издан: | ЦИТП Госстроя СССР (CITP, Gosstroy (USSR) 1988 г. ) |



























