Скачать Типовой проект 407-1-90.85 Альбом I. Общая пояснительная записка. Тепломеханическая часть. Электротехническая часть. Архитектурно-строительные решения. Отопление и вентиляция. Водопровод и канализация. Спецификации оборудованияДата актуализации: 01.01.2021
|
| Обозначение: | Типовой проект 407-1-90.85 |
| Обозначение англ: | 407-1-90.85 |
| Статус: | не определен законодательством |
| Название рус.: | Альбом I. Общая пояснительная записка. Тепломеханическая часть. Электротехническая часть. Архитектурно-строительные решения. Отопление и вентиляция. Водопровод и канализация. Спецификации оборудования |
| Дата добавления в базу: | 01.09.2013 |
| Дата актуализации: | 01.01.2021 |
| Дата введения: | 28.12.1984 |
| Дата окончания срока действия: | 30.06.2003 |
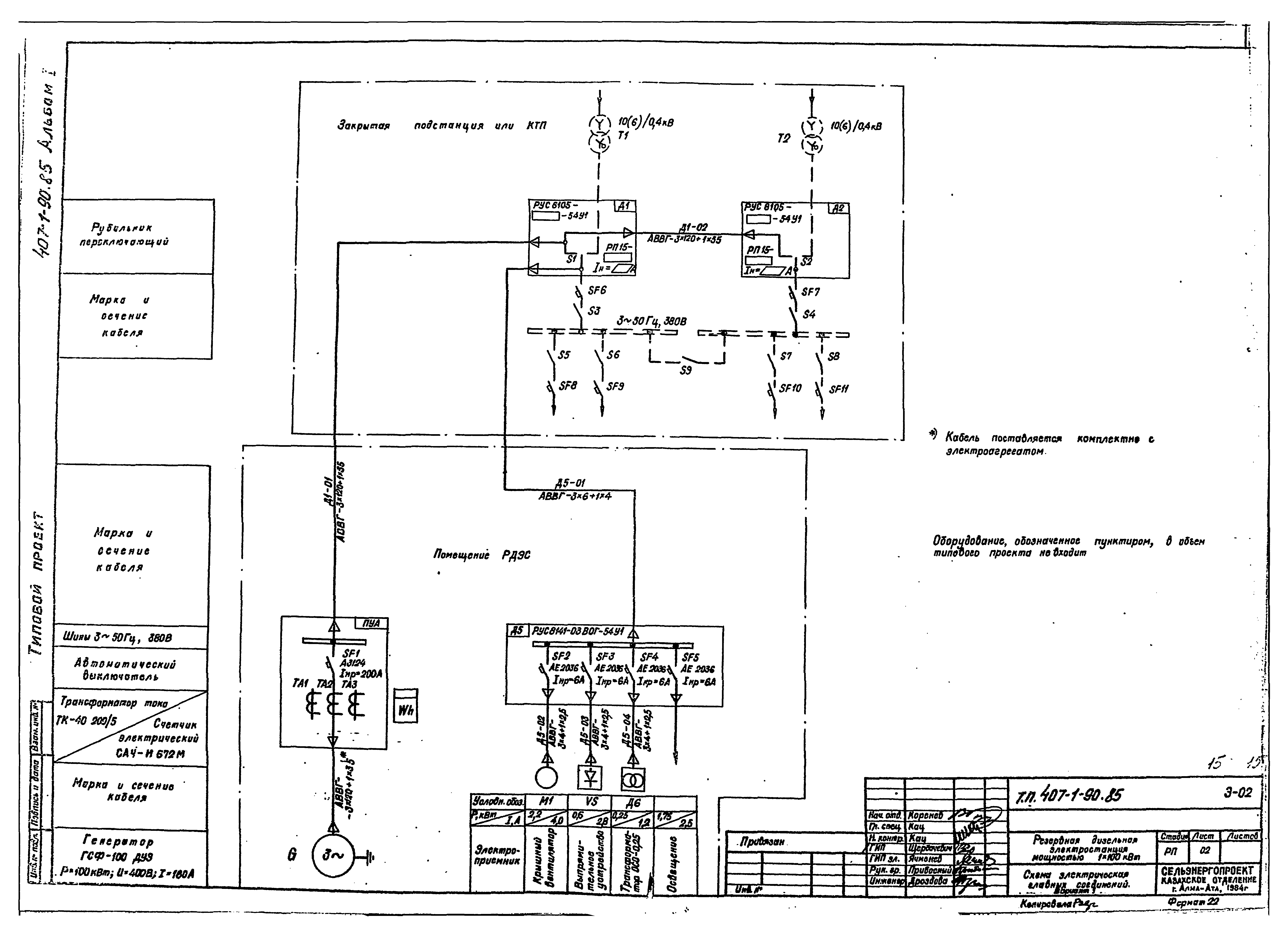
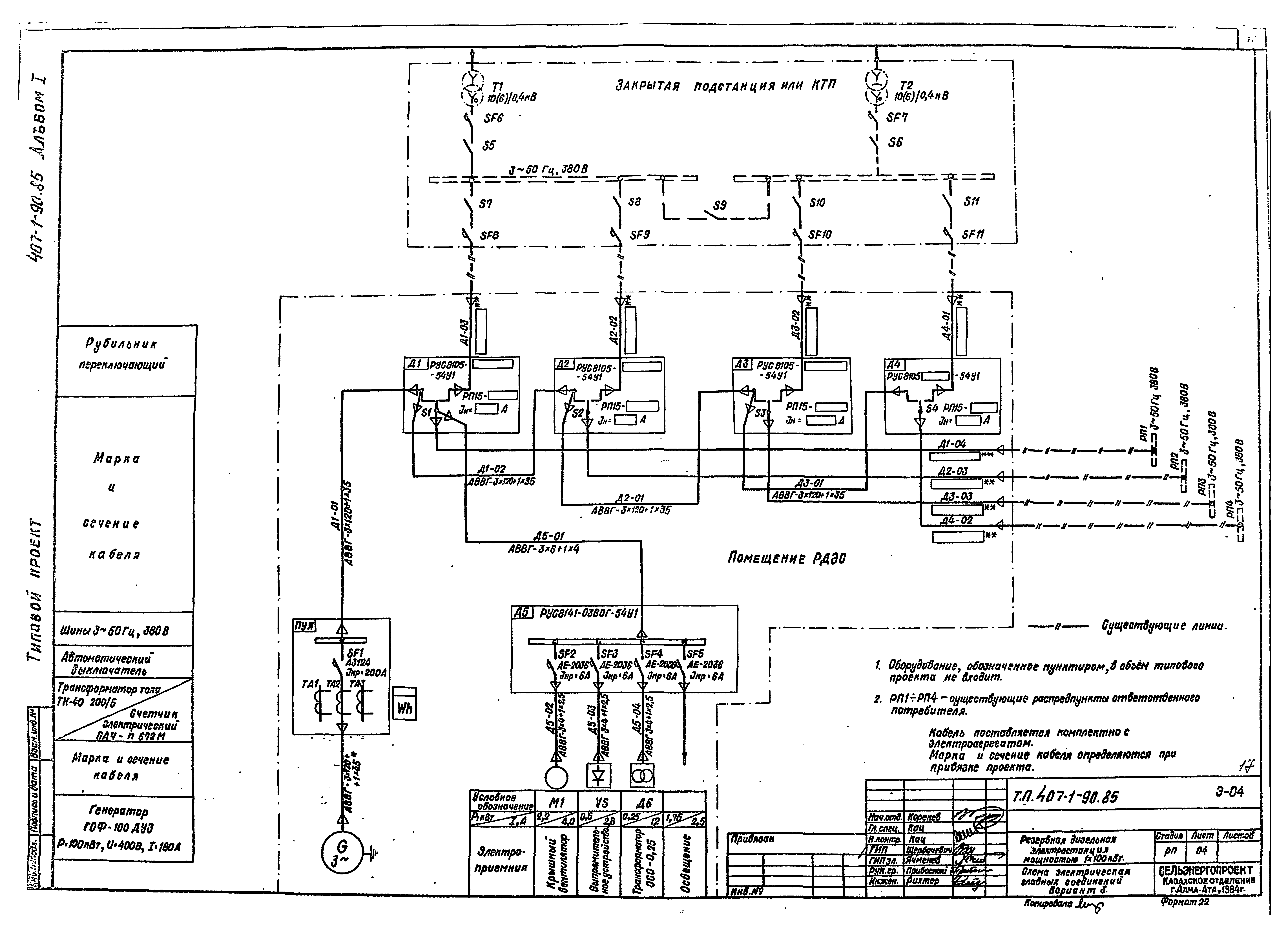
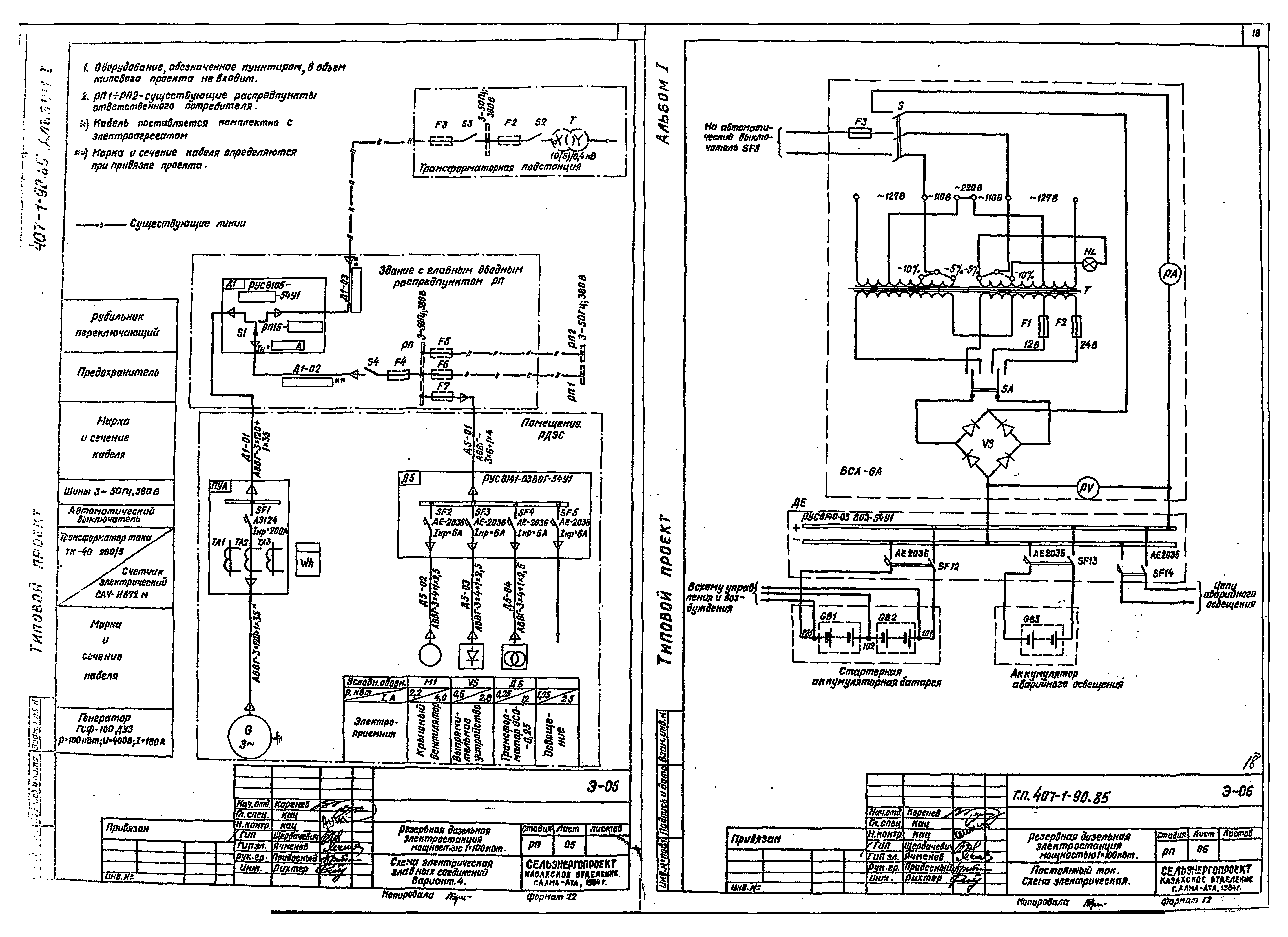
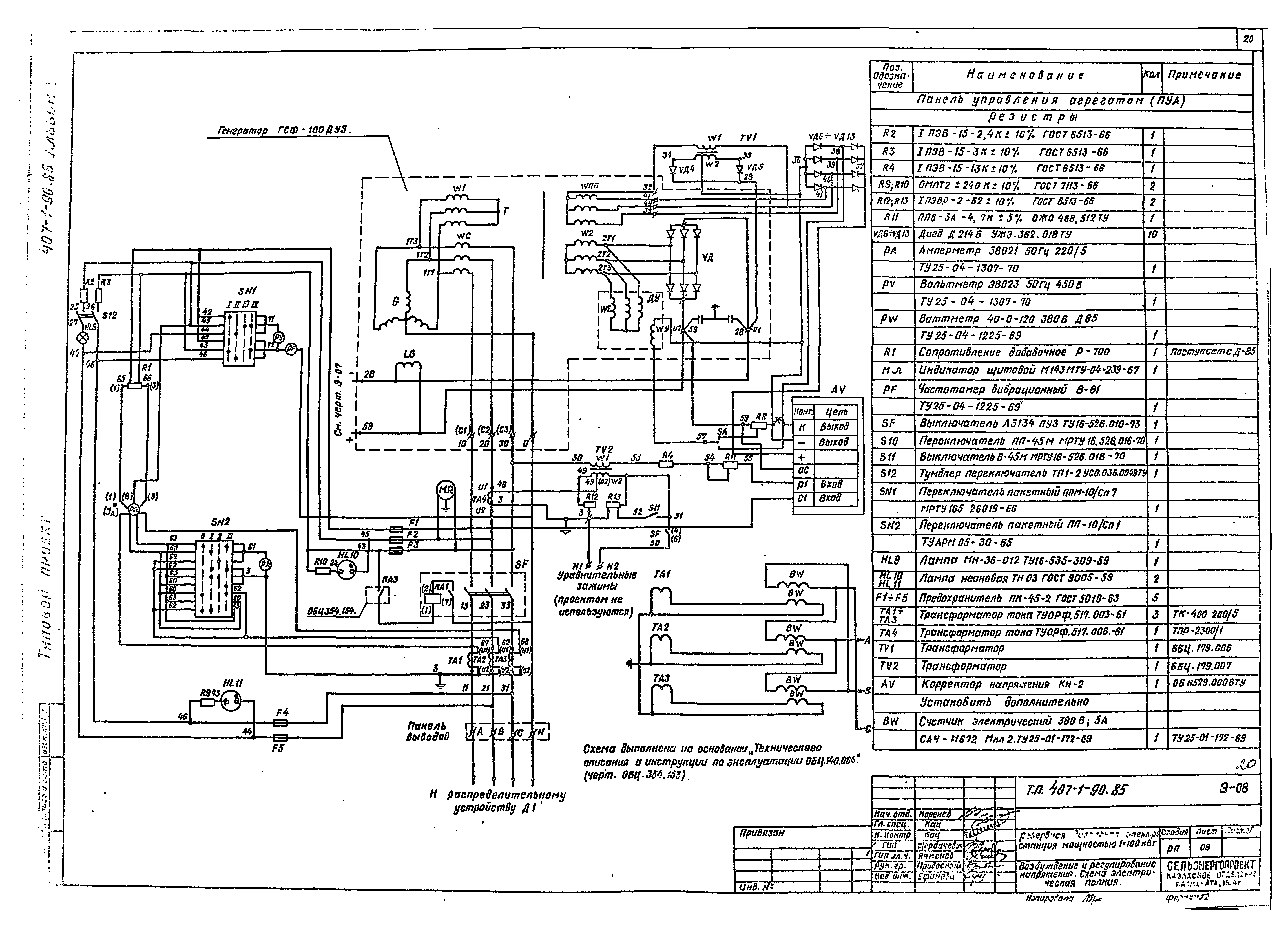
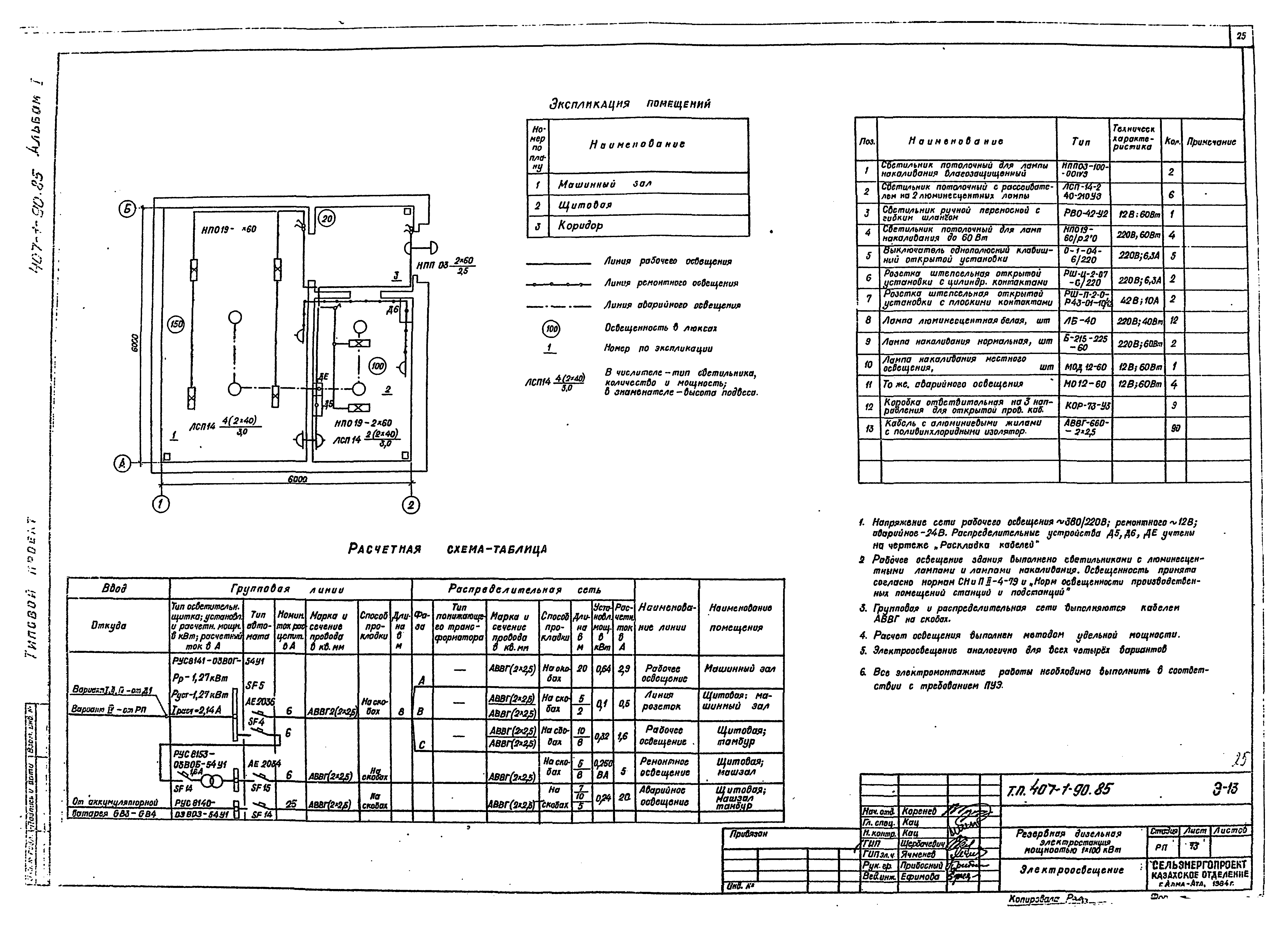
| Оглавление: | Содержание Общие данные. Общая пояснительная записка Чертежи основного комплекта ТХ Общие данные Компоновка оборудования Трубопровод газовыхлопа Опора глушителя-маслоотделителя Кронштейн для крепления ручного насоса "Родник" Глушитель-маслоотделитель Стальной колпак Стяжное кольцо Выхлопной трубопровод Стяжное кольцо Чертежи основного комплекта Э Общие данные Схема электрическая главных соединений. Вариант 1 Схема электрическая главных соединений. Вариант 2 Схема электрическая главных соединений. Вариант 3 Схема электрическая главных соединений. Вариант 4 Постоянный ток. Схема электрическая Автоматическое управление и сигнализация электроагрегата. Схема электрическая полная Возбуждение и регулирование напряжения. Схема электрическая полная Раскладка кабелей. Кабельный журнал. Вариант 1 Раскладка кабелей. Кабельный журнал. Вариант 2 Раскладка кабелей. Кабельный журнал. Вариант 3 Раскладка кабелей. Кабельный журнал. Вариант 4 Электроосвещение План магистрали заземления. Вариант 1 План магистрали заземления. Вариант 2 План магистрали заземления. Вариант 3 План магистрали заземления. Вариант 4 Чертежи основного комплекта АС Общие данные Каркасно-панельный вариант План на отм. 0.000. Разрезы 1-1, 2-2 Фасады 1 - 2; 2 - 1; А - Б; Б - А Схема расположения элементов фундаментов. Узлы Раскладка труб. Варианты 1 - 4. План полов. План кровли Схемы расположения колонн, балок и плит покрытия. Узел I Схемы расположения стеновых панелей. Узлы I - III Узлы IV - VIII. Узел крепления оконных переплетов к стеновым панелям Фундамент ФО-1 под электроагрегат Архитектурные узлы II - VI Колонна железобетонная СК2-33-2А Балка железобетонная 1БСТ6-4АIVТ-1 Панель длиной 6 м угловая ПСД60.12.25-УП-1 Панель длиной 6 м угловая ПСД60.9.25-УП-1 Плита покрытия шириной 3 м с отверстиями диаметром 400 и 700 мм 1ПВ7-5АIV7-1 Панель длиной 1,5 м угловая ПСД15.12.25-У-1 Панель длиной 1,5 м угловая ПСД15.12.25-УП-1 Закладная деталь М-2 Закладная деталь М-3 Закладная деталь М-4 Закладная деталь М-5 Закладная деталь М-6 Кирпичный вариант План на отм. 0.000. Разрезы 1-1, 2-2. Фасады План фундаментов. Раскладка фундаментных блоков Схемы расположения плит покрытия опорных подушек, парапетных плит. План полов. План кровли Схемы расположения приямков. Раскладка труб. Варианты 1 - 4 Чертежи основного комплекта ОВ Общие данные Отопление и вентиляция. План, разрез, схема системы отопления Самооткрывающиеся клапаны для крышных вентиляторов ВКР№6,3. Пояснительная записка Клапан АЗЕ034.000-02 Корпус клапана АЗЕ034.010-02 Клапан. Сборочный чертеж АЗЕ034.000-02 Корпус клапана. Сборочный чертеж АЗЕ034.010-02 Полуось АЗЕ034.001 Болт АЗЕ034.002 Диск 034.003-02 Обечайка АЗЕ034.005-02 Противовес АЗЕ034.004-02 Втулка АЗЕ034.006 Упор АЗЕ034.007 Чертежи основного комплекта ВК Общие данные. Водоснабжение и канализация. План, схемы систем В1, К1, Т3 Спецификации оборудования |
| Разработан: | Сельэнергопроект Минэнерго СССР |
| Утверждён: | 19.09.1984 Минэнерго СССР (USSR Minenergo 37) |





























































