Скачать Руководство по проектированию интерьера зданий курортно-оздоровительных и туристских учрежденийДата актуализации: 01.01.2021 |
| Статус: | действует |
| Название рус.: | Руководство по проектированию интерьера зданий курортно-оздоровительных и туристских учреждений |
| Дата добавления в базу: | 01.09.2013 |
| Дата актуализации: | 01.01.2021 |
| Область применения: | В руководстве приведены основные принципы формирования интерьера рекреационных учреждений и тенденции его развития. Интерьер основных групп помещений рассматривается с точки зрения архитектурно-планировочных особенностей, оборудования, приемов искусственного освещения, цветового решения, применяемых отделочных материалов. Руководство предназначено для специалистов в области проектирования, строительства и эксплуатации курортно-оздоровительных и туристских учреждений. |
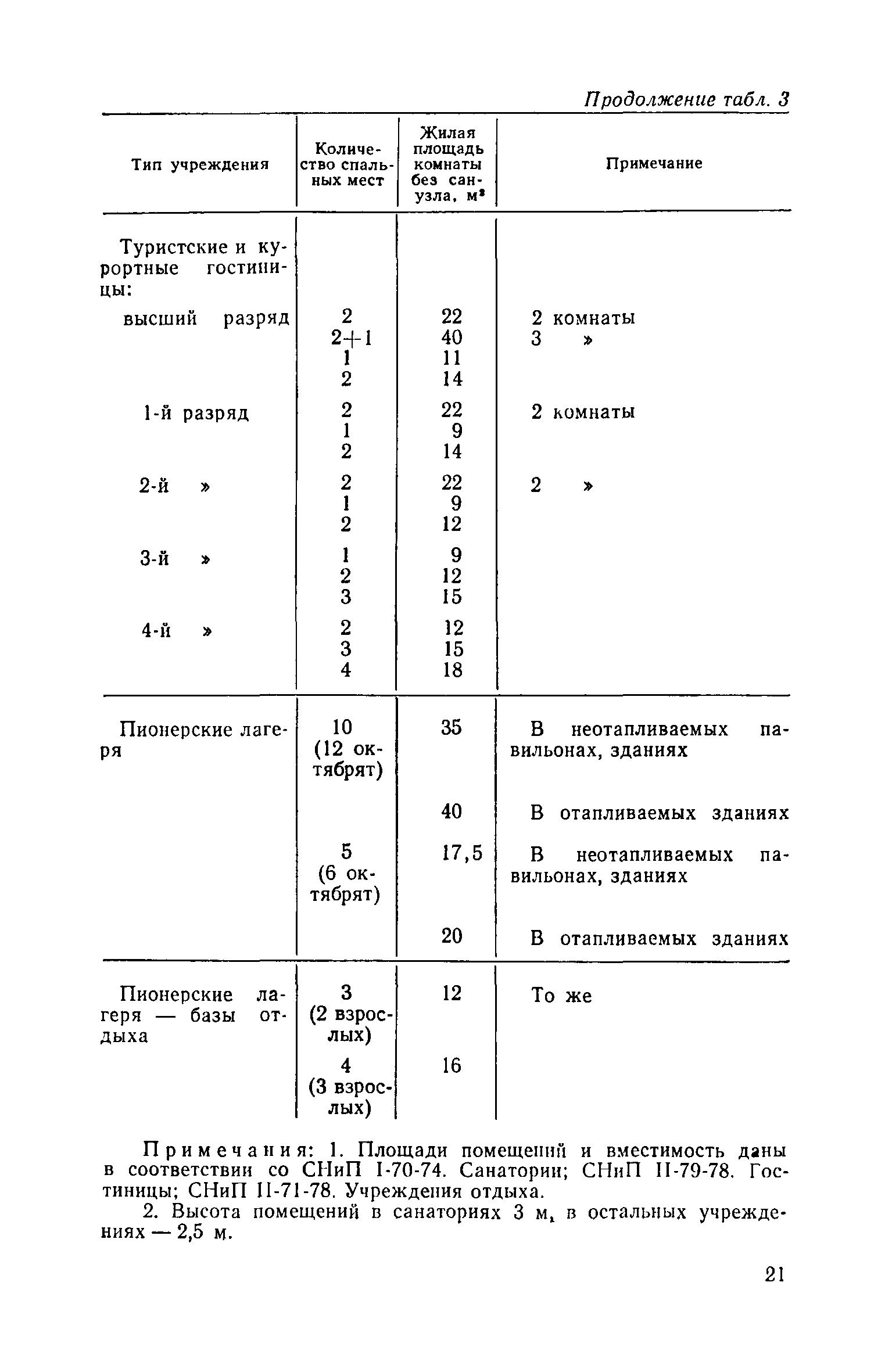
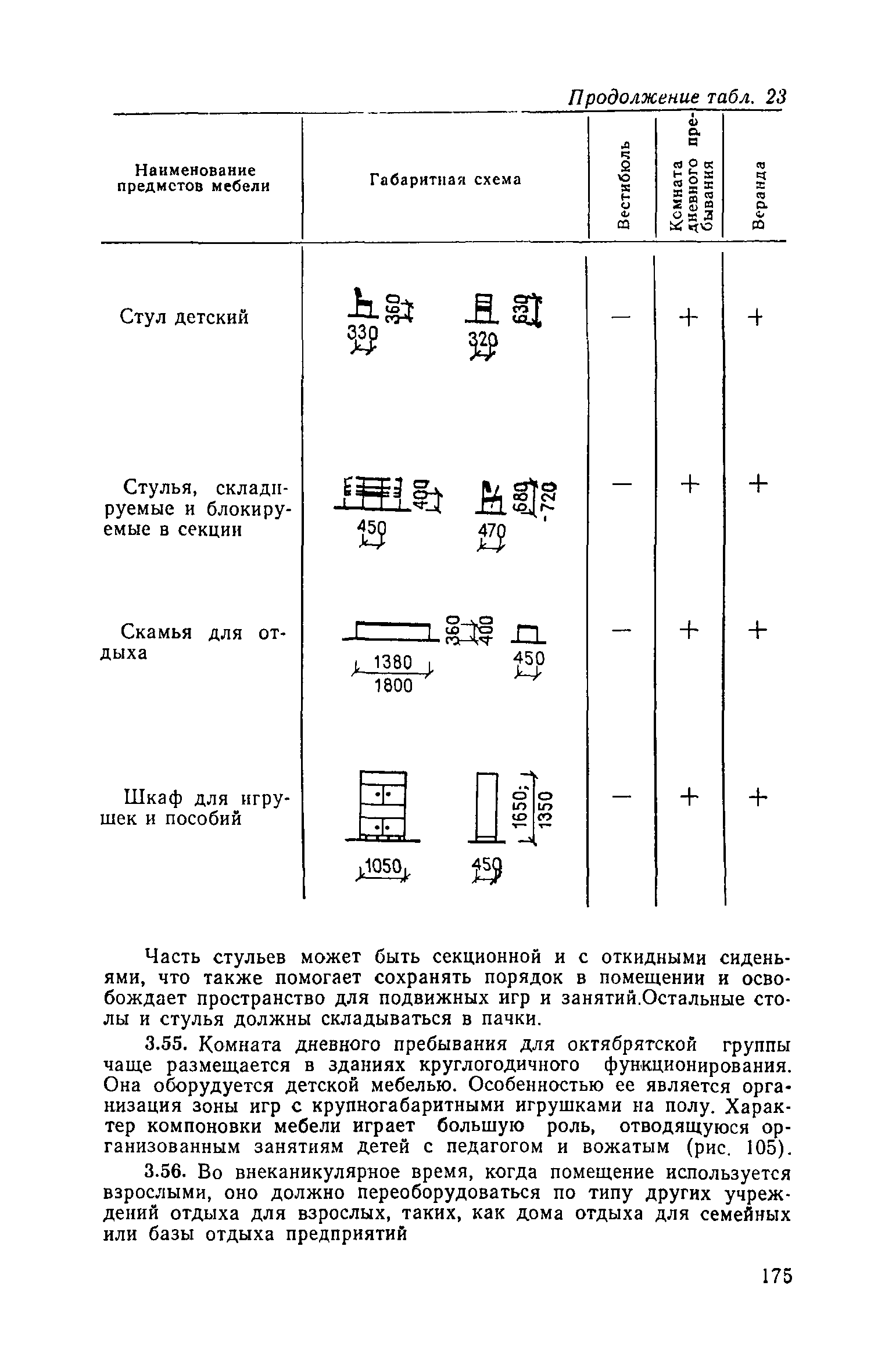
| Оглавление: | 1. Основные принципы формирования интерьера рекреационных учреждений 2. Жилые ячейки Спальные помещения Архитектурно-планировочные особенности спальных помещений Мебель и оборудование Приемы искусственного освещения и осветительные приборы Цветовое решение Отделочные материалы Примеры эталона интерьера спальной комнаты на два человека Санитарные узлы жилых ячеек Планировочные особенности Оборудование 3. Вестибюли, гостиные и холлы Вестибюли спальных корпусов санаториев, домов отдыха и пансионатов Архитектурно-планировочная организация вестибюлей Функциональное зонирование, оборудование и мебель Приемы искусственного освещения Цветовое решение Гостиные и холлы спальных корпусов санаториев, домов отдыха и пансионатов Архитектурно-планировочная организация Функциональное зонирование, оборудование и мебель Приемы искусственного освещения Цветовое решение Вестибюли и комнаты дневного пребывания пионерских лагерей Архитектурно-планировочная организация помещений Приемы искусственного освещения Цветовое решение Декоративно-прикладное изобразительное искусство в помещениях спальной группы пионерских лагерей 4. Обеденные залы Архитектурно-планировочная организация обеденных залов Функциональное зонирование, оборудование в мебель Светоцветовое решение Декоративно-художественное убранство Отделочные материалы 5. Помещения туристско-экскурсионного обслуживания Архитектурно-планировочная организация помещений Мебель и оборудование Приемы искусственного освещения Цветовое решение Отделочные материалы Список литературы |
| Разработан: | ЦНИИЭП лечебно-курортных зданий Госгражданстроя |
| Утверждён: | ЦНИИЭП лечебно-курортных зданий Госгражданстроя |
| Издан: | Стройиздат (1979 г. ) |
| Нормативные ссылки: |
|









































































































































































































































