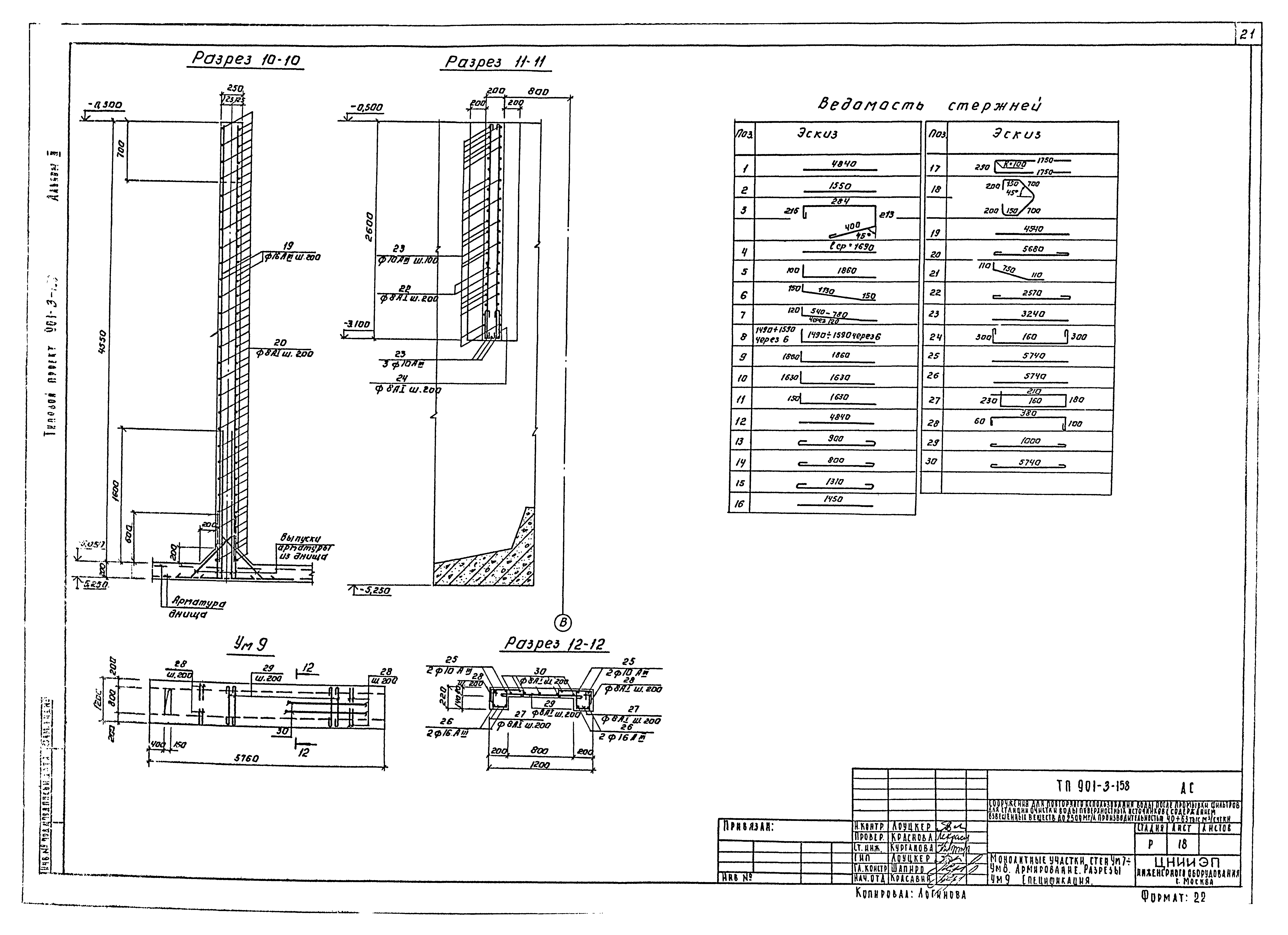
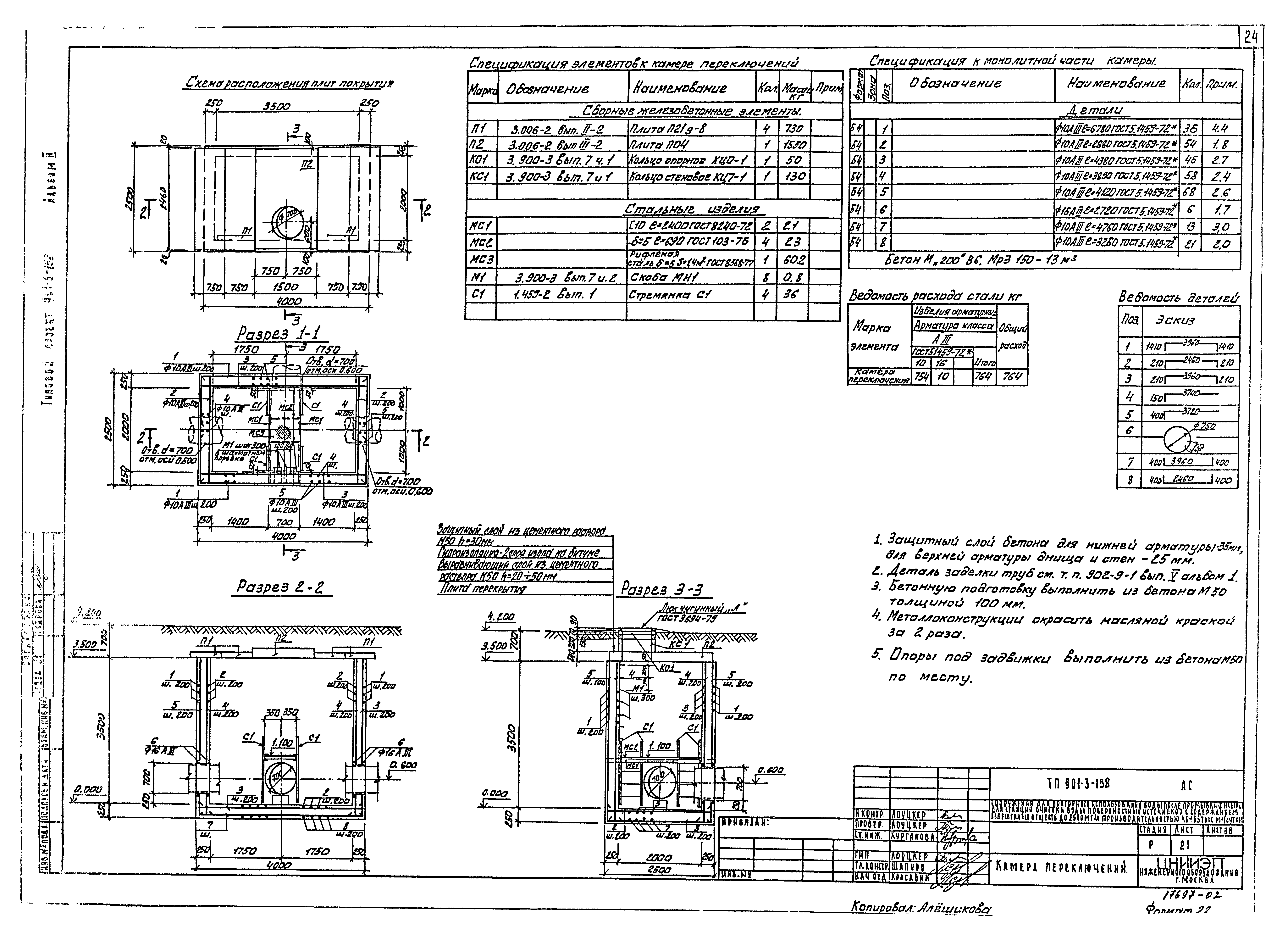
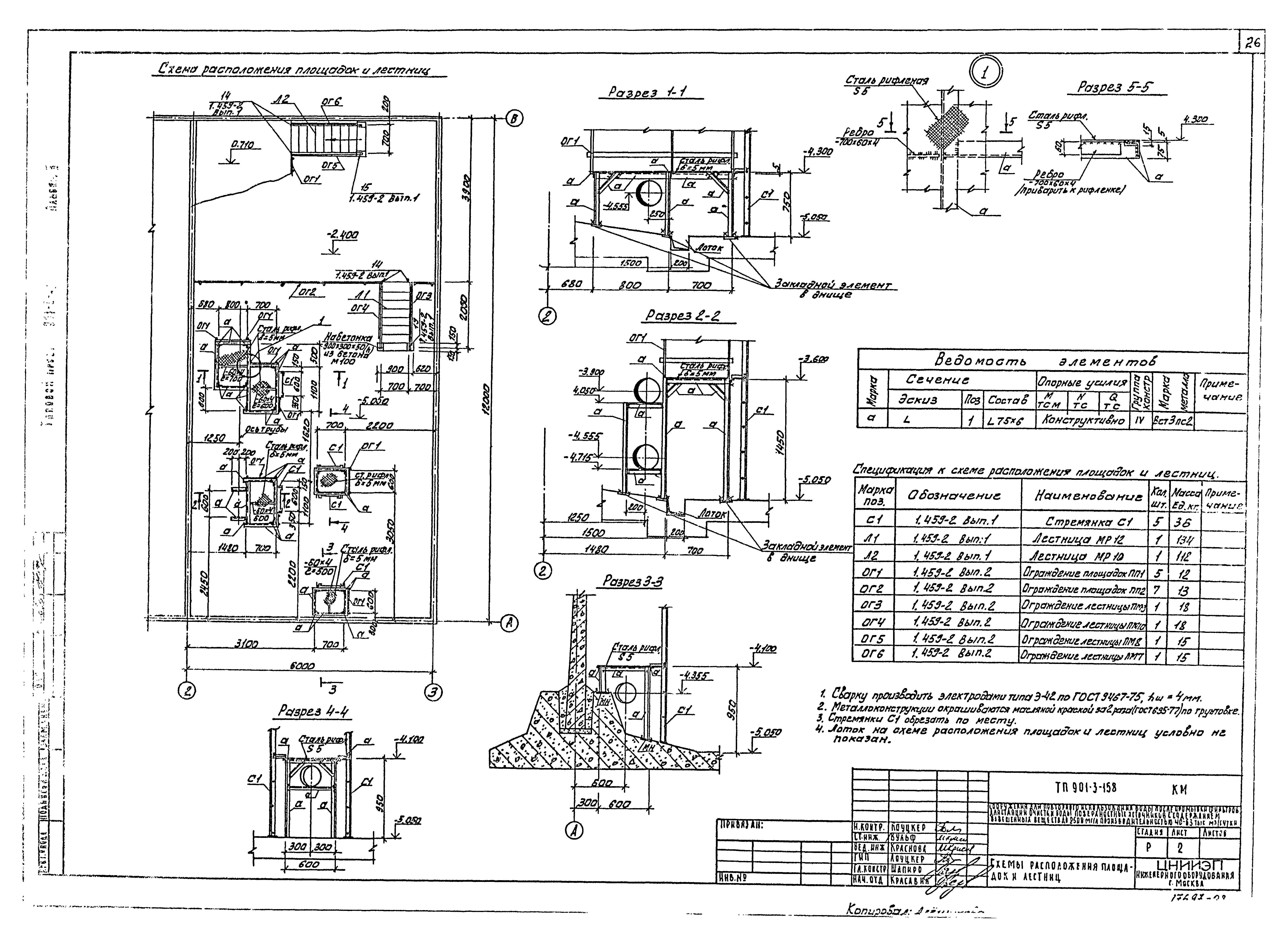
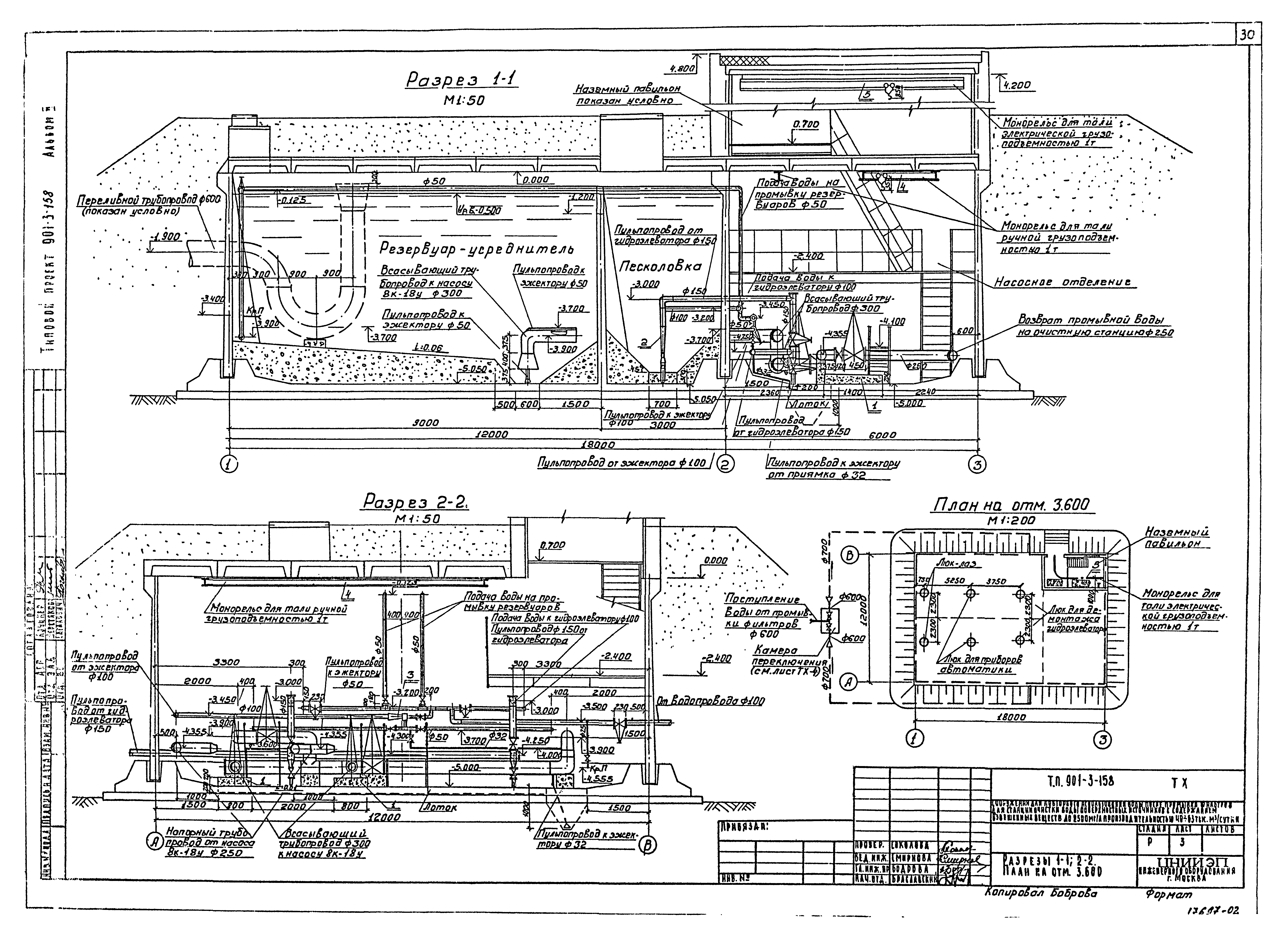
Скачать Типовой проект 901-3-158 Альбом II. Архитектурно-строительные решения, технологическая, электротехническая и другие частиДата актуализации: 01.01.2021 Типовой проект 901-3-158
Альбом II. Архитектурно-строительные решения, технологическая, электротехническая и другие части| Обозначение: | Типовой проект 901-3-158 | | Обозначение англ: | 901-3-158 | | Статус: | не определен законодательством | | Название рус.: | Альбом II. Архитектурно-строительные решения, технологическая, электротехническая и другие части | | Дата добавления в базу: | 01.02.2017 | | Дата актуализации: | 01.01.2021 | | Дата введения: | 01.01.1982 | | Дата окончания срока действия: | 30.06.2003 | | Разработан: | ЦНИИЭП инженерного оборудования
| | Утверждён: | 06.05.1980 Госгражданстрой (Gosgrazhdanstroy 120)
| | Издан: | ЦИТП Госстроя СССР (CITP, Gosstroy (USSR) 1982 г. )
| | Заменяет собой: | |
                                                
|