Скачать Типовой проект 125-03 Часть 01. Раздел 01-1. Архитектурно-строительные чертежи ниже отм. 0.00. Здание с ленточными фундаментамиДата актуализации: 01.01.2021
|
| Обозначение: | Типовой проект 125-03 |
| Обозначение англ: | 125-03 |
| Статус: | действует |
| Название рус.: | Часть 01. Раздел 01-1. Архитектурно-строительные чертежи ниже отм. 0.00. Здание с ленточными фундаментами |
| Дата добавления в базу: | 01.09.2013 |
| Дата актуализации: | 01.01.2021 |
| Дата введения: | 06.09.1972 |
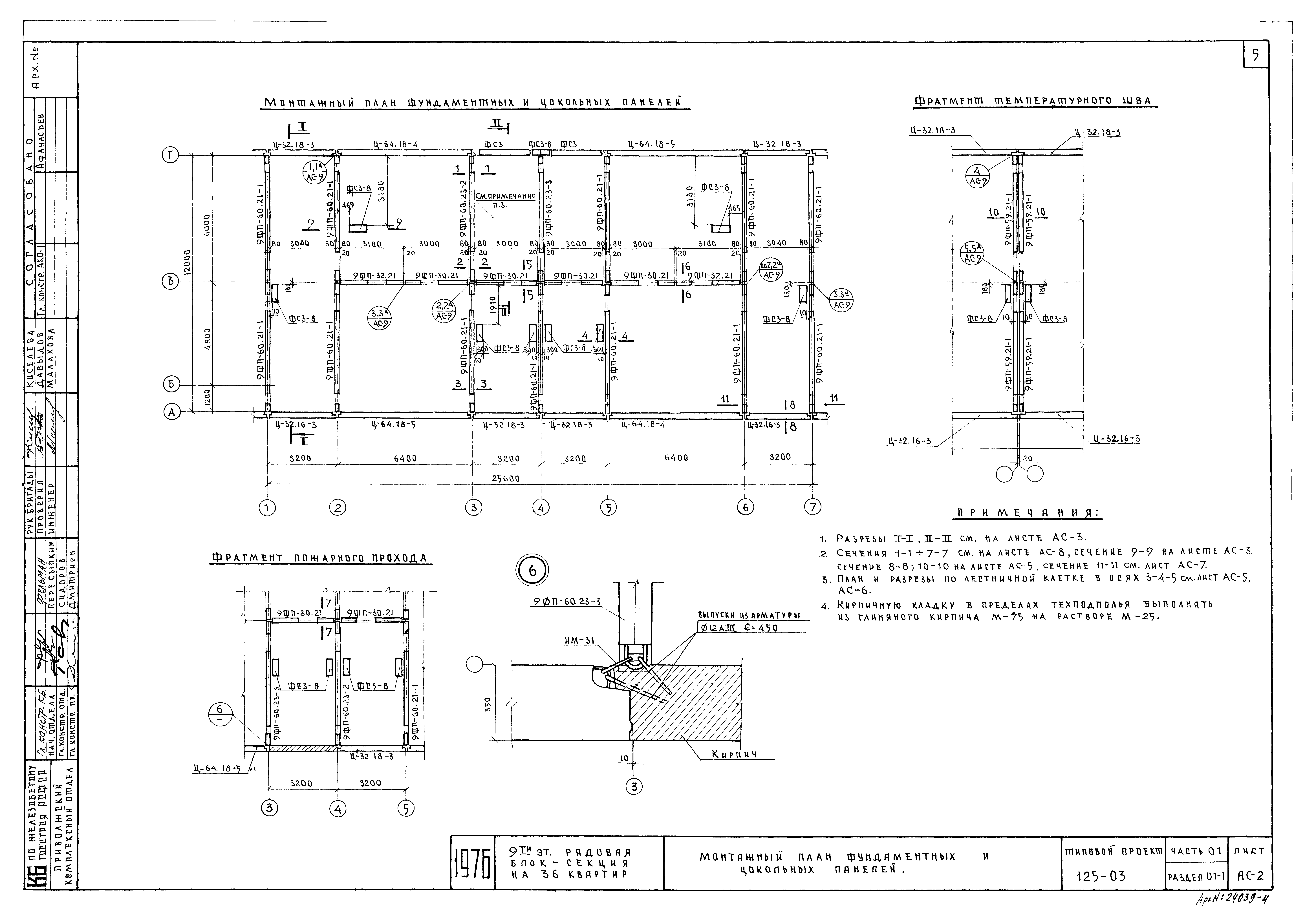
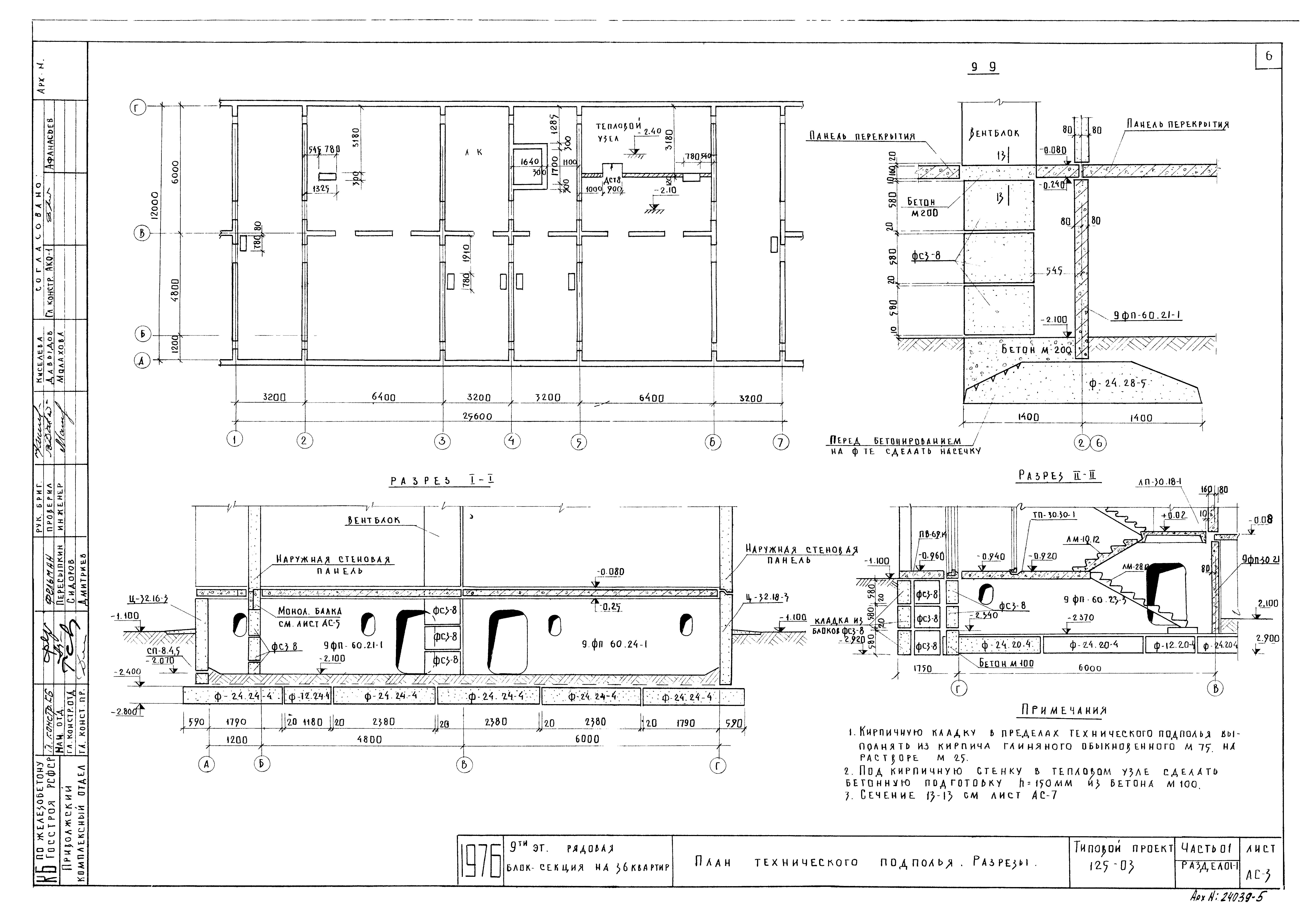
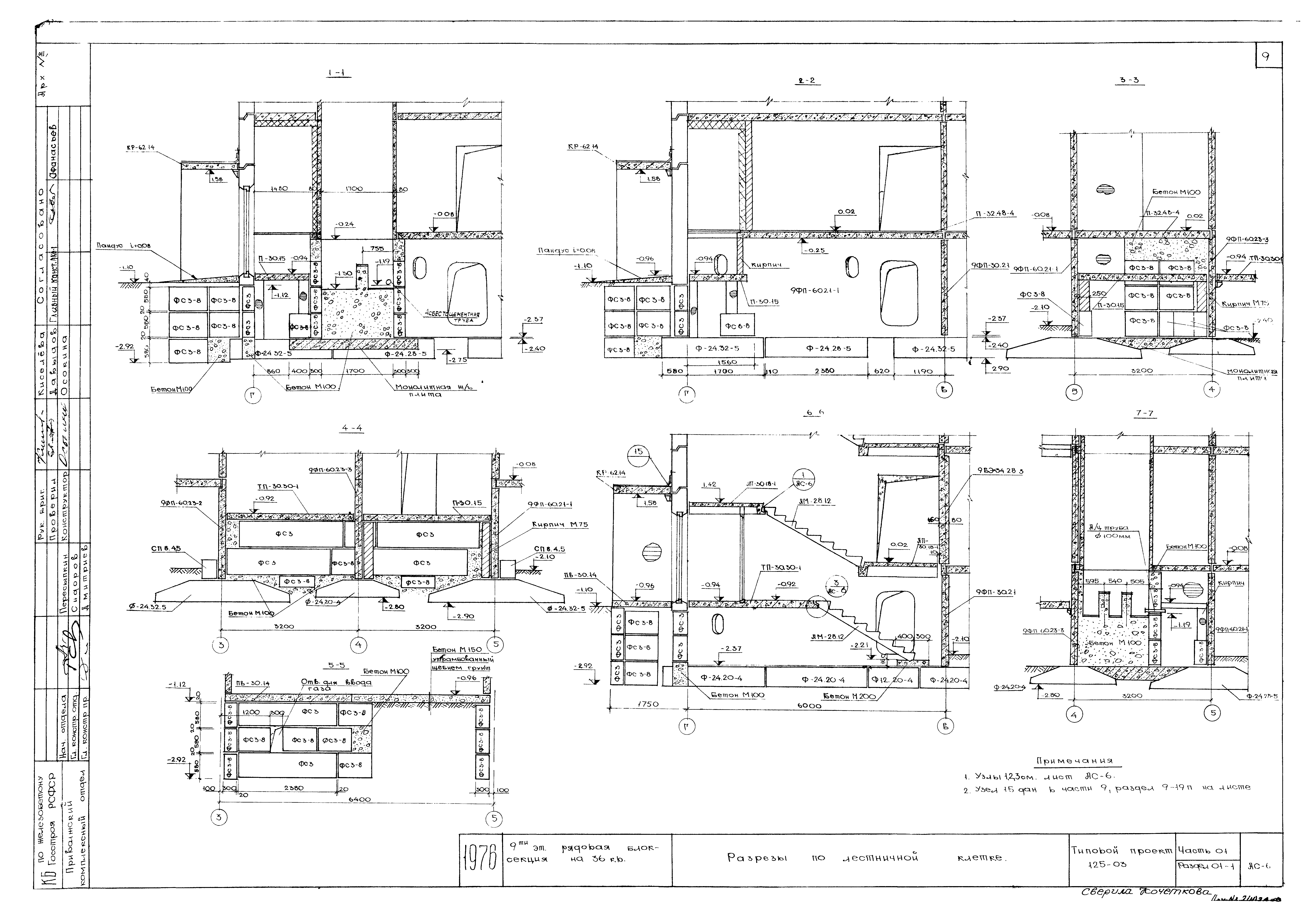
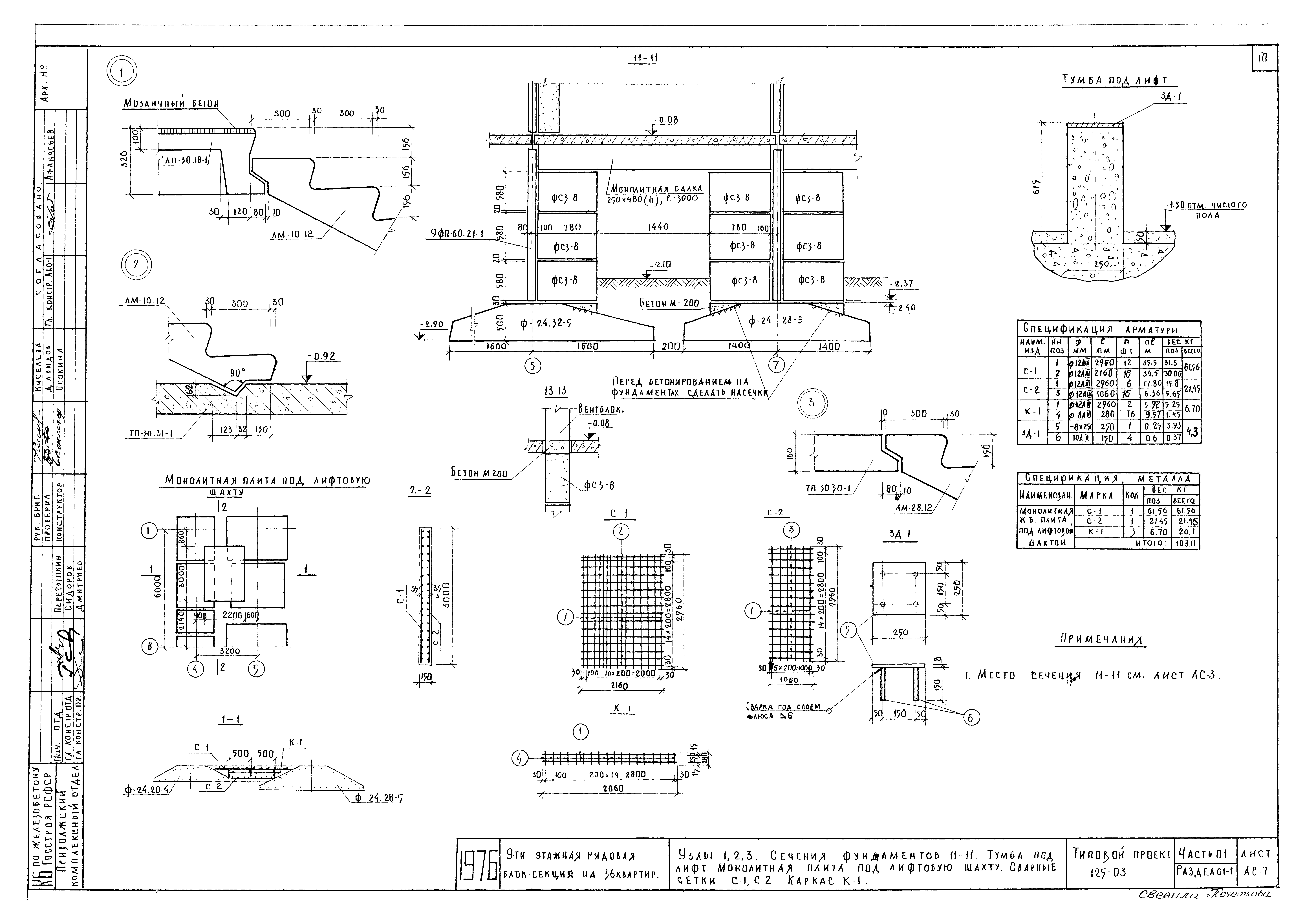
| Оглавление: | Содержание альбома. Пояснительная записка План ленточных фундаментов Монтажный план фундаментных и цокольных панелей План технического подполья. Разрезы I-I, II-II. Сечение 9-9 План перекрытия над техническим подпольем. Планы и разрезы по пожарному проходу План лестничной клетки. Сечения ленточных фундаментов 8-8, 10-10 Разрезы по лестничной клетке Узлы 1, 2, 3. Сечение фундаментов 18-18. Тумба под лифт. Монолитная ж/б плита под лифтовой шахтой. Сварные сетки С-1, С-2. Каркас К-1 Сечения ленточных фундаментов 1-1 - 7-7 Монтажные узлы Спецификация ж/б изделий ниже отм. 0.000 Спецификация металлических изделий |
| Разработан: | КБ по железобетону Госстроя РСФСР |
| Утверждён: | 30.12.1969 Госкомитет по гражданскому строительству и архитектуре при Госстрое СССР (National Committee on Nonindustrial Construction and Architecture, USSR Gosstroy 278) |














