Скачать Типовой проект Серия 86 Часть 10. Раздел 10.1-2.4. Изделия заводского изготовления. Плиты перекрытий железобетонные ребристые (сантехнические)Дата актуализации: 01.01.2021
|
| Обозначение: | Типовой проект Серия 86 |
| Обозначение англ: | Серия 86 |
| Статус: | не действует |
| Название рус.: | Часть 10. Раздел 10.1-2.4. Изделия заводского изготовления. Плиты перекрытий железобетонные ребристые (сантехнические) |
| Дата добавления в базу: | 01.09.2013 |
| Дата актуализации: | 01.01.2021 |
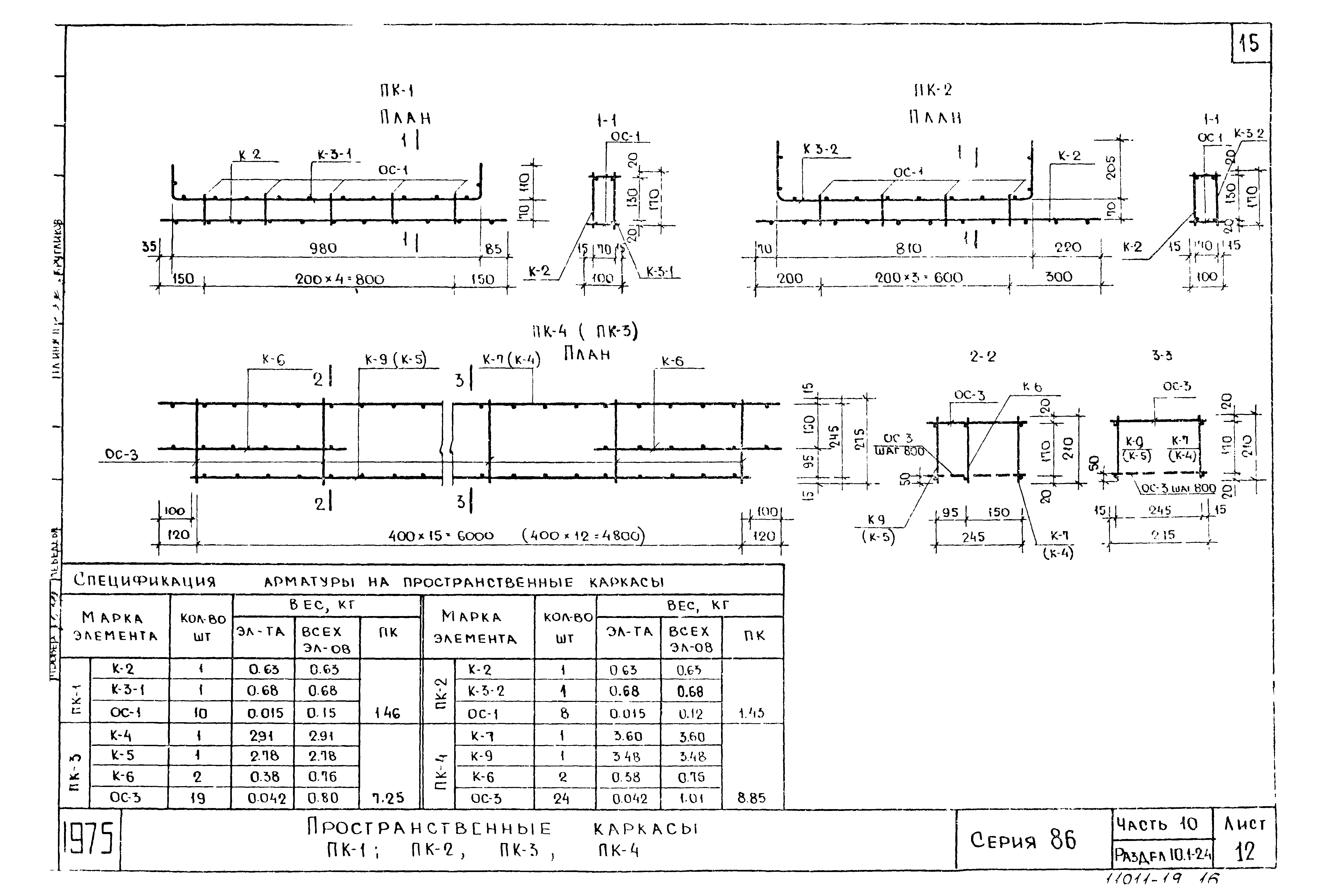
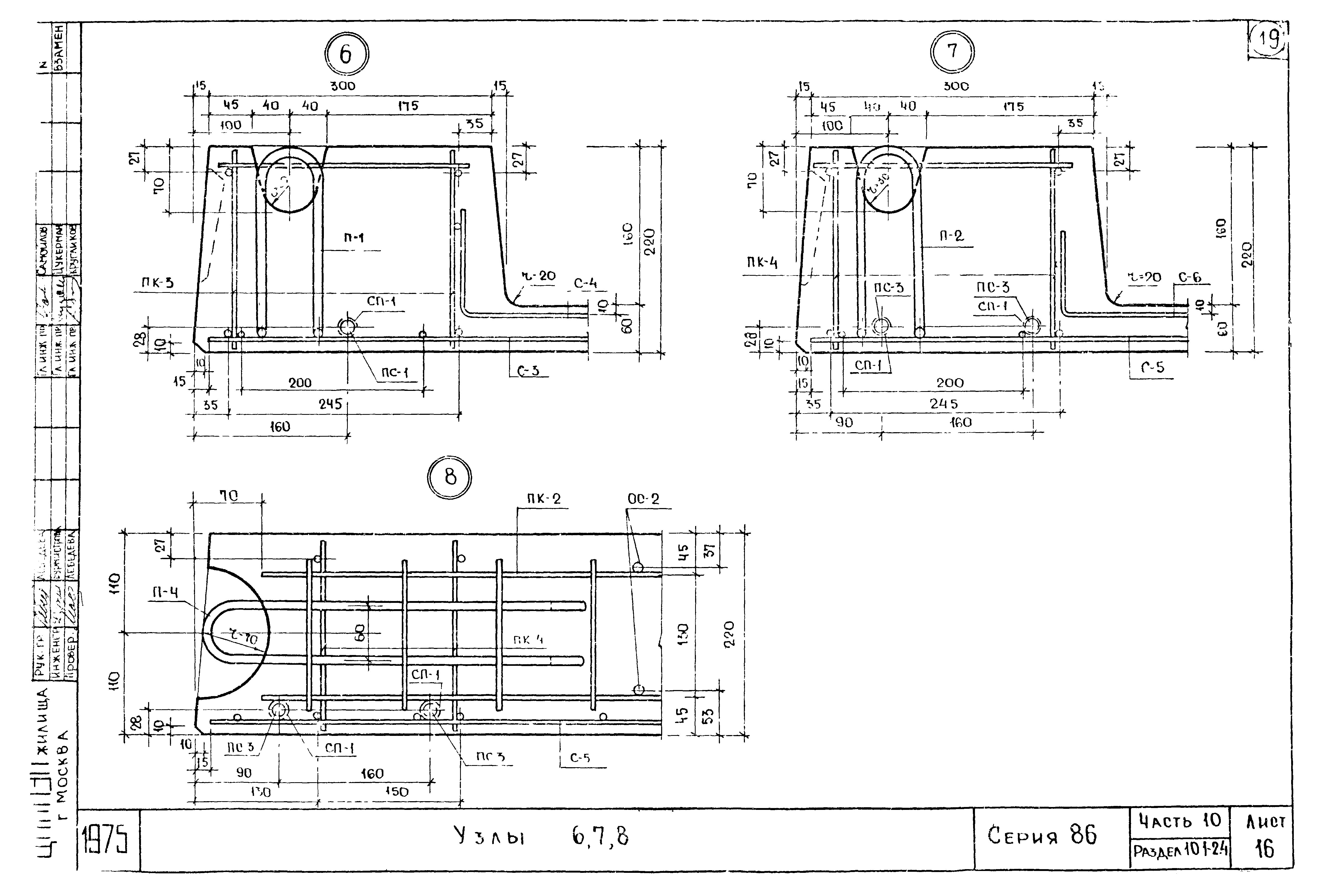
| Оглавление: | Содержание Пояснительная записка Номенклатура изделий Общий вид и армирование плиты ПР7-30-12с Характеристика, схемы расчета и испытание плиты ПР7-30-12с Общий вид и армирование плиты ПР7-51-12с Характеристика, схемы расчета и испытание плиты ПР7-51-12с Общий вид и армирование плиты ПР9-63-12с Характеристика, схемы расчета и испытание плиты ПР9-63-12с Арматурные сетки С-1, С-2, С-3, С-4, С-5, С-6 Арматурные каркасы К-1, К-2, К-3-1, К-3-2, К-4 Арматурные каркасы К-4-1, К-5, К-6, К-7 Арматурные каркасы К-8, К-9, закладная деталь М-1 Пространственные каркасы ПК-1, ПК-2, ПК-3, ПК-4 Отдельные стержни СС-1, ОС-2, ОС-2-1, ОС-3, спираль СП-1, петли П-1, П-2, П-3, П-4, стержни ПС-1, ПС-2, ПС-3 Детали А, Б Узлы 1, 2, 3, 4, 5 Узлы 6, 7, 8 |
| Разработан: | ЦНИИЭП жилища |
| Утверждён: | 01.01.1975 ЦНИИЭП жилища (TsNIIEPzhilishcha ) |




















