Скачать Типовой проект Серия 86 Часть 10. Раздел 10.7-1. Изделия заводского изготовления. Мусоропровод МП1Дата актуализации: 01.01.2021
|
| Обозначение: | Типовой проект Серия 86 |
| Обозначение англ: | Серия 86 |
| Статус: | действует |
| Название рус.: | Часть 10. Раздел 10.7-1. Изделия заводского изготовления. Мусоропровод МП1 |
| Дата добавления в базу: | 01.09.2013 |
| Дата актуализации: | 01.01.2021 |
| Дата введения: | 31.03.1969 |
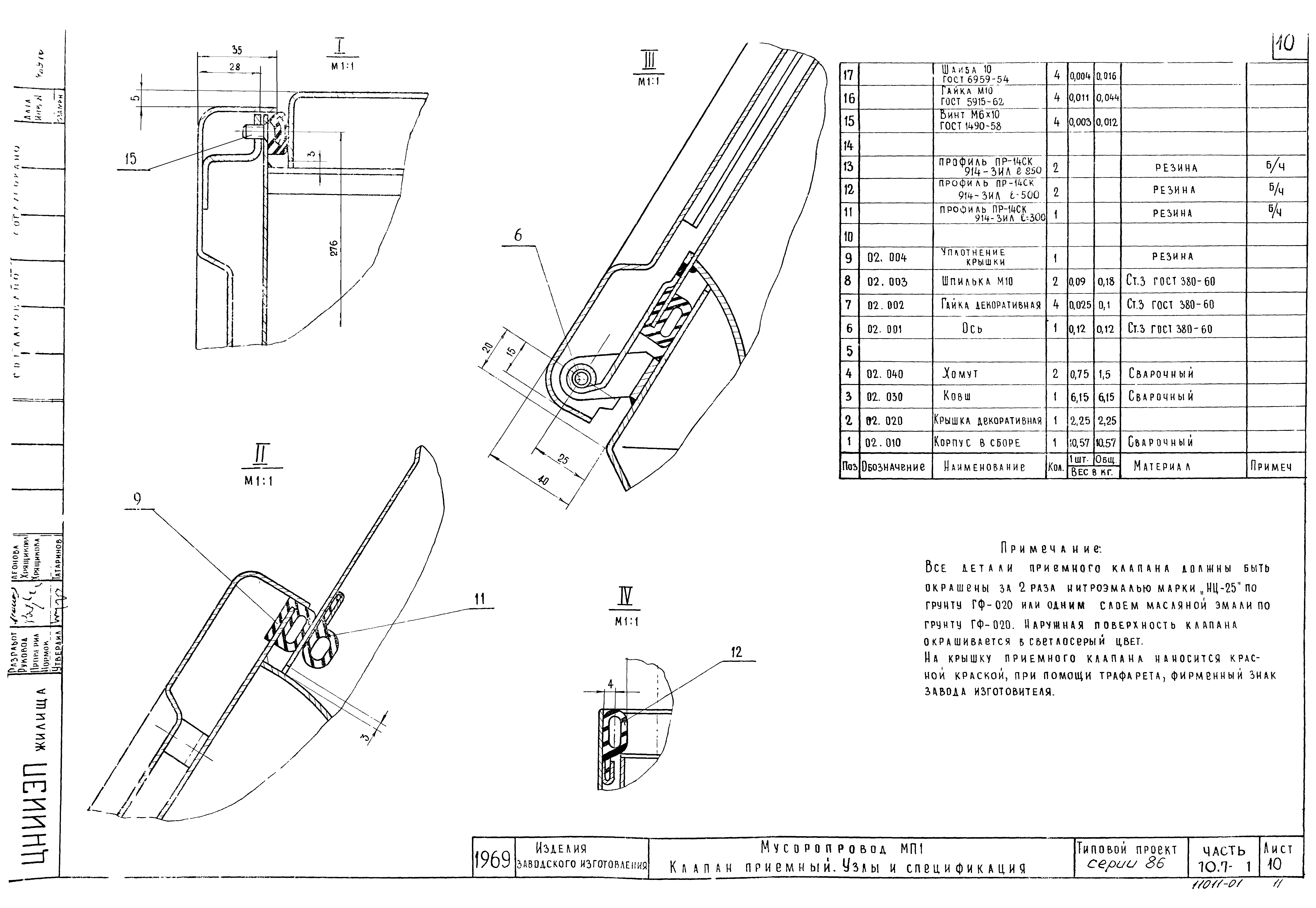
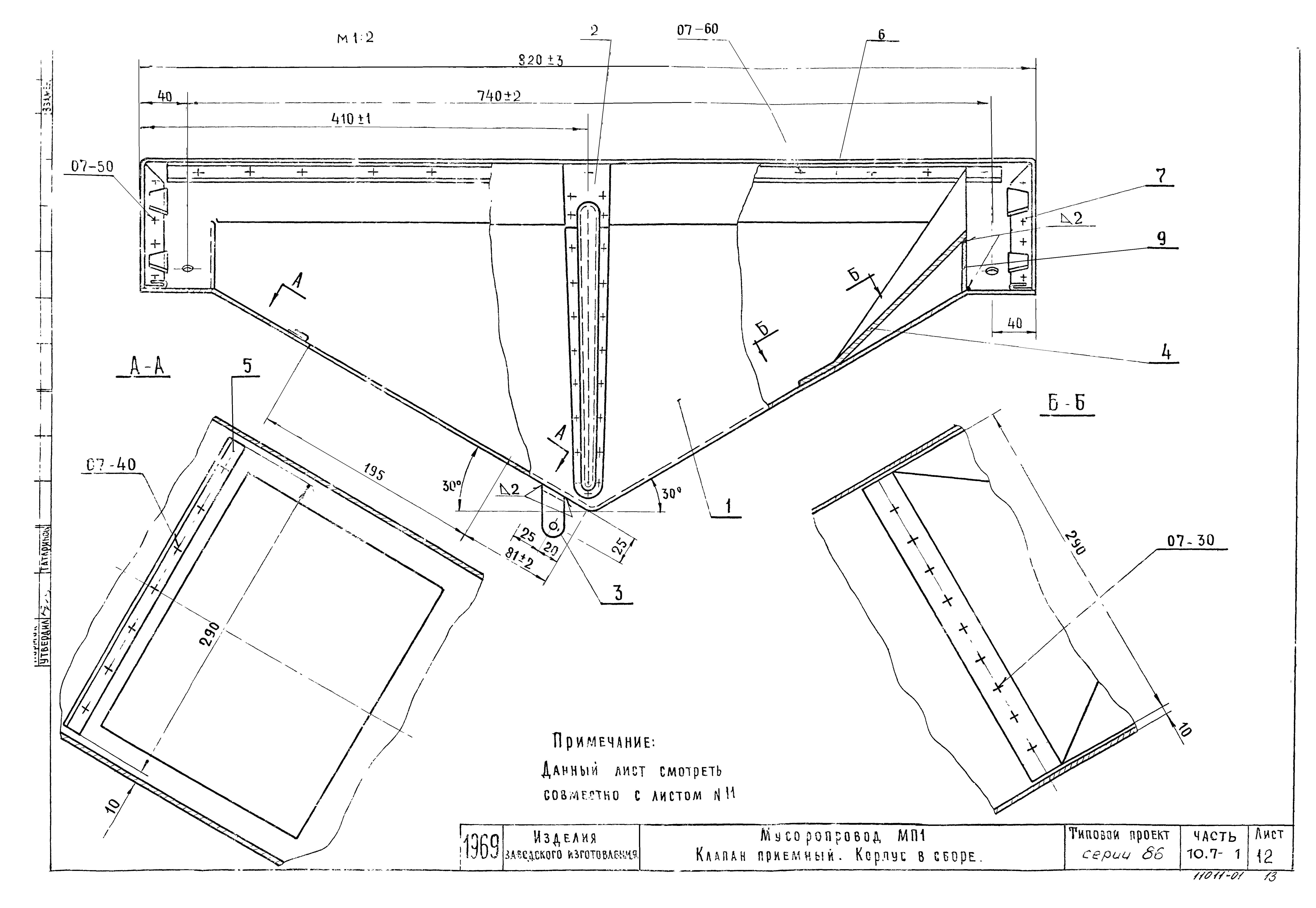
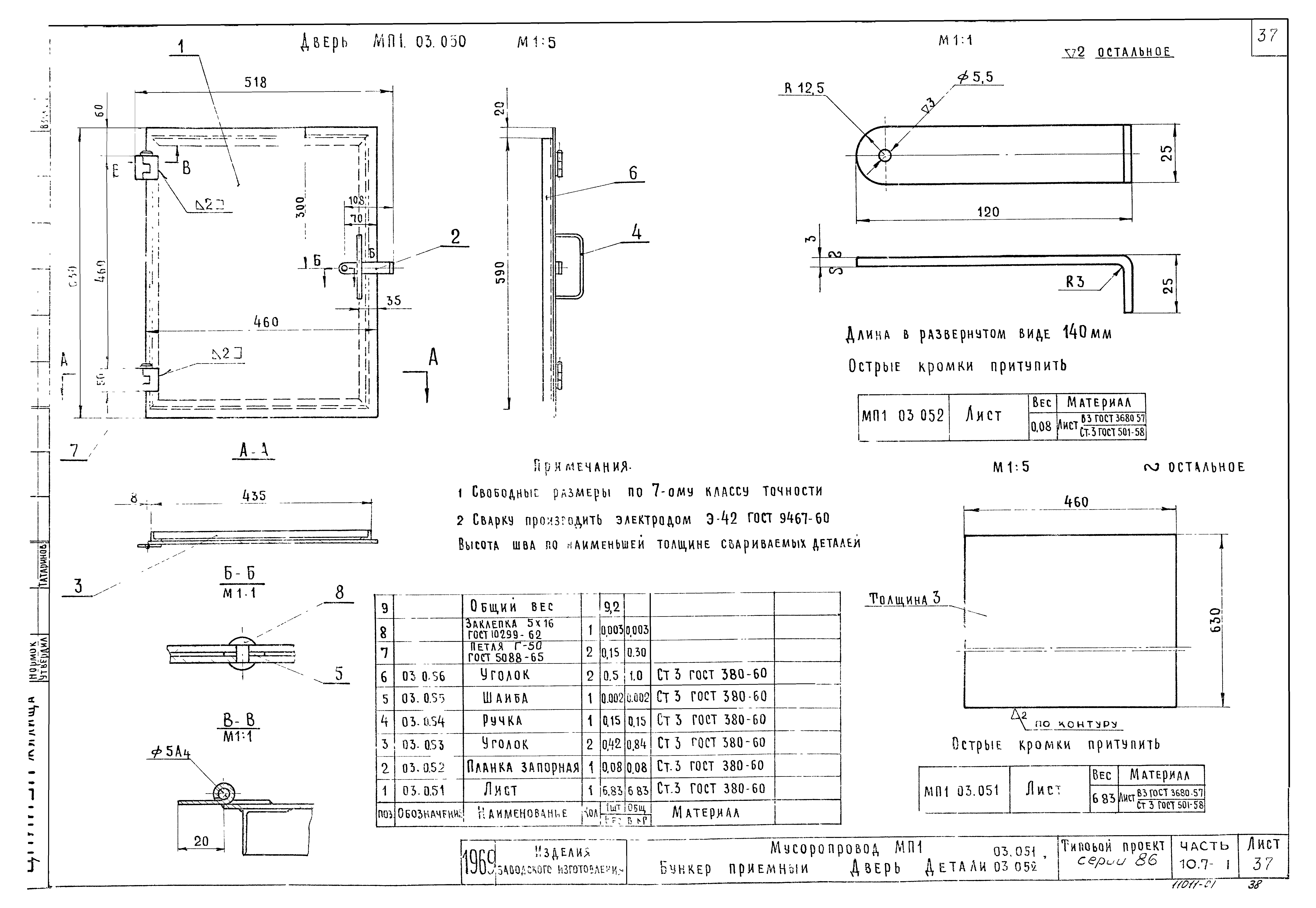
| Оглавление: | Содержание альбома Пояснительная записка МП1.00.000Сп Сводная спецификация МП1.00.000 Мусоропровод МП1. Монтажная схема для 5-ти этажных домов МП1.01.000 Фланец переходной МП1.01.011 Фланец нижний МП1.01.012 Фланец верхний МП1.02.000 Клапан приемный в сборе МП1.02.000 Клапан приемный. Виды А-А, Б-Б, В-В МП1.02.000 Клапан приемный. Узлы и спецификация МП1.02.010 Клапан приемный. Корпус в сборе МП1.02.011 Клапан приемный. Корпус МП1.02.011 Клапан приемный. Корпус. Развертка МП1.02.012 Накладка МП1.02.013 Скоба МП1.02.014 Козырек МП1.02.015 Уголок МП1.02.016 Уголок МП1.02.017 Захват для резинового уплотнения (радиусный) МП1.02.020 Крышка декоративная МП1.02.021 Крышка МП1.02.022 Ручка МП1.02.023 Скоба МП1.02.030 Ковш МП1.02.031 Ковш МП1.02.032 Лист верхний МП1.02.033 Петля МП1.02.040 Хомут МП1.02.041 Ушко МП1.02.042 Обод МП1.02.043 Шпилька МП1.02.001 Ось МП1.02.002 Гайка декоративная МП1.02.003 Шпилька М10 МП1.02.004 Уплотнение крышки МП1.03.000Сп Сводная спецификация бункера приемного МП1.03.000 Бункер приемный МП1.03.010 Металлоконструкция МП1.03.011 Уголок МП1.03.012 Уголок МП1.03.013 Уголок МП1.03.014 Уголок МП1.03.015 Уголок МП1.03.016 Днище МП1.03.017 Обечайка нижняя МП1.03.018 Планка МП1.03.019 Лист МП1.03.021 Лист МП1.03.022 Пластина МП1.03.023 Уголок МП1.03.024 Лист МП1.03.025 Лист МП1.03.026 Лист МП1.03.027 Уголок МП1.03.028 Лист МП1.03.029 Уголок МП1.03.030 Шибер МП1.03.031 Уголок МП1.03.032 Пластина МП1.03.033 Ручка МП1.03.034 Ребро МП1.03.035 Швеллер МП1.03.036 Уголок МП1.03.037 Лист МП1.03.040 Опора МП1.03.041 Труба МП1.03.042 Лист опорный МП1.03.043 Обечайка нижняя МП1.03.050 Дверь МП1.03.051 Лист МП1.03.052 Лист МП1.03.053 Уголок МП1.03.054 Ручка МП1.03.055 Шайка МП1.03.056 Уголок МП1.04.000Сп Сводная спецификация бункера приемного МП1.04.000 Бункер приемный МП1.04.010 Металлоконструкция МП1.04.011 Уголок МП1.04.012 Уголок МП1.04.013 Днище МП1.04.014 Лист МП1.04.015 Лист МП1.04.016 Лист МП1.04.017 Лист МП1.04.018 Лист МП1.04.019 Уголок МП1.04.021 Лист МП1.04.022 Уголок МП1.05.000Сп Сводная спецификация бункера в сборе МП1.05.000 Бункер в сборе МП1.05.010 Бункер МП1.05.011 Лист МП1.05.012 Труба МП1.05.013 Уголок МП1.05.020 Шибер МП1.05.021 Лист МП1.05.022 Штырь МП1.05.023 Уголок МП1.05.024 Ручка МП1.05.030 Дверка МП1.05.031 Дверь МП1.05.032 Полоса МП1.05.033 Полоса МП1.06.000 Фланец дефлектора МП1.06.001 Труба МП1.06.002 Труба МП1.06.003 Кольцо МП1.06.004 Фланец |
| Разработан: | ЦНИИЭП жилища |
| Утверждён: | 31.03.1969 ЦНИИЭП жилища (TsNIIEPzhilishcha 64) |

















































