Скачать Типовой проект 402-22-72.12.88 Альбом I. Пояснительная записка. ЧертежиДата актуализации: 01.01.2021
|
| Обозначение: | Типовой проект 402-22-72.12.88 |
| Обозначение англ: | 402-22-72.12.88 |
| Статус: | не определен законодательством |
| Название рус.: | Альбом I. Пояснительная записка. Чертежи |
| Дата добавления в базу: | 01.09.2013 |
| Дата актуализации: | 01.01.2021 |
| Дата введения: | 01.03.1988 |
| Дата окончания срока действия: | 30.06.2003 |
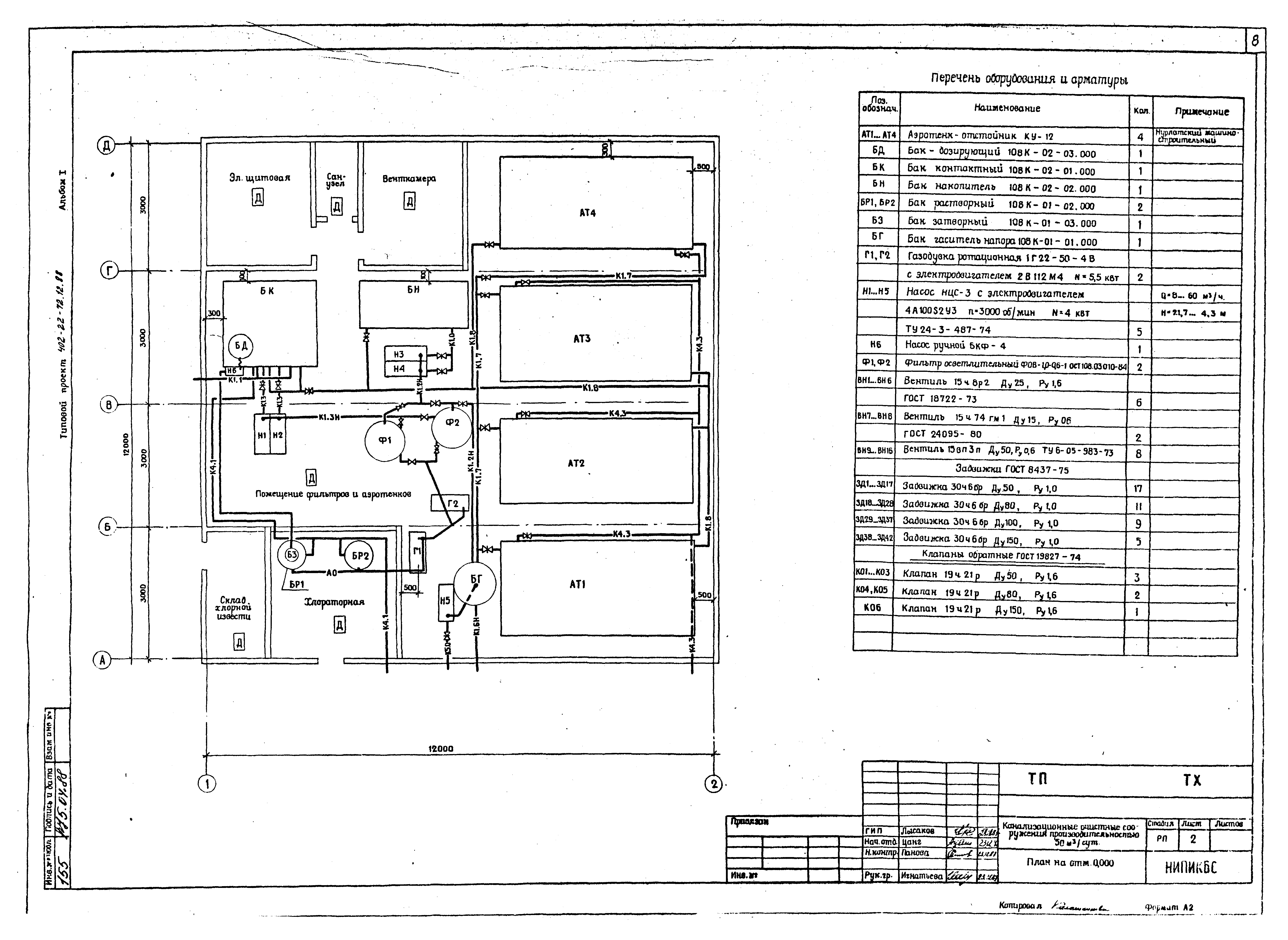
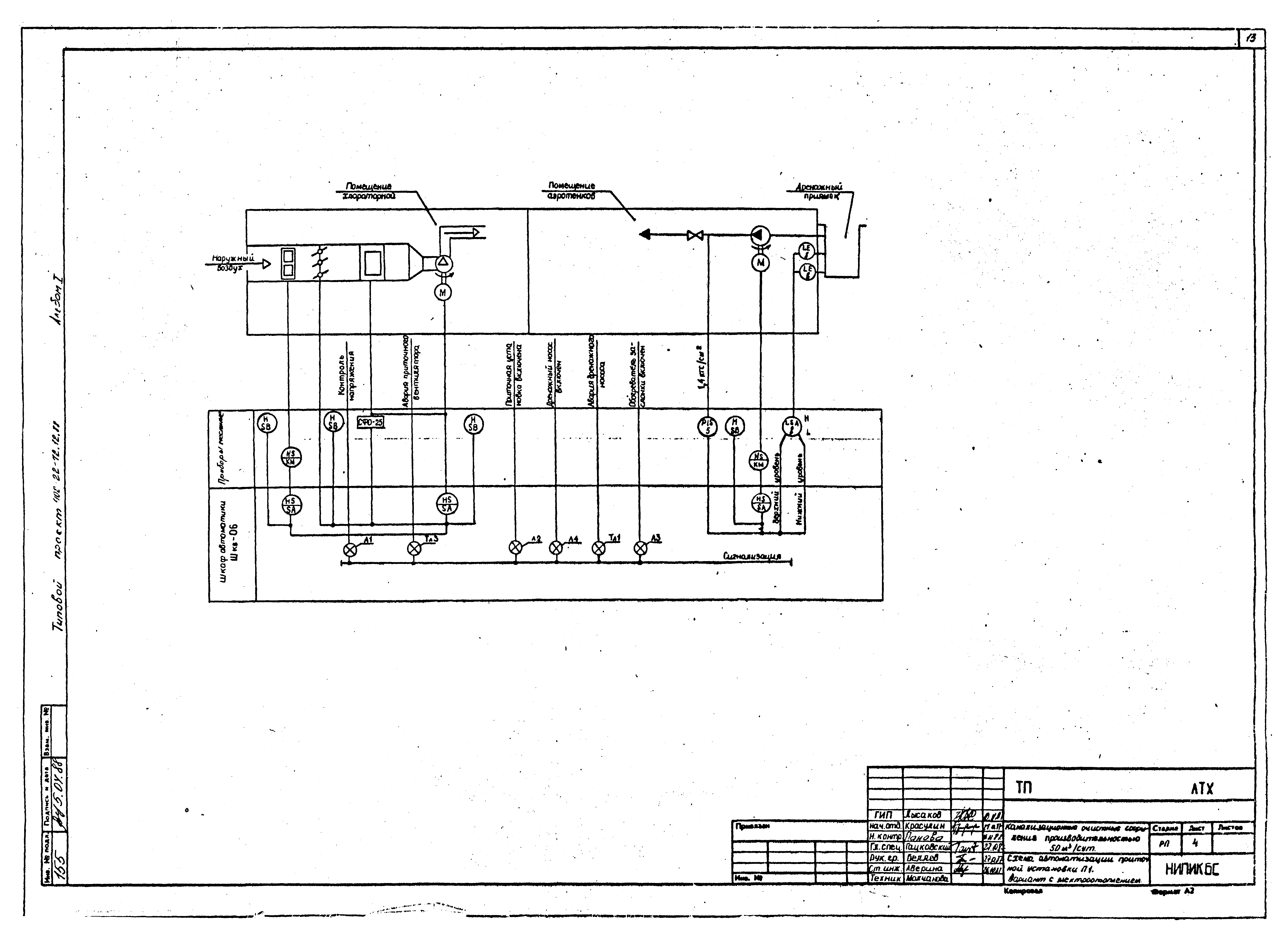
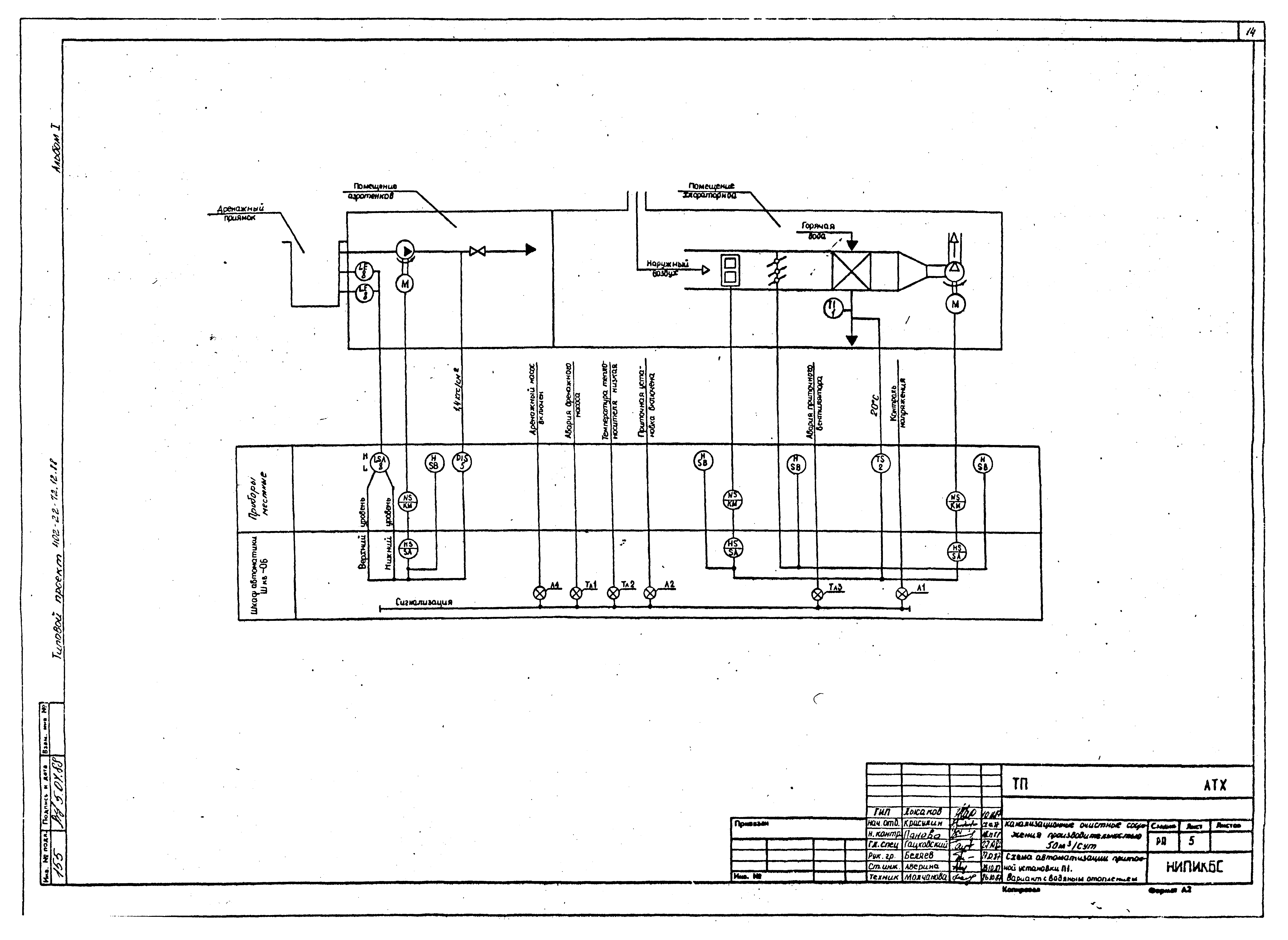
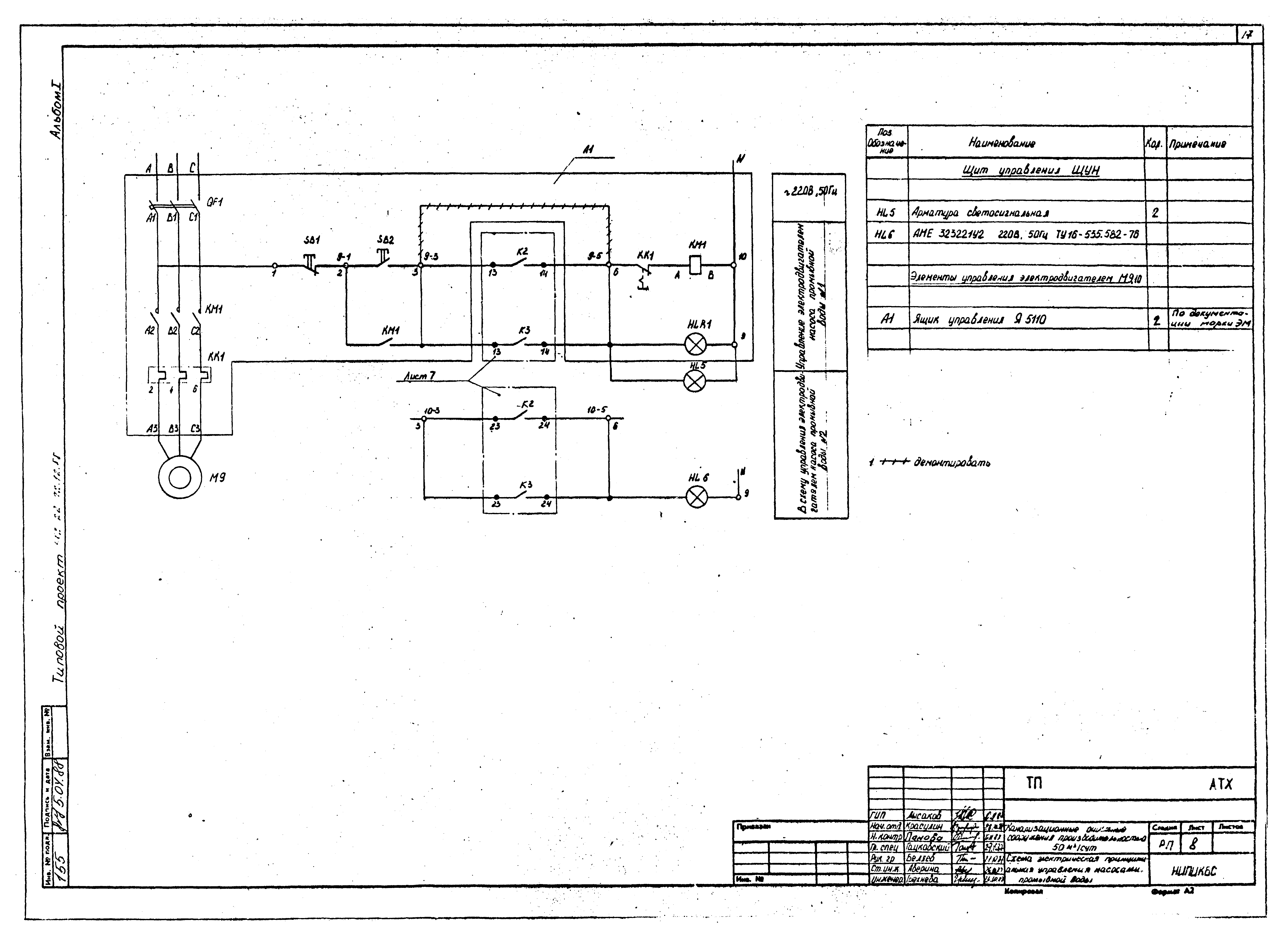
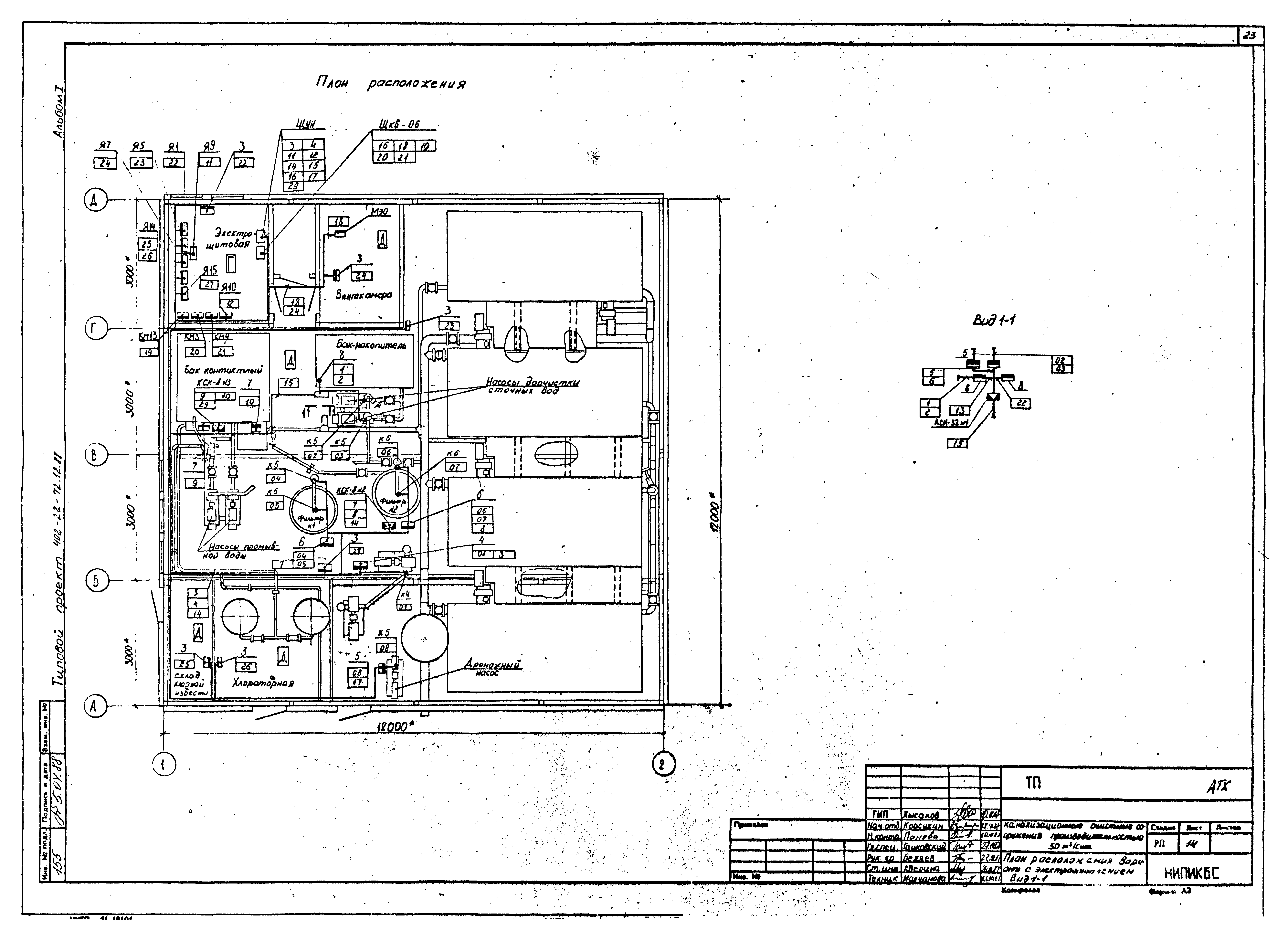
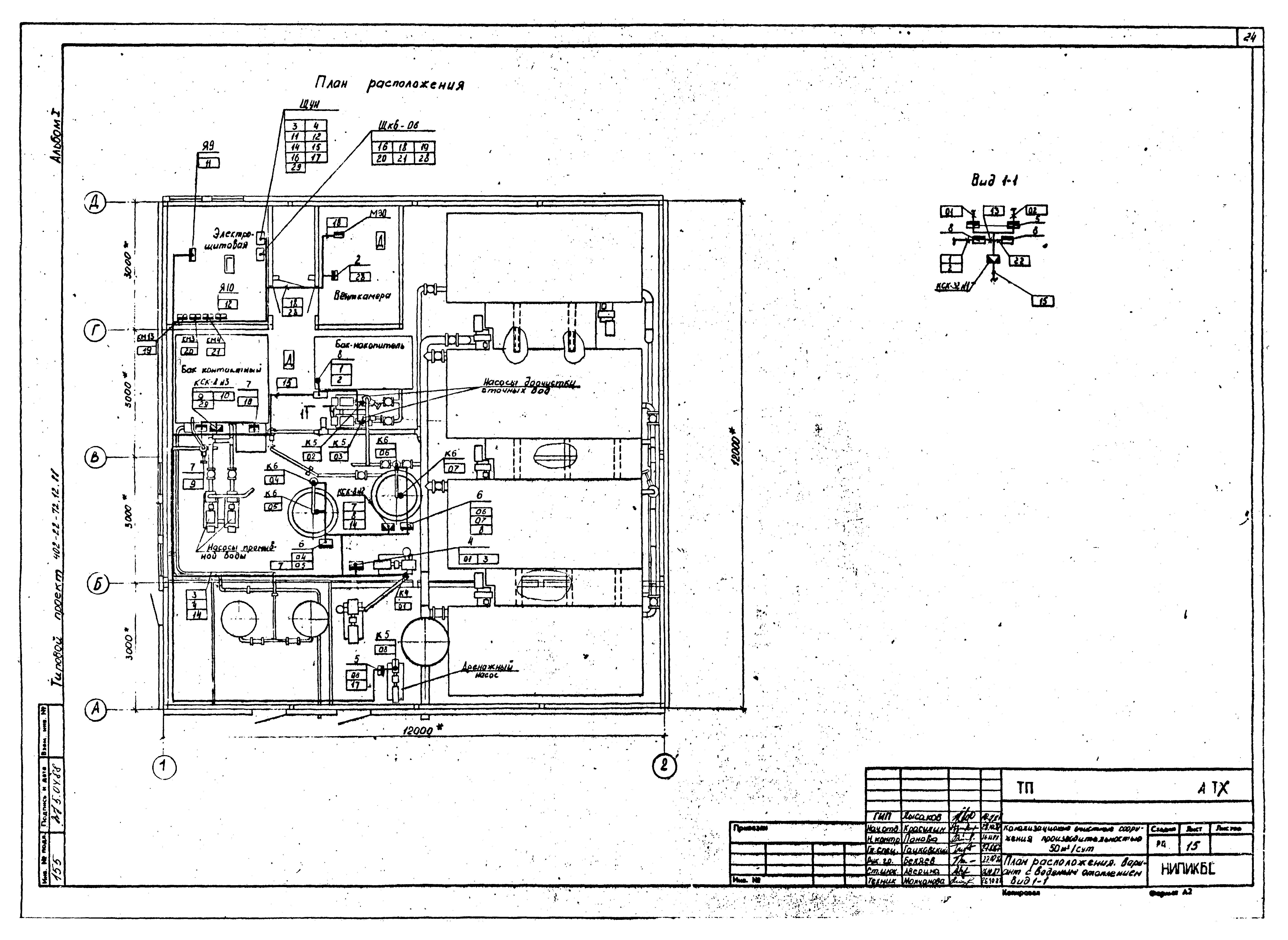
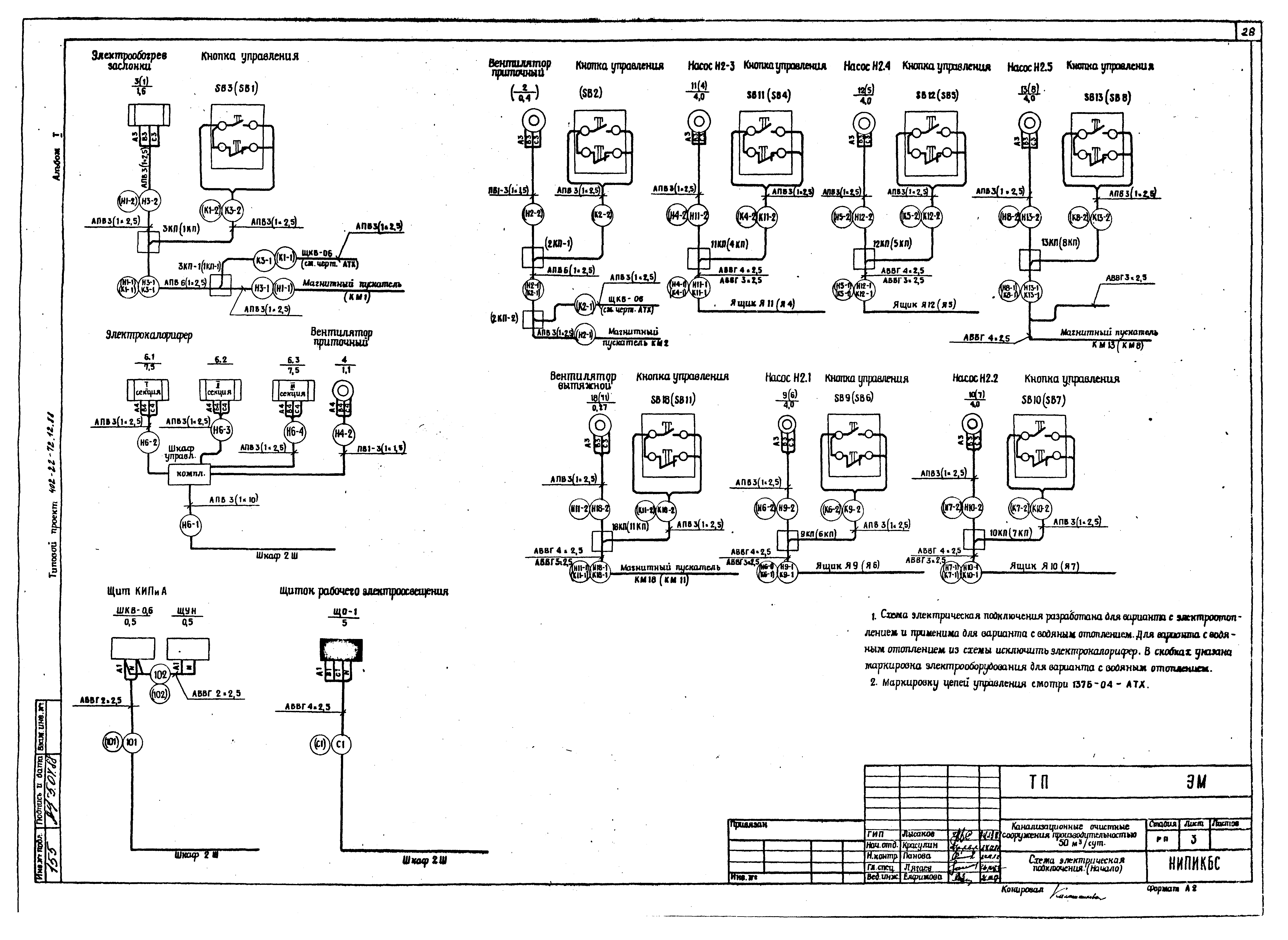
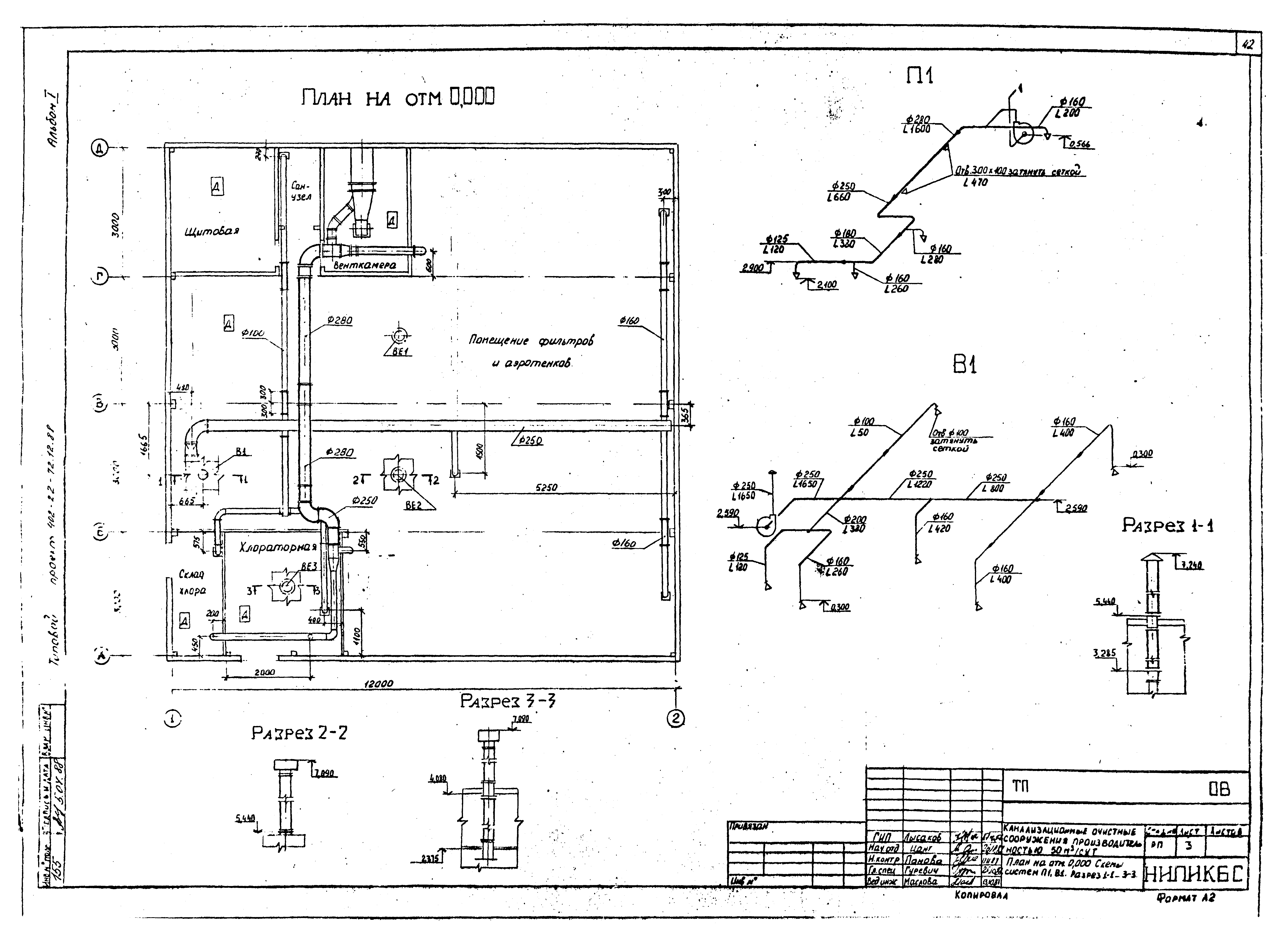
| Оглавление: | Пояснительная записка Чертежи основного комплекта марки ТХ Общие данные. План вводов инженерных сетей План на отм. 0.000 Схема гидравлическая принципиальная. Высотная схема движения воды Чертежи основного комплекта марки АТХ Общие данные Схема автоматизации очистки стоков Схема автоматизации электроотопления Схема автоматизации приточной установки П1 (вариант с электроотоплением) Схема автоматизации приточной установки П1 (вариант с водяным отоплением) Схема электрическая принципиальная управления насосами доочистки сточных вод Схема электрическая принципиальная управления насосами промывной воды Схема электрическая принципиальная управления электропечами Схема соединений внешних проводок Схема соединений внешних проводок. Вариант с электроотоплением Схема соединений внешних проводок. Вариант с водяным отоплением План расположения. Вид I-I. Вариант с электроотоплением План расположения. Вид I-I. Вариант с водяным отоплением Чертежи основного комплекта марки ЭО Общие данные. План на отм. 0.000 Чертежи основного комплекта марки ЭМ Общие данные Схема электрическая принципиальная. Вариант с электроотоплением Схема электрическая подключения Схема электрическая принципиальная. Вариант с водяным отоплением План на отм. 0.000. Вариант с электроотоплением План на отм. 0.000. Вариант с водяным отоплением Кабельно-трубный журнал. Вариант с электроотоплением Кабельно-трубный журнал. Вариант с водяным отоплением Чертежи основного комплекта марки АС Общие данные План на отм. 0.000. Разрез I-I. Фасад 1 - 2; 2 - 1; А - Д; Д - А Схема расположения блоков, комплектов монтажных частей. Вид 1-1, 2-2 Схема расположения фундаментов. Схема нагрузок. Сечение 1-1, 2-2 Чертежи основного комплекта марки ОВ Общие данные Планы на отм. 0.000. Схема системы отопления. Узел управления План на отм. 0.000. Схема систем П1, В1. Разрез 1-1…3-3 Чертежи основного комплекта марки ТК Общие данные. План на отм. 0.000. Вид 1-1 Вид 2-2. Разрезы 3-3…11-11. Поз. 6. Выносной элемент 1 Чертежи основного комплекта марки ВК Общие данные. План на отм. 0.000. Схемы систем В0, К1 |
| Разработан: | НИПИ КБС Миннефтегазстроя |
| Утверждён: | 09.02.1988 Миннефтегазстрой СССР (45) |
| Заменяет собой: |
|













































