Скачать Типовой проект 901-5-21/70 Альбом I. Архитектурно-строительная, технологическая, электротехническая части и автоматикаДата актуализации: 01.01.2021
|
| Обозначение: | Типовой проект 901-5-21/70 |
| Обозначение англ: | 901-5-21/70 |
| Статус: | не определен законодательством |
| Название рус.: | Альбом I. Архитектурно-строительная, технологическая, электротехническая части и автоматика |
| Дата добавления в базу: | 01.09.2013 |
| Дата актуализации: | 01.01.2021 |
| Дата введения: | 30.12.1970 |
| Дата окончания срока действия: | 30.06.2003 |
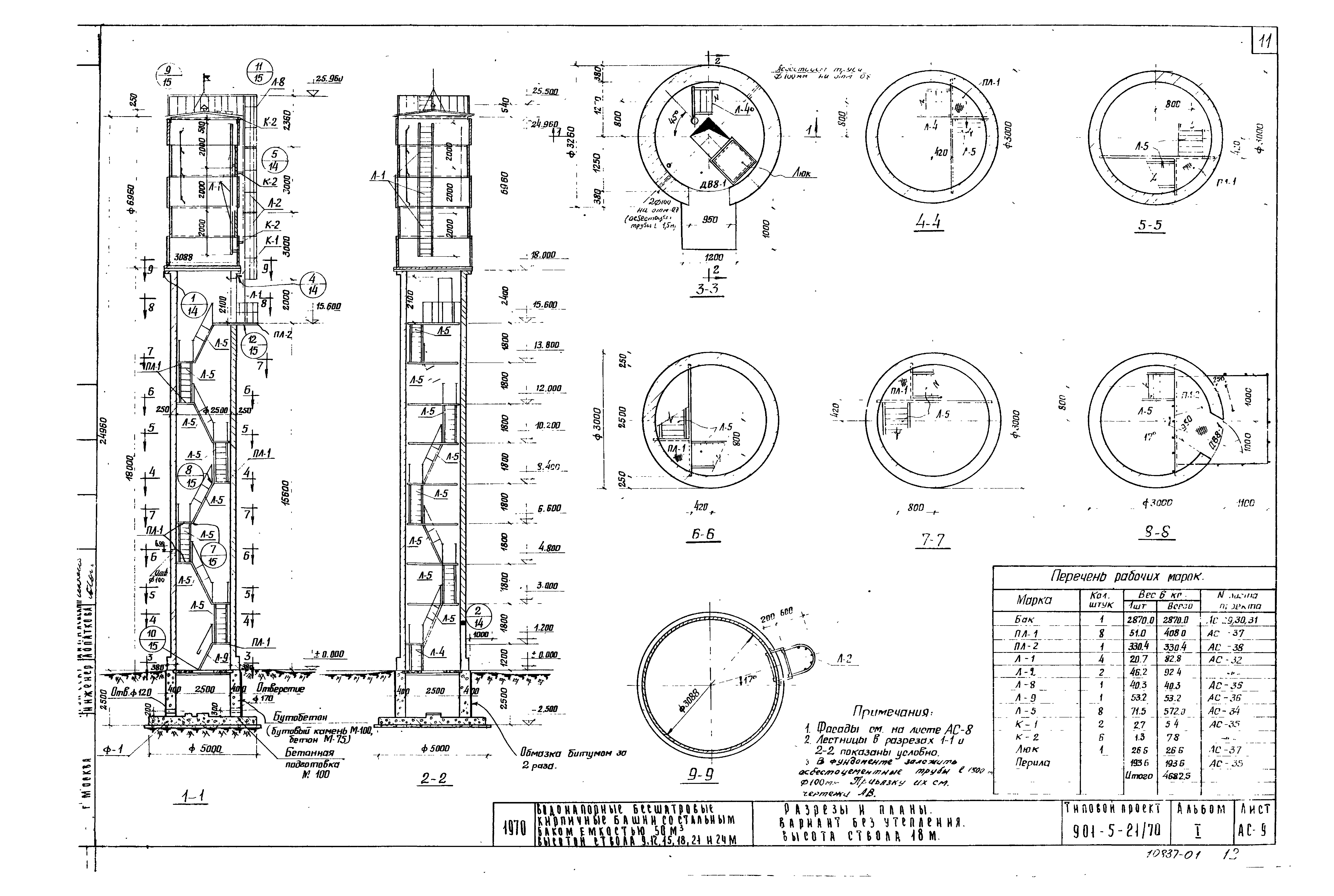
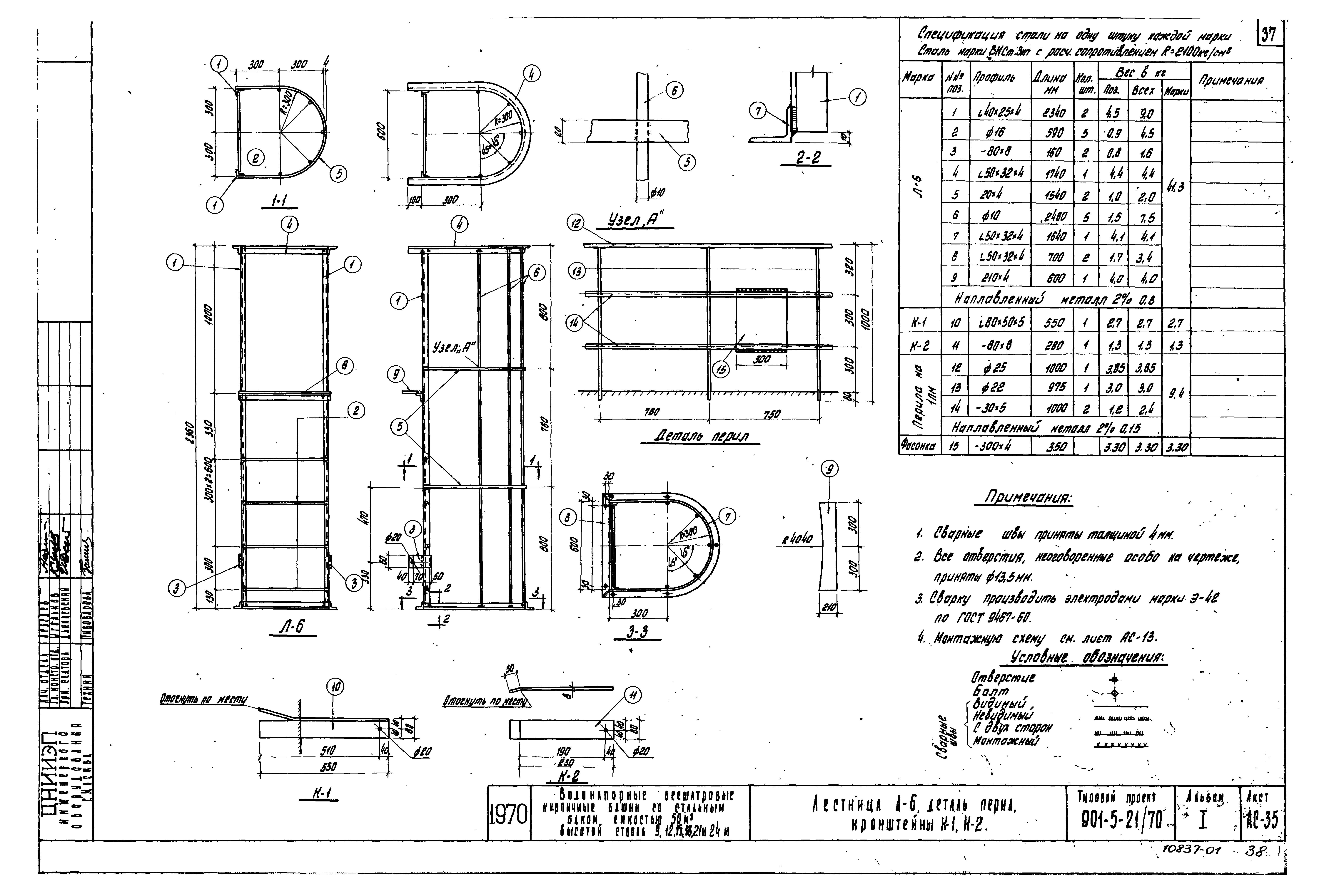
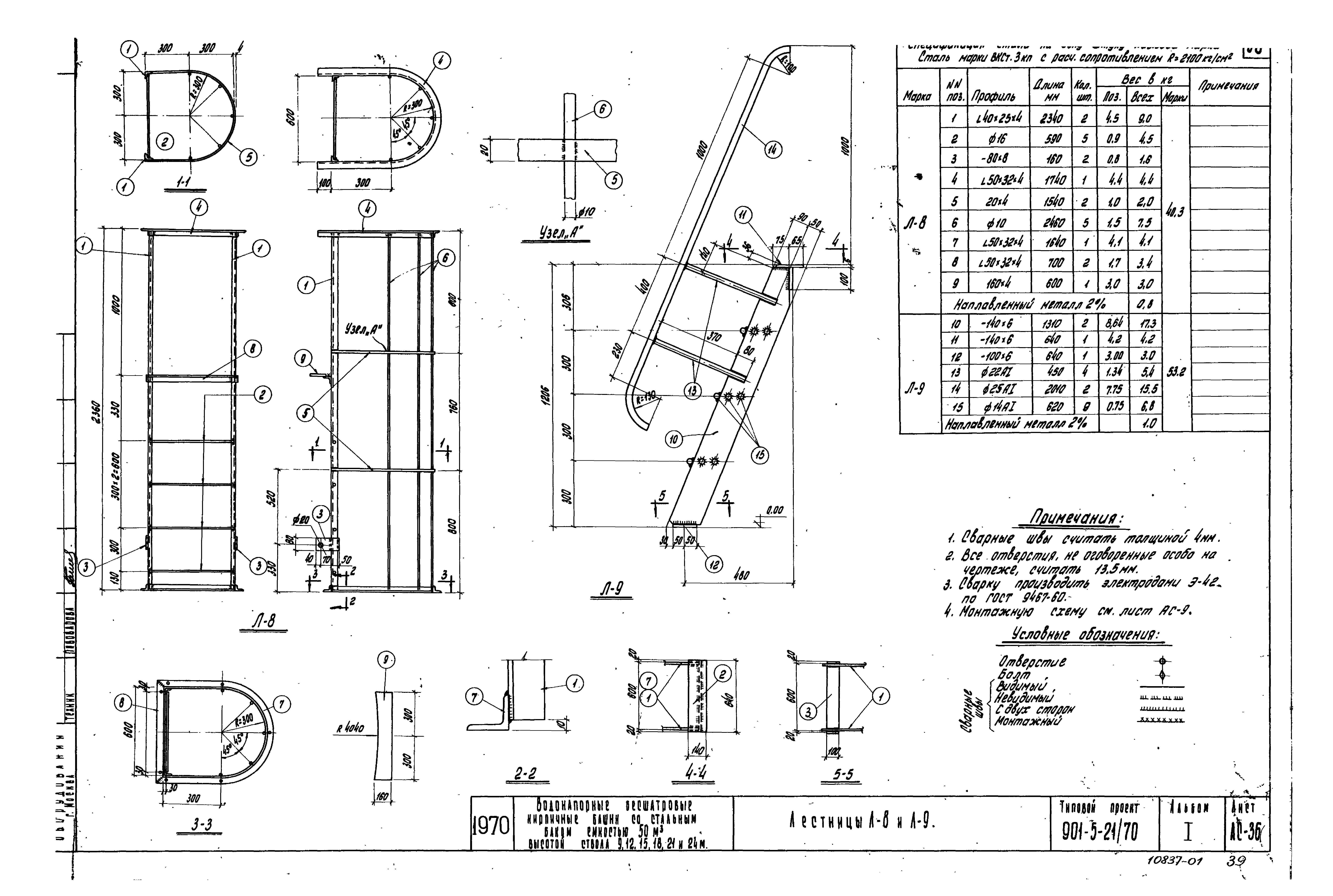
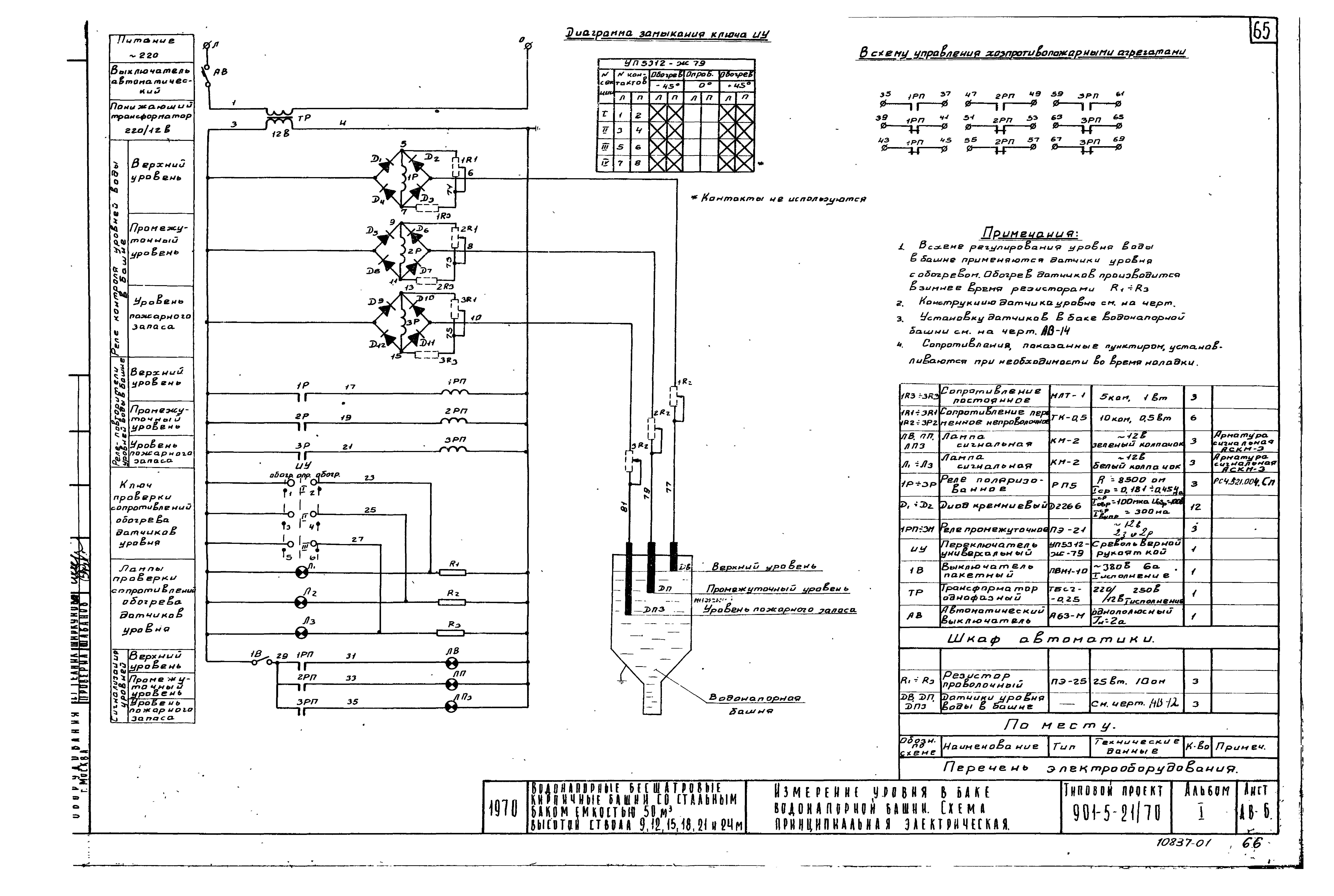
| Оглавление: | Титульный лист Содержание альбома Архитектурно-строительная часть Пояснительная записка Заглавный лист. Фасады. Вариант без утепления. Высота ствола 9 м Разрезы и планы. Вариант без утепления. Высота ствола 9 м Заглавный лист. Фасады. Вариант без утепления. Высота ствола 12 м Разрезы и планы. Вариант без утепления. Высота ствола 12 м Заглавный лист. Фасады. Вариант без утепления. Высота ствола 15 м Разрезы и планы. Вариант без утепления. Высота ствола 15 м Заглавный лист. Фасады. Вариант без утепления. Высота ствола 18 м Разрезы и планы. Вариант без утепления. Высота ствола 18 м Заглавный лист. Фасады. Вариант без утепления. Высота ствола 21 м Разрезы и планы. Вариант без утепления. Высота ствола 21 м Заглавный лист. Фасады. Вариант без утепления. Высота ствола 24 м Разрезы и планы. Вариант без утепления. Высота ствола 24 м Детали для башен высотой ствола 9, 12, 15, 18 м Детали для башен высотой ствола 18, 21 и 24 м Заглавный лист. Фасады. Вариант с утеплением. Высота ствола 9 м Разрезы и планы. Вариант с утеплением. Высота ствола 9 м Заглавный лист. Фасады. Вариант с утеплением. Высота ствола 12 м Разрезы и планы. Вариант с утеплением. Высота ствола 12 м Заглавный лист. Фасады. Вариант с утеплением. Высота ствола 15 м Разрезы и планы. Вариант с утеплением. Высота ствола 15 м Заглавный лист. Фасады. Вариант с утеплением. Высота ствола 18 м Разрезы и планы. Вариант с утеплением. Высота ствола 18 м Заглавный лист. Фасады. Вариант с утеплением. Высота ствола 21 м Разрезы и планы. Вариант с утеплением. Высота ствола 21 м Заглавный лист. Фасады. Вариант с утеплением. Высота ствола 24 м Разрезы и планы. Вариант с утеплением. Высота ствола 24 м Детали утепления бака и труб Стальной бак емкостью 50 куб. м Лестницы Л-1, Л-2 Лестницы Л-3, Л-7, перила Лестницы Л-4, Л-5 Лестница Л-6, деталь перил, кронштейны К-1, К-2 Лестницы Л-8, Л-9 Площадка ПЛ-1. Люк в плите П-1 Площадка ПЛ-2 Плиты П-1, П-2. Фундамент Ф-1. Закладные детали Армирование Ф-1 для башни высотой ствола 9 и 12 м Армирование Ф-1 для башни высотой ствола 15 и 18 м Армирование Ф-1 для башни высотой ствола 21 и 24 м Армирование плит П-1, П-2 Производство работ Пояснительная записка Схемы производства земляных и бетонных работ Схемы возведения и монтажа бака Технологическая часть Пояснительная записка Общий вид технологического оборудования башни высотой ствола 9 м и монтажная схема Общий вид технологического оборудования башни высотой ствола 12 м и монтажная схема Общий вид технологического оборудования башни высотой ствола 15 м и монтажная схема Общий вид технологического оборудования башни высотой ствола 18 м и монтажная схема Общий вид технологического оборудования башни высотой ствола 21 м и монтажная схема Общий вид технологического оборудования башни высотой ствола 24 м и монтажная схема Опорное колено, воронка и детали крепления труб в баке Детали крепления труб в стволе высотой 9, 12 и 15 м Детали крепления труб в стволе высотой 18, 21 и 24 м Клапан-захлопка Ду100 Электротехническая часть, автоматика Пояснительная записка. Кабельный журнал Заказная спецификация электроаппаратуры Заказная спецификация электроаппаратуры. Заказная спецификация пультов и щитов Заказная спецификация кабелей и проводов. Заказная спецификация основных монтажных материалов и изделий Схема питания электрооборудования. Электрооборудование напорно-разводящего стояка. Схема принципиальная, электрическая Измерение уровня в баке водонапорной башни. Схема принципиальная электрическая Схема внешних соединений электрооборудования Электрические проводки. Электроосвещение. Молниезащита Шкаф автоматики. Общий вид. Схема монтажная Электрообогрев напорно-разводящего стояка. Общий вид и детали Датчик уровня с электрообогревом. Элементная схема датчика уровня с электрообогревом. Общий вид Датчик уровня с электрообогревом. Детали Пример установки датчиков уровней с электрообогревом |
| Разработан: | ЦНИИЭП |
| Утверждён: | 30.12.1970 ЦНИИЭП инженерного оборудования (TsNIIEP of Building Service Equipment 182) |










































































