Скачать Типовой проект 407-3-318м Альбом III. Электротехнические и санитарно-технические чертежиДата актуализации: 01.01.2021
|
| Обозначение: | Типовой проект 407-3-318м |
| Обозначение англ: | 407-3-318м |
| Статус: | не действует |
| Название рус.: | Альбом III. Электротехнические и санитарно-технические чертежи |
| Дата добавления в базу: | 01.10.2014 |
| Дата актуализации: | 01.01.2021 |
| Дата введения: | 04.08.1980 |
| Дата окончания срока действия: | 01.01.1988 |
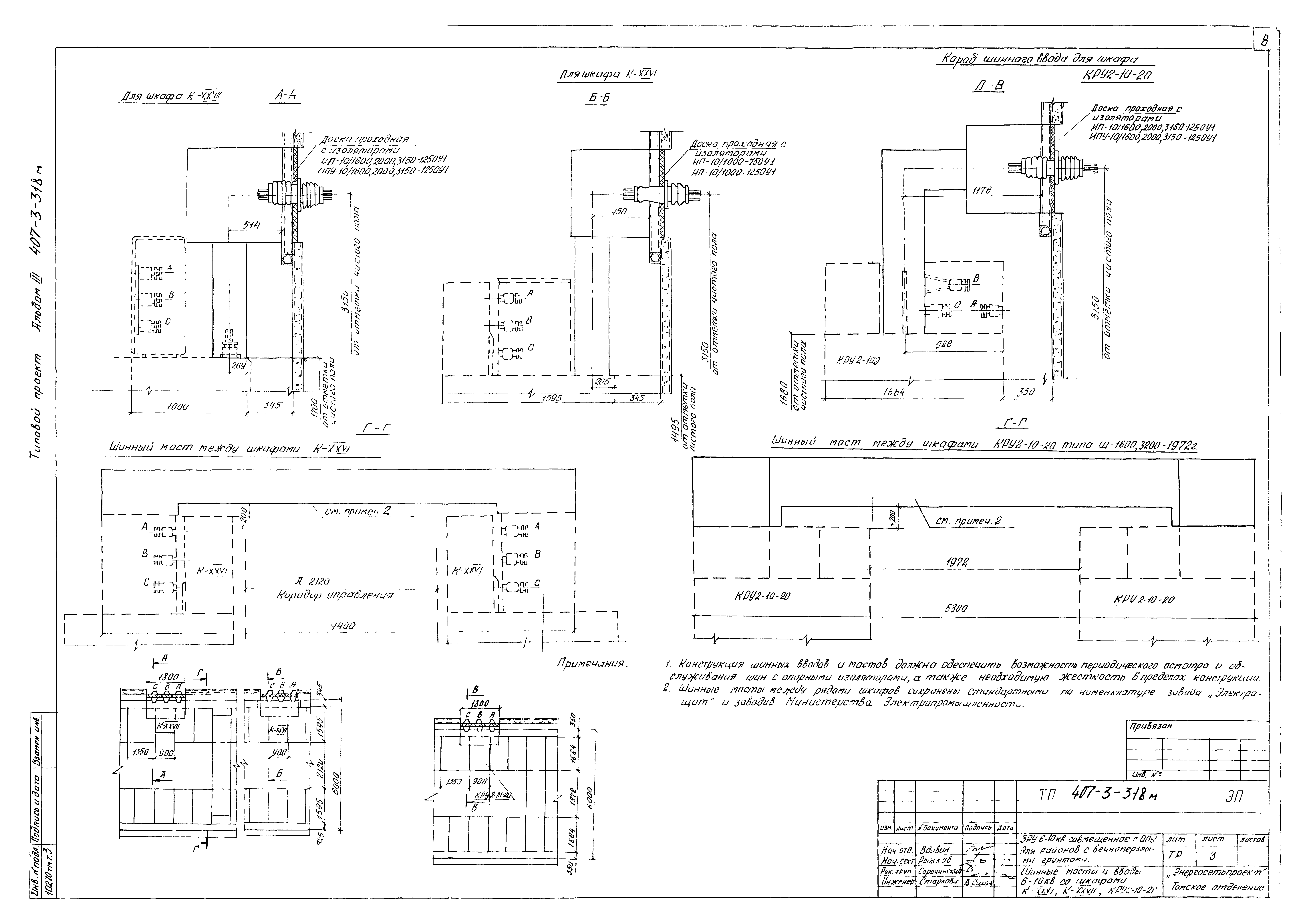
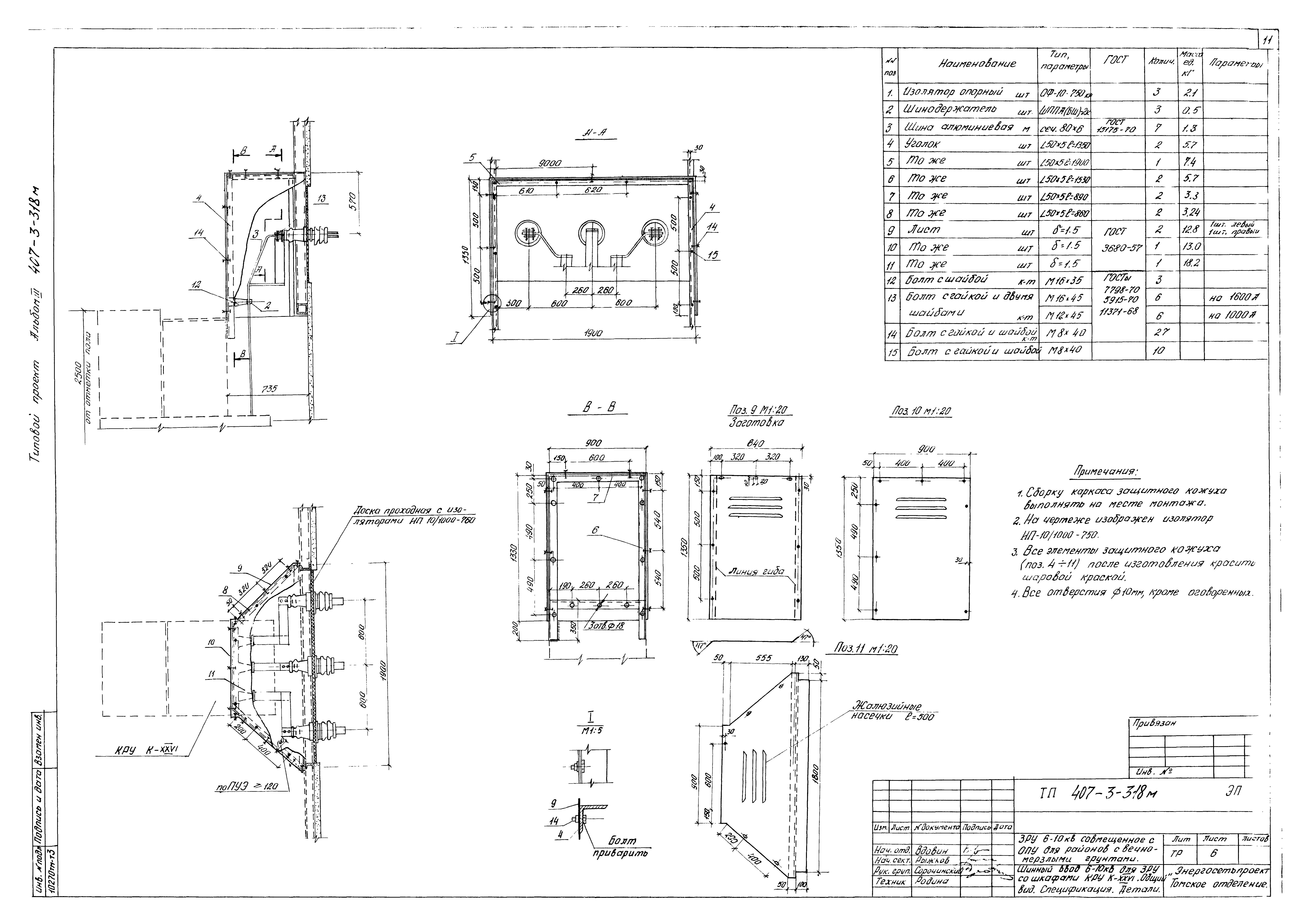
| Оглавление: | Содержание альбома Пояснительная записка Электротехническая часть Общие данные План расстановки электрооборудования, шкафов КРУ серии К-XXVI; К-XXVII, КРУ2-10-20 Шинные мосты и вводы 6 - 10 кВ со шкафами К-XXVI; К-XXVII, КРУ2-10-20 Шинные вводы 6 - 10 кВ для ЗРУ со шкафами К-XXVII. Общий вид. Спецификация. Детали Шинный ввод 6 - 10 кВ для ЗРУ со шкафами КРУ2-10-20. Общий вид. Спецификация. Детали Шинный ввод 6 - 10 кВ для ЗРУ со шкафами К-XXVI. Общий вид. Спецификация. Детали Электрическое отопление и вентиляция Освещение. План и схема Проходные доски для изоляторов ИП-10/1000-750У1, 1250У1, ИП, ИПУ-10/1600, 2000, 3150-1250У1 Проходная доска для изоляторов ИП, ИПУ-10/1600, 2000, 3150-1250У1, ИП-10/1000-750У1, 1250У1. Детали План размещений металлоконструкций для кабелей. Разрезы Шкаф для установки аккумуляторов связи Отопление и вентиляция Общие данные План, разрез 1-1, схема ВЕ1. Спецификация Вентиляция. Установки В1, В2. Планы, разрезы, спецификация Установка электрических печей типа ПЭТ-4 |
| Разработан: | Томское отделение Энергосетьпроекта |
| Утверждён: | 04.08.1980 Минэнерго СССР (USSR Minenergo 50) |





















