Скачать Типовой проект 901-3-267.89 Альбом 2. Технология производства. Внутренний водопровод и канализация. Эскизные чертежи общих видов. Отопление и вентиляцияДата актуализации: 01.01.2021
|
| Обозначение: | Типовой проект 901-3-267.89 |
| Обозначение англ: | 901-3-267.89 |
| Статус: | не определен законодательством |
| Название рус.: | Альбом 2. Технология производства. Внутренний водопровод и канализация. Эскизные чертежи общих видов. Отопление и вентиляция |
| Дата добавления в базу: | 01.09.2013 |
| Дата актуализации: | 01.01.2021 |
| Дата введения: | 16.06.1989 |
| Дата окончания срока действия: | 30.06.2003 |
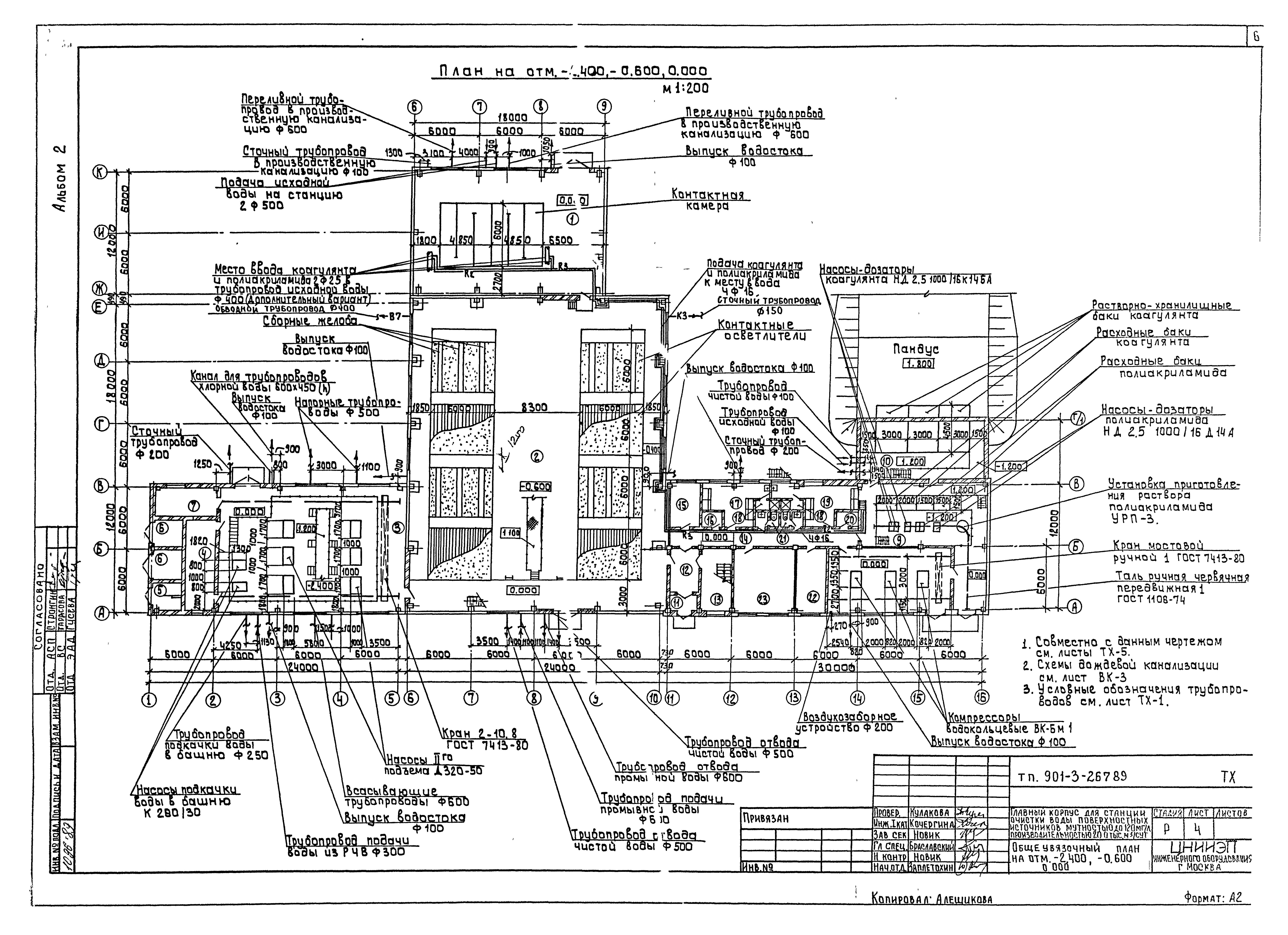
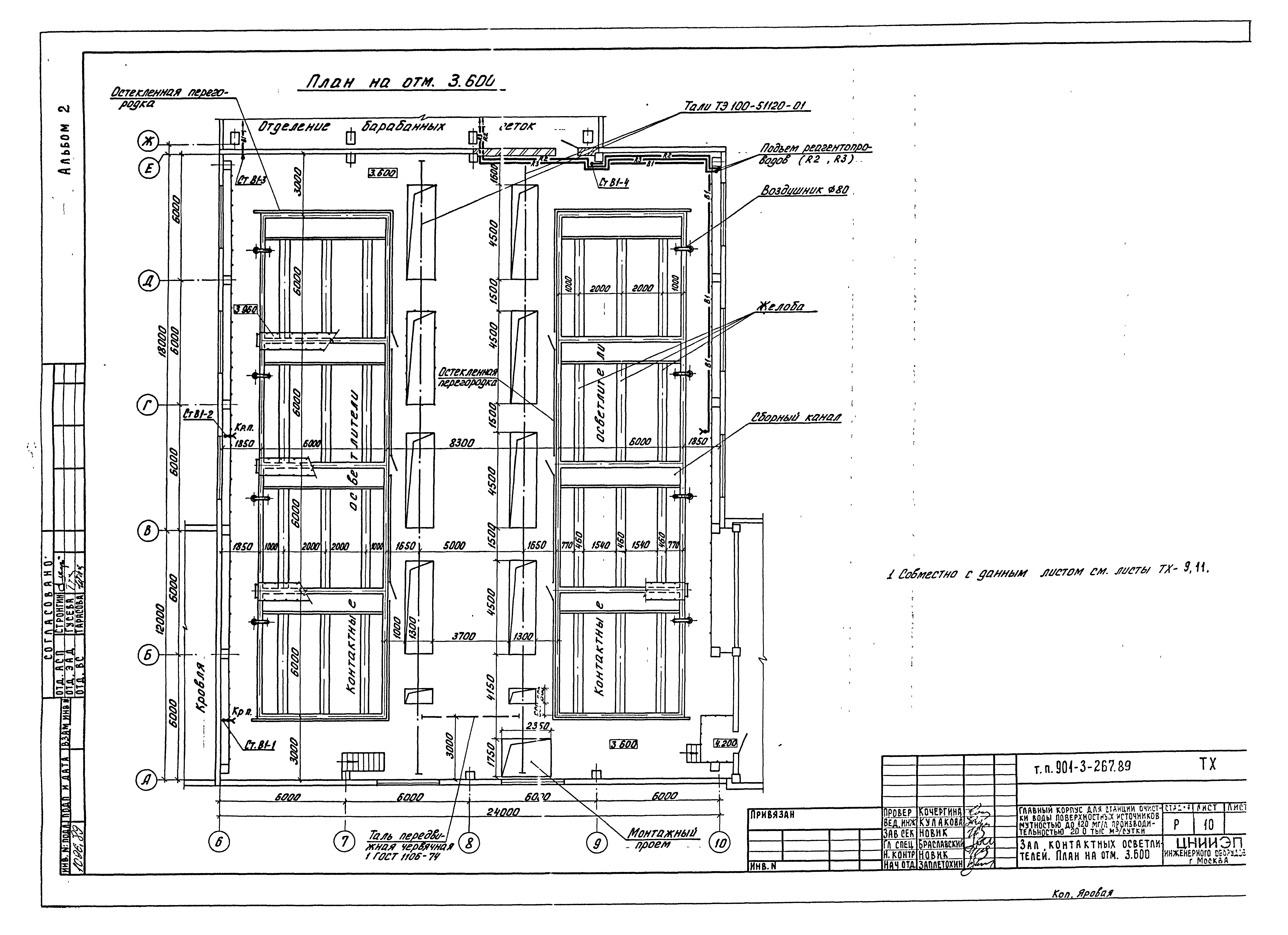
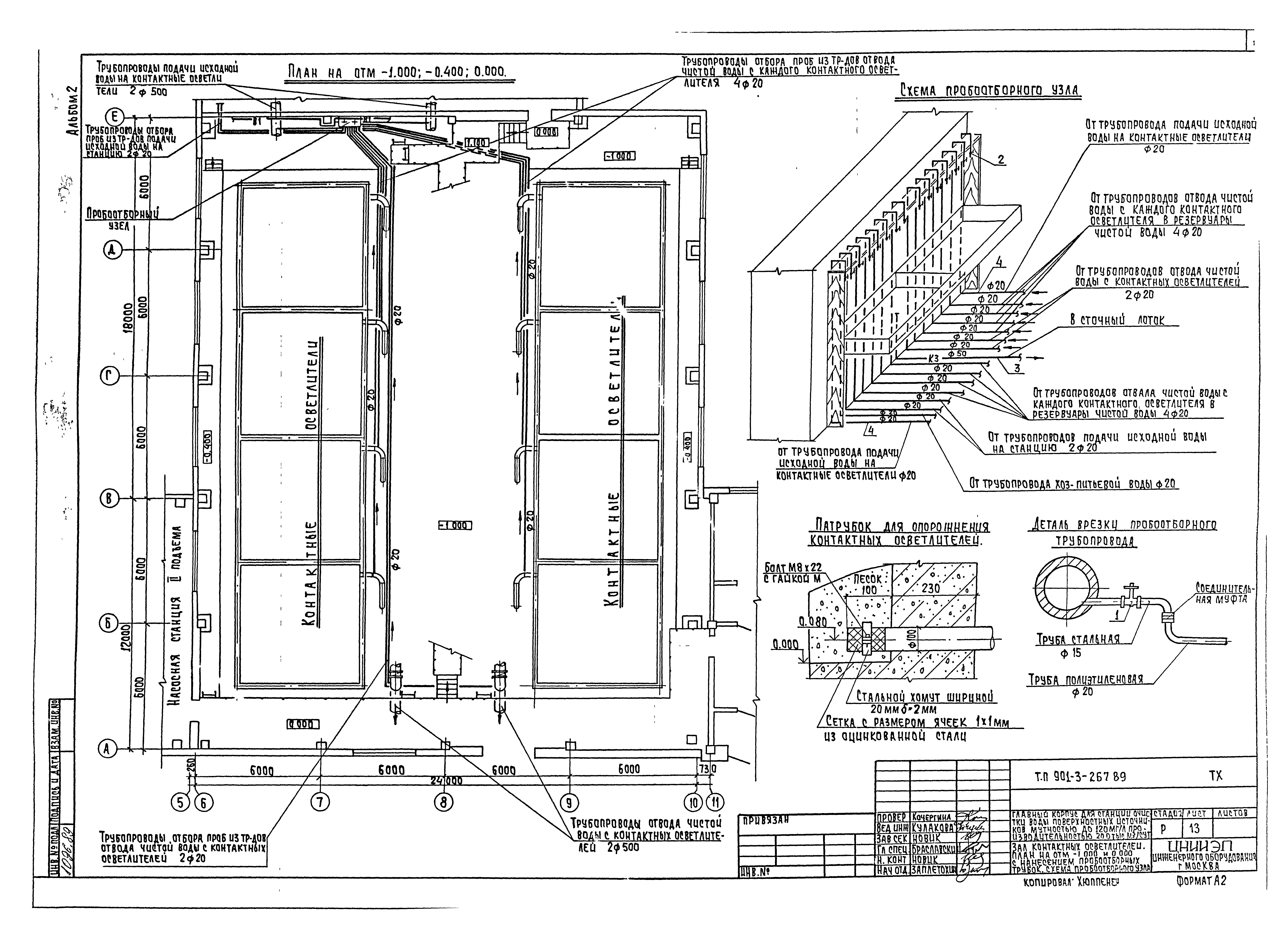
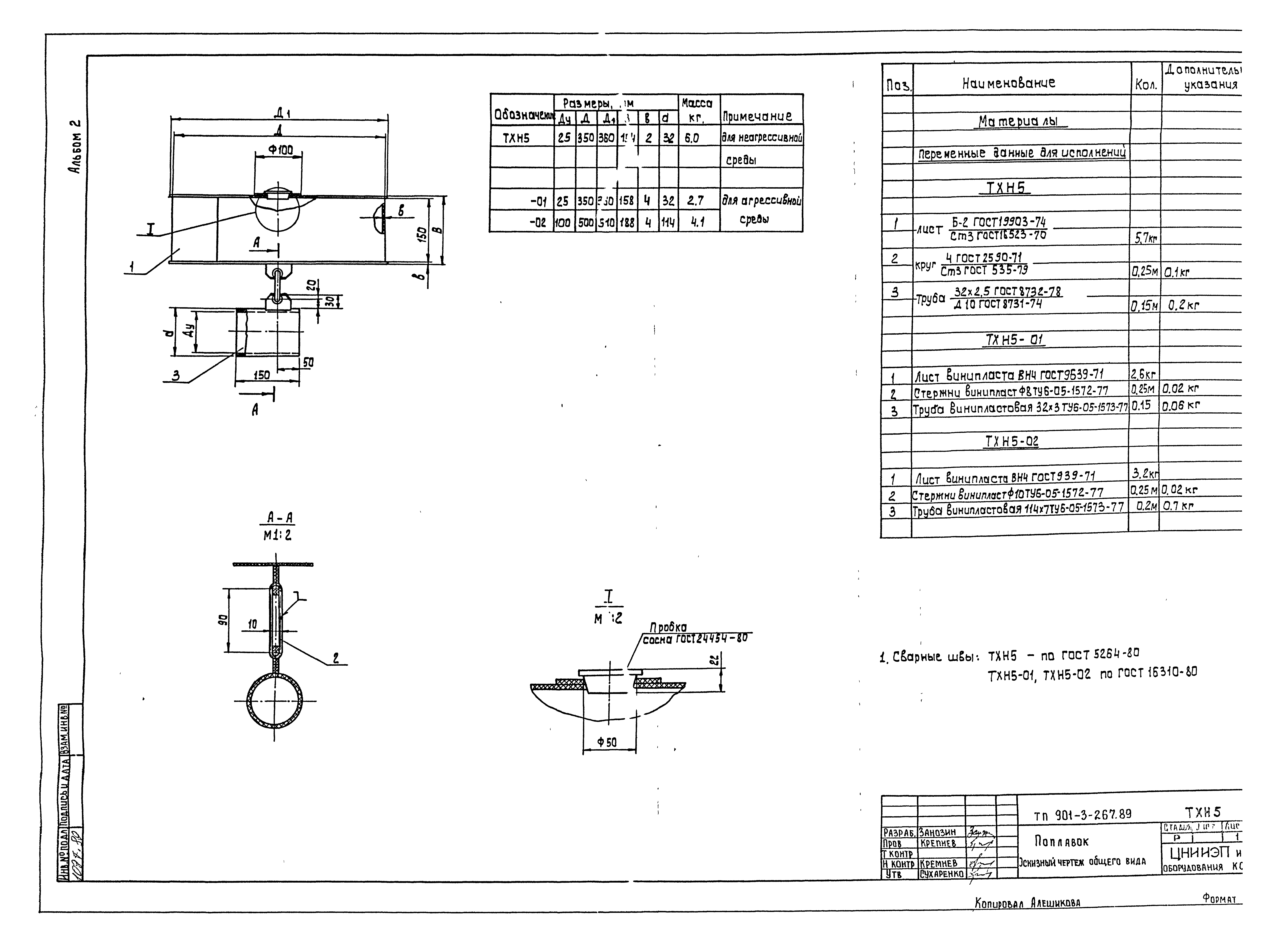
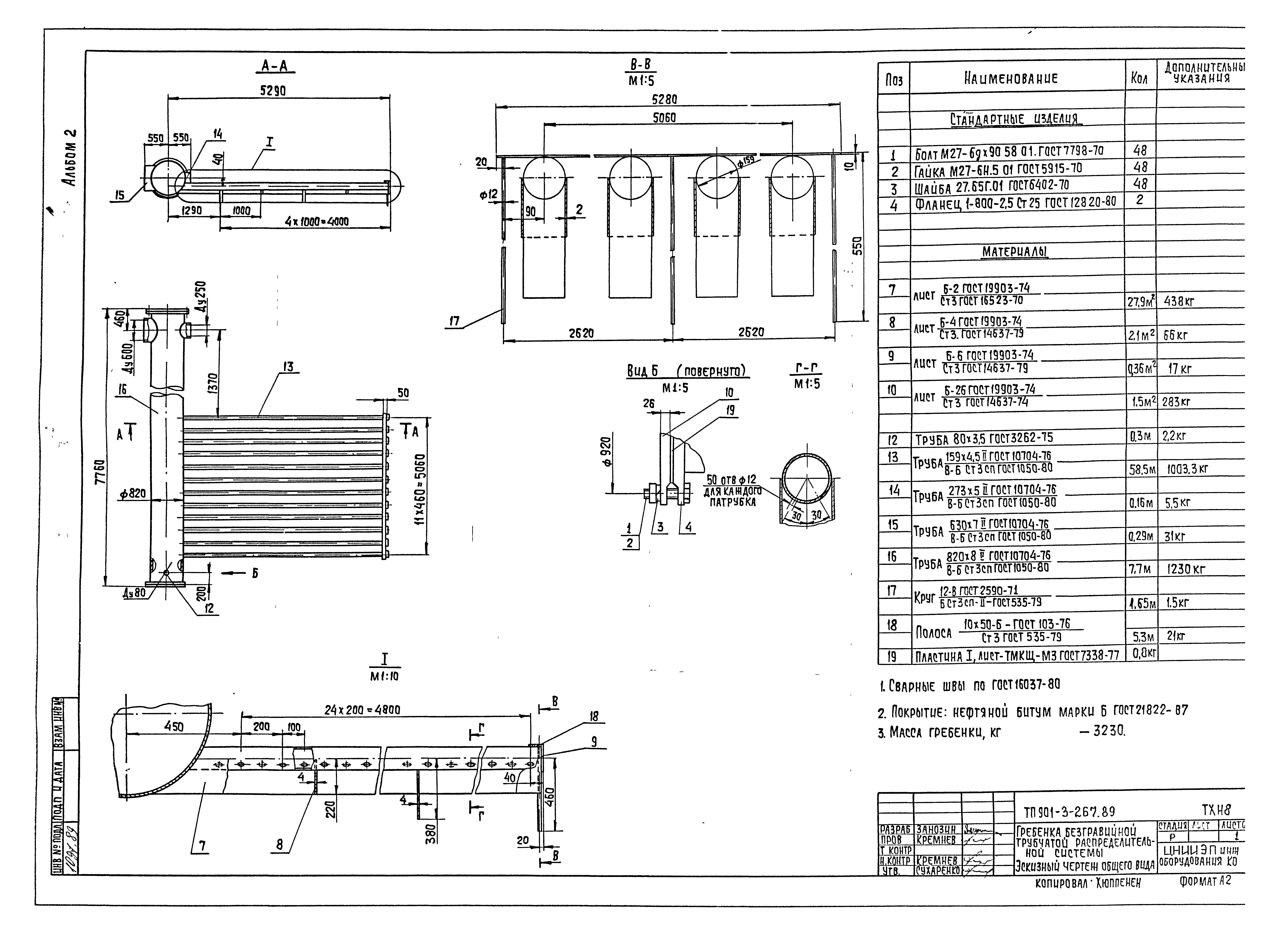
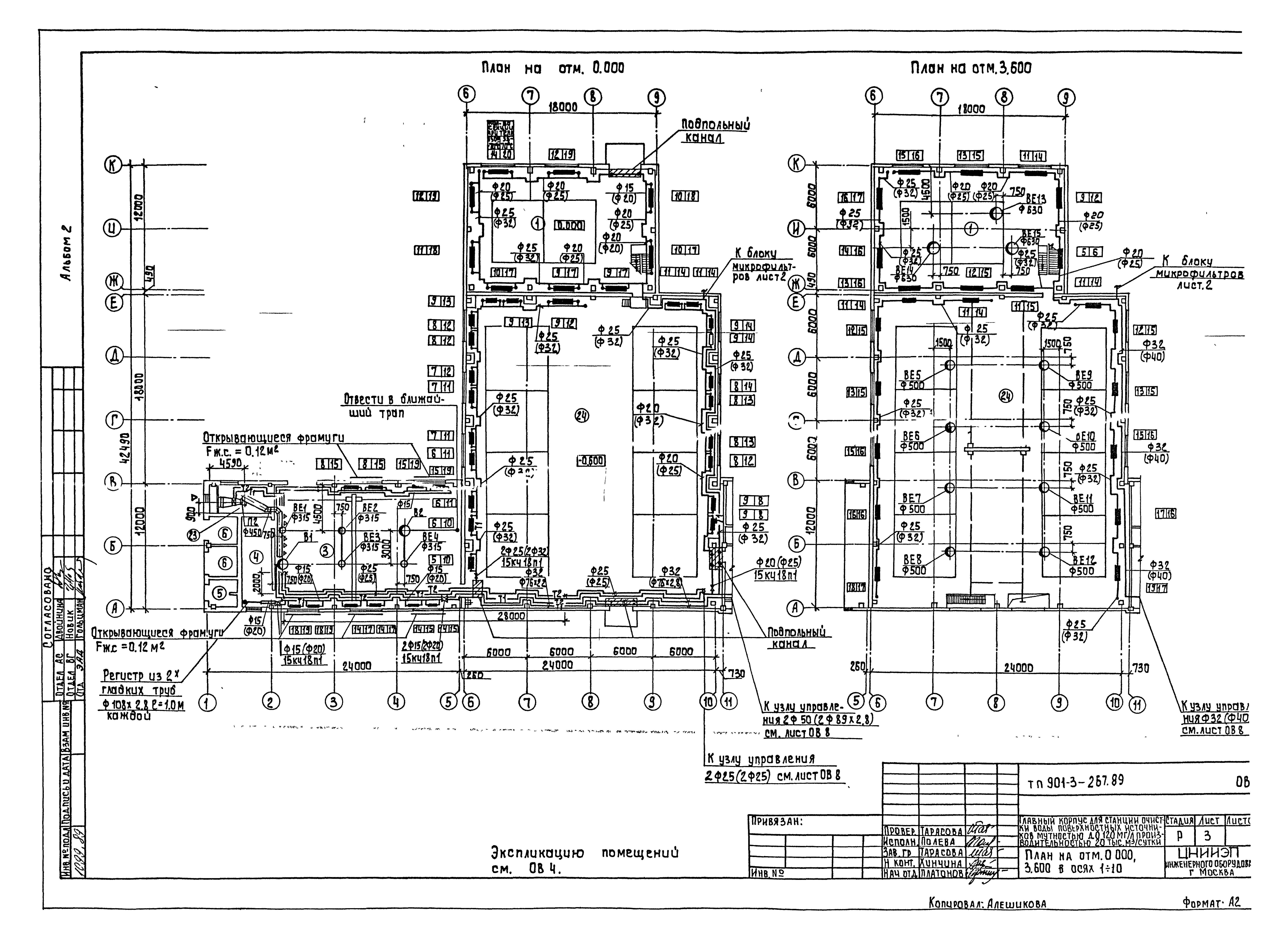
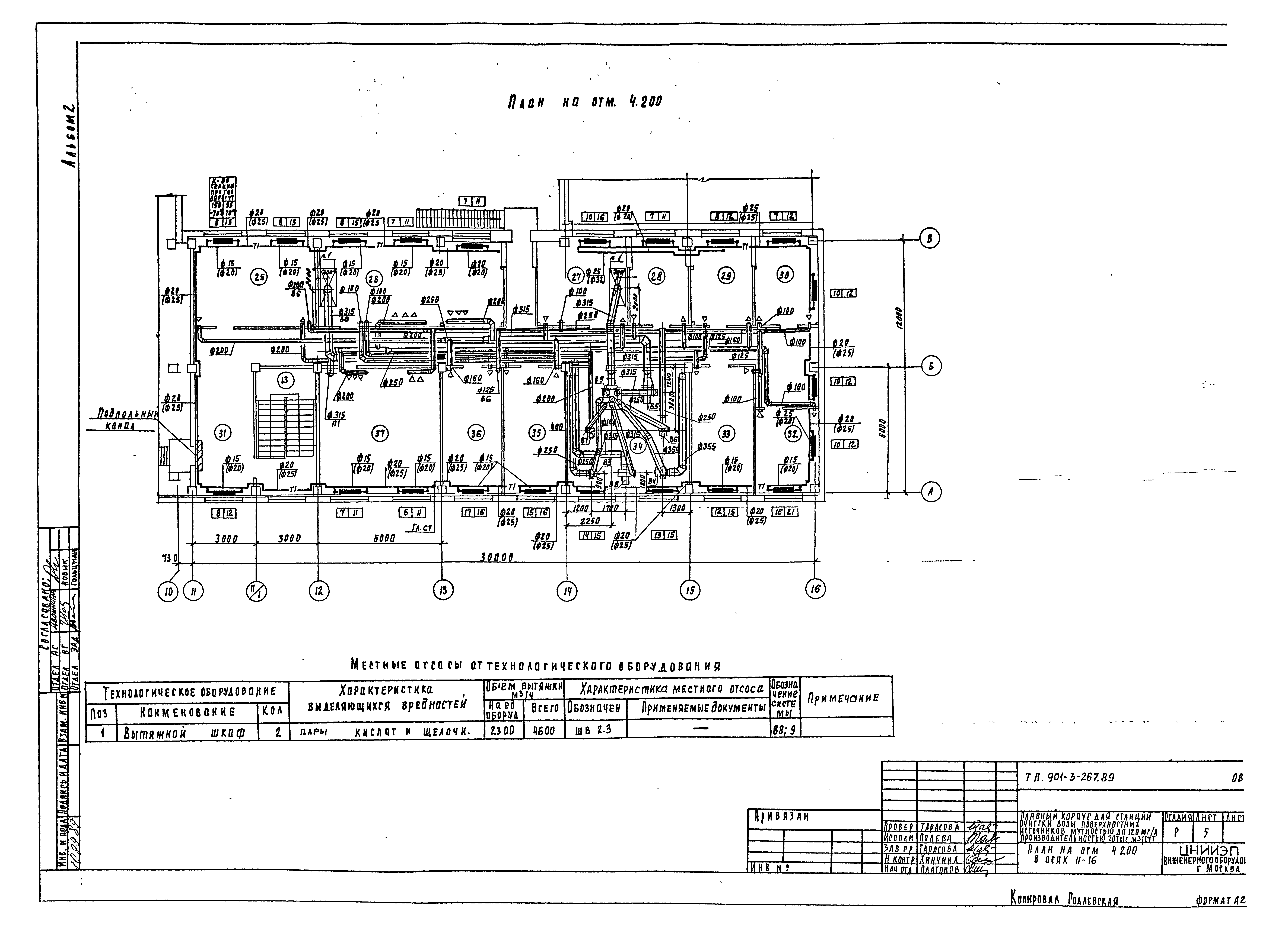
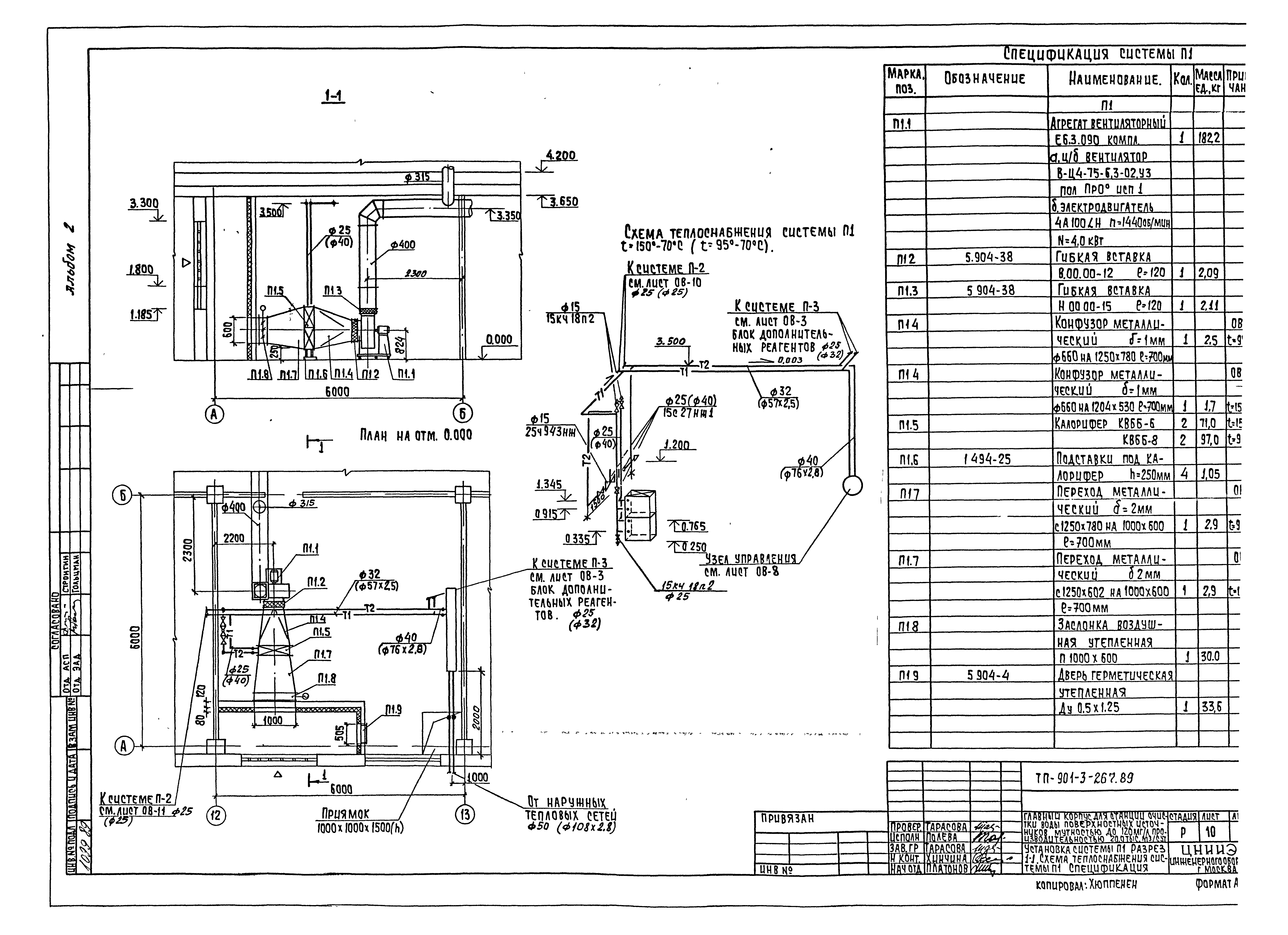
| Оглавление: | Чертежи основного комплекта марки ТХ Общие данные Принципиальная схема обработки воды Принципиальная схема приготовления основных реагентов Общеувязочный план на отм. - 2.400; - 0.600; 0.000 Общеувязочный план на отм. 3.600; 4.200. Экспликация помещений Отделение барабанных сеток. Планы на отм. 0.000, 3.600, 7.000 Отделение барабанных сеток. Разрезы 1-1, 2-2, 3-3 Отделение барабанных сеток. Схемы трубопроводов В1, В7, К3 Зал контактных осветлителей. План на отм. - 1.000; 0.000 Зал контактных осветлителей. План на отм. 3.600 Зал контактных осветлителей. Разрезы 4-4, 5-5 Зал контактных осветлителей. Гребенка безгравийной трубчатой распределительной системы Зал контактных осветлителей. План на отм. - 1.000 и 0.000 с нанесением пробоотборных трубок. Схема пробоотборного узла Зал контактных осветлителей. Схемы трубопроводов В1 и В7 Зал контактных осветлителей. Схемы трубопроводов В1 и К3 Отделение коагулянта и полиакриламида. Компрессорная. План на отм. - 1.200; 0.000 Отделение коагулянта и полиакриламида. Компрессорная. Фрагмент плана на отм. 1.200; 1.800. Разрезы 6-6, 7-7 Отделение коагулянта и полиакриламида. Компрессорная. Разрезы 8-8, 9-9. сечение А-А Отделение коагулянта и полиакриламида. Компрессорная. Схемы трубопроводов R2, R3, К3 Отделение коагулянта и полиакриламида. Компрессорная. Схемы трубопроводов В1, В7, А0 Отделение коагулянта и полиакриламида. Компрессорная. Лаборатории. План на отм. 4.200 с расстановкой мебели и оборудования Насосная станция II-го подъема. План на отм. - 2.400; - 1.200; 0.000. разрезы 10-10, 11-11 Насосная станция II-го подъема. Схемы трубопроводов В1, К3, R1 Механическая мастерская Чертежи основного комплекта марки ТХН Система воздухораспределительная в растворно-хранилищных баках коагулянта Система воздухораспределительная в расходных баках полиакриламида Система гидросмыва Система воздухораспределительная в расходных баках коагулянта Поплавок Рама лебедки Устройство водозаборное сечением 200 Гребенка безгравийной трубчатой распределительной системы Тройник Отвод Чертежи основного комплекта марки ВК Общие данные Планы на отм. 0.000; 4.200 с разводкой трубопроводов. Схемы В1, Т3, К1, К2 План кровли. Схемы водостоков К2 Чертежи основного комплекта марки ОВ Общие данные Планы в осях 1 - 10 на отм. 0.000; 3.600 Планы в осях 11 - 16 на отм. 0.000 Планы в осях 11 - 16 на отм. 4.200 Схема системы отопления Схема отопления. Схема теплоснабжения калориферов Схема отопления. Узел управления Схемы вентиляции П1, П2, В1 - В2, В3 - В9, ВЕ1 - ВЕ4, ВЕ5 - ВЕ12, ВЕ13 - ВЕ15, ВЕ17 - ВЕ18 Установка системы П1. Разрез 1-1. Схема теплоснабжения системы П1. Спецификация Установка системы В3 - В9. Разрез 1-1. Установка системы П2. Разрез 2-2. Схема теплоснабжения системы П2 Спецификация Конфузор. Переход |
| Разработан: | ЦНИИЭП |
| Утверждён: | 29.07.1986 Госгражданстрой (Gosgrazhdanstroy 242) |
| Заменяет собой: |
|

















































