Скачать Типовой проект 901-3-267.89 Альбом 3. Архитектурные решения. Конструкции металлические. Антикоррозионная защита конструкций. Организация строительстваДата актуализации: 01.01.2021
|
| Обозначение: | Типовой проект 901-3-267.89 |
| Обозначение англ: | 901-3-267.89 |
| Статус: | не определен законодательством |
| Название рус.: | Альбом 3. Архитектурные решения. Конструкции металлические. Антикоррозионная защита конструкций. Организация строительства |
| Дата добавления в базу: | 01.09.2013 |
| Дата актуализации: | 01.01.2021 |
| Дата введения: | 16.06.1989 |
| Дата окончания срока действия: | 30.06.2003 |
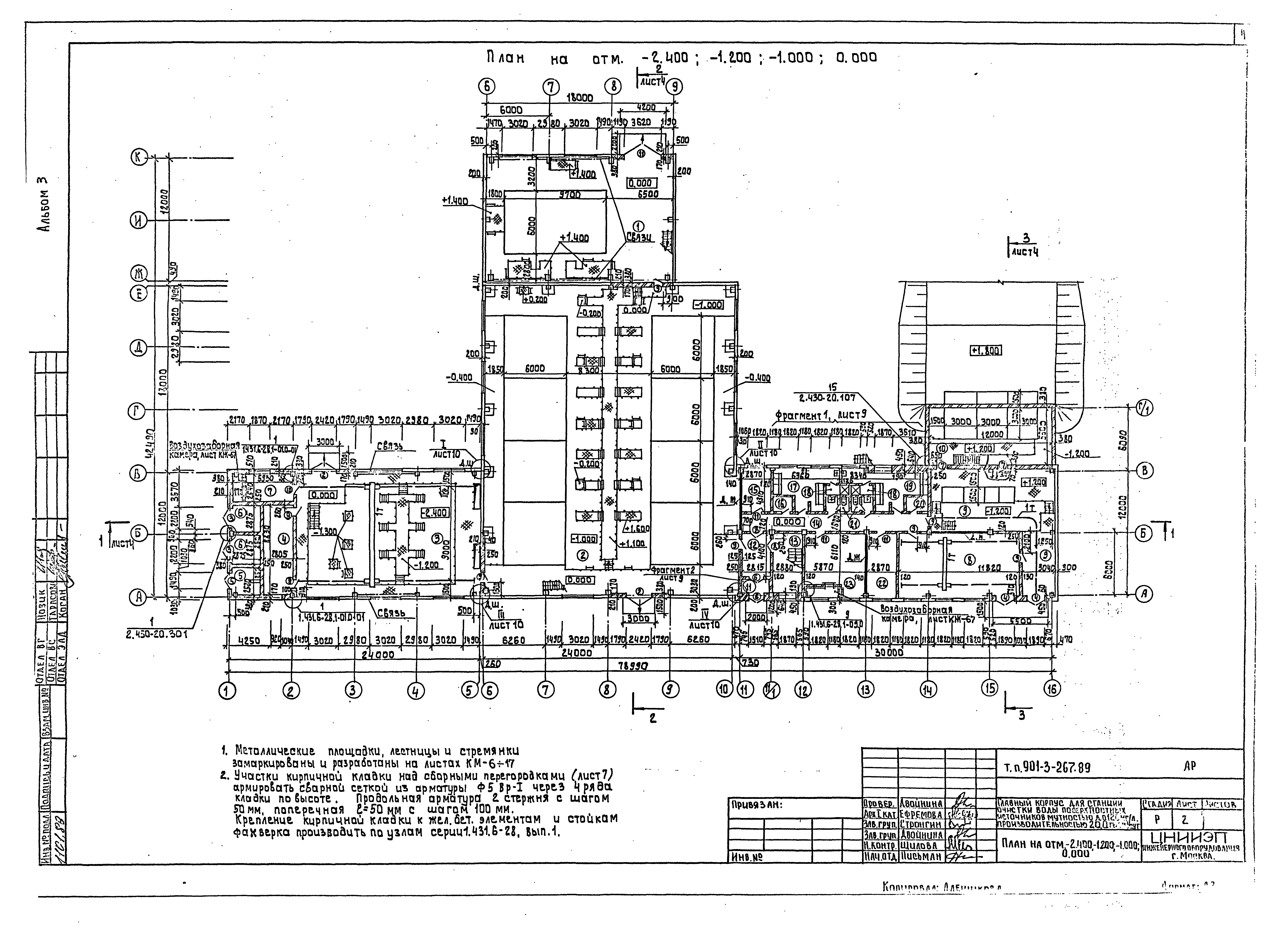
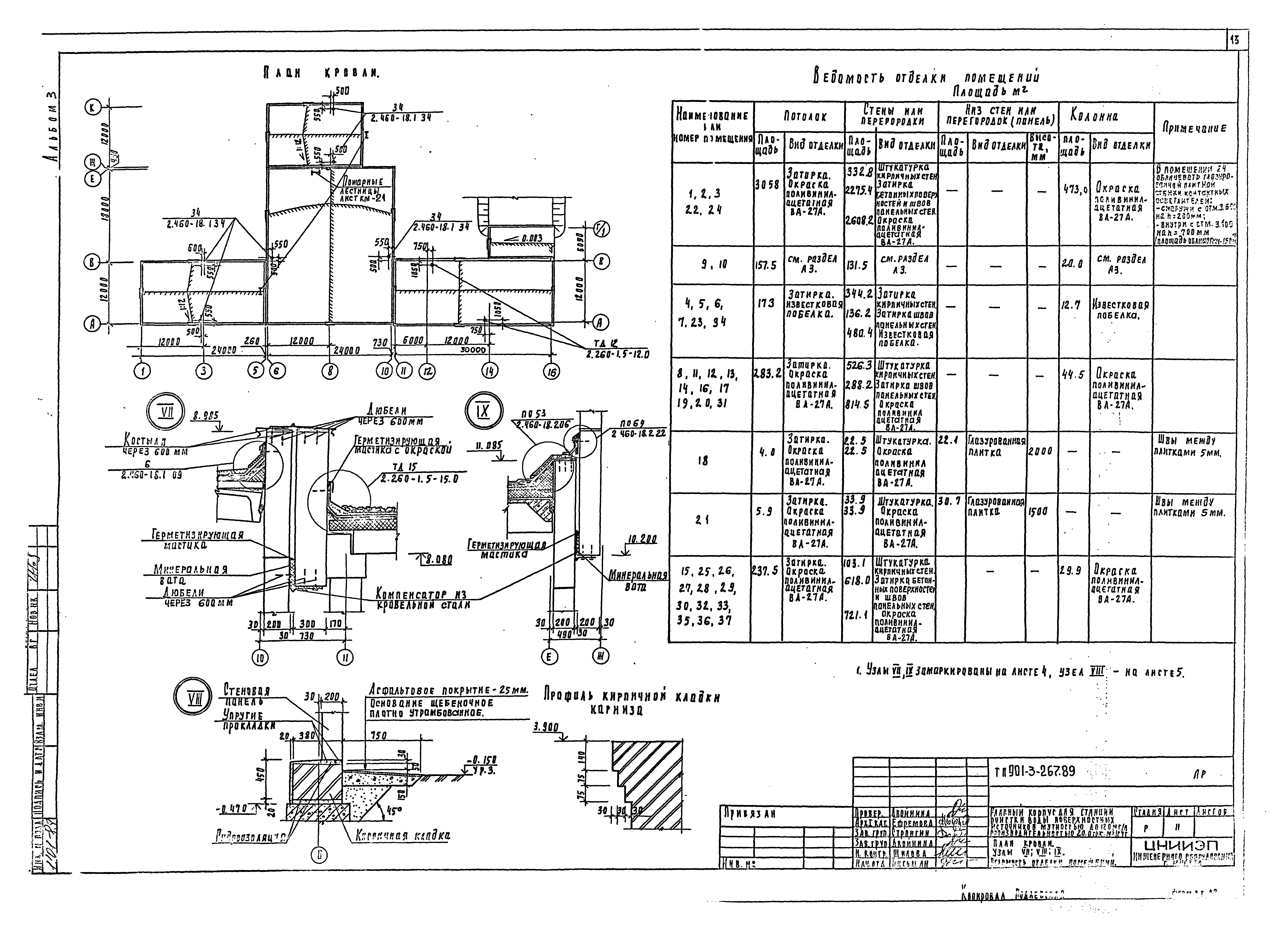
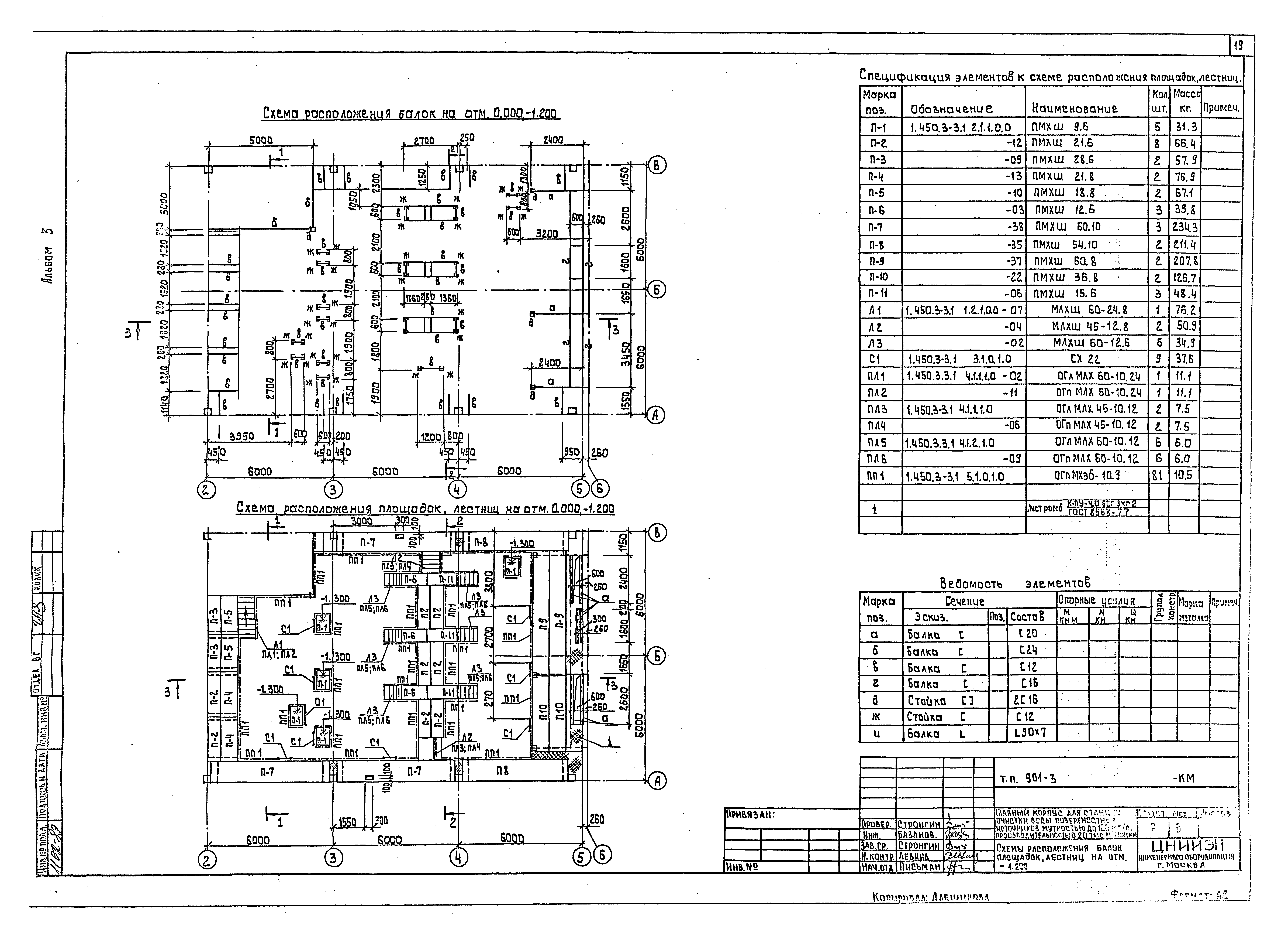
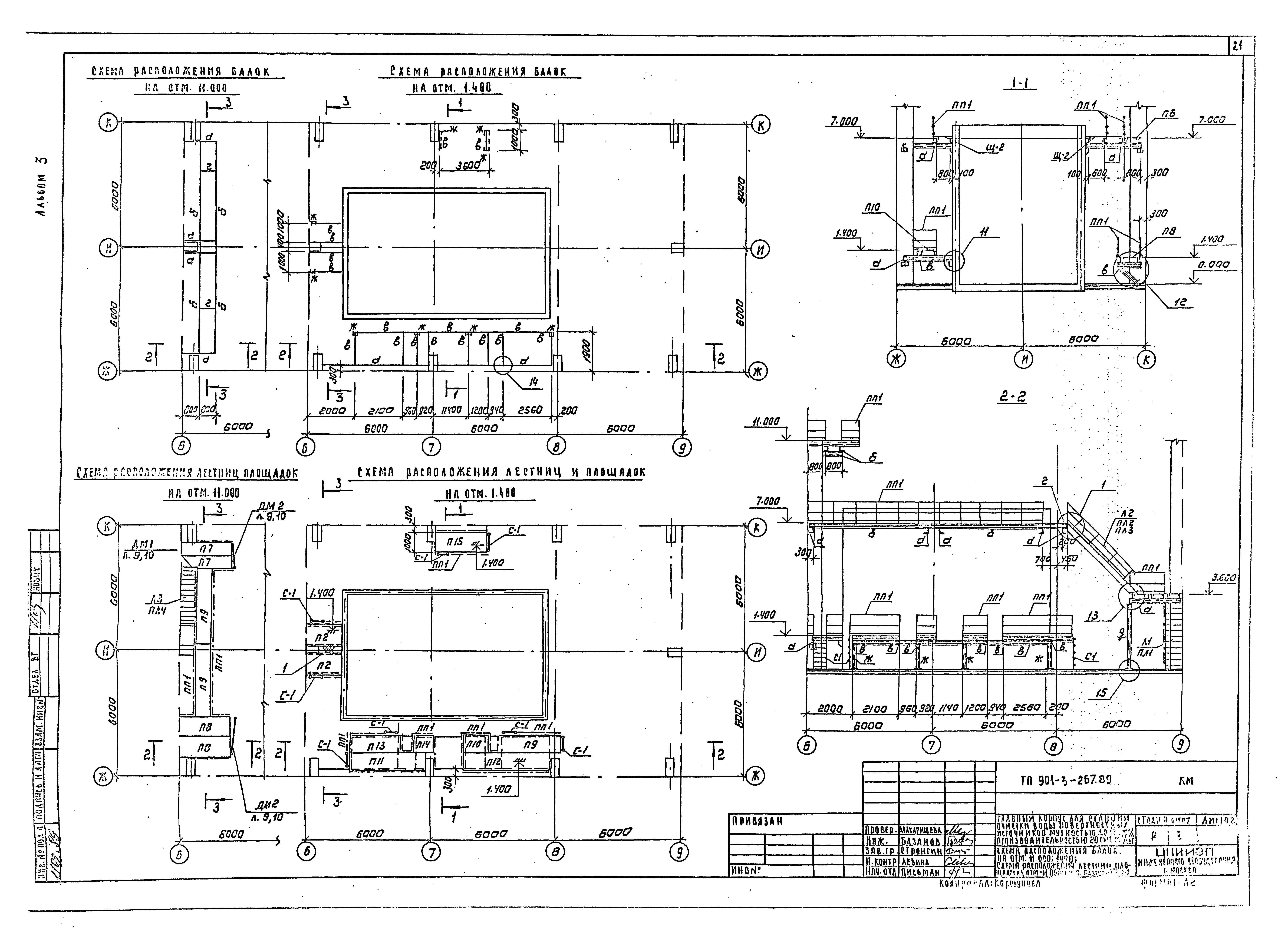
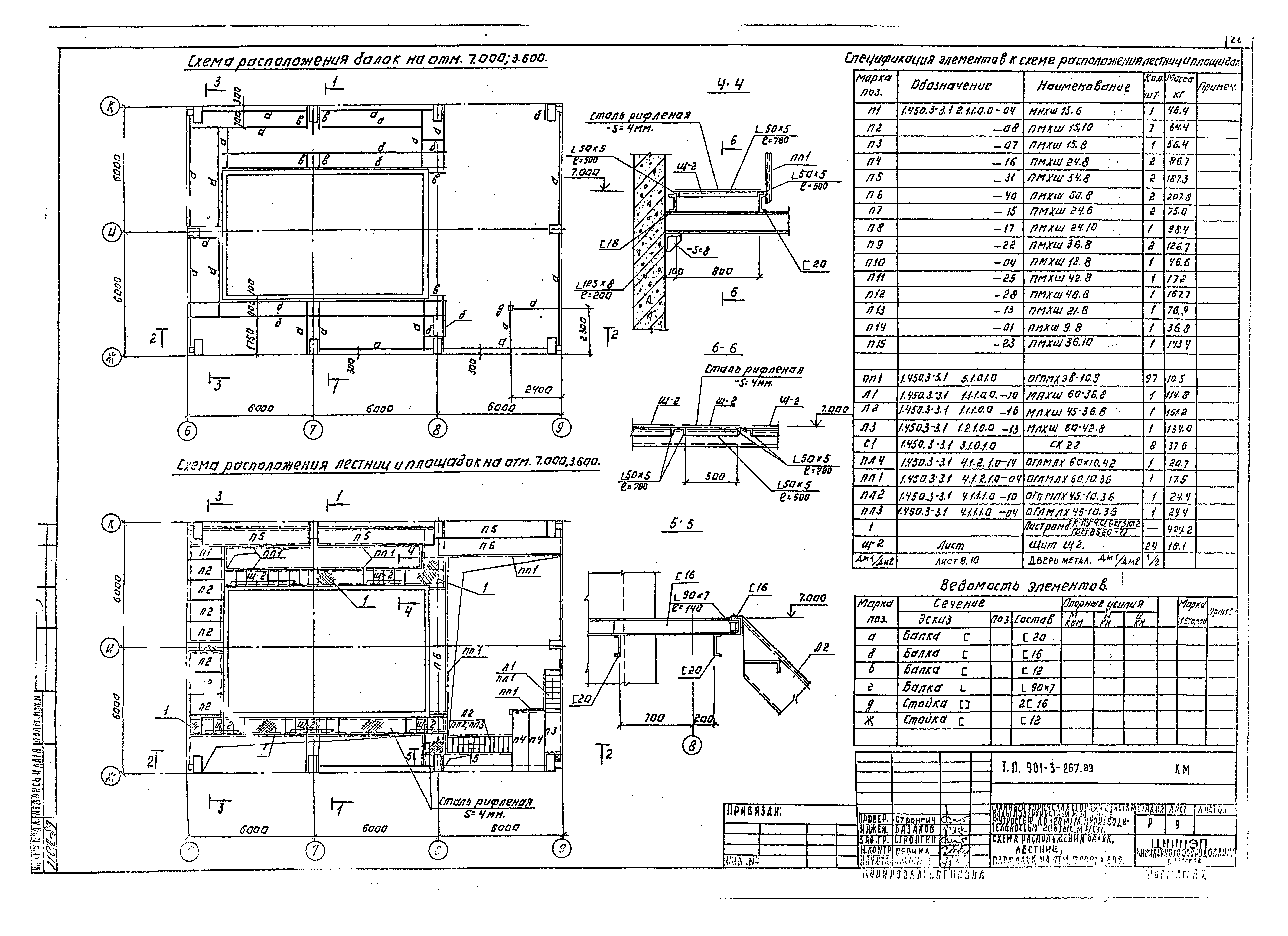
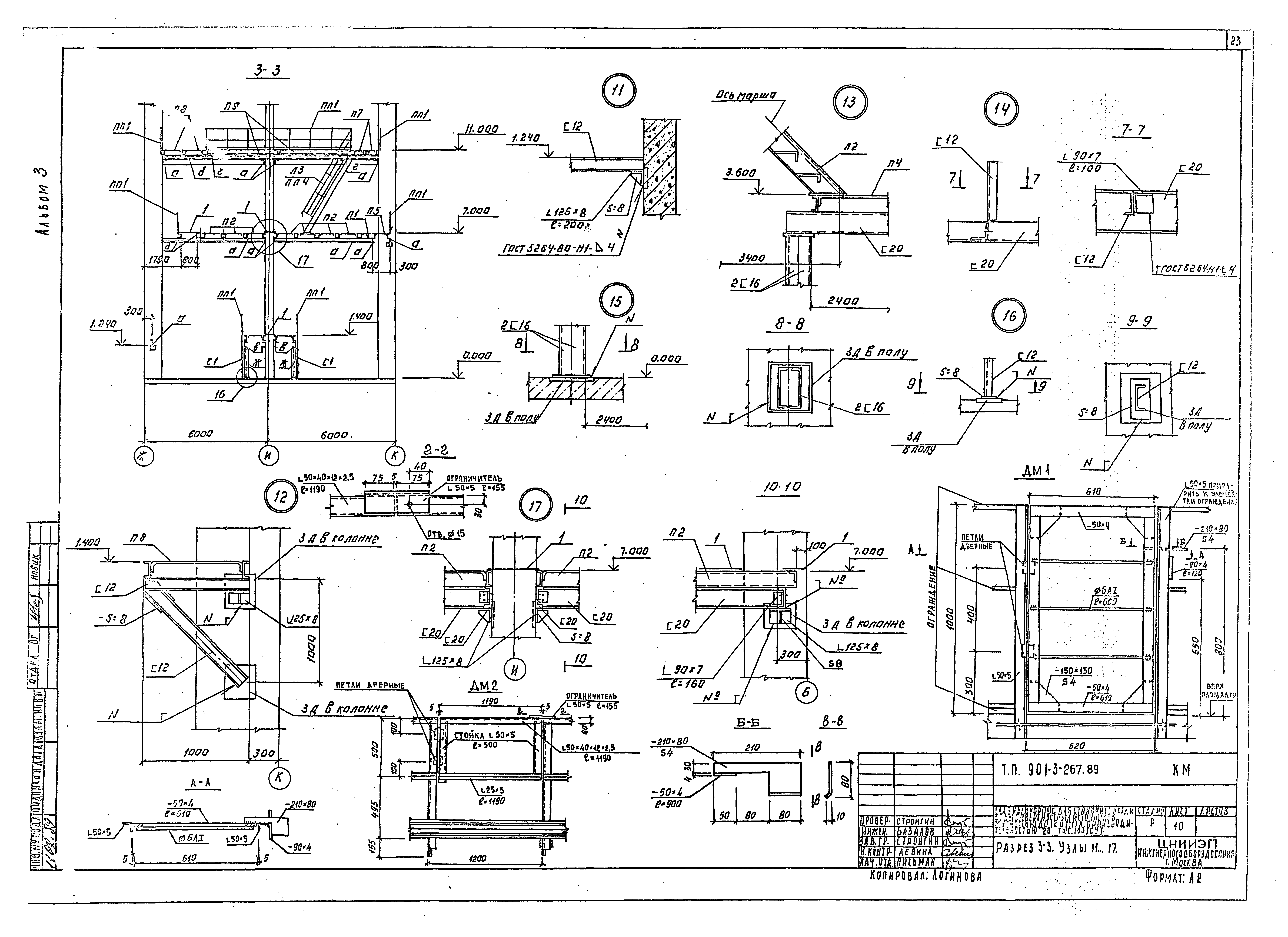
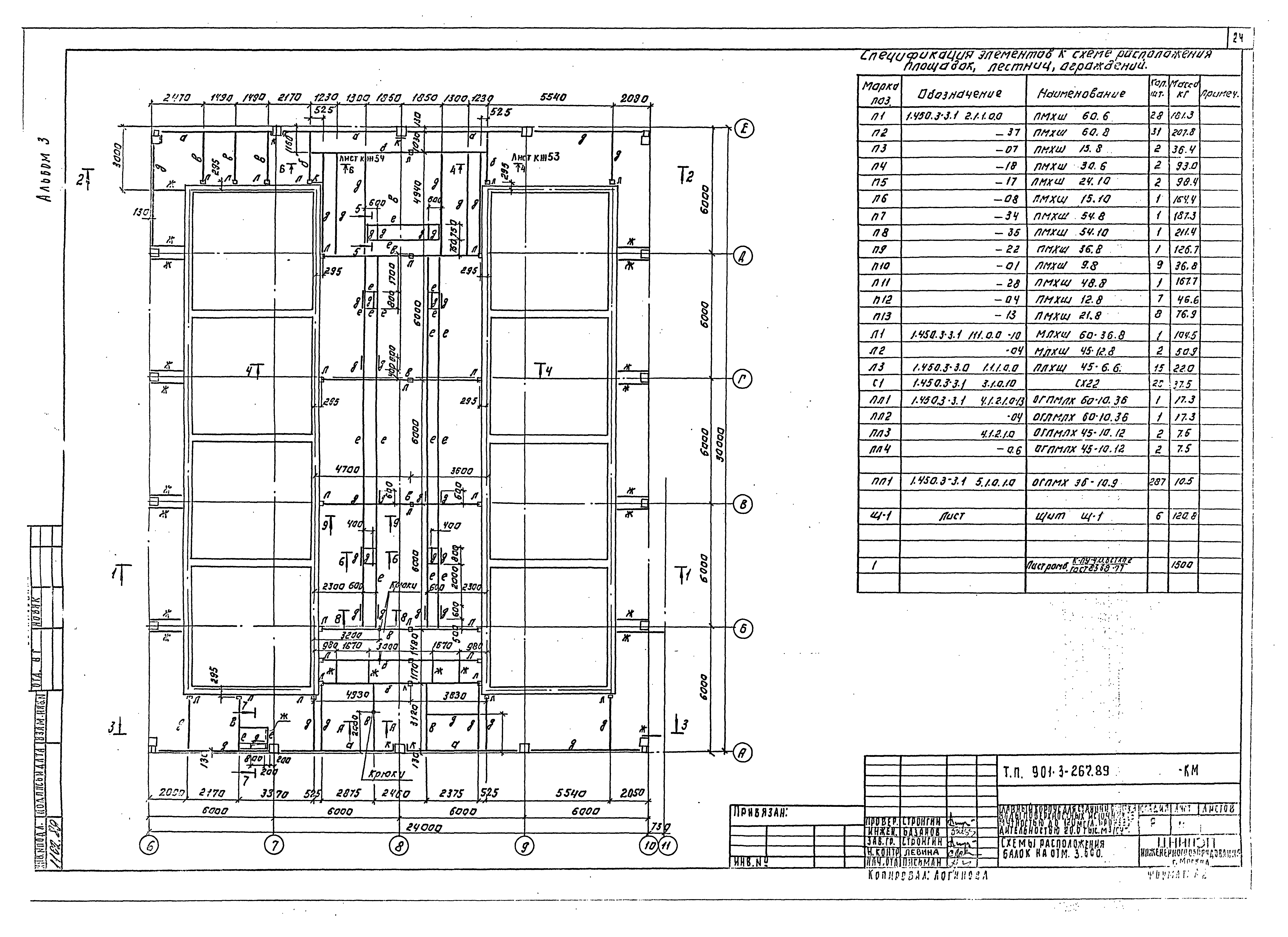
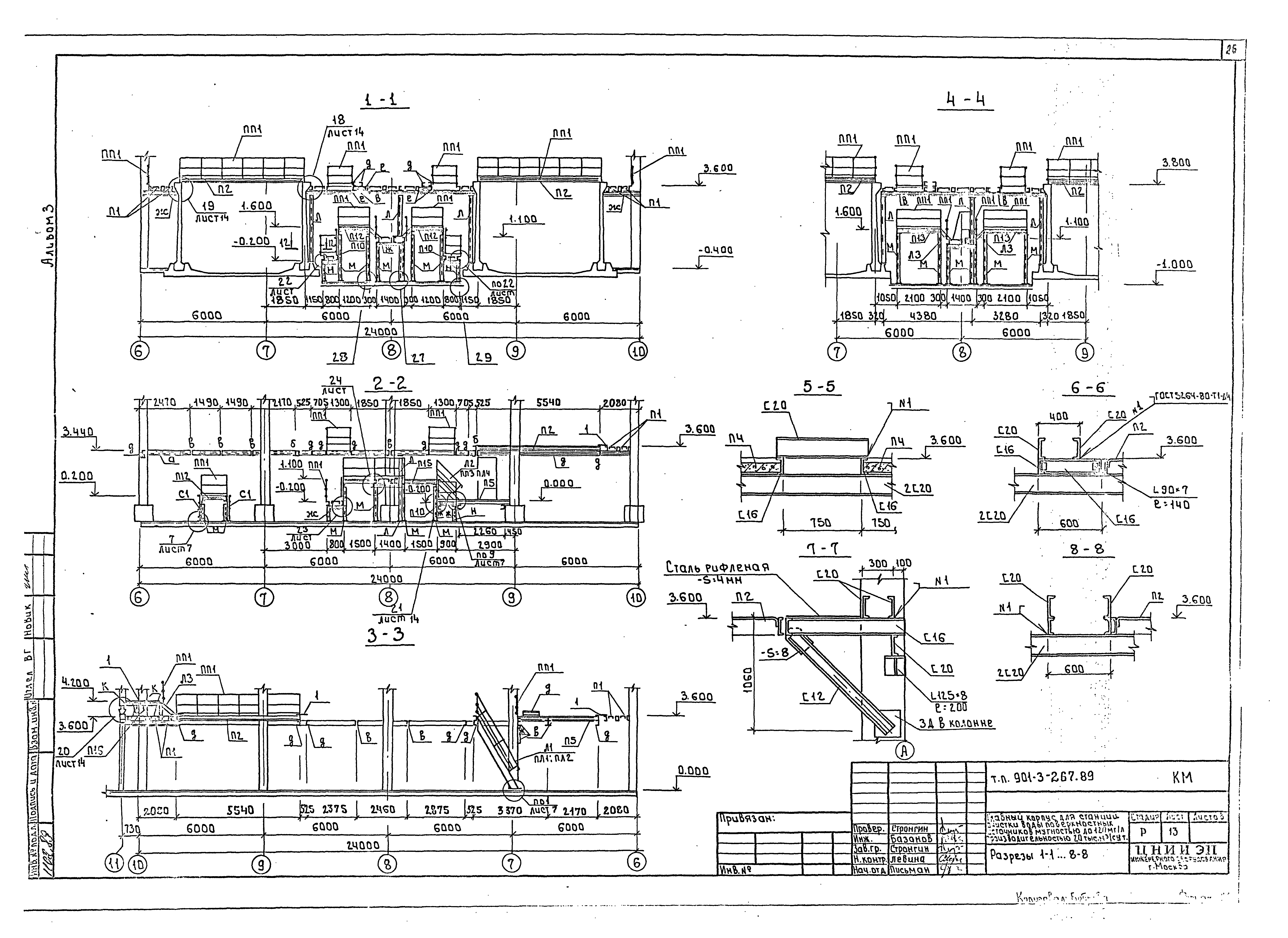
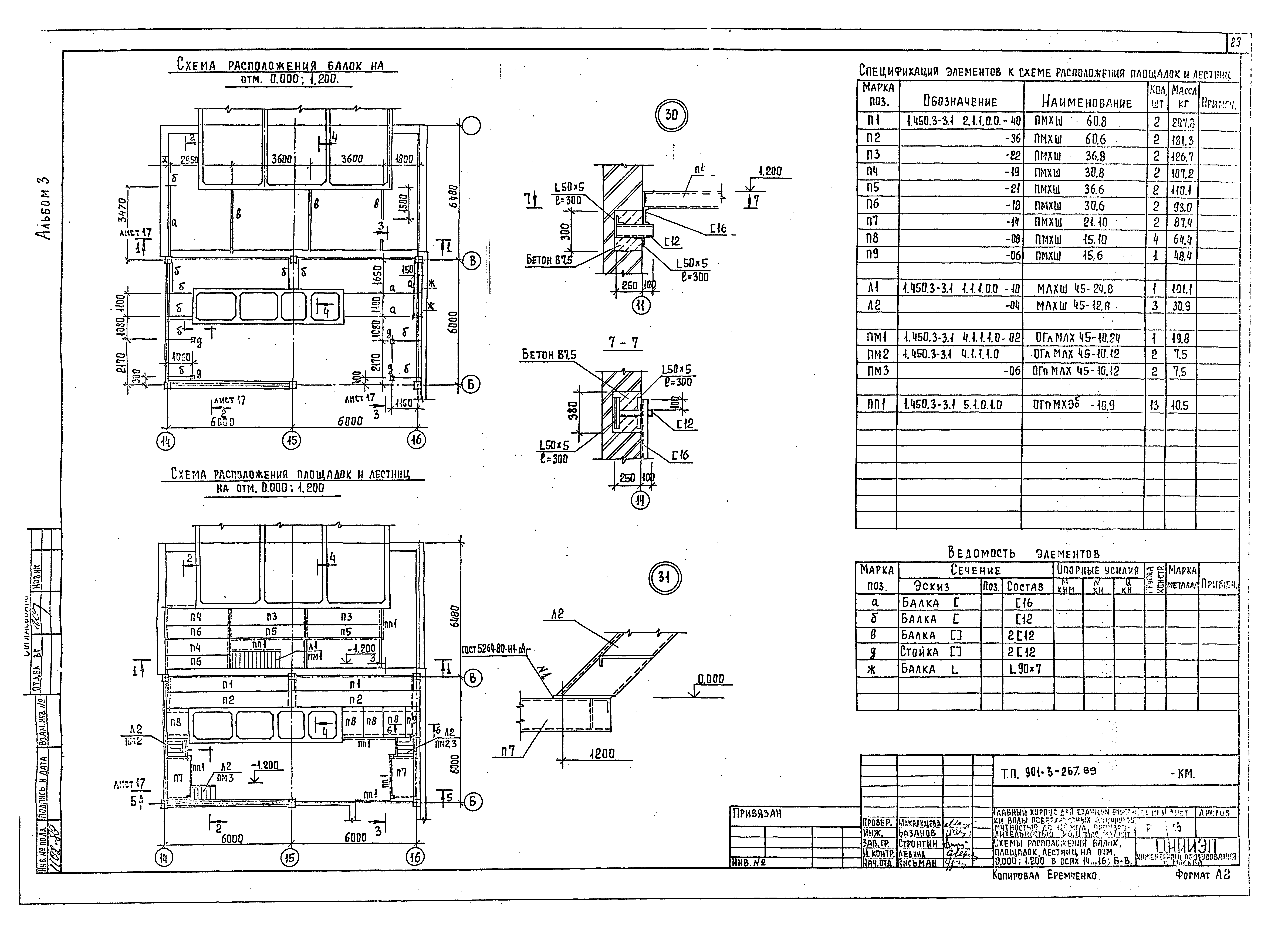
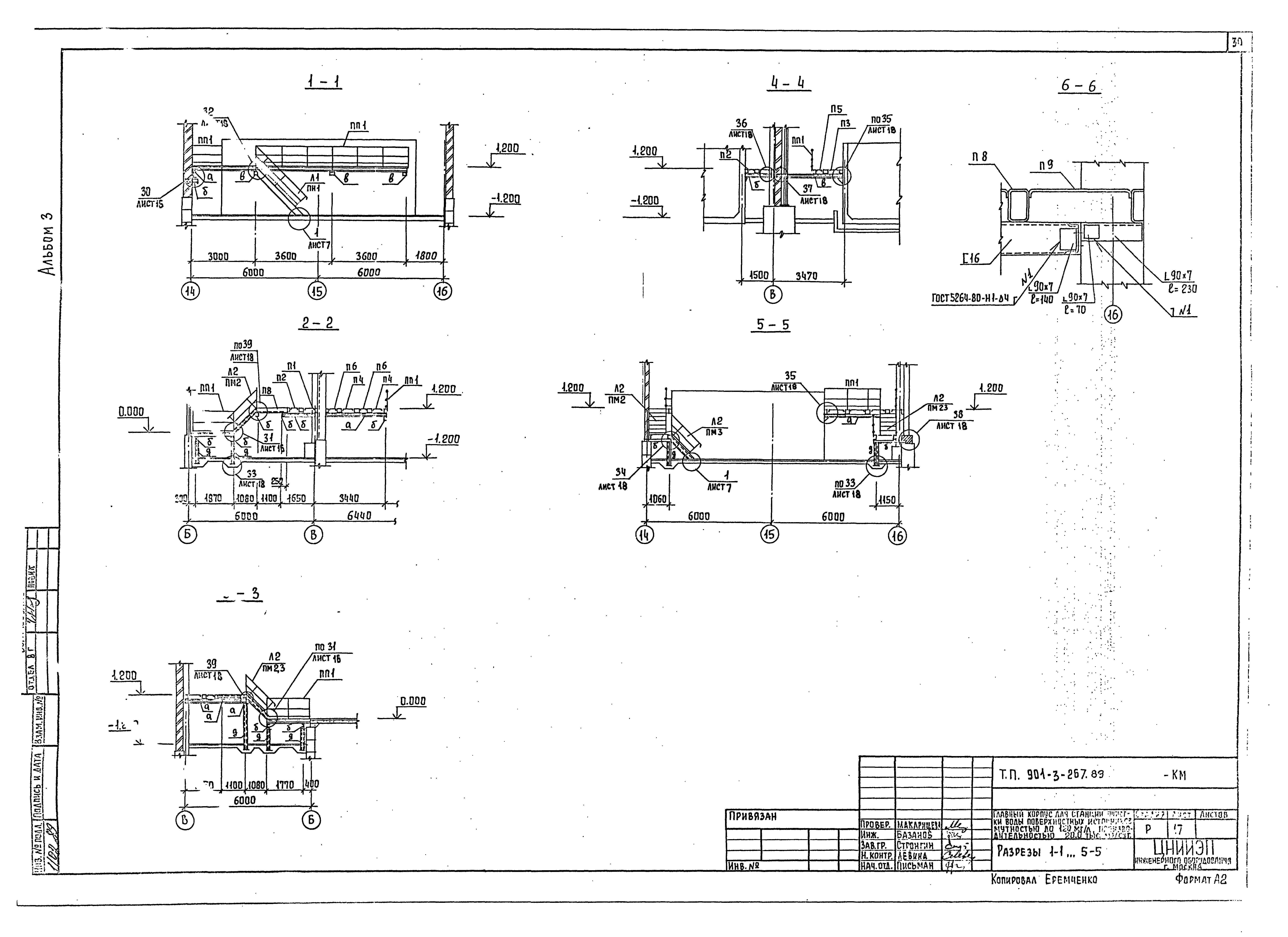
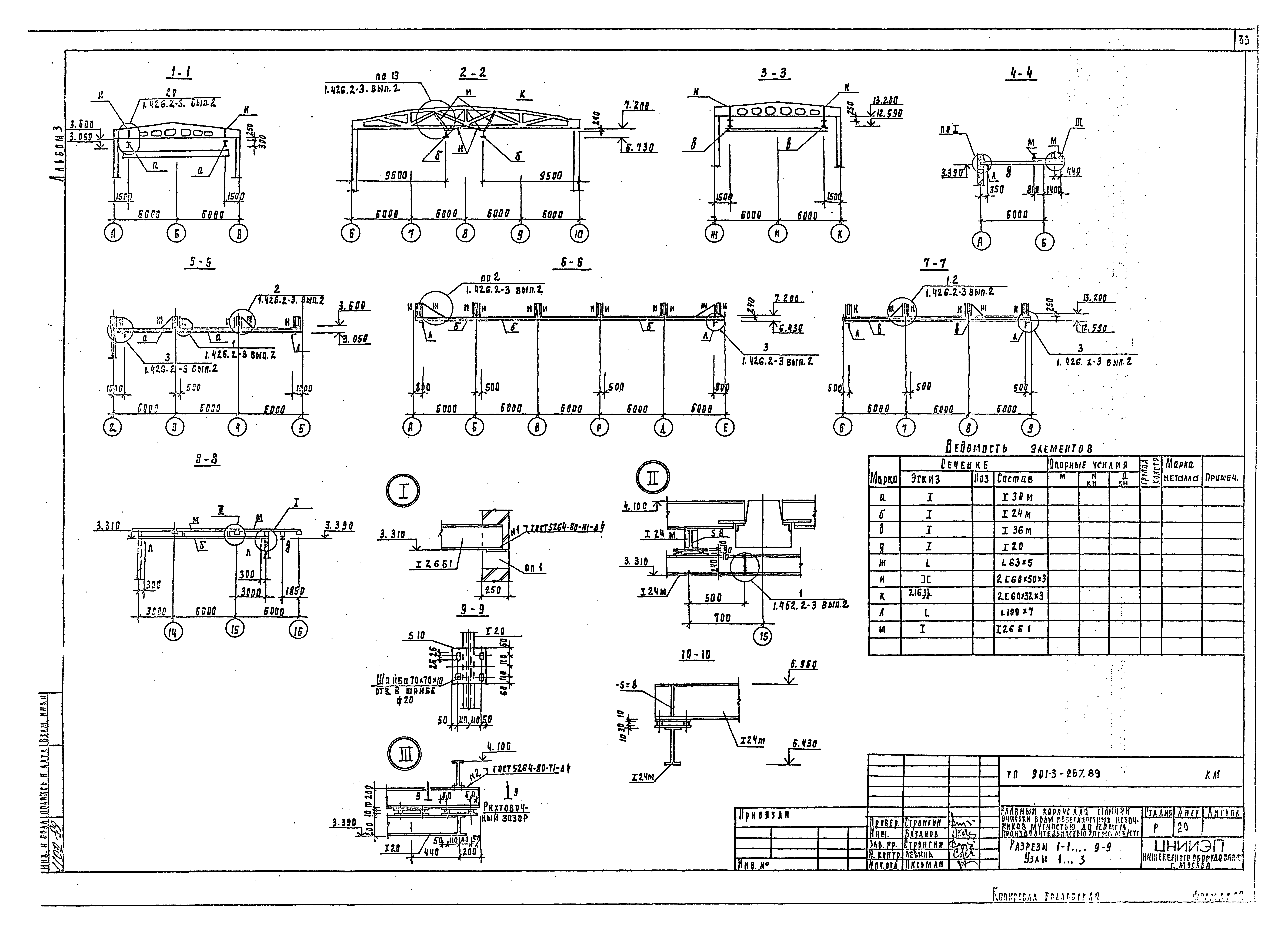
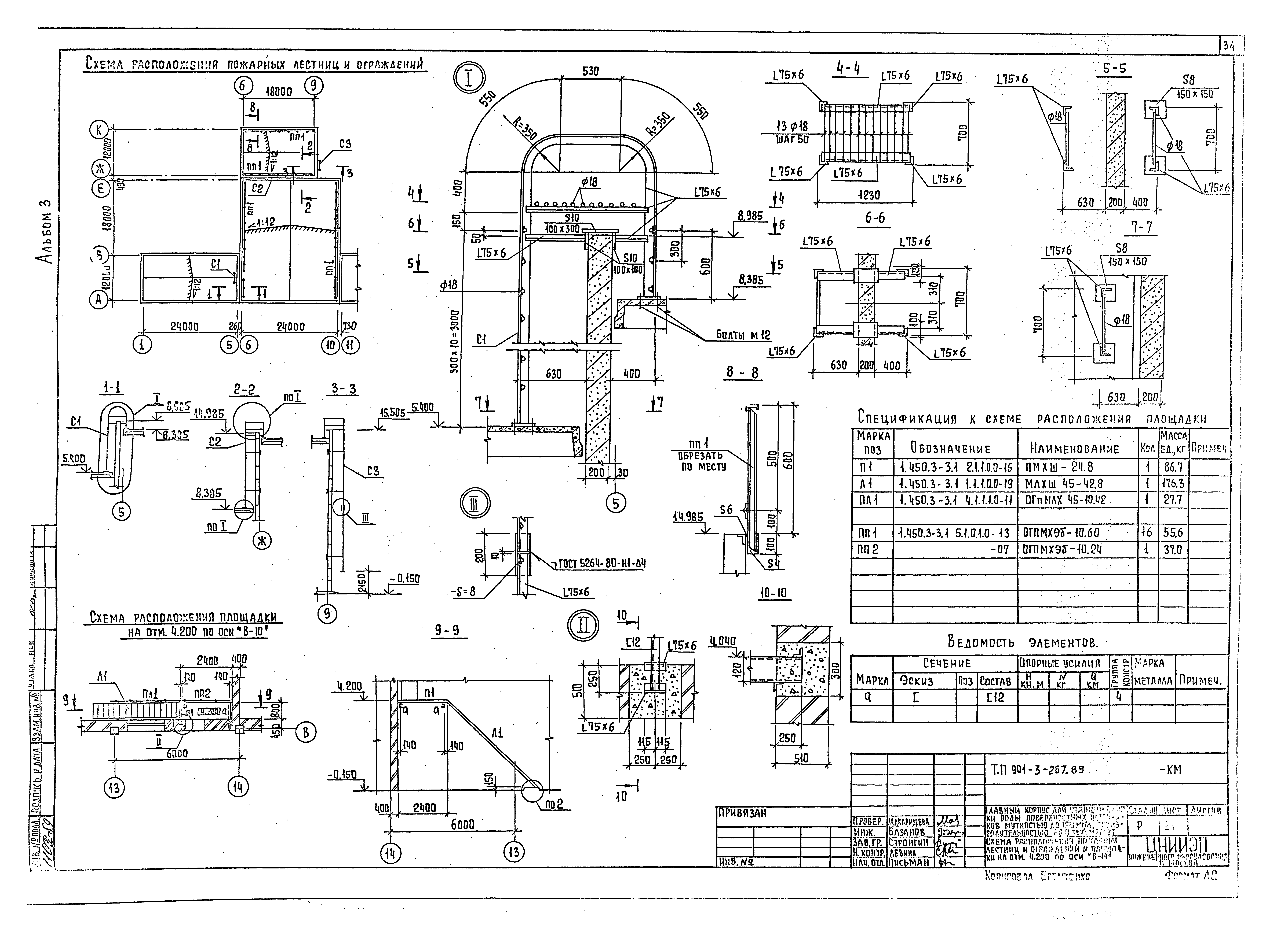
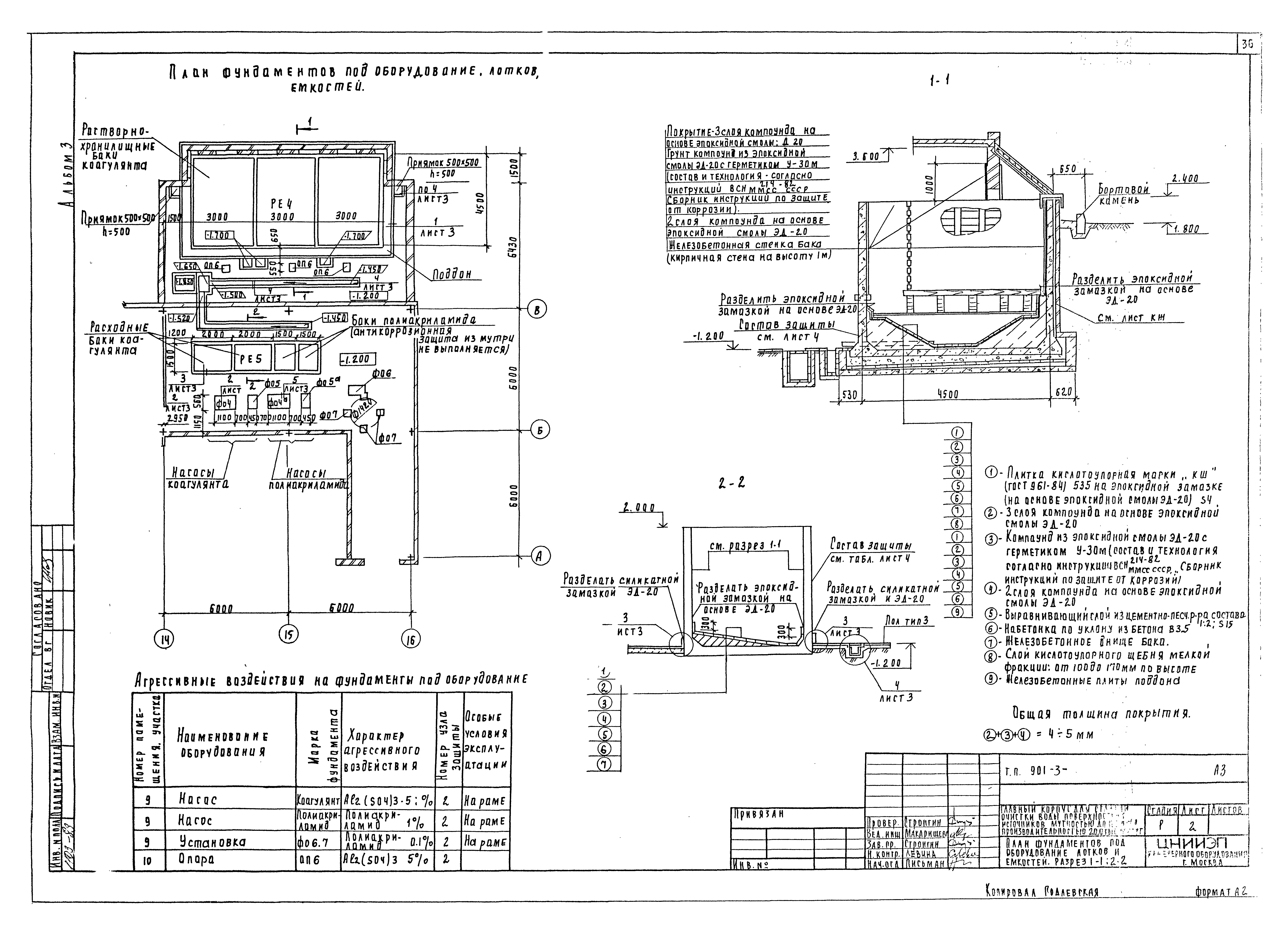
| Оглавление: | Чертежи основного комплекта марки АР Общие данные План на отм. - 2.400; - 1.200; - 1.000; 0.000 Планы на отм. 3.600; 4.200; 7.000; 11.000 Разрезы 1-1, 2-2, 3-3 Фасады 1 - 16, 16 - 1 Фасады А - К, К - А План перегородок на отм. 4.200. Спецификация перегородок План отверстий и перемычек на отм. 0.000 План отверстий и перемычек на отм. 4.200. Ведомости отверстий и перемычек. Спецификация перемычек. Фрагменты 1 и 2 Ведомость проемов ворот и дверей. Спецификация элементов заполнения проемов. Узлы I - VI План кровли. Узлы VII, VIII, IX. Ведомость отделки помещений Планы полов на отм. - 2.400; - 1.200; - 1.000; 0.000; 3.600; 4.200. Экспликация полов Чертежи основного комплекта марки КМ Общие данные Техническая спецификация металла Техническая спецификация металла на типовые конструкции Ведомость металлоконструкций по видам профилей Схемы расположения балок, площадок, лестниц на отм. 0.000; - 1.200 Разрезы 1-1…3-3. Узлы 1…10 Схемы расположения балок, лестниц, площадок на отм. 1.400; 11.000 Схемы расположения балок, лестниц, площадок на отм. 7.000; 3.600 Разрез 3-3. Узлы 11…17 Схемы расположения балок на отм. 3.600 Схемы расположения лестниц и площадок на отм. 3.600; 4.200 Разрезы 1-1…8-8 Схемы расположения балок и стоек на отм. 1.600; 1.100; - 0.200 Схемы расположения лестниц, площадок на отм. 1.600; 1.100; - 0.200 Схемы расположения балок, площадок, лестниц на отм. 0.000; 1.200 в осях 11…13, Б, В Разрезы 1-1…5-5 Узлы 32…39 Схема расположения путей подвесного транспорта и монорельса Разрезы 1-1…9-9. Узлы 1…3 Схемы расположения пожарных лестниц и ограждений и площадки на отм. 4.200 по оси "В - 14" Чертежи основного комплекта марки АЗ Общие данные План фундаментов под оборудование, лотков и емкостей. Разрез 1-1, 2-2 Узлы 1…5. Деталь пропуска полиэтиленовых труб Планы полов Ведомость объемов антикоррозийных работ Чертежи основного комплекта марки ОС График производства работ |
| Разработан: | ЦНИИЭП |
| Утверждён: | 29.07.1986 Госгражданстрой (Gosgrazhdanstroy 242) |
| Заменяет собой: |
|










































